Exhibit 10.1

Execution Version

*** indicates material has been omitted pursuant to a Confidential Treatment Request filed with the Securities and Exchange Commission. A complete copy of this agreement has been filed separately with the Securities and Exchange Commission.

FIXED PRICE SEPARATED TURNKEY AGREEMENT

for the

ENGINEERING, PROCUREMENT AND CONSTRUCTION

of the

CORPUS CHRISTI STAGE 1 LIQUEFACTION FACILITY

by and between

CORPUS CHRISTI LIQUEFACTION, LLC

as Owner

and

BECHTEL OIL, GAS AND CHEMICALS, INC.

as Contractor

Dated as of the 6th Day of December, 2013


TABLE OF CONTENTS

 

RECITALS

       1   

ARTICLE 1  

 

DEFINITIONS

     1   

ARTICLE 2

 

RELATIONSHIP OF OWNER, CONTRACTOR AND SUBCONTRACTORS

     20   

2.1    

 

Status of Contractor

     20   

2.2    

 

Key Personnel, Organization Chart and Contractor Representative

     21   

2.3    

 

Subcontractors and Sub-subcontractors

     21   

2.4    

 

Subcontracts and Sub-subcontracts

     22   

2.5    

 

Contractor Acknowledgements

     23   

ARTICLE 3

 

CONTRACTOR’S RESPONSIBILITIES

     25   

3.1    

 

Scope of Work

     25   

3.2    

 

Specific Obligations

     25   

3.3    

 

Design and Engineering Work

     27   

3.4    

 

Spare Parts

     28   

3.5    

 

Training Program in General

     29   

3.6    

 

Environmental Regulations and Environmental Compliance

     29   

3.7    

 

Construction Equipment

     29   

3.8    

 

Employment of Personnel

     30   

3.9    

 

Clean-Up

     31   

3.10  

 

HSE Plan; Security

     31   

3.11  

 

Emergencies

     32   

3.12  

 

Contractor Permits

     32   

3.13  

 

Books, Records and Audits

     33   

3.14  

 

Tax Accounting

     33   

3.15  

 

Temporary Utilities, Roads, Facilities and Storage

     34   

3.16  

 

Subordination of Liens

     35   

3.17  

 

Hazardous Materials

     35   

3.18  

 

Quality Control

     36   

3.19  

 

Reports

     37   

3.20  

 

Payment

     37   

3.21  

 

Commercial Activities

     37   

3.22  

 

Title to Materials Found

     37   

3.23  

 

Survey Control Points and Layout

     37   

3.24  

 

Cooperation with Others at the Site

     37   

3.25  

 

Integration with Subproject 1 after Substantial Completion of Subproject 1

     38   

3.26  

 

Responsibility for Property

     40   

3.27  

 

Explosives

     40   

3.28  

 

Taxes

     40   

3.29  

 

Equipment Quality

     40   

3.30  

 

Loss of LNG or Natural Gas

     41   


ARTICLE 4

  

OWNER’S RESPONSIBILITIES

     41   

4.1  

  

Payment and Financing

     41   

4.2  

  

Owner Permits

     42   

4.3  

  

Access to the Site and Off-Site Rights of Way and Easements

     42   

4.4  

  

Operation Personnel

     43   

4.5  

  

Texas Sales and Use Tax Matters

     43   

4.6  

  

Legal Description and Survey

     44   

4.7  

  

Hazardous Materials

     44   

4.8  

  

Owner-Provided Items

     45   

4.9  

  

Owner Representative

     45   

4.10

  

LNG Tanker Release

     45   

ARTICLE 5

  

COMMENCEMENT OF WORK, PROJECT SCHEDULE, AND SCHEDULING OBLIGATIONS

     46   

5.1  

  

Commencement of Work

     46   

5.2  

  

Limited Notice to Proceed/Notice to Proceed

     46   

5.3  

  

Project Schedule

     48   

5.4  

  

CPM Schedule Submissions

     48   

5.5  

  

Recovery and Recovery Schedule

     48   

5.6  

  

Acceleration and Acceleration Schedule

     50   

ARTICLE 6

  

CHANGES; FORCE MAJEURE; AND OWNER-CAUSED DELAY

     51   

6.1  

  

Change Orders Requested by Owner

     51   

6.2  

  

Change Orders Requested by Contractor

     53   

6.3  

  

Contract Price Adjustment; Contractor Documentation

     55   

6.4  

  

Change Orders Act as Accord and Satisfaction

     55   

6.5  

  

Timing Requirements for Notifications and Change Order Requests by Contractor

     56   

6.6  

  

Evidence of Funds

     57   

6.7  

  

Adjustment Only Through Change Order

     57   

6.8  

  

Force Majeure

     57   

6.9  

  

Extensions of Time and Adjustment of Compensation

     58   

6.10

  

Delay

     59   

6.11

  

Contractor Obligation to Mitigate Delay

     59   

6.12

  

Separated Contract Price Adjustments in Change Orders

     59   

ARTICLE 7

  

CONTRACT PRICE AND PAYMENTS TO CONTRACTOR

     59   

7.1  

  

Contract Price

     59   

7.2  

  

Interim Payments

     60   

  7.3  

  

Final Completion and Final Payment

     64   

7.4  

  

Payments Not Acceptance of Work

     65   

7.5  

  

Payments Withheld

     65   

7.6  

  

Interest on Late Payments and Improper Collection

     66   

7.7  

  

Offset

     66   

7.8  

  

Procedure for Withholding, Offset and Collection on the Letter of Credit

     66   

7.9  

  

Payment Error

     67   

 

- ii -


ARTICLE 8

  

TITLE AND RISK OF LOSS

     67   

8.1  

  

Title

     67   

8.2  

  

Risk of Loss

     68   

ARTICLE 9

  

INSURANCE AND LETTER OF CREDIT

     69   

9.1  

  

Insurance

     69   

9.2  

  

Irrevocable Standby Letter of Credit

     70   

9.3  

  

DSU Insurance

     72   

ARTICLE 10

  

OWNERSHIP OF DOCUMENTATION

     72   

10.1

  

Work Product

     72   

10.2

  

Owner Provided Documents

     74   

10.3

  

License to Use Liquefaction Facility

     75   

ARTICLE 11

  

COMPLETION

     75   

11.1

   Notice of RFSU, Delivery of Feed Gas for Commissioning, Start Up and Performance Testing, LNG Production and Ready for Ship Loading Time Test      75   

11.2

  

Notice and Requirements for Substantial Completion

     78   

11.3

  

Owner Acceptance of RFSU and Substantial Completion

     79   

11.4

  

Minimum Acceptance Criteria and Performance Liquidated Damages

     80   

11.5

  

Punchlist

     82   

11.6

  

Notice and Requirements for Final Completion

     83   

11.7

  

Operations Activities

     83   

ARTICLE 12

  

WARRANTY AND CORRECTION OF WORK

     84   

12.1

  

Warranty

     84   

12.2

  

Correction of Work Prior to Substantial Completion

     85   

12.3

  

Correction of Work After Substantial Completion

     86   

12.4

  

Assignability of Warranties

     87   

12.5

  

Waiver of Implied Warranties

     88   

ARTICLE 13

  

DELAY LIQUIDATED DAMAGES AND SCHEDULE BONUS

     88   

13.1

  

Delay Liquidated Damages

     88   

13.2

  

Schedule Bonus

     88   

ARTICLE 14

  

CONTRACTOR’S REPRESENTATIONS

     88   

14.1

  

Corporate Standing

     88   

14.2

  

No Violation of Law; Litigation

     89   

14.3

  

Licenses

     89   

14.4

  

No Breach

     89   

14.5

  

Corporate Action

     89   

14.6

  

Financial Solvency

     89   

ARTICLE 15

  

OWNER’S REPRESENTATIONS

     89   

15.1

  

Standing

     89   

15.2

  

No Violation of Law; Litigation

     90   

 

- iii -


15.3

  

Licenses

     90   

15.4

  

No Breach

     90   

15.5

  

Corporate Action

     90   

15.6

  

Financial Solvency

     90   

ARTICLE 16

  

DEFAULT, TERMINATION AND SUSPENSION

     90   

16.1

  

Default by Contractor

     90   

16.2

  

Termination for Convenience by Owner

     92   

16.3

  

Suspension of Work

     93   

16.4

  

Suspension by Contractor

     94   

16.5

  

Termination by Contractor

     95   

16.6

  

Termination in the Event of an Extended Force Majeure

     95   

16.7

  

Termination in the Event of Delayed Notice to Proceed

     95   

16.8

  

Contractor’s Right to Terminate

     95   

ARTICLE 17

  

RELEASES AND INDEMNITIES

     96   

17.1

  

General Indemnification

     96   

17.2

  

Injuries to Contractor’s Employees and Damage to Contractor’s Property

     97   

17.3

  

Injuries to Owner’s Employees and Damage to Owner’s Property

     98   

17.4

  

Patent and Copyright Indemnification Procedure

     100   

17.5

  

Lien Indemnification

     100   

17.6

  

Owner’s Failure to Comply with Applicable Law

     101   

17.7

  

Landowner Claims

     101   

17.8

  

Legal Defense

     102   

17.9

  

Enforceability

     102   

ARTICLE 18

  

DISPUTE RESOLUTION

     103   

18.1

  

Negotiation

     103   

18.2

  

Arbitration

     103   

18.3

  

Continuation of Work During Dispute

     104   

18.4

  

Escrow of Certain Disputed Amounts By Owner

     104   

ARTICLE 19

  

CONFIDENTIALITY

     105   

19.1

  

Contractor’s Obligations

     105   

19.2

  

Owner’s Obligations

     105   

19.3

  

Definitions

     105   

19.4

  

Exceptions

     105   

19.5

  

Equitable Relief

     106   

19.6

  

Term

     106   

ARTICLE 20

  

LIMITATION OF LIABILITY

     106   

20.1

  

Contractor Aggregate Liability

     106   

20.2

  

Limitation on Contractor’s Liability for Liquidated Damages

     108   

20.3

  

Liquidated Damages In General

     109   

20.4

  

Consequential Damages

     109   

20.5

  

Exclusive Remedies

     110   

20.6

  

Applicability

     110   

20.7

  

Term Limit

     110   

 

- iv -


ARTICLE 21

  

MISCELLANEOUS PROVISIONS

     110   

21.1  

  

Entire Agreement

     110   

21.2  

  

Amendments

     111   

21.3  

  

Joint Effort

     111   

21.4  

  

Captions

     111   

21.5  

  

Notice

     111   

21.6  

  

Severability

     112   

21.7  

  

Assignment

     112   

21.8  

  

No Waiver

     112   

21.9  

  

Governing Law

     112   

21.10

  

Successors and Assigns

     113   

21.11

  

Attachments and Schedules

     113   

21.12

  

Obligations

     113   

21.13

  

Further Assurances

     113   

21.14

  

Priority

     113   

21.15

  

Restrictions on Public Announcements

     113   

21.16

  

Potential Lenders, Potential Equity Investors and Equity Participants

     114   

21.17

  

Foreign Corrupt Practices Act

     114   

21.18

  

Parent Guarantee

     115   

21.19

  

Language

     115   

21.20

  

Counterparts

     115   

21.21

  

Federal Energy Regulatory Commission Approval

     115   

21.22

  

Owner’s Lender

     115   

21.23

  

Independent Engineer

     115   

21.24

  

Liquefaction Facility

     115   

21.25

  

Survival

     116   

 

- v -


LIST OF ATTACHMENTS AND SCHEDULES

 

ATTACHMENT A    Scope of Work and Basis of Design for Stage 1
        SCHEDULE A-1                        Scope of Work
        SCHEDULE A-2            FEED Documents
ATTACHMENT B    Contractor Deliverables for Stage 1
ATTACHMENT C    Payment Schedule for Stage 1
        SCHEDULE C-1            Aggregate Labor and Skills Price Milestone Payment Schedule
        SCHEDULE C-2            Aggregate Labor and Skills Price Monthly Payment Schedule
        SCHEDULE C-3            Aggregate Equipment Price Milestone Payment Schedule
        SCHEDULE C-4            Estimated Monthly Payments for Stage 1 Liquefaction Facility
ATTACHMENT D    Form of Change Order for Stage 1
        SCHEDULE D-1            Change Order Form for Stage 1
        SCHEDULE D-2            Unilateral Change Order Form for Stage 1
        SCHEDULE D-3            Contractor’s Change Order Request Form for Stage 1/Contractor’s Response to a Change
           Order Proposed by Owner for Stage 1
        SCHEDULE D-4            Unit Rates for Change Orders Performed on a Time and Material Basis
ATTACHMENT E    Project Schedule for Stage 1
ATTACHMENT F    Key Personnel and Contractor’s Organization for Stage 1
ATTACHMENT G    Major Subcontracts, Major Sub-subcontracts, Bulk Subcontracts, Major Equipment, Approved Subcontractors and Sub-subcontractors for Stage 1
ATTACHMENT H    Form of Limited Notice to Proceed and Notice to Proceed for Stage 1
        SCHEDULE H-1            Form of Limited Notice to Proceed for Stage 1
        SCHEDULE H-2            Form of Notice to Proceed for Stage 1

 

- vi -


ATTACHMENT I                    Form of Contractor’s Invoices for Stage 1
        SCHEDULE I-1            Form of Contractor’s Interim Invoice
        SCHEDULE I-2            Form of Contractor’s Final Invoice
ATTACHMENT J    HSE Plan Requirements for Stage 1
ATTACHMENT K    Form of Lien and Claim Waivers for Stage 1
        SCHEDULE K-1            Contractor’s Interim Conditional Lien Waiver for Stage 1
        SCHEDULE K-2            Contractor’s Interim Unconditional Lien Waiver for Stage 1
        SCHEDULE K-3            Subcontractor’s Interim Conditional Lien Waiver for Stage 1
        SCHEDULE K-4            Subcontractor’s Interim Unconditional Lien Waiver for Stage 1
        SCHEDULE K-5            Contractor’s Final Conditional Lien and Claim Waiver for Stage 1
                EXHIBIT K-5-1                    Contractor’s Final Conditional Lien Waiver for Stage 1
                EXHIBIT K-5-2                    Contractor’s Final Conditional Claim Waiver for Stage 1
        SCHEDULE K-6            Contractor’s Final Unconditional Lien and Claim Waiver for Stage 1
                EXHIBIT K-6-1                    Contractor’s Final Unconditional Lien Waiver for Stage 1
                EXHIBIT K-6-2                    Contractor’s Final Unconditional Claim Waiver for Stage 1
        SCHEDULE K-7            Subcontractor’s Final Conditional Lien and Claim Waiver for Stage 1
                EXHIBIT K-7-1                    Subcontractor’s Final Conditional Lien Waiver for Stage 1
                EXHIBIT K-7-2                    Subcontractor’s Final Conditional Claim Waiver for Stage 1
        SCHEDULE K-8            Subcontractor’s Final Unconditional Lien and Claim Waiver for Stage 1
                EXHIBIT K-8-1                    Subcontractor’s Final Unconditional Lien Waiver for Stage 1
                EXHIBIT K-8-2                    Subcontractor’s Final Unconditional Claim Waiver for Stage 1
ATTACHMENT L    Form of RFSU Completion Certificate for Stage 1

 

- vii -


ATTACHMENT M    Form of Substantial Completion Certificate for Stage 1
ATTACHMENT N                Form of Final Completion Certificate for Stage 1
ATTACHMENT O    Insurance Requirements for Stage 1
ATTACHMENT P    Contractor Permits for Stage 1
ATTACHMENT Q    Owner Permits for Stage 1
ATTACHMENT R    Stage 1 Form of Irrevocable, Standby Letter of Credit
ATTACHMENT S    Stage 1 Performance Tests and Commissioning Tests
ATTACHMENT T    Stage 1 Performance Guarantee, Performance Liquidated Damages, Minimum Acceptance Criteria, and Delay Liquidated Damages
ATTACHMENT U    Owner Provided Items and Responsibility for Stage 1
ATTACHMENT V    Pre-Commissioning, Commissioning, Start-Up, and Training for Stage 1
ATTACHMENT W    Spare Parts for Stage 1
        SCHEDULE W-1            Form of Operating Spare Parts List for Stage 1
        SCHEDULE W-2            Capital Spare Parts List
ATTACHMENT X    Work in Subproject 1 after Substantial Completion of Subproject 1
ATTACHMENT Y    Site, Stage 1 Site, Stage 2 Site and Off-Site Rights of Way and Easements
ATTACHMENT Z    Landowner Access for Stage 1
ATTACHMENT AA    Form of Acknowledgement and Consent Agreement for Stage 1
ATTACHMENT BB    Form of Owner Confirmations for Stage 1
        SCHEDULE BB-1            Form of Owner Quarterly Confirmation
ATTACHMENT CC    Independent Engineer Activities for Stage 1
ATTACHMENT DD    Form of Escrow Agreement for Stage 1
ATTACHMENT EE    Provisional Sums for Stage 1
ATTACHMENT FF    Form of Parent Guarantee for Stage 1

 

- viii -


CORPUS CHRISTI STAGE 1 LIQUEFACTION FACILITY

ENGINEERING, PROCUREMENT AND CONSTRUCTION AGREEMENT

THIS ENGINEERING, PROCUREMENT AND CONSTRUCTION AGREEMENT (this “Agreement”), dated as of the 6th Day of December, 2013 (the “Contract Date”), is entered into by and between CORPUS CHRISTI LIQUEFACTION, LLC, a Delaware limited liability company, having its principal place of business at 700 Milam, Suite 800, Houston, Texas 77002 (“Owner”), and BECHTEL OIL, GAS AND CHEMICALS, INC., a Delaware corporation, having an address at 3000 Post Oak Boulevard, Houston, Texas 77056 (“Contractor” and, together with Owner, each a “Party” and together the “Parties”).

RECITALS

WHEREAS, Owner desires to enter into an agreement with Contractor to provide services for (a) the engineering, procurement and construction of a turnkey LNG liquefaction facility comprised of two LNG trains each with a nominal production capacity of approximately 4.5 mtpa, two LNG storage tanks each with a working capacity of 160,000 cubic meters, one completed marine berth (West), one partially completed marine berth (East), and certain offsites, utilities, and supporting infrastructure to be owned by Owner and located at the Stage 1 Site (as defined below), which is located in San Patricio County and Nueces County near Portland, Texas, and all appurtenances thereto (as more fully described herein, the “Stage 1 Liquefaction Facility”), and (b) the commissioning, start-up and testing of the Stage 1 Liquefaction Facility, all as further described herein (collectively, the “Project”); and

WHEREAS, Contractor, itself or through its vendors, suppliers, and subcontractors, desires to provide the foregoing engineering, procurement, construction, commissioning, start-up and testing services on a fixed price, turnkey basis (which fixed price is separated for tax purposes);

NOW THEREFORE, in consideration of the mutual covenants herein contained and for other good and valuable consideration, the receipt and adequacy of which are hereby acknowledged, the Parties, intending to be legally bound, hereby agree as follows:

ARTICLE 1

DEFINITIONS

1.1 In addition to other defined terms used throughout this Agreement, when used herein, the following capitalized terms have the meanings specified in this Section 1.1.

AAA” has the meaning set forth in Section 18.2.

AAA Rules” has the meaning set forth in Section 18.2.

Acceleration Schedule” has the meaning set forth in Section 5.6A.

 


Affiliate” means any Person that directly or indirectly, through one or more intermediaries, controls, is controlled by, or is under common control with a Party. For purposes of this definition, “control” (including, with correlative meanings, the terms “controlled by” and “under common control with”) means the possession, directly or indirectly, of the power to direct or cause the direction of the management and policies of a Person, whether through the ownership of voting securities or otherwise.

Aggregate Cap” has the meaning set forth in Section 20.1A.

Aggregate Equipment Price” has the meaning set forth in Section 7.1A.

Aggregate Labor and Skills Price” has the meaning set forth in Section 7.1B.

Aggregate Provisional Sum” has the meaning set forth in Section 7.1C.

Agreement” means this Agreement for the performance of the Work (including all Attachments, Schedules and Exhibits attached hereto), as it may be amended from time to time in accordance with this Agreement.

Applicable Codes and Standards” means any and all codes, standards or requirements applicable to the Work set forth or listed in Attachment A, in any Applicable Law (subject to an adjustment by Change Order in accordance with Section 6.2A.1), or which are set forth or listed in any document or Drawing listed in Attachment A, which codes, standards and requirements shall govern Contractor’s performance of the Work, as provided herein, provided that, with respect to Applicable Codes and Standards which are not set forth in any Applicable Law, any reference herein to such Applicable Codes and Standards shall refer to those Applicable Codes and Standards set forth or listed in any document or Drawing listed in Attachment A.

Applicable Law” means all laws, statutes, ordinances, orders, decrees, injunctions, licenses, Permits, approvals, rules and regulations, including any conditions thereto, of any Governmental Instrumentality having jurisdiction over all or any portion of the Site, the Off-Site Rights of Way and Easements or the Project or performance of all or any portion of the Work or the operation of the Project, or other legislative or administrative action of a Governmental Instrumentality, or a final decree, judgment or order of a court which relates to the performance of Work hereunder.

Books and Records” has the meaning set forth in Section 3.13A.

Bulk Order Subcontractors” means the Subcontractors listed as such in Attachment G.

Business Day” means every Day other than a Saturday, a Sunday or a Day that is an official holiday for employees of the federal government of the United States of America.

CAD” has the meaning set forth in Section 3.3E.

Carve-Outs” has the meaning set forth in Section 20.1.

 

 

- 2 -


Change in Law” means any amendment, modification, superseding act, deletion, addition or change in or to Applicable Law (excluding changes to tax laws where such taxes are based upon Contractor’s income or profits/losses) that occurs and takes effect after May 15, 2011. A Change in Law shall include any official change in the interpretation or application of Applicable Law (including Applicable Codes and Standards set forth in Applicable Law), provided that such change is expressed in writing by the applicable Governmental Instrumentality.

Change Order” means, after the execution of this Agreement, any of the following: (i) a written order issued by Owner to Contractor, in the form of Schedule D-2, (ii) a written instrument signed by both Parties in the form of Schedule D-1, in each case executed pursuant to the applicable provisions of Article 6, or (iii) a determination issued pursuant to Article 18, that authorizes an addition to, deletion from, suspension of, or any other modification or adjustment to the requirements of this Agreement, including the Work or any Changed Criteria.

Changed Criteria” has the meaning set forth in Section 6.1A.

Cheniere” means Cheniere Energy, Inc.

Collateral Agent” means the collateral agent under the credit agreement for the financing of the Project.

Commissioning Feed Gas” has the meaning set forth in Section 4.8C.

Commissioning LNG” has the meaning set forth in Section 11.1C.

Commissioning Period” has the meaning set forth in Attachment T.

Confidential Information” has the meaning set forth in Section 19.3.

Confirmed Acceleration Directive” has the meaning set forth in Section 5.6A.

ConocoPhillips Intellectual Property” has the meaning set forth in Section 10.1D.

ConocoPhillips License Agreement” means the license agreement between ConocoPhillips Company and Owner relating to the Optimized Cascade Process for Subproject 1 and Subproject 2.

ConocoPhillips Work Product” has the meaning set forth in Section 10.1D.

Consequential Damages” has the meaning set forth in Section 20.4.

Construction Equipment” means the equipment, machinery, structures, scaffolding, materials, tools, supplies and systems owned, rented or leased by Contractor or its Subcontractors or Sub-subcontractors for use in accomplishing the Work, but not intended for incorporation into the Project.

Construction Equipment Lessor” means the Subcontractor or Sub-subcontractor, as the case may be, who rents or leases Construction Equipment.

Contract Date” has the meaning set forth in the preamble.

 

- 3 -


Contract Price” has the meaning set forth in Section 7.1, as may be adjusted by Change Order in accordance with the terms of this Agreement.

Contractor” has the meaning set forth in the preamble hereto.

Contractor Existing Intellectual Assets” has the meaning set forth in Section 10.1A.

Contractor Group” means (i) Contractor and its Affiliates and (ii) the respective directors, officers, agents, employees, and representatives of each Person specified in clause (i) above.

Contractor Permits” means the Permits listed in Attachment P and any other Permits (not listed in either Attachment P or Attachment Q) necessary for performance of the Work which are required to be obtained in Contractor’s name pursuant to Applicable Law.

Contractor Representative” means that Person or Persons designated by Contractor in a written notice to Owner specifying any and all limitations of such Person’s authority, and acceptable to Owner, who shall have complete authority to act on behalf of Contractor on all matters pertaining to this Agreement or the Work including giving instructions and making changes in the Work. The Contractor Representative as of the Contract Date is designated in Section 2.2B.

Contractor’s Confidential Information” has the meaning set forth in Section 19.2.

Controlled Areas” has the meaning set forth in Attachment Y.

Cool Down” means the controlled process by which a process system is taken from its ambient condition (purged and cleaned of air, moisture and debris, etc.) and cooled down to its cryogenic temperature (at or below – 260°F) through the use of LNG, which shall be set forth in the Project Commissioning Plan. A system has achieved “Cool Down” when it has reached its cryogenic temperature in a stable condition.

Corrective Work” has the meaning set forth in Section 12.3.

CPM Schedule” has the meaning set forth in Section 5.4.

Currency Provisional Sum” has the meaning set forth in Attachment EE.

Daily Quantities” has the meaning set forth in Section 11.1B.

Day” means a calendar day.

Default” has the meaning set forth in Section 16.1A.

Defect” or “Defective” has the meaning set forth in Section 12.1A.

Defect Correction Period” means, with respect to each Subproject, the period commencing upon Substantial Completion thereof and ending eighteen (18) months thereafter.

 

- 4 -


Delay Liquidated Damages” has the meaning set forth in Section 13.1.

Design Basis” means the basis of design and technical limits and parameters of the Stage 1 Liquefaction Facility as set forth in Attachment A.

Disclosing Party” has the meaning set forth in Section 19.3.

Dispute” has the meaning set forth in Section 18.1.

Dispute Notice” has the meaning set forth in Section 18.1.

Drawings” means the graphic and pictorial documents showing the design, location and dimensions of the Stage 1 Liquefaction Facility, generally including plans, elevations, sections, details, schedules and diagrams, which are prepared as a part of and during the performance of the Work.

Effective Date” means the earlier of the date on which Owner issues the (i) Limited Notice to Proceed in accordance with Section 5.1 or (ii) NTP in accordance with Section 5.2B.

Environmental Law” means any Applicable Law relating to (i) pollution; (ii) protection of human health and safety (to the extent such health and safety relates to exposure to Hazardous Materials, including any Pre-Existing Contamination), natural resources or the environment; or (iii) any exposure to, or presence, generation, manufacture, use, handling, storage, treatment, processing, transport or disposal, arrangement for transport or disposal, spill, discharge or other release of Hazardous Materials, including any Pre-Existing Contamination.

Equipment” means all equipment, materials, supplies, software, licenses and systems required for the completion of and incorporation into the Stage 1 Liquefaction Facility. Notwithstanding the foregoing, equipment required to be engineered, procured or constructed under the Stage 2 EPC Agreement shall not be considered Equipment under this Agreement.

Escrow Agent” means the escrow agent under the Escrow Agreement.

Escrow Agreement” means the escrow agreement between Owner, Escrow Agent and Contractor, which shall be in the form attached hereto as Attachment DD.

Escrowed Amounts” has the meaning set forth in Section 18.4.

Excessive Monthly Precipitation” means that the total precipitation measured at the Site for the Month that the event in question occurred has exceeded the following selected probability levels for such Month for Weather Station TX412015 Corpus Christi International AP, as specified in the National Oceanic and Atmospheric Administration publication titled “Climatography of the U.S. No. 81, Supplement No. 1, Monthly Precipitation Probabilities and Quintiles, 1971-2000”:

 

- 5 -


  (1) For the period from Contractor’s mobilization to the Site until twenty-one (21) Months after NTP with respect to Subproject 1 and for the period from Contractor’s mobilization of the Site until twenty-nine (29) Months after NTP with respect to Subproject 2, the selected probability level of 0.6 shall apply; and

 

  (2) For all other periods after Contractor’s mobilization to the Site, the selected probability level of 0.8 shall apply.

The Parties recognize that the assessment as to whether or not total precipitation measured at the Site for a given Month constitutes Excessive Monthly Precipitation can only be made after the end of the Month in question.

Feed Document” has the meaning set forth in Attachment A.

Feed Gas” means the Natural Gas that is to be used as feed stock for the Stage 1 Liquefaction Facility.

FERC” means the Federal Energy Regulatory Commission.

FERC Authorizationmeans the authorization by the FERC granting to Owner the approvals requested in that certain application filed by Owner with the FERC on August 31, 2012, in Docket No CP12-507-000 (as may be amended from time to time) pursuant to Section 3(a) of the Natural Gas Act and the corresponding regulations of the FERC.

FERC Authorization for Commissioning” has the meaning set forth in Section 11.1A.

Final Completion” means that all Work and all other obligations under this Agreement (except for that Work and obligations that survive the termination or expiration of this Agreement, including obligations for Warranties and correction of Defective Work pursuant to Section 12.3 and any other obligations covered under Section 11.6), are fully and completely performed in accordance with the terms of this Agreement, including: (i) the achievement of Substantial Completion of Subproject 1 and Subproject 2; (ii) the completion of all Punchlist items; (iii) delivery by Contractor to Owner of a fully executed Final Conditional Lien and Claim Waiver in the form of Schedule K-5, Exhibits K-5-1 and K-5-2; (iv) delivery by Contractor to Owner of all documentation required to be delivered under this Agreement as a prerequisite of achievement of Final Completion, including Record Drawings; (v) removal from the Stage 1 Site of all of Contractor’s, Subcontractors’ and Sub-subcontractors’ personnel, supplies, waste, materials, rubbish, and temporary facilities; (vi) delivery by Contractor to Owner of fully executed Final Conditional Lien and Claim Waivers from all Lien Waiver Subcontractors in the form in Schedule K-7, Exhibits K-7-1 and K-7-2; (vii) fully executed Final Conditional Lien and Claim Waivers from Major Sub-subcontractors in a form substantially similar to the form in Schedule K-7, Exhibits K-7-1 and K-7-2; (viii) delivery by Contractor to Owner of a Final Completion Certificate in the form of Attachment N and as required under Section 11.6; (ix) Contractor has, pursuant to Section 3.4, delivered to the Project all Operating Spare Parts required by the Operating Spare Parts List to be delivered to the Project prior to Final Completion; and (x) if pursuant to Section 11.4A Substantial Completion was achieved without Contractor having achieved the Performance Guarantee, Contractor has achieved the Performance Guarantee or has paid the applicable Performance Liquidated Damages.

 

- 6 -


Final Completion Certificate” has the meaning set forth in Section 11.6.

Final Conditional Lien and Claim Waiver” means the waiver and release provided to Owner by Contractor, Lien Waiver Subcontractors and Major Sub-subcontractors in accordance with the requirements of Section 7.3, which shall be in the form of Attachment K, Schedules K-5 and K-7.

Final Unconditional Lien and Claim Waiver” means the waiver and release provided to Owner by Contractor, Lien Waiver Subcontractors and Major Sub-subcontractors in accordance with the requirements of Section 7.3, which shall be in the form of Attachment K, Schedules K-6 and K-8.

Force Majeure” means any act or event that (i) prevents or delays the affected Party’s performance of its obligations in accordance with the terms of this Agreement, (ii) is beyond the reasonable control of the affected Party, not due to its fault or negligence, and (iii) could not have been prevented or avoided by the affected Party through the exercise of due diligence. Force Majeure may include catastrophic storms or floods, Excessive Monthly Precipitation, lightning, tornadoes, hurricanes, a named tropical storm, earthquakes and other acts of God, wars, civil disturbances, revolution, acts of public enemy, acts of terrorism, credible threats of terrorism, revolts, insurrections, sabotage, riot, plague, epidemic, commercial embargoes, expropriation or confiscation of the Project, epidemics, fires, explosions, industrial action or strike (except as excluded below), and actions of a Governmental Instrumentality that were not requested, promoted, or caused by the affected Party. For avoidance of doubt, Force Majeure shall not include any of the following: (i) economic hardship unless such economic hardship was otherwise caused by Force Majeure; (ii) changes in market conditions unless any such change in market conditions was otherwise caused by Force Majeure; (iii) industrial actions and strikes involving only the employees of Contractor or any of its Subcontractors; or (iv) nonperformance or delay by Contractor or its Subcontractors or Sub-subcontractors, unless such nonperformance or delay was otherwise caused by Force Majeure.

Fuel Provisional Sum” has the meaning set forth in Attachment EE.

GAAP” means generally accepted accounting principles in the United States of America.

Geotechnical Reports” means the following reports prepared by Tolunay-Wong Engineers, Inc. (“TWEI”) and provided by Owner to Contractor prior to the Contract Date:

 

  (i) “Geotechnical Recommendations Report LNG Tank 2401-A, Corpus Christi LNG Project, Gregory, Texas”, May 2013;

 

  (ii) “Geotechnical Recommendations Report LNG Tank 2401-B, Corpus Christi LNG Project, Gregory, Texas”, June 2013;

 

- 7 -


  (iii) “Geotechnical Recommendations Report LNG Tank 2401-C, Corpus Christi LNG Project, Gregory, Texas”, June 2013;

 

  (iv) “Supplemental Data Report, Volume II, Corpus Christi LNG Project, Gregory, Texas”, April 2013;

 

  (v) “Geotechnical Report, Corpus Christi Liquefaction Project, Gregory, Texas”, August 2012;

 

  (vi) “Draft Geotechnical Data Report Corpus Christi LNG Project, Ingleside, Texas”, May 2012;

 

  (vii) “Supplemental Geotechnical Investigation, Data Report, Corpus Christi LNG Terminal, Corpus Christi, Texas”, October 2007;

 

  (viii) “Supplemental Geotechnical Investigation, Marine Terminal, Draft Final Report, Corpus Christi LNG Terminal, Corpus Christi, Texas”, March 2006;

 

  (ix) “Final Report Geotechnical Investigation Berth Area Liquefied Natural Gas Terminal, Corpus Christi, Texas”, September 2003;

 

  (x) “Slope Stability Analysis – 2.52H:1V Dredged Slope Berth Area Marine Terminal – Corpus Christi LNG Project Memo”, April 12, 2006;

 

  (xi) “Draft Report Supplemental Geotechnical Investigations Offsite facilities, Liquefied Natural Gas Terminal, Corpus Christi, Texas”, June 2006;

 

  (xii) Plot of previous borings with tags, dated June 5, 2011;

 

  (xiii) “Geotechnical Investigation, Offsite Facilities, Final Report, Corpus Christi LNG Terminal, Corpus Christi, Texas”, August 2006;

 

  (xiv) “Geotechnical Investigation, Process Area, Piperack, and Waterline, Corpus Christi LNG Terminal, Corpus Christi, Texas”, September 2003;

 

  (xv) “Environmental Soil Sampling, Testing Results, Corpus Christi LNG Terminal”, email August 15, 2003;

 

  (xvi) “Final Report Geotechnical Investigation, LNG Tank Area, Corpus Christi LNG Terminal, Corpus Christi, Texas”, September 2003, TWEI Project No 03-569;

 

  (xvii) “Geotechnical Investigation, Ethane Tank, Corpus Christi, Texas”, June 2011, TWEI Project No 11.14.050; and,

 

  (xviii) “Final Report, Seismic and Tsunami Hazard Evaluations for the LNG Export Facility in Corpus Christi, Texas”, URS Corporation, August 7, 2012.

 

- 8 -


Good Engineering and Construction Practices” or “GECP” means the generally accepted practices, skill, care, methods, techniques and standards employed by the international LNG industry at the time of the Contract Date that are commonly used in prudent engineering, procurement and construction to safely design, construct, pre-commission, commission, start-up and test LNG export, liquefaction and send-out terminal facilities of similar size and type as the Project, in accordance with Applicable Law and Applicable Codes and Standards.

Governmental Instrumentality” means any federal, state or local department, office, instrumentality, agency, board or commission having jurisdiction over a Party or any portion of the Work, the Project, the Site or the Off-Site Rights of Way and Easements.

Guarantee Conditions” means the LNG Production Rate Guarantee Conditions.

Guaranteed Substantial Completion Date” or “Guaranteed Substantial Completion Dates” has the meaning set forth in Section 5.3B.

Guaranteed Substantial Completion Date for Subproject 1” has the meaning set forth in Section 5.3B as may be adjusted by Change Order in accordance with the terms of this Agreement.

Guaranteed Substantial Completion Date for Subproject 2” has the meaning set forth in Section 5.3B as may be adjusted by Change Order in accordance with the terms of this Agreement.

Guarantor” means Bechtel Global Energy, Inc., a Delaware corporation.

Hazardous Materials” means any substance that under Environmental Law is considered to be hazardous or toxic, or that is or may be required to be remediated, including (i) any petroleum or petroleum products, radioactive materials, asbestos in any form that is or could become friable, urea formaldehyde foam insulation, transformers or other equipment that contain dielectric fluid containing polychlorinated biphenyls and processes and certain cooling systems that use chlorofluorocarbons, (ii) any chemicals, materials or substances which are now or hereafter become defined as or included in the definition of “hazardous substances,” “hazardous wastes,” “hazardous materials,” “extremely hazardous wastes,” “restricted hazardous wastes,” “toxic substances,” “toxic pollutants,” or any words of similar import pursuant to Environmental Law, or (iii) any other chemical, material, substance or waste, exposure to which is now or hereafter prohibited, limited or regulated by any Governmental Instrumentality, or which may be the subject of liability under Environmental Law for damages, costs or remediation.

HSE Plan” has the meaning set forth in Section 3.10A.

Indemnified Party” means any member of the Owner Group or the Contractor Group, as the context requires.

Indemnifying Party” means Owner or Contractor, as the context requires.

Independent Engineer” means the engineer(s) employed by Lender.

 

- 9 -


Insolvency Event” in relation to any Party or Guarantor means the bankruptcy, insolvency, liquidation, administration, administrative or other receivership or dissolution of such Party or Guarantor, and any equivalent or analogous proceedings by whatever name known and in whatever jurisdiction, and any step taken (including the presentation of a petition or the passing of a resolution or making a general assignment or filing for the benefit of its creditors) for or with a view toward any of the foregoing.

Insurance Provisional Sum” has the meaning set forth in Attachment EE.

Intellectual Property” has the meaning set forth in Section 10.1A.

Interim Conditional Lien Waiver” means the conditional waiver and release provided to Owner by Contractor, Lien Waiver Subcontractors and Major Sub-subcontractors in accordance with the requirements of Section 7.2D, which shall be in the form of Attachment K, Schedules K-1 and K-3.

Interim Unconditional Lien Waiver” means the unconditional waiver and release provided to Owner by Contractor, Lien Waiver Subcontractors, Major Sub-subcontractors and Bulk Order Subcontractors in accordance with the requirements of Section 7.2D, which shall be in the form of Attachment K, Schedules K-2 and K-4.

Invoice” means Contractor’s request for a payment pursuant to Section 7.2, which invoice shall be in the form of Attachment I.

Key Personnel” or “Key Persons” has the meaning set forth in Section 2.2A.

Landowner” means any landowner that has leased land or provided a right of way or easement to Owner in connection with the Project.

Lender” means any entity or entities providing temporary or permanent debt financing to Owner for the Project.

Letter of Credit” has the meaning set forth in Section 9.2.

Level II” means a level of detail in the CPM Schedule that has three hundred (300) to four hundred (400) activities and has logical relationships at a summary level. The work breakdown structure in the Level II CPM Schedule is by Project phase (engineering, procurement, construction, startup and commissioning) and discipline/commodity (process engineering, mechanical engineering, etc. for engineering disciplines and Site work, concrete, steel, piping, etc. for construction). Critical Major Equipment (including bulk material requirements) and Subcontract procurement and deliveries are captured in the Level II CPM Schedule. All major schedule milestones are shown. The Level II CPM Schedule may be resource loaded to check staffing levels or installation rates.

Level III” means a level of detail in the CPM Schedule which is an implementation (control) schedule used to direct the Work by providing schedule parameters to the more detailed implementation level, identify and resolve schedule problems, status progress in terms of Milestones, measure the impact of scope changes and delays, develop recovery

 

- 10 -


plans, and support schedule-related contractual action. The work breakdown structure in the Level III CPM Schedule is at an area level, and shall involve over two thousand (2,000) activities. The Level III CPM Schedule is developed with the assistance of and accepted by Contractor’s Key Personnel. All Major Equipment (including bulk material requirements) are scheduled at area level and detailed construction activities at each commodity level follow the same area concept. The Subcontract schedules are similarly developed for each area, as applicable.

Lien Waiver Subcontract” means any Subcontract either (i) having an aggregate value in excess of *** U.S. Dollars (U.S.$***), (ii) multiple Subcontracts with one Subcontractor that have an aggregate value in excess of *** U.S. Dollars (U.S.$***), or (iii) entered into with a Major Subcontractor.

Lien Waiver Subcontractor” is any Subcontractor who has entered into a Lien Waiver Subcontract.

Limited Notice to Proceed” or “LNTP” has the meaning set forth in Section 5.1.

Liquefaction Facilitymeans collectively Subproject 1, Subproject 2 and Subproject 3.

Liquefaction Facility Site” means collectively the Stage 1 Site and the Stage 2 Site as shown in greater detail in Attachment Y.

Liquidated Damages” means Performance Liquidated Damages and Delay Liquidated Damages.

LNG” means liquefied Natural Gas.

LNG Production Rate” has the meaning set forth in Attachment T.

LNG Production Rate Guarantee Conditions” has the meaning set forth in Attachment S.

LNG Production Rate MAC” has the meaning set forth in Attachment T.

LNG Production Rate Performance Guarantee” has the meaning set forth in Attachment T.

LNG Production Rate Performance Test” has the meaning set forth in Attachment T.

LNG Tanker” means any ocean-going vessel used by Owner or its designee for the transportation of LNG produced at the Liquefaction Facility.

LNG Train” means, unless otherwise expressly stated in this Agreement, either LNG Train 1 or LNG Train 2, and “LNG Trains” means LNG Train 1 and LNG Train 2.

 

- 11 -


LNG Train 1” has the meaning set forth in this Agreement and Attachment A. LNG Train 1 is the first of the LNG Trains to achieve Substantial Completion under this Agreement.

LNG Train 2” has the meaning set forth in this Agreement and Attachment A. LNG Train 2 is the second of the LNG Trains to achieve Substantial Completion under this Agreement.

LNG Train 3” has the meaning set forth in the Stage 2 EPC Agreement.

LNTP Work” means the Work, if any, defined by the Parties by Change Order which shall be performed upon issuance of the LNTP.

Major Equipment” means the items of Equipment listed as such in Attachment G.

Major Subcontract” means any Subcontract with a Subcontractor for those portions of the Work listed in Section 1.3 of Attachment G.

Major Subcontractor” means a Subcontractor who enters into a Major Subcontract.

Major Sub-subcontract” means any Sub-subcontract with a Sub-subcontractor for those portions of the Work listed in Section 1.4 of Attachment G.

Major Sub-subcontractor” means a Sub-subcontractor who enters into a Major Sub-subcontract.

Marine & Dredging Provisional Sum” has the meaning set forth in Attachment EE.

Milestone” means a designated portion of the Work, as shown in Attachment C, Schedule C-1.

Minimum Acceptance Criteria” or “MAC” means the LNG Production Rate MAC.

Minimum Acceptance Criteria Correction Period” has the meaning set forth in Section 11.4B.

MMBtu” means million British thermal units.

MMSCF” means million SCF.

MMSCFD” means million SCFD.

Mobilization Payment” has the meaning set forth in Section 7.2A.

Month” means a Gregorian calendar month; “month” means any period of thirty (30) consecutive Days.

Monthly” means an event occurring or an action taken once every Month.

 

- 12 -


Monthly Payments” has the meaning set forth in Section 7.2B.

Monthly Progress Reports” has the meaning set forth in Section 3.19A.3.

Month N” has the meaning set forth in Section 7.2C.

Month N-1” means the Month prior to Month N.

Month N-2” means the Month prior to Month N-1.

Month N-3” means the Month prior to Month N-2.

Month N+1” has the meaning set forth in Section 7.2C.1.

Natural Gas” means combustible gas consisting primarily of methane.

Non-Hazardous Wastes” means materials destined for discard that do not constitute Pre-Existing Contamination or any other Hazardous Materials.

Notice to Proceed” or “NTP” has the meaning set forth in Section 5.2B.

Off-Site Rights of Way and Easements” has the meaning set forth in Section 4.3B.

Operating Spare Part Provisional Sum” has the meaning set forth in Attachment EE.

Operating Spare Parts” has the meaning set forth in Section 3.4.

Operating Spare Parts List” has the meaning set forth in Section 3.4.

Operations Activity” or “Operations Activities” has the meaning set forth in Section 11.7.

Optimized Cascade Process” means ConocoPhillips Company’s natural gas cascade liquefaction process for transforming a methane-rich gas stream from the gas state to the liquid state wherein refrigerative cooling is provided by three cascaded refrigeration cycles which employ predominantly pure refrigerants and wherein the final refrigerant is either methane or predominantly methane in an open or closed cycle configuration.

OSBL Facilities” has the meaning specified in the Scope of Facilities.

Outstanding Claims” has the meaning set forth in Section 20.1B.

Outstanding Claims Amount” has the meaning set forth in Section 20.1B.

Owner” has the meaning set forth in the preamble hereto.

Owner Default” has the meaning set forth in Section 16.5.

 

- 13 -


Owner Group” means (i) Owner, its parent, Lender, and each of their respective Affiliates and (ii) the respective directors, officers, agents, employees and representatives of each Person specified in clause (i) above.

Owner Permits” means the Permits listed in Attachment Q and any other Permits (not listed in either Attachment P or Attachment Q) necessary for performance of the Work or the operation of the Stage 1 Liquefaction Facility and which are required to be obtained in Owner’s name pursuant to Applicable Law.

Owner Quarterly Confirmation” has the meaning set forth in Section 4.1A.

Owner Representative” means that Person or Persons designated by Owner in a written notice to Contractor who shall have complete authority to act on behalf of Owner on all matters pertaining to the Work, including giving instructions and making changes in the Work. The Owner Representative as of the Contract Date is designated in Section 4.9.

Owner’s Confidential Information” has the meaning set forth in Section 19.1.

P&ID’s” means piping and instrumentation diagrams.

Parent Guarantee” has the meaning set forth in Section 21.18.

Party” or “Parties” means Owner and/or Contractor and their successors and permitted assigns.

Payment Schedule” means the schedule of Milestone payments as set forth in Attachment C, Schedule C-1, and the schedule of Monthly Payments set forth in Attachment C, Schedule C-2.

Performance Guarantee” means the LNG Production Rate Performance Guarantee.

Performance LD Exposure” has the meaning set forth in Section 20.1B.

Performance Liquidated Damages” has the meaning set forth in Attachment T.

Performance Test Procedures” has the meaning set forth in Section 11.2.

Performance Tests” means the tests performed (including any repetition thereof) to determine whether the Project meets the Performance Guarantee and/or Minimum Acceptance Criteria set forth in Attachment T, which tests shall be as specified in and consistent with Attachment S.

Permit” means any valid waiver, certificate, approval (including FERC Authorization), consent, license, exemption, variance, franchise, permit, authorization or similar order or authorization from any Governmental Instrumentality required to be obtained or maintained in connection with the Project, the Site, the Work or the Off-Site Rights of Way and Easements, including any condition or requirement imposed under any of the foregoing.

 

- 14 -


Person” means any individual, company, joint venture, corporation, partnership, association, joint stock company, limited liability company, trust, estate, unincorporated organization, Governmental Instrumentality or other entity having legal capacity.

Potential Lender” has the meaning set forth in Section 21.16A.

Pre-Existing Contamination” means Hazardous Materials (i) present in concentrations that exceed action levels which trigger a duty to investigate or respond as established under Environmental Law to protect human health and safety, (ii) located at the Site or the Off-Site Rights of Way and Easements, and (iii) that pre-date Contractor’s and its Subcontractors’ and Sub-subcontractors’ commencement of any Work under this Agreement.

Pre-Subproject 1 Substantial Completion Liabilities” has the meaning set forth in Section 20.1B.

Prohibited Areas” has the meaning set forth in Attachment Y.

Project” has the meaning set forth in the recitals hereto.

Project Commissioning Plan” means the detailed plan which shall be provided by Contractor to Owner in accordance with Attachment V.

Project Insurances” has the meaning set forth in Attachment EE.

Project Schedule” means the schedule for performance of the Work, including the date for NTP, Target Substantial Completion Dates and the Guaranteed Substantial Completion Dates, as more particularly described in Attachment E.

Provisional Sum” means, collectively or individually, the Insurance Provisional Sum, the Operating Spare Part Provisional Sum, the Marine & Dredging Provisional Sum, the 9% Nickel and Cryogenic-Rebar Provisional Sum, the Currency Provisional Sum, and the Fuel Provisional Sum.

PSIG” means pounds per square inch, gauge.

Punchlist” means a list of those finishing items required to complete the Work, the completion of which shall not materially interrupt nor affect the safe operation of all or any part of the Project after Substantial Completion of a Subproject, as more fully described in Section 11.5 of this Agreement.

Qualified Research Expenditures” means the costs funded by Owner under this Agreement that are incurred in connection with Work performed by Contractor, its Subcontractors and Sub-subcontractors which meet all of the requirements of Section 41(d)(1) of the Internal Revenue Code of 1986, as amended, and which are related to the development or improvement of a business component of the Project.

 

- 15 -


Ready for Performance Testing” means that all of the following have occurred with respect to a Subproject: (i) the Subproject has started operation and successfully produced LNG; (ii) all OSBL Facilities required for the Subproject to start operation and successfully produce LNG are operational sufficiently to start the Performance Test; (iii) Contractor has completed all procurement, fabrication, assembly, erection, installation, and pre- commissioning checks and tests of the Project to ensure that the entire Work, and each component thereof, of such Subproject was sufficiently fabricated, assembled, erected and installed so as to be capable of being operated safely within the requirements contained in this Agreement; and (iv) all portions of the Project have attained the state of completion necessary for commencement of the LNG Production Rate Performance Test for such Subproject.

Ready for Start Up” or “RFSU” means that, with respect to each Subproject, all of the following have occurred: (i) Contractor has completed all applicable Work in accordance with the requirements contained in this Agreement to ensure that the applicable Subproject is ready for use to receive Natural Gas; and (ii) Contractor has delivered to Owner a RFSU Completion Certificate for such Subproject in the form of Attachment L as required under Section 11.1A.

Receiving Party” has the meaning set forth in Section 19.3.

Record Drawings and Specifications” means final, record Drawings and Specifications of the Project showing the “as-built” conditions of the completed Project, as required under Attachment B. The foregoing record Drawings are also referred to herein as “Record Drawings”.

Recovery Schedule” has the meaning set forth in Section 5.5.

Reduction” has the meaning set forth in Section 20.1B.

Reduction Date” has the meaning set forth in Section 20.1B.

RFSU Completion Certificate” has the meaning set forth in Section 11.1A.

Safety Standards” has the meaning set forth in Section 3.10A.

SCF” means standard cubic feet.

SCFD” means standard cubic feet per Day.

Schedule Bonus” has the meaning specified in Section 13.2B.

Schedule Bonus for SP1” has the meaning specified in Section 13.2A.

Schedule Bonus for SP2” has the meaning specified in Section 13.2B.

Schedule Bonus Date” has the meaning specified in Section 13.2B.

 

- 16 -


Schedule Bonus Date for SP1” has the meaning specified in Section 13.2A.

Schedule Bonus Date for SP2” has the meaning specified in Section 13.2B.

Scope of Facilities” has the meaning set forth in Attachment A.

Scope of Work” means the description of Work to be performed by Contractor as set forth in this Agreement, including as more specifically set forth in Attachment A.

SEC” means the Securities and Exchange Commission or any successor entity thereto.

Ship Loading Time Test” means the commissioning test performed to measure LNG Tanker loading time, which test shall be as specified in and consistent with Attachment S.

Site” means the Liquefaction Facility Site.

Specifications” means those documents consisting of the written requirements for Equipment, standards and workmanship for the Work, which are prepared as a part of and during the performance of the Work.

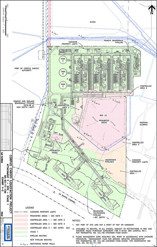
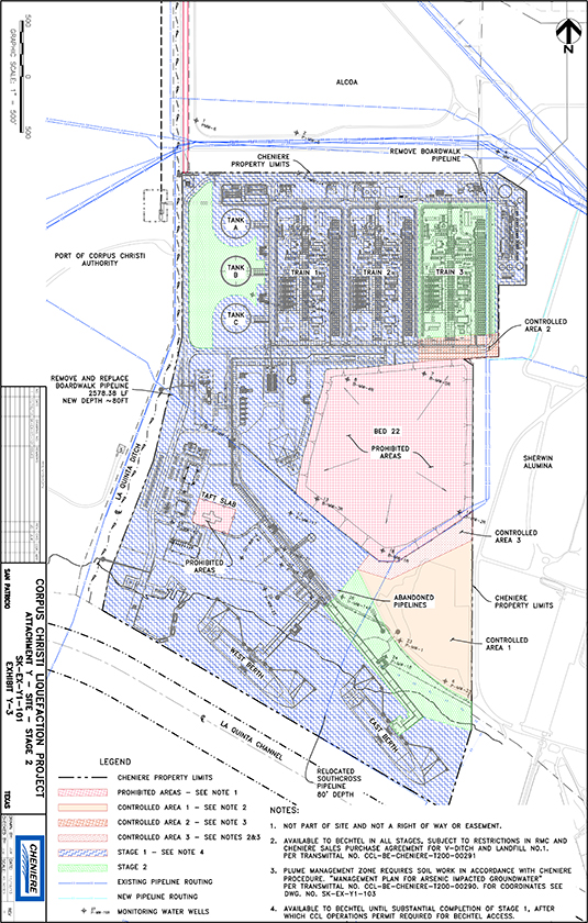
Stage 1 Liquefaction Facility” means the facilities contemplated in this Agreement (including the Scope of Work) at the Stage 1 Site, including LNG Train 1 and LNG Train 2 and related facilities to be engineered, procured, constructed, pre-commissioned, commissioned and tested by Contractor under this Agreement.

Stage 1 Site” means those areas where the Stage 1 Liquefaction Facility will be located as shown in greater detail in Attachment Y.

Stage 2 EPC Agreement” means the engineering, procurement and construction agreement between Owner and Contractor dated December 6th, 2013 for the engineering, procurement, construction, commissioning, start-up and testing of Subproject 3, to be located at the Stage 2 Site.

Stage 2 Liquefaction Facility” means the facilities that are engineered, procured and constructed pursuant to the Stage 2 EPC Agreement, including LNG Train 3 and related facilities to be engineered, procured, constructed, pre-commissioned, commissioned and tested by Contractor under the Stage 2 EPC Agreement, as further described in the Stage 2 EPC Agreement.

Stage 2 Site” means those areas where the Stage 2 Liquefaction Facility will be located as shown in greater detail in Attachment Y.

Start Up” means the start-up of a Subproject or portion thereof as described in Attachment V.

Subcontract” means an agreement by Contractor with a Subcontractor for the performance of any portion of the Work.

 

- 17 -


Subcontractor” means any Person, including an Equipment supplier or vendor, who has a direct contract with Contractor to manufacture or supply Equipment which is a portion of the Work, to lease Construction Equipment to Contractor in connection with the Work, or to otherwise perform a portion of the Work.

Subproject” means, unless otherwise expressly stated in this Agreement, individually Subproject 1 or Subproject 2 which together shall compose the entire Project.

Subproject 1” is comprised of LNG Train 1 of the Stage 1 Liquefaction Facility and all OSBL Facilities required for LNG Train 1 to receive Natural Gas, produce LNG, transfer LNG to the Tanks and then load LNG Tankers from the Tanks.

Subproject 2” is comprised of LNG Train 2 of the Stage 1 Liquefaction Facility and all OSBL Facilities required for LNG Train 2 to receive Natural Gas, produce LNG, and then transfer LNG to the Tanks.

Subproject 3” has the meaning set forth in the Stage 2 EPC Agreement.

Substantial Completion” means that all of the following have occurred with respect to a Subproject: (i) the Minimum Acceptance Criteria for such Subproject has been achieved; (ii) the Performance Guarantee for such Subproject has been achieved, or if the Performance Guarantee has not been achieved but the MAC has been achieved, Contractor either (A) has paid the applicable Performance Liquidated Damages or (B) elects or is directed to take corrective actions to achieve the Performance Guarantee pursuant to Section 11.4A(ii); (iii) the Work (including training in accordance with Section 3.5 and the delivery of all documentation required as a condition of Substantial Completion under this Agreement (including documentation required for operation, including test reports)) for such Subproject has been completed in accordance with the requirements of this Agreement other than any Work for such Subproject which meets the definition of Punchlist; (iv) Contractor has delivered to Owner the Substantial Completion Certificate in the form of Attachment M, as required under Section 11.2; (v) Contractor has obtained all Contractor Permits for such Subproject; and (vi) Contractor has, pursuant to Section 3.4, delivered to the Site all Operating Spare Parts required by the Operating Spare Parts List to be delivered to the Site prior to Substantial Completion of the applicable Subproject.

Substantial Completion Certificate” has the meaning set forth in Section 11.2.

Sub-subcontract” means any agreement by a Subcontractor with a Sub-subcontractor or by a Sub-subcontractor with another Sub-subcontractor for the performance of any portion of the Work.

Sub-subcontractor” means any Person, including an Equipment supplier or vendor, who has a direct or indirect contract with a Subcontractor or another Sub-subcontractor to manufacture or supply Equipment which comprises a portion of the Work, to lease Construction Equipment to Subcontractor or another Sub-subcontractor in connection with the Work, to perform a portion of the Work or to otherwise furnish labor or materials.

 

- 18 -


Subsurface Soil Conditions” means subsurface conditions at the Site and the Off-Site Rights of Way and Easements (excluding subsurface Pre-Existing Contamination and any other subsurface Hazardous Materials).

Tank” means any of the LNG tanks located at the Site, unless otherwise specifically stated.

Target Substantial Completion Date” means each of the Target Substantial Completion Date for Subproject 1 and the Target Substantial Completion Date for Subproject 2 and “Target Substantial Completion Dates” means collectively the Target Substantial Completion Date for Subproject 1 and Target Substantial Completion Date for Subproject 2.

Target Substantial Completion Date for Subproject 1” means the date specified in Attachment E, which represents the target date for achieving Substantial Completion for Subproject 1.

Target Substantial Completion Date for Subproject 2” means the date specified in Attachment E, which represents the target date for achieving Substantial Completion for Subproject 2.

Taxes” means any and all taxes, assessments, levies, duties, fees, charges and withholdings of any kind or nature whatsoever and howsoever described, including value-added, sales and use taxes (excluding any Texas Sales and Use Taxes on Equipment), gross receipts, license, payroll, federal, state, local or foreign income, environmental, profits, premium, franchise, property, excise, capital stock, import, stamp, transfer, employment, occupation, generation, privilege, utility, regulatory, energy, consumption, lease, filing, recording and activity taxes, levies, duties, fees, charges, imposts and withholding, together with any and all penalties, interest and additions thereto.

Technical Services Agreement” means the Technical Services Agreement between Corpus Christi Liquefaction, LLC and Contractor, dated December 21, 2011.

Texas Construction Anti-Indemnity Statute” means Texas Statutes and Codes Annotated, Insurance Code §151.

Texas Sales and Use Tax” means Texas state, county, and local-option sales and use tax.

Third Party” means any Person other than a member of (i) the Contractor Group, (ii) the Owner Group, or (iii) any Subcontractor or Sub-subcontractor or any employee, officer or director of such Subcontractor or Sub-subcontractor.

Unit Rates” has the meaning set forth in Section 6.1C.

USACE” means the United States Army Corps of Engineers.

U.S. Dollars” or “U.S.$” means the legal tender of the United States of America.

 

- 19 -


Warranty” or “Warranties” has the meaning set forth in Section 12.1A.

Windstorms” has the meaning set forth in Section 8.2.

Work” means the work obligations, duties and responsibilities to be performed by or on behalf of Contractor under this Agreement in connection with the procurement, engineering, design, fabrication, erection, installation, manufacture, inspection, repair (including Corrective Work), testing (including Performance Tests), training, pre-commissioning, commissioning and placing into service of the Stage 1 Liquefaction Facility and the related component Equipment, and the required related labor and materials, all in accordance with the terms of this Agreement and the various Attachments, including Attachment A. The Work for this Project is broken into two (2) distinct subprojects, Subproject 1 and Subproject 2, as set forth in greater detail in Attachment A.

Work Product” has the meaning set forth in Section 10.1A.

9% Nickel and Cryogenic-Rebar Provisional Sum” has the meaning set forth in Attachment EE.

1.2 The meanings specified in this Article 1 are applicable to both the singular and plural. As used in this Agreement, the terms “herein,” “herewith,” “hereunder” and “hereof” are references to this Agreement taken as a whole, and the terms “include,” “includes” and “including” mean “including, without limitation,” or variant thereof. Reference in this Agreement to an Article or Section shall be a reference to an Article or Section contained in this Agreement (and not in any Attachments, Schedules or Exhibits to this Agreement) unless expressly stated otherwise, and a reference in this Agreement to an Attachment or Schedule shall be a reference to an Attachment or Schedule attached to this Agreement unless expressly stated otherwise.

ARTICLE 2

RELATIONSHIP OF OWNER, CONTRACTOR AND SUBCONTRACTORS

2.1 Status of Contractor. The relationship of Contractor to Owner shall be that of an independent contractor. Any provisions of this Agreement which may appear to give Owner or the Owner Representative the right to direct or control Contractor as to details of performing the Work, or to exercise any measure of control over the Work, shall be deemed to mean that Contractor shall follow the desires of Owner or the Owner Representative in the results of the Work only and not in the means by which the Work is to be accomplished, and Contractor shall have the complete right, obligation and authoritative control over the Work as to the manner, means or details as to how to perform the Work. Nothing herein shall be interpreted to create a master-servant or principal-agent relationship between Contractor, or any of its Subcontractors or Sub-subcontractors, and Owner. Nevertheless, Contractor shall comply with all provisions, terms and conditions of this Agreement, and the fact that Contractor is an independent contractor does not relieve it from its responsibility to fully, completely, timely and safely perform the Work in compliance with this Agreement. Except to the extent set forth in this Agreement, including Sections 6.1C, 6.2D, 11.7 and 16.3, and subject at all times to Section 6.7, Owner shall not be entitled to issue any instruction or directive to Contractor or any of its Subcontractors or Sub-subcontractors in connection with performance of the Work. Owner shall provide a copy to Contractor of any written communication from Owner to any Subcontractor or Sub-subcontractor that relates to Contractor’s performance of the Work.

 

- 20 -


2.2 Key Personnel, Organization Chart and Contractor Representative.

A. Key Personnel and Organization Chart. Attachment F sets forth Contractor’s organizational chart to be implemented for the Work and also contains a list of key personnel (“Key Personnel” or “Key Persons”) from Contractor’s organization who will be assigned to the Work. Key Personnel shall, unless otherwise expressly stated in Attachment F, be devoted full-time to the Work until Substantial Completion of Subproject 2, and Key Personnel shall not be removed or reassigned without Owner’s prior written approval (such approval not to be unreasonably withheld); provided, however, Owner’s prior written approval shall not be required in the event Contractor removes or reassigns a Key Person at any time prior to Owner’s issuance of the NTP. All requests for the substitution of Key Personnel shall include a detailed explanation and reason for the request and the resumes of professional education and experience for a minimum of two (2) candidates of equal or greater qualifications and experience. Should Owner approve of the replacement of a Key Person, Contractor shall, so far as reasonably practicable, allow for an overlap of at least one (1) week during which both the Key Person to be replaced and the Owner-approved new Key Person shall work together full time. The additional cost of any replacement of such Key Personnel and overlap time shall be entirely at Contractor’s expense. Owner shall have the right, but not the obligation, at any time to reasonably request that Contractor replace any Key Person with another employee acceptable to Owner. In such event, Contractor shall reasonably consider Owner’s request that Contractor replace such Key Person.

B. Contractor Representative. Contractor designates *** as the Contractor Representative. Notification of a change in Contractor Representative shall be provided in advance, in writing, to Owner. The Contractor Representative is a Key Person.

2.3 Subcontractors and Sub-subcontractors. Owner acknowledges and agrees that Contractor intends to have portions of the Work accomplished by Subcontractors pursuant to written Subcontracts between Contractor and such Subcontractors, and that such Subcontractors may have certain portions of the Work performed by Sub-subcontractors. All Subcontracts shall, so far as reasonably practicable, be consistent with the terms or provisions of this Agreement. No Subcontractor or Sub-subcontractor is intended to be or shall be deemed a third-party beneficiary of this Agreement. Contractor shall be fully responsible to Owner for the acts and omissions of Subcontractors and Sub-subcontractors and of Persons directly or indirectly employed by either of them in the performance of the Work, as it is for the acts or omissions of Persons directly employed by Contractor. The work of any Subcontractor or Sub-subcontractor shall be subject to inspection by Owner to the same extent as the Work of Contractor. All Subcontractors and Sub-subcontractors and their respective personnel on Site or who may come on the Site or the Off-Site Rights of Way and Easements are to be instructed by Contractor in the terms and requirements of Contractor’s safety and environmental protection regulations and policies and shall be expected to comply with such regulations. In the event that any personnel are not adhering to such regulations and policies, such personnel shall be removed by Contractor. In no event shall Contractor be entitled to any adjustment of the Contract Price or Project Schedule as a result of

 

- 21 -


compliance with such regulations and policies set forth in the HSE Plan, or any removal of personnel necessitated by non-compliance. Nothing contained herein shall (i) create any contractual relationship between any Subcontractor and Owner, or between any Sub-subcontractor and Owner, or (ii) obligate Owner to pay or cause the payment of any amounts to Subcontractor or Sub-subcontractor.

2.4 Subcontracts and Sub-subcontracts.

A. Approved List. Section 1.7 of Attachment G sets forth a list of contractors and suppliers that Contractor and Owner have agreed are approved for selection as Subcontractors for the performance of that portion of the Work specified in Attachment G. Approval by Owner of any Subcontractors or Sub-subcontractors does not relieve Contractor of any responsibilities under this Agreement.

B. Additional Proposed Major Subcontractors. In the event that Contractor is considering the selection of a Subcontractor not listed in Section 1.7 of Attachment G for a Major Subcontract, Contractor shall (i) notify Owner of such proposed Subcontractor as soon as reasonably practicable during the selection process and furnish to Owner all information reasonably requested by Owner with respect to Contractor’s selection criteria, and (ii) notify Owner no less than ten (10) Business Days prior to the execution of the Subcontract with such Subcontractor not listed on Attachment G. Owner shall have the discretion, not to be unreasonably exercised, to reject any such proposed Subcontractor. Contractor shall not enter into any Subcontract with a proposed Subcontractor that is rejected by Owner in accordance with the preceding sentence. Owner shall undertake in good faith to review the information provided by Contractor pursuant to this Section 2.4B expeditiously and shall notify Contractor of its decision to accept or reject a proposed Subcontractor as soon as practicable after such decision is made. Failure of Owner to accept or reject a proposed Subcontractor within ten (10) Business Days shall be deemed to be an acceptance of such Subcontractor, but Owner’s acceptance of a proposed Subcontractor shall in no way relieve Contractor of its responsibility for performing the Work in compliance with this Agreement. After execution of such Subcontract, the Subcontract shall be considered a Major Subcontract and the Subcontractor shall be considered a Major Subcontractor.

C. Other Additional Proposed Subcontractors. For any Subcontractor not covered by Section 2.4A or 2.4B and which would be entering into either (a) a Subcontract having an aggregate value in excess of *** U.S. Dollars (U.S.$***), or (b) multiple Subcontracts having an aggregate value in excess of *** U.S. Dollars (U.S.$***), Contractor shall, within fifteen (15) Business Days after the execution of any such Subcontract, notify Owner in writing of the selection of such Subcontractor and inform Owner generally what portion of the Work such Subcontractor is performing.

D. Delivery of Subcontracts. Within ten (10) Days of Owner’s request, Contractor shall furnish Owner with a copy of any Subcontract, excluding provisions regarding pricing, discount or credit information, payment terms, payment schedules, retention, performance security, bid or proposal data, and any other information which Contractor or any Subcontractor reasonably considers to be commercially sensitive information.

 

- 22 -


E. Terms of Major Subcontracts and Sub-subcontracts. In addition to the requirements in Section 2.3 and without in any way relieving Contractor of its full responsibility to Owner for the acts and omissions of Subcontractors and Sub-subcontractors, each Major Subcontract and each Major Sub-subcontract shall contain the following provisions:

1. the Major Subcontract and the Major Sub-subcontract may be assigned to Owner without the consent of the respective Major Subcontractor or Major Sub-subcontractor; provided, however, with respect to each Construction Equipment rental or lease agreement that falls within the definition of Major Subcontract or Major Sub-subcontract, Contractor shall only be obligated to use its best efforts to include a provision that such agreement may be assigned to Owner without the consent of the respective Construction Equipment Lessor; and

2. so far as reasonably practicable, the Major Subcontractor and the Major Sub-subcontractor shall comply with all requirements and obligations of Contractor to Owner under this Agreement, as such requirements and obligations are applicable to the performance of the work under the respective Major Subcontract or Major Sub-subcontract.

F. Contractor’s Affiliates. If Contractor subcontracts with an Affiliate of Contractor for certain Work, and such Affiliate subcontracts with any entities for a portion of the Work undertaken by such Affiliate, such entities shall be treated as a Subcontractor under this Agreement.

2.5 Contractor Acknowledgements.

A. The Agreement. Prior to the execution of this Agreement, under the Technical Services Agreement, Contractor performed engineering, cost estimating and related services and developed, provided or verified all of the information that forms the Scope of Work and Design Basis (subject to Section 4.8) listed in Attachment A, for the purpose of determining that such information is adequate and sufficiently complete for Contractor to engineer, procure, construct, pre-commission, commission, start-up and test a fully operational LNG export, liquefaction and send-out terminal facility for the Contract Price, within the required times set forth in the Project Schedule, and in accordance with all requirements of this Agreement, including Applicable Codes and Standards, Applicable Law, Warranties, Minimum Acceptance Criteria and Performance Guarantee. Accordingly, subject to Section 4.8 and Section 3.1 of Attachment A, Contractor (i) hereby agrees that it shall have no right to claim or seek an increase in the Contract Price or an adjustment to the Project Schedule with respect to any incomplete, inaccurate or inadequate information that may be contained or referenced in Attachment A, (ii) hereby waives and releases Owner from and against any such claims, and (iii) shall not be relieved of its responsibility to achieve all requirements under this Agreement (including meeting Applicable Codes and Standards, Applicable Law, Minimum Acceptance Criteria and

 

- 23 -


Performance Guarantee) due to any such incomplete, inaccurate or inadequate information. Subject to Section 4.8, Owner makes no guaranty or warranty, express or implied, as to the accuracy, adequacy or completeness of any information that is contained in or referenced in Attachment A.

B. Conditions of the Site.

1. Subject to adjustment as appropriate pursuant to Section 4.3, Contractor agrees and acknowledges that it is sufficiently familiar with the Site (to the extent related to the Work) and the Off-Site Rights of Way and Easements to perform the Work in accordance with the Project Schedule, and understands the climate, terrain, logistics, and other difficulties that it may encounter in performing the Work in accordance with the Project Schedule. Except as otherwise provided in this Agreement, including Contractor’s rights pursuant to Section 6.8A, Contractor waives any right to claim an adjustment in the Contract Price or the Project Schedule in respect of any failure to timely perform the Work in accordance with the Project Schedule as a result of any of the following conditions at the Site: (i) river levels, topography; (ii) climatic conditions, tides, and seasons; (iii) availability of laborers, Subcontractors, Sub-subcontractors, Construction Equipment or any other items or supplies; (iv) adequate availability and transportation of Equipment; and (v) breakdown or other failure of Construction Equipment; provided, however, that Contractor does not assume the risk or waive its rights with respect to those conditions in Section 2.5B.2. This Section 2.5B.1 shall not affect the rights of Contractor with respect to Change Orders in accordance with Section 4.3.

2. If Contractor encounters Subsurface Soil Conditions (including any subsurface man-made objects, e.g. below grade tanks, vaults or pipelines) that (i) are materially different from the information regarding such Subsurface Soil Conditions as provided in the Geotechnical Reports (including the encountering of Subsurface Soil Conditions that could not reasonably be anticipated by Contractor using GECP based on the information provided in the Geotechnical Reports) and (ii) adversely affects (a) Contractor’s costs of performance of the Work, (b) Contractor’s ability to perform the Work in accordance with the Project Schedule or (c) Contractor’s ability to perform any material obligation under this Agreement, Contractor shall be entitled to a Change Order; provided that Contractor complies with the requirements set forth in Sections 6.2, 6.5 and 6.9. Notwithstanding anything to the contrary in this Section 2.5B.2, to the extent Contractor encounters Pre-Existing Contamination, then Section 3.17 shall control.

C. Applicable Law and Applicable Codes and Standards. Contractor has investigated to its satisfaction Applicable Law in existence as of May 15, 2011 and Applicable Codes and Standards set forth or listed in any document or Drawing listed in Attachment A, and warrants that it can perform the Work at the Contract Price and within the Project Schedule in accordance with such Applicable Law and such Applicable Codes and Standards. Contractor shall perform the Work in accordance with Applicable Law and such Applicable Codes and Standards; provided, however, Contractor shall be entitled to a

 

- 24 -


Change Order for any Change in Law to the extent allowed under Section 6.2A.1. Contractor shall advise Owner of any change in Applicable Codes and Standards which does not constitute a Change in Law and, upon such advisement, Owner may elect, at its sole option, to implement a change in accordance with Section 6.1D.

ARTICLE 3

CONTRACTOR’S RESPONSIBILITIES

3.1 Scope of Work.

A. Generally. Subject to Section 3.1B, the Work shall be performed on a turnkey basis and shall include all of the Work required to achieve RFSU of each Subproject, Substantial Completion of each Subproject, and Final Completion in accordance with the requirements of this Agreement, including achieving the Minimum Acceptance Criteria and Performance Guarantee. Contractor shall be required to integrate and use Owner’s operations personnel in its pre-commissioning, commissioning, testing, and start-up efforts, subject to Owner’s obligations under Section 4.4. Contractor shall perform the Work in accordance with GECP, Applicable Law, Applicable Codes and Standards, and all other terms and provisions of this Agreement, with the explicit understanding that the Stage 1 Liquefaction Facility will operate as an LNG export, liquefaction and send-out terminal facility meeting all requirements and specifications of this Agreement. It is understood and agreed that the Work shall include any incidental work that can reasonably be inferred as necessary to complete the Project in accordance with GECP, Applicable Law, Applicable Codes and Standards, and all other terms and provisions of this Agreement, excluding only those items which Owner has specifically agreed to provide under the terms of this Agreement. Without limiting the generality of the foregoing, the Work is more specifically described in Attachment A.

B. Exception to Scope of Work. Contractor shall not be responsible for providing (i) the Owner Permits; (ii) Feed Gas; (iii) those requirements set forth under Sections 4.3, 4.4 and 4.8; (iv) legal description of the Site (or Off-Site Rights of Way and Easements) and a survey of the Site (or Off-Site Rights of Way and Easements) showing the boundaries of the Site (or Off-Site Rights of Way and Easements) and one survey control point pursuant to Section 4.6; and (v) any other obligations or requirements set forth in this Agreement as required to be performed by Owner.

3.2 Specific Obligations. Without limiting the generality of Section 3.1 or the requirements of any other provision of this Agreement, Contractor shall:

A. procure, supply, transport, handle, properly store, assemble, erect and install all Equipment;

B. provide construction, construction management (including the furnishing of all Construction Equipment used in the field, and all Site supervision and craft labor), inspection and quality control services required to ensure that the Work is performed in accordance herewith;

 

- 25 -


C. negotiate all guarantees, warranties, delivery schedules and performance requirements with all Subcontractors so that all Subcontracts are, so far as reasonably practicable, consistent with this Agreement, as set forth in Sections 2.3 and 2.4;

D. perform shop and other inspections of the work of Subcontractors and Sub-subcontractors as required by Contractor to ensure that such work meets all of the requirements of this Agreement;

E. ensure that the Work is performed in accordance with the Project Schedule;

F. until Substantial Completion of the applicable Subproject, conduct and manage all pre-commissioning, start-up, operations, commissioning, and Performance Testing of such Subproject, while supervising and directing operating personnel provided by Owner;

G. obtain all Contractor Permits;

H. provide assistance, information and documentation as reasonably requested by Owner to enable Owner to obtain the Owner Permits; provided that such assistance, information and documentation shall not include Contractor’s provision of information, testimony, documents or data by Contractor’s employees under oath (unless specifically authorized by Contractor) and activities outside the field of Contractor’s expertise, training or experience of personnel assigned to the performance of the Work under this Agreement (except to the extent provided for by Change Order issued pursuant to Section 6.1 and agreed by Contractor);

I. provide training for Owner’s operating and maintenance personnel per Section 3.5;

J. cooperate with and respond promptly to reasonable inquiries from Owner; provided that such cooperation shall not include Contractor’s provision of information, testimony, documents or data by Contractor’s employees under oath (unless specifically authorized by Contractor) and activities outside the field of Contractor’s expertise, training or experience of personnel assigned to the performance of the Work under this Agreement (except to the extent provided for by Change Order issued pursuant to Section 6.1 and agreed by Contractor);

K. be responsible for connecting the Stage 1 Liquefaction Facility to the permanent utilities to the extent set forth in Attachment A;

L. supply all initial fills, excluding Feed Gas; and

M. perform all design and engineering Work in accordance with this Agreement, including that specified in Section 3.3.

 

- 26 -


3.3 Design and Engineering Work.

A. General. Contractor shall, as part of the Work, perform all design and engineering Work in accordance with this Agreement and cause the Work to meet and achieve the requirements of this Agreement, including achieving the Minimum Acceptance Criteria and Performance Guarantee.

B. Drawings and Specifications. Upon receipt of the Limited Notice to Proceed or Notice to Proceed issued in accordance with Sections 5.1 and 5.2, Contractor shall commence the preparation of the Drawings and Specifications for all Work relating to such LNTP or NTP. The Drawings and Specifications shall be based on the requirements of this Agreement, including the Scope of Work, Design Basis, GECP, Applicable Codes and Standards and Applicable Law.

C. Review Process.

1. Submission by Contractor. Contractor shall submit copies of the Drawings and Specifications specified in Attachment B to Owner for formal review, comment or disapproval in accordance with Attachment B.

2. Review Periods. Owner shall have up to ten (10) Business Days from its receipt of Drawings and Specifications submitted in accordance with Section 3.3C.1 to issue to Contractor written comments, proposed changes and/or written disapprovals of the submission of such Drawings and Specifications to Contractor.

If Owner does not issue any comments, proposed changes or written disapprovals within such time periods, Contractor may proceed with the development of such Drawings and Specifications and any construction relating thereto, but Owner’s lack of comments or disapproval, if applicable, shall in no event constitute an approval of the matters received by Owner.

In the event that Owner disapproves the Drawings or Specifications submitted in accordance with Section 3.3C.1 (which disapproval shall not be unreasonably issued), Owner shall provide Contractor with a written statement of the reasons for such rejection within the time period required for Owner’s response, and Contractor shall provide Owner with revised and corrected Drawings and Specifications as soon as possible thereafter. In the event Owner unreasonably disapproves such Drawings and Specifications and such unreasonable disapproval adversely impacts Contractor’s costs or ability to perform the Work in accordance with the Project Schedule, Contractor shall be entitled to a Change Order; provided that Contractor complies with the requirements set forth in Sections 6.2, 6.5 and 6.9.

Provided that Owner has not disapproved of the Drawings and Specifications submitted in accordance with Section 3.3C.1, such Drawings and Specifications shall be the Drawings and Specifications that Contractor shall use to construct the Work; provided that Owner’s lack of disapproval of or comments on, or any approval by Owner of, any Drawings and Specifications shall not in any way be deemed to limit or in any way alter Contractor’s responsibility to perform and complete the Work in accordance with the requirements of this Agreement.

 

- 27 -


D. Design Licenses. Contractor shall perform all design and engineering Work in accordance with Applicable Law, and all Drawings and Specifications shall be signed and stamped by design professionals licensed in accordance with Applicable Law.

E. CAD Drawings. Those Drawings and Record Drawings specified in Attachment A and Attachment B and prepared by Contractor or its Subcontractors or Sub-subcontractors under this Agreement shall be prepared using computer aided design (“CAD”). Contractor shall provide Drawings, including Record Drawings, in their native formats as set forth in Attachment B along with six (6) hard copies.

F. Progress P&ID’s. During the Project, Contractor shall maintain and provide Owner with access to a marked, up-to-date set of P&ID’s maintained for and by Contractor.

G. Record Drawings and Specifications. As a condition precedent to Final Completion, Contractor shall deliver to Owner the Record Drawings and Specifications in accordance with Attachment A and Attachment B.

H. Other Information. Contractor shall deliver copies of all other documents required to be delivered pursuant to Attachment B within and in accordance with the requirements and timing set forth in Attachment B.

3.4 Spare Parts.

A. Operating Spare Parts. Not later than three hundred sixty-five (365) Days prior to the Guaranteed Substantial Completion Date for Subproject 1, Contractor shall deliver to Owner a detailed list of all manufacturer and Contractor-recommended spare parts and special tools necessary for operating and maintaining all Equipment (including components and systems of such Equipment) for two (2) years following Substantial Completion of each Subproject (“Operating Spare Parts”). Within thirty (30) Days thereafter, Owner shall specify in writing which items on the list it wishes Contractor to purchase and whether such items are requested to be delivered to the Site prior to Substantial Completion of Subproject 1, Substantial Completion of Subproject 2 or Final Completion. Within a further thirty (30) Days, Contractor shall confirm the extent to which it is able to comply with Owner’s request and shall submit to Owner the final list of Operating Spare Parts to be purchased. The list of Operating Spare Parts to be procured by Contractor and delivered to Owner (“Operating Spare Parts List”) shall be mutually agreed upon via a Change Order. Prior to and as a condition precedent to Substantial Completion of each Subproject, Contractor shall deliver to the Site all Operating Spare Parts required by the above referenced Change Order to be delivered to the Site prior to Substantial Completion of each such Subproject as set forth in the Operating Spare Parts List. Prior to and as a condition to achieving Final Completion, Contractor shall deliver to the Site all Operating Spare Parts required to be delivered to the Site prior to Final Completion as set forth in the Operating Spare Parts List. The Operating Spare Parts List shall include all information specified in Schedule W-1. A Provisional Sum for the cost of Operating Spare Parts is included in the Contract Price as set forth in Section 7.1 and Attachment EE.

 

- 28 -


B. Capital Spare Parts. Prior to and as a condition precedent to Substantial Completion of Subproject 1, Contractor shall deliver to the Site all capital spare parts listed in Schedule W-2, and the cost associated with all Work related to such capital spare parts is included in the Contract Price, including the actual out of pocket purchase price of such spare parts, plus profit and markup.

3.5 Training Program in General. As part of the Work, a reasonable number of personnel designated by Owner in its sole discretion (but not to exceed the number of Persons listed in Attachment V) shall be given a training course designed and administered by Contractor, which shall be based on the outline of the program contained in Attachment V and shall cover at a minimum the following topics: (i) the testing of each item of Equipment; (ii) the start-up, operation and shut-down of each item of Equipment; (iii) the performance of routine, preventative and emergency maintenance for each item of Equipment; and (iv) spare parts to be maintained for each item of Equipment, and their installation and removal. Training shall be provided by personnel selected by Contractor who, in Contractor’s and the Equipment Subcontractor’s or Sub-subcontractor’s judgment, are qualified to provide such training, and shall take place at such locations and at such times as agreed upon by the Parties. Contractor shall provide trainees with materials described in Attachment V. Contractor shall also provide to Owner all training materials and aids developed to conduct such training in order to facilitate future training by Owner of additional personnel.

3.6 Environmental Regulations and Environmental Compliance. Without limitation of Section 3.1, Contractor shall perform the Work and shall design, construct, pre-commission, commission, start-up and test the Stage 1 Liquefaction Facility in compliance with Contractor’s HSE Plan. Contractor shall (1) dispose of all Non-Hazardous Wastes to the extent generated by Contractor or its Subcontractors or Sub-subcontractors during the performance of the Work and (2) be responsible for removing from the Site Hazardous Materials (x) brought onto the Site by Contractor or any of its Subcontractors or Sub-subcontractors, unless Owner otherwise agrees in writing that such Hazardous Materials may remain at the Site after Substantial Completion of Subproject 2, or (y) generated by Contractor or its Subcontractors or Sub-subcontractors during performance of the Work, respectively (but excluding any Pre-Existing Contamination which shall be governed by Section 3.17). With respect to such Non-Hazardous Wastes and Hazardous Materials that Contractor has the responsibility to dispose or remove pursuant to this paragraph, Contractor shall remove and dispose of same in off-Site locations permitted to receive such Non-Hazardous Wastes and Hazardous Materials. Contractor shall deliver to Owner (i) notice of any pending or threatened material environmental claim with respect to the Project, and (ii) promptly upon their becoming available, copies of material written communications with any Governmental Instrumentality relating to any such material environmental claim.

3.7 Construction Equipment. Contractor shall furnish all Construction Equipment necessary and appropriate for the timely and safe completion of the Work in compliance with this Agreement. Notwithstanding anything to the contrary contained in this Agreement, Contractor

 

- 29 -


shall be responsible for damage to or destruction or loss of, from any cause whatsoever, all such Construction Equipment. Contractor shall require all insurance policies (including policies of Contractor and all Subcontractors and Sub-subcontractors) in any way relating to such Construction Equipment to include clauses stating that each underwriter will waive all rights of recovery, under subrogation or otherwise, against Owner, Lender and any Owner Affiliates.

3.8 Employment of Personnel.

A. Contractor shall not employ, or permit any Subcontractor or Sub-subcontractor to employ, at the Site, in connection with its performance under this Agreement, any Person who is demonstrably not skilled or qualified in the work assigned to such Person. Contractor agrees to promptly remove (or to require any Subcontractor to remove) from its services in connection with the Work any Person who does not meet the foregoing requirements. In addition, Contractor agrees that, after receipt of written notice from Owner, it shall promptly remove from the Work any employee or agent of Contractor or of Contractor’s Subcontractors or Sub-subcontractors who, in Owner’s reasonable opinion, is unsafe, incompetent, careless, unqualified to perform the Work assigned to such Person, creates an unsafe work environment, disregards the terms and conditions of this Agreement, or is interrupting, interfering with or impeding the timely and proper completion of the Work. NOTWITHSTANDING THE FOREGOING, OWNER SHALL HAVE NO LIABILITY AND CONTRACTOR AGREES TO RELEASE, INDEMNIFY, DEFEND AND HOLD HARMLESS THE OWNER GROUP FROM AND AGAINST ANY AND ALL CLAIMS, CAUSES OF ACTION, DAMAGES, LOSSES, COST AND EXPENSES (INCLUDING ALL REASONABLE ATTORNEYSFEES AND LITIGATION OR ARBITRATION EXPENSES) AND LIABILITIES, OF WHATSOEVER KIND OR NATURE, WHICH MAY DIRECTLY OR INDIRECTLY ARISE OR RESULT FROM CONTRACTOR OR ANY SUBCONTRACTOR OR SUB-SUBCONTRACTOR CHOOSING TO TERMINATE THE EMPLOYMENT OF ANY SUCH EMPLOYEE (INCLUDING ANY KEY PERSONS) OR REMOVE SUCH EMPLOYEE FROM THE PROJECT WHO FAILS TO MEET THE FOREGOING REQUIREMENTS FOLLOWING A REQUEST BY OWNER TO HAVE SUCH EMPLOYEE REMOVED FROM THE WORK. Any such employee shall be replaced at the cost and expense of Contractor or the relevant Subcontractor, as appropriate; provided, however, that should (i) Contractor disagree with Owner’s identification of an individual for removal from the performance of services under this Section 3.8A, (ii) Owner not retract its request for removal upon being advised of such disagreement, and (iii) such individual does not in fact conform to the foregoing criteria for removal, CONTRACTOR SHALL BE ENTITLED TO A RECIPROCAL INDEMNITY FROM OWNER IN RESPECT TO ANY CLAIMS, CAUSES OF ACTION, DAMAGES, LOSSES, COST AND EXPENSES (INCLUDING ALL REASONABLE ATTORNEYSFEES AND LITIGATION OR ARBITRATION EXPENSES) AND LIABILITIES OF WHATEVER KIND OR NATURE, WHICH MAY DIRECTLY OR INDIRECTLY ARISE FROM CONTRACTORS REMOVAL OF ANY SUCH EMPLOYEE (INCLUDING ANY KEY PERSONS) FROM THE PROJECT.

B. Contractor is responsible for maintaining labor relations in such manner that, so far as reasonably practicable, there is harmony among workers. Contractor and its Subcontractors and Sub-subcontractors shall conduct their labor relations in accordance with the recognized prevailing local area practices. Contractor shall inform Owner promptly of any labor dispute, anticipated labor dispute, request or demand by a labor

 

- 30 -


organization, its representatives or members which may reasonably be expected to affect the Work. Contractor further agrees to inform Owner, before any commitments are made, during the negotiations of any agreements or understandings with local or national labor organizations.

3.9 Clean-Up. Contractor shall, to Owner’s reasonable satisfaction, at all reasonable times keep the Site free from all waste materials or rubbish caused by the activities of Contractor or any of its Subcontractors or Sub-subcontractors. As soon as practicable after the completion of all Punchlist items, Contractor shall remove, at its own cost, all of its Construction Equipment and remove from the Site all waste material and rubbish that was generated or brought on to the Site by Contractor or any of its Subcontractors or Sub-subcontractors. The Site shall be restored to the extent, if any, required by Attachment A. In the event of Contractor’s failure to comply with any of the foregoing, Owner may accomplish the same; provided, however, that Contractor shall be responsible for all reasonable costs associated with such removal and/or restoration, including costs associated with permitting and transportation.

3.10 HSE Plan; Security.

A. Contractor recognizes and agrees that safety and physical security are of paramount importance in the performance of the Work and that Contractor is responsible for performing the Work in a safe and physically secure manner. No later than sixty (60) Days after Owner’s issuance of the earlier of LNTP or NTP, Contractor shall submit to Owner for its review a health, safety and environmental plan (including a drug testing program) meeting the requirements set forth in Attachment J (the “HSE Plan”). Contractor further agrees to perform the Work in accordance with the health, safety and environmental rules and standards of Applicable Law, GECP and the HSE Plan (collectively, the “Safety Standards”), and, subject to Sections 3.17 and 4.7, Contractor shall assume all costs associated with compliance therewith. Owner’s review of the HSE Plan shall not in any way relieve Contractor of its obligations under this Agreement (including Contractor’s obligations to conduct the Work in accordance with the health, safety and environmental rules of Applicable Law and GECP). Contractor shall appoint one or more (as appropriate) safety representative(s) reasonably acceptable to Owner who shall be resident at the Site, have responsibility to correct unsafe conditions or unsafe acts associated with the Work and the Project, act on behalf of Contractor on health, safety and environmental matters, and participate in periodic safety meetings with Owner. Contractor further agrees to provide or cause to be provided necessary training and safety equipment to its employees, Subcontractors and Sub-subcontractors and to Owner personnel temporarily visiting the Site to ensure their compliance with the foregoing Safety Standards and enforce the use of such training and safety equipment. Contractor shall maintain all accident, injury and any other records required by Applicable Law or by Permit and shall furnish Owner a Monthly summary of injuries and labor hours lost due to injuries. Should Owner at any time observe Contractor, or any of its Subcontractors or Sub-subcontractors, performing the Work at the Site in violation of the Safety Standards or in an unsafe manner, or in a manner that would, if continued, violate the Safety Standards or become unsafe, then Owner shall have the right (but not the obligation) to require Contractor to stop the affected Work until such time as the manner of performing such Work has been rendered safe; provided, however, that at no time shall Contractor be

 

- 31 -


entitled to an adjustment of the Contract Price or Project Schedule based on such Work stoppage. Contractor shall be responsible for the security, fencing, guarding, lighting, and supervision of the Stage 1 Liquefaction Facility until all of the requirements of Substantial Completion of Subproject 2 have been satisfied. With respect to all Work within the applicable portion of the Stage 1 Site after Substantial Completion of Subproject 1 under this Agreement and the Stage 1 Site after Substantial Completion of Subproject 2 under this Agreement, Contractor shall comply, and cause its Subcontractors and Sub-subcontractors to comply, with Owner’s health, safety, security and environmental policies governing Subproject 1 or Subproject 2 after Substantial Completion of Subproject 1 or Subproject 2 (as applicable).

B. All Work performed hereunder, as applicable, shall comply with the minimum federal safety standards for the design, installation, inspection, testing, construction, extension, operation, replacement, and maintenance of facilities contained in Title 49, Code of Federal Regulations, Parts 192 (to the extent applicable) and 193 and in Title 33 C.F.R. Part 127. Contractor shall comply with requirements of the Operator Qualification Program that are outlined in Sub-Part H of 49 C.F.R. Part 193 and Sub-Part G of C.F.R. Part 195, where applicable, in connection with the Work. The term “pipeline facilities” shall include new and existing pipe, rights-of-way, and any equipment, facility, or building used in the transportation of gas, including LNG, or treatment of gas during the course of transportation. The term “transportation of gas” shall include the gathering, transmission, or distribution of gas by pipeline or the storage of gas.

3.11 Emergencies. In the event of any emergency endangering life or property in any way relating to the Work, whether on the Site or otherwise, Contractor shall take such action as may be reasonable and necessary to prevent, avoid or mitigate injury, damage, or loss and shall, as soon as reasonably possible, report any such incidents, including Contractor’s response thereto, to Owner. If Contractor fails to take such action and the emergency requires immediate action, then Owner, with or without notice to Contractor may, but shall be under no obligation to, take reasonable action as required to address such emergency. The taking of any such action by Owner, or Owner’s failure to take any action, shall not limit Contractor’s liability. Contractor shall reimburse Owner in an amount equal to the reasonable costs incurred by Owner in taking such action.

3.12 Contractor Permits. Contractor shall be responsible for obtaining the Contractor Permits. Contractor shall provide Owner with copies of such Contractor Permits as soon as reasonably practicable after they are obtained. Contractor shall provide information, assistance and documentation to Owner as reasonably requested in connection with the Owner Permits; provided that such information, assistance and documentation shall not include Contractor’s provision of information, testimony, documents or data by Contractor’s employees under oath (unless specifically authorized by Contractor) and activities outside the field of Contractor’s expertise, training or experience of personnel assigned to the performance of the Work under this Agreement (except to the extent provided for by Change Order issued pursuant to Section 6.1 and agreed by Contractor).

 

- 32 -


3.13 Books, Records and Audits.

A. Contractor shall keep full and detailed books, construction logs, records, daily reports, schedules, accounts, payroll records, receipts, statements, electronic files, correspondence and other pertinent documents as may be necessary for proper management under this Agreement, as required under Applicable Law or this Agreement, and in any way relating to this Agreement (“Books and Records”). Contractor shall maintain all such Books and Records in accordance with GAAP and shall retain all such Books and Records for a minimum period of three (3) years after Final Completion, or such greater period of time as may be required under Applicable Law.

B. Upon reasonable notice, Owner shall have the right to have audited Contractor’s Books and Records by Owner’s third party auditors but only (i) to the extent necessary to validate payments made to Contractor or invoiced by Contractor for any Change Orders based on a time and materials basis, and (ii) for any costs paid with respect to any Provisional Sums; except that these rights shall not extend to lump sums, or the composition of fixed unit rates or percentages. When requested by Owner, Contractor shall provide Owner’s third party auditors with reasonable access to all such relevant Books and Records, and Contractor’s personnel shall cooperate with such third party auditors to effectuate the audit or audits hereunder. Owner shall have the right upon consent of Contractor (such consent not to be unreasonably withheld or delayed) to have the third party auditors copy all such Books and Records. Contractor shall bear all costs incurred by it in assisting with audits performed pursuant to this Section 3.13 except that copying of Contractor’s Books and Records shall be at Owner’s expense. Contractor shall include audit provisions identical to this Section 3.13 in all Major Subcontracts. No access to Books and Records shall be granted to any of Owner’s third party auditors until such third party auditor has signed a confidentiality agreement with Contractor in accordance with the standard practice in the auditing industry for audits of this kind. The restrictions in this Section 3.13B to the audit rights of Owner shall not be used by Contractor to avoid any obligations Contractor might have to produce documents under Applicable Law or in any litigation or arbitration against Contractor or against Guarantor under the Parent Guarantee.

C. Contractor shall not, and shall provide that its Subcontractors, Sub-subcontractors and agents or employees of any of them shall not, without Owner’s prior written approval, (i) pay any commissions or fees, or grant any rebates, to any employee or officer of Owner or its Affiliates, (ii) favor employees or officers of same with gifts or entertainment of a significant cost or value, or (iii) enter into any business arrangements with employees or officers of same.

3.14 Tax Accounting.

A. Subject to Sections 3.14B and 4.5A, within a reasonable period of time following a request thereof by Owner, Contractor shall provide Owner’s tax consultant with any information (including Books and Records) regarding quantities and descriptions of any Equipment installed on or ordered for the Project and any other information as Owner’s tax consultant may deem reasonably necessary in connection with the preparation

 

- 33 -


of Owner’s tax returns (including information reasonably required to determine the amount of Qualified Research Expenditures incurred in connection with the Work) or other tax documentation in connection with the Project; provided, however, if, in connection with such preparation, Owner’s tax consultant requests information relating to the actual cost for any item of Work and such item of Work is included in the Contract Price or in any fixed price Change Order, Contractor shall provide such information to Owner’s tax consultant. The Parties agree that such tax consultant shall not disclose to Owner the actual cost incurred by Contractor or its Subcontractors or Sub-subcontractors for any item of Work (including Equipment) included in the Contract Price. No access to the aforementioned information (including Books and Records) shall be granted to owner’s tax consultant until such tax consultant has signed a confidentiality agreement with Contractor in accordance with the standard practice in the auditing industry for audits of this kind. Owner shall bear the cost of its own tax consultants in connection with any audits pursuant to Section 3.14.

B. Contractor acknowledges that Owner is pursuing ad valorem tax exemptions through the Texas Commission on Environmental Quality, and upon request by Owner, Contractor shall provide to Owner and Owner’s tax consultant access to documentation required or requested by the Texas Commission on Environmental Quality or any other Governmental Instrumentality in order for Owner to perfect such exemption related to the Aggregate Equipment Price for the Equipment included in an Owner provided list. No access to the aforementioned information shall be granted to Owner’s tax consultant until such tax consultant has signed a confidentiality agreement with Contractor in accordance with the standard practice in the auditing industry for audits of this kind. Documentation shall reasonably consist of Equipment name or Equipment reference number, a description of the Equipment, and the sale price of the Equipment included in an Owner provided list necessary to support the exemption of such Equipment. If reasonably requested by Owner, Contractor agrees to offer similar assistance to Owner toward any other federal, state or local program that is enacted and would allow for a reduction, rebate, abatement, or exemption of (i) Taxes, (ii) Texas Sales and Use Tax, or (iii) a grant of economic development incentives.

3.15 Temporary Utilities, Roads, Facilities and Storage. Until Substantial Completion of Subproject 2, Contractor shall provide and pay for all temporary utilities (i.e., electricity, water (other than the water provided by Owner for the hydrotest in accordance with Attachment U), communication, cable, telephone, waste and sewer) necessary for the performance of the Work, including installation and usage costs. Subject to Section 4.3, Contractor shall construct and maintain temporary access and haul roads as may be necessary for the proper performance of this Agreement. Contractor shall provide Owner with sufficient office space at the time of Contractor’s mobilization at the Site to accommodate Owner’s Site representative and support staff at the Site. Contractor shall provide Owner with all office space, construction trailers, utilities, storage and warehousing, security, telephones, furnishings, and other temporary facilities required for their oversight of the Work, as set forth in more detail in Attachment A. Once title to Equipment has passed to Owner as set forth in Section 8.1B, such Equipment shall, if stored at a location other than on the Site, be segregated from other goods, and shall be clearly marked as “Property of Corpus Christi Liquefaction, LLC”.

 

- 34 -


3.16 Subordination of Liens. Contractor hereby subordinates any mechanics’ and materialmen’s liens or other claims or encumbrances that may be brought by Contractor against any or all of the Work, the Site or the Project to any liens granted in favor of Lender, whether such lien in favor of Lender is created, attached or perfected prior to or after any such liens, claims or encumbrances, and shall require its Subcontractors and Sub-subcontractors to similarly subordinate their lien, claim and encumbrance rights. Contractor agrees to comply with reasonable requests of Owner for supporting documentation required by Lender in connection with such subordination, including any necessary lien subordination agreements by Contractor. Nothing in this Section 3.16 shall be construed as a limitation on or waiver by Contractor of any of its rights under Applicable Law to file a lien or claim or otherwise encumber the Project as security for any undisputed payments owed to it by Owner hereunder which are past due; provided that such lien, claim or encumbrance shall be subordinate to any liens granted in favor of Lenders.

3.17 Hazardous Materials.

A. Contractor shall not, nor shall it permit or allow any Subcontractor or Sub-subcontractor to, bring any Hazardous Materials on the Site or the Off-Site Rights of Way and Easements and shall bear all responsibility and liability for such Hazardous Materials that are brought on the Site or the Off-Site Rights of Way and Easements by Contractor or its Subcontractors or Sub-subcontractors; provided that Contractor shall not have responsibility or liability for any such Hazardous Materials that Owner expressly permits in writing to remain on Site after Substantial Completion of Subproject 2; provided further that Contractor and its Subcontractors and Sub-subcontractors may bring onto the Site or the Off-Site Rights of Way and Easements such Hazardous Materials as are necessary to perform the Work so long as the same is done in compliance with Environmental Law, Applicable Codes and Standards, and the HSE Plan, and Contractor shall remain responsible and liable for all such Hazardous Materials; provided that Contractor shall not have responsibility or liability for any such Hazardous Materials that Owner expressly permits in writing to remain on Site after Substantial Completion of Subproject 2.

B. Owner hereby discloses to Contractor that certain portions of the Site or the Off-Site Rights of Way and Easements contain or may contain Pre-Existing Contamination. Owner acknowledges that: (i) none of Contractor or its Subcontractors or Sub-subcontractors have created or contributed to the creation or existence of the Pre-Existing Contamination; and (ii) in the performance of the Work under this Agreement (to the extent that such performance is in compliance with the conditions and procedures required for performing Work in Controlled Areas (and the restrictions against entry into Prohibited Areas) as described in Attachment Y), none of Contractor or its Subcontractors or Sub-subcontractors are in any way responsible or liable for any Pre-Existing Contamination or exacerbation thereof, except in either case for exacerbation for which Contractor is responsible under Section 3.17E of this Agreement. Contractor has no obligation to identify, characterize, manage, manifest, treat, store, remediate, remove, transport or dispose of any Pre-Existing Contamination.

 

- 35 -


C. Owner has disclosed to Contractor all material reports, studies and written Governmental Instrumentality documentation in Owner’s and its Affiliates’ possession regarding the location, character, scope and extent of Pre-Existing Contamination.

D. If Contractor or its Subcontractors or Sub-subcontractors encounters any Pre-Existing Contamination in the performance of Work, Contractor shall: (i) suspend the performance of the Work in the affected area; (ii) notify Owner immediately; and (iii) to the extent reasonably practicable, continue working in the non-affected areas. None of Contractor or its Subcontractors or Sub-subcontractors shall be required to resume Work in connection with such Pre-Existing Contamination or in any area affected thereby until Owner has: (i) obtained any required permits or other approvals related thereto; (ii) delivered to Contractor a written notice (x) specifying that any affected area is or has been rendered suitable for the resumption of Work in compliance with Environmental Law or (y) specifying any special conditions under which such Work may be resumed in compliance with Environmental Law. To the extent that any such suspension adversely affects Contractor’s or its Subcontractors’ or Sub-subcontractors’ cost or time for performance of the Work in accordance with the requirements of this Agreement, Contractor shall be entitled to an appropriate Change Order pursuant to Section 6.2A.10.

E. If under such circumstances described in Section 3.17D Contractor or any of its Subcontractors or Sub-subcontractors fail to stop Work or notify Owner or fail to comply with the conditions and procedures required for performing Work in Controlled Areas (or the restrictions against entry into Prohibited Areas) as described in Attachment Y, Contractor shall be responsible and liable to Owner for all damages, costs, losses and expenses to the extent such failure increases the damages, costs, losses and expenses with respect to such exacerbation of the Pre-Existing Contamination at the Site; provided that Contractor’s liability to Owner for such failure shall not exceed Twenty-Five Million U.S. Dollars (U.S.$25,000,000) in the aggregate.

3.18 Quality Control. No later than sixty (60) Days after the date Owner issues the NTP, Contractor shall submit to Owner for its written approval (which approval shall not be unreasonably withheld), a Project-specific quality control plan and an inspection plan, including witness points, but excluding tests and inspections relating to commissioning. No later than one hundred twenty (120) Days after the date Owner issues the NTP, Contractor shall submit to Owner for its review detailed inspection procedures. Contractor’s quality control plan shall provide for a quality control individual to be present at the Site to supervise the implementation of the quality control plan, the inspection plan, and the inspection procedures. Owner’s review and/or approval of Contractor’s quality control plan, inspection plan and inspection procedure shall in no way relieve Contractor of its responsibility for performing the Work in compliance with this Agreement.

 

 

- 36 -


3.19 Reports.

A. Contractor shall provide Owner with an electronic copy of the following reports and other documentation:

1. minutes for all weekly status and other Project-related meetings with Owner within five (5) Business Days following such meeting;

2. safety incident reports within three (3) Business Days of the occurrence of any such incident; except for any safety incident involving a significant non-scheduled event such as LNG or Natural Gas releases, fires, explosions, mechanical failures, unusual over-pressurizations or major injuries which shall be provided to Owner within eight (8) hours of the occurrence of such incident; provided, however, notification shall be provided to Owner immediately if the incident is of significant magnitude to threaten public or employee safety, cause significant property damage or interrupt the Work; and

3. Monthly progress reports (“Monthly Progress Reports”) with the information specified in Attachment A.

B. At Owner’s request and after Contractor’s agreement, Contractor shall consolidate any or all reports and other documentation required under this Section 3.19 (or other provisions under this Agreement) for Subproject 1 and Subproject 2 with the reports required under similar provisions for Subproject 3 in the Stage 2 EPC Agreement.

3.20 Payment. Contractor shall timely make all payments required to be paid to Owner pursuant to the terms of this Agreement.

3.21 Commercial Activities. Neither Contractor nor its employees shall establish any commercial activity or issue concessions or permits of any kind to Third Parties for establishing commercial activities on the Site or any other lands owned or controlled by Owner.

3.22 Title to Materials Found. As between Owner and Contractor, the title to water, soil, rock, gravel, sand, minerals, timber, and any other materials developed or obtained in the excavation or other operations of Contractor, any Subcontractor or Sub-subcontractor and the right to use said materials or dispose of same is hereby expressly reserved by Owner. Notwithstanding the foregoing, Contractor shall be permitted, without charge, to use in the Work any such materials that comply with the requirements of this Agreement.

3.23 Survey Control Points and Layout. Contractor shall establish all survey control points and layout the entire Work in accordance with the requirements of this Agreement, which shall be based on the survey control point established by Owner pursuant to this Agreement. If Contractor or any of its Subcontractors, Sub-subcontractors or any of the representatives or employees of any of them move or destroy or render inaccurate the survey control point provided by Owner, such control point shall be replaced by Contractor at Contractor’s own expense.

3.24 Cooperation with Others at the Site.

A. Subject to the provisions of this Agreement, including Section 4.3, Contractor acknowledges that Landowners, Owner and Owner’s other contractors or subcontractors may be performing certain activities at the Site, including those activities described in Attachment Z to be performed by Landowners or their representatives, during the performance of this Agreement and Contractor’s Work or use of certain facilities may

 

- 37 -


be interfered with as a result of such concurrent activities. Owner shall provide Contractor with reasonable notice of any request for access to the Stage 1 Site by (i) any of Owner’s other contractors or subcontractors seeking to perform work at the Site (except with respect to Contractor’s work performed under the Stage 2 EPC Agreement) or (ii) any Landowner. Subject to Section 4.3, Contractor agrees to use reasonable efforts to accommodate such request and to coordinate the performance of the Work with those certain activities to be performed by Landowners or any of Owner’s other contractors or subcontractors at the Stage 1 Site so as not to materially interfere with the performance of such activities at the Stage 1 Site. Contractor shall provide Owner access to the Stage 1 Site at all times.

B. Cooperation Within the Off-Site Rights of Way and Easements. Owner shall provide Contractor with reasonable prior notice of access to the Off-Site Rights of Way and Easements by (i) any of Owner’s other contractors or subcontractors seeking to perform work within such Off-Site Rights of Way and Easements (except with respect to Contractor’s work performed under the Stage 2 EPC Agreement), and (ii) any Landowner. Likewise, Contractor shall provide Owner with reasonable prior notice of any access to the Off-Site Rights of Way and Easements by Contractor or any of its Subcontractors or Sub-subcontractors. Subject to the provisions of this Agreement, including Section 4.3, Contractor acknowledges that Owner or Owner’s other contractors or subcontractors may be working within the Off-Site Rights of Way and Easements and that other Persons (including any Landowner) may be on or using the Off-Site Rights of Way and Easements during the performance of this Agreement and Contractor’s Work or use of certain facilities may be interfered with as a result of such concurrent activities. Subject to Section 4.3, Contractor agrees to use reasonable efforts to coordinate the performance of the Work with such other contractors or subcontractors performing work within the Off-Site Rights of Way and Easements so as not to materially interfere with any of Owner’s other contractors or subcontractors performing work within the Off-Site Rights of Way and Easements; provided, however, Contractor shall in all cases coordinate the Work with any Persons (other than Owner or Owner’s other contractors or subcontractors, which shall not be deemed to include the Contractor or its subcontractors performing work under the Stage 2 EPC Agreement) on or using the Off-Site Rights of Way and Easements pursuant to Attachment Z. All coordination required of Contractor in this Section 3.24B with other Persons shall be done through Owner.

3.25 Integration with Subproject 1 after Substantial Completion of Subproject 1.

A. No Interference with Subproject 1 after Substantial Completion of Subproject 1. Performance of the Work shall at no time cause a suspension of operation of Subproject 1 (or any portion thereof) after Substantial Completion of Subproject 1, except to the extent (i) specified in Attachment X and in compliance with the requirements of Section 3.25B or (ii) agreed by the Owner Representative in writing.

B. Scheduled Activities. No later than thirty (30) Days prior to performing any Work that may interfere with the operation of Subproject 1 after Substantial Completion of Subproject 1 (whether specified in Attachment X or agreed by Owner Representative in writing), Contractor shall provide Owner with a written integration plan listing the scheduled, interfering Work and proposing in detail how Contractor intends that such Work

 

- 38 -


will be performed to minimize, to the greatest extent reasonably possible, interference with the operation of Subproject 1 after Substantial Completion of Subproject 1. Such proposed plan shall (i) comply with the requirements of Section 3.25A, (ii) be scheduled so that it is not on the critical path, and (iii) at a minimum, address each of the activities identified in Attachment X and list (a) the component of the Subproject 1 that will be impacted by such activity, (b) how such component or work will be impacted, and (c) the duration of such impact. If the plan proposed by Contractor does not meet any of the requirements in the immediately preceding sentence, or if Owner reasonably believes that the plan proposed by Contractor has not been developed to reasonably minimize the impact on the operations of Subproject 1 after Substantial Completion of Subproject 1, then Owner may, not later than fourteen (14) Days following receipt of the proposed plan, instruct Contractor in writing to modify the proposed plan. If Owner’s instruction restricts the duration or extent of the Work covered in the plan more than what is required by Section 3.25B(i)-(iii), then Contractor shall be entitled to a Change Order to the extent permitted under Section 6.9. Contractor shall proceed to execute such Work in accordance with the mutually agreed plan; provided that, if Owner does not respond and comment upon the Contractor’s proposed plan within fourteen (14) Days following receipt of Contractor’s proposed plan, then Contractor shall proceed to execute such Work in accordance with Contractor’s proposed plan as long as it complies with the limitations specified in Section 3.25B(i)-(iii). Notwithstanding Owner’s agreement (or failure to agree) to the schedule and the plan for the performance of such Work, Owner may, in its sole discretion, subsequently prohibit the performance of such Work occurring on the scheduled date, but in such case Contractor shall be entitled to a Change Order to the extent permitted under Section 6.9. If Owner fails to provide Contractor with access when and for the duration required by Contractor for the Work, other than for non-compliance with Section 3.25B(i)-(iii), Applicable Law, Owner Permits relating to safety, or Owner’s reasonable security requirements, then, Contractor shall be entitled to a Change Order to the extent permitted under Section 6.9.

C. Unscheduled Activities. It is the Parties’ intent that except for the activities (if any) listed in Attachment X, the performance of the Work and Contractor’s other obligations under this Agreement will not interfere with the operation of Subproject 1 after Substantial Completion of Subproject 1. During the performance of the Work, should a situation arise that Contractor reasonably believes has the potential of interfering with the operation of Subproject 1 after Substantial Completion of Subproject 1, Contractor shall, except in an emergency endangering property or any Persons, give Owner written notice as soon as possible but no later than fourteen (14) Days prior to the time that Contractor plans to perform such Work, detailing a plan that is least disruptive, to the greatest extent reasonably possible, to operations of Subproject 1 after Substantial Completion of Subproject 1. Emergency actions are governed by Section 3.11. Prior to performing such Work, Owner and Contractor shall mutually agree on a proposed plan for Contractor to execute such Work; provided that, if Owner fails to provide Contractor with access when and for the duration required by Contractor for the Work, other than for non-compliance with Section 3.25B(i)-(iii), Applicable Law, Owner Permits relating to safety, or Owner’s reasonable security requirements, then Contractor shall be entitled to a Change Order to the extent permitted under Section 6.9. Notwithstanding Owner’s agreement to the schedule and the plan for the performance of such Work, Owner may, in its sole discretion, subsequently prohibit the performance of such Work on such scheduled date, and Contractor shall work with Owner to develop a new plan and date for performing such Work in accordance with this Section 3.25C, and in such case Contractor shall be entitled to a Change Order to the extent permitted under Section 6.9.

 

 

- 39 -


3.26 Responsibility for Property. Except as expressly set forth in Section 3.25, Contractor shall limit its operations to the Stage 1 Site. Contractor shall plan and conduct its operations so that neither Contractor nor any of its Subcontractors or Sub-subcontractors shall (i) enter upon lands (other than the Stage 1 Site and Off-Site Rights of Way and Easements) or waterbodies in their natural state unless authorized by the appropriate owner or entity; (ii) close or obstruct any utility installation, highway, waterway, harbor, road or other property unless Permits are obtained and authorized by the appropriate entity or authority; or (iii) disrupt or otherwise interfere with the operation of any portion of any pipeline, telephone, conduit or electric transmission line, ditch, navigational aid, dock or structure unless otherwise specifically authorized by the appropriate entity or authority. The foregoing includes damage arising from performance of the Work through operation of Construction Equipment or stockpiling of materials. If damage occurs to Subproject 3 prior to substantial completion of Subproject 3, liability for such damage shall be governed by the Stage 2 EPC Agreement.

3.27 Explosives. Explosives shall be transported to the Site only when required to perform the Work under this Agreement and with abundant, prior notice to and written approval of Owner. Contractor shall be responsible for properly purchasing, transporting, storing, safeguarding, handling and using explosives required to perform the Work under this Agreement. Contractor shall employ competent and qualified personnel for the use of explosives and, notwithstanding any other provision in this Agreement to the contrary, shall assume full responsibility for damages claimed by any Third Party to the extent caused by the improper use of explosives by Contractor or any Subcontractor or Sub-subcontractor. Residual surplus explosives shall be promptly removed from the Site and properly disposed of by Contractor.

3.28 Taxes. Subject to Section 7.1, the Contract Price includes all Taxes imposed on or payable by Contractor, its Subcontractors and Sub-subcontractors in connection with the Work. Contractor shall be responsible for the payment of all Taxes imposed on or payable by Contractor, its Subcontractors and Sub-subcontractors in connection with the Work.

3.29 Equipment Quality. Contractor shall furnish reasonable evidence as to the kind, quality, and quantity of all Major Equipment. Without prior written approval by Owner which specifically waives the requirements of this Agreement, where this Agreement specifies certain Major Equipment be incorporated into the Project, Contractor shall not use any Major Equipment other than as specified in this Agreement. If Contractor wishes to modify the requirements contained herein with respect to Major Equipment, then it shall make written application to Owner for Owner’s approval (such approval not to be unreasonably withheld), prior to performing any such Work. Such application shall (i) identify the requirements being modified, (ii) certify that the quality of the proposed substitute is equal to or better than that currently specified, and (iii) certify that the substitute is suited to the same use and capable of performing the same function as that specified. If the preceding requirements are not followed, then any substitution shall constitute a material failure by Contractor to comply with its obligations under this Agreement. All Major Equipment shall be fabricated, applied, installed, connected, operated (during start-up and testing), cleaned and conditioned in accordance with the instructions of the applicable Subcontractor or Sub-subcontractor.

 

- 40 -


3.30 Loss of LNG or Natural Gas. Contractor shall use safe and commercially reasonable efforts during commissioning, testing, and operation of the Stage 1 Liquefaction Facility to minimize the loss of LNG or Natural Gas due to venting, flaring, or unnecessary operation of the refrigerant compressors in recycle.

ARTICLE 4

OWNER’S RESPONSIBILITIES

Owner shall comply with the following provisions in a timely manner in accordance with the Project Schedule at no cost to Contractor:

4.1 Payment and Financing. Owner shall timely pay the Contract Price in accordance with the provisions of Article 7 hereof. As a condition of NTP, Owner shall obtain and maintain funds and financing as required by Section 4.1B for the Project sufficient to make payments to Contractor in accordance with the terms of this Agreement.

A. Owner Quarterly Confirmation. Beginning with Owner’s issuance of NTP, and continuing quarterly thereafter, Owner shall deliver to Contractor a statement in the form of Schedule BB-1 (“Owner Quarterly Confirmation”) confirming that Owner has sufficient funds, in an amount at least equal to the committed fund levels as required by Section 4.1B, through itself and financing to continue to fulfill its payment obligations under this Agreement and confirming that no event has come to the attention of Owner which would materially and adversely affect the continued availability of such funding. Such Owner Quarterly Confirmation shall be signed by an appropriate senior officer of Owner. For the purposes of this Section 4.1A, “quarterly” shall mean the beginning and middle of each six (6) Month period described in Section 4.1B.

B. Sufficiency of Committed Funds. The term “sufficient funds” for purposes of Section 4.1A shall mean the following:

1. After NTP and Bechtel’s receipt of the Mobilization Payment, and through the first six (6) Months, One Billion Eight Hundred Million U.S. Dollars (U.S.$1,800,000,000); and

2. After the first six (6) Months and through the first twelve (12) Months, One Billion Five Hundred Million U.S. Dollars (U.S.$1,500,000,000); and

3. After the first twelve (12) Months and through the first eighteen (18) Months, One Billion Two Hundred Million U.S. Dollars (U.S.$1,200,000,000); and

4. After the first eighteen (18) Months and through the first twenty four (24) Months, Nine Hundred Million U.S. Dollars (U.S.$900,000,000); and

5. After the first twenty four (24) Months and through the first thirty six (36) Months, Seven Hundred Million U.S. Dollars (U.S.$700,000,000); and

 

- 41 -


6. After the first thirty six (36) Months and through the first forty eight (48) Months, Five Hundred Million U.S. Dollars (U.S.$500,000,000); and

7. After the first forty eight (48) Months and through the first sixty (60) Months, Three Hundred Fifty Million U.S. Dollars (U.S.$350,000,000); and

8. After the first sixty (60) Months and up to Substantial Completion of Subproject 2, Two Hundred Fifty Million U.S. Dollars (U.S.$250,000,000).

The committed fund levels under this Section 4.1B are in addition to and exclusive of (a) undisputed amounts owed to Contractor from Owner through the date of the applicable Owner Quarterly Confirmation, (b) any disputed amounts placed in escrow under Section 18.4 and (c) any funds committed to fulfill Owner’s payment obligations to Contractor under the Stage 2 EPC Agreement after Owner has issued notice to proceed under the Stage 2 EPC Agreement.

4.2 Owner Permits. Owner shall be responsible for obtaining the Owner Permits. Owner shall maintain and, to the extent applicable, renew such Owner Permits. To the extent Owner has already obtained any of the Owner Permits as of the Effective Date of this Agreement, Owner shall provide copies of such Owner Permits to Contractor on or before the Effective Date. To the extent Owner has not obtained any Owner Permits prior to the Effective Date, Owner shall obtain such Owner Permits in accordance with the schedule contained in Attachment Q and Owner shall provide Contractor with complete copies of such Owner Permits within five (5) Business Days after obtaining them. The terms of all such Permits shall be compatible with Contractor’s performance of the Work, and Owner shall promptly notify Contractor of any changes to the terms of any such Owner Permit that impacts Contractor’s performance of the Work under this Agreement. Owner shall provide information, assistance and documentation to Contractor as reasonably requested in connection with the Contractor Permits.

4.3 Access to the Site and Off-Site Rights of Way and Easements.

A. Subject to the terms of this Agreement, including Section 3.24, Owner shall, at NTP, provide Contractor with access to and care and custody of the Stage 1 Site. Such access shall be sufficient to permit Contractor to progress with construction on a continuous basis without material interruption or interference by others. To the extent that (i) any of Owner’s other contractors or subcontractors working at the Stage 1 Site prior to Substantial Completion of a Subproject, (ii) any Landowner accessing the Stage 1 Site prior to Substantial Completion of a Subproject (except as described in Attachment Z) or (iii) the lack of such sufficient access or a Change in Law, in any such case materially interrupts or interferes with Contractor’s performance of the Work applicable to such Subproject and such interruption or interference adversely affects Contractor’s ability to perform the Work applicable to such Subproject in accordance with the Project Schedule or Contractor’s cost of performance of the Work for such Subproject, Contractor shall be entitled to a Change Order; provided that, subject to Section 3.25, Contractor complies with the requirements in Sections 6.2, 6.5 and 6.9. For the avoidance of doubt, Contractor shall not be entitled to a Change Order pursuant to this Section 4.3 as a result of a Landowner or its representatives accessing the Site to perform any of those activities described in Attachment Z.

 

- 42 -


B. The Contract Price is based on Owner providing Contractor with access to the off-Site rights of way and easements listed in Attachment Y, including the temporary facility locations, dredging work locations, and disposal areas, DMPA 1 and DMPA 2, (the “Off-Site Rights of Way and Easements”) sufficient to permit Contractor to progress with construction without material interruption or interference by others while adhering to the requirements in Attachment Z. To the extent Contractor is not provided with sufficient access to such Off-Site Rights of Ways and Easements to progress with construction without material interruption or interference by others, and such interruption or interference adversely affects Contractor’s cost of performance of the Work or Contractor’s ability to perform the Work in accordance with the Project Schedule, Contractor shall be entitled to a Change Order; provided that (i) Contractor complies with the requirements set forth in Sections 6.2, 6.5 and 6.9, and (ii) at or prior to the Contract Date, Contractor did not know (based on information described in Attachment Z) that its access was or would be restricted.

4.4 Operation Personnel. Owner shall provide to Contractor a minimum of sixty (60) qualified and competent operating and maintenance personnel sufficient to commission and test the Project under the supervision of Contractor as set forth in Attachment V. Until Substantial Completion of Subproject 2, such personnel shall be under the direction and control of and supervised by Contractor. Such operating and maintenance personnel shall be available for training as required pursuant to Section 3.5. To the extent not set forth in Attachment V, Contractor shall prepare for Owner’s review a Project Commissioning Plan regarding the utilization of Owner’s operation and maintenance personnel and Contractor’s personnel during commissioning and for the conduct of Performance Tests. Such Project Commissioning Plan shall be mutually agreed-upon by the Parties, each acting reasonably, no later than forty-five (45) Days after Owner’s receipt of Contractor’s proposed Project Commissioning Plan. Without in any way limiting Contractor’s obligation to provide forces and labor during commissioning and Performance Testing, Contractor agrees that if any activity during commissioning and Performance Testing requires direct supervision by Contractor, such supervision shall be performed by Contractor or a Subcontractor or Sub-subcontractor. Owner shall remain responsible for all costs associated with Owner’s operation and maintenance personnel, including salaries, travel and expenses.

4.5 Texas Sales and Use Tax Matters.

A. Texas Sales and Use Taxes Manufacturing Exemption on Equipment.

1. For Texas Sales and Use Tax purposes, this Agreement shall be considered to be a separated contract for the construction of new non-residential real property as defined under Applicable Law, including 34 Tex. Admin Code §3.291(a)(13). Contractor shall ensure that all Subcontracts and Sub-subcontracts are separated for Texas Sales and Use Tax purposes.

 

- 43 -


2. Aggregate Equipment Price. Contractor shall maintain the Aggregate Equipment Price and reasonable supporting documentation (which shall include the description and the sales price of such Equipment) for those items of Equipment identified in an Owner provided list at its principal office location at 3000 Post Oak Boulevard in Houston, Texas. Upon five (5) Business Days advance notice from Owner to Contractor, Contractor shall provide Owner, its Affiliates and their respective auditors and the auditors of any applicable Governmental Instrumentalities access to such reasonable supporting documentation during regular business hours to review such reasonable supporting documentation. Contractor shall update the Aggregate Equipment Price and such reasonable supporting documentation to reflect Change Orders. Owner shall have sole responsibility for determining which items of Equipment qualify for the manufacturing exemption from Texas Sales and Use Tax.

3. Prior to issuance of any LNTP or NTP directing Contractor to procure any Equipment, Owner shall issue a Texas direct pay exemption certificate to Contractor, and Contractor shall not invoice Owner for any Texas Sales and Use Tax on Equipment. Pursuant to direct pay permit status, Owner shall pay applicable Texas Sales and Use Tax on Equipment directly to the State of Texas on the Work.

B. Additional Contractor Texas Sales and Use Tax Responsibilities. For Texas Sales and Use Tax purposes, Contractor shall be considered a retailer of all Equipment incorporated into the Work. Contractor shall issue a valid Texas Sales and Use Tax resale exemption certificate for Equipment to its Subcontractors and shall cause its Subcontractors to issue a valid Texas Sales and Use Tax resale exemption certificate for Equipment to Sub-subcontractors.

4.6 Legal Description and Survey. Prior to NTP (or prior to any LNTP Work where applicable), Owner shall provide to Contractor (i) the legal description of the Site (which shall include the Stage 1 Site) and the Off-Site Rights of Way and Easements, all as set forth in Attachment Y and (ii) a survey of the Site (which shall include the Stage 1 Site) and the Off-Site Rights of Way and Easements showing the boundaries of the Site (and Stage 1 Site) and the Off-Site Rights of Way and Easements and one survey control point. Contractor shall be entitled to rely upon the accuracy of this information. To the extent any existing structures or utilities are shown in the survey, Contractor shall independently verify the locations of such existing structures and utilities.

4.7 Hazardous Materials. As between Owner and Contractor and any of Contractor’s Subcontractors or Sub-subcontractors, Owner shall, or shall cause its Affiliates to, as applicable in Owner’s reasonable determination and at the sole cost, expense and liability of Owner (except for those costs, damages, losses and expenses for which Contractor is responsible and/or liable under Sections 3.6, 3.17A or 3.17E), identify, characterize, manage, manifest, treat, store, remediate, remove, transport, or dispose of any Hazardous Materials (including Pre-Existing Contamination) present, discovered, discharged, spilled, disposed or otherwise released at the Site or the Off-Site Rights of Way and Easements, including any Hazardous Materials brought on to or generated on the Site or the Off-Site Rights of Way and Easements by any Third Parties but excluding any

 

- 44 -


Hazardous Materials brought on to or generated on the Site or the Off-Site Rights of Way and Easements by Contractor or any of its Subcontractors or Sub-subcontractors that Owner has not otherwise expressly permitted in writing to remain on Site after Substantial Completion of Subproject 2. OWNER SHALL DEFEND, INDEMNIFY AND HOLD HARMLESS CONTRACTOR GROUP AND ITS SUBCONTRACTORS AND SUB-SUBCONTRACTORS FROM AND AGAINST ALL DAMAGES, LOSSES, COSTS AND EXPENSES (INCLUDING ALL REASONABLE ATTORNEYSFEES AND LITIGATION OR ARBITRATION EXPENSES) INCURRED BY CONTRACTOR GROUP OR ITS SUBCONTRACTORS AND SUB-SUBCONTRACTORS TO THE EXTENT ARISING FROM ANY CONTAMINATION OR POLLUTION RESULTING FROM (IANY HAZARDOUS MATERIALS (INCLUDING PRE-EXISTING CONTAMINATION) FOR WHICH OWNER IS RESPONSIBLE UNDER THIS SECTION 4.7; OR (IIANY FAILURE OF OWNER TO OTHERWISE COMPLY WITH ITS OBLIGATIONS UNDER THIS SECTION 4.7.

4.8 Owner-Provided Items.

A. Owner shall be responsible for those items of information so identified in Attachment A, including information defined as “Rely Upon” in the Design Basis included in Attachment A, and for providing to Contractor the information specified in Attachment U. Contractor shall not be required to examine or be deemed to have examined any such information and Owner shall remain fully responsible for the accuracy, completeness and sufficiency of such information. If Owner makes a change to any such information, or if Contractor discovers an error in such information or non-compliance of such information with Applicable Law or Applicable Codes and Standards, Contractor shall be entitled to a Change Order; provided that Contractor complies with the requirements set forth in Sections 6.2, 6.5 and 6.9. All other information in the Design Basis shall be the responsibility of Contractor.

B. Owner shall provide those items in Attachment A which are expressly listed as being the obligation of Owner and the items listed in Attachment U (within the times listed in Attachment U). The items already provided by Owner are listed in Attachment U.

C. Owner shall supply Feed Gas for use during commissioning, Start Up and Performance Tests and as necessary to demonstrate achievement of RFSU and Substantial Completion (“Commissioning Feed Gas”) in accordance with the notice procedures specified in Section 11.1.

D. Following Substantial Completion of Subproject 1, Owner shall provide storage, through a Tank completed by Contractor under Subproject 1, for Commissioning LNG in accordance with the notice procedures specified in Section 11.1.

4.9 Owner Representative. Owner designates *** as the Owner Representative. Notification of a change in Owner Representative shall be provided in advance, in writing, to Contractor.

4.10 LNG Tanker Release. Owner shall endeavor to obtain a release of Contractor Group and Owner Group from the owner of any LNG Tanker and related LNG cargo from any and all damages, losses, costs and expenses arising out of or resulting from claims for damage to or destruction of an LNG Tanker and loss of the related LNG cargo or personal injury or death of any

 

- 45 -


employee, officer or director employed by the company operating, owning or leasing such LNG Tanker or owning the related LNG cargo in connection with the delivery of LNG of any LNG Tanker to the Project where such damage, destruction, loss, injury or death occurs prior to Substantial Completion of Subproject 2. Owner shall endeavor to obtain a release which shall apply regardless of the cause of such damage, destruction, injury or death, including the sole or joint negligence, breach of contract or other basis of liability of any member of the Contractor Group and any member of the Owner Group.

ARTICLE 5

COMMENCEMENT OF WORK, PROJECT SCHEDULE, AND SCHEDULING

OBLIGATIONS

5.1 Commencement of Work. Upon Contractor’s receipt from Owner of the limited notice to proceed (“Limited Notice to Proceed” or “LNTP”), Contractor shall promptly commence with the performance of the portion of the Work specified in such LNTP; provided that the Parties have executed a Change Order defining the LNTP Work. The LNTP shall be issued in the form attached hereto as Attachment H, Schedule H-1. Contractor shall not, and shall not be obligated to, commence performance of such Work until receipt from Owner of such LNTP.

5.2 Limited Notice to Proceed/Notice to Proceed.

A. Limited Notice to Proceed. The portion of the Contract Price payable for the LNTP Work shall be made in accordance with the Payment Schedule set forth in Attachment C (as may be amended by Change Order) and the applicable provisions of Article 7. Owner shall not issue the LNTP until the following conditions have been met:

1. Owner has furnished to Contractor documentation which demonstrates that Owner has sufficient funds to fulfill its payment obligations, including all cancellation costs associated with LNTP Work, in connection with Contractor’s performance of the LNTP Work, or that Owner has obtained financing from one or more Lenders to fulfill its payment obligations in connection with such LNTP Work;

2. Owner has obtained all Owner Permits that are necessary for performance of the LNTP Work, or if Owner has not obtained all such Owner Permits at the commencement of such LNTP Work, by issuance of the LNTP, Owner commits to obtain any such remaining Owner Permits in such time so as to not delay the performance of such LNTP Work; and

3. Owner shall be in compliance with its other obligations set forth in Article 4 as necessary for the performance of the LNTP Work.

B. Notice to Proceed. Contractor shall not, and shall not be obligated to, commence performance of the Work (other than the LNTP Work) until Owner issues the full notice to proceed (“Notice to Proceed” or “NTP”) authorizing the same pursuant to the terms and conditions of this Agreement. Upon Contractor’s receipt from Owner of the NTP, Contractor shall promptly commence with the performance of the Work. The NTP shall be issued in the form attached hereto as Attachment H, Schedule H-2. Contractor shall timely file an affidavit of commencement of construction with the county clerk pursuant to Texas Property Code § 53.124(c). Owner shall not issue an NTP until the following conditions have been met:

 

 

- 46 -


1. Owner has furnished to Contractor reasonable documentation which demonstrates that Owner (i) has funds and (ii) has obtained financing from one or more Lenders, which combined are sufficient to fulfill Owner’s payment obligations under this Agreement, including (a) satisfaction, or waiver by Lenders, of all applicable conditions precedent to the occurrence of the closing date of the financing, which shall be prior to or contemporaneous with the issuance of the Notice to Proceed, and (b) evidence of the execution of the credit agreement with respect to such financing by Owner and Lenders (including a copy of such executed credit agreement).

For purposes of this Section 5.2B.1, funds and financing “sufficient to fulfill Owner’s payment obligations” shall mean that Owner has at NTP Three Billion U.S. Dollars (U.S.$3,000,000,000) committed to fulfill Owner’s payment obligations to Contractor under this Agreement. This committed fund amount is in addition to and exclusive of the (a) Mobilization Payment and (b) any funds committed to fulfill Owner’s payment obligations to Contractor under the Stage 2 EPC Agreement after Owner has issued notice to proceed under the Stage 2 EPC Agreement;

2. Owner has obtained all Owner Permits (including the FERC Authorization) which are shown in Attachment Q as required to be obtained prior to the issuance of the NTP;

3. Owner has made payment to Contractor of all undisputed amounts owed as of the date of the NTP that were earned in connection with Contractor’s performance of the LNTP Work;

4. The Mobilization Payment has been received by Contractor in cleared funds;

5. Owner shall be in compliance with its other obligations set forth in Article 4 as necessary for the commencement of the Work; and

6. Owner has executed the ConocoPhillips License Agreement.

C. Delayed NTP.

1. In the event Owner fails to issue the NTP in accordance with Section 5.2B by July 1, 2014, then Contractor shall, at the end of every three Month period thereafter until NTP (if any) is issued by Owner, notify Owner in writing of any impacts such delay has on Contractor’s costs of performance of the Work, including Subcontractor prices, and Contractor’s ability to perform the Work in accordance with the Agreement, including the Project Schedule and other Changed Criteria. Contractor shall not be entitled to the relief in this Section 5.2C to the extent the reason for Owner failing to issue NTP is because Contractor failed to provide the Letter of Credit in accordance with Section 9.2A.

 

- 47 -


5.3 Project Schedule. Contractor shall perform the Work in accordance with the Project Schedule.

A. Target Substantial Completion Dates. Listed in Attachment E are Target Substantial Completion Dates for each Subproject. The Target Substantial Completion Dates shall only be adjusted by Change Order as provided under this Agreement.

B. Guaranteed Substantial Completion Dates. Contractor shall achieve Substantial Completion of Subproject 1 no later than the date specified in Attachment E (“Guaranteed Substantial Completion Date for Subproject 1”) and Substantial Completion of Subproject 2 no later than the date specified in Attachment E (“Guaranteed Substantial Completion Date for Subproject 2”), (each a “Guaranteed Substantial Completion Date” and collectively, the “Guaranteed Substantial Completion Dates”). The Guaranteed Substantial Completion Dates shall only be adjusted by Change Order as provided under this Agreement.

C. Final Completion. Contractor shall achieve Final Completion no later than *** (***) Days after achieving Substantial Completion of Subproject 2 or as soon as reasonably practicable thereafter if the Parties mutually agree (both acting reasonably).

5.4 CPM Schedule Submissions. Within fifteen (15) Days after NTP is issued in accordance with Section 5.2B, Contractor shall prepare and submit to Owner for its review a critical path method schedule (“CPM Schedule”) for the Work identifying a critical path for each of the two (2) Subprojects, which shall be detailed at a Level II for all activities for the Project (including engineering, procurement, construction, pre-commissioning, commissioning, testing and startup). In addition, no later than one hundred and twenty (120) Days after NTP is issued in accordance with Section 5.2B, Contractor shall submit to Owner for its review a revised CPM Schedule, which shall be detailed at a Level III for all activities for the Project (including engineering, procurement, construction, pre-commissioning, commissioning, testing and startup). The initial CPM Schedule shall govern Contractor’s Work until the revised CPM Schedule is prepared and reviewed by Owner. Each of the initial and revised CPM Schedules shall be referred to as the “CPM Schedule,” and each shall comply with the requirements of this Section 5.4 and shall be provided to Owner in its native electronic format. The CPM Schedule shall be prepared by Contractor using Primavera Project Planner. Without limitation of the foregoing, the CPM Schedule shall include the information and meet the requirements set forth in Section 8.4 of Attachment A.

5.5 Recovery and Recovery Schedule. If, at any time during the prosecution of the Work, (i) should the Monthly Progress Report show that any activity on the critical path is forty-five (45) or more Days behind schedule, or should Contractor fail to provide a Monthly Progress Report in compliance with the requirements of this Agreement and Owner reasonably determines that any activity on the critical path is forty-five (45) or more Days behind schedule and (ii) Contractor or any of its Subcontractors or Sub-subcontractors are in Owner’s reasonable

 

- 48 -


judgment responsible for such delay, Owner may, in addition to any other remedies that it may have under this Agreement, require that Contractor prepare a schedule to explain and display how it intends to regain compliance with the CPM Schedule (“Recovery Schedule”). Within ten (10) Business Days after the determination by Owner of the requirement for a Recovery Schedule, Contractor shall prepare the Recovery Schedule and submit it to Owner for its review. The Recovery Schedule shall (i) represent Contractor’s best judgment as to how it shall regain compliance with the CPM Schedule, (ii) be prepared in accordance with GECP, (iii) have a level of detail sufficient for Contractor to direct, manage and perform the Work, and (iv) have a maximum duration of sixty (60) Days unless recovery cannot be reasonably achieved in such time, in which case the duration of the Recovery Schedule shall be for that period of time reasonably necessary to regain compliance with the CPM Schedule. Contractor shall address all comments received from Owner during Owner’s review of the Recovery Schedule, and Contractor shall provide a written statement describing why any of Owner’s comments or proposed changes to the Recovery Schedule were not implemented by Contractor. Any of Owner’s comments or proposed changes to the Recovery Schedule that Contractor implements should be reflected in the revised Recovery Schedule. The revised Recovery Schedule shall then be the schedule which Contractor shall use in planning, organizing, directing, coordinating, performing, and executing the Work (including all activities of Subcontractors and Sub-subcontractors) to regain compliance with the CPM Schedule. The cost of preparing and executing the Recovery Schedule shall be at Contractor’s sole cost and expense; provided, however, if the preparation of a Recovery Schedule is combined with a request by Owner for a Change Order and the cost of preparing the Change Order for such request (excluding any costs associated with recovery) exceeds Thirty Thousand U.S. Dollars (U.S.$30,000), then Contractor is entitled to reimbursement for such preparation costs in accordance with Section 6.1A. Owner’s review and comments regarding the Recovery Schedule shall not relieve Contractor of any obligations for performance of the Work, change the Target Substantial Completion Dates or Guaranteed Substantial Completion Dates or be construed to establish the reasonableness of the Recovery Schedule.

A. If, at any time prior to the applicable Guaranteed Substantial Completion Date, Contractor’s performance of the Work is delayed such that Substantial Completion of a Subproject is projected to achieve Substantial Completion beyond the applicable Guaranteed Substantial Completion Date (as may be adjusted by Change Order) to such an extent that the Delay Liquidated Damages cap in Section 20.2A would apply, and Contractor fails to provide a Recovery Schedule in accordance with this Section 5.5 or Contractor provides a Recovery Schedule but Contractor fails to materially comply with such Recovery Schedule, then Contractor shall be in Default and Owner shall have the right, prior to the applicable Guaranteed Substantial Completion Date, to terminate Contractor’s performance of the Work in accordance with Section 16.1A. If Owner so terminates, Owner shall have all of the rights under Section 16.1 (including recovering all amounts under Section 16.1A), except that in the case of a termination by Owner pursuant to this Section 5.5A solely for Contractor’s failure to provide a Recovery Schedule and materially comply therewith, Contractor’s liability under Section 16.1 arising out of such termination shall be limited to the applicable cap or caps in Section 20.2A and no Performance Liquidated Damages would be owed.

 

- 49 -


5.6 Acceleration and Acceleration Schedule.

A. Even if the Work is otherwise in compliance with the CPM Schedule, Owner may, at any time, direct Contractor in writing to advance one or all of the Target Substantial Completion Dates and Guaranteed Substantial Completion Dates; provided, however, such directive shall be reasonable and Contractor shall have agreed in writing that such acceleration is commercially and technically feasible. In the event of such agreement, the directive shall be termed herein a “Confirmed Acceleration Directive” and shall be set forth in a Change Order. In no event shall Owner have the right to issue a unilateral acceleration directive requiring Contractor to achieve Substantial Completion of Subproject 1 or Substantial Completion of Subproject 2 prior to the original Guaranteed Substantial Completion Dates specified in this Agreement as of the Contract Date, as applicable. In the event of a Confirmed Acceleration Directive, Owner shall pay Contractor for the documented costs plus fees attributable to such acceleration and appropriate incentives, if any, shall be mutually agreed upon by the Parties with respect to such early proposed completion and set forth in the Change Order. Such costs may include any shift differential, premium, or overtime payments to workers or field supervisors and other employees of Contractor dedicated to the Work on a full-time basis actually incurred over and above Contractor’s normal rates, and overtime charges for Construction Equipment. Any adjustment to the Contract Price or any other Changed Criteria necessitated by such acceleration of the Work shall be implemented by Change Order. Upon execution of the Change Order, Contractor shall immediately commence and diligently perform the acceleration of the Work, and shall prepare a schedule to explain and display how it intends to accelerate the Work and how that acceleration will affect the critical path of the CPM Schedule (the “Acceleration Schedule”). With respect to the Acceleration Schedule, Contractor shall do the following:

1. No later than the tenth (10th) Business Day after execution of the Change Order with respect to the Confirmed Acceleration Directive, Contractor shall prepare the Acceleration Schedule and submit it to Owner for its review. The Acceleration Schedule shall represent Contractor’s best judgment as to how it shall satisfy the Confirmed Acceleration Directive. The Acceleration Schedule shall be prepared using GECP and to a similar level of detail as the CPM Schedule.

2. On the tenth (10th) Business Day after execution of the Change Order with respect to the Confirmed Acceleration Directive (or such longer time as specified in writing by Owner), Contractor shall participate in a conference with Owner, and with any other Person (including Subcontractors and Sub-subcontractors) whom Owner reasonably designates to participate, to review and evaluate the Acceleration Schedule. Any revisions to the Acceleration Schedule necessary as a result of this review shall be resubmitted for review by Owner as soon as reasonably practicable or as mutually agreed by the Parties. The revised Acceleration Schedule shall then be the schedule which Contractor shall use in planning, organizing, directing, coordinating, performing, and executing that portion of the Work that is affected by such acceleration, with the CPM Schedule governing the performance of all other Work.

 

- 50 -


Owner’s review of the Acceleration Schedule shall not constitute an independent evaluation or determination by Owner of the workability, feasibility, or reasonableness of that schedule.

ARTICLE 6

CHANGES; FORCE MAJEURE; AND OWNER-CAUSED DELAY

6.1 Change Orders Requested by Owner. Until Substantial Completion of Subproject 2, Owner shall be entitled to a Change Order upon request in accordance with this Section 6.1.

A. If Owner submits to Contractor in writing a duly signed proposed Change Order, Contractor must respond to Owner, to the extent practicable, within thirty (30) Days with a written statement setting forth the effect, if any, which such proposed Change Order would have on the Contract Price, the Project Schedule, the Design Basis, the Payment Schedule, any of the Minimum Acceptance Criteria, Performance Guarantee or Guarantee Conditions, and/or any other obligation or potential liability of Contractor hereunder (collectively or individually, the “Changed Criteria”). The written statement shall be in the form of Schedule D-3, and shall include, to the extent practicable, all information required by Section 6.5B. Owner shall respond to Contractor’s written statement within fourteen (14) Business Days of receipt, responding to Contractor’s statement as to the effects of the proposed Change Order on the Changed Criteria. If it is not practicable for Contractor to provide all of the information required under this Section 6.1A to be submitted with such written statement within such thirty (30) Day period, Contractor shall provide Owner with as much information as practicable as well as a written explanation of the reason additional time is required. To the extent Contractor incurs costs exceeding Thirty Thousand U.S. Dollars (U.S.$30,000) (which costs shall be adequately documented and supported by Contractor) in responding to any one proposed Change Order, Contractor shall be reimbursed for such excess costs in responding to such Change Order within twenty-five (25) Days after Owner’s receipt of Contractor’s invoice therefor; provided that Contractor first gives Owner written notice of the estimate of the cost of such preparation before preparing the response, such estimate is in excess of Thirty Thousand U.S. Dollars (U.S.$30,000), Owner approves in writing the preparation of the response, and such proposed Change Order is not implemented.

B. If the Parties agree on such Changed Criteria of the proposed Change Order (or modify such proposed Change Order so that the Parties agree on such Changed Criteria), the Parties shall execute such Change Order incorporating the Changed Criteria, which shall be in the form of Schedule D-1, and such Change Order shall become binding on the Parties, as part of this Agreement.

C. If the Parties cannot agree on such Changed Criteria of the proposed Change Order within ten (10) Days of Contractor’s receipt of Owner’s response to Contractor’s written statement, or if Owner desires that the proposed changed Work set forth in the proposed Change Order commence immediately without the requirement of a written statement by Contractor as required under Section 6.1A, Owner may (subject to this Section 6.1C), by issuance of a unilateral Change Order in the form attached hereto as

 

- 51 -


Schedule D-2, require Contractor to commence and perform the changed Work specified in the unilateral Change Order on a time and material basis as set forth in Schedule D-4 with the effect of such unilateral Change Order on the Changed Criteria (or if the Parties agree on the effect of such unilateral Change Order for some but not all of the Changed Criteria, the impact of each of the components of the Changed Criteria on which the Parties disagree) to be determined as soon as possible but without prejudice to Contractor’s right to refer any Dispute for resolution in accordance with Article 18. The rates specified in Schedule D-4 are “Unit Rates,” and the Unit Rates shall be used to the extent applicable to the changed Work. The Parties acknowledge and agree that unilateral Change Orders submitted by Owner in accordance with this Section 6.1C shall be limited to additions or modifications to, or deductions from the Work and that Owner shall not have the unilateral right to change, amend or modify any of the other Changed Criteria or the terms of this Agreement. Pending resolution of the Dispute, Contractor shall perform the Work as specified in such unilateral Change Order and Owner shall continue to pay Contractor in accordance with the terms of this Agreement and any previously agreed Change Orders. When Owner and Contractor agree on the effect of such unilateral Change Order on all of the Changed Criteria, such agreement shall be recorded by execution by the Parties of a Change Order in the form attached hereto as Schedule D-1, which shall supersede the unilateral Change Order previously issued and relating to such changed Work. With the exception of any Contract Price adjustment contemplated under Attachment EE, in no event shall Owner be entitled to issue any unilateral Change Order in accordance with this Section 6.1C where such unilateral Change Order (i) would result in an increase equal to or exceeding Twenty Million U.S. Dollars (U.S.$20,000,000), or (ii) in conjunction with other unilateral Change Orders issued by Owner (other than any Contract Price adjustment contemplated under Attachment EE), would in themselves result in an increase equal to or exceeding an amount equal to Sixty Million U.S. Dollars (U.S.$60,000,000); provided that, with respect to unilateral Change Orders requiring Contractor to conduct or develop engineering studies, Contractor shall not be required to incur costs (a) greater than Thirty Thousand U.S. Dollars (U.S.$30,000) for any single Change Order for engineering studies, or (b) in conjunction with other unilateral Change Orders, greater than Three Hundred Thousand (U.S.$300,000) in the aggregate for engineering studies. Notwithstanding the foregoing, in no event shall Owner be entitled to issue any unilateral Change Order directing performance of Work under an LNTP. For the avoidance of doubt, the Parties agree that the adjustments contemplated under Attachment EE do not constitute unilateral Change Orders.

D. In the event of a change in any Applicable Code and Standard which does not constitute a Change in Law, Contractor shall provide written notice to Owner regarding such change. Upon receipt of such notice from Contractor, Owner may submit a proposed Change Order to Contractor in accordance with this Section 6.1 in the event Owner, at its sole option, elects for Contractor to implement such change in Applicable Code and Standard. In the event Owner does not, at its sole option, elect for Contractor to implement such change in Applicable Code and Standard, Contractor shall not be required to perform in accordance with such Applicable Code and Standard. In the event, however, that compliance with such Applicable Code and Standard is mandatory for Contractor to comply with GECP and Owner does not, at its sole option, after receipt of written notice from Contractor regarding same, elect for Contractor to implement such change in Applicable Code and Standard, then Owner waives its rights to claim a breach of GECP with respect to such change in Applicable Code and Standard.

 

- 52 -


6.2 Change Orders Requested by Contractor.

A. Contractor shall have the right to a Change Order in the event of any of the following occurrences:

1. Any Change in Law that adversely affects (i) Contractor’s costs of performance of the Work, (ii) Contractor’s ability to perform the Work in accordance with the Project Schedule or (iii) Contractor’s ability to perform any material obligation under this Agreement;

2. Acts or omissions of any member of Owner Group or any other Person for whom Owner is responsible, including in the case of Owner any failure to perform any obligation under this Agreement, that adversely affects (i) Contractor’s costs of performance of the Work, (ii) Contractor’s ability to perform the Work in accordance with the Project Schedule or (iii) Contractor’s ability to perform any material obligation under this Agreement; provided that Contractor shall not be entitled to a Change Order to the extent that such acts or omissions of Owner are caused, directly or indirectly, by Contractor’s failure to perform its obligations under this Agreement;

3. Force Majeure to the extent allowed under Section 6.8A;

4. Acceleration of the Work directed by Owner pursuant to Section 5.6;

5. Owner’s request for an increase in coverage under the Letter of Credit pursuant to Section 9.2 to cover any increase in the Contract Price as a result of Change Orders to the extent set forth in Section 9.2;

6. To the extent expressly permitted under Sections 3.3C, 3.4A, 3.25, 4.3, 4.8A, 5.6A, 7.1, 8.2A, 8.2C, 11.1A, 11.1B.6, 11.1D, 12.2A, 16.3, 16.4 and Attachment EE;

7. Delay beyond the permissible times specified in Section 1A.9(g)(ii) or Section 1A.11(ii) of Attachment O for the delivery by Owner to Contractor of builder’s risk or marine cargo insurance proceeds received by the Collateral Agent (or if no Collateral Agent, a mutually agreed upon escrow agent) shall relieve Contractor of any obligation under this Agreement to effect repairs or other restoration of the Work affected by the insured occurrence for any costs of repairs or restoration exceeding the sum of the deductible under such insurance and any amounts previously paid to Contractor under such insurance and shall entitle Contractor to a Change Order adjusting the Contract Price and Project Schedule, but only to the extent such delay adversely affects (i) Contractor’s cost of performance of the Work, (ii) Contractor’s ability to perform the Work in accordance with the Project Schedule, or (iii) or Contractor’s ability to perform any

 

- 53 -


material obligation under this Agreement; provided that, notwithstanding the foregoing, in no event shall this Section 6.2A.7 in any way relieve Contractor from any obligation to perform any work necessary to maintain the builder’s risk and marine cargo insurance in full force and effect;

8. Suspension in Work ordered by Owner pursuant to Section 16.3;

9. Subsurface Soil Conditions to the extent allowed under Section 2.5B.2;

10. Discovery of Hazardous Materials (including Pre-Existing Contamination) at the Site or on the Off-Site Rights of Way and Easements for which Owner is responsible under Section 4.7 that adversely affects (i) Contractor’s costs of performance of the Work, (ii) Contractor’s ability to perform the Work in accordance with the Project Schedule or (iii) Contractor’s ability to perform any material obligation under this Agreement;

11. Owner’s issuance of NTP in accordance with Section 5.2B after July 1, 2014, but only to the extent that such delay adversely affects (i) Contractor’s costs of performance of the Work, (ii) Contractor’s ability to perform the Work in accordance with the Project Schedule or (iii) Contractor’s ability to perform any material obligation under this Agreement;

12. Performance of the Work under the Marine and Dredging Provisional Sum is beyond the quantities or hours for such provisional sum item as described in Attachment EE, and such overages result in a delay in the Work, then Contractor will be entitled to a Change Order extending the Target Substantial Completion Dates and Guaranteed Substantial Completion Dates to the extent permitted in Section 6.9. Notwithstanding the foregoing, Owner may, at any time, instruct Contractor to take commercially and technically reasonable efforts (through additional labor, equipment, shifts, etc.) to overcome the delay, in which case Contractor shall not be entitled to a Change Order adjusting the applicable Target Substantial Completion Dates and Guaranteed Substantial Completion Dates to the extent such efforts mitigate or eliminate such delay; and,

13. Any Landowner agreement which is executed and provided to Contractor after the Contract Date (including but not limited to such Landowner agreements that are identified in Attachment Y), but only to the extent that such agreement adversely affects (i) Contractor’s costs of performance of the Work, (ii) Contractor’s ability to perform the Work in accordance with the Project Schedule or (iii) Contractor’s ability to perform any material obligation under this Agreement.

B. Should Contractor desire to request a Change Order under this Section 6.2, Contractor shall, pursuant to Section 6.5, notify Owner in writing and issue to Owner, at Contractor’s expense, a request for a proposed Change Order in the form attached hereto as Schedule D-3, a detailed explanation of the proposed change and Contractor’s reasons for proposing the change, documentation necessary to verify the effects of the change on the

 

- 54 -


Changed Criteria, and all other information required by Section 6.5. Any adjustments to the Contract Price shall (unless otherwise agreed) be requested on a fixed price basis and shall be based on the requirements in Schedule D-4 and the Unit Rates specified therein to the extent applicable to the Change Order.

C. Owner shall respond to Contractor’s request for a Change Order within thirty (30) Days of receipt, stating (i) whether Owner agrees that Contractor is entitled to a Change Order and (ii) the extent, if any, to which Owner agrees with Contractor’s statement regarding the effect of the proposed Change Order on the Changed Criteria, including any adjustment to the Contract Price and the estimated costs for each item making up the adjustment to the Contract Price. If Owner agrees that a Change Order is necessary and agrees with Contractor’s statement regarding the effect of the proposed Change Order on the Changed Criteria, including mutual agreement on the costs, then Owner shall issue such Change Order, which shall be in the form of Schedule D-1, and such Change Order shall become binding on the Parties as part of this Agreement upon execution thereof by the Parties. Owner shall be entitled to decline a Change Order with respect to any request by Contractor for a Change Order if the Change Order request, when submitted, is not adequately documented and supported by Contractor as required under this Agreement.

D. If the Parties agree that Contractor is entitled to a Change Order but cannot agree on the effect of the proposed Change Order on the Changed Criteria within thirty (30) Days of Owner’s receipt of Contractor’s written notice and proposed Change Order and all other required information, or if Owner desires that the proposed changed Work set forth in the proposed Change Order commence immediately, the rights, obligations and procedures set forth in Section 6.1C are applicable.

E. If the Parties cannot agree upon whether Contractor is entitled to a Change Order within thirty (30) Business Days of Owner’s receipt of Contractor’s written notice and proposed Change Order, then the Dispute shall be resolved as provided in Article 18. Pending resolution of the Dispute, Contractor shall continue to perform the Work required under this Agreement, and Owner shall continue to pay Contractor in accordance with the terms of this Agreement, any Change Orders and any previously agreed or unilateral Change Orders.

6.3 Contract Price Adjustment; Contractor Documentation. If a Change Order is executed on a time and material basis pursuant to Section 6.1C or 6.2D, then the Contract Price shall be adjusted as set forth in Schedule D-4. Contractor shall use reasonable efforts to minimize such costs (consistent with the requirements of this Agreement).

6.4 Change Orders Act as Accord and Satisfaction. Unless otherwise expressly stated in the Change Order, Change Orders agreed pursuant to Section 6.1B or 6.2C by the Parties shall constitute a full and final settlement and accord and satisfaction of all effects of the change reflected in the subject Change Order and shall be deemed to compensate Contractor fully for such change. Accordingly, unless otherwise expressly stated in such Change Order, Contractor expressly waives and releases any and all right to make a claim or demand or to take any action or proceeding against Owner for any consequences arising out of, relating to or resulting from such

 

- 55 -


change reflected in the subject Change Order. If Contractor expressly reserves its right in a Change Order to maintain a claim arising out of the change in the Change Order, then Contractor shall provide Owner with notice every ninety (90) Days setting forth the then known impact of the reserved claim in the Change Order.

6.5 Timing Requirements for Notifications and Change Order Requests by Contractor. Should Contractor desire to seek an adjustment to the Contract Price, the Project Schedule, the Payment Schedule, any of the Minimum Acceptance Criteria or Performance Guarantee or any other modification to any other obligation of Contractor under this Agreement for any circumstance that Contractor has reason to believe may give rise to a right to request the issuance of a Change Order, Contractor shall, with respect to each such circumstance:

A. notify Owner in writing of the existence of such circumstance within twenty (20) Days of the date that Contractor knew of the first occurrence or beginning of such circumstance; provided, however, if such circumstance is an emergency, notice shall be given as soon as reasonably practicable. In such notice, Contractor shall state in detail all known and presumed facts upon which its claim is based, including the character, duration and extent of such circumstance, the date Contractor first knew of such circumstance, any activities impacted by such circumstance, a good faith estimate of the cost (which such costs shall be adequately documented and supported by Contractor) and time consequences of such circumstance (including showing a good faith estimate of the impact of such circumstance, if any, on the critical path of the CPM Schedule) and any other details or information that are expressly required under this Agreement. Contractor shall only be required to comply with the notice requirements of this Section 6.5A once for continuing circumstances, provided that the notice expressly states that the circumstance is continuing and includes Contractor’s best estimate of the time and cost consequences of such circumstance; and

B. submit to Owner a request for a Change Order as soon as reasonably practicable after giving Owner written notice but in no event later than forty-five (45) Days after the completion of each such circumstance, together with a written statement with all information currently available (i) detailing why Contractor believes that a Change Order should be issued, plus all documentation reasonably requested by Owner, including information and details expressly required under this Agreement (including the information required by Schedule D-4, applicable detailed estimates and cost records and a graphic demonstration using the CPM Schedule and Monthly Progress Reports showing Contractor’s entitlement to a time extension to the Project Schedule pursuant to the terms of this Agreement); and (ii) setting forth the effect, if any, which such proposed Change Order has or would have for the Work on any of the Changed Criteria. Contractor shall promptly supplement its request for Change Order with additional information as such additional information (if any) becomes available.

If Contractor fails to provide the notice as required under this Section 6.5, and if Owner demonstrates that it has been prejudiced on account of such failure to provide notice, then, to the extent that Owner is so prejudiced, Contractor waives its right for, and releases Owner from and against any claims for, adjustments in the Contract Price, the Project Schedule, Payment Schedule, any Work, any of the Minimum Acceptance Criteria or

 

- 56 -


Performance Guarantee or any other modification to any other obligation of Contractor under this Agreement. Oral notice, shortness of time, or Owner’s actual knowledge of a particular circumstance shall not waive, satisfy, discharge or otherwise excuse Contractor’s strict compliance with this Section 6.5. Contractor shall have the burden of proof with respect to any claim made by it.

6.6 Evidence of Funds. With the exception of any Contract Price adjustment contemplated under Attachment EE, Contractor shall not be obligated to proceed with any Change Order that, alone or in conjunction with other Change Orders, would result in an increase in the Contract Price, as of the Contract Date, in excess of Fifty Million U.S. Dollars (U.S.$50,000,000) and thereafter would result in an increase in the Contract Price in excess of additional Five Million U.S. Dollars (U.S.$5,000,000) increments, unless Owner furnishes, to Contractor’s reasonable satisfaction, documentation which demonstrates either that Owner has (i) sufficient funds to pay for such Change Order, or (ii) obtained financing from one or more Lenders in sufficient funds to pay for such Change Order.

6.7 Adjustment Only Through Change Order. Unless otherwise provided in this Agreement, no change in the requirements of this Agreement, whether an addition to, deletion from, suspension of or modification to this Agreement, including any Work, shall be the basis for an adjustment for any change in the Contract Price, the Project Schedule, Payment Schedule, any Work, any of the Minimum Acceptance Criteria or Performance Guarantee or any other obligations of Contractor or right of Owner under this Agreement unless and until such addition, deletion, suspension or modification has been authorized by a Change Order executed and issued in accordance with and in strict compliance with the requirements of this Section 6.7. Contractor shall not perform any change in the Work unless and until such change is authorized pursuant to this Section 6.7, and should Contractor perform or claim to perform any changes in the Work prior to authorization by Change Order, all such costs and expenses incurred by Contractor shall be for Contractor’s account. No course of conduct or dealings between the Parties, nor implied acceptance of additions, deletions, suspensions or modifications to this Agreement, including any Work, and no claim that Owner has been unjustly enriched by any such addition, deletion, suspension or modification to this Agreement, whether or not there is in fact any such unjust enrichment, shall be the basis for any claim for an adjustment in the Contract Price, the Project Schedule, the Payment Schedule, any Work, any of the Minimum Acceptance Criteria or Performance Guarantee or any other obligations of Contractor under this Agreement.

6.8 Force Majeure.

A. Contractor Relief. If the commencement, prosecution or completion of the Work is prevented or delayed by Force Majeure (including the effects of such Force Majeure), then Contractor shall be entitled to an extension to the Target Substantial Completion Dates and/or Guaranteed Substantial Completion Dates to the extent, if any, permitted under Section 6.8A.1 and an adjustment to the Contract Price to the extent, if any, permitted under Section 6.8A.2, provided that Contractor has complied with the notice and Change Order requirements in Section 6.5 and the mitigation requirements in Section 6.11. In addition, if Force Majeure (including the effects of such Force Majeure) prevents Contractor’s performance with respect to any portion of the Work, Contractor shall, subject to Section 6.11, be relieved from performance of such portion of the Work for the time

 

- 57 -


period that such Force Majeure, or the effects of such Force Majeure, are continuing. All time extensions to the Project Schedule and adjustments to the Contract Price for such delays or preventions shall be by Change Order implemented and documented as required under this Article 6.

1. Time Extension. Contractor shall be entitled to an extension to the applicable Target Substantial Completion Dates and/or Guaranteed Substantial Completion Dates for delay or prevention that meets the requirements of this Section 6.8A, if and to the extent such delay or prevention causes a delay in the critical path of the Work. Contractor shall demonstrate to Owner its entitlement to relief under this Section by providing to Owner an updated CPM Schedule using Primavera Project Planner in its native electronic format with actual durations entered for all activities on the critical path and re-forecasted clearly to indicate Contractor’s entitlement to a time extension under this Section 6.8A. Notwithstanding the foregoing, any adjustment to the Target Substantial Completion Date(s) shall extend the Guaranteed Substantial Completion Dates in the same amounts so that the Guaranteed Substantial Completion Date for Subproject 1 is always ninety (90) Days after the Target Substantial Completion Date for Subproject 1 and the Guaranteed Substantial Completion Date for Subproject 2 is always ninety one (91) Days after the Target Substantial Completion Date for Subproject 2, regardless of whether the delay impacts only the critical path of the Work to achieve the applicable Target Substantial Completion Date and not the applicable Guaranteed Substantial Completion Date.

2. Compensation. Contractor shall be entitled to an adjustment to the Contract Price for any delay or prevention that meets the requirements of this Section 6.8A, if such delay or prevention, alone or in conjunction with other Force Majeure Events, continues for a period of at least thirty (30) Days, in the aggregate. Any such Contract Price adjustment shall be for reasonable costs necessarily incurred by Contractor for delay or prevention occurring after the expiration of such thirty (30) Day period; provided that Owner’s total liability under this Agreement for any such Contract Price adjustment(s) for all such events occurring during the term of this Agreement shall not exceed Fifty Million U.S. Dollars (U.S.$50,000,000) in the aggregate.

B. Owner Relief. Subject to Section 6.8C, Owner’s obligations under this Agreement shall be suspended to the extent that performance of such obligations is delayed or prevented by Force Majeure, but without prejudice to Contractor’s entitlement to a Change Order to the extent set forth in Section 6.2A.

C. Payment Obligations. No obligation of a Party to pay moneys under or pursuant to this Agreement shall be excused by reason of Force Majeure.

6.9 Extensions of Time and Adjustment of Compensation. With respect to any of the circumstances set forth in Section 6.2A which cause delay of the commencement, prosecution or completion of the Work for which Contractor is entitled to a Change Order (with the exception of delay resulting from an event of Force Majeure, which shall be governed in accordance with

 

- 58 -


Section 6.8), Contractor shall be entitled to an extension to the applicable Target Substantial Completion Dates and Guaranteed Substantial Completion Dates if and to the extent: (i) such delay causes a delay in the critical path of the Work; (ii) Contractor has complied with the notice and Change Order requirements in Section 6.5 and the mitigation requirements of Section 6.11; and (iii) such delay is not attributable to Contractor or any of its Subcontractors or Sub-subcontractors. Contractor shall demonstrate to Owner its entitlement to relief under this Section by providing to Owner an updated CPM Schedule using Primavera Project Planner in its native electronic format with actual durations entered for all activities on the critical path and re-forecasted clearly to indicate Contractor’s entitlement to a time extension under this Section 6.9. Notwithstanding the foregoing, any adjustment to the Target Substantial Completion Date(s) shall extend the Guaranteed Substantial Completion Dates in the same amounts so that the Guaranteed Substantial Completion Date for Subproject 1 is always ninety (90) Days after the Target Substantial Completion Date for Subproject 1 and the Guaranteed Substantial Completion Date for Subproject 2 is always ninety one (91) Days after the Target Substantial Completion Date for Subproject 2, regardless of whether the delay impacts only the critical path of the Work to achieve the applicable Target Substantial Completion Date and not the applicable Guaranteed Substantial Completion Date. Contractor shall be entitled to an adjustment to the Contract Price for reasonable, additional costs incurred by Contractor for delay or in mitigation or avoidance of a delay which would otherwise meet such requirements of this Section 6.9. For the avoidance of doubt, this Section 6.9 shall govern the determination of any right of Contractor to an adjustment to the applicable Target Substantial Completion Dates and Guaranteed Substantial Completion Dates for delay unless such delay is caused by Force Majeure.

6.10 Delay. For the purposes of this Agreement, the term “delay” shall include hindrances, disruptions or obstructions, or any other similar term in the industry and the resulting impact from such hindrances, disruptions or obstructions, including inefficiency, impact, ripple or lost production.

6.11 Contractor Obligation to Mitigate Delay. Contractor shall not be entitled to any adjustment to the Project Schedule or adjustment to the Contract Price for any portion of delay to the extent Contractor could have taken, but failed to take, reasonable actions to mitigate such delay.

6.12 Separated Contract Price Adjustments in Change Orders. Any adjustment by Change Order to the Contract Price shall be made on a fixed price separated basis as provided in 34 Tex. Admin. Code Section 3.291(a)(13) to specify the applicable adjustments to the Aggregate Equipment Price and Aggregate Labor and Skills Price in accordance with Article 7.

ARTICLE 7

CONTRACT PRICE AND PAYMENTS TO CONTRACTOR

7.1 Contract Price. As compensation in full to Contractor for the full and complete performance of the Work and all of Contractor’s other obligations under this Agreement, Owner shall pay and Contractor shall accept Seven Billion Eighty Million Eight Hundred Thirty Thousand U.S. Dollars (U.S.$7,080,830,000) (the “Contract Price”), which is separated in Section 7.1A and Section 7.1B below. The Contract Price is subject to adjustment only by Change Order as provided in Article 6, and includes all Taxes payable by Contractor and its Subcontractors

 

- 59 -


and Sub-subcontractors in connection with the Work, the Insurance Provisional Sum, the Operating Spare Part Provisional Sum, the Marine & Dredging Provisional Sum, the 9% Nickel and Cryogenic-Rebar Provisional Sum, the Currency Provisional Sum, and the Fuel Provisional Sum, and all costs, charges, and expenses of whatever nature necessary for performance of the Work. For the avoidance of doubt, the Contract Price does not include Texas Sales and Use Taxes on Equipment, but does include Texas Sales and Use Taxes on any purchase, lease, or rental of Construction Equipment or any purchase of consumable items (as defined in 34 Tex. Admin. Code Section 3.291(a)(2)). The Contract Price is separated, in accordance with the definition of separated contract as defined in 34 Tex. Admin. Code Rule §3.291(a)(13), as follows:

A. Aggregate Equipment Price. *** U.S. Dollars (U.S.$***) for the Equipment for the Project (“Aggregate Equipment Price”). The Aggregate Equipment Price includes the cost of the Equipment, including markup, overhead, profit and freight, but excluding labor.

B. Aggregate Labor and Skills Price. *** U.S. Dollars (U.S.$***) for the Work in this Agreement other than for Equipment (the “Aggregate Labor and Skills Price”), which such Work includes all labor, engineering, design, services, installation, consumables, Construction Equipment, freight, overhead, profit and all other items of whatever nature applicable to the Work.

C. Aggregate Provisional Sum. The Contract Price, which is separated in Section 7.1A and Section 7.1B above, includes an aggregate amount of Nine Hundred Fifty Million Five Hundred Sixty One Thousand Three Hundred Fifty One U.S. Dollars (U.S.$950,561,351) for the Provisional Sums (the “Aggregate Provisional Sum”). The Aggregate Provisional Sum is separated into (i) Aggregate Equipment Prices (the total amount of the Aggregate Equipment Price component of the Aggregate Provisional Sum equaling *** U.S. Dollars (U.S.$***)) and (ii) all other Work (the total amount of such other Work component of the Aggregate Provisional Sum equaling *** U.S. Dollars (US$***)). The scope and values of each Provisional Sum comprising the Aggregate Provisional Sum amount are included in Attachment EE, together with the breakdown between the Aggregate Equipment Prices and all other Work.

7.2 Interim Payments.

A. Mobilization Payment. On or before and as a condition precedent to the issuance of the Notice to Proceed in accordance with Section 5.2B and upon Owner’s receipt of an Invoice from Contractor, Owner shall pay Contractor a fixed amount equal to fifteen percent (15%) of the Contract Price (the “Mobilization Payment”).

 

  1. The Mobilization Payment is separated as follows:

a. *** U.S. Dollars (U.S.$***) for those components of the Aggregate Equipment Price contained in the Mobilization Payment; and,

 

- 60 -


b. *** U.S. Dollars (U.S.$***) for those components of the Aggregate Labor and Skills Price contained in the Mobilization Payment.

B. Payments. Subject to Section 5.2A, with the exception of the Mobilization Payment, payments shall be made by Owner to Contractor in accordance with the Payment Schedule set forth in Attachment C (as may be amended by Change Order), which allocates (i) seventy percent (70%) of the Aggregate Labor and Skills Price to be paid based on completion of the Milestones set forth in Attachment C, Schedule C-1, (ii) thirty percent (30%) of the Aggregate Labor and Skills Price to be paid based on the Monthly payments set forth in Attachment C, Schedule C-2 (the “Monthly Payments”), as adjusted pursuant to Section 7.2F; and (iii) one hundred percent (100%) of the Aggregate Equipment Price to be paid based on completion of the Milestones set forth in Attachment C, Schedule C-3. Owner shall also make payments to Contractor for Work performed in accordance with Change Orders to be paid on a time and material basis and any unilateral Change Orders issued in accordance with Section 6.1C or 6.2D. Each payment shall be subject to Owner’s right to withhold payments under this Agreement as set forth in Section 7.5 and Section 20.3. Payments shall be made in U.S. Dollars to an account designated by Contractor. The Payment Schedule, including Milestones and Monthly Payments, shall be amended only by Change Order pursuant to this Agreement.

C. Invoices. On the first (1st) Day of each Month (“Month N”), Contractor shall submit to Owner an Invoice, supported by information and documentation required under this Agreement, for the following:

1. amounts for Milestones Contractor plans to fully complete during the next Month (“Month N+1”), as supported by the sixty (60) Day look-ahead schedule submitted with such Invoice. Contractor shall not include any amounts for any Milestones that will only be partially completed at the end of Month N+1;

2. plus the Monthly Payment for Month N+1;

3. plus (i) allowable costs and expenses Contractor plans to incur during Month N+1 for Work performed in accordance with Change Orders to be paid on a time and material basis, and (ii) allowable costs and expenses Contractor plans to incur during Month N+1 for Work covered by a Provisional Sum, all as supported by the sixty (60) Day look-ahead schedule and other information required herein;

4. less amounts for any Milestones Invoiced in Month N-2 that Contractor did not complete during Month N-1; and

5. less amounts Invoiced in Month N-3 for (i) time and material Change Orders, and (ii) Provisional Sums that Contractor did not incur in Month N-2.

 

- 61 -


If Owner pays Contractor for the completion of a Milestone in Month N+1, but Contractor does not complete such Milestone during such Month N+1, and Owner exercises its right to withhold payment in accordance with Section 7.2 for such uncompleted Milestone, Contractor shall not be entitled to Invoice for the amount withheld by Owner for such Milestone until the Month after Contractor completes such Milestone.

Contractor shall include with such Invoice a sixty (60) Day look-ahead schedule, prepared by Contractor, for such Month N and Month N+1 that shows, among other requirements, Contractor’s schedule for (i) completing such Milestones in Month N+1 and (ii) incurring such allowable costs and expenses for time and materials Change Orders and Provisional Sums during such Month N+1. All Invoices issued to Owner hereunder shall separately state charges for the Aggregate Equipment Price and the Aggregate Labor and Skills Price. All Invoices, other than the Invoice for final payment under this Agreement, shall be in the form of Schedule I-1.

D. Interim Lien Waivers. As a condition of payment, each Invoice received by Owner prior to Final Completion shall be accompanied by a fully executed (i) Interim Conditional Lien Waiver from Contractor in the form of Schedule K-1 for all Work performed through the end of the Month preceding the Month of the date of the Invoice (i.e., Month N-1) and (ii) Interim Unconditional Lien Waiver from Contractor in the form of Schedule K-2 for all Work performed through the end of the Month preceding the Month of the date of the last Invoice submitted by Contractor of the Invoice (i.e., Month N-2). In addition, as a condition of payment, Contractor shall also provide, subject to Section 7.2D.1, (i) fully executed Interim Conditional Lien Waivers in the form of Schedule K-3 from each Lien Waiver Subcontractor whose invoice is received by Contractor in the Month covered by Contractor’s Invoice (with each such Interim Conditional Lien Waiver covering all Work performed by each such Lien Waiver Subcontractor through the end of the Month preceding the Month of the date of such Lien Waiver Subcontractor’s invoice (i.e., Month N-1)), together with fully executed Interim Unconditional Lien Waivers from each Lien Waiver Subcontractor for all Work performed by such Lien Waiver Subcontractor through the end of the Month preceding the Month of the date of each such Lien Waiver Subcontractor’s preceding invoice (i.e., Month N-2); (ii) fully executed Interim Conditional Lien Waivers in substantially the form of Schedule K-3 from each Major Sub-subcontractor whose invoice is received by Contractor in the Month covered by Contractor’s Invoice (with each such Interim Conditional Lien Waiver covering all Work performed by each such Major Sub-subcontractor through the end of the Month preceding the Month of the date of such Major Sub-subcontractor’s invoice (i.e., Month N-1)), together with fully executed Interim Unconditional Lien Waivers from each Major Sub-subcontractor in substantially the form set forth in Schedule K-4 for all Work performed by such Major Sub-subcontractor through the end of the Month preceding the Month of the date of each such Major Sub-subcontractor’s preceding invoice (i.e., Month N-2); provided that if Contractor fails to provide to Owner an Interim Conditional Lien Waiver or Interim Unconditional Lien Waiver from a Lien Waiver Subcontractor or Major Sub-subcontractor as required in this Section 7.2D, Owner’s right to withhold payment for the failure to provide any such Interim Conditional Lien Waiver or Interim Unconditional Lien Waiver shall be limited to the amount that should have been reflected in such Interim Conditional Lien Waiver or Interim Unconditional Lien Waiver, provided further, if Contractor fails to provide an Interim Unconditional Lien Waiver from a Lien Waiver Subcontractor or Major Sub-subcontractor but Contractor provides evidence to Owner that

 

- 62 -


such Subcontractor or Sub-subcontractor has been paid (as shown in a check that has been properly endorsed and has been paid by the bank on which it is drawn, or evidence the wire transfer payment is received by such Subcontractor or Sub-subcontractor), then Owner shall not withhold payment of such amount. In addition, if and to the extent that Contractor obtains any lien or claim waivers from any Subcontractors or Sub-subcontractors which are not a Lien Waiver Subcontractor or Major Sub-subcontractor, Contractor shall provide to Owner such lien or claim waivers with the next Invoice following Contractor’s receipt of each such lien or claim waiver. Notwithstanding anything to the contrary in this Section 7.2D and Section 7.2D.1, Contractor shall not be required to deliver a Contractor’s Interim Unconditional Lien Waiver until Owner has paid the amounts requested in the applicable Invoice for which such Contractor’s Interim Unconditional Lien Waiver relates.

1. For Bulk Order Subcontractors only, as a condition of payment, every third (3rd) Invoice received by Owner prior to Final Completion shall be accompanied by fully executed Interim Unconditional Lien Waivers from each Bulk Order Subcontractor in substantially the form set forth in Schedule K-4 for all Work performed by such Bulk Order Subcontractor through the end of the period ending three (3) Months prior to such Invoice (i.e. Month N-3); provided that if Contractor fails to provide to Owner an Interim Unconditional Lien Waiver from a Bulk Order Subcontractor as required in this Section 7.2D.1, Owner’s right to withhold payment for the failure to provide such Interim Unconditional Lien Waiver shall be limited to the amount that should have been reflected in such Interim Unconditional Lien Waiver; provided further, if Contractor fails to provide an Interim Unconditional Lien Waiver from a Bulk Order Subcontractor but Contractor provides an Interim Conditional Lien Waiver (in substantially the form set forth in Schedule K-3 for all Work performed by such Bulk Order Subcontractor) and evidence to Owner that such Subcontractor has been paid (as shown in a check that has been properly endorsed and has been paid by the bank on which it is drawn, or evidence the wire transfer payment is received by such Subcontractor), then Owner shall not withhold payment of such amount. Except as provided in the preceding sentence, Bulk Order Subcontractors are not required to provide Interim Conditional Lien Waivers. For the purposes of Interim Conditional Lien Waivers and Interim Unconditional Lien Waivers, Bulk Order Subcontractors shall not be considered a Lien Waiver Subcontractor.

E. Review and Payment. Each Invoice shall be reviewed by Owner and, upon Owner’s reasonable request, Contractor shall furnish such supporting documentation and certificates and provide such further information as may be reasonably requested by Owner. Within thirty (30) Days after receipt of any Invoice, Owner shall provide notice to Contractor of any disputed amount set forth in such Invoice, including an explanation of why such amount is disputed. Unless so disputed by Owner, each Invoice (less any withholdings allowed under this Agreement) shall be due and paid no later than thirty (30) Days after it, and all applicable documentation required under this Agreement, including Attachment I, is received by Owner. If an Invoice is disputed by Owner, then payment shall be made within the thirty (30) Day period for all undisputed amounts and the dispute shall be resolved pursuant to Article 18. Payment on disputed amounts shall be made as soon as such dispute is resolved. Without limiting the foregoing, Owner shall not be required to pay, and shall be entitled to withhold payment from Contractor for any amounts otherwise due Contractor, for:

 

- 63 -


1. any amounts for (i) Milestones Invoiced in Month N-2 that Contractor did not complete during Month N-1, (ii) Milestones Invoiced in Month N-1 that Contractor did not complete in Month N, (iii) Milestones Invoiced in Month N that Contractor did not complete prior to payment by Owner or is not projected (in accordance with the current sixty (60) Day look-ahead schedule) to complete in Month N+1;

2. any amounts Invoiced in Month N-3 for (i) time and material Change Orders, and (ii) Provisional Sums that Contractor did not incur in Month N-2; and

3. any amounts Invoiced in Month N for (i) time and material Change Orders, and (ii) Provisional Sums that Contractor has not incurred prior to payment by Owner or is not projected to incur (in accordance with the current sixty (60) Day look-ahead schedule and other required documentation) in Month N+1.

F. Reconciliation of Monthly Payments. If at any time during the course of the Project: (i) the Monthly Progress Reports show that any activity on the critical path is ninety (90) Days or more behind schedule; and (ii) Contractor or any of its Subcontractors or Sub-subcontractors are not excused under the terms of this Agreement for such delay, then the date for payment of the last Monthly Payment as shown in the Payment Schedule shall be revised to a later date according to the number of Days that the activity is behind schedule and the remaining Monthly Payments not yet disbursed to Contractor under this Agreement shall be readjusted and spread out proportionately through the remainder of the period, ending upon the revised date for payment of the last Monthly Payment; provided that, in the event that Contractor recovers the delay such that the activity in question ceases to be behind schedule, the Monthly Payments shall be recalculated so that such Monthly Payments shall be due in accordance with the original Payment Schedule as of the Contract Date.

7.3 Final Completion and Final Payment. Upon Final Completion, Contractor shall, in addition to any other requirements in this Agreement for achieving Final Completion, including those requirements set forth in Section 1.1 for the definition of Final Completion, submit a fully executed final Invoice in the form attached hereto as Schedule I-2, along with (i) a statement summarizing and reconciling all previous Invoices, payments and Change Orders; (ii) an affidavit that all payrolls, Taxes, bills for Equipment, and any other indebtedness connected with the Work for which Contractor and its Subcontractors and Sub-subcontractors are liable (excluding Corrective Work) have been paid; (iii) fully executed Final Conditional Lien and Claim Waivers from Contractor in the form of Schedule K-5, Exhibits K-5-1 and K-5-2; (iv) fully executed Final Conditional Lien and Claim Waivers from each Lien Waiver Subcontractor in the form set forth in Schedule K-7, Exhibits K-7-1 and K-7-2; and (v) fully executed Final Conditional Lien and Claim Waivers from each Major Sub-subcontractor in substantially the form set forth in Schedule K-7, Exhibits K-7-1 and K-7-2. No later than twenty-five (25) Days after receipt by Owner of such final Invoice and all reasonably requested documentation and achieving Final Completion, Owner

 

- 64 -


shall, subject to its rights to withhold payment under this Agreement, pay Contractor the balance of the Contract Price, provided that Contractor provides to Owner the following: (x) at the time of such payment, fully executed Final Unconditional Lien and Claim Waiver from Contractor in the form of Schedule K-6, Exhibits K-6-1 and K-6-2; and (y) as soon as reasonably possible after the time of such payment, fully executed Final Unconditional Lien and Claim Waivers from each Lien Waiver Subcontractor and Major Sub-subcontractor in substantially the form of Schedule K-8, Exhibits K-8-1 and K-8-2; provided that the Parties agree that “substantially” means that the same protections shall be provided to Owner as set forth in Schedule K-8, Exhibits K-8-1 and K-8-2. In addition, if and to the extent that Contractor obtains any final lien or claim waivers from any Subcontractors or Sub-subcontractors which are not a Lien Waiver Subcontractor or Major Sub-subcontractor, Contractor shall provide to Owner such final lien or claim waivers following Contractor’s receipt of each such lien or claim waiver.

7.4 Payments Not Acceptance of Work. No payment made hereunder by Owner shall be considered as approval or acceptance of any Work by Owner or a waiver of any claim or right Owner may have hereunder. All payments shall be subject to correction in subsequent payments.

7.5 Payments Withheld. In addition to disputed amounts set forth in an Invoice, Owner may, in addition to any other rights under this Agreement, and upon giving Contractor ten (10) Days’ prior written notice referenced in Section 7.8, withhold payment on an Invoice or a portion thereof, or collect on the Letter of Credit, in an amount and to such extent as may be reasonably necessary to protect Owner from loss due to:

A. Defective Work that Contractor is required to correct under Section 12.2A or 12.3, unless Contractor has, within fourteen (14) Days of a separate written notice given prior to the ten (10) Day notice referenced in Section 7.8, either (i) remedied, or commenced to remedy, as applicable, such Defective Work in accordance with Section 12.2A or 12.3 or (ii) if such Defective Work cannot be remedied in accordance with Section 12.2A or 12.3 by the exercise of reasonable diligence within such fourteen (14) Day period, provide Owner with a written plan, reasonably acceptable to Owner, to remedy such Defective Work and commenced the remedy of such Defective Work;

B. liens or other encumbrances on all or a portion of the Site, the Work or the Project, which are filed by any Subcontractor, any Sub-subcontractor or any other Person acting through or under any of them unless Contractor has, within fourteen (14) Days of a separate written notice given prior to the ten (10) Day notice referenced in Section 7.8, taken any of the following actions: (i) paid, satisfied or discharged the applicable liability, (ii) removed the lien or other encumbrance, or (iii) provided Owner with a letter of credit (in addition to the Letter of Credit required under Section 9.2) or bond reasonably satisfactory to Owner and Lender in the applicable amount;

C. any material breach by Contractor of any term or provision of this Agreement; unless Contractor has, within fourteen (14) Days of a separate written notice given prior to the ten (10) Day notice referenced in Section 7.8, either (i) cured such breach or (ii) if such breach cannot be cured by the exercise of reasonable diligence within such fourteen (14) Day period, Contractor has commenced corrective action and is diligently exercising all commercially practicable efforts to cure such breach;

 

- 65 -


D. the assessment of any fines or penalties against Owner as a result of Contractor’s failure to comply with Applicable Law or Applicable Codes and Standards;

E. amounts paid by Owner to Contractor in a preceding Month incorrectly (in which case, Section 7.9 shall apply);

F. Liquidated Damages which Contractor owes under the terms of this Agreement; or

G. any other costs or liabilities which Owner has incurred for which Contractor is responsible under this Agreement.

Owner shall pay Contractor the amount withheld or collected on the Letter of Credit as soon as practicable, but in no event later than fifteen (15) Business Days after Owner’s receipt of an Invoice from Contractor, if Contractor, as appropriate, (i) pays, satisfies or discharges the applicable liability and provides Owner with reasonable evidence of such payment, satisfaction or discharge, (ii) removes the lien or other encumbrance, (iii) cures the breach in question, (iv) remedies the Defective Work in question, or (v) provides Owner with a letter of credit reasonably satisfactory to Owner and Lender in the amount of the withheld payment.

7.6 Interest on Late Payments and Improper Collection. Any amounts due but not paid hereunder, any amounts withheld from Contractor but later finally determined in accordance with the dispute resolution procedure set forth in Article 18 to have been improperly withheld, or any amounts collected by Owner on the Letter of Credit but later finally determined in accordance with the dispute resolution procedure set forth in Article 18 to have been improperly collected, shall bear interest at the lesser of (i) an annual rate equal to the prime rate set from time to time by Citibank, N.A. plus three percent (3%), or (ii) the maximum rate permitted under Applicable Law.

7.7 Offset. Owner may, in accordance with Section 7.8B, offset any amount due and payable from Contractor to Owner under this Agreement against any amount due and payable to Contractor hereunder.

7.8 Procedure for Withholding, Offset and Collection on the Letter of Credit. Except as provided in Sections 16.1B and 20.3C (in which case, Owner shall follow the procedure set forth in Section 16.1B or Section 20.3C, as applicable), Owner shall:

A. prior to exercising its right to withhold payment in accordance with this Agreement, provide Contractor with ten (10) Days’ written notice stating Owner’s intent to withhold and the amount to be withheld;

B. prior to exercising its right to offset in accordance with this Agreement, provide Contractor with ten (10) Days’ prior written notice stating Owner’s intent to offset and the amount to be offset; and

 

- 66 -


C. prior to exercising its right to collect on the Letter of Credit in accordance with this Agreement, provide Contractor with ten (10) Days’ written notice (i) specifying the nature of Contractor’s breach and the liabilities, damages, losses, costs or expenses owed to Owner; (ii) stating Owner’s intent to draw against the Letter of Credit; and (iii) specifying the amount to be drawn.

Notwithstanding the foregoing, should any payment under any Invoice become due before the expiration of any notice period specified in this Section 7.8, Owner shall nevertheless be entitled to withhold from such Invoice amounts equal to the amounts specified in Owner’s notice, but Owner shall promptly pay such withheld amounts to Contractor if Contractor cures the cause for such withholding or offset.

7.9 Payment Error. If an error is made in connection with a payment, and such payment is an overpayment, the Party receiving the payment in error shall immediately refund the mistaken amount to the paying Party. Without limiting the preceding sentence, and in addition to any other remedy available to Owner under this Agreement, if Owner discovers that any amount paid by it to Contractor in a preceding Month was incorrect, then Owner may, at its sole discretion, upon giving Contractor ten (10) Days’ prior written notice in accordance with Section 7.8, either: (i) offset such amount against future payments, or (ii) in the event that (A) the amount in question exceeds Thirty Million U.S. Dollars (U.S.$30,000,000) or (B) less than Thirty Million U.S. Dollars (U.S.$30,000,000) remains payable to Contractor under this Agreement, or amounts are due to Owner in connection with the final Invoice issued in accordance with Section 7.3, collect on the Letter of Credit for such amounts until sufficient and accurate supporting information is provided pursuant to Section 7.2. The foregoing provision shall not apply during the Defect Correction Period applicable to Substantial Completion of Subproject 2.

ARTICLE 8

TITLE AND RISK OF LOSS

8.1 Title.

A. Clear Title.

1. Contractor warrants and guarantees that Owner shall have legal title to and ownership of all or any portion of the Work (other than Work Product) and the Project upon payment therefor.

2. Contractor warrants and guarantees that legal title to and ownership of the Work and the Project shall be free and clear of any and all liens, claims, security interests or other encumbrances arising out of the Work when title thereto passes to Owner, and if any such warranty or guarantee is breached, Contractor shall have the liability and obligations set forth in Section 17.5.

B. Title to Work. Title to all or any portion of the Work (other than Work Product) shall pass to Owner upon payment by Owner therefor. Transfer of title to Work shall be without prejudice to Owner’s right to reject Defective Work, or any other right in this Agreement.

 

- 67 -


8.2 Risk of Loss.

A. Notwithstanding passage of title as provided in Section 8.1 of this Agreement, Contractor shall bear the risk of physical loss and damage with respect to each Subproject until the earlier of Substantial Completion of such Subproject or termination of this Agreement; provided that Owner shall at all times bear the risk of physical loss and damage if and to the extent arising from (i) war (whether declared or undeclared), civil war, act of terrorism, sabotage, blockade, insurrection; or (ii) ionizing radiation, or contamination by radioactivity from nuclear fuel, or from any nuclear waste from the combustion of nuclear fuel properties of any explosive nuclear assembly or nuclear component thereof; or (iii) an atmospheric disturbance marked by high winds, with or without precipitation, including such events as hurricane, typhoon, monsoon, cyclone, rainstorm, tempest, hailstorm, tornado, or any combination of the foregoing events, including any resulting flood, tidal or wave action (such clause (iii) events collectively, “Windstorms”) to the extent that Windstorms result in loss or damage in excess of Five Hundred Million U.S. Dollars (U.S.$500,000,000) in the cumulative, aggregate with respect to the Work, the Project, the Subprojects and the Liquefaction Facility, collectively. The full amount of Five Hundred Million U.S. Dollars (U.S.$500,000,000) may be satisfied under either the Stage 2 EPC Agreement or this Agreement. In the event that any physical loss or damage to the Stage 1 Liquefaction Facility or the Work arises from one or more of the events set forth in the first sentence of this Section 8.2A, and Owner elects to rebuild such physical loss or damage, Contractor shall be entitled to a Change Order to the extent such event adversely affects (i) Contractor’s costs of performance of the Work; (ii) Contractor’s ability to perform the Work in accordance with the Project Schedule or (iii) Contractor’s ability to perform any material obligation under this Agreement; provided that Contractor complies with the requirements set forth in Sections 6.2, 6.5 and 6.9.

B. Upon and from the earlier of termination of this Agreement or the occurrence of Substantial Completion of a Subproject, Owner shall assume care, custody and control of such Subproject and shall bear the full risk of physical loss and damage to such Subproject; provided, however, notwithstanding the foregoing, Contractor shall remain fully responsible and liable to Owner for its Warranty and Corrective Work obligations under this Agreement.

C. With respect to any physical loss or physical damage to a Subproject caused by (i) Force Majeure, (ii) any member of Owner Group or any other Person for whom Owner is responsible, or (iii) any Third Party over whom neither Contractor nor Owner are responsible and such Third Party is beyond the reasonable control of Contractor and such loss or damage was not due to Contractor’s fault or negligence and could not have been prevented or avoided by Contractor through the exercise of due diligence, Contractor shall be entitled to a Change Order adjusting the applicable Guaranteed Substantial Completion Date if and to the extent permitted under (a) Section 6.8A.1 if caused by Force Majeure or such Third Party meeting the requirements set forth herein and (b) Section 6.9 if caused by any member of Owner Group or any other person for whom Owner is responsible.

 

- 68 -


D. For the avoidance of doubt, this Section 8.2 shall apply to any loss or damage to the Work caused by, arising out of or resulting from, any activities, events or omissions occurring in connection with the Stage 1 EPC Agreement. Similarly for the avoidance of doubt, the risk of loss and damage to the Stage 2 Liquefaction Facility shall be determined in accordance with Section 8.2 of the Stage 2 EPC Agreement, notwithstanding that such loss or damage to the Stage 2 EPC Agreement was caused by, arose out of or resulted from activities or events occurring during the performance of this Agreement.

ARTICLE 9

INSURANCE AND LETTER OF CREDIT

9.1 Insurance.

A. Provision of Insurance. The Parties shall provide the insurance as specified in Attachment O on terms and conditions stated therein.

B. No Cancellation. All policies providing coverage hereunder shall contain a provision that at least thirty (30) Days’ prior written notice shall be given to the non-procuring Parties and additional insureds prior to cancellation, non-renewal or material change in the coverage.

C. Obligations Not Relieved. Anything in this Agreement to the contrary notwithstanding, the occurrence of any of the following shall in no way relieve Contractor from any of its obligations under this Agreement: (i) failure by Contractor to secure or maintain the insurance coverage required hereunder; (ii) failure by Contractor to comply fully with any of the insurance provisions of this Agreement; (iii) failure by Contractor to secure such endorsements on the policies as may be necessary to carry out the terms and provisions of this Agreement; (iv) the insolvency, bankruptcy or failure of any insurance company providing insurance to Contractor; or (v) failure of any insurance company to pay any claim accruing under its policy.

D. Failure to Provide Insurance. If any Party fails to provide or maintain insurance as required herein, and fails to cure such failure within fourteen (14) Days of receiving notice of such failure (provided that such fourteen (14) Day cure period falls within the applicable sixty (60) Day notice period required under Section 2 of Attachment O), the other Party shall have the right but not the obligation to purchase such insurance and shall be entitled to recover the insurance premium reasonably paid in respect of such insurance from the other Party in accordance with this Agreement; provided that, prior to execution of a Change Order in accordance with Attachment EE for any additional amounts owed for the Project Insurances, Owner shall not be entitled to recover from Contractor any insurance premiums paid by Owner with respect to any amounts in excess of the Insurance Provisional Sum for Project Insurances.

E. Unavailable Insurance. If any insurance (including the limits or deductibles thereof) hereby required to be maintained, other than insurance required by Applicable Law to be maintained, shall not be reasonably available in the commercial insurance market, Owner and Contractor shall not unreasonably withhold their agreement to waive such requirement to the extent that maintenance thereof is not so available;

 

- 69 -


provided, however, that the Party shall first request any such waiver in writing from the other Party, which request shall be accompanied by written reports prepared by two (2) independent advisers, including insurance brokers, of recognized international standing certifying that such insurance is not reasonably available in the commercial insurance market (and, in any case where the required amount is not so available, explaining in detail the basis for such conclusions), such insurance advisers and the form and substance of such reports to be reasonably acceptable to the other Party. Any such waiver shall be effective only so long as such insurance shall not be available and commercially feasible in the commercial insurance market.

9.2 Irrevocable Standby Letter of Credit.

A. On or before the issuance of the Notice to Proceed in accordance with Section 5.2B, Contractor shall deliver to Owner an irrevocable standby letter of credit in the amount of eight percent (8%) of the Contract Price (“Letter of Credit”). The Letter of Credit shall name Owner as beneficiary, shall be issued and confirmed by a commercial bank in the United States of America with a long-term rating of at least A- by Standard & Poor’s and at least A3 by Moody’s Investors Service, and shall be in the relevant form set forth in Attachment R; provided, however, if the issuing bank requires certain changes to the Letter of Credit form, such changes shall be subject to Owner’s written approval (not to be unreasonably withheld). If at any time the rating of the commercial bank that issued the applicable Letter of Credit falls below either of such ratings, Contractor shall replace such Letter of Credit within ten (10) Days with an equivalent instrument issued by a commercial bank in the United States of America meeting such rating requirements. Owner shall have the right to draw down on or collect against the Letter of Credit upon Owner’s demand in the event of the following: (i) the owing by Contractor to Owner under this Agreement for Liquidated Damages or any other liabilities, damages, losses, costs or expenses for which Contractor is liable under this Agreement; and (ii) Owner has provided notice to Contractor in accordance with Section 7.8C, except such notice is not required where Contractor does not pay Liquidated Damages as set forth in Section 20.3C. The amount drawn on the Letter of Credit shall not be greater than the amount that Owner, at the time of the drawing, reasonably estimates is owed it under this Agreement for Liquidated Damages, liabilities, damages, losses, costs or expenses or is necessary to remedy the breach of this Agreement. In addition, should the issuing commercial bank notify Owner and Contractor pursuant to the terms of the Letter of Credit that it has decided not to extend the Letter of Credit beyond the then current expiration date, Owner shall also have the right to draw down on or collect against the Letter of Credit for all remaining funds available under such Letter of Credit upon Owner’s demand if Contractor has not, prior to thirty (30) Days before the then current expiration date, delivered to Owner a replacement letter of credit substantially identical to the Letter of Credit and from a commercial bank meeting the requirements in this Section 9.2.

 

 

- 70 -


B. The amount of the Letter of Credit shall decrease to an aggregate amount of:

1. six percent (6%) of the Contract Price within thirty (30) Days after the issuing commercial bank’s receipt from Owner of a written notice that (i) Substantial Completion of Subproject 1 has occurred, (ii) Contractor has paid all Delay Liquidated Damages due and owing under the Agreement for Subproject 1, and (iii) Contractor has achieved the Performance Guarantee for Subproject 1 or paid all Performance Liquidated Damages due and owing under the Agreement for Subproject 1;

2. four percent (4%) of the Contract Price within thirty (30) Days after the issuing commercial bank’s receipt from Owner of a written notice that (i) Substantial Completion of Subproject 2 has occurred, (ii) Contractor has paid all Delay Liquidated Damages due and owing under the Agreement for Subproject 2, and (iii) Contractor has achieved the Performance Guarantee for Subproject 2 or paid all Performance Liquidated Damages due and owing under the Agreement for Subproject 2;

3. two percent (2%) of the Contract Price within thirty (30) Days after the issuing commercial’s bank receipt from Owner of written notice of the expiration of the Defect Correction Period for Subproject 1; provided that if the expiration of such Defect Correction Period occurs before Substantial Completion of Subproject 2, such decrease shall not occur until after the conditions for decreasing the Letter of Credit for Substantial Completion of Subproject 2 occurs; and

4. zero percent (0%) of the Contract Price within thirty (30) Days after the issuing commercial bank’s receipt from Owner of a written notice of the expiration of the Defect Correction Period for Subproject 2.

With respect to each Subproject, no later than thirty (30) Days after the latest of (i) Owner’s acceptance of the Substantial Completion Certificate for such Subproject, (ii) Contractor has paid all Delay Liquidated Damages due and owing under the Agreement for such Subproject, and (iii) Contractor has achieved the Performance Guarantee for such Subproject or paid all Performance Liquidated Damages due and owing under the Agreement for such Subproject, Owner shall provide the commercial bank that issued the Letter of Credit with the written notice for such Subproject as specified in Section 9.2B.1 (in the case of Subproject 1) or Section 9.2B.2 (in the case of Subproject 2). No later than thirty (30) Days after expiration of the applicable Defect Correction Period, Owner shall provide the commercial bank that issued the Letter of Credit with written notice of the expiration of such period, provided that if the expiration of such Defect Correction Period for Subproject 1 occurs before Substantial Completion of Subproject 2, Owner shall not be required to provide such notice until after the conditions for decreasing the Letter of Credit for Substantial Completion of Subproject 2 occurs. The Letter of Credit shall remain in full force and effect from the issuance of such Letter of Credit through the expiration of the Defect Correction Period for Subproject 2, at which time the Letter of Credit will be returned to Contractor. Partial drawings are permitted under the Letter of Credit.

C. In the event the Contract Price is increased by one or more Change Orders in accordance with the terms of this Agreement, by a cumulative amount of five percent (5%) of the Contract Price or more, Contractor shall, upon Owner’s request, increase the amount of the Letter of Credit to reflect the corresponding increase in such Contract Price by eight percent (8%) of such increase. Such increase in the Letter of Credit shall be reflected in a Change Order mutually agreed upon by the Parties.

 

- 71 -


9.3 DSU Insurance.

A. If an event or events occur that may be covered by the Builder’s Risk Delayed Startup Insurance or Marine Cargo Delayed Startup Insurance described in Attachment O, it shall be Owner’s sole option to decide whether or not a claim under such Delayed Startup Insurance is filed. If Owner gives notice to Contractor to file a claim under such Delayed Startup Insurance, Contractor shall promptly file and diligently pursue the collection of such claim on behalf of Owner, and in such case Owner shall provide to Contractor such information and assistance reasonably required for Contractor to file and pursue such claim. Contractor shall not be relieved of any Delay Liquidated Damages owed by Contractor to Owner if Owner does not elect to file a claim on such Delayed Startup Insurance, if Owner does not provide the information or assistance referenced above, or the prosecution of such claim is unsuccessful.

B. Regardless whether an event or events occur that may be covered by such Delayed Startup Insurance, Contractor shall pay any Delay Liquidated Damages owed by Contractor to Owner within the time required in Section 20.3C, even if a claim has been asserted under such Delayed Startup Insurance.

C. If Owner or any Lender receive proceeds under such Delayed Startup Insurance in respect to any event or events which give rise to Contractor’s delay in achieving Substantial Completion of Subproject 1 or Subproject 2 by the applicable Guaranteed Substantial Completion Dates, Owner shall pay back to Contractor Delay Liquidated Damages previously paid by Contractor to Owner for such event or events (or in the case that the Delay Liquidated Damages have not yet been paid at the time of receipt of such proceeds, Owner shall reduce Contractor’s liability for Delay Liquidated Damages for such event or events), but only to the extent that such recovery of insurance proceeds and Delay Liquidated Damages would result in a double recovery of amounts for the same loss and same time period. If any such Delay Liquidated Damages are paid back to Contractor, the amount of such Delay Liquidated Damages paid back to Contractor shall not be counted against the cap on Delay Liquidated Damages in Section 20.2.

ARTICLE 10

OWNERSHIP OF DOCUMENTATION

10.1 Work Product.

A. Ownership of Work Product. Owner and Contractor acknowledge that during the course of, and as a result of, the performance of the Work, Contractor or its Subcontractors or Sub-subcontractors will create for this Project and will deliver to Owner, certain written materials, plans, Drawings (including P&IDs), Specifications, or other tangible results of performance of the Work under this Agreement or performance of work under the Technical Services Agreement (hereinafter individually or collectively referred to as “Work Product”). Subject to this Section 10.1, as between Contractor and Owner,

 

- 72 -


Contractor shall own all rights, title and interest to the Work Product and any and all Intellectual Property embedded in the Work Product (including all patents and applications therefor, all inventions, trade secrets, know-how, technology, technical data, customer lists, copyrights and all registrations and applications therefor, and all industrial designs (“Intellectual Property”)). Notwithstanding anything to the contrary in this Agreement, all Contractor Existing Intellectual Assets, including Intellectual Property embedded therein, remains vested in Contractor. For the purposes of this Agreement, “Contractor Existing Intellectual Assets” means Intellectual Property and written materials, plans, drafts, specifications, or computer files or other documents, owned by Contractor or its Affiliates prior to the Contract Date or developed or acquired by Contractor or its Affiliates independently of this Agreement, but Owner receives a license in accordance with Section 10.1B to such Contractor Existing Intellectual Assets, including Intellectual Property embedded therein, to the extent the same is incorporated into the Work Product.

B. License and Use of the Work Product. Subject to Section 10.1D, Owner shall be entitled to use the Work Product and Contractor hereby grants Owner a fully-paid up, irrevocable (subject to Section 10.1E), non-exclusive and royalty-free license to use the Work Product and the Intellectual Property embedded in the Work Product and (subject to Section 10.1C) modify the Work Product, in each case solely for the purpose of: (i) operating and maintaining the Stage 1 Liquefaction Facility; (ii) training operators for the Stage 1 Liquefaction Facility; and (iii) repairing, replacing, expanding, completing or modifying any part of the Stage 1 Liquefaction Facility (provided that such repair, replacement, expansion, completion or modification shall not include the addition of an additional liquefaction train (e.g., a train other than LNG Train 1 or LNG Train 2)). Owner shall be entitled to assign its rights in the Work Product and in such license; provided that such assignee shall only be entitled to use the Work Product and Intellectual Property which is embedded in the Work Product for the purposes specified in clauses (i) through (iii) above, which licenses shall in all respects remain limited by and subject to the terms of this Agreement and as agreed to in writing by Owner and any such assignees. Notwithstanding anything to the contrary in this Agreement, no license is granted to Owner with respect to the use of any of Contractor’s proprietary software or systems.

C. Modification of Work Product or Intellectual Property. Subject to Sections 10.1D and 10.1E, after Substantial Completion of a Subproject or earlier termination of this Agreement, Owner or its contractors shall be entitled to modify the Work Product licensed to Owner in accordance with Section 10.1B for the purposes set forth in clauses (i) through (iii) in Section 10.1B; provided that Owner shall first remove, or cause to be removed, all references to Contractor from the Work Product. OWNER SHALL DEFEND, INDEMNIFY AND HOLD THE CONTRACTOR GROUP HARMLESS FROM AND AGAINST ALL DAMAGES, LOSSES, COSTS AND EXPENSES (INCLUDING ALL REASONABLE ATTORNEYSFEES AND LITIGATION OR ARBITRATION EXPENSES) INCURRED BY ANY MEMBER OF THE CONTRACTOR GROUP OR A SUBCONTRACTOR OR SUB-SUBCONTRACTOR AND CAUSED BY (IANY MODIFICATIONS TO THE WORK PRODUCT OR INTELLECTUAL PROPERTY, OR (IIUSE OF ANY WORK PRODUCT OR INTELLECTUAL PROPERTY EMBEDDED IN THE WORK PRODUCT, TO THE EXTENT SUCH MODIFICATIONS OR USE TAKES PLACE WITHOUT THE PRIOR WRITTEN CONSENT OR INVOLVEMENT OF ANY MEMBER OF CONTRACTOR GROUP OR SUBCONTRACTOR OR SUB-SUBCONTRACTOR, INCLUDING USE OF THE WORK PRODUCT OR ANY INTELLECTUAL PROPERTY EMBEDDED IN THE WORK PRODUCT ON ANY PROJECT OTHER THAN THE PROJECT.

 

- 73 -


D. ConocoPhillips Work Product and ConocoPhillips Intellectual Property. Notwithstanding anything to the contrary herein, the ConocoPhillips License Agreement is the exclusive document governing the licensing to Owner of Intellectual Property concerning the Optimized Cascade Process. All Work Product directly related to the liquefaction units employing Optimized Cascade Process and the Optimized Cascade Process that is generated by or for Contractor in the performance of the Work (the “ConocoPhillips Work Product”) shall vest, as between ConocoPhillips and Owner, in accordance with and be exclusively governed by the ConocoPhillips License Agreement. All Intellectual Property rights in and resulting from the ConocoPhillips Work Product (hereinafter “ConocoPhillips Intellectual Property”) shall vest, as between ConocoPhillips and Owner, in accordance with and be exclusively governed by the ConocoPhillips License Agreement. Access to and any use of the ConocoPhillips Work Product and ConocoPhillips Intellectual Property shall be subject to the terms and conditions set forth in the ConocoPhillips License Agreement. Owner acknowledges that license and use of the Optimized Cascade Process is not authorized by this Agreement.

E. Revocation of License to Use the Work Product. If the Agreement is terminated by the Contractor under Section 16.5 (but only if the termination under Section 16.5 is for the failure to pay undisputed amounts exceeding One Hundred Million U.S. Dollars (U.S.$100,000,000)) or Section 16.7 or by Owner under Section 16.2, 16.6 or 16.7, then the license granted under Section 10.1B to Owner to modify the Work Product and use the Work Product and Intellectual Property embedded in the Work Product shall be deemed revoked and Owner shall return the Work Product to Contractor, except that under no circumstances shall the license to the Work Product (and Intellectual Property embedded in such Work Product) be revoked or be required to be returned by Owner for the OSBL Facilities if Contractor terminates under Section 16.5. After such termination, if Owner requests, then Owner and Contractor will with respect to such Work Product revoked (and the Intellectual Property embedded in such Work Product) meet to negotiate in good faith to agree to the terms of a contract to complete the Work that remains incomplete after termination.

10.2 Owner Provided Documents. Notwithstanding anything to the contrary in this Agreement, all written materials, plans, drafts, specifications, computer files or other documents (if any) furnished by Owner or any of Owner’s other consultants or contractors to Contractor under this Agreement shall at all times remain the property of Owner, and Contractor shall not make use of any such documents or other media for any other project or for any other purpose than required to perform Contractor’s obligations under this Agreement. All such documents and other media, including all copies thereof, shall be returned to Owner upon the earlier of expiration of the Defect Correction Period for Subproject 2 and termination of this Agreement, except that Contractor may, subject to its confidentiality obligations as set forth in Article 19, retain one record set of such documents or other media. Owner hereby grants to Contractor Group and Subcontractors and Sub-subcontractors of any of the foregoing with respect to the Work a non-exclusive, royalty-free, revocable, non-transferable license to use and modify Owner Proprietary Work Product (and all Intellectual Property existing or referenced therein) to the extent required to perform Contractor’s

 

- 74 -


obligations under this Agreement. For the purposes of this Agreement, “Owner Proprietary Work Product” means Intellectual Property and written materials, plans, drafts, specifications, or computer files or other documents, owned by Owner or its Affiliates prior to the Contract Date or developed or acquired by Owner or its Affiliates independently of this Agreement.

10.3 License to Use Liquefaction Facility. Subject to Section 10.1D, and to the extent not covered by Section 10.1B or a separate sub-license between Owner and Contractor, Contractor shall obtain and provide to Owner a fully-paid up, irrevocable, non-exclusive and royalty-free license (including process licenses other than the Optimized Cascade Process license) from its Subcontractors and Sub-subcontractors to allow Owner to operate and maintain the Stage 1 Liquefaction Facility for the purposes intended under this Agreement, including producing LNG. Upon Substantial Completion of each Subproject or earlier termination, Contractor shall, to the extent not covered by Section 10.1B or a separate sub-license between Owner and Contractor, assign to Owner all licenses provided by any Subcontractor or Sub-subcontractor to Contractor (other than any license provided by ConocoPhillips). Owner shall be entitled to assign its rights in the licenses; provided that such assignee shall only be entitled to use such licenses for the purposes specified herein, which licenses shall in all respects remain limited by and subject to the terms of this Agreement.

ARTICLE 11

COMPLETION

11.1 Notice of RFSU, Delivery of Feed Gas for Commissioning, Start Up and Performance Testing, LNG Production and Ready for Ship Loading Time Test.

A. Notice of RFSU.

1. Without limitation of any scheduling requirements contained in this Agreement, Contractor shall give Owner one hundred twenty (120) Days’ prior written notice with respect to each Subproject of the thirty (30) Day period during which Contractor expects to achieve RFSU of each Subproject. Sixty (60) Days after such initial notice, Contractor shall give Owner a second written notice specifying the seven (7) Day period during which Contractor expects to achieve RFSU of each Subproject.

2. Owner shall notify FERC within three (3) Days of the second written notice issued in accordance with Section 11.1A.1 that RFSU is scheduled to occur during the period specified in the second written notice so that a letter authorizing Owner to introduce Natural Gas for commissioning of the Subproject (FERC Authorization for Commissioning”) can be obtained from FERC.

3. At such time as the applicable Subproject has achieved RFSU, Contractor shall certify to Owner in the form of Attachment L (“RFSU Completion Certificate”) that all requirements under this Agreement for RFSU for such Subproject have occurred. The RFSU Completion Certificate shall be accompanied by other supporting documentation as may be required under the Agreement to establish that the requirements for RFSU for the applicable Subproject have been met.

 

- 75 -


4. If Contractor achieves RFSU during the period specified in the second notice issued in accordance with Section 11.1A.1, Owner shall provide the FERC Authorization for Commissioning of the Subproject within seven (7) Days after the date that RFSU is achieved. In the event Owner fails to provide the FERC Authorization for Commissioning within the period specified in the preceding sentence, Contractor shall be entitled to a Change Order to the extent allowed under Section 6.9 of the Agreement.

B. Notice of Delivery of Feed Gas for Commissioning, Start Up and Performance Testing. Contractor shall provide to Owner a schedule of the quantities of Commissioning Feed Gas, in MMBtu, that Contractor anticipates it will need for each applicable Subproject in accordance with the following Commissioning Feed Gas forward plan:

1. No later than the twentieth (20th) Day of the Month occurring three (3) Months prior to the Month Contractor first needs Commissioning Feed Gas for each Subproject, Contractor shall give written notice to Owner of the total quantity of Commissioning Feed Gas required for the Month Commissioning Feed Gas is first needed and for each of the following two (2) Months (e.g., if the Contractor’s first need of Commissioning Feed Gas for a Subproject is anticipated to be in June, Contractor shall give written notice to Owner by March 20th of the anticipated total quantity of Commissioning Feed Gas required in the Months of June, July and August).

2. No later than the twentieth (20th) Day of the Month occurring two (2) Months prior to the Month Contractor first needs Commissioning Feed Gas for each Subproject, Contractor shall give written notice to Owner of (i) the quantities of Commissioning Feed Gas for each twenty-four (24) hour period between the hours of 9:00 AM of one Day to 9:00 AM the next Day, (“Daily Quantities”) for the Month Commissioning Feed Gas is first needed and (ii) any revisions to the total Month’s quantities required for each of the following two (2) Months (e.g., if the Contractor’s first need of Commissioning Feed Gas for a Subproject is anticipated to be in June, Contractor shall give notice to Owner by April 20th of the Daily Quantities for June, and revisions, if any, to the total quantity of Commissioning Feed Gas required in the Months of July and August).

3. No later than the twentieth (20th) Day of the Month prior to the Month Contractor first needs Commissioning Feed Gas for each Subproject and no later than the twentieth (20th) Day of each following Month, Contractor shall give written notice to Owner of the Daily Quantities for the next three (3) Months.

4. During each Month that Contractor requires Commissioning Feed Gas, Contractor will give Owner written notice of Daily Quantities as follows: (i) every Thursday by 5:00 PM of the Daily Quantities Contractor anticipates requiring for each Day between and including the following Tuesday through Monday, and (ii) every Day by 3:00 PM of the Daily Quantity for the next two (2) Days.

 

- 76 -


5. In the event that Contractor at any time becomes aware or has reason to believe that Contractor will require materially less than the previously noticed Daily Quantity for that Day, Contractor shall immediately give Owner written notice of such fact and of the revised Daily Quantity.

6. If, following the twentieth (20th) day of each Month, Contractor’s need for Daily Quantities changes materially from the previously noticed Daily Quantities, then Owner shall use commercially reasonable efforts to reschedule the delivery of the Commissioning Feed Gas so as to accommodate the revised Daily Quantities notified by Contractor in writing. Notwithstanding the foregoing, any failure by Owner to supply Commissioning Feed Gas at such time as such Feed Gas is needed in accordance with the periods set forth in the notices delivered during the Month prior to such need, shall entitle Contractor to a Change Order, provided that Contractor complies with the requirements set forth in Sections 6.2, 6.5 and 6.9.

C. Notice of Scheduling of LNG Production Requirement. Contractor shall provide to Owner a schedule of the quantities of LNG Contractor expects to produce from the Commissioning Feed Gas (“Commissioning LNG”) in accordance with the following Commissioning LNG forward plan:

1. In coordination with the Commissioning Feed Gas forward plan in 11.1B, no later than the twentieth (20th) Day of the Month occurring three (3) Months prior to the Month Contractor first expects to produce Commissioning LNG for each Subproject, Contractor shall give written notice to Owner of the quantity, in MMBtu, of the Commissioning LNG expected to be produced in the Month Contractor first expects to produce Commissioning LNG and for each of the following two (2) Months.

2. No later than the twentieth (20th) Day of the Month occurring two (2) Months prior to the Month Contractor first expects to produce Commissioning LNG for each Subproject, Contractor shall give written notice to Owner of (i) Commissioning LNG expected to be produced for each Day for the Month Contractor first expects to produce Commissioning LNG and (ii) any revisions to the total Months quantities of Commissioning LNG expected in the following two (2) Months.

3. No later than the twentieth (20th) Day of the Month prior to the Month Contractor will first produce Commissioning LNG for each Subproject and no later than the twentieth 20th Day of each following Month, Contractor shall give written notice to Owner of the Commissioning LNG to be produced for each Day for the next three (3) Months.

 

- 77 -


4. If, following the twentieth (20th) Day of each Month, Contractor’s daily plan for Commissioning LNG production changes materially from the previously noticed daily plan, then Owner shall use commercially reasonable efforts to provide storage for the Commissioning LNG to accommodate the revised plan for Commissioning LNG production as notified by Contractor in writing.

D. Notice of Ready for Ship Loading Time Test. Without limitation of the foregoing or any other scheduling requirements contained in this Agreement, Contractor shall give Owner one hundred twenty (120) Days’ prior written notice of the date on which Contractor expects to be ready for the Ship Loading Time Test. Contractor shall give Owner a second written notice specifying the date on which Contractor expects to be ready for the Ship Loading Time Test, which such notices shall be given no later than sixty (60) Days prior to such date. Owner shall provide for an LNG Tanker after the date in such second written notice; provided that Owner is not required to schedule such LNG Tanker until (i) there is sufficient LNG in storage in the Tanks to perform the Ship Loading Time Test and (ii) Owner has an economic reason to export such LNG. Owner shall give Contractor fourteen (14) Days prior written notice of a five (5) Day period in which the LNG Tanker will be available for the Ship Loading Time Test. In the event that Contractor at any time becomes aware or has reason to believe that its ability to be ready for the Ship Loading Time Test will be delayed beyond the last date specified in the second written notice given pursuant to this Section 11.1D or the date(s) specified in Owner’s notice of LNG Tanker availability, Contractor shall immediately give Owner written notice of such fact and of the revised date on which Contractor then expects that it will be ready for the Ship Loading Time Test. Owner shall use commercially reasonable efforts to reschedule the arrival of the LNG Tanker for the Ship Loading Time Test. If the LNG Tanker is not provided within thirty (30) Days after the date requested in Contractor’s second notice, Contractor shall be entitled to a Change Order to the extent permitted under Section 6.9.

11.2 Notice and Requirements for Substantial Completion. Contractor shall give Owner not less than ninety (90) Days’ prior written notice of its intention to commence the Performance Tests, and, on the sixtieth (60th) Day and thirtieth (30th) Day immediately prior to Contractor’s intention to commence such testing activities, Contractor shall provide written notices to Owner. The Parties shall, no later than twenty-four (24) months after Owner’s issuance of the Notice to Proceed, mutually agree upon final test procedures for the conduct of the Performance Tests as specified in and consistent with Attachment S (these test procedures and the test parameters specified in Attachment S hereinafter referred to as “Performance Test Procedures”). Contractor shall provide all labor, equipment, supplies, and all other items necessary for the conduct of the Performance Tests; provided, however, that Owner shall provide operating personnel for supervision by Contractor in accordance with Section 4.4 and the Commissioning Feed Gas in accordance with Section 11.1B. Contractor shall analyze the data obtained during all Performance Tests, and ensure that such data reflects the performance standards required hereunder. A complete copy of all raw performance data and a detailed listing of all testing instrumentation utilized shall be provided to Owner at the completion of testing. Upon achieving all requirements under this Agreement for Substantial Completion of a Subproject, Contractor shall certify to Owner in the form of Attachment M (“Substantial Completion Certificate”) that all of the requirements under this Agreement for Substantial Completion of such Subproject have occurred and shall provide with such Substantial Completion

 

- 78 -


Certificate a Performance Test report and analysis to Owner. At a minimum, the Performance Test report shall include (i) the raw data, (ii) the instrumentation utilized for the Performance Tests, (iii) the procedures utilized during the Performance Tests, (iv) calculations and information, and a full explanation concerning same, for adjustments to the Guarantee Conditions, as and to the extent specified in the Performance Test Procedures, and (v) any other reasonable supporting information used to demonstrate that the Work has met the Minimum Acceptance Criteria or Performance Guarantee, as the case may be. The Substantial Completion Certificate shall be accompanied by all other supporting documentation as may be reasonably required to establish that the requirements for Substantial Completion of the Subproject have been met.

11.3 Owner Acceptance of RFSU and Substantial Completion.

A. Owner Acceptance of RFSU. Owner shall notify Contractor whether it accepts or rejects the RFSU Completion Certificate within seventy-two (72) hours following Owner’s receipt thereof. All Work shall continue during pendency of Owner’s review. Acceptance of RFSU (which such acceptance shall not be unreasonably withheld) shall be evidenced by Owner’s signature on such RFSU Completion Certificate. The date of RFSU shall be based upon, and the date of Owner’s acceptance of RFSU shall be deemed to have occurred on, the date listed on the RFSU Completion Certificate; provided that all requirements under this Agreement for RFSU were achieved on such date listed on the RFSU Completion Certificate except for the payment of any and all Liquidated Damages due and owing to Owner and provided further that the payment to Owner of such Liquidated Damages shall have been made within the time and in accordance with Section 20.3C in order for RFSU to have occurred on the date listed in the RFSU Completion Certificate. If Owner does not agree that RFSU has occurred, then Owner shall state the basis for its rejection in reasonable detail in such notice. If the Parties do not mutually agree on when and if RFSU has occurred, the Parties shall thereupon promptly and in good faith confer and make all reasonable efforts to resolve such issue. In the event such issue is not resolved within forty-eight (48) hours of the delivery by Owner of its notice to Contractor, the Parties shall resolve such dispute in accordance with Section 18.1A. Owner’s acceptance of RFSU shall not relieve Contractor of any of its obligations to perform the Work in accordance with the requirements of this Agreement. As used in this Section 11.3A, “unreasonably withheld” means that Owner fails to accept the RFSU Completion Certificate even if all of the requirements under this Agreement for the achievement of RFSU of a Subproject have been achieved. For the avoidance of doubt, “unreasonably withheld,” as used in this Section 11.3A, means that Owner cannot fail to accept the RFSU Completion Certificate if all the requirements under this Agreement for the achievement of RFSU have been achieved.

B. Owner Acceptance of Substantial Completion. Owner shall notify Contractor whether it accepts or rejects a Substantial Completion Certificate within ten (10) Days following Owner’s receipt thereof. All Work shall continue during pendency of Owner’s review. Acceptance of such Substantial Completion (which such acceptance shall not be unreasonably withheld) shall be evidenced by Owner’s signature on such Substantial Completion Certificate. The date of Substantial Completion of a Subproject shall be based upon, and the date of Owner’s acceptance of Substantial Completion of a Subproject shall be deemed to have occurred on, the date listed on the applicable

 

- 79 -


Substantial Completion Certificate, provided that all requirements under this Agreement for Substantial Completion of such Subproject were achieved on such date listed on the Substantial Completion Certificate except for the payment of any and all Liquidated Damages due and owing to Owner and provided further that the payment to Owner of such Liquidated Damages shall have been made within the time and in accordance with Section 20.3C in order for Substantial Completion of such Subproject to have occurred on the date listed in the applicable Substantial Completion Certificate. If Owner does not agree that Substantial Completion of a Subproject has occurred, then Owner shall state the basis for its rejection in reasonable detail in such notice. If the Parties do not mutually agree on when and if Substantial Completion of a Subproject has occurred, the Parties shall thereupon promptly and in good faith confer and make all reasonable efforts to resolve such issue. In the event such issue is not resolved within ten (10) Days of the delivery by Owner of its notice to Contractor, the Parties shall resolve such dispute in accordance with Section 18.1A. Owner’s acceptance of Substantial Completion of a Subproject shall not relieve Contractor of any of its obligations to perform the Work in accordance with the requirements of this Agreement. Notwithstanding anything to the contrary in this Section, Owner shall not be required to accept a Substantial Completion Certificate if the requirements under this Agreement for the achievement of Substantial Completion of a Subproject have not been achieved. As used in this Section 11.3B, “unreasonably withheld” means that Owner fails to accept a Substantial Completion Certificate even if all of the requirements under this Agreement for the achievement of Substantial Completion of a Subproject have been achieved. For the avoidance of doubt, “unreasonably withheld,” as used in this Section 11.3B, means that Owner cannot fail to accept the applicable Substantial Completion Certificate if all the requirements under this Agreement for the achievement of Substantial Completion of a Subproject have been achieved.

11.4 Minimum Acceptance Criteria and Performance Liquidated Damages.

A. Minimum Acceptance Criteria Achieved. In the event that a Subproject fails to achieve the Performance Guarantee by the applicable Guaranteed Substantial Completion Date, as evidenced by the Performance Test results, but meets the Minimum Acceptance Criteria and all other requirements for Substantial Completion of such Subproject, then Contractor shall have the right, upon written notice to Owner, to elect one of the following options; provided, however, if the Performance Tests results evidence that the LNG Production Rate does not exceed ninety eight percent (98%) of the Performance Guarantee, then Owner shall have the right, upon written notice, to elect and direct Contractor, within thirty (30) Days after receipt of a notice from Contractor specifying the Performance Test results and requesting Owner’s election to proceed with one of the following options:

(i) Contractor shall transfer care, custody and control of the applicable Subproject to Owner. Upon such transfer and satisfaction of all other requirements of Substantial Completion, Substantial Completion of such Subproject shall be achieved, and Owner shall sign the applicable Substantial Completion Certificate submitted by Contractor. Contractor shall only be responsible for the payment of applicable Delay Liquidated Damages owing up to the date of Substantial Completion of such Subproject, which shall be paid in accordance with Section

 

- 80 -


20.3C. Contractor shall pay, as a condition of Substantial Completion, Performance Liquidated Damages to Owner in accordance with Section 20.3C based on the results of the last Performance Test conducted by Contractor prior to issuance of a notice of election by Owner or Contractor pursuant to this Section 11.4; or

(ii) Contractor shall transfer care, custody and control of the applicable Subproject to Owner and take corrective actions to achieve such Performance Guarantee. Upon such transfer and satisfaction of all other requirements of Substantial Completion, Substantial Completion of such Subproject shall be achieved, and Owner shall sign the applicable Substantial Completion Certificate submitted by Contractor. Contractor shall only be responsible for the payment of applicable Delay Liquidated Damages owing up to the date of Substantial Completion of such Subproject, which shall be paid in accordance with Section 20.3C. The correction actions required to be performed by Contractor shall be performed in accordance with Owner’s operation and maintenance schedule so as to not interfere with operation of such Subproject and subject to any security or safety requirements. For the period of time that Contractor is taking corrective action to achieve the Performance Guarantee(s) pursuant to this Section 11.4A(ii), Owner shall provide safe, reasonable access to Contractor for performance of such corrective actions, but at all times performing such Work so as not to interfere with the operation of such Subproject. Prior to the election of the option under this Section 11.4A(ii), Contractor shall deliver to Owner a detailed corrective action plan and schedule to achieve the Performance Guarantee. If the Subproject has not achieved the Performance Guarantee within one hundred and eighty (180) Days after the Guaranteed Substantial Completion Date (or such later date as may be mutually agreed in writing), then Contractor shall cease taking corrective actions to achieve the Performance Guarantee, and in that event, Contractor shall pay to Owner the applicable Performance Liquidated Damages for such Performance Guarantee in accordance with Section 20.3C based on the results of the last Performance Test conducted by Contractor. On the other hand, if such Performance Guarantee is achieved within the prescribed period, Contractor shall owe no Performance Liquidated Damages for such Subproject. Notwithstanding the foregoing, in the event that the Owner directed Contractor or Contractor elected to proceed with the option under this Section 11.4A(ii) and Contractor achieves an LNG Production Rate that exceeds ninety eight percent (98%) of the Performance Guarantee, Contractor shall have the right to cease taking corrective actions to achieve the Performance Guarantee, and Contractor shall pay to Owner the applicable Performance Liquidated Damages for such Performance Guarantee in accordance with Section 20.3C based on the results of the last Performance Test conducted by Contractor.

B. Minimum Acceptance Criteria Not Achieved. In the event that a Subproject fails to achieve the Minimum Acceptance Criteria, as evidenced by the Performance Test results, by the applicable Guaranteed Substantial Completion Date, as such date may be extended by Change Order as provided herein, then (i) Substantial Completion of such Subproject shall not occur and (ii) the provisions of Section 13.1 shall

 

- 81 -


apply. In addition to the foregoing, Contractor shall attempt for a period of ten (10) months after the applicable Guaranteed Substantial Completion Date (“Minimum Acceptance Criteria Correction Period”) to correct the Work to enable the Subproject to achieve the Minimum Acceptance Criteria and otherwise achieve Substantial Completion of such Subproject. If the Subproject has not achieved the Minimum Acceptance Criteria and Substantial Completion upon the termination of the Minimum Acceptance Criteria Correction Period, then Owner shall have, in its sole discretion, the option of either (a) granting Contractor up to an additional ten (10) month Minimum Acceptance Criteria Correction Period under the same terms and conditions as the first, including the application of Section 13.1 (subject to Section 20.2A); or (b) declaring Contractor Default pursuant to Article 16, in which case Owner shall be entitled to immediately (and without any cure period allowed) terminate Contractor’s performance of the Work in accordance with Section 16.1A, and Owner shall have all of the rights under Section 16.1, including all Delay Liquidated Damages owed but subject to Section 20.2A, provided that Owner shall not be entitled to any Performance Liquidated Damages for a termination under this Section 11.4B with respect to the Subproject that did not achieve the Minimum Acceptance Criteria. If, on the other hand, the Subproject has achieved the Minimum Acceptance Criteria and Substantial Completion during the Minimum Acceptance Criteria Correction Period (or during the second ten (10) month period, should Owner elect that option), then Contractor shall be liable to Owner for applicable Delay Liquidated Damages up to the date of Substantial Completion of the applicable Subproject (subject to Section 20.2A) and all Performance Liquidated Damages owed (subject to Section 20.2B).

11.5 Punchlist. Upon completion of the Performance Tests and prior to Substantial Completion of a Subproject, Owner and Contractor shall inspect the Subproject, and Contractor shall prepare a proposed Punchlist of items identified as needing to be completed or corrected as a result of such inspection. Contractor shall promptly provide the proposed Punchlist to Owner for its review, together with an estimate of the time and cost necessary to complete or correct each Punchlist item. Contractor shall add to the proposed Punchlist any Punchlist items that are identified by Owner within ten (10) Days after Owner’s receipt of the proposed Punchlist from Contractor, and Contractor shall immediately initiate measures to complete or correct, as appropriate, any item on Contractor’s proposed Punchlist (including those items identified by Owner during Owner’s review) that are not of a Punchlist nature. Notwithstanding anything to the contrary in this Agreement, Contractor and Owner are not required as a condition of Substantial Completion of a Subproject to agree upon and identify every Punchlist item and include it on the Punchlist, but Contractor is required to complete as a condition of Substantial Completion of such Subproject all Work that does not meet the definition of Punchlist as provided in Section 1.1. In the event of a dispute regarding whether a specific item of Work meets the definition of Punchlist under Section 1.1, the Parties shall resolve such dispute in accordance with Section 18.1A. Owner shall provide Contractor with access to the Work after Substantial Completion of a Subproject sufficient to enable Contractor to complete all Punchlist items, so long as such access does not unreasonably interfere with operation of a Subproject after Substantial Completion of the Subproject and subject to any reasonable security or safety requirements of Owner. Upon Contractor’s completion or correction of any items necessary to achieve Substantial Completion of a Subproject, as modified by any Owner additions, such Punchlist shall govern Contractor’s performance of the Punchlist items up to Final Completion. All Work on the Punchlist shall be completed by the date required for Final Completion, as specified in Section 5.3C, or Owner may,

 

- 82 -


in addition to any other rights that it may have under this Agreement, complete such Punchlist Work at the expense of Contractor. In the event Owner elects to complete such Punchlist Work, Contractor shall pay Owner, within ten (10) Days after receipt of written notice from Owner, all reasonable costs and expenses incurred by Owner in performing such Punchlist Work, or, at Owner’s sole discretion, Owner may withhold or offset amounts owed to Contractor or collect on the Letter of Credit in accordance with Section 7.8 in the amount of such costs and expenses. Any Defective Work identified after agreement between the Parties of the Punchlist shall be corrected by Contractor as a Warranty item under Article 12.

11.6 Notice and Requirements for Final Completion. Final Completion shall be achieved when all requirements for Final Completion set forth in the definition of Final Completion under Section 1.1 have been satisfied. Upon Final Completion, Contractor shall certify to Owner in the form of Attachment N (“Final Completion Certificate”) that all of such requirements have occurred. Owner shall notify Contractor whether it accepts or rejects the Final Completion Certificate within ten (10) Days following Owner’s receipt thereof. Acceptance of Final Completion (which such acceptance shall not be unreasonably withheld) shall be evidenced by Owner’s signature on such certificate, which shall be forwarded to Contractor with such notice. The date of Final Completion shall be based upon, and the date of Owner’s acceptance of Final Completion shall be deemed to have occurred on, the date listed on the Final Completion Certificate; provided that all requirements under this Agreement for Final Completion were achieved on such date listed on the Final Completion Certificate. If Owner does not agree that Final Completion has occurred, then Owner shall state the basis for its rejection in such notice. If the Parties do not mutually agree on when and if Final Completion has occurred, the Parties shall thereupon promptly and in good faith confer and make all reasonable efforts to resolve such issue. In the event such issue is not resolved within ten (10) Days of the delivery by Owner of its notice, the Parties shall resolve such dispute in accordance with Section 18.1A. Owner’s acceptance of Final Completion shall not relieve Contractor of any of its remaining obligations in accordance with the requirements of this Agreement. Notwithstanding anything to the contrary in this Section, Owner shall not be required to accept the Final Completion Certificate if the requirements under this Agreement for the achievement of Final Completion have not been achieved. As used in this Section 11.6, “unreasonably withheld” means that Owner fails to accept the Final Completion Certificate even if all of the requirements under this Agreement for the achievement of Final Completion have been achieved. For the avoidance of doubt, “unreasonably withheld,” as used in this Section 11.6, means that Owner cannot fail to accept the Final Completion Certificate if all the requirements under this Agreement for the achievement of Final Completion have been achieved.

11.7 Operations Activities.

A. Operation by Contractor. Prior to Substantial Completion of a Subproject and after RFSU of such Subproject, to the extent Contractor has care, custody and control of the Stage 1 Liquefaction Facility, Contractor shall, to the extent reasonably possible, operate the Stage 1 Liquefaction Facility in accordance with Owner’s reasonable instructions and all Permits (“Operations Activity” or collectively “Operations Activities”). Contractor shall not have the obligation to follow Owner’s instructions for any Operations Activity if such Operations Activity in Contractor’s reasonable opinion has more than a minimal impact on Contractor’s cost of performance of the Work or Contractor’s ability to perform the Work in accordance with the Project Schedule or

 

- 83 -


Contractor’s ability to perform any other obligation under this Agreement, the intent of this Section 11.7A being that Contractor’s performance of the Work shall have priority over the operation of the Stage 1 Liquefaction Facility; provided, however, notwithstanding the foregoing, Owner shall be entitled to direct Contractor to stop, or cause to be stopped, all or any portion of the Work if the continuance of such Work would, in Owner’s reasonable opinion, be unsafe or cause damage to the Project or the Liquefaction Facility. Within twelve (12) hours of receipt of Owner’s instructions regarding such Operations Activity, Contractor shall provide notice to Owner informing Owner whether it can comply with Owner’s instructions and the reason if it cannot so comply. Contractor’s performance of the Operations Activities shall not in any way release Contractor or any surety of Contractor from any obligations or liabilities pursuant to this Agreement.

B. Operation by Owner. Upon Owner’s election to take care, custody and control of a Subproject in accordance with Section 11.4, Owner has the right to operate such Subproject. Owner shall bear the risk of physical loss and damage to the Work and the Project as provided in Article 8.

ARTICLE 12

WARRANTY AND CORRECTION OF WORK

12.1 Warranty.

A. General. The warranties set forth in this Article 12 (collectively, the “Warranty” or “Warranties”) are in addition to any of the Minimum Acceptance Criteria or the Performance Guarantee set forth in this Agreement. Any Work, or component thereof, that is not in conformity with any Warranty is defective (“Defective”) and contains a defect (“Defect”).

B. Warranty of Work. Contractor hereby warrants that:

1. the Equipment, and each component thereof, shall be new (unless otherwise specified in this Agreement) and of good quality;

2. the Work (including the Equipment) shall be in accordance with all of the requirements of this Agreement, including in accordance with GECP, Applicable Law and Applicable Codes and Standards; and

3. the Work (including the Equipment) shall be free from encumbrances to title, as set forth in greater detail in Section 8.1.

C. Documentation Warranty. Contractor warrants that the written instructions regarding the use of Equipment, including those instructions in operation and maintenance manuals, shall conform to this Agreement and GECP as of the time such instructions are prepared. If any non-conformance with the Warranty specified in this Section 12.1C occurs or is discovered at any time prior to or during the applicable Defect Correction Period, Contractor shall, at its sole expense, furnish Owner with corrected instructions.

 

- 84 -


D. Assignment and Enforcement of Subcontractor Warranties. Contractor shall be fully responsible and liable to Owner for its Warranty and Corrective Work obligations and liability under this Agreement for all Work, including Work performed by its Subcontractors and Sub-subcontractors. Without limiting the foregoing, all warranties obtained by Contractor from Subcontractors shall run to the benefit of Contractor but shall permit Contractor, prior to assignment to Owner, the right (upon mutual agreement of the Parties), to authorize Owner to deal with Subcontractor on Contractor’s behalf. Such warranties, with duly executed instruments assigning the warranties shall be delivered to Owner concurrent with the end of the applicable Defect Correction Period. This Section 12.1D shall not in any way be construed to limit Contractor’s liability under this Agreement for the entire Work or its obligation to enforce Subcontractor warranties.

E. Exceptions to Warranty. The Warranty excludes remedy, and Contractor shall have no liability to Owner, for any damage or defect to the extent caused by: (i) improper repairs or alterations, misuse, neglect or accident by Owner; (ii) operation, maintenance or use of the Project, Work or any component thereof in a manner not in compliance with a material requirement of operation and maintenance manuals delivered by Contractor to Owner; (iii) normal wear and tear; (iv) normal corrosion or (v) an event of Force Majeure (but only, with respect to obligations under this Article 12, to the extent such event of Force Majeure occurs after Substantial Completion of the Subproject).

12.2 Correction of Work Prior to Substantial Completion.

A. General Rights. All Work shall be subject to inspection by Owner at all reasonable times to determine whether the Work conforms to the requirements of this Agreement. Upon Owner giving reasonable prior notice, Contractor shall furnish Owner with access to all locations where Work is in progress on the Site and at the offices of Contractor and its Major Subcontractors. Owner shall be entitled to provide Contractor with written notice of any Work which Owner believes does not conform to the requirements of this Agreement. After Contractor becomes aware of a Defect in the Work prior to Substantial Completion of the Subproject containing the Defect, Contractor will provide Owner with a general plan that provides for Contractor to investigate and, if necessary, correct (whether by repair, replacement or otherwise) the Defect (having regard to the nature of the Defect, the Project Schedule, safety, insurance and any adverse impact on the operation of a Subproject after Substantial Completion of the Subproject), which plan may need to be updated based upon the Contractor’s investigation or further development or implementation of the plan. Contractor will carry out and complete the necessary work at its own cost and expense in order to remedy the Defect prior to Substantial Completion of the Subproject containing the Defect, unless: (i) otherwise provided in the plan for earlier correction; or (ii) such Defect materially impacts the operation of a Subproject after Substantial Completion of such Subproject (as applicable) or Subproject 3 after substantial completion of Subproject 3 under the Stage 2 EPC Agreement, in which case Contractor shall immediately commence to correct the Defect and complete the remedy as expeditiously as possible. The cost of disassembling, dismantling or making safe finished Work for the purpose of inspection, and reassembling such portions (and any delay associated therewith) shall be borne by (i) Contractor, if such Work is found not to conform with the requirements of this Agreement, and (ii) by Owner, if such Work is found to conform with the requirements of this Agreement, and Contractor shall be entitled to a Change Order in such event; provided that Contractor complies with the requirements set forth in Sections 6.2 and 6.5.

 

- 85 -


B. Witness Points. Contractor shall provide Owner with a list of witness points for all Major Equipment no later than thirty (30) Days’ after execution of the relevant Subcontract and Owner shall notify Contractor which of the witness points it wishes its personnel to witness. Contractor shall provide Owner with at least fifteen (15) Days prior written notice of the actual scheduled date of each of the tests Owner has indicated it wishes to witness. Contractor shall cooperate with Owner if Owner elects to witness any additional tests, and Contractor acknowledges that Owner shall have the right to witness all tests being performed in connection with the Work. Notwithstanding Owner’s rights to witness tests, Owner shall not interrupt or interfere with any test or require changes while witnessing such tests; provided however, if Owner observes testing that, in Owner’s reasonable opinion, raises a safety concern or could cause damage to Major Equipment, then Owner has the right (but not the obligation) to notify Contractor and Contractor shall promptly respond after such notification to rectify any issues.

C. No Obligation to Inspect. Owner’s right to conduct inspections under Sections 12.2A and 12.2B shall not obligate Owner to do so. Neither the exercise of Owner of any such right, nor any failure on the part of Owner to discover or reject Defective Work shall be construed to imply an acceptance of such Defective Work or a waiver of such Defect. In addition, Owner’s acceptance of any Work which is later determined to be Defective shall not in any way relieve Contractor from its obligations under this Article 12.

12.3 Correction of Work After Substantial Completion. If, during the applicable Defect Correction Period, any Work or component thereof is found to be Defective, and Owner provides written notice to Contractor within such Defect Correction Period regarding such Defect, Contractor shall, at its sole cost and expense, promptly correct (whether by repair, replacement or otherwise) such Defective Work, including all obligations in connection with such correction, such as in and out costs, storage, labor, Taxes, transportation and expediting costs and any other costs necessary to fully correct the Work (such correction of the Defective Work is hereby defined as the “Corrective Work”). Any such notice from Owner shall state with reasonable specificity the date of occurrence or observation of the alleged Defect and the reasons supporting Owner’s belief that Contractor is responsible for performing Corrective Work. Owner shall provide Contractor with access to the Stage 2 Liquefaction Facility and/or the Stage 1 Liquefaction Facility, sufficient to perform its Corrective Work, so long as such access does not unreasonably interfere with operation of the Stage 2 Liquefaction Facility or the Stage 1 Liquefaction Facility and subject to any reasonable security or safety requirements of Owner. In the event Contractor utilizes spare parts owned by Owner in the course of performing the Corrective Work, Contractor shall supply Owner free of charge with new spare parts equivalent in quality and quantity to all such spare parts used by Contractor as soon as possible following the utilization of such spare parts.

A. Owner Right to Perform Corrective Work. If Contractor fails to commence the Corrective Work during the Defect Correction Period within a reasonable period of time not to exceed ten (10) Business Days, or does not complete such Corrective Work promptly (and provided that Owner provides Contractor access to the Stage 2

 

- 86 -


Liquefaction Facility and/or the Stage 1 Liquefaction Facility in accordance with this Section 12.3), then Owner, as its sole and exclusive remedy for the Defect (except for its right to enforce the indemnification, defense and hold harmless obligations of Contractor pursuant to Sections 17.1A, 17.1F, 17.1G and 17.2), upon providing prior written notice to Contractor, may perform such Corrective Work, and Contractor shall be liable to Owner for the reasonable costs incurred by Owner in connection with performing such Corrective Work, and shall pay Owner, within ten (10) Days after receipt of written notice from Owner, an amount equal to such costs (or, at Owner’s sole discretion, Owner may withhold or offset amounts owed to Contractor or collect on the Letter of Credit in accordance with Section 7.8 in the amount of such costs and expenses); provided, however, if Defective Work discovered during the Defect Correction Period presents an imminent threat to the safety or health of any Person and Owner knows of such Defective Work, Owner may perform such Corrective Work in order to correct such Defective Work without giving prior written notice to Contractor. In such event, Contractor shall be liable to Owner for the reasonable costs incurred by Owner in connection with performing such Corrective Work, and shall pay Owner, after receipt of written notice from Owner, an amount equal to such costs (or, at Owner’s sole discretion, Owner may withhold or offset amounts owed to Contractor or collect on the Letter of Credit in accordance with Section 7.8 in the amount of such costs). To the extent any Corrective Work is performed by or on behalf of Owner, Contractor’s obligations with respect to such Defective Work that is corrected by or on behalf of Owner shall be relieved, with the exception of Contractor’s obligation to pay Owner the reasonable costs incurred by Owner in connection with performing such Corrective Work.

B. Extended Defect Correction Period for Corrective Work. With respect to any Corrective Work performed by Contractor, the Defect Correction Period for such Corrective Work shall be extended for an additional one (1) year from the date of the completion of such Corrective Work; provided, however, in no event shall the Defect Correction Period for any Work (including Corrective Work) be less than the original Defect Correction Period or extend beyond thirty-six (36) Months after Contractor’s achievement of Substantial Completion for such Subproject.

C. Standards for Corrective Work. All Corrective Work shall be performed subject to the same terms and conditions under this Agreement as the original Work is required to be performed. In connection with the Corrective Work, any change to Equipment that would alter the requirements of this Agreement may be made only with prior written approval of Owner in accordance with Section 3.29.

D. Expiration of Defect Correction Period. Contractor shall not be liable to Owner for any Defective Work discovered after the expiration of the applicable Defect Correction Period (as may be extended pursuant to Section 12.3B), except for any liability of Contractor pursuant to its indemnification, defense and hold harmless obligations under this Agreement.

12.4 Assignability of Warranties. The Warranties made in this Agreement shall be for the benefit of Owner and its successors and permitted assigns and the respective successors and permitted assigns of any of them, and are fully transferable and assignable.

 

- 87 -


12.5 Waiver of Implied Warranties. The express warranties set forth in this Agreement (including Warranties) are exclusive and the Parties hereby disclaim, and Owner hereby waives any and all warranties implied under Applicable Law (including the governing law specified in Section 21.9), including the implied warranty of merchantability and implied warranty of fitness for a particular purpose.

ARTICLE 13

DELAY LIQUIDATED DAMAGES AND SCHEDULE BONUS

13.1 Delay Liquidated Damages. If Substantial Completion of an applicable Subproject occurs after the applicable Guaranteed Substantial Completion Date, Contractor shall pay to Owner the amounts listed in Attachment T per Day for each Day, or portion thereof, of delay until Substantial Completion of such Subproject occurs (the “Delay Liquidated Damages”).

13.2 Schedule Bonus.

A. If Substantial Completion of Subproject 1 occurs before the date falling *** (***) Days after issuance of NTP (“Schedule Bonus Date for SP1”), Owner shall pay Contractor a bonus in the amount of *** (U.S.$***) per MMBtu of the LNG that is both (i) produced by Subproject 1 between the period of first production of LNG from Subproject 1 and the Schedule Bonus Date for SP1 and (ii) sold by Owner to one of its customers prior to the Schedule Bonus Date for SP1 (“Schedule Bonus for SP1”).

B. If Substantial Completion of Subproject 2 occurs before the date falling *** (***) Days after issuance of NTP (“Schedule Bonus Date for SP2”), Owner shall pay Contractor a bonus in the amount of *** (U.S.$***) per MMBtu of the LNG that is both (i) produced by Subproject 2 between the period of first production of LNG from Subproject 2 and the Schedule Bonus Date for SP2 and (ii) sold by Owner to one of its customers prior to the Schedule Bonus Date for SP1 (“Schedule Bonus for SP2”). “Schedule Bonus Date” means each of the Schedule Bonus Date for SP1 and the Schedule Bonus Date for SP2. “Schedule Bonus” means each of the Schedule Bonus for SP1 and the Schedule Bonus for SP2.

C. For avoidance of doubt, Contractor shall not be entitled to a Schedule Bonus for any LNG that boils-off or is vaporized and sold into the U.S. market as Natural Gas. The Schedule Bonus Date for SP1 and Schedule Bonus Date for SP2 shall be subject to adjustment solely at the discretion of the Chairman of Cheniere and any such adjustment shall be implemented by Change Order. Contractor acknowledges that this Section 13.2 does not impose any obligation whatsoever on Owner to sell any LNG to any customers.

ARTICLE 14

CONTRACTOR’S REPRESENTATIONS

Contractor represents and warrants as of the Contract Date that:

14.1 Corporate Standing. It is a corporation duly organized, validly existing and in good standing under the laws of Delaware, is authorized and qualified to do business in all jurisdictions in which the nature of the business conducted by it makes such qualification necessary and where failure so to qualify would have a material adverse effect on its financial condition, operations, prospects, taxes or business.

 

- 88 -


14.2 No Violation of Law; Litigation. It is not in violation of any Applicable Law or judgment entered by any Governmental Instrumentality, which violations, individually or in the aggregate, would affect its performance of any obligations under this Agreement. There are no legal or arbitration proceedings or any proceeding by or before any Governmental Instrumentality, now pending or (to the best knowledge of Contractor) threatened against Contractor that, if adversely determined, could reasonably be expected to have a material adverse effect on the financial condition, operations, prospects or business, as a whole, of Contractor, or its ability to perform under this Agreement.

14.3 Licenses. It is the holder of all licenses required to permit it to operate or conduct its business in Texas now and as contemplated by this Agreement.

14.4 No Breach. Neither the execution and delivery of this Agreement, nor the consummation of the transactions herein contemplated or compliance with the terms and provisions hereof will conflict with or result in a breach of, or require any consent under, the charter or by-laws of Contractor, or any Applicable Law or regulation, or any order, writ, injunction or decree of any court, or any agreement or instrument to which Contractor is a party or by which it is bound or to which it or any of its property or assets is subject, or constitute a default under any such agreement or instrument.

14.5 Corporate Action. It has all necessary power and authority to execute, deliver and perform its obligations under this Agreement; the execution, delivery and performance by Contractor of this Agreement has been duly authorized by all necessary action on its part; and this Agreement has been duly and validly executed and delivered by Contractor and constitutes a legal, valid and binding obligation of Contractor enforceable in accordance with its terms, except as the enforceability thereof may be limited by bankruptcy, insolvency, reorganization or moratorium or other similar laws relating to the enforcement of creditors’ rights generally.

14.6 Financial Solvency. It is financially solvent, able to pay all debts as they mature and possesses sufficient working capital to complete the Work and perform its obligations hereunder.

ARTICLE 15

OWNER’S REPRESENTATIONS

Owner represents and warrants as of the Contract Date that:

15.1 Standing. It is a limited liability company duly organized, validly existing and in good standing under the laws of Delaware, is qualified to do business in all jurisdictions in which the nature of the business conducted by it makes such qualification necessary and where failure so to qualify would have a material adverse effect on its financial condition, operations, prospects or business.

 

- 89 -


15.2 No Violation of Law; Litigation. It is not in violation of any Applicable Law, or judgment entered by any Governmental Instrumentality, which violations, individually or in the aggregate, would affect its performance of any obligations under this Agreement. There are no legal or arbitration proceedings or any proceeding by or before any Governmental Instrumentality, now pending or (to the best knowledge of Owner) threatened against Owner that, if adversely determined, could reasonably be expected to have a material adverse effect on the financial condition, operations, prospects or business, as a whole, of Owner, or its ability to perform under this Agreement.

15.3 Licenses. It is the holder of or will take the necessary action to obtain all Owner Permits under Attachment Q.

15.4 No Breach. Neither the execution and delivery of this Agreement, nor the consummation of the transactions herein contemplated or compliance with the terms and provisions hereof and thereof will conflict with or result in a breach of, or require any consent under, the constituent documents of Owner, any Applicable Law, any order, writ, injunction or decree of any court, or any agreement or instrument to which Owner is a party or by which it is bound or to which it or any of its property or assets is subject, or constitute a default under any such agreement or instrument.

15.5 Corporate Action. It has all necessary power and authority to execute, deliver and perform its obligations under this Agreement; the execution, delivery and performance by Owner of this Agreement has been duly authorized by all necessary action on its part; and this Agreement has been duly and validly executed and delivered by Owner and constitutes a legal, valid and binding obligation of Owner enforceable in accordance with its terms, except as the enforceability thereof may be limited by bankruptcy, insolvency, reorganization or moratorium or other similar laws relating to the enforcement of creditors’ rights generally.

15.6 Financial Solvency. Owner will have sufficient funds (as “sufficient funds” is defined in Section 4.1B), from itself and/or from financing from one or more Lenders, to enable it to fulfill its payment obligations under this Agreement.

ARTICLE 16

DEFAULT, TERMINATION AND SUSPENSION

16.1 Default by Contractor.

A. Owner Rights Upon Contractor Default. If Contractor shall at any time: (i) fail to commence the Work in accordance with the provisions of this Agreement; (ii) abandon the Work; (iii) repudiate or fail to materially comply with any of its material obligations under this Agreement; (iv) be in Default pursuant to Section 21.7; (v) fail to maintain insurance required under this Agreement; (vi) materially disregard Applicable Law or Applicable Standards and Codes; or (vii) itself or the Guarantor experience an Insolvency Event (each of the foregoing being a “Default”) then, Owner has the right (without prejudice to any other rights under the Agreement) to provide written notice to Contractor specifying the nature of the Default and demanding that such Default be cured. If: (a) with respect to any clause above (with the exception of clause (vii), which shall have no cure period in the event of a Contractor Insolvency Event, and with respect to an Insolvency Event for Guarantor, shall have the cure period specified below) (1) Contractor

 

- 90 -


fails to cure such Default within thirty (30) Days after receipt of such notice or, (2) if the Default cannot be cured within such thirty (30) Day period through the diligent exercise of all commercially practicable efforts, Contractor fails to diligently exercise all commercially practicable efforts to cure such condition or fails to cure such condition within ninety (90) Days after receipt of such notice to cure such Default; or (b) Contractor experiences an Insolvency Event, Owner, in the event of (a) or (b), at its sole option and, without prejudice to any other rights that it has under this Agreement and, upon notice to Contractor, may (y) take such steps as are reasonably necessary to overcome the Default condition, in which case Contractor shall be liable to Owner for any and all reasonable costs and expenses incurred by Owner in connection therewith, or (z) terminate for Default Contractor’s performance of all of the Work. If Guarantor experiences an Insolvency Event, Contractor shall within thirty (30) Days after receipt of Owner’s notice provide either (A) a replacement Parent Guarantee by an Affiliate of Contractor, which such form Parent Guarantee shall be in the same form as set forth in Attachment FF and the Affiliate of Contractor being subject to the approval of Owner and Owner’s Lender(s), or (B) security in the form of a surety bond, letter of credit or bank guarantee in a form and amount reasonably required by Lender(s) and Owner, taking into consideration the status of the Project at the time of the Insolvency Event and providing sufficient protection to complete the Work and satisfy all liabilities and obligations of Contractor under this Agreement.

B. Additional Rights of Owner Upon Termination. In the event that Owner terminates this Agreement for Default in accordance with Section 16.1A, then Owner may, at its sole option, (i) enter onto the Site and, for the purpose of completing the Work, take possession of the Project, Equipment, Construction Equipment, Work Product (subject to Section 10.1D), Books and Records and other items thereon owned or rented by Contractor (subject to the relevant Construction Equipment lease or rental agreements), (ii) take assignment of any or all of the Subcontracts, and/or (iii) either itself or through others complete the Work. If the unpaid balance of the Contract Price shall exceed all actual costs and expenses incurred by Owner on account of the termination for Default (including all costs incurred to complete the Work in accordance with the Project Schedule), then such excess shall be paid by Owner to Contractor, but such amount shall not be paid until after Final Completion has been achieved. If such amount incurred by Owner shall exceed the unpaid balance of the Contract Price, then, at Owner’s sole option, Contractor shall pay Owner the difference within ten (10) Days after receipt of written notice from Owner, or, after the expiration of such ten (10) Day period, Owner shall have the right and authority to offset or draw down on the Letter of Credit in the amount of such difference. For the avoidance of doubt, prior to exercising such right to offset or collect on the Letter of Credit, Owner shall not be required to provide the notice as set forth in Section 7.8. Contractor’s liability under this Section 16.1B is in addition to any other liability provided for under this Agreement and Owner shall have the right and authority to set off against and deduct from any such excess due Contractor by Owner any other liability of Contractor to Owner under this Agreement. Owner agrees to act reasonably to mitigate any costs it might incur in connection with any termination for Default. Subject to the limitation of liability set forth in Section 20.1, in addition to the amounts recoverable above in this Section 16.1B, Owner shall be entitled to delay damages under this Section 16.1B which, for this purpose, means (i) Delay Liquidated Damages owed by Contractor to Owner under this Agreement up to

 

- 91 -


the date of termination, and (ii) during the period commencing after termination and ending on the date Substantial Completion of each Subproject is achieved by a substitute contractor, the costs incurred during this period by such substitute contractor to accelerate the work in order to achieve the Guaranteed Substantial Completion Dates (as may have been adjusted by Change Order) contemplated by this Agreement.

C. Obligations Upon Termination. Upon termination for Default in accordance with Section 16.1A, Contractor shall (i) immediately discontinue Work on the date specified in the notice; (ii) place no further orders for Subcontracts, Equipment, or any other items or services; (iii) inventory, maintain and turn over to Owner all Construction Equipment owned by Contractor and (subject to the relevant Construction Equipment lease or rental agreements) all Construction Equipment rented by Contractor and, in each case, present on the Site prior to Contractor’s receipt of the termination notice or provided by Owner for performance of the terminated Work; (iv) promptly make every reasonable effort to procure assignment or cancellation upon terms satisfactory to Owner of all Subcontracts, including rental agreements; (v) cooperate with Owner in the transfer of Work Product (subject to Section 10.1D), including Drawings and Specifications, Permits and any other items or information and disposition of Work in progress so as to mitigate damages; (vi) comply with other reasonable requests from Owner regarding the terminated Work; (vii) thereafter preserve and protect Work already in progress and to protect Equipment at the Site or in transit thereto, and to comply with any Applicable Law and any Applicable Codes and Standards; and (viii) perform all other obligations under Section 16.1B.

16.2 Termination for Convenience by Owner. Owner shall have the right to terminate this Agreement for its convenience by providing Contractor with a written notice of termination, to be effective upon receipt by Contractor. Upon termination for convenience, Contractor shall (i) immediately discontinue the Work on the date of the notice; (ii) place no further orders for Subcontracts, Equipment, or any other items or services; (iii) promptly make every reasonable effort to procure cancellation upon terms satisfactory to Owner and Contractor of all Subcontracts, including rental agreements, unless Owner elects to take assignment of any such Subcontracts; (iv) assist Owner in the maintenance, protection, and disposition of Work in progress, including Equipment at the Site or in transit to the Site; (v) cooperate with Owner for the efficient transition of the Work; and (vi) cooperate with Owner in the transfer of Work Product (subject to Section 10.1D), including Drawings and Specifications, Permits and any other items or information and disposition of Work in progress and Owner may, at its sole option, take assignment of any or all of the Subcontracts. Contractor shall be paid the following amounts no later than twenty-five (25) Days after submission of Contractor’s invoice(s) therefor:

A. the portion of the Contract Price for the Work performed prior to termination, less that portion of the Contract Price previously paid to Contractor;

B. actual costs reasonably incurred by Contractor on account of such termination (which costs shall be adequately documented and supported by Contractor), including cancellation charges owed by Contractor to Subcontractors (provided that Owner does not take assignment of such Subcontracts) and costs associated with demobilization of Contractor’s and Subcontractors’ personnel and Construction Equipment; and

 

- 92 -


C. in respect of loss of profit, Owner shall pay Contractor a fixed amount in accordance with the following:

1. If the Agreement is terminated (a) prior to issuance of NTP and (b) prior to July 1, 2014, One Million U.S. Dollars (U.S.$1,000,000.00);

2. If the Agreement is terminated (a) prior to issuance of NTP and (b) after July 1, 2014 and on or before December 31, 2015, Two Million Five Hundred Thousand U.S. Dollars (U.S.$2,500,000.00); and

3. If the Agreement is terminated after issuance of NTP, a percentage of the unpaid portion of the Contract Price in accordance with the following schedule; provided that such amount shall not exceed Thirty Million U.S. Dollars (U.S.$30,000,000):

 

Date of Termination

   Amount Based on Unpaid
Portion of the Contract
Price

1 to 365 Days after issuance of NTP

   One percent (1%)

366 to 730 Days after issuance of NTP

   Two percent (2%)

731 to 1095 Days after issuance of NTP

   Three percent (3%)

1096 to 1460 Days after issuance of NTP

   Four percent (4%)

1461 Days after issuance of NTP and thereafter

   Five percent (5%)

16.3 Suspension of Work. Owner may, for any reason, at any time and from time to time, by giving thirty (30) Days’ prior written notice to Contractor, suspend the carrying out of the Work or any part thereof, whereupon Contractor shall suspend the carrying out of such suspended Work for such time or times as Owner may require and shall take reasonable steps to minimize any costs associated with such suspension. During any such suspension, Contractor shall properly protect and secure such suspended Work in such manner as Owner may reasonably require. Unless otherwise instructed by Owner, Contractor shall during any such suspension maintain its staff and labor on or near the Site and otherwise be ready to proceed expeditiously with the Work as soon as reasonably practicable after receipt of Owner’s further instructions. Except where such suspension ordered by Owner is the result of or due to the fault or negligence of Contractor or any Subcontractor or Sub-subcontractor, Contractor shall be entitled to a Change Order to recover the reasonable costs of such suspension, including demobilization and remobilization costs, if necessary, and a time extension to the Project Schedule if and to the extent permitted under Section 6.9. As soon as reasonably practicable after receipt of notice to resume suspended Work, Contractor shall promptly resume performance of the Work to the extent required in the notice. In no event shall Contractor be entitled to any additional profits or damages due to such suspension. After issuance of NTP, in the event that Owner suspends all of the Work and such suspension (i) continues for an individual period exceeding ninety (90) consecutive Days, or (ii) in the event that

 

- 93 -


one or more suspension periods continue for more than one hundred and twenty (120) Days in the cumulative aggregate, and provided that such suspension is not due to the fault or negligence of Contractor or any Subcontractor or Sub-subcontractor or an event of Force Majeure, then Contractor shall have the right to terminate this Agreement by providing fourteen (14) Days’ written notice to Owner. In the event of such termination, Contractor shall have the rights (and Owner shall make the payments) provided for in Section 16.2.

16.4 Suspension by Contractor.

A. Suspension by Contractor for Owner’s Failure to Pay Undisputed Amounts. If Owner fails to pay any undisputed amount due and owing to Contractor and such failure continues for more than fifteen (15) Days after the due date for such payment, then Contractor may suspend performance of the Work until Contractor receives such undisputed amounts. Prior to any such suspension, Contractor shall provide Owner with at least fourteen (14) Days’ prior written notice of its intent to suspend performance of the Work, which notice may be given before expiration of the above fifteen (15) Day window for non-payment. Contractor shall be entitled to a Change Order on account of any suspension in accordance with this Section 16.4A; provided that Contractor complies with the requirements in Sections 6.2, 6.5 and 6.9.

B. Suspension by Contractor for Owner’s Failure to Fund Escrow Account. If Owner fails, in accordance with Section 18.4, to escrow disputed and unpaid amounts in excess of Ten Million U.S. Dollars (U.S.$10,000,000) and such failure continues for more than fifteen (15) Days after the time by which Owner is required to escrow amounts in accordance with Section 18.4 for such disputed and unpaid amounts, then Contractor may suspend performance of the Work until Owner escrows any disputed and unpaid amounts exceeding Ten Million U.S. Dollars (U.S.$10,000,000). Prior to any such suspension, Contractor shall provide Owner with at least ten (10) Days’ prior written notice of its intent to suspend performance of the Work. Contractor shall be entitled to a Change Order on account of any suspension in accordance with this Section 16.4B; provided that Contractor complies with the requirements in Sections 6.2, 6.5 and 6.9.

C. Undisputed Amounts. An amount shall be considered “undisputed” under Sections 16.4A and 16.5 if the amount invoiced by Contractor is contested in bad faith by Owner or if Owner has failed to give notice of a disputed amount in accordance with Section 7.2E by the due date for payment of the applicable invoiced amount.

D. Suspension by Contractor for Owner’s Failure to Deliver an Owner Quarterly Confirmation. If Owner fails to deliver the Owner Quarterly Confirmation in accordance with Section 4.1A or an Owner Quarterly Confirmation indicates that either (A) Owner does not have sufficient funds (as “sufficient funds” is defined in Section 4.1B) to continue to fulfill its payment obligations or (B) an event has come to the attention of Owner which would materially and adversely affect the continued availability of such funding then, Contractor may, upon providing thirty (30) Days’ written notice to Owner (and provided that Owner does not cure such circumstance within such thirty (30) Day period), suspend performance of the Work until Owner delivers to Contactor an Owner Quarterly Confirmation meeting the criteria set forth in Section 4.1. Contractor shall be entitled to a Change Order on account of any suspension in accordance with this Section 16.4D, provided that Contractor complies with the requirements in Sections 6.2, 6.5 and 6.9.

 

- 94 -


16.5 Termination by Contractor. If Owner shall at any time: (i) fail to pay any undisputed amount; (ii) fail to materially comply with any of its material obligations under this Agreement (but only to the extent such material failure and the impact thereof is not subject to adjustment by Change Order as set forth in Section 6.2); or (iii) experience an Insolvency Event (each of the foregoing being an “Owner Default”) then, Contractor has the right (without prejudice to any other rights under the Agreement) to provide written notice to Owner specifying the nature of the Owner Default and demanding that such Owner Default be cured. If (a) with respect to clause (i) Owner fails to cure such Owner Default within thirty (30) Days after receipt of such notice; (b) with respect to clause (ii), (1) Owner fails to cure such Owner Default within forty-five (45) Days after receipt of such notice or, (2) if the Owner Default cannot be cured within such forty five (45) Day period through the diligent exercise of all commercially practicable efforts, Owner fails to diligently exercise all commercially practicable efforts to cure such condition or fails to cure such condition within ninety (90) Days after receipt of such notice to cure such Owner Default; or (c) Owner experiences an Insolvency Event, Contractor may, in the event of (a), (b) or (c), at its sole option and without prejudice to any other rights that it has under this Agreement, and upon notice to Owner, terminate this Agreement. In the event of such termination under this Section 16.5, Contractor shall have the rights (and Owner shall make the payments) provided for in Section 16.2 in the event of an Owner termination for convenience.

16.6 Termination in the Event of an Extended Force Majeure. After issuance of NTP, in the event (i) any one Force Majeure event or the effects thereof causes suspension of a substantial portion of the Work for a period exceeding one hundred (100) consecutive Days or (ii) any one or more Force Majeure events or the effects thereof causes suspension of a substantial portion of the Work for a period exceeding one hundred and eighty (180) Days in the aggregate during any continuous twenty-four (24) month period, then either Party shall have the right to terminate this Agreement by providing fourteen (14) Days’ written notice of termination to the other Party, to be effective upon receipt by such other Party. In the event of such termination, Contractor shall have the rights (and Owner shall make the payments) provided for in Section 16.2.

16.7 Termination in the Event of Delayed Notice to Proceed. In the event Owner fails to issue the NTP in accordance with Section 5.2B by December 31, 2015 (as may be extended by mutual agreement by the Parties), then either Party shall have the right to terminate this Agreement by providing written notice of termination to the other Party, to be effective upon receipt by the other Party. In the event of such termination, Contractor shall have the rights (and Owner shall make the payments) provided for in Section 16.2, except that, in respect of loss of profit, Contractor shall only be entitled to a fixed amount equal to Five Million U.S. Dollars (U.S.$5,000,000.00).

16.8 Contractor’s Right to Terminate. Contractor’s sole right to terminate this Agreement is specified in Sections 16.3, 16.5, 16.6 and 16.7.

 

- 95 -


ARTICLE 17

RELEASES AND INDEMNITIES

17.1 General Indemnification. IN ADDITION TO ITS INDEMNIFICATION, DEFENSE AND HOLD HARMLESS OBLIGATIONS CONTAINED ELSEWHERE IN THIS AGREEMENT, CONTRACTOR SHALL INDEMNIFY, HOLD HARMLESS AND DEFEND THE OWNER GROUP FROM ANY AND ALL DAMAGES, LOSSES, COSTS AND EXPENSES (INCLUDING ALL REASONABLE ATTORNEYSFEES AND LITIGATION OR ARBITRATION EXPENSES) TO THE EXTENT THAT SUCH DAMAGES, LOSSES, COSTS AND EXPENSES RESULT FROM ANY OF THE FOLLOWING:

A. FAILURE OF CONTRACTOR OR ITS SUBCONTRACTORS OR SUB-SUBCONTRACTORS TO COMPLY WITH APPLICABLE LAW; PROVIDED THAT THIS INDEMNITY SHALL BE LIMITED TO FINES AND PENALTIES IMPOSED ON OWNER GROUP AND RESULTING FROM THE FAILURE OF CONTRACTOR OR ITS SUBCONTRACTORS OR SUB-SUBCONTRACTORS TO COMPLY WITH APPLICABLE LAW EXCEPT ANY PORTION OF THE AMOUNT OF SUCH FINES AND PENALTIES ATTRIBUTABLE TO PRIOR VIOLATIONS BY OWNER OF APPLICABLE LAWS RELATING TO HAZARDOUS MATERIALS FOR WHICH OWNER IS RESPONSIBLE UNDER SECTION 4.7;

B. ANY AND ALL DAMAGES, LOSSES, COSTS AND EXPENSES SUFFERED BY A THIRD PARTY AND RESULTING FROM ACTUAL OR ASSERTED VIOLATION OR INFRINGEMENT OF ANY DOMESTIC OR FOREIGN PATENTS, COPYRIGHTS OR TRADEMARKS OR OTHER INTELLECTUAL PROPERTY OWNED BY A THIRD PARTY TO THE EXTENT THAT SUCH VIOLATION OR INFRINGEMENT RESULTS FROM PERFORMANCE OF THE WORK BY CONTRACTOR OR ANY OF ITS SUBCONTRACTORS OR SUB-SUBCONTRACTORS, OR ANY IMPROPER USE OF THIRD PARTY CONFIDENTIAL INFORMATION OR OTHER THIRD PARTY PROPRIETARY RIGHTS THAT MAY BE ATTRIBUTABLE TO CONTRACTOR OR ANY SUBCONTRACTOR OR SUB-SUBCONTRACTOR IN CONNECTION WITH THE WORK (BUT EXCLUDING INFRINGEMENT BASED UPON ANY WORK OR DESIGNS RELATING TO THE OPERATION OF THE OPTIMIZED CASCADE PROCESS);

C. CONTAMINATION OR POLLUTION SUFFERED BY A THIRD PARTY TO THE EXTENT RESULTING FROM CONTRACTORS OR ANY SUBCONTRACTORS OR SUB-SUBCONTRACTORS USE, HANDLING OR DISPOSAL OF HAZARDOUS MATERIALS BROUGHT ON THE SITE OR ON THE OFF-SITE RIGHTS OF WAYS AND EASEMENTS BY CONTRACTOR OR ANY SUBCONTRACTOR OR SUB-SUBCONTRACTOR; PROVIDED THAT CONTRACTOR SHALL NOT HAVE RESPONSIBILITY FOR ANY SUCH HAZARDOUS MATERIALS THAT OWNER EXPRESSLY PERMITS IN WRITING TO REMAIN ON SITE AFTER SUBSTANTIAL COMPLETION;

D. FAILURE BY CONTRACTOR OR ANY SUBCONTRACTOR OR SUB-SUBCONTRACTOR TO PAY TAXES FOR WHICH SUCH PERSON IS LIABLE;

E. FAILURE OF CONTRACTOR TO MAKE PAYMENTS TO ANY SUBCONTRACTOR IN ACCORDANCE WITH THE RESPECTIVE SUBCONTRACT, BUT NOT EXTENDING TO ANY SETTLEMENT PAYMENT MADE BY OWNER TO ANY SUBCONTRACTOR AGAINST WHICH CONTRACTOR HAS PENDING OR PROSPECTIVE CLAIMS, UNLESS SUCH SETTLEMENT IS MADE WITH CONTRACTORS CONSENT, EXCEPT AFTER ASSUMPTION OF SUCH SUBCONTRACT BY OWNER IN ACCORDANCE WITH SECTION 16.1B;

 

- 96 -


F. PERSONAL INJURY TO OR DEATH OF ANY PERSON (OTHER THAN EMPLOYEES OF ANY MEMBER OF THE CONTRACTOR GROUP, THE OWNER GROUP OR ANY SUBCONTRACTOR OR SUB-SUBCONTRACTOR), AND DAMAGE TO OR DESTRUCTION OF PROPERTY OF THIRD PARTIES TO THE EXTENT ARISING OUT OF OR RESULTING FROM THE NEGLIGENCE, IN CONNECTION WITH THE WORK, OF ANY MEMBER OF THE CONTRACTOR GROUP OR ANY SUBCONTRACTOR OR SUB-SUBCONTRACTOR OR ANYONE DIRECTLY OR INDIRECTLY EMPLOYED BY THEM; OR

G. DAMAGE TO OR DESTRUCTION OF SUBPROJECT 1 OR SUBPROJECT 2 (AFTER THE EARLIER OF SUBSTANTIAL COMPLETION OF EACH SUCH SUBPROJECT OR TERMINATION OF THIS AGREEMENT) OR SUBPROJECT 3 (AFTER THE EARLIER OF SUBSTANTIAL COMPLETION OR TERMINATION OF THE STAGE 2 EPC AGREEMENT) TO THE EXTENT ARISING OUT OF OR RESULTING FROM THE NEGLIGENCE, IN CONNECTION WITH THE WORK, OF ANY MEMBER OF THE CONTRACTOR GROUP OR ANY SUBCONTRACTOR OR SUB-SUBCONTRACTOR OR ANYONE DIRECTLY OR INDIRECTLY EMPLOYED BY THEM, PROVIDED THAT CONTRACTORS LIABILITY HEREUNDER FOR DAMAGE TO OR DESTRUCTION OF (I) SUBPROJECT 1 OR SUBPROJECT 2 (AFTER THE EARLIER OF SUBSTANTIAL COMPLETION OF EACH SUCH SUBPROJECT OR TERMINATION OF THIS AGREEMENT) SHALL NOT EXCEED ONE MILLION U.S. DOLLARS (U.S.$1,000,000) PER OCCURRENCE OR (II) SUBPROJECT 3 (AFTER THE EARLIER OF SUBSTANTIAL COMPLETION OR TERMINATION OF THE STAGE 2 EPC AGREEMENT) SHALL NOT EXCEED ONE MILLION U.S. DOLLARS (U.S.$1,000,000) PER OCCURRENCE. FOR THE AVOIDANCE OF DOUBT, ANY SUCH LIABILITY OF CONTRACTOR SHALL NOT EXCEED ONE MILLION U.S. DOLLARS (U.S.$1,000,000) PER OCCURRENCE IN THE TOTAL CUMULATIVE AGGREGATE UNDER THE STAGE 2 EPC AGREEMENT AND THIS AGREEMENT.

17.2 Injuries to Contractor’s Employees and Damage to Contractor’s Property.

A. NOTWITHSTANDING THE PROVISIONS OF SECTION 17.1F, AND EXCEPT AS OTHERWISE PROVIDED IN SECTION 4.7, CONTRACTOR SHALL RELEASE, DEFEND, INDEMNIFY AND HOLD HARMLESS THE OWNER GROUP FROM AND AGAINST ALL DAMAGES, LOSSES, COSTS AND EXPENSES (INCLUDING ALL REASONABLE ATTORNEYSFEES, AND LITIGATION OR ARBITRATION EXPENSES) ARISING OUT OF OR RESULTING FROM OR RELATED TO INJURY TO OR DEATH OF EMPLOYEES, OFFICERS OR DIRECTORS OF ANY MEMBER OF THE CONTRACTOR GROUP OR ANY SUBCONTRACTOR OR SUB-SUBCONTRACTOR OCCURRING IN CONNECTION WITH THE WORK OR THE PROJECT, REGARDLESS OF THE CAUSE OF SUCH INJURY, DEATH, DAMAGE OR DESTRUCTION, INCLUDING THE SOLE OR JOINT NEGLIGENCE, BREACH OF CONTRACT OR OTHER BASIS OF LIABILITY OF ANY MEMBER OF THE OWNER GROUP.

B. NOTWITHSTANDING THE PROVISIONS OF SECTION 17.1F, AND EXCEPT AS OTHERWISE PROVIDED IN SECTION 4.7, CONTRACTOR SHALL WAIVE AND RELEASE (AND SHALL CAUSE THE CONTRACTOR GROUP AND SUBCONTRACTORS AND SUB-SUBCONTRACTORS TO WAIVE AND RELEASE) THE OWNER GROUP FROM AND AGAINST ALL DAMAGES, LOSSES, COSTS AND EXPENSES (INCLUDING ALL REASONABLE ATTORNEYSFEES, AND LITIGATION OR ARBITRATION EXPENSES) ARISING OUT OF OR RESULTING FROM DAMAGE TO OR DESTRUCTION OF PROPERTY OF ANY MEMBER OF THE CONTRACTOR GROUP OR ANY SUBCONTRACTOR OR SUB-SUBCONTRACTOR OCCURRING IN CONNECTION WITH THE WORK OR THE PROJECT, REGARDLESS OF THE CAUSE OF SUCH DAMAGE OR DESTRUCTION, INCLUDING THE SOLE OR JOINT NEGLIGENCE, BREACH OF CONTRACT OR OTHER BASIS OF LIABILITY OF ANY MEMBER OF THE OWNER GROUP.

 

- 97 -


C. NOTWITHSTANDING THE PROVISIONS OF SECTION 17.1F, AND EXCEPT AS OTHERWISE PROVIDED IN SECTION 4.7, CONTRACTOR SHALL DEFEND, INDEMNIFY AND HOLD HARMLESS THE OWNER GROUP FROM AND AGAINST ALL DAMAGES, LOSSES, COSTS AND EXPENSES (INCLUDING ALL REASONABLE ATTORNEYSFEES, AND LITIGATION OR ARBITRATION EXPENSES) ARISING OUT OF OR RESULTING FROM DAMAGE TO OR DESTRUCTION OF PROPERTY OF ANY MEMBER OF THE CONTRACTOR GROUP OR ANY SUBCONTRACTOR OR SUB-SUBCONTRACTOR OCCURRING IN CONNECTION WITH THE WORK OR THE PROJECT, REGARDLESS OF THE CAUSE OF SUCH DAMAGE OR DESTRUCTION, INCLUDING THE SOLE OR JOINT NEGLIGENCE, BREACH OF CONTRACT OR OTHER BASIS OF LIABILITY OF ANY MEMBER OF THE OWNER GROUP.

17.3 Injuries to Owner’s Employees and Damage to Owner’s Property.

A. EXCEPT AS OTHERWISE PROVIDED IN SECTIONS 3.17 AND 17.1C, OWNER SHALL RELEASE, DEFEND, INDEMNIFY AND HOLD HARMLESS THE CONTRACTOR GROUP AND SUBCONTRACTORS AND SUB-SUBCONTRACTORS FROM AND AGAINST ALL DAMAGES, LOSSES, COSTS AND EXPENSES (INCLUDING ALL REASONABLE ATTORNEYSFEES, AND LITIGATION OR ARBITRATION EXPENSES) RESULTING FROM OR RELATED TO INJURY TO OR DEATH OF ANY MEMBER OF THE OWNER GROUP OR EMPLOYEES OF OWNERS OTHER CONTRACTORS OCCURRING IN CONNECTION WITH THE PROJECT, REGARDLESS OF THE CAUSE OF SUCH INJURY, DEATH, DAMAGE OR DESTRUCTION, INCLUDING THE SOLE OR JOINT NEGLIGENCE, BREACH OF CONTRACT OR OTHER BASIS OF LIABILITY OF ANY MEMBER OF THE CONTRACTOR GROUP.

B. EXCEPT AS OTHERWISE PROVIDED IN SECTIONS 3.17 AND 17.1C, OWNER SHALL WAIVE AND RELEASE (AND SHALL CAUSE THE OWNER GROUP TO WAIVE AND RELEASE) THE CONTRACTOR GROUP AND SUBCONTRACTORS AND SUB-SUBCONTRACTORS FROM AND AGAINST ALL DAMAGES, LOSSES, COSTS AND EXPENSES (INCLUDING ALL REASONABLE ATTORNEYSFEES, AND LITIGATION OR ARBITRATION EXPENSES) RESULTING FROM OR RELATED TO DAMAGE TO OR DESTRUCTION OF PROPERTY OF OWNER GROUP (EXCLUDING THE WORK, THE STAGE 1 LIQUEFACTION FACILITY, THE STAGE 2 LIQUEFACTION FACILITY AND THE PROJECT) OR OF OWNERS OTHER CONTRACTORS OCCURRING IN CONNECTION WITH THE PROJECT, REGARDLESS OF THE CAUSE OF SUCH DAMAGE OR DESTRUCTION, INCLUDING THE SOLE OR JOINT NEGLIGENCE, BREACH OF CONTRACT OR OTHER BASIS OF LIABILITY OF ANY MEMBER OF THE CONTRACTOR GROUP.

C. EXCEPT AS OTHERWISE PROVIDED IN SECTIONS 3.17 AND 17.1C, OWNER SHALL DEFEND, INDEMNIFY AND HOLD HARMLESS THE CONTRACTOR GROUP AND SUBCONTRACTORS AND SUB-SUBCONTRACTORS FROM AND AGAINST ALL DAMAGES, LOSSES, COSTS AND EXPENSES (INCLUDING ALL REASONABLE ATTORNEYSFEES, AND LITIGATION OR ARBITRATION EXPENSES) RESULTING FROM OR RELATED TO DAMAGE TO OR DESTRUCTION OF PROPERTY OF OWNER GROUP (EXCLUDING THE WORK, THE STAGE 1 LIQUEFACTION FACILITY, THE STAGE 2 LIQUEFACTION FACILITY AND THE PROJECT,) OR OF OWNERS OTHER CONTRACTORS OCCURRING IN CONNECTION WITH THE PROJECT, REGARDLESS OF THE CAUSE OF SUCH DAMAGE OR DESTRUCTION, INCLUDING THE SOLE OR JOINT NEGLIGENCE, BREACH OF CONTRACT OR OTHER BASIS OF LIABILITY OF ANY MEMBER OF THE CONTRACTOR GROUP.

 

- 98 -


D. IN ADDITION TO, AND NOT IN LIEU OF THE FOREGOING, AND REGARDLESS OF THE CAUSE OF ANY SUCH DAMAGE OR DESTRUCTION, INCLUDING THE SOLE OR JOINT NEGLIGENCE, BREACH OF CONTRACT OR OTHER BASIS OF LIABILITY OF ANY MEMBER OF THE CONTRACTOR GROUP, SUBCONTRACTOR OR SUB-SUBCONTRACTOR, OWNER SHALL WAIVE AND RELEASE THE CONTRACTOR GROUP AND ANY SUBCONTRACTOR OR SUB-SUBCONTRACTOR FROM AND AGAINST ALL DAMAGES, LOSSES, COSTS AND EXPENSES (INCLUDING ALL REASONABLE ATTORNEYSFEES, AND LITIGATION OR ARBITRATION EXPENSES) RESULTING FROM OR RELATED TO: (A) DAMAGE TO OR DESTRUCTION OF SUBPROJECT 1 OR SUBPROJECT 2 (AFTER THE EARLIER OF SUBSTANTIAL COMPLETION OF SUCH SUBPROJECT OR TERMINATION OF THIS AGREEMENT) TO THE EXTENT THAT SUCH DAMAGES, LOSSES, COSTS AND EXPENSES (INCLUDING ALL REASONABLE ATTORNEYSFEES, AND LITIGATION OR ARBITRATION EXPENSES) EXCEED ONE MILLION U.S. DOLLARS (U.S.$1,000,000) PER OCCURRENCE; (B) DAMAGE TO OR DESTRUCTION OF SUBPROJECT 3 (AFTER THE EARLIER OF SUBSTANTIAL COMPLETION OR TERMINATION OF THE STAGE 2 EPC AGREEMENT) TO THE EXTENT THAT SUCH DAMAGES, LOSSES, COSTS AND EXPENSES (INCLUDING ALL REASONABLE ATTORNEYSFEES, AND LITIGATION OR ARBITRATION EXPENSES) EXCEED ONE MILLION U.S. DOLLARS (U.S.$1,000,000) PER OCCURRENCE OR (C) DAMAGE TO OR DESTRUCTION OF PROPERTY CONSTITUTING, OR TO BE INCORPORATED INTO OR BECOME A PART OF THE STAGE 1 LIQUEFACTION FACILITY FOR WHICH THE OWNER BEARS THE RISK OF PHYSICAL LOSS OR DAMAGE PURSUANT TO SECTION 8.2A; PROVIDED, HOWEVER, THIS SECTION 17.3D SHALL NOT RELIEVE CONTRACTOR OF ANY OF ITS OBLIGATIONS UNDER SECTION 12.3 OR ANY OF CONTRACTORS OBLIGATIONS UNDER SECTION 12.3 OF THE STAGE 2 EPC AGREEMENT.

E. IN ADDITION TO, AND NOT IN LIEU OF THE FOREGOING, AND REGARDLESS OF THE CAUSE OF ANY SUCH DAMAGE OR DESTRUCTION, INCLUDING THE SOLE OR JOINT NEGLIGENCE, BREACH OF CONTRACT OR OTHER BASIS OF LIABILITY OF ANY MEMBER OF THE CONTRACTOR GROUP, SUBCONTRACTOR OR SUB-SUBCONTRACTOR, OWNER SHALL DEFEND, INDEMNIFY AND HOLD HARMLESS THE CONTRACTOR GROUP AND ANY SUBCONTRACTOR OR SUB-SUBCONTRACTOR FROM AND AGAINST ALL DAMAGES, LOSSES, COSTS AND EXPENSES (INCLUDING ALL REASONABLE ATTORNEYSFEES, AND LITIGATION OR ARBITRATION EXPENSES) RESULTING FROM OR RELATED TO: (A) DAMAGE TO OR DESTRUCTION OF SUBPROJECT 3 (AFTER THE EARLIER OF SUBSTANTIAL COMPLETION OR TERMINATION OF THE STAGE 2 EPC AGREEMENT) TO THE EXTENT THAT SUCH DAMAGES, LOSSES, COSTS AND EXPENSES (INCLUDING ALL REASONABLE ATTORNEYSFEES, AND LITIGATION OR ARBITRATION EXPENSES) EXCEED ONE MILLION U.S. DOLLARS (U.S.$1,000,000) PER OCCURRENCE; (BDAMAGE TO OR DESTRUCTION OF SUBPROJECT 1 OR 2 (AFTER THE EARLIER OF SUBSTANTIAL COMPLETION OF SUCH SUBPROJECT OR TERMINATION OF THIS AGREEMENT) TO THE EXTENT THAT SUCH DAMAGES, LOSSES, COSTS AND EXPENSES (INCLUDING ALL REASONABLE ATTORNEYSFEES, AND LITIGATION OR ARBITRATION EXPENSES) EXCEED ONE MILLION U.S. DOLLARS (U.S.$1,000,000) PER OCCURRENCE; OR (CDAMAGE TO OR DESTRUCTION OF PROPERTY CONSTITUTING, OR TO BE INCORPORATED INTO OR BECOME A PART OF THE STAGE 1 LIQUEFACTION FACILITY FOR WHICH THE OWNER BEARS THE RISK OF PHYSICAL LOSS OR DAMAGE PURSUANT TO SECTION 8.2A; PROVIDED, HOWEVER, THIS SECTION 17.3E SHALL NOT RELIEVE CONTRACTOR OF ANY OF ITS OBLIGATIONS UNDER SECTION 12.3 OR ANY OF CONTRACTORS OBLIGATIONS UNDER SECTION 12.3 OF THE STAGE 2 EPC AGREEMENT.

 

- 99 -


17.4 Patent and Copyright Indemnification Procedure. IN THE EVENT THAT ANY VIOLATION OR INFRINGEMENT FOR WHICH CONTRACTOR IS RESPONSIBLE TO INDEMNIFY THE OWNER GROUP AS SET FORTH IN SECTION 17.1B RESULTS IN ANY SUIT, CLAIM, TEMPORARY RESTRAINING ORDER OR PRELIMINARY INJUNCTION CONTRACTOR SHALL, IN ADDITION TO ITS OBLIGATIONS UNDER SECTION 17.1B, MAKE EVERY REASONABLE EFFORT, BY GIVING A SATISFACTORY BOND OR OTHERWISE, TO SECURE THE SUSPENSION OF THE INJUNCTION OR RESTRAINING ORDER. IF, IN ANY SUCH SUIT OR CLAIM, THE WORK, THE PROJECT, OR ANY PART, COMBINATION OR PROCESS THEREOF, IS HELD TO CONSTITUTE AN INFRINGEMENT AND ITS USE IS PRELIMINARILY OR PERMANENTLY ENJOINED, CONTRACTOR SHALL PROMPTLY MAKE EVERY REASONABLE EFFORT TO SECURE FOR OWNER A LICENSE, AT NO COST TO OWNER, AUTHORIZING CONTINUED USE OF THE INFRINGING WORK. IF CONTRACTOR IS UNABLE TO SECURE SUCH A LICENSE WITHIN A REASONABLE TIME, CONTRACTOR SHALL, AT ITS OWN EXPENSE AND WITHOUT IMPAIRING PERFORMANCE REQUIREMENTS, EITHER REPLACE THE AFFECTED WORK, IN WHOLE OR PART, WITH NON-INFRINGING COMPONENTS OR PARTS OR MODIFY THE SAME SO THAT THEY BECOME NON-INFRINGING.

17.5 Lien Indemnification. SHOULD CONTRACTOR OR ANY SUBCONTRACTOR OR SUB-SUBCONTRACTOR OR ANY OTHER PERSON, INCLUDING ANY CONSTRUCTION EQUIPMENT LESSOR, ACTING THROUGH OR UNDER ANY OF THEM FILE A LIEN OR OTHER ENCUMBRANCE AGAINST ALL OR ANY PORTION OF THE WORK, THE SITE OR THE PROJECT, CONTRACTOR SHALL, AT ITS SOLE COST AND EXPENSE, REMOVE OR DISCHARGE, BY PAYMENT, BOND OR OTHERWISE, SUCH LIEN OR ENCUMBRANCE WITHIN TWENTY-ONE (21) DAYS OF CONTRACTORS RECEIPT OF WRITTEN NOTICE FROM OWNER NOTIFYING CONTRACTOR OF SUCH LIEN OR ENCUMBRANCE; PROVIDED THAT OWNER SHALL HAVE MADE PAYMENT OF ALL AMOUNTS PROPERLY DUE AND OWING TO CONTRACTOR UNDER THIS AGREEMENT, OTHER THAN AMOUNTS DISPUTED IN ACCORDANCE WITH SECTION 7.2E. IF CONTRACTOR FAILS TO REMOVE OR DISCHARGE ANY SUCH LIEN OR ENCUMBRANCE WITHIN SUCH TWENTY-ONE (21) DAY PERIOD IN CIRCUMSTANCES WHERE OWNER HAS MADE PAYMENT OF ALL AMOUNTS PROPERLY DUE AND OWING TO CONTRACTOR UNDER THIS AGREEMENT, OTHER THAN AMOUNTS DISPUTED IN ACCORDANCE WITH SECTION 7.2E, THEN OWNER OR OWNERS TITLE INSURANCE COMPANY MAY, EACH IN THEIR SOLE DISCRETION AND IN ADDITION TO ANY OTHER RIGHTS THAT OWNER HAS UNDER THIS AGREEMENT, REMOVE OR DISCHARGE SUCH LIEN AND ENCUMBRANCE USING WHATEVER MEANS THAT OWNER OR OWNERS TITLE INSURANCE COMPANY, EACH IN THEIR SOLE DISCRETION, DEEMS APPROPRIATE, INCLUDING THE PAYMENT OF SETTLEMENT AMOUNTS THAT OWNER OR OWNERS TITLE INSURANCE COMPANY DETERMINES IN THEIR SOLE DISCRETION AS BEING NECESSARY TO REMOVE OR DISCHARGE SUCH LIEN OR ENCUMBRANCE. IN SUCH CIRCUMSTANCE, CONTRACTOR SHALL BE LIABLE TO OWNER FOR AND SHALL INDEMNIFY, DEFEND AND HOLD HARMLESS THE OWNER INDEMNIFIED PARTIES AND OWNERS TITLE INSURANCE COMPANY FROM ALL DAMAGES, COSTS, LOSSES AND EXPENSES (INCLUDING ALL REASONABLE ATTORNEYSFEES, CONSULTANT FEES AND ARBITRATION EXPENSES, AND SETTLEMENT PAYMENTS) ARISING OUT OF OR RELATING TO SUCH REMOVAL OR DISCHARGE. ALL SUCH DAMAGES, COSTS, LOSSES AND EXPENSES SHALL BE PAID BY CONTRACTOR NO LATER THAN THIRTY (30) DAYS AFTER RECEIPT OF EACH INVOICE FROM OWNER.

 

- 100 -


A. NOTWITHSTANDING ANYTHING TO THE CONTRARY IN THIS AGREEMENT, THE SCOPE OF CONTRACTORS INDEMNITY OBLIGATION IN SECTION 17.5 WITH RESPECT TO OWNERS TITLE INSURANCE COMPANY: (IDOES NOT EXTEND TO ANY LIENS FOR WORK PERFORMED UNDER THE STAGE 2 EPC AGREEMENT; (IIIS NO GREATER THAN WOULD BE IF THE INDEMNITY EXTENDED ONLY TO OWNER INDEMNIFIED PARTIES AND (IIIDOES NOT INCLUDE ANY CONSEQUENTIAL DAMAGES OF OR ASSERTED AGAINST THE OWNERS TITLE INSURANCE COMPANY.

17.6 Owner’s Failure to Comply with Applicable Law. OWNER SHALL DEFEND, INDEMNIFY AND HOLD HARMLESS THE CONTRACTOR GROUP FROM ANY AND ALL DAMAGES, LOSSES, COSTS AND EXPENSES (INCLUDING ALL REASONABLE ATTORNEYSFEES AND LITIGATION OR ARBITRATION EXPENSES) ARISING OUT OF OR RESULTING FROM THE FAILURE OF ANY MEMBER OF OWNER GROUP TO COMPLY WITH APPLICABLE LAW; PROVIDED THAT THIS INDEMNITY SHALL BE LIMITED TO FINES AND PENALTIES IMPOSED ON CONTRACTOR GROUP AND RESULTING FROM OWNERS FAILURE TO COMPLY WITH APPLICABLE LAW.

17.7 Landowner Claims.

A. SUBJECT TO CONTRACTORS INDEMNIFICATION OBLIGATIONS SET FORTH IN SECTIONS 17.1A AND 17.1C, AND EXCEPT AS OTHERWISE PROVIDED FOR IN SECTION 3.17, OWNER SHALL WAIVE AND RELEASE THE CONTRACTOR GROUP FROM AND AGAINST ALL DAMAGES, LOSSES, COSTS AND EXPENSES (INCLUDING ALL REASONABLE ATTORNEYSFEES, AND LITIGATION OR ARBITRATION EXPENSES) ARISING OUT OF OR RESULTING FROM CLAIMS OCCURRING IN CONNECTION WITH THE WORK AND THE PROJECT AND BROUGHT BY ANY LANDOWNER ON WHOSE LAND, RIGHT OF WAY OR EASEMENT CONTRACTOR OR ANY OF ITS SUBCONTRACTORS OR SUB-SUBCONTRACTORS ARE PERFORMING THE WORK, INCLUDING ANY CLAIM FROM SUCH LANDOWNER RELATED TO DAMAGE TO OR DISTRIBUTION OF PROPERTY. SUCH WAIVER AND RELEASE SHALL APPLY REGARDLESS THE CAUSE OF SUCH DAMAGES, LOSSES, COSTS AND EXPENSES, INCLUDING NEGLIGENCE, BREACH OF CONTRACT OR OTHER BASIS OF LIABILITY OF ANY MEMBER OF THE CONTRACTOR GROUP OR ANY SUBCONTRACTOR OR SUB-SUBCONTRACTOR. TO THE EXTENT OWNER OBTAINS SUCH A RELEASE FROM ANY LANDOWNER, OWNER SHALL ENDEAVOR TO OBTAIN SUCH A RELEASE OF CONTRACTOR GROUP FROM THE LANDOWNER.

B. SUBJECT TO CONTRACTORS INDEMNIFICATION OBLIGATIONS SET FORTH IN SECTIONS 17.1A AND 17.1C, AND EXCEPT AS OTHERWISE PROVIDED FOR IN SECTION 3.17, OWNER SHALL DEFEND, INDEMNIFY AND HOLD HARMLESS THE CONTRACTOR GROUP FROM AND AGAINST ANY AND ALL DAMAGES, LOSSES, COSTS AND EXPENSES (INCLUDING ALL REASONABLE ATTORNEYSFEES, AND LITIGATION OR ARBITRATION EXPENSES) ARISING OUT OF OR RESULTING FROM CLAIMS OCCURRING IN CONNECTION WITH THE WORK AND THE PROJECT AND BROUGHT BY ANY LANDOWNER ON WHOSE LAND, RIGHT OF WAY OR EASEMENT CONTRACTOR OR ANY OF ITS SUBCONTRACTORS OR SUB-SUBCONTRACTORS ARE PERFORMING THE WORK, INCLUDING ANY CLAIM FROM SUCH LANDOWNER RELATED TO DAMAGE TO OR DESTRUCTION OF PROPERTY. SUCH INDEMNITY SHALL APPLY REGARDLESS OF THE CAUSE OF SUCH DAMAGES, LOSSES, COSTS AND EXPENSES, INCLUDING NEGLIGENCE, BREACH OF CONTRACT OR OTHER BASIS OF LIABILITY OF ANY MEMBER OF THE CONTRACTOR GROUP OR ANY SUBCONTRACTOR OR SUB-SUBCONTRACTOR.

 

- 101 -


17.8 Legal Defense. NOT LATER THAN FIFTEEN (15) DAYS AFTER RECEIPT OF WRITTEN NOTICE FROM THE INDEMNIFIED PARTY TO THE INDEMNIFYING PARTY OF ANY CLAIMS, DEMANDS, ACTIONS OR CAUSES OF ACTION ASSERTED AGAINST SUCH INDEMNIFIED PARTY FOR WHICH THE INDEMNIFYING PARTY HAS INDEMNIFICATION, DEFENSE AND HOLD HARMLESS OBLIGATIONS UNDER THIS AGREEMENT, WHETHER SUCH CLAIM, DEMAND, ACTION OR CAUSE OF ACTION IS ASSERTED IN A LEGAL, JUDICIAL, ARBITRAL OR ADMINISTRATIVE PROCEEDING OR ACTION OR BY NOTICE WITHOUT INSTITUTION OF SUCH LEGAL, JUDICIAL, ARBITRAL OR ADMINISTRATIVE PROCEEDING OR ACTION, THE INDEMNIFYING PARTY SHALL AFFIRM IN WRITING BY NOTICE TO SUCH INDEMNIFIED PARTY THAT THE INDEMNIFYING PARTY WILL INDEMNIFY, DEFEND AND HOLD HARMLESS SUCH INDEMNIFIED PARTY AND SHALL, AT THE INDEMNIFYING PARTYS OWN COST AND EXPENSE, ASSUME ON BEHALF OF THE INDEMNIFIED PARTY AND CONDUCT WITH DUE DILIGENCE AND IN GOOD FAITH THE DEFENSE THEREOF WITH COUNSEL SELECTED BY THE INDEMNIFYING PARTY AND REASONABLY SATISFACTORY TO SUCH INDEMNIFIED PARTY; PROVIDED, HOWEVER, THAT SUCH INDEMNIFIED PARTY SHALL HAVE THE RIGHT TO BE REPRESENTED THEREIN BY ADVISORY COUNSEL OF ITS OWN SELECTION, AND AT ITS OWN EXPENSE; AND PROVIDED FURTHER THAT IF THE DEFENDANTS IN ANY SUCH ACTION OR PROCEEDING INCLUDE THE INDEMNIFYING PARTY AND AN INDEMNIFIED PARTY AND THE INDEMNIFIED PARTY SHALL HAVE REASONABLY CONCLUDED THAT THERE MAY BE LEGAL DEFENSES AVAILABLE TO IT WHICH ARE DIFFERENT FROM OR ADDITIONAL TO, OR INCONSISTENT WITH, THOSE AVAILABLE TO THE INDEMNIFYING PARTY, SUCH INDEMNIFIED PARTY SHALL HAVE THE RIGHT TO SELECT UP TO ONE SEPARATE COUNSEL TO PARTICIPATE IN THE DEFENSE OF SUCH ACTION OR PROCEEDING ON ITS OWN BEHALF AT THE REASONABLE EXPENSE OF THE INDEMNIFYING PARTY. IN THE EVENT OF THE FAILURE OF THE INDEMNIFYING PARTY TO PERFORM FULLY IN ACCORDANCE WITH THE DEFENSE OBLIGATIONS UNDER THIS SECTION 17.8, SUCH INDEMNIFIED PARTY MAY, AT ITS OPTION, AND WITHOUT RELIEVING THE INDEMNIFYING PARTY OF ITS OBLIGATIONS HEREUNDER, SO PERFORM, BUT ALL DAMAGES, COSTS AND EXPENSES (INCLUDING ALL REASONABLE ATTORNEYSFEES, AND LITIGATION OR ARBITRATION EXPENSES, SETTLEMENT PAYMENTS AND JUDGMENTS) SO INCURRED BY SUCH INDEMNIFIED PARTY IN THAT EVENT SHALL BE REIMBURSED BY THE INDEMNIFYING PARTY TO SUCH INDEMNIFIED PARTY, TOGETHER WITH INTEREST ON SAME FROM THE DATE ANY SUCH COST AND EXPENSE WAS PAID BY SUCH INDEMNIFIED PARTY UNTIL REIMBURSED BY THE INDEMNIFYING PARTY AT THE INTEREST RATE SET FORTH IN SECTION 7.6 OF THIS AGREEMENT.

17.9 Enforceability.

A. EXCEPT AS OTHERWISE SET FORTH IN SECTIONS 17.2 AND 17.3, THE INDEMNITY, DEFENSE AND HOLD HARMLESS OBLIGATIONS FOR PERSONAL INJURY OR DEATH OR PROPERTY DAMAGE UNDER THIS AGREEMENT SHALL APPLY REGARDLESS OF WHETHER THE INDEMNIFIED PARTY WAS CONCURRENTLY NEGLIGENT (WHETHER ACTIVELY OR PASSIVELY), IT BEING AGREED BY THE PARTIES THAT IN THIS EVENT, THE PARTIESRESPECTIVE LIABILITY OR RESPONSIBILITY FOR SUCH DAMAGES, LOSSES, COSTS AND EXPENSES UNDER THIS ARTICLE 17 SHALL BE DETERMINED IN ACCORDANCE WITH PRINCIPLES OF COMPARATIVE NEGLIGENCE.

B. IN THE EVENT THAT ANY INDEMNITY PROVISIONS IN THIS AGREEMENT ARE CONTRARY TO THE LAW GOVERNING THIS AGREEMENT, THEN THE INDEMNITY OBLIGATIONS APPLICABLE HEREUNDER SHALL BE APPLIED TO THE MAXIMUM EXTENT ALLOWED BY APPLICABLE LAW.

 

- 102 -


ARTICLE 18

DISPUTE RESOLUTION

18.1 Negotiation. In the event that any claim, dispute or controversy arising out of or relating to this Agreement (including the breach, termination or invalidity thereof, and whether arising out of tort or contract) (“Dispute”) cannot be resolved informally within thirty (30) Days after the Dispute arises, either Party may give written notice of the Dispute (“Dispute Notice”) to the other Party requesting that a representative of Owner’s senior management and Contractor’s senior management meet in an attempt to resolve the Dispute. Each such management representative shall have full authority to resolve the Dispute and shall meet at a mutually agreeable time and place within thirty (30) Days after receipt by the non-notifying Party of such Dispute Notice, and thereafter as often as they deem reasonably necessary to exchange relevant information and to attempt to resolve the Dispute. In no event shall this Section 18.1 be construed to limit either Party’s right to take any action under this Agreement, including Owner’s rights under Section 16.1. The Parties agree that if any Dispute is not resolved within ninety (90) Days after receipt of the Dispute Notice given in this Section 18.1, then either Party may by notice to the other Party refer the Dispute to be decided by final and binding arbitration in accordance with Section 18.2.

A. Notwithstanding the foregoing, in the event of a Dispute regarding (i) whether a specific item of Work meets the definition of Punchlist under Section 1.1 in connection with Section 11.5 or (ii) if and when RFSU of a Subproject, Substantial Completion of a Subproject or Final Completion has occurred, as applicable, in accordance with Section 11.3A, 11.3B or 11.6, representatives of Owner’s senior management and Contractor’s senior management shall meet immediately upon request of either Party to attempt to resolve such Dispute. Each such management representative shall have full authority to resolve such Dispute and shall meet in person at a mutually agreeable time and place. The Parties agree that if any such Dispute is not resolved within five (5) Business Days after either Party’s request for such meeting between management representatives, then either Party may by notice to the other Party refer the Dispute to be decided by final and binding arbitration in accordance with Section 18.2.

18.2 Arbitration. Any arbitration held under this Agreement shall be held in Houston, Texas, unless otherwise agreed by the Parties, shall be administered by the Dallas, Texas office of the American Arbitration Association (“AAA”) and shall, except as otherwise modified by this Section 18.2, be governed by the AAA’s Construction Industry Arbitration Rules and Mediation Procedures (including Procedures for Large, Complex Construction Disputes) (the “AAA Rules”). The number of arbitrators required for the arbitration hearing shall be determined in accordance with the AAA Rules. The arbitrator(s) shall determine the rights and obligations of the Parties according to the substantive law of the state of Texas, excluding its conflict of law principles, as would a court for the state of Texas; provided, however, the law applicable to the validity of the arbitration clause, the conduct of the arbitration, including resort to a court for provisional remedies, the enforcement of any award and any other question of arbitration law or procedure shall be the Federal Arbitration Act, 9 U.S.C.A. § 2. Issues concerning the arbitrability of a matter in dispute shall be decided by a court with proper jurisdiction. The Parties shall be entitled to engage in reasonable discovery, including the right to production of relevant and material documents by the opposing Party and the right to take depositions reasonably limited in number,

 

- 103 -


time and place; provided that in no event shall any Party be entitled to refuse to produce relevant and non-privileged documents or copies thereof requested by the other Party within the time limit set and to the extent required by order of the arbitrator(s). All disputes regarding discovery shall be promptly resolved by the arbitrator(s). This agreement to arbitrate is binding upon the Parties, Contractor’s surety (if any) and the successors and permitted assigns of any of them. At either Party’s option, any other Person may be joined as an additional party to any arbitration conducted under this Section 18.2, provided that the party to be joined is or may be liable to either Party in connection with all or any part of any dispute between the Parties. Without limiting the foregoing, if there are common issues of fact or law in connection with any Disputes in an arbitration conducted under this Article 18 and any disputes in connection with any arbitration under the Stage 2 EPC Agreement, either Party may consolidate the two arbitrations to the extent necessary to avoid inconsistent determinations. Contractor agrees, upon Owner’s election, to the joinder in any arbitration between Owner and Guarantor arising out of or relating to the Project. The arbitration award shall be final and binding, in writing, signed by all arbitrators, and shall state the reasons upon which the award thereof is based. The Parties agree that judgment on the arbitration award may be entered by any court having jurisdiction thereof.

18.3 Continuation of Work During Dispute. Notwithstanding any Dispute, it shall be the responsibility of each Party to continue to perform its obligations under this Agreement pending resolution of Disputes. Owner shall, subject to its right to withhold or offset amounts pursuant to this Agreement, continue to pay Contractor undisputed amounts in accordance with this Agreement and, except as provided in this Agreement, continue to perform all of its obligations under this Agreement; provided, however, in no event shall the occurrence of any negotiation or arbitration prevent or affect Owner from exercising its rights under this Agreement, including Owner’s right to terminate pursuant to Article 16.

18.4 Escrow of Certain Disputed Amounts By Owner. At any time when the total amounts invoiced by Contractor pursuant to Section 7.2C of the Agreement for Milestone payments and Monthly Payments (as such amounts may be adjusted by Change Order in accordance with Sections 6.1B or 6.2C) which are disputed and unpaid by Owner exceed Ten Million U.S. Dollars (U.S.$10,000,000) in the cumulative aggregate, Owner shall escrow any such disputed and unpaid amounts in excess of the aforesaid amount (“Escrowed Amounts”); provided, however, the Parties acknowledge and agree that such Escrowed Amounts shall not include any claims by Contractor for compensation in addition to the original Contract Price (as adjusted by Change Order pursuant to Sections 6.1B or 6.2C). For the purposes of determining the date when Owner must deposit the Escrowed Amounts with the Escrow Agent, amounts are “unpaid” on the date that Owner is required to make payment of an Invoice under Section 7.2E of this Agreement. The Escrowed Amounts will be deposited with the Escrow Agent pursuant to the Escrow Agreement (which provides, among other things, that the Escrowed Amounts shall be held in an interest bearing account and disbursed upon the instructions of both Parties or pursuant to an arbitration award). Prior to issuance of the NTP, (i) the Escrow Agent shall be selected by mutual agreement of the Parties and (ii) the Escrow Agreement shall be in final form and executed by the Escrow Agent and each Party. The Parties shall each pay fifty percent (50%) of the cost of the Escrow Agreement including without limitation the fees and expenses of the Escrow Agent.

 

- 104 -


ARTICLE 19

CONFIDENTIALITY

19.1 Contractor’s Obligations. Contractor hereby covenants and warrants that Contractor and its employees and agents shall not (without in each instance obtaining Owner’s prior written consent) disclose, make commercial or other use of, or give or sell to any Person, other than to members of the Contractor Group and Subcontractors or Sub-subcontractors as necessary to perform the Work, any information conspicuously marked and identified in writing as confidential and relating to the business, products, services, research or development, clients or customers of Owner or any Owner Affiliate, or relating to similar information of a Third Party who has entrusted such information to Owner or any Owner Affiliate (hereinafter individually or collectively, “Owner’s Confidential Information”). Prior to disclosing any such information to any Subcontractor or Sub-subcontractor as necessary to perform the Work, Contractor shall bind such Subcontractor or Sub-subcontractor to the confidentiality obligations contained in this Section 19.1. Nothing in this Section 19.1 or this Agreement shall in any way prohibit Contractor or any of its Subcontractors or Sub-subcontractors from making commercial or other use of, selling, or disclosing any of the Intellectual Property or Contractor Existing Intellectual Assets.

19.2 Owner’s Obligations. Owner hereby covenants and warrants that Owner and its employees and agents shall not (without in each instance obtaining Contractor’s prior written consent) disclose, make commercial or other use of, or give or sell to any Person any of the following information: (i) any estimating, technical or pricing methodologies, techniques, know-how or information relating to the business, products, services, research or development of Contractor conspicuously marked and identified in writing as confidential by Contractor; or (ii) any Intellectual Property or Contractor’s Existing Intellectual Property Assets which is conspicuously marked and identified in writing as confidential (hereinafter individually or collectively, “Contractor’s Confidential Information”). The Parties agree that (y) notwithstanding the foregoing, Owner shall not be restricted from the use or disclosure of Work Product except as expressly set forth in Article 10; and (z) Owner shall be entitled to disclose that portion of the Intellectual Property and Contractor’s Existing Intellectual Property Assets for which Owner has a license in, and which is to be used by Owner for the purpose for which such license is granted pursuant to Section 10.1, provided that, with respect to such Intellectual Property and Contractor’s Existing Intellectual Property Assets, Owner binds such disclosee to the confidentiality obligations contained in this Section 19.2.

19.3 Definitions. The term “Confidential Information” shall mean one or both of Contractor’s Confidential Information and Owner’s Confidential Information, as the context requires. The Party having the confidentiality obligations with respect to such Confidential Information shall be referred to as the “Receiving Party,” and the Party to whom such confidentiality obligations are owed shall be referred to as the “Disclosing Party.

19.4 Exceptions. Notwithstanding Sections 19.1 and 19.2, Confidential Information shall not include: (i) information which at the time of disclosure or acquisition is in the public domain, or which after disclosure or acquisition becomes part of the public domain without violation of this Article 19; (ii) information which at the time of disclosure or acquisition was already in the possession of the Receiving Party or its employees or agents and was not previously acquired from the Disclosing Party or any of its employees or agents directly or indirectly; (iii)

 

- 105 -


information which the Receiving Party can show was acquired by such entity after the time of disclosure or acquisition hereunder from a Third Party without any confidentiality commitment, if, to the best of Receiving Party’s or its employees’ or agents’ knowledge, such Third Party did not acquire it, directly or indirectly, from the Disclosing Party or any of its employees or agents; (iv) information independently developed by the Receiving Party without benefit of the Confidential Information; and (v) information which a Party believes in good faith is required to be disclosed in connection with the Project by Applicable Law, any Governmental Instrumentality (including the FERC), applicable securities laws or the rules of any stock exchange; provided, however, that prior to such disclosure, the Receiving Party gives reasonable notice to the Disclosing Party of the information required to be disclosed.

19.5 Equitable Relief. The Parties acknowledge that in the event of a breach of any of the terms contained in this Article 19, the Disclosing Party would suffer irreparable harm for which remedies at law, including damages, would be inadequate, and that the Disclosing Party shall be entitled to seek equitable relief therefor by injunction, without the requirement of posting a bond.

19.6 Term. The confidentiality obligations of this Article 19 shall expire upon the earlier of a period of ten (10) years following (i) the termination of this Agreement or (ii) Final Completion.

ARTICLE 20

LIMITATION OF LIABILITY

20.1 Contractor Aggregate Liability. Notwithstanding any other provisions of this Agreement to the contrary, Contractor Group shall not be liable to Owner Group under this Agreement or under any cause of action related to the subject matter of this Agreement, whether in contract, warranty, tort (including negligence), strict liability, products liability, professional liability, indemnity, contribution or any other cause of action, in excess of a cumulative aggregate amount equal to the Aggregate Cap, and Owner shall release Contractor Group from any liability in excess thereof; provided that, notwithstanding the foregoing, the limitation of liability set forth in this Section 20.1 shall not (i) apply to (A) Contractor’s indemnification obligations under Sections 17.1B, 17.1E, 17.1F, 17.1G, 17.2 and 17.5 or (B) Contractor’s obligations under 8.1A.1; or (ii) include the proceeds paid under any insurance policy that Contractor or its Subcontractors is required to obtain pursuant to this Agreement or Subcontract, as the case may be (collectively, provisions (i) and (ii) being the “Carve-Outs”). In no event shall the limitation of liability set forth in this Section 20.1 be in any way deemed to limit Contractor’s obligation to perform all Work required to achieve Ready for Performance Testing for any Subproject.

A. The “Aggregate Cap” means *** U.S. Dollars (U.S.$***).

B. However, immediately after the later of Substantial Completion of Subproject 1 and payment of any Delay Liquidated Damages due and owing under this Agreement for Subproject 1 (“Reduction Date”), the Aggregate Cap shall reduce to an amount calculated as follows:

 

 

Aggregate

Cap

   =    U.S.$***    -    Reduction    +   

Outstanding

Claims

Amount

   +    Performance LD Exposure   

 

- 106 -


where:

 

  1. Reduction” means the amount equal to the greater of:

 

  (i) *** U.S. Dollars (U.S.$***); or

 

  (ii) Contractor Group’s aggregate liability to Owner Group under this Agreement, for acts or omissions occurring prior to Substantial Completion of Subproject 1 (the clause (ii) liabilities hereinafter called “Pre-Subproject 1 Substantial Completion Liabilities”).

In calculating the Reduction, the Pre-Subproject 1 Substantial Completion Liabilities shall exclude amounts that fall within the Carve-Outs. In addition, for the purposes of calculating the Reduction immediately after the Reduction Date, only those Pre-Subproject 1 Substantial Completion Liabilities actually paid by Contractor Group to Owner Group on or prior to the Reduction Date shall be used, but if other Pre-Subproject 1 Substantial Completion Liabilities are subsequently paid by Contractor Group to Owner Group, the Reduction shall be recalculated in accordance with Section 20.1C. For clarity, Delay Liquidated Damage amounts owed for Subproject 1 shall be applied against the Pre-Subproject 1 Substantial Completion Liabilities, as well as Performance Liquidated Damages where the option in Section 11.4A(i) is used.

2. “Outstanding Claims Amount” means the aggregate amount of Outstanding Claims; provided that, if such aggregate amount is less than *** U.S. Dollars (U.S.$***), the Outstanding Claims Amount shall be Zero U.S. Dollars for purposes of calculating the Aggregate Cap. “Outstanding Claims” means good faith claims asserted by Owner Group against any member of Contractor Group, arising out of acts or omissions occurring before Substantial Completion of Subproject 1, which remain outstanding as of the date of Substantial Completion of Subproject 1. Outstanding Claims shall not include any claims that fall within the Carve-Outs.

3. “Performance LD Exposure” means either:

a. Zero U.S. Dollars, if Owner or Contractor elect the option in Section 11.4A(i) for Subproject 1; or

b. if Owner or Contractor elect the option in Section 11.4A(ii) for Subproject 1, the amount of Performance Liquidated Damages that would be due to Owner if Contractor were to pay the Performance Liquidated Damages for Subproject 1 based on the results of the last Performance Test conducted by Contractor prior to Substantial Completion of Subproject 1.

 

- 107 -


4. Notwithstanding the foregoing Aggregate Cap calculation (or any recalculation of the Aggregate Cap pursuant to Section 20.1C), the Aggregate Cap shall not exceed *** U.S. Dollars (U.S.$***) under any circumstances.

C. Upon resolution of any (i) Outstanding Claims, (ii) Pre-Subproject 1 Substantial Completion Liabilities that were not included in the original Reduction calculation performed in Section 20.1B.1, or (iii) amounts for Performance LD Exposure, the Aggregate Cap shall be recalculated using the formula in Section 20.1B and the adjusted variables shall be determined as follows:

1. The amount used for the Pre-Subproject 1 Substantial Completion Liabilities shall be the total amount paid by Contractor Group to Owner Group on account of Pre-Subproject 1 Substantial Completion Liabilities, whether paid before or after Substantial Completion of Subproject 1;

2. The Reduction shall be recalculated in accordance with Section 20.1B.1 based on the Pre-Subproject 1 Substantial Completion Liabilities adjustment under Section 20.1C.1;

3. The amount used for the Outstanding Claims Amount shall be the amounts of those Outstanding Claims not yet resolved;

4. The amount used for the Performance LD Exposure shall be the amount of Performance Liquidated Damages owed (and not paid) by Contractor to Owner, as determined by the last Performance Test performed in conjunction with Section 11.4A(ii); and

5. The Aggregate Cap shall be recalculated in accordance with Section 20.1B based on the Reduction recalculated in Section 20.1C.2, the Outstanding Claims Amount adjustment under Section 20.1C.3 and the Performance LD Exposure recalculated under Section 20.1C.4.

20.2 Limitation on Contractor’s Liability for Liquidated Damages.

A. Delay Liquidated Damages. Subject to Section 20.2C, Contractor’s maximum liability to Owner for (i) Delay Liquidated Damages for Subproject 1 is *** U.S. Dollars (U.S.$***), in the aggregate, and (ii) Delay Liquidated Damages for Subproject 2 is *** U.S. Dollars (U.S.$***), in the aggregate.

B. Performance Liquidated Damages. Subject to Section 20.2C, Contractor’s maximum liability to Owner for (i) Performance Liquidated Damages for Subproject 1 is *** U.S. Dollars (U.S.$***), in the aggregate, and (ii) Performance Liquidated Damages for Subproject 2 is *** U.S. Dollars (U.S.$***), in the aggregate.

C. Exceptions to Limitations of Liability Under Section 20.2. Sections 20.2A and 20.2B shall not be construed to limit Contractor’s obligation to complete the Work for the compensation provided under this Agreement.

 

- 108 -


20.3 Liquidated Damages In General.

A. Liquidated Damages Not Penalty. It is expressly agreed that Liquidated Damages payable under this Agreement do not constitute a penalty and that the Parties, having negotiated in good faith for such specific Liquidated Damages and having agreed that the amount of such Liquidated Damages is reasonable in light of the anticipated harm caused by the breach related thereto and the difficulties of proof of loss and inconvenience or nonfeasibility of obtaining any adequate remedy, are estopped from contesting the validity or enforceability of such Liquidated Damages.

B. Liquidated Damages as Exclusive Remedy.

1. Delay Liquidated Damages shall be Owner’s sole and exclusive remedy, and the sole and exclusive liability of Contractor, for delay as set forth in Section 13.1; provided that, this Section 20.3B.1 shall not be interpreted to preclude Owner from (i) terminating Contractor’s performance of the Work pursuant to Section 11.4B(b) or (ii) terminating Contractor pursuant to Section 5.5A.

2. Performance Liquidated Damages shall be Owner’s sole and exclusive remedy, and the sole and exclusive liability of Contractor, for failure to achieve the Performance Guarantee. This Section 20.3B.2 is not applicable for Contractor’s failure to achieve Minimum Acceptance Criteria.

C. Payment of Liquidated Damages. With respect to any Liquidated Damages that accrue, Owner shall invoice Contractor for such Liquidated Damages. Contractor shall pay such Liquidated Damages within ten (10) Days after Contractor’s receipt of such invoice. To the extent Contractor does not pay such Liquidated Damages within such ten (10) Day period, Owner may, at its option, do one or more of the following: (i) withhold from Contractor amounts that are otherwise due and payable to Contractor in the amount of such Liquidated Damages and/or (ii) collect on the Letter of Credit in the amount of such Liquidated Damages. For the avoidance of doubt, prior to exercising such right to withhold or collect on the Letter of Credit, Owner shall not be required to provide the notice as set forth in Section 7.8. As used in this Agreement, Liquidated Damages are “paid” if and to the extent Owner exercises option (i) or (ii) above for the collection of Liquidated Damages.

20.4 Consequential Damages. NOTWITHSTANDING ANY OTHER PROVISIONS OF THIS AGREEMENT TO THE CONTRARY, NEITHER OWNER GROUP NOR CONTRACTOR GROUP SHALL BE LIABLE UNDER THIS AGREEMENT OR UNDER ANY CAUSE OF ACTION RELATED TO THE SUBJECT MATTER OF THIS AGREEMENT, WHETHER IN CONTRACT, WARRANTY, TORT (INCLUDING NEGLIGENCE), STRICT LIABILITY, PRODUCTS LIABILITY, PROFESSIONAL LIABILITY, INDEMNITY, CONTRIBUTION, OR ANY OTHER CAUSE OF ACTION FOR SPECIAL, INDIRECT, INCIDENTAL OR CONSEQUENTIAL LOSSES OR DAMAGES, INCLUDING LOSS OF PROFITS, LOSS OF USE, LOSS OF OPPORTUNITY, LOSS OF REVENUES, LOSS OF FINANCING, LOSS OR INCREASE OF BONDING CAPACITY, COSTS OF OBTAINING OR MAINTAINING FINANCING, LOSS OF GOODWILL, OR BUSINESS INTERRUPTION, OR DAMAGES OR LOSSES FOR PRINCIPAL OFFICE EXPENSES INCLUDING COMPENSATION OF PERSONNEL STATIONED THERE

 

- 109 -


(“CONSEQUENTIAL DAMAGES”) AND OWNER GROUP SHALL RELEASE CONTRACTOR GROUP AND CONTRACTOR GROUP SHALL RELEASE OWNER GROUP FROM ANY LIABILITY FOR SUCH CONSEQUENTIAL DAMAGES; PROVIDED THAT THE EXCLUSION OF LIABILITY SET FORTH IN THIS SECTION 20.4 (IIS NOT INTENDED TO PREVENT CONTRACTOR FROM RECEIVING PROFIT TO THE EXTENT THAT CONTRACTOR IS ENTITLED TO RECEIVE SUCH PROFIT UNDER THE PROVISIONS OF THIS AGREEMENT AND (IISHALL NOT APPLY (ATO AMOUNTS ENCOMPASSED WITHIN LIQUIDATED DAMAGES, (BTO CONTRACTORS INDEMNIFICATION OBLIGATIONS UNDER THIS AGREEMENT WITH RESPECT TO LOSSES SUFFERED BY ANY THIRD PARTY OR, WITH RESPECT TO THE INDEMNIFICATION OBLIGATIONS SET FORTH IN SECTION 17.2, MEMBERS OF THE CONTRACTOR GROUP OR ANY SUBCONTRACTORS OR SUB- SUBCONTRACTORS, OR (CTO OWNERS INDEMNIFICATION OBLIGATIONS UNDER THIS AGREEMENT WITH RESPECT TO LOSSES SUFFERED BY ANY THIRD PARTY OR, WITH RESPECT TO THE INDEMNIFICATION OBLIGATIONS SET FORTH IN SECTION 17.3, MEMBERS OF THE OWNER GROUP OR ANY OTHER CONTRACTORS OF OWNER.

20.5 Exclusive Remedies. Where a remedy specified in this Agreement is expressly stated to be a Party’s sole remedy, it is intended that such remedy shall be the sole and exclusive remedy of such Party for the matter in question, notwithstanding any remedy otherwise available at law or in equity.

20.6 Applicability. EXCEPT TO THE EXTENT EXPRESSLY PROHIBITED BY LAW, THE WAIVERS AND DISCLAIMERS OF LIABILITY, RELEASES FROM LIABILITY, EXCLUSIONS, LIMITATIONS AND APPORTIONMENTS OF LIABILITY AND INDEMNITIES EXPRESSED IN THIS AGREEMENT SHALL APPLY EVEN IN THE EVENT OF FAULT, NEGLIGENCE (IN WHOLE OR IN PART), STRICT LIABILITY, BREACH OF CONTRACT OR OTHERWISE OF THE PARTY RELEASED OR WHOSE LIABILITY IS WAIVED, DISCLAIMED, LIMITED, FIXED OR INDEMNIFIED AND SHALL EXTEND IN FAVOR OF MEMBERS OF THE OWNER GROUP AND THE CONTRACTOR GROUP.

20.7 Term Limit. WITH THE EXCEPTION OF ARTICLE 10, ARTICLE 19 AND SECTIONS 4.5A.2, 8.1, 17.1A, 17.1B, 17.1C, 17.1E, 17.4, 17.5 (AND TO THE EXTENT THE FOLLOWING RELATE TO THE FOREGOING ARTICLES AND SECTIONS: SECTIONS 1.1, 17.8, 17.9 AND ARTICLE 18, ARTICLE 20 AND ARTICLE 21), NEITHER PARTY SHALL BE LIABLE TO THE OTHER PARTY UNDER THIS AGREEMENT FOR ANY CLAIMS BROUGHT THREE (3) YEARS OR MORE AFTER SUBSTANTIAL COMPLETION OF SUBPROJECT 2.

ARTICLE 21

MISCELLANEOUS PROVISIONS

21.1 Entire Agreement. This Agreement, including the Attachments, Schedules and Exhibits attached to and incorporated into this Agreement, contains the entire understanding of the Parties with respect to the subject matter hereof and incorporates any and all prior agreements and commitments with respect thereto. There are no other oral understandings, terms or conditions, and neither Party has relied upon any representation, express or implied, not contained in this Agreement. General or special conditions included in any of Contractor’s price lists, Invoices, tickets, receipts or other such documents presented to Owner shall have no applicability to Owner with respect to this Agreement. To the extent that any work or services is performed under the Technical Services Agreement after the Contract Date of this Agreement and Owner pays Contractor for such work or services under the Technical Services Agreement, and to the extent

 

- 110 -


such work or services is Work to be performed under this Agreement, Owner shall be entitled to a Change Order reducing the Contract Price for the value of such work or services, with the amount of such reduction to be agreed upon by Owner and Contractor. After issuance of NTP, this Agreement supersedes in its entirety the Technical Services Agreement, and after the Contract Date of this Agreement, this Agreement supersedes any other agreements between the Parties related to the Project.

21.2 Amendments. No change, amendment or modification of the terms of this Agreement shall be valid or binding upon the Parties hereto unless such change, amendment or modification is in writing and duly executed by both Parties hereto.

21.3 Joint Effort. Preparation of this Agreement has been a joint effort of the Parties and the resulting document shall not be construed more severely against one of the Parties than against the other.

21.4 Captions. The captions contained in this Agreement are for convenience and reference only and in no way define, describe, extend or limit the scope of intent of this Agreement or the intent of any provision contained herein.

21.5 Notice. Any notice, demand, offer, or other written instrument required or permitted to be given pursuant to this Agreement shall be in writing signed by the Party giving such notice and shall be hand delivered or sent by overnight courier, messenger, facsimile or certified mail, return receipt requested, to the other Party at the address set forth below.

 

  A. If delivered to Owner:

 

     Corpus Christi Liquefaction, LLC
     700 Milam, Suite 800
     Houston, Texas 77002
     Facsimile: ***
     Attn: ***

 

     with a copy to:

 

     Corpus Christi Liquefaction, LLC
     700 Milam, Suite 800
     Houston, Texas 77002
     Facsimile: ***
     Attn: ***

 

- 111 -


  B. If delivered to Contractor:

 

     Bechtel Oil, Gas and Chemicals, Inc.
     3000 Post Oak Boulevard
     Houston, Texas 77056
     Facsimile: ***
     Attn: ***

 

     with a copy to:

 

     Bechtel Oil, Gas and Chemicals, Inc.
     3000 Post Oak Boulevard
     Houston, Texas 77056
     Facsimile: ***
     Attn: Principal Counsel

Each Party shall have the right to change the place to which notice shall be sent or delivered by sending a similar notice to the other Party in like manner. Notices, demands, offers or other written instruments shall be deemed to have been duly given on the date actually received by the intended recipient.

21.6 Severability. The invalidity of one or more phrases, sentences, clauses, Sections or Articles contained in this Agreement shall not affect the validity of the remaining portions of this Agreement so long as the material purposes of this Agreement can be determined and effectuated.

21.7 Assignment. This Agreement may be assigned to other Persons only upon the prior written consent of the non-assigning Party hereto, except that Owner may assign this Agreement to any of its Affiliates by providing notice to Contractor. Furthermore, Owner may, for the purpose of providing collateral, assign, pledge and/or grant a security interest in this Agreement to any Lender without Contractor’s consent. When duly assigned in accordance with the foregoing, this Agreement shall be binding upon and shall inure to the benefit of the assignee; provided that any assignment by Contractor or Owner pursuant to this Section 21.7 shall not relieve Contractor or Owner (as applicable) of any of its obligations or liabilities under this Agreement, nor shall any such assignment discharge Guarantor of its obligations under the Parent Guarantee. Any assignment not in accordance with this Section 21.7 shall be void and without force or effect, and any attempt to assign this Agreement in violation of this provision shall grant the non-assigning Party the right, but not the obligation, to terminate this Agreement at its option for Default.

21.8 No Waiver. Any failure of either Party to enforce any of the provisions of this Agreement or to require compliance with any of its terms at any time during the term of this Agreement shall in no way affect the validity of this Agreement, or any part hereof, and shall not be deemed a waiver of the right of such Party thereafter to enforce any and each such provisions.

21.9 Governing Law. This Agreement shall be governed by, and construed in accordance with, the laws of the state of Texas (without giving effect to the principles thereof relating to conflicts of law), except that each Party, to the extent permitted under Applicable Law,

 

- 112 -


hereby irrevocably waives any right to contend that the Texas Construction Anti-Indemnity Statute is applicable to this Agreement or the Work. The United Nations Convention on Contracts for the International Sale of Goods shall not apply to this Agreement and shall be disclaimed in and excluded from any Subcontracts entered into by Contractor in connection with the Work or the Project.

21.10 Successors and Assigns. This Agreement shall be binding upon the Parties hereto, their successors and permitted assigns.

21.11 Attachments and Schedules. All Attachments and Schedules shall be incorporated into this Agreement by such reference and shall be deemed to be an integral part of this Agreement.

21.12 Obligations. Nothing contained in this Agreement shall be construed as constituting a joint venture or partnership between Contractor and Owner.

21.13 Further Assurances. Contractor and Owner agree to provide such information, execute and deliver any such instruments and documents and to take such other actions as may be reasonably requested by the other Party that are not inconsistent with the provisions of this Agreement and that do not involve the assumption of obligations or liabilities greater than those provided for in this Agreement, in order to give full effect to this Agreement and to carry out the intent of this Agreement.

21.14 Priority. The documents that form this Agreement are listed below in order of priority, with the document having the highest priority listed first and the one with the lowest priority listed last. In the event of any conflict or inconsistency between a provision in one document and a provision in another document, the document with the higher priority shall control. This Agreement is composed of the following documents, which are listed in priority:

A. Change Orders which expressly modify the terms of this Agreement or written amendments to this Agreement;

B. the Articles of this Agreement; and

C. Attachments and Schedules to this Agreement.

21.15 Restrictions on Public Announcements. Neither Contractor nor its Subcontractors or Sub-subcontractors shall take any photographs of any part of the Liquefaction Facility, issue a press release, advertisement, publicity material, financial document or similar matter or participate in a media interview that mentions or refers to the Work or any part of the Liquefaction Facility without the prior written consent of Owner; provided that Contractor shall not be required to obtain Owner’s prior written consent of Contractor’s issuance of a press release to correct any errors made by Owner concerning Contractor in a prior press release issued by Owner if Contractor first gives Owner five (5) Days’ prior written notice of Contractor’s intent to issue such corrective press release and an opportunity of Owner to correct such error within such five (5) Day period. Owner agrees to cooperate with Contractor and provide to Contractor for review and comment a copy of any press release that mentions or refers to Contractor prior to the issuance of such press release; provided that Owner shall not be required to obtain Contractor’s

 

- 113 -


prior consent prior to the issuance of such press release. Contractor acknowledges and agrees that Owner shall be required, from time to time, to make disclosures and press releases and applicable filings with the SEC in accordance with applicable securities laws that Owner believes in good faith are required by Applicable Law or the rules of any stock exchange. If any such disclosure, press release or filing includes any reference to Contractor, then Owner shall provide as much notice as is practicable to Contractor to provide it with an opportunity to comment; provided, however, the final determination shall remain with Owner. Contractor acknowledges that Owner shall be required from time to time to make filings in compliance with applicable securities laws, including a copy of this Agreement.

21.16 Potential Lenders, Potential Equity Investors and Equity Participants.

A. Potential Lenders. Owner shall provide to Contractor (i) the identity of Potential Lenders that have signed confidentiality agreements with Owner and (ii) a copy of the preliminary information memorandum or preliminary offering circular distributed to such Potential Lenders and any final loan agreements executed with Owner and such Potential Lenders. As used herein, “Potential Lender” shall mean any commercial bank, insurance company, investment or mutual fund or other entity that is an “accredited investor” (as defined in Rule 501 of Regulation D promulgated under the Securities Act of 1933, as amended) and which extends credit, buys loans and is in the business of lending as one of its businesses.

B. Potential Equity Investors. Prior to disclosure of any Work Product (other than ConocoPhillips Work Product which disclosure is governed by the ConocoPhillips License Agreement) by Owner to any potential equity investor in Owner in connection with the Project, Owner shall (i) obtain Contractor’s written consent (such consent not to be unreasonably withheld) to the description of the Work Product to be disclosed, and (ii) obtain a waiver from such potential equity investor agreeing that it is not relying upon such Work Product in making any investment decision in connection with the Project and waiving and releasing any claim it may have against Contractor or Contractor’s Affiliates on account of any such reliance or purported reliance. Owner acknowledges and agrees that each potential equity investor shall be an “accredited investor” within the meaning of Rule 501 of Regulation D promulgated under the Securities Act of 1933, as amended.

C. Equity Participants. Owner’s successors, assigns and any future recipient of any equity ownership in Owner shall be bound by the releases, limitations on liability and other protections of Contractor set forth in this Agreement, and Owner shall obtain the express written agreement of such equity participants to be bound by such releases, limitations of liability and other protections of Contractor.

21.17 Foreign Corrupt Practices Act. With respect to the performance of the Work, Contractor shall, and shall cause each member of the Contractor Group to, comply with all provisions of the Foreign Corrupt Practices Act of the United States (15 U.S.C. § 78dd-1 and 2) and the Bribery Act 2010 of the United Kingdom, and not to take any action that could result in Owner or any of its Affiliates becoming subject to any action, penalty or loss of benefits under such Acts. Owner shall, and shall cause each member of the Owner Group to, comply with all provisions of the Foreign Corrupt Practices Act of the United States (15 U.S.C. § 78dd-1 and 2) and the Bribery Act 2010 of the United Kingdom, and not to take any action that could result in Contractor or any of its Affiliates becoming subject to any action, penalty or loss of benefits under such Acts.

 

- 114 -


21.18 Parent Guarantee. Guarantor will guarantee the full and faithful performance of all obligations and liabilities of Contractor under this Agreement in the form attached as Attachment FF hereto (“Parent Guarantee”). Contractor shall not be entitled to any compensation under the Agreement unless and until Contractor provides the foregoing Parent Guarantee to Owner in accordance with this Section 21.18.

21.19 Language. This Agreement and all notices, communications and submittals between the Parties pursuant to this Agreement shall be in the English language.

21.20 Counterparts. This Agreement may be signed in any number of counterparts and each counterpart shall represent a fully executed original as if signed by each of the Parties. Facsimile signatures shall be deemed as effective as original signatures.

21.21 Federal Energy Regulatory Commission Approval. Issuance of the NTP pursuant to Section 5.2B is contingent upon FERC issuing the FERC Authorization. In the event FERC denies Owner’s application for the FERC Authorization or the content of such FERC Authorization is not acceptable to Owner, then Owner shall not be obligated to appeal therefrom. In the event FERC denies Owner’s application, then Owner may terminate this Agreement for convenience in accordance with Section 16.2.

21.22 Owner’s Lender. Contractor shall, on or before issuance of the NTP, enter into a mutually acceptable form of acknowledgement and consent with the Collateral Agent. Such acknowledgement and consent shall be substantially in the form of Attachment AA. Contractor shall cooperate in considering appropriate and reasonable amendments to that form of direct agreement as such amendments may be proposed by Lender or its counsel. Contractor acknowledges and agrees that Owner’s issuance of the NTP is contingent upon obtaining project financing in connection with this Project or other forms of financing.

21.23 Independent Engineer. Contractor shall cooperate with Independent Engineer in the conduct of his or her duties in relation to the Project and the Work, including the duties listed in Attachment CC. No review, approval or disapproval by Independent Engineer shall serve to reduce or limit the liability of Contractor to Owner under this Agreement.

21.24 Liquefaction Facility.

A. Notwithstanding anything to the contrary in this Agreement, the work performed under the Stage 2 EPC Agreement is governed by the Stage 2 EPC Agreement, and the Work performed under this Agreement is governed by this Agreement.

B. In addition and notwithstanding anything to the contrary in this Agreement, Contractor acknowledges that it shall not be entitled to any modification of the Contract Price, Project Schedule or any other Changed Criteria under this Agreement arising out of or relating to (i) any acts or omissions of Contractor or any of its subcontractors or sub-subcontractors in connection with the Stage 2 EPC Agreement or the Stage 2

 

- 115 -


Liquefaction Facility, or (ii) any act, instruction or direction by Owner or anyone acting for or on behalf of Owner in accordance with the Stage 2 EPC Agreement; provided that in no case shall this be interpreted to entitle Contractor to a change, but instead Contractor shall only be entitled to relief to the extent permitted under Article 6. Similarly, notwithstanding anything to the contrary in this Agreement, Contractor acknowledges that it shall not be entitled to any modification of the contract price, project schedule or any other changed criteria under the Stage 2 EPC Agreement arising out of or relating to (i) any acts or omissions of Contractor or any of its Subcontractors or Sub-subcontractors in connection with this Agreement, Subproject 1 or Subproject 2, or (ii) any act, instruction or direction by Owner or anyone acting for or on behalf of Owner in accordance with this Agreement.

C. Without limiting the foregoing, the waivers and disclaimers of liability, releases from liability, exclusions, limitations and apportionments of liability and indemnities expressed in the Stage 2 EPC Agreement and this Agreement shall apply to the work performed under each agreement respectively and shall not supersede any such rights, obligations or liabilities that arise out of the other agreement.

21.25 Survival. Subject to Section 20.7, Article 6, Article 7, Article 9, Article 10, Article 12, Article 14, Article 15, Article 16, Article 17, Article 18 and Article 19, Article 20, Sections 3.8, 3.13, 3.14, 3.17, 4.5, 8.1, 8.2, 21.9, 21.16, 21.24, and this Section 21.25 shall survive termination of this Agreement, in addition to any other provisions which by their nature should, or by their express terms do, survive or extend beyond the termination of this Agreement.

[Signature Page Follows]

 

- 116 -


IN WITNESS WHEREOF, the Parties have caused this Agreement to be executed by their duly authorized representatives as of the Contract Date.

 

  Owner:
  CORPUS CHRISTI LIQUEFACTION, LLC
  By:    /s/ ***
  Name:    ***
  Title:    ***
  Contractor:
  BECHTEL OIL, GAS AND CHEMICALS, INC.
  By:    /s/ ***
  Name:    ***
  Title:    ***

 

- 117 -


Execution Version

ATTACHMENT A

SCOPE OF WORK AND BASIS OF DESIGN FOR STAGE 1

This Attachment A is comprised of the Scope of Work (Attachment A, Schedule A-1), Scope of Facilities, Basis of Design and FEED Documents incorporated into the Agreement (Attachment A, Schedule A-2). The priority between these documents is set forth in Section 1.4 of Attachment A, Schedule A-1.

 

A-1


Execution Version

 

Schedule A-1

SCOPE OF WORK

TABLE OF CONTENTS

 

1. SCOPE REQUIREMENTS

     4   

1.1

     GENERAL INTRODUCTION      4   

1.2

     SUMMARY OF CONTRACTOR SCOPE      4   

1.3

     DEFINITIONS      6   

1.4

     PRIORITY OF DOCUMENTS      6   

2. MANAGEMENT AND SUPERVISION

     7   

2.1

     OWNER MANAGEMENT PHILOSOPHY      7   

2.2

     PROJECT EXECUTION PLAN      7   

2.3

     OWNER OFFICE ACCOMMODATIONS      8   

3. ENGINEERING

     9   

3.1

     BASIS OF DESIGN      9   

3.2

     APPLICABLE CODES AND STANDARDS      9   

3.3

     PROJECT ENGINEERING PLAN      9   

3.4

     ENGINEERING DESIGN      10   

3.5

     [NOT USED.]      11   

3.6

     PROCUREMENT AND MATERIAL CONTROL      12   

3.7

     BID PACKAGES      13   

3.8

     TRANSPORTATION OF MATERIAL AND EQUIPMENT TO STAGE 1 SITE      13   

3.9

     SPARE PARTS      13   

3.10

     REIMBURSABLE PURCHASES (REIMBURSABLE CHANGE ORDERS)      13   

4. SUBCONTRACTS

     15   

4.1

     GENERAL      15   

4.2

     PROJECT SUBCONTRACT PLAN      15   

4.3

     LOCAL SUBCONTRACTORS AND SUB-SUBCONTRACTORS      15   

4.4

     BID PACKAGES      15   

5. CONSTRUCTION

     16   

5.1

     GENERAL      16   

5.2

     STAGE 1 SITE PREPARATION      18   

5.3

     SCAFFOLDING AND ACCESS EQUIPMENT      18   

5.4

     CRANEAGE AND LIFTING EQUIPMENT      18   

5.5

     MEDICAL FACILITIES      19   

5.6

     SANITATION      19   

5.7

     HOUSEKEEPING      19   

5.8

     TEMPORARY FACILITIES      20   

5.9

     HEALTH, SAFETY AND THE ENVIRONMENT (HSE)      20   

5.10

     INDUSTRIAL RELATIONS      20   

5.11

     STAGE 1 SITE SECURITY      20   

5.12

     MATERIALS HANDLING, CONTROL AND PRESERVATION      21   

5.13

     MATERIAL CONTROL PROCEDURE      22   

5.14

     MATERIAL MARKING      22   

 

A-2


Execution Version

 

5.15

     CONSTRUCTION UTILITIES      22   

5.16

     FIRST FILL MATERIALS      23   

6. QUALITY MANAGEMENT

     24   

6.1

     QUALITY ASSURANCE REQUIREMENTS      24   

6.2

     PROJECT QUALITY PLAN      24   

7. COMMISSIONING AND START UP

     26   

7.1

     INTRODUCTION      26   

7.2

     PROJECT COMMISSIONING PLAN      26   

7.3

     OPERATING AND MAINTENANCE MANUALS      27   

7.4

     PERFORMANCE TESTS      27   

7.5

     OPERATING TESTS      28   

7.6

     OWNER OPERATOR TRAINING      28   

7.7

     VENDOR TRAINING      29   

7.8

     OPERATIONS ACTIVITIES PRIOR TO SUBSTANTIAL COMPLETION OF SUBPROJECT 2      29   

8. PROJECT CONTROL

     30   

8.1

     GENERAL      30   

8.2

     PROJECT CONTROLS PLAN      30   

8.3

     PROGRAM REPORTING - PLANNING NETWORK      30   

8.4

     CPM SCHEDULE      30   

8.5

     PROGRESS MEASUREMENT      32   

8.6

     MEETINGS; WEEKLY PROGRESS MEETINGS; MINUTES      32   

8.7

     MONTHLY PROGRESS REPORTS      32   

8.8

     QUARTERLY EXECUTIVE PROGRESS REPORTS      34   

8.9

     CONTRACTOR DELIVERABLES      35   

9. CONTRACTOR INTERFACES

     36   

9.1

     FERC ACTIVITIES – DIVISION OF RESPONSIBILITY      36   

9.2

     FERC REQUIRED REPORTS      38   

9.3

     REQUIREMENTS OF DEPARTMENT OF HOMELAND SECURITY      42   

9.4

     IMPORT GAS PIPELINES      43   

9.5

     ENVIRONMENTAL MITIGATION      43   

9.6

     LANDOWNER ACCESS      43   

10. SCOPE OF LNTP

     44   

 

A-3


Execution Version

 

1. SCOPE REQUIREMENTS

1.1 General Introduction

This Scope of Work provides an overall description of Contractor’s responsibilities for the design, engineering, procurement, manufacture, management, construction, installation, testing, commissioning, Start Up, initial operations, and Performance Testing, of the Stage 1 Liquefaction Facility.

The Site is located off Highway 35 on 223 acres of land along the La Quinta Channel in San Patricio County, Texas and Nueces County, Texas, as further defined in Attachment Y.

All obligations and responsibilities referred to in this Attachment A are Contractor’s obligations and responsibilities, unless expressly stated to be the obligation of Owner or a third Person.

References in this Attachment A to any “Section” or “Article” shall mean the sections or articles of this Attachment A, unless express reference is made to another section or article of the Agreement. Any capitalized term used in this Attachment A which is defined in the Agreement shall have the same meaning as defined in the Agreement, unless a different meaning is expressly provided in this Attachment A.

1.2 Summary of Contractor Scope

Except for items and services excluded from Contractor’s Scope of Work as identified in the Agreement to be provided by Owner or others, Contractor’s responsibilities for the design, engineering, procurement, fabrication, manufacture, erection, installation, construction, management, inspection, repair (including Corrective Work), testing (including Performance Tests), training, pre-commissioning, commissioning and placing into service of the Stage 1 Liquefaction Facility and Equipment and systems, and the required related labor and materials, shall generally include:

 

  a. Detailed engineering design of the Stage 1 Liquefaction Facility;

 

  b. Development of Contractor deliverables as described in Attachment B of the Agreement;

 

A-4


Execution Version

 

  c. Supply of Equipment;

 

  d. Mobilization and Stage 1 Site establishment;

 

  e. Management, reporting and supervision of the Work;

 

  f. Construction and installation of Stage 1 Liquefaction Facility;

 

  g. Care, maintenance and preservation of all Equipment;

 

  h. Pre-commissioning;

 

  i. Mechanical Completion;

 

  j. Ready for Start Up;

 

  k. Commissioning and Start Up;

 

  l. Initial Operation of each Subproject up to Substantial Completion of such Subproject;

 

  m. Performance Tests;

 

  n. Substantial Completion of such Subproject;

 

  o. Performance of Corrective Work in accordance with Article 12 of the Agreement; and

 

  p. Final Completion.

 

A-5


Execution Version

 

1.3 Definitions

Basic Engineering Design Data” means FEED Document Number 3BD-M04-00002 Rev 007 dated July 24, 2013.

Basis of Design” means FEED Document Number 3BD-M04-00002 Rev 004 dated August 15, 2013. The Basis of Design is also referred to as the Design Basis in the Agreement.

Codes and Standards Specification” means FEED Document Number 25744-200-3DS-G01-00001 Rev 00D dated April 22, 2013.

FEED Documents” has the meaning specified in Attachment A, Schedule A-2.

Scope of Facilities” means FEED Document Number 25744-200-G01-000-00001 Rev 00E dated August 28, 2013.

1.4 Priority of Documents

In the event of any conflict or inconsistency between this Scope of Work, the Basis of Design, the FEED Documents, the Basic Engineering Design Data or the Scope of Facilities, such conflict or inconsistency shall be resolved in accordance with the following order of priority, with the document having the highest priority listed first and the one with the lowest priority listed last:

 

  a. Scope of Work (Attachment A, Schedule A-1);

 

  b. Scope of Facilities;

 

  c. Basis of Design;

 

  d. Basic Engineering Design Data;

 

  e. Other FEED Documents (Attachment A, Schedule A-2).

 

A-6


Execution Version

 

2. MANAGEMENT AND SUPERVISION

2.1 Owner Management Philosophy

Owner Representative will utilize a team of Owner’s personnel or consultants, which will be resident in the Contractor’s Houston home office during design and procurement phase, and at Stage 1 Site during construction through commissioning, Start Up, initial operations, and until Substantial Completion of Subproject 2, to facilitate prompt and accurate communications between Owner and the Contractor.

2.2 Project Execution Plan

Without prejudice to any other provision of this Attachment A or the Agreement which sets out specific requirements for any of the plans or documents listed below, within sixty (60) Days after Notice to Proceed, Contractor shall submit to Owner for review Contractor’s project execution plan (“Project Execution Plan”), which shall address, summarize, and provide a schedule for development and finalization of the following plans, procedures, and other documents:

 

  a. Project objectives;

 

  b. Project management;

 

  c. Project Engineering Plan;

 

  d. Document Management Plan;

 

  e. Project Controls Plan;

 

  f. Project Procurement Plan;

 

  g. Revisions to Attachment G, if any;

 

  h. Document control plan;

 

  i. Communications plan;

 

  j. Subcontractor list;

 

A-7


Execution Version

 

  k. Project Subcontract Plan;

 

  l. HSE Plan;

 

  m. Interface management plan;

 

  n. Project Quality Plan;

 

  o. Project Construction Plan;

 

  p. Project Commissioning Plan;

 

  q. Performance Test Procedures;

 

  r. Labor relations plan;

 

  s. Management of change plan; and

 

  t. Operations training plan.

2.3 Owner Office Accommodations

All security, furnishings, electrical power, housekeeping services and other temporary utilities, lighting, telephones, facsimile, and high speed internet access associated with the office accommodation below shall be provided by Contractor. This shall include the telecommunications line rentals from Notice to Proceed until thirty (30) Days after Substantial Completion of Subproject 2. International long distance calls will be reimbursed to Contractor as Reimbursable Costs. Owner will supply computers to Owner personnel.

Contractor shall provide office accommodation for:

 

  a. Up to a peak of thirty (30) Owner personnel at Contractor’s Houston home office, including two (2) reserved covered parking spaces, commencing with NTP and concluding with Substantial Completion of Subproject 2.

 

A-8


Execution Version

 

  b. Up to total ninety (90) Owner personnel at Stage 1 Site during construction activities, including reserved parking area and two (2) covered parking spaces for Owner personnel until Substantial Completion of Subproject 2.

3. ENGINEERING

3.1 Basis of Design

Owner shall be responsible for providing those items of information defined as “Rely Upon” in the Basis of Design and for providing to Contractor the information or items specified in Attachment U, subject to Contractor’s obligation to provide information to Owner as specified in Attachment U. In accordance with Section 4.8 of the Agreement, Owner shall remain fully responsible for the accuracy, completeness and sufficiency of such information.

All other information constituting the Basis of Design or otherwise required for performance of the Work shall be provided or developed by Contractor, as applicable, and Contractor shall be fully responsible for the accuracy, correctness and completeness thereof, and the provisions of Section 2.5A of the Agreement shall apply with respect to all such information provided or developed by Contractor or otherwise required for performance of the Work (other than the information, as specified in the preceding paragraph, which is the responsibility of Owner).

The following are excluded from the Work: (i) treatment of the Feed Gas upstream of Unit 11 including the complete removal of oil due to the operation of 00C-2402 Pipeline Gas Compressor; (ii) seismic measurement equipment except as specified for the LNG Tanks; (iii) provisions at the property line for mitigation of thermal radiation, operational noise, and overpressure; and (iv) building office furniture.

3.2 Applicable Codes and Standards

The Applicable Codes and Standards include (i) any codes and standards specifically mentioned in any provision of the Agreement or the Attachments as applicable to the Work; (ii) any codes or standards set forth or listed in any document listed in Schedule A-2; and (iii) those codes and standards of generally accepted practices, methods, techniques and standards employed by the international LNG industry constituting GECP, as specifically identified through detailed engineering.

 

A-9


Execution Version

 

3.3 Project Engineering Plan

Contractor shall produce a detailed project engineering plan (“Project Engineering Plan”) for review by Owner within sixty (60) Days after Notice to Proceed. The Project Engineering Plan will provide a summary of the procedures, plans, and execution methodologies to be used by Contractor to develop the engineering design in accordance with the Applicable Codes and Standards and the requirements of the Agreement.

3.4 Engineering Design

3.4.1 General

In addition to any other engineering requirements specified in Attachment A or any other provision, Attachment or Schedule of the Agreement, the following services, Drawings, and Specifications, as a minimum, shall be provided by Contractor in respect of all engineering disciplines during engineering of the Stage 1 Liquefaction Facility:

 

  a. Completing the engineering design documents including the FEED Documents for the Stage 1 Liquefaction Facility, as required, which were developed by Contractor prior to the Contract Date;

 

  b. Developing new Drawings sufficient for procurement of materials and Equipment, installation, construction, manufacture, fabrication, commissioning, Start Up, testing, operation and maintenance of the Stage 1 Liquefaction Facility;

 

  c. Preparation of Equipment data sheets;

 

  d. Preparation of Drawings for the Stage 1 Liquefaction Facility and related Drawing list;

 

  e. Preparation of engineering material requisitions and purchase requisitions, and amendments as necessary up to record status;

 

A-10


Execution Version

 

  f. Technical evaluation for all Major Equipment;

 

  g. Review of vendor data, Drawings and other documentation for engineered Equipment;

 

  h. Detailed material take-offs and monitoring of material changes for all disciplines;

 

  i. Development of acceptance test requirements for all Major Equipment;

 

  j. Development and implementation of a plan for witnessing of factory acceptance tests at vendor’s shops for all Major Equipment;

 

  k. Drawings control, vendor data and documentation control using a computer database utilizing Contractor’s document control procedure;

 

  l. Review of vendor’s recommended spares for Equipment and prepare final recommended Operating Spare Parts List in accordance with Section 3.4 of the Agreement;

 

  m. Development of technical documents for Subcontracts;

 

  n. Provision of engineering support for procurement, construction and commissioning, including assistance to Subcontractors in the interpretation of technical requirements and Drawings;

 

  o. Preparation of mechanical catalogues and vendor data books;

 

  p. Provision of all Record Drawings and Specifications;

 

  q. Drawings required for tie-ins;

 

  r. Development of Equipment lists, instrument index, line lists;

 

  s. HAZOP review of P&IDs not previously conducted

 

  t. Safety Integrity Level (SIL) review to define safety levels of critical control and safety systems not previously completed.

 

A-11


Execution Version

 

3.5 [Not Used.]

3.6 Procurement and Material Control

3.6.1 General

The Project procurement plan will provide a summary of the procedures, plans, and execution methodologies to be used by Contractor for procuring Equipment, materials, goods and services within the Scope of Work (“Project Procurement Plan”).

3.6.2 Project Procurement Plan

Contractor shall produce a Project Procurement Plan for review by Owner within ninety (90) Days after Notice to Proceed, and Owner will provide review comments within ten (10) Business Days after receipt. The Project Procurement Plan will address, at a minimum:

 

  a. Inspection;

 

  b. Expediting;

 

  c. Supplier quality reports;

 

  d. Technical requirement compliance;

 

  e. Material control, marking, and certification;

 

  f. Packing, consolidation, importing;

 

  g. Transportation, handling, and storage;

 

  h. Warranties and guarantees;

 

  i. Vendor servicemen;

 

A-12


Execution Version

 

3.6.3 Local Suppliers

Contractor shall give due consideration to local companies to provide materials and services, provided they are competitive in terms and price, proven quality, experience, expertise, service and delivery. Contractor will establish procedures to ensure appropriate consideration of local suppliers.

3.7 Bid Packages

Contractor shall be responsible for preparing and issuing bid packages or requests for proposals for materials, Equipment and services within the Scope of Work where required. Contractor shall receive the bids and perform the formal bid evaluations. Selection of such Subcontractors and execution of related Subcontracts shall comply with the requirements of Section 2.4 of the Agreement.

3.8 Transportation of Material and Equipment to Stage 1 Site

Contractor shall be fully responsible for the packaging, transportation, importation, and customs clearance of all Equipment to and from the Stage 1 Site, including all costs associated with such transportation. To the extent Equipment is transported to the Stage 1 Site by vessels, Contractor shall only use vessels that are acceptable to the marine cargo insurance providers. All Equipment deliveries shall be made to the Stage 1 Site and not the Stage 2 Site, even if such Equipment will be incorporated into the Stage 2 Site, unless prior written approval for delivery to the Stage 2 Site is obtained from Owner.

3.9 Spare Parts

Contractor shall be responsible for obtaining vendor recommendations for spare parts and delivering such recommendations and spare parts to Owner in accordance with Section 3.4 of the Agreement.

3.10 Reimbursable Purchases (Reimbursable Change Orders)

In the event that Owner specifically requests Contractor, by way of Change Order in accordance with Article 6 and Schedule D-4 of the Agreement, to purchase an item which is not included in the Scope of Work on a cost-reimbursable basis (“Reimbursable Change Order”), the provisions of this Section 3.10 shall apply to such reimbursable purchases.

 

A-13


Execution Version

 

3.10.1 Inquiries

For reimbursable purchases valued over One Million U.S. Dollars (US$1,000,000.00), to be purchased by Contractor under a Change Order, Contractor shall ensure all inquiries request sufficient information to support a complete commercial and technical evaluation, including nearest parts and service location. Inquiries shall be issued to vendors/subcontractors on the approved Subcontractors list set out in Attachment G. A sufficient number of qualified suppliers/subcontractors shall be invited to bid to ensure receipt of at least three (3) bona fide bids for reimbursable purchases unless otherwise agreed by Owner.

Contractor shall prepare all inquiries to ensure that the inquiry documentation is comprehensive and complete with all Drawings so that competitive bids received will require a minimum amount of conditioning.

3.10.2 Bid Evaluations

Contractor shall issue a complete technical and commercial bid evaluation with recommendations for award to Owner for review and agreement, prior to any award. Owner technical and administrative personnel will work with Contractor’s staff in bid evaluations for all purchases of cost-reimbursable Equipment and other items.

3.10.3 Purchase Orders

Following bid evaluation and agreement on the selection of the vendor, Contractor shall issue a purchase order to the selected vendor. The purchase order shall include and confirm all factors considered in the inquiry and technical bid evaluation, and other relevant information and requirements.

3.10.4 Communications

Contractor shall give Owner in writing, at least ten (10) Business Days advance notice of proposed technical and logistics meetings and commercial negotiations for cost-reimbursable items between Contractor and vendors, together with date, time and subject of the meeting. Owner will indicate whether or not it will participate.

 

A-14


Execution Version

 

4. SUBCONTRACTS

4.1 General

Subject to the provisions of Sections 2.3 and 2.4 of the Agreement, Contractor shall engage Subcontractors as required to perform the Work and carry out Contractor’s obligations under the Agreement.

4.2 Project Subcontract Plan

Contractor shall produce a detailed Subcontract plan (“Project Subcontract Plan”) for review by Owner within ninety (90) Days after Notice to Proceed. The Project Subcontract Plan will provide the procedures, plans, and execution methodologies to be used by Contractor for bidding, evaluating, awarding, inspection, progress monitoring, technical requirement compliance, material controls, and expediting of Subcontracts.

4.3 Local Subcontractors and Sub-subcontractors

Contractor shall give due consideration to local companies to provide materials and services, provided they are competitive in terms and price, proven quality, experience, expertise, service and delivery. The Project Subcontract Plan shall indicate how Contractor intends to ensure appropriate consideration of local subcontractors.

4.4 Bid Packages

Contractor shall be responsible for preparing and issuing bid packages or request for proposals for Subcontracts. Selection of such Subcontractors and execution of related Subcontracts shall comply with the requirements of Section 2.4 of the Agreement.

 

A-15


Execution Version

 

5. CONSTRUCTION

5.1 General

Contractor shall produce a detailed construction plan (“Project Construction Plan”) for review by Owner within ninety (90) Days after Notice to Proceed. Owner will provide comments within ten (10) Business Days following receipt. The Project Construction Plan will provide a summary of the procedures, plans, and execution methodologies to be used by Contractor for all management, controls, labor, supervision, consumables, tools, plant and Equipment necessary to construct, mechanically complete, test, and pre-commission the Stage 1 Liquefaction Facility. The Project Construction Plan will address the following:

 

  a. Construction procedures;

 

  b. Policies, rules and regulations for:

 

  i. HSE;

 

  ii. Personnel identification;

 

  iii. Access to Stage 1 Site;

 

  iv. Access to Off-Site Rights of Way and Easements;

 

  v. Firearms, drugs, alcohol, animals, etc.;

 

  vi. Access Equipment;

 

  vii. Construction Permits;

 

  viii. Parking;

 

  ix. Vehicular access;

 

  x. Personnel orientation; and

 

  xi. Construction plant and Construction Equipment;

 

A-16


Execution Version

 

  c. Construction methodology;

 

  d. Tie-In plan including:

 

  i. Activity description;

 

  ii. Impacted component of Stage 1 Liquefaction Facility after Substantial Completion of Subproject 1; and

 

  iii. Component impact duration to Stage 1 Liquefaction Facility;

 

  e. Scaffolding and access equipment;

 

  f. Temporary roads;

 

  g. Work force training;

 

  h. Industrial relations;

 

  i. Public relations;

 

  j. Security;

 

  k. Transportation of Equipment ;

 

  l. Construction dock;

 

  m. Utilities, chemicals, lubricants;

 

  n. Construction communication procedures;

 

  o. First fills;

 

  p. Punchlists;

 

  q. Close out; and

 

  r. Demobilization.

 

A-17


Execution Version

 

5.2 Stage 1 Site Preparation

Contractor shall be responsible for carrying out Stage 1 Site preparation Work as defined in Basis of Design, including:

 

  a. Removal of vegetation;

 

  b. Temporary and permanent roads;

 

  c. Top soil removal; and

 

  d. Temporary and permanent drainage.

Suitable general fill material for use in areas without any foundations and under temporary facilities and laydown areas will be available from Site excavation activities. Structural fill will be imported for use within the footprints of the LNG Trains, under roads, and under any soil-supported foundations.

The Work excludes general improvements to off-Site infrastructure including improvements to La Quinta Road and/or La Quinta drainage ditch except as specified in Section 5.8.

5.3 Scaffolding and Access Equipment

The Contractor shall provide a safe means of access to the Work at all times, including for purposes of inspections by Owner. Scaffolding must be substantial and appropriately designed for the job. The Contractor shall keep adequate records to demonstrate a system of regular inspection of scaffolds, by appropriately qualified personnel. Records shall also be maintained of calculations performed for load bearing scaffolds. Tags with inspection, and expiration shall be prominently displayed on all scaffolding.

5.4 Craneage and Lifting Equipment

The Contractor shall only employ craneage and lifting equipment that has been tested and which is fit for purpose. All crane operators and riggers shall be adequately trained and must be able to demonstrate that they hold the appropriate certification. The Contractor shall keep records of tests and certification of all lifting equipment, craneage and operators employed in the Work.

 

A-18


Execution Version

 

Contractor shall comply with its internal rigging procedures for all lifting operations. Contractor will submit rigging plans for lifts exceeding fifty (50) tons, multiple crane lifts or lifts which are considered critical for review by Owner or Owner’s designee.

5.5 Medical Facilities

The Contractor shall provide provisions for suitable first-aid facilities which shall be available to all personnel at the Stage 1 Site, including those employed by Owner, Subcontractors and visitors.

The first-aid facilities, as a minimum, shall include a fully equipped first-aid room capable of treating injuries that can be anticipated on a construction site. Consideration shall be given for at least one qualified EMT or nurse on duty during the hours when construction Work is in progress at the Stage 1 Site. The Contractor shall also provide a program of training for first-aid personnel among the workforce and establish an emergency response team, drawn from the medical and workforce first-aid personnel, to deal with serious on Stage 1 Site accidents.

The Contractor shall produce for review by Owner within thirty (30) Days after Notice to Proceed, a plan detailing how emergency medical treatment will be administered. Such plan shall take into account capabilities of local hospital, medical facilities and emergency plan.

5.6 Sanitation

The Contractor shall provide adequate washing and latrine facilities for its workforce and for visitors permitted on the Stage 1 Site. These facilities shall be cleaned, disinfected, stocked with supplies and maintained regularly at all times and the disposal of sanitary waste shall conform to statutory requirements.

5.7 Housekeeping

The Contractor shall provide suitable receptacles and services to ensure that all scrap materials, debris and spoil generated by the Work, are collected regularly and properly disposed. Disposal of such materials outside the Stage 1 Site shall be to a properly licensed land fill or environmental waste subcontractor, in accordance with Applicable Law and Permits.

 

A-19


Execution Version

 

As soon as practicable after the completion of all Punchlist items, Contractor shall remove all Construction Equipment, construction trailers and other temporary facilities, and all other items brought onto the Stage 1 Site by Contractor, Subcontractors or Sub-subcontractors which are not the property of Owner, and remove from the Stage 1 Site and properly dispose of all scrap materials, debris and spoil. Contractor shall allow all temporary construction laydown areas to naturally revegetate, unless such areas are designated for wetland mitigation or other use by Owner that does not require such restoration.

5.8 Temporary Facilities

Until Substantial Completion of Subproject 2, Contractor shall provide all temporary facilities necessary for performance of the Work. The Work excludes any geotechnical study and/or topographical survey of the offsite temporary facilities areas. All temporary buildings, piping, cabling, communications equipment, storage facilities, fencing, gates, gas detection equipment, utilities, and the like above ground shall be removed on Substantial Completion of Subproject 2. The underground portion of the temporary utilities will be cut-off just below grade, capped, and abandoned in place with as-built documentation provided. Crushed rock for the temporary facilities areas will be abandoned in place upon Substantial Completion of Subproject 2. The Work excludes the upkeep or repair of off-Site roads, except for bridges from La Quinta Road to the temporary facilities areas and the access road from the Site to DMPA 1.

5.9 Health, Safety and the Environment (HSE)

Contractor shall comply with the requirements of the Agreement and Attachment J of the Agreement. Owner shall provide a waste generator identification number for regulated and hazardous waste generated at the Site and Off-Site Rights of Way and Easements and shall provide a signature for manifests for such waste removed from the Site and Off-Site Rights of Way and Easements. The Work excludes construction noise mitigation other than the requirements within the Site to comply with OSHA.

 

A-20


Execution Version

 

5.10 Industrial Relations

The Contractor shall prepare and provide to Owner within ninety (90) Days following Notice to Proceed, its policies and plans for managing industrial relations at the Stage 1 Site, for review by Owner. Such policies and plans shall cover working hours, right to work policies, working patterns, shifts, disputes procedure, welfare facilities (catering, sanitary, wet weather gear, protective clothing etc.), training, wet weather working, holidays and any other relevant matters.

The Contractor shall report all disputes or potential disputes involving Contractor or Subcontractor employees to Owner Representative as soon as practicable after they occur. The Contractor will be expected to take a pro-active role in managing industrial relations among such employees at the Site.

5.11 Stage 1 Site Security

The Contractor shall be responsible at all times for security at the Stage 1 Site until Substantial Completion of Subproject 2. Adequate fencing and security devices shall be provided and maintained to prevent unauthorized access to the Stage 1 Site and theft or damage. The Contractor shall employ sufficient security personnel to police the Stage 1 Site entrances, perimeter fencing and secure areas at all times and to carry out random searches of vehicle arriving or leaving the Liquefaction Facility Site. Adequate security lighting of the Stage 1 Site shall be provided. Contractor shall abide by Corpus Christi Liquefaction Terminal Security Policy while on the Stage 1 Site for (i) Subproject 1 after Substantial Completion of Subproject 1, and (ii) Subproject 2 after Substantial Completion of Subproject 2.

Contractor shall prepare within thirty (30) Days after Notice to Proceed a security plan for the Stage 1 Site for review by Owner, that shall address measures related to access to the Stage 1 Site by Owner, Contractor, Subcontractors, Sub-subcontractors and third parties, personnel identification, coordination with Stage 1 Liquefaction Facility security policies, enforcement and compliance by all such Persons with the Stage 1 Site security policy. Contractor shall be responsible for implementing, including monitoring of compliance with and enforcement of, such security plan.

5.12 Materials Handling, Control and Preservation

Contractor shall be responsible for developing and implementing a plan for all items of Equipment delivered to Stage 1 Site which will include and address the following obligations of Contractor as a minimum:

 

  a. Ensure that all materials are delivered to Stage 1 Site unless prior written approval of delivery to Stage 2 Liquefaction Facility is obtained from Owner;

 

A-21


Execution Version

 

  b. Receipt of all items including unloading, unpacking, inspection, storage and protection of same;

 

  c. Ensure that all materials are used correctly and no materials are substituted without Contractor’s agreement;

 

  d. Safekeeping, in accordance with the vendor/manufacturer guidelines/instructions for preservation of all Equipment on Site and ensuring that all materials are marked as being provided for the Work;

 

  e. Establishing and maintaining an adequate security system to control access to Equipment storage sites and prevent theft or other loss;

 

  f. Maintain records and account for all Equipment delivered and installed, and the remaining surplus and scrap for all Equipment;

 

  g. Maintain and provide to Owner upon request a critical items delivery report (“Procurement Status Report”), for Major Equipment and other critical items required for the Work;

 

  h. Development and implementation of a materials handling methods procedure for the movement of all Major Equipment and materials, and

 

  i. The inspection, care, preservation, and maintenance of materials and equipment.

5.13 Material Control Procedure

Contractor shall implement strict material control throughout all phases of the Work. Contractor shall submit to Owner for review within ninety (90) Days after Notice to Proceed, its proposed material control procedures for inclusion in the Project procedures manuals, which shall include Contractor’s plans and procedures for the use of appropriate computer systems to manage material control and to provide Owner with periodic status reports regarding the control of Equipment, and it shall submit its procedures for these systems for Owner review.

 

A-22


Execution Version

 

5.14 Material Marking

All Equipment arriving on Stage 1 Site shall be inspected by Contractor to ensure that it is marked according to Project requirements, and purchase order instructions. The marking of each item will act as a cross-reference to associated documentation, Drawings and Work scope.

5.15 Construction Utilities

5.15.1 Electrical

Contractor shall be responsible for provision of construction power facilities and payment for electrical consumption during construction until Substantial Completion of Subproject 2.

5.15.2 Potable Water

Contractor shall provide potable water and ice for the Stage 1 Site use, and ensure that a safe and plentiful supply of potable water and ice is available for all activities on the Stage 1 Site until Substantial Completion of Subproject 2. The water and ice for human consumption shall be of suitable quality.

5.15.3 Air

Until Substantial Completion of Subproject 2, Contractor shall provide instrument air for testing and operation and compressed air suitable for construction, testing and drying and any other purposes required in connection with performance of the Work.

5.15.4 Nitrogen

Until Substantial Completion of Subproject 2, Contractor shall provide all nitrogen as required for construction, testing, drying, purging and commissioning, including the Tanks.

 

A-23


Execution Version

 

5.15.5 Fuels, Lubricants & Service Fluids

Until Substantial Completion of Subproject 2, Contractor shall provide all necessary fuels, lubricants, catalysts, and service fluids required for all Equipment, except that Owner will supply Commissioning Feed Gas in accordance with Section 4.8 of the Agreement. Contractor shall provide suitable temporary storage of fuels, lubricants, and service fluids, including secondary containment where required.

5.16 First Fill Materials

Contractor shall supply and install all first fill lubricants, liquids, fuels, chemicals, mDEA, ethylene refrigerant, propane refrigerant and packings. First fill materials shall be stored in accordance with the manufacturer’s instructions. Contractor shall provide lubricating oils, mDEA, and refrigerants from date of first fill, including changes and replenishments, until Substantial Completion of Subproject 2.

 

A-24


Execution Version

 

6. QUALITY MANAGEMENT

6.1 Quality Assurance Requirements

Contractor shall provide an integrated quality management group to operate the quality assurance, quality control and certification functions of the quality management system. The quality management group shall be independent from Contractor’s construction, procurement and scheduling activities.

6.2 Project Quality Plan

Contractor shall produce a detailed Project-specific quality assurance and inspection plan (“Project Quality Plan”) for Review by Owner within sixty (60) Days after Notice to Proceed. The Project Quality Plan shall define the Contractor organization and responsibilities of the quality management group personnel and shall detail the procedures the Contractor intends to use to manage and control those aspects of the Work which may affect the quality of the completed Project.

The Project Quality Plan shall meet the requirements of Section 3.18 of the Agreement, may be based on Contractor’s standard quality assurance procedures, and shall, at a minimum, cover the following information:

 

  a. Project quality policy;

 

  b. Project quality objectives;

 

  c. Management responsibilities and duties of all key QA personnel;

 

  d. Quality assurance and quality control organization;

 

  e. A list and status of the procedures that will be employed on the Project. Program of internal, supplier, and Subcontractor audits;

 

  f. Documentation and certification control;

 

  g. Control of nonconforming products or processes and corrective actions;

 

A-25


Execution Version

 

  h. Design validation;

 

  i. Material traceability for all cryogenic materials; and

 

  j. Witness points in accordance with Section 12.2 of the Agreement.

 

A-26


Execution Version

 

7. COMMISSIONING AND START UP

7.1 Introduction

Contractor will be responsible for carrying out the commissioning, Start Up, and testing of Equipment including conducting Performance and Commissioning Tests, as set forth in greater detail in Attachment V, Attachment S, and Attachment T. In addition, Contractor will be responsible for operation of the Stage 1 Liquefaction Facility through Substantial Completion of such Subproject (subject to Owner’s rights under Section 11.8B of the Agreement). The Contractor shall have responsibility for the Equipment including upkeep, scheduled and preventative maintenance until Substantial Completion of such Subproject; provided, however, Owner shall bear the cost of any of the foregoing incurred by reason of any Operations Activity required by Owner under Section 11.8B of the Agreement. Contractor shall provide all consumable and spare parts for commissioning and anticipated start up spare requirements, including all first fills, chemicals, and lubricants. Commissioning activities include all activities that must be completed prior to Start Up of Equipment, including, but not limited to, introduction of inert gas to oxygen-free the equipment and begin the drying out process.

Maintenance work during commissioning shall be the responsibility of Contractor. This work includes, but is not limited to, checking pipe hangers, supports, guides and pipe specialties for operating settings and making necessary adjustments. It also includes repair of any Equipment, piping, welding, assistance in cleaning temporary strainers, replacing filters and removal of any blinds as required.

7.2 Project Commissioning Plan

Contractor shall produce a detailed plan (“Project Commissioning Plan”) for review by Owner. The Project Commissioning Plan shall list the procedures the Contractor intends to use to ensure that Equipment is brought through pre-commissioning, commissioning, Start Up, Performance Tests and Substantial Completion of each Subproject safely and in accordance with Attachment V of the Agreement. The Project Commissioning Plan will be implemented by Contractor, and address the following as a minimum:

 

  a. Mechanical completion;

 

A-27


Execution Version

 

  b. Field testing;

 

  c. Ready for Start Up;

 

  d. Commissioning;

 

  e. Development of operating manuals;

 

  f. Development of maintenance manuals;

 

  g. Ready for Performance Testing;

 

  h. Performance Testing;

 

  i. Emissions and noise testing;

 

  j. Interface with the FERC as required in accordance with Section 9;

 

  k. Substantial Completion Punchlist of each Subproject;

 

  l. Close-out; and

 

  m. Demobilization.

7.3 Operating and Maintenance Manuals

Contractor shall supply Start Up, operation, and maintenance manuals for review by the Owner in accordance with Attachment V of the Agreement. These Start Up manuals will include the sequence of activities that must be carried out in order to Start Up the Stage 1 Liquefaction Facility. The manuals shall incorporate the DOT Part 193 Operator Qualification and OSHA 1910 requirements that define the process safety management system.

7.4 Performance Tests

Contractor shall perform Performance Tests in accordance with Section 11.2 of the Agreement and Attachment S.

 

A-28


Execution Version

 

7.5 Operating Tests

Contractor shall conduct testing in accordance with Attachment S and the following operating tests to confirm the design meets the requirements of the Scope of Work. The procedures and acceptance criteria will be finalized by Contractor and reviewed by Owner prior to conducting the operating tests. The operating tests will be conducted before or after the Performance Tests as agreed by the Parties.

7.5.1 ESD Tests

Emergency shutdown (“ESD”) systems will be tested during precommissioning, commissioning or operation with LNG/Natural Gas in the system as follows. If unplanned inadvertent ESD trips occur during initial operations then the below corresponding ESD test will be deemed completed:

 

  a. Tanks will be loaded to test the high level shutdown function; the test shall be conducted to verify liquefaction shutdown;

 

  b. ESD shutdown will be initiated to ensure that each LNG Train is shutdown safely and in proper sequence during operation; and

 

  c. Power failure simulation shutdown will be initiated to ensure a safe, smooth shutdown sequence is achieved during LNG Train operation.

7.5.2 Commissioning Tests

Contractor shall perform Commissioning Tests in accordance with Attachment S.

7.6 Owner Operator Training

Contractor will provide training to Owner in accordance with Section 3.5 of the Agreement and Attachment V.

 

A-29


Execution Version

 

7.7 Vendor Training

Contractor shall coordinate vendor training in accordance with Section 3.5 of the Agreement and Attachment V.

7.8 Operations Activities Prior to Substantial Completion of Subproject 2

Contractor will operate the Stage 1 Liquefaction Facility in accordance with Section 11.7 of the Agreement. The Work excludes Contractor supply of strainers at the LNG Tanker.

8. PROJECT CONTROL

8.1 General

Contractor shall plan and program the Work and its resource requirements in accordance with the requirements of the Project Schedule.

8.2 Project Controls Plan

Contractor shall produce a detailed Project controls plan (“Project Controls Plan”) for review by Owner within sixty (60) Days after Notice to Proceed. Owner will provide comments within ten (10) Business Days. The Project Controls Plan shall detail the procedures to be used by Contractor to maintain the scheduling, control, progress, Change Order control, and reporting of all activities required to ensure that Substantial Completion of each Subproject is achieved by the Guaranteed Substantial Completion Date of such Subproject.

8.3 Program Reporting - Planning Network

The Work shall be planned, managed, monitored and controlled by use of an integrated critical path network planning system, derived from a work breakdown structure (“WBS”).

8.4 CPM Schedule

Contractor shall produce a CPM Schedule in accordance with Section 5.4 of the Agreement that will be the reference schedule for the duration of the Project unless revised by Change Order approved by the Owner. The CPM Schedule shall be the Project baseline plan comprising a

 

A-30


Execution Version

 

control network detailing all activities to be completed in a logical sequence and being in sufficient detail to identify key activities and restraints, interdependencies, interrelationships and resources required to control the Project.

The CPM Schedule shall:

 

  a. Be consistent with the Project Schedule, including NTP and the Guaranteed Substantial Completion Date for each Subproject;

 

  b. Represent Contractor’s best judgment as to how it shall complete the Work in compliance with the Project Schedule;

 

  c. Be a detailed graphic representation of all significant aspects of the Work showing Contractor’s plans for performance of the Work;

 

  d. Comply with GECP;

 

  e. Indicate a level of detail sufficient for Contractor to plan, organize, direct, coordinate, perform and execute the Work, and for Owner to monitor the progress of the Work;

 

  f. Include separate activities for each significant portion of the Work including activities for mobilization, engineering, procurement, construction, commissioning, start up, testing, closeout and demobilization;

 

  g. Show the duration, start dates, and finish dates for each activity;

 

  h. Show activity number, activity description, and responsible Person (i.e., Contractor, Subcontractor, or Sub-subcontractor) for each activity;

 

  i. Reflect logical relationships between activities with a reasonable duration for each activity, and show an uninterrupted critical path from NTP through First LNG Cargo, Substantial Completion of each Subproject and Final Completion; and,

 

A-31


Execution Version

 

  j. Indicate all Milestones to be used for progress payments. The initial CPM Schedule shall reflect the dates on the original Milestones progress payment schedule. Thereafter, at least once each quarter Milestones shall be re-scheduled in the CPM Schedule, if necessary, to reflect the current Schedule progress and updated projected Milestone dates. New Change Order Milestones, if any, shall be incorporated into the CPM Schedule at the quarterly CPM Schedule update.

8.5 Progress Measurement

The Contractor shall, until Substantial Completion of Subproject 2, develop and maintain systems and procedures for the measurement of progress against the CPM Schedule. The Contractor shall measure progress based on actual Work completed.

8.6 Meetings; Weekly Progress Meetings; Minutes

Periodic meetings shall be held as required for the purpose of keeping Owner fully informed of all aspects of the Work, and for reviewing execution plans, technical or financial concerns, progress status and scheduling of the Work, remedial actions, quality concerns, safety concerns, interfaces, and Owner and Contractor plans for resolving issues.

Commencing with NTP, weekly progress meetings will be held between Owner’s Representative or his designee, and any other Persons designated by Owner, and Contractor’s Key Personnel at the appropriate Stage 1 Site location, or as agreed by the Parties, Owner or Contractor home office. Owner and Contractor shall agree on dates, standardized reports and agenda for such meetings well in advance as the Work demands.

Minutes of all progress-related meetings (including weekly and monthly progress meetings) shall be prepared by Contractor (unless otherwise agreed by Owner) and sent to Owner in electronic format within five (5) Business Days following the meeting. The contents of the minutes shall be subject to review at the next weekly progress meeting. The format for the preparation of the minutes shall be mutually agreed at the first meeting. The minutes as a minimum should include decisions made, action item responsibilities and action dates and the results of assigned actions outlined in the previous minutes and shall be distributed to all attendees, Owner Representative, and in accordance with the document distribution matrix, to be developed during the Project execution.

 

A-32


Execution Version

 

8.7 Monthly Progress Reports

Commencing with NTP, Contractor shall provide a written Monthly Progress Report to Owner no later than ten (10) Days after the end of each Month, and the Monthly Progress Report shall cover activities up through the preceding the Month in which the Monthly Progress Report is issued. The Monthly Progress Report shall be provided in MS Word format. Contractor shall provide Owner with the number of copies of such reports and shall arrange for the distribution thereof as Owner may reasonably request.

Commencing with NTP a progress meeting shall be held each Month by Contractor at the Stage 1 Site or at an alternate site mutually agreeable to Owner and Contractor and at a mutually agreeable time, for the purpose of reviewing with Owner the Monthly Progress Report issued during such Month.

Contractor shall provide Monthly Progress Reports in a form reasonably acceptable to Owner which will indicate, at a minimum:

 

  a. Narrative summary of progress;

 

  b. A description, as compared with the Project Schedule and CPM Schedule, of engineering, procurement, construction, commissioning, and testing status including actual percentage complete versus planned percentage complete, document status, significant activities accomplished during the reporting Month, significant activities planned for the current Month and current estimated dates on which First LNG Cargo and Substantial Completion for each Subproject shall be achieved;

 

  c. Summary of Milestones planned and actually completed during the covered Month;

 

  d. Change Orders pending and approved;

 

  e. Description of any problems (including any occurrence of which Contractor is aware that could reasonably be expected to increase the cost of the Project or delay Substantial Completion of such Subproject beyond the Substantial Completion Date) and summary of plans for resolution;

 

A-33


Execution Version

 

  f. A description of the status of the Contractor’s Permits, including the dates of Contractor’s applications submitted or to be submitted and the anticipated dates of actions by Governmental Instrumentalities with respect to such Permits;

 

  g. A description of reportable environmental, health and safety incidents as well as any unplanned related impacts, events, accidents, reported near misses or issues that occurred during the reporting period;

 

  h. A description of all safety and security issues;

 

  i. A description of quality assurance activities;

 

  j. Progress photos showing representative portions of the Stage 1 Site and the Work, including completed Milestones, with a description of the photograph and the date taken; and

 

  k. All applicable information reasonably required by FERC and other Governmental Instrumentalities as identified in Section 9.0.

8.8 Quarterly Executive Progress Reports

Commencing at NTP, within fifteen (15) Days after the end of each quarter, Contractor shall provide Owner an executive progress report (“Executive Progress Report”) suitable for presentation to Owner’s executive management and shareholders in a form reasonably acceptable to Owner. These reports will be presented to Owner and discussed at a progress meeting to be held between Contractor Key Personnel and Owner Representative or his designee and any other Persons designated by Owner, every four Months. The Executive Progress Reports will include:

 

  a. Narrative summary of progress;

 

A-34


Execution Version

 

  b. Update of the status of the Project, including a high level summary schedule depicting current progress and projected First Cargo and Substantial Completion for both Subproject 1 and Subproject 2;

 

  c. Progress photographs and other illustrations; and

 

  d. Description of any problems and summary of plans for resolution.

8.9 Contractor Deliverables

(See Attachment B, Contractor Deliverables)

 

A-35


Execution Version

 

9. CONTRACTOR INTERFACES

9.1 FERC Activities – Division of Responsibility

Owner is required to provide regular reports and other information to the FERC during design, construction, and operation of the Stage 1 Liquefaction Facility as outlined in FERC Authorization, and in the Code of Federal Regulations (CFR), Title 49 – Transportation; Part 191 – Transportation of Natural and Other Gas by Pipeline; Annual Reports, Incident Reports, and Safety Related Condition Reports, and Part 193 – Liquefied Natural Gas Facilities: Federal Safety Standards. The Stage 1 Liquefaction Facility will also be subject to regular inspections by FERC staff, and continuous monitoring by inspectors providing reports to FERC. Contractor shall assist Owner for interfaces with FERC, including as specifically noted in the Division of Responsibility Matrix below:

 

FERC Activity    Owner    Contractor    Remarks
FERC Permit overall responsibility    P    Note 1   

Refer to Owner Permits, Attachment Q.

 

Note 1—Contractor is responsible for construction related Permits,) refer to Attachment P).

FERC coordination during Project execution    P    S   
Department of Transportation (“DOT”) drug testing program during construction.    S    P   

 

A-36


Execution Version

 

FERC Activity    Owner    Contractor    Remarks

FERC compliance and inspection during Project execution

 

(a)    Owner’s Monthly Report

 

(b)    Support FERC and DOT inspection visits

 

(c)    Environmental inspector’s weekly reports concerning construction activities;

 

(d)    Provide required Project data

 

(e)    Update FERC permit data

 

(f)     FERC technical reviews and occasional meetings

 

(g)    FERC witness of tests such as tank foundation, hydro test, Start Up and commissioning etc.

 

(h)    Address FERC compliance issues

   P    S   
Submit final report to FERC    P    S   
Obtain FERC Authorization    P    S    The FERC Authorization is required to site, construct and operate the Liquefaction Facility
FERC’s authorization to commence operation    P    S   
Start-up and commissioning coordination with FERC    P    S    Owner responsible for Feed Gas supply, shipping and logistics, and bi-directional Pipeline.
FERC requirement for Project Books and Records to be maintained three years after Final Completion    P    Note 2    Note 2 - Contractor to turn over Project records at the earlier of expiration of the Defect Correction Period or termination of the Agreement.

 

A-37


Execution Version

 

Legend:

P = Primary responsibility

S = Contractor support

9.2 FERC Required Reports

Owner is required to provide regular reports and other information to the FERC during design, construction, and operation of the Stage 1 Liquefaction Facility. The Stage 1 Liquefaction Facility will also be subject to regular inspections by FERC staff, and continuous monitoring by inspectors providing reports to FERC. Contractor shall assist Owner with all interfaces with FERC as follows:

 

  a. Operation and maintenance procedures and manuals, as well as emergency plans and safety procedure manuals, shall be filed with the FERC prior to commissioning operations. Contractor is responsible for developing these documents, including changes recommended by the FERC, and resubmitting these documents as required;

 

  b. The FERC staff shall be notified of any proposed revisions to the security plan and physical security of the Stage 1 Liquefaction Facility prior to commissioning. Contractor shall assist Owner in the development of these plans, and shall advise Owner if changes to the design or construction of the Stage 1 Liquefaction Facility may impact these plans;

 

  c. Progress on the Project shall be reported in monthly reports submitted to the FERC. Details should include a summary of activities, problems encountered and remedial actions taken. The Monthly Progress Report described in Section 8.7 shall be formatted so that the required information can be easily extracted by Owner and sent to the FERC;

 

  d. Problems of significant magnitude shall be reported to the FERC on a timely basis. Additional Stage 1 Site inspections and technical reviews will be held by FERC staff prior to commencement of operation. Contractor shall cooperate with Owner at all times in this regard and report any such problems to Owner immediately, and in all cases within twenty-four (24) hours;

 

A-38


Execution Version

 

  e. The Stage 1 Liquefaction Facility shall be subject to regular FERC staff technical reviews and Stage 1 Site inspections on at least a biennial basis or more frequently as circumstances indicate. Prior to each FERC staff technical review and Stage 1 Site inspection, the Owner will respond to a specific data request including information relating to possible design and operating conditions that may have been imposed by other agencies or organizations. Provision of up-to-date detailed piping and instrumentation diagrams reflecting modifications and provision of other pertinent information not included in the semi-annual reports described below, including events that have taken place since the previously submitted annual report. Contractor shall assist Owner with these FERC reviews, requests, inspections, and reports as required;

 

  f. Semi-annual operational reports shall be filed with the FERC to identify changes in Stage 1 Liquefaction Facility design and operating conditions, abnormal operating experiences, activities (including ship arrivals, quantity and composition of imported LNG, vaporization quantities, boil-off/flash gas, etc.), and Stage 1 Liquefaction Facility modifications including future plans and progress thereof. Abnormalities should include, but not be limited to: unloading/shipping problems, potential hazardous conditions from offsite vessels, Tank stratification or rollover, geysering, Tank pressure excursions, cold spots on the Tanks, Tank vibrations and/or vibrations in associated cryogenic piping, Tank settlement, significant equipment or instrumentation malfunctions or failures, non-scheduled maintenance or repair (and reasons therefore), relative movement of Tank inner vessels, vapor or liquid releases, fires involving Natural Gas and/or from other sources, negative pressure (vacuum) within a Tank and higher than predicted Boil-Off rates. Adverse weather conditions and the effect on the Project also should be reported. Reports should be submitted within forty-five (45) Days after each period ending June 30 and December 31. In addition, a section entitled “Significant plant modifications proposed for the next 12 months (dates)” also shall be included in the semi-annual operational reports. Such information would provide the FERC staff with early notice of anticipated future construction/maintenance projects at the Stage 1 Liquefaction Facility. Contractor shall assist Owner with any semi-annual operational reports that may be due during the period before Substantial Completion of such Subproject or modification to the Stage 1 Liquefaction Facility;

 

A-39


Execution Version

 

  g. Significant non-scheduled events, including safety-related incidents (i.e., LNG or Natural Gas releases, fires, explosions, mechanical failures, unusual over pressurization, and major injuries) shall be reported to FERC staff within forty-eight (48) hours. In the event an abnormality is of significant magnitude to threaten public or employee safety, cause significant property damage, or interrupt service, notification shall be made immediately, without unduly interfering with any necessary or appropriate emergency repair, alarm, or other emergency procedure. This notification practice shall be incorporated into the Stage 1 Liquefaction Facility’s emergency plan. Contractor shall report all such incidents to Owner immediately, and in all cases within twenty-four (24) hours, and develop for Owner any such reports that may be required during the period before Substantial Completion of such Subproject. Examples of reportable LNG-related incidents include:

 

  i. Fire;

 

  ii. Explosion;

 

  iii. Property damage exceeding $10,000;

 

  iv. Death or injury requiring hospitalization;

 

  v. Free flow of LNG for five minutes or more that results in pooling;

 

  vi. Unintended movement or abnormal loading by environmental causes, such as an earthquake, landslide, or flood, that impairs the serviceability, structural integrity, or reliability of the Stage 1 Liquefaction Facility;

 

  vii. Any crack or other material defect that impairs the structural integrity or reliability of Equipment that contains, controls, or processes Natural Gas or LNG;

 

A-40


Execution Version

 

  viii. Any malfunction or operating error that causes the pressure of a pipeline or Equipment that contains or processes Natural Gas or LNG to rise above its maximum allowable operating pressure (or working pressure for LNG facilities) plus the build-up allowed for operation of pressure limiting or control devices;

 

  ix. A leak in Equipment that contains or processes Natural Gas or LNG that constitutes an emergency;

 

  x. Inner tank leakage, ineffective insulation, or frost heave that impairs the structural integrity of any tank;

 

  xi. Any safety-related condition that could lead to an imminent hazard and cause (either directly or indirectly by remedial action of the operator), for purposes other than abandonment, a twenty (20) percent reduction in operating pressure or shutdown of operation of a pipeline or an Equipment that contains or processes Natural Gas or LNG;

 

  xii. Safety-related incidents to LNG trucks or LNG vessels occurring at or in route to and from the Stage 1 Liquefaction Facility; and

 

  xiii. The judgment of the LNG personnel and/or management even though it did not meet the above criteria or the guidelines set forth in the Stage 1 Liquefaction Facility’s incident management plan.

In the event of an incident, the FERC has authority to take whatever steps are necessary to ensure operational reliability and to protect human life, health, property or the environment, including authority to direct the Stage 1 Liquefaction Facility to cease operations. Following the initial notification to Owner, FERC staff will determine the need for Owner to file a separate follow-up report or follow-up in the upcoming semi-annual operational report. All follow-up reports should include investigation results and recommendations to minimize a reoccurrence of the incident. Contractor shall develop for Owner any such reports that may be required if the incident happened before Substantial Completion of Subproject 2.

 

A-41


Execution Version

 

Owner has overall responsibility for the FERC permit application, coordination with FERC, and compliance issues. Contractor will support Owner in providing required clarifications to FERC. Any (i) FERC related support provided by Contractor exceeding one thousand (1,000) man hours or (ii) additional Work required by FERC that is not contemplated in this Scope of Work shall be subject to a Change Order to the extent such excess support or additional Work adversely impacts (i) Contractor cost of performance of the Work; (ii) Contractor’s ability to perform the Work in accordance with the Project Schedule or (iii) Contractor’s ability to perform any obligation under the Agreement.

Notwithstanding the foregoing, Contractor shall not contact or otherwise engage in communications with FERC and other Governmental Instrumentalities regarding the Project without Owner’s involvement.

9.3 Requirements of Department of Homeland Security

9.3.1 Facility Security Plan

Owner is subject to the requirements found in 33 CFR Part 105, and will develop a facility security plan (“Facility Security Plan” or “FSP”). Contractor shall assist Owner in the revision of the FSP as required, and will structure all training programs for Owner to comply with this FSP. Applicable Contractor personnel shall also be trained to comply with this FSP for the period up to Substantial Completion of Subproject 2.

9.3.2 Facility Security Assessment

Owner may be required to develop a revised facility security assessment (“Facility Security Assessment” or “FSA”) which address “response procedures for fire or other emergency response conditions” (33 CFR 105.305(a)(2)). The US Coast Guard also requires an emergency manual for LNG terminals in accordance with 33 CFR 127.307. The emergency manual will be prepared and submitted to the COTP, along with the operations manual required by 33 CFR 127.305, for approval before the Stage 1 Liquefaction Facility can be placed in service. Contractor shall assist Owner in the development of this FSA and emergency manual.

 

A-42


Execution Version

 

9.4 Import Gas Pipelines

Owner shall be responsible for construction and completion of the Import Gas Pipelines and facilities up to the designated tie-in points on the outlet weld-in-insulator, as specified in the FEED Documents. Space shall be allowed for construction and operations of metering facilities, and road access.

9.5 Environmental Mitigation

Owner is responsible for wetlands mitigation required by Permits, Applicable Law or Governmental Instrumentalities to be performed on or off the Stage 1 Site. Subject to Applicable Law and Permits. It is anticipated that most such mitigation will take place after the majority of construction by the Contractor has been completed. Contractor shall cooperate to ensure the mitigation is accomplished expeditiously and with minimum interference.

9.6 Landowner Access

Landowners shall be provided access in accordance with Section 3.24 of the Agreement.

10. SCOPE OF LNTP

The following activities are in Contractor’s Scope of Work during the period after issuance of the LNTP and prior to issuance of the NTP (the “LNTP Work”). These activities will focus on supporting the critical path schedule and include the following: Any such LNTP Work to be agreed by mutual Change Order.

 

A-43


Execution Version

 

Schedule A-2

FEED Documents

Contractor performed front end engineering design (“FEED”) for the Project under the Technical Services Agreement, which resulted in the submittal by Contractor to Owner of the FEED documents that are listed in this Attachment A, Schedule A-2 (“FEED Documents”) and which are incorporated by reference into this Agreement and form a part of the Scope of Work.

HAZOP items referenced in the FEED Documents that were resolved on or before September 4, 2013 also form a part of the Scope of Work.

The FEED Documents are fully incorporated into this Agreement as if fully repeated herein. All other drawings, specifications and documents developed under the Technical Services Agreement are expressly excluded from the Agreement.

The FEED Documents generally reflect the Work required to be performed by Contractor under the Agreement, but do not reflect all Work required to be performed under the Agreement. Contractor may change the FEED Documents (except the Basis of Design, Scope of Facilities, Codes and Standards Specification and those documents defining the Reimbursable Cost Work) as necessary to meet the MAC, Performance Guarantee and other requirements of the Agreement (including GECP); provided that, under no circumstances shall such changes involve a change in the Stage 1 Liquefaction Facility layout, change in the requirements of Schedule A-1, deletion of or material change to the previously Owner-approved tagged Equipment, reduction of quality in any portion of the Work, change that adversely impacts the safety, performance or materials of construction, or a change that adversely impacts the operability or maintenance of the Stage 2 Liquefaction Facility, Stage 1 Liquefaction Facility or any component of any of these facilities, unless approved by Owner in writing. With respect to plans that Contractor is required to develop under Attachment A (e.g. Project Execution Plan, Project Engineering Plan, etc.), Contractor may update or deviate from such plans without Owner’s approval (except for those plans under Attachment A that are subject to the Owner’s approval (as specified under Attachment A or Attachment B), then, with respect to those plans, revisions are subject to Owner’s approval rights as may be prescribed in Attachment A or Attachment B). Any deviation in accordance with the immediately preceding sentence shall not constitute a Defect or a breach of this Agreement.

To the extent there are any conflicts or inconsistencies between the FEED Documents and any provision or requirement in the remainder of Attachment A, Schedule A-1, then priority shall be according to Section 1.4 of Attachment A, Schedule A-1. Without limiting the prior sentence, nothing in the FEED Documents shall reduce or limit Contractor’s obligations or liabilities under the Agreement.

 

A-44


Execution Version

 

TABLE A-1

FEED DOCUMENTS

The FEED Documents include the scope of work for the Stage 1 Liquefaction Facility and the scope of Work for the Stage 2 Liquefaction Facility. Drawing 25744-400-P1-00-00100, “Work Breakdown Structure Stage 1 / Stage 2”, delineates the breakdown between the Stage 1 Liquefaction Facility and the Stage 2 Liquefaction Facility. In the event of any conflict, ambiguity or inconsistency within the FEED Documents regarding the proper placement of a scope item resulting from such breakdown, such scope item shall be considered part of the Stage 1 Liquefaction Facility. Subject to the terms of the Agreement, including Attachment A, the Equipment and materials include LNG Train 1, LNG Train 2, LNG tank A, LNG tank C, associated OSBL facilities, buildings and marine facility.

 

Volume

/ Book

 

Section

 

Section

Title or

Sub-Sec

 

Sub Title

 

SubSub

Section

 

SubSub Title

 

Document Number

 

Rev

 

Description

     

SCOPE

DEFINITION

      25744-400-P1-00-00023   00A   Work Breakdown Structure Stage 1 / Stage 2
                [This row intentionally left blank.]
          Conference Notes   25744-200-G15-GAM-00201     Review of action taken on CCL comments on Process, Environmental and G&HES documents
          Conference Notes   25744-200-G15-GAM-00196     Review of comments on MET Documents
          Conference Notes   25744-200-G15-GAM-00190     Review of CCL comments on Project Engineering and PD&P (Plant Design and Piping) documents
          Conference Notes   25744-200-G15-GAM-00200     Review of CCL comments on Mechanical documents
          Conference Notes   25744-200-G15-GAM-00186     Review actions taken on CCL comments on CSA documents
          Conference Notes   25744-200-G15-GAM-00204     Review of CCL comments on Electrical documents
          Conference Notes   25744-200-G15-GAM-00195     Review of comments on Control Systems Documents
          Conference Notes   25744-200-G15-GAM-00194     Resolution of Client Comments for Marine Subcontract Documents

 

A-45


Execution Version

 

Volume

/ Book

 

Section

 

Section

Title or

Sub-Sec

 

Sub Title

 

SubSub

Section

 

SubSub Title

 

Document Number

 

Rev

 

Description

          Conference Notes   25744-200-G15-GAM-00197     Review of CCL comments on Process Safety documents
VOLUME 1                
  1.0   PROJECT INFORMATION            
    1.1   PROJECT EXECUTION PLAN          
            25744-200-G01-GAM-00002   000   EPC Project Execution Plan
  2.0   DESIGN INFORMATION            
    2.1   BASIS OF DESIGN (BOD) SUMMARY          
            3BD-M04-00002   004   Basis of Design Data by CCL
    2.2   BASIC ENGINEERING DESIGN DATA (BEDD)          
            3BD-M04-00001-000   007   Basic Engineering Design Data by CCL
            Final Seismic Hazard Report   August 7, 2012   Seismic and Tsunami Hazard Evaluations for the LNG Export Facility in Corpus Christi, Texas
            25744-200-P1K-00-10021   00A   Site Plan Existing Buried Items
    2.3   DESIGN BASIS FACILITY OPERATION          

 

A-46


Execution Version

 

Volume

/ Book

 

Section

 

Section

Title or

Sub-Sec

 

Sub Title

 

SubSub

Section

 

SubSub Title

 

Document Number

 

Rev

 

Description

                See Section 6.1 for the Design Basis Facility Operation, document number 25744-100-30Y-G03-00001
    2.4  

LIST OF

CODES AND

STANDARDS

         
            25744-200-3DS-G01-00001   00D   Codes and Standards
    2.5  

SCOPE OF

FACILITIES

         
            25744-200-G01-000-00001   00E   Scope of Facilities
    2.6  

DISCIPLINE

DESIGN

BASIS

         
        2.6.1   Civil Structural and Architectural      
            25744-200-3DR-C04F-00001   00C   Design Criteria for Civil Sitework
            25744-200-3DR-S04F-00001   00C   Design Criteria for Structures and Foundations
        2.6.2   Control Systems Design Philosophy      
            25744-200-3DR-J04F-00001   00D   Control Systems Design Criteria (Instrument and Control Philosophy)
        2.6.3   Electrical Design Basis      
            25744-200-3DR-E12F-00001   00D   Design Criteria for Electrical Systems Design and Installation

 

A-47


Execution Version

 

Volume

/ Book

 

Section

 

Section

Title or

Sub-Sec

 

Sub Title

 

SubSub

Section

 

SubSub Title

 

Document Number

 

Rev

 

Description

            25744-200-3DR-E12F-00002   00B   Design Criteria For Telecommunications
        2.6.4   Environmental Design Basis      
            25744-200-3DR-H04F-00001   00C   Environmental Design Criteria
            25744-200-3DR-H04F-00002   00A   Design Criteria - Unit 36 Water System and Water Balance
        2.6.5   Geotechnical and Hydraulic      
            25744-200-3DR-K04-00001   00B   FEED Geotechnical Design Criteria for Foundations - OSBL-ISBL Structures
            25744-200-3DR-K04-00002   00A   FEED Geotechnical Design Criteria for Foundations - LNG Tanks
VOLUME 2 BOOK 1                
        2.6.6   Marine      
            25744-200-3DR-R04F-00001   00A   EPC Design Criteria for LNG Jetties
            25744-200-3DR-R04F-00002   00A   EPC Design Criteria For Construction Dock, Tug Boat and Small Craft Berthing
        2.6.7   Mechanical      
            25744-200-3DR-M83F-00001   00B   HVAC Systems Basis of Design for Plant Buildings
        2.6.8   Plant Design & Piping      

 

A-48


Execution Version

 

Volume

/ Book

 

Section

 

Section

Title or

Sub-Sec

 

Sub Title

 

SubSub

Section

 

SubSub Title

 

Document Number

 

Rev

 

Description

            25744-200-3DR-P04F-00001   00B   Plant Design and Piping Layout and Design Criteria
        2.6.9   Process Design Basis      
            25744-200-3DR-V04F-00001   000   General Specification for Process Design Basis
            25744-200-3DR-V04F-00002   00C   Specification for Relief System Design Basis
        2.6.10   Process Safety Design Basis      
            25744-200-3DR-U04F-00001   00F   Process Safety Design Basis
            25744-200-3BD-U04-00003   00G   Spill Containment Design Basis
    2.7   ENGINEERING STUDIES          
        2.7.1   Engineering Studies      
            25744-200-G65-GER-00003   00B   Mooring Analysis Report
            25744-200-G65-GEV-00003   00A   Air Recirculation CFD Study Report
            25744-200-N0R-NV00-F0001   00E   Noise Modeling Report
            25744-200-30R-P31-00001   00A   Engineering Report for Reducing Length of 36 in Propane Line
            25744-200-V24-CM00-00006   002   Wind, Wave, and Current Report
            25744-200-V24-CM00-00069   002   Report Sedimentation

 

A-49


Execution Version

 

Volume

/ Book

 

Section

 

Section

Title or

Sub-Sec

 

Sub Title

 

SubSub

Section

 

SubSub Title

 

Document Number

 

Rev

 

Description

VOLUME 2 BOOKS 2 AND 3                
            25744-200-V24-CM00-00082   002   Report Berthing and Mooring Report
            25744-200-V11-HPYK-00001   001   ERM Common Cause Failure Analysis for Flare System
VOLUME 2 BOOK 3                
        2.7.2   Leak Study Drawings (Non Confidential)      
            25744-200-M6K-0010-00102   00C   Accidental Leak Source Sketch LNG-Cooldown Line Interconnecting Sht. 1 of 2
            25744-200-M6K-0010-00103   00A   Accidental Leak Source Sketch LNG-Cooldown Line Interconnecting Sht. 2 of 2
            25744-200-M6K-0020-00006   00A   Accidental Leak Source Sketch - Propane-Ethylene Unloading
            25744-200-M6K-0023-00001   00A   Accidental Leak Source Sketch - Condensate Storage Tank and Pumps
            25744-200-M6K-0023-00002   00A   Accidental Leak Source Sketch - Condensate Metering Package
        2.7.2.1   Leak Study Drawings (Confidential) (Refer to confidential FEED Deliverables Volume 1)      
            25744-200-M6K-1116-00004   00C   CoP Level III Confidential - Confidential Accidental Leak Source Sketch LNG Transfer Pumps

 

A-50


Execution Version

 

Volume

/ Book

 

Section

 

Section

Title or

Sub-Sec

 

Sub Title

 

SubSub

Section

 

SubSub Title

 

Document Number

 

Rev

 

Description

    2.8   FIRE WATER LOCATION PLANS (NON CONFIDENTIAL)          
        2.8.1   Fire Water Location Plans (Non Confidential)      
            25744-200-U1-00-10001   00H   Firewater Location Plan - OSBL - Refrigerant and LNG Storage-Pipeline and BOG Comp - Ambient Air Vaporizer Trains 1 and 2-Utilities MCC
            25744-200-U1-00-10002   00E   Firewater Location Plan - OSBL - Nitrogen and Air Generation-Amine Storage-H2S Scavenger - Waste Water Storage-Main and Utilities MCC
            25744-200-U1-00-10003   00F   Firewater Location Plan - OSBL - Firewater-Water Treatment
            .   00E   Firewater Location Plan - OSBL - Flare Knock-Out Drum Trains 1 2 and 3
            25744-200-U1-00-10005   00G   Firewater Location Plan - OSBL - LNG Loading Berth East Jetty
            25744-200-U1-00-10006   00F   Firewater Location Plan - OSBL - LNG Loading Berth West Jetty
            25744-200-U1-00-10007   00C   Firewater Location Plan - OSBL - Buildings-Construction Dock
        2.8.1.1   Fire Water Location Plans (Confidential) (Refer to confidential FEED Deliverables Volume 1)      

 

A-51


Execution Version

 

Volume

/ Book

 

Section

 

Section

Title or

Sub-Sec

 

Sub Title

 

SubSub

Section

 

SubSub Title

 

Document Number

 

Rev

 

Description

            25744-100-U1-31-10001   00C   CoP Level III Confidential - Firewater Location Plan ISBL Process Area 31 Typical For Liquefaction Train
            25744-100-U1-32-10001   00D   CoP Level III Confidential - Firewater Location Plan ISBL Process Area 32
            25744-100-U1-33-10001   00D   CoP Level III Confidential - Firewater Location Plan ISBL Process Area 33
        2.8.2   Passive Fire Protection Location Drawing with Schedule (Non Confidential)      
            25744-200-U1-00-20001   00D   Passive Fire Protection Zone Layout - OSBL - Refrigerant and LNG Storage-Pipeline and BOG Comp - Ambient Air Vaporizer Trains 1 and 2-Utilities MCC
            25744-200-U1-00-20002   00D   Passive Fire Protection Zone Layout - OSBL - Nitrogen and Air Generation-Amine Storage-H2S Scavenger - Waste Water Storage-Main and Utilities MCC
            25744-200-U1X-000-00002   00B   Passive Fire Protection Schedule - Non-Confidential - Train 1 and OSBL
        2.8.2.1   Passive Fire Protection Location Drawing with Schedule (Confidential) (Refer to confidential FEED Deliverables Volume 1)      
            25744-200-U1-31-20001   00B   CoP Level III Confidential - Passive Fire Protection Zone Layout ISBL Process Area 31 Liquefaction Train 1

 

A-52


Execution Version

 

Volume

/ Book

 

Section

 

Section

Title or

Sub-Sec

 

Sub Title

 

SubSub

Section

 

SubSub Title

 

Document Number

 

Rev

 

Description

            25744-200-U1X-000-00001   00A   CoP Level III Confidential - Passive Fire Protection Schedule Confidential Train 1
        2.8.3   Fire and Gas Location Drawing with Schedule (Non Confidential)      
            25744-200-U3-00-10001   00J   Fire and Gas Detection Location Plan - OSBL - LNG Storage
            25744-200-U3-00-10002   00G   Fire and Gas Detection Location Plan - OSBL - Nitrogen and Air Generation-Amine Storage-H2S Scavenger - Waste Water Storage-Main and Utilities MCC
            25744-200-U3-00-10003   00G   Fire and Gas Detection Location Plan - OSBL - Firewater-Water Treatment
            25744-200-U3-00-10004   00F   Fire and Gas Detection Location Plan - OSBL - Flare Knock-Out Drum Trains 1 2 and 3
            25744-200-U3-00-10006   00F   Fire and Gas Detection Location Plan - OSBL - LNG Loading Berth West Jetty
            25744-200-U3-00-10007   00D   Fire and Gas Detection Location Plan - OSBL - Buildings-Construction Dock
            25744-200-U3-00-10008   00B   Fire and Gas Detection Location Plan - OSBL - BOG Compressor and Ambient Air Vaporizer Trains 1 and 2
        2.8.3.1   Fire and Gas Location Drawing with Schedule (Confidential) (Refer to confidential FEED Deliverables Volume 1)      

 

A-53


Execution Version

 

Volume

/ Book

 

Section

 

Section

Title or

Sub-Sec

 

Sub Title

 

SubSub

Section

 

SubSub Title

 

Document Number

 

Rev

 

Description

            25744-100-U3-31-10001   00E   CoP Level III Confidential - Fire and Gas Detection Location Plan ISBL Process Area 31 Liquefaction Train 1
            25744-100-U3-31-10002   00E   CoP Level III Confidential - Fire and Gas Detection Location Plan ISBL Process Area 31 Compressor Area
            25744-100-U3-31-10003   00E   CoP Level III Confidential - Fire and Gas Detection Location Plan ISBL Process Area 31 Acid Gas Removal Area
            25744-100-U3-31-10004   00E   CoP Level III Confidential - Fire and Gas Detection Location Plan ISBL Process Area 31 Inlet Gas and Refrigeration Area
            25744-100-U3-31-10005   00E   CoP Level III Confidential - Fire and Gas Detection Location Plan ISBL Process Area 31 Molecular Sieve and Hot Oil Area
        2.8.4   Fire Extinguisher Location Plans (Non Confidential)      
            25744-200-U2-00-10001   00I   Fire and Safety Equipment Location Plan - OSBL - Refrigerant and LNG Storage-Pipeline and BOG Comp - Ambient Air Vaporizer Trains 1 and 2-Utilities MCC
            25744-200-U2-00-10002   00F   Fire and Safety Equipment Location Plan - OSBL - Nitrogen and Air Generation-Amine Storage-H2S Scavenger - Waste Water Storage-Main and Utilities MCC
            25744-200-U2-00-10003   00F   Fire and Safety Equipment Location Plan - OSBL - Firewater-Water Treatment
            25744-200-U2-00-10004   00F   Fire and Safety Equipment Location Plan - OSBL - Flare Knock-Out Drum Trains 1 2 and 3
            25744-200-U2-00-10006   00F   Fire and Safety Equipment Location Plan - OSBL - LNG Loading Berth West Jetty
            25744-200-U2-00-10007   00F   Fire and Safety Equipment Location Plan - OSBL - Buildings-Construction Dock

 

A-54


Execution Version

 

Volume

/ Book

 

Section

 

Section

Title or

Sub-Sec

 

Sub Title

 

SubSub

Section

 

SubSub Title

 

Document Number

 

Rev

 

Description

        2.8.4.1   Fire Extinguisher Location Plans (Confidential) (Refer to confidential FEED Deliverables Volume 1)      
            25744-200-U2-31-10001   00E   CoP Level III Confidential - Fire and Safety Equipment Location - ISBL Process Area 31 - Liquefaction Train 1
            25744-200-U2-31-10002   00E   CoP Level III Confidential - Fire and Safety Equipment Location - ISBL Process Area 31 - Liquefaction Train 1
            25744-200-U2-31-10003   00E   CoP Level III Confidential - Fire and Safety Equipment Location - ISBL Process Area 31 - Liquefaction Train 1
VOLUME 3 BOOK 1                
  3.0   TECHNICAL SPECIFICATIONS            
    3.1   PROJECT TECHNICAL SPECIFICATIONS          
        3.1.1   Civil Structural and Architectural      
            25744-200-3PS-AKBS-F0001   00C   Specification for Permanent Plant Buildings
            25744-200-3PS-CG00-F0001   00B   Specification for site Preparation and Earthwork
            25744-200-3PS-CP01-F0001   00C   Specification for Drilled Piers

 

A-55


Execution Version

 

Volume

/ Book

 

Section

 

Section

Title or

Sub-Sec

 

Sub Title

 

SubSub

Section

 

SubSub Title

 

Document Number

 

Rev

 

Description

            25744-200-3PS-CS00-F0001   00B   Specification for Road Construction
            25744-200-3PS-CY04-F0001   00B   Specification for Survey
            25744-200-3PS-CY10-F0001   00B   Specification for Chain-Link Fencing and Gates
            25744-200-3PS-DB01-F0001   00B   Specification for Furnishing and Delivering Ready-Mix Concrete
            25744-200-3PS-DB01-F0002   00B   Specification for Grout and Adhesives Materials and Installations
            25744-200-3PS-DB02-F0001   00B   Specification for Concrete Work
            25744-200-3PS-DG01-F0001   00B   Specification for Furnishing and Fabricating Reinforcing Steel
            25744-200-3PS-SS01-F0001   00B   Specification for Furnishing Structural Steel Miscellaneous Steel and Joists
            25744-200-3PS-SS02-F0001   00B   Specification for Erection of Structural Steel and Miscellaneous Steel
            25744-200-3PS-SY01-F0001   00B   Specification for Material Testing Services
        3.1.2   Control Systems      
            25744-200-3PS-JA32-F0001   00A   Project Specification for Packaged Analyzer System
            25744-200-3PS-JD01-F0001   00B   Specification for Distributed Control System (DCS)
            25744-200-3PS-JD03-F0001   00A   Specification for Safety Instrumented System (SIS)
            25744-200-3PS-JL23-F0001   00B   General Specification - Instrumentation for LNG Tank Gauging

 

A-56


Execution Version

 

Volume

/ Book

 

Section

 

Section

Title or

Sub-Sec

 

Sub Title

 

SubSub

Section

 

SubSub Title

 

Document Number

 

Rev

 

Description

            25744-200-3PS-JQ00-F0003   00C   Specification for Wiring for Instruments and Computers
            25744-200-3PS-JQ05-F0001   00A   Specification for Fire and Gas Detection System
            25744-200-3PS-JQ07-F0001   00A   Specification Instrumentation for Packaged Systems
            25744-200-3PS-JQ07-F0002   00A   Project Specification for Instrumentation for LNG Refrigeration Compressor Package
            25744-200-3PS-JQ10-F0001   00A   Specification for Instrument Piping Materials
            25744-200-3PS-JV00-F0001   00A   Testing Actuated Valves for Cryogenic Service (Control and On-Off Valves)
            25744-200-3PS-JV01-F0001   00A   Project Specification for Control Valves and Regulators
            25744-200-3PS-JV09-F0001   00A   Project Specification for On-Off and ESD Valves
VOLUME 3 BOOK 2                
        3.1.3   Electrical and Telecommunication      
            25744-200-3PS-E00X-F0001   00A   Specification for Electrical Equipment Testing and Commissioning
            25744-200-3PS-EBB0-F0001   00A   Specification for Metal-Enclosed Non-Segregated-Phase Bus Duct
            25744-200-3PS-ECM1-F0001   00A   Specification for Low Voltage AC Motor Control Centers
            25744-200-3PS-ECM3-F0001   00A   Specification for Medium Voltage Motor Control Centers
            25744-200-3PS-ED00-F0001   00B   Specification for D.C. Equipment

 

A-57


Execution Version

 

Volume

/ Book

 

Section

 

Section

Title or

Sub-Sec

 

Sub Title

 

SubSub

Section

 

SubSub Title

 

Document Number

 

Rev

 

Description

            25744-200-3PS-EEC0-F0001   00B   Specification for CCTV System
            25744-200-3PS-EFD0-F0001   00B   Specification for Local Area Network System
            25744-200-3PS-EFP0-F0001   00A   Specification for Public Address and General Alarm System
            25744-200-3PS-EFR0-F0001   00B   Specification for Plant Radio System
            25744-200-3PS-EFR6-F0001   00B   Project Specification for Marine Radio System
            25744-200-3PS-EFV0-F0001   00B   Specification for Telephony System
            25744-200-3PS-EFY0-F0001   00A   Specification for Telecommunications Cabling - Installation and Testing
            25744-200-3PS-EGR2-F0001   00A   Specification for Neutral Grounding Resistors
            25744-200-3PS-EH00-F0001   00A   Specification for Electric Heat Tracing
            25744-200-3PS-EKL0-F0001   00A   Specification for Packaged Substations
            25744-200-3PS-EKP0-F0001   00A   Specification for Electrical Requirements for Packaged Equipment
            25744-200-3PS-ES00-F0001   00A   Specification for 138KV Gas Insulated Switchgear
            25744-200-3PS-ESL1-F0001   00A   Specification for Low Voltage Metal Enclosed Switchgear
            25744-200-3PS-ESM1-F0001   00A   Specification for Medium Voltage Metal-Clad Switchgear
            25744-200-3PS-ETP0-F0001   00A   Specification for Unit Substation Transformers

 

A-58


Execution Version

 

Volume

/ Book

 

Section

 

Section

Title or

Sub-Sec

 

Sub Title

 

SubSub

Section

 

SubSub Title

 

Document Number

 

Rev

 

Description

            25744-200-3PS-EUY0-F0001   00B   Specification for Uninterruptible Power Supply (UPS) Systems
            25744-200-3PS-EWE1-F0001   00A   Specification for Cable - Low Voltage
            25744-200-3PS-EWG1-F0001   00B   Specification for Power Cable - Medium Voltage
            25744-200-3PS-MGED-F0001   00B   Specification for Standby Diesel Generator
            25744-200-3PS-MUMI-F0001   00A   Specification for Induction Motors NEMA Frame (200HP and Smaller)
            25744-200-3PS-MUMI-F0002   00A   Specification for Large Induction Motors NEMA Frame (250HP and Larger)
        3.1.4   Environmental      
            25744-200-3PS-MLFP-F0001   00B   Specification for Ultrafiltration System
            25744-200-3PS-MLGC-F0001   00B   Specification for Enhanced Coagulation Filtration System
            25744-200-3PS-MPGL-F0001   00B   Specification for Sanitary Lift Stations
            25744-200-3PS-MWR0-F0001   00B   Specification for RO and Demineralizer System
        3.1.5   Marine      
            25744-200-V24-CM00-00008   004   Specification Cast-In-Place Concrete
            25744-200-V24-CM00-00009   004   Specification Fire Protection of Marine Structures
            25744-200-V24-CM00-00011   003   Specification Precast Prestressed Concrete

 

A-59


Execution Version

 

Volume

/ Book

 

Section

 

Section

Title or

Sub-Sec

 

Sub Title

 

SubSub

Section

 

SubSub Title

 

Document Number

 

Rev

 

Description

            25744-200-V24-CM00-00012   003   Specification Structural Steel and Hardware
            25744-200-V24-CM00-00013   003   Specification Steel Fabrications and Miscellaneous Steel
            25744-200-V24-CM00-00016   003   Specification Aids to Navigation
            25744-200-V24-CM00-00017   003   Specification Pile Test
            25744-200-V24-CM00-00019   003   Specification Geotextile Filter Fabric
            25744-200-V24-CM00-00021   003   Specification Graded Rock Riprap
            25744-200-V24-CM00-00022   003   Specification Steel Sheet Piling
            25744-200-V24-CM00-00023   003   Specification Pile Driving
            25744-200-V24-CM00-00024   003   Specification Prestressed Concrete Piles
            25744-200-V24-CM00-00025   004   Specification Prestressed Concrete Spun Cast Piles
            25744-200-V24-CM00-00026   003   Specification Steel Pipe Piles
            25744-200-V24-CM00-00028   004   Specification Mooring Hook - Capstan - Vessel Approach and Monitoring System
            25744-200-V24-CM00-00029   005   Specification Dredging
            25744-200-V24-CM00-00031   002   Specification Earth Embankment Section
            25744-200-V24-CM00-00032   002   Specification Dock Fender Section

 

A-60


Execution Version

 

Volume

/ Book

 

Section

 

Section

Title or

Sub-Sec

 

Sub Title

 

SubSub

Section

 

SubSub Title

 

Document Number

 

Rev

 

Description

            25744-200-V24-CM00-00033   002   Specification Articulating Block Mattress Protection
            25744-200-V24-CM00-00034   004   Specification Marine Environmental Monitoring System
VOLUME 3 BOOK 3                
        3.1.6   Mechanical      
            25744-200-3PS-CM00-F0001   00B   Specification for Gangway Tower and Fire Monitor Tower
            25744-200-3PS-M83F-00001   00B   Supplementary HVAC Specification for Prefabricated Substation Buildings
            25744-200-3PS-MAH0-F0001   00A   Specification for HVAC Equipment for Plant Buildings
            25744-200-3PS-MBE0-F0001   00C   Specification for Waste Heat Recovery Unit
            25744-200-3PS-MBS0-F0001   00C   Specification for Elevated Flares
            25744-200-3PS-MCCR-F0001   00C   Specification for LNG Refrigeration Compressors
            25744-200-3PS-MCCS-F0001   00C   Specification for Integrally Geared Boil-Off Gas Compressors
            25744-200-3PS-MCCS-F0002   00C   Specification for API Dry Gas Seal Systems
            25744-200-3PS-MCCS-F0003   00C   Specification for API Lubrication Systems
            25744-200-3PS-MCCS-F0004   00C   Specification for Integrally Geared Regeneration Gas Compressors
            25744-200-3PS-MCGA-F0001   00C   Specification for Air Compressor - Air Dryer Package

 

A-61


Execution Version

 

Volume

/ Book

 

Section

 

Section

Title or

Sub-Sec

 

Sub Title

 

SubSub

Section

 

SubSub Title

 

Document Number

 

Rev

 

Description

            25744-200-3PS-MCPS-F0001   00B   Specification for Packaged Reciprocating Pipeline Gas Compressors
            25744-200-3PS-MEP0-F0001   00C   Specification for Welded Plate Heat Exchangers
            25744-200-3PS-MHLM-F0001   00E   Specification for LNG Transfer Arms
            25744-200-3PS-MJKG-F0002   00A   Specification for Compressor Bridge Cranes
            25744-200-3PS-MPCA-F0001   00C   Specification for Horizontal End Suction Centrifugal Pumps for Chemical Process
            25744-200-3PS-MPCA-F0002   00D   Specification for Vertical Inline Centrifugal Pumps for Chemical Process
            25744-200-3PS-MPCP-F0001   00D   Specification for Centrifugal Pumps for Petroleum - Petrochemical and Natural Gas Industries
            25744-200-3PS-MPGF-F0001   00D   Specification for Firewater Pumps - Drivers and Controllers
            25744-200-3PS-MPPM-F0001   00C   Specification for Controlled Volume (Metering) Pumps
            25744-200-3PS-MPPM-F0002   00B   Specification for Controlled Volume Pumps for Wash Water Service
            25744-200-3PS-MPVE-F0001   00A   Specification for Vertical Sump Pumps
            25744-200-3PS-MPVS-F0001   00C   Specification for LNG Cryogenic Pumps
            25744-200-3PS-MTD0-F0001   00H   Project Specification for LNG Storage Tanks
            25744-200-3PS-MTF5-F0001   00C   Specification for Welded Steel Atmospheric Pressure Storage Tanks
            25744-200-3PS-MUC0-F0001   00C   Specification for Special Purpose Couplings

 

A-62


Execution Version

 

Volume

/ Book

 

Section

 

Section

Title or

Sub-Sec

 

Sub Title

 

SubSub

Section

 

SubSub Title

 

Document Number

 

Rev

 

Description

            25744-200-3PS-MUGS-F0001   00C   Specification for Special Purpose Gear Units
            25744-200-3PS-MUTC-F0001   00C   Specification for Gas Turbine Drives
            25744-200-3PS-MUTC-F0003   00A   Specification for Gas Turbine Enclosures
            25744-200-3PS-MV00-F0001   00A   Specification for Pressure Vessels
            25744-200-3PS-MVD0-F0001   00A   Specification for Molecular Sieve Dehydrators
            25744-200-3PS-MVT0-F0001   00C   Specification For Supply - Inspection and Testing of Process Column Trays and Internals
            25744-200-3PS-PY32-F0001   00A   Specification for Designing - Furnishing and Installating Plumbing Systems for Plant Building
VOLUME 3 BOOK 4                
        3.1.7   MET      
            25744-200-3PS-EQ00-F0001   00A   Specification for Cathodic Protection
            25744-200-3PS-NE00-F0003   00A   Project Specification for Material Traceability for Hydrocarbon Services
            25744-200-3PS-NE00-F0004   00A   Performance of Ultrasonic Examination in Lieu of Radiographic Examination for ASME Butt Welds
            25744-200-3PS-NEX0-F0001   00A   Form 167 - Welding and NDE Matrix for Shop Fabricated Piping
            25744-200-3PS-NF00-00003   00A   Standard Specification for Hydrotest Water Quality and Drying

 

A-63


Execution Version

 

Volume

/ Book

 

Section

 

Section

Title or

Sub-Sec

 

Sub Title

 

SubSub

Section

 

SubSub Title

 

Document Number

 

Rev

 

Description

            25744-200-3PS-NF00-F0001   00A   Fireproofing
            25744-200-3PS-NF00-F0002   00A   Proprietary Cementitious Fireproofing
            25744-200-3PS-NN00-F0001   00A   Hot Insulation
            25744-200-3PS-NN00-F0002   00A   Cold Insulation
            25744-200-3PS-NN00-F0003   00A   Specification for Removable Thermal Insulation Covers for Hot Piping and Equipment
            25744-200-3PS-NN00-F0006   00A   Specification for Acoustic Insulation
            25744-200-3PS-NN00-F0007   00A   Specification for Perlite Insulating Concrete
            25744-200-3PS-NW00-F0001   00A   General Welding and NDE Requirements for Vessels - Heat Exchangers - Fired Heater Coils - Boilers and Compressors
            25744-200-3PS-NW00-F0003   00A   General Welding and NDE Requirements for Supplier-Fabricated Piping and Piping Field Welds
            25744-200-3PS-NW00-F0004   00A   General Welding and NDE Requirements for Shop Fabricated and Field Erected Storage Tanks
            25744-200-3PS-NW00-F0005   00A   General Welding and NDE Requirements for Supplier Fabricated and-or Field Erected Structural Steel
            25744-200-3PS-NW00-F0006   00B   Specification for Welding and NDE of LNG Storage Tanks
            25744-200-3PS-NX00-F0001   00B   Specification for Protective Coatings (Paint)
            25744-200-3PS-NX00-F0002   000   Coating In-Plant - Buried Pipe

 

A-64


Execution Version

 

Volume

/ Book

 

Section

 

Section

Title or

Sub-Sec

 

Sub Title

 

SubSub

Section

 

SubSub Title

 

Document Number

 

Rev

 

Description

            25744-200-3PS-NX00-F0003   000   Project Specification for Epoxy Lining of Tanks
            25744-200-3PS-NX00-F0004   00A   Specification for Bonding and Inspection for Non-Metallic Piping
            25744-200-3PS-NX00-F0005   00A   Specification for Novolac Epoxy Fiberglass Mat Reinforced Lining for Concrete
VOLUME 3 BOOKS 5 - 6                
        3.1.8   Plant Design and Piping      
            25744-200-3PS-PB00-F0001   00D   Project Specification for Piping Materials
            25744-200-3PS-PB00-F0002   00B   Project Specification for Piping Purchase Description
            25744-200-3PS-PB00-F0003   00A   Project Specification for Piping Material Color Codes
            25744-200-3PS-PB00-F0004   00A   Project Specification for Pipe Installation and Testing
            25744-200-3PS-PB00-F0005   00A   Project Specification for Installation and Testing of Underground Piping Systems
            25744-200-3PS-PB00-F0006   00A   Technical Supply Conditions for Manually Operated Valves
            25744-200-3PS-PB00-F0008   00A   Project Specification for Bolt Tensioning and Bolt Up Requirements
            25744-200-3PS-PB00-F0010   00A   Technical Supply Conditions for Piping Components
            25744-200-3PS-PS02-F0001   00A   Project Specification for Shop Fabrication of Piping
VOLUME 3 BOOK 6                

 

A-65


Execution Version

 

Volume

/ Book

 

Section

 

Section

Title or

Sub-Sec

 

Sub Title

 

SubSub

Section

 

SubSub Title

 

Document Number

 

Rev

 

Description

        3.1.9   Process Safety      
            25744-200-3PS-U04F-00001   00B   Project Procedure for a HAZOP Study
            25744-200-3DJ-J04F-00001   00B   Project Specification - Procedure for Safety Integrity Level (SIL) Assessment
        3.1.10   Project Engineering      
            25744-200-3PS-JV14-F0001   00A   Project Specification for Relief Valves
        3.1.11   Project Technical Specifications (Confidential) (Refer to confidential FEED Deliverables Volume 1)      
            25744-200-3PS-MEPB-F0001   00C   CoP Level III Confidential - Specification for Brazed Aluminum Core and Core-In-Shell Heat Exchangers
            25744-200-3PS-METN-F0001   00C   CoP Level III Confidential - Specification for Aluminum to Stainless Steel Transition Joint
            25744-200-3PS-MEXC-F0001   00C   CoP Level IV Confidential - Specification for Cold Box
VOLUME 4                
    3.2   APPROVED EXCEPTIONS TO SPECIFICATIONS          

 

A-66


Execution Version

 

Volume

/ Book

 

Section

 

Section

Title or

Sub-Sec

 

Sub Title

 

SubSub

Section

 

SubSub Title

 

Document Number

 

Rev

 

Description

        3.2.1   Mechanical      
            25744-200-3PS-MBE0-FP001   00A   *** Approved Comments and Exceptions for Waste Heat Recovery Units
            25744-200-3PS-MBSF-FZ001   00A   *** Approved Comments and Exceptions to the Mechanical Project Specifications - Marine Flare
            25744-200-3PS-MBT0-FZ001   00A   *** Approved Comments and Exceptions to Project Specifications - Material Requisition for Quote - Data Sheets - Thermal Oxidizer
            25744-200-3PS-MCCA-FA001   00A   *** Approved Comments and Exceptions - Air Compressor Package
            25744-200-3PS-MCCR-F0NP1   00A   *** Approved Comments and Exceptions to the API Specifications LNG Refrigeration Compressors
            25744-200-3PS-MCCR-F0NP2   00A   *** Approved Comments and Exceptions to the Project Specifications - LNG Refrigeration Compressors
            25744-200-3PS-MCCS-FA001   00A   *** Approved Comments and Exceptions - Boil Off Gas Compressors
            25744-200-3PS-MCCS-FS001   00A   *** Approved Comments and Exceptions for Regeneration Gas Compressors
            25744-200-3PS-MEA0-FH001   00A   *** Approved Comments and Exception to Project Specifications - Air-Cooled Heat Exchangers
            25744-200-3PS-MEP0-FA001   00B   *** Approved Comments and Exceptions to Project Specifications for Plate Type Heat Exchangers
            25744-200-3PS-MES0-FO001   00A   Approved Comments and Exceptions to Project Specifications for Shell and Tube Heat Exchangers
            25744-200-3PS-MEVT-FA001   00B   *** Approved Comments and Exceptions to Project Specifications for Ambient Vaporizers

 

A-67


Execution Version

 

Volume

/ Book

 

Section

 

Section

Title or

Sub-Sec

 

Sub Title

 

SubSub

Section

 

SubSub Title

 

Document Number

 

Rev

 

Description

            25744-200-3PS-MGED-FC001   00A   *** Approved Comments and Exceptions Diesel Standby Generator
            25744-200-3PS-MJKG-FK001   00A   *** Approved Comments and Exceptions Compressor Bridge Cranes and JIB Cranes
            25744-200-3PS-MPCA-FG001   00A   *** Approved Comments and Exceptions
            25744-200-3PS-MPCH-FS001   00A   *** Approved Comments and Exceptions - Low Flow High Head Pumps
            25744-200-3PS-MPCP-FG001   00A   *** Approved Comments and Exceptions for Lean Solvent Charge Pumps
            25744-200-3PS-MPCP-FG002   00A   *** Approved Comments and Exceptions - API Pumps
            25744-200-3PS-MPGL-FD001   00A   *** Approved Comments and Exceptions - Sanitary Lift Stations
            25744-200-3PS-MPPM-FM001   00A   *** Approved Comments and Exceptions for Pump - Metering or Proportioning
            25744-200-3PS-MPR0-FB001   00A   *** Approved Comments and Exceptions - Amine Charge Pump
            25744-200-3PS-MPVE-FG001   00A   *** Approved Comments and Exceptions for Pump - Vertical Sump
            25744-200-3PS-MPVE-FG002   00A   *** Approved Comments and Exceptions - Pump - Vertical Submersible
            25744-200-3PS-MPVS-FE001   00A   *** Approved Comments and Exceptions - LNG Cryogenic Pump
            25744-200-3PS-MSXN-FG001   00A   *** Approved Comments and Exception Nitrogen Generator Package
            25744-200-3PS-MTS0-FB001   00A   *** Approved Comments and Exceptions to the Mechanical Project Specifications - Shop Fabricated Storage Tanks

 

A-68


Execution Version

 

Volume

/ Book

 

Section

 

Section

Title or

Sub-Sec

 

Sub Title

 

SubSub

Section

 

SubSub Title

 

Document Number

 

Rev

 

Description

            25744-200-3PS-MVA0-FD001   00A   *** Approved Comments and Exceptions to the Mechanical Project Specifications for Stainless Steel Vessels (Confidential)
            25744-200-3PS-MVA0-FD003   00A   *** Approved Comments and Exceptions to the Mechanical Project Specifications for Columns-Vessels - Stainless Steel-SS Clad
            25744-200-3PS-MVA0-FZ001   00A   *** Approved Comments and Exceptions to the Mechanical Project Specifications for Ethylene Storage Drums
            25744-200-3PS-MVEF-FH001   00A   *** Approved Comments and Exceptions to the Mechanical Project Specifications for Filters and Gas Separators
            25744-200-3PS-MVEF-FH002   00A   *** Approved Comments and Exceptions to the Mechanical Project Specifications for Coalescers
            25744-200-3PS-MVSC-FD002   00A   *** Approved Comments and Exceptions to the Mechanical Project Specifications for Columns and Vessels (Carbon Steel) - Non Proprietary
            25744-200-3PS-MVT0-FA001   00A   *** Approved Comments and Exceptions to the Mechanical Project Specifications for Internals - Vane Type - Proprietary
            25744-200-3PS-MVT0-FR001   00A   *** Approved Comments and Exceptions to the Mechanical Project Specifications - Packing and Internals - Proprietary
            25744-200-3PS-MVT0-FS001   00A   *** Approved Comments and Exceptions to the Mechanical Project Specifications for Packing and Internals - Proprietary and Non Proprietary
            25744-200-3PS-MWD0-FA001   00A   *** Approved Comments and Exceptions - Demineralizer Water System

 

A-69


Execution Version

 

Volume

/ Book

 

Section

 

Section

Title or

Sub-Sec

 

Sub Title

 

SubSub

Section

 

SubSub Title

 

Document Number

 

Rev

 

Description

            25744-200-3PS-MW00-FU001   00A   *** Approved Comments and Exceptions for H2S Removal Package
VOLUME 5                
        3.2.2   Plant Design and Piping      
            25744-200-3PS-PF01-FH001   00A   *** Approved Comments and Exceptions to Project Specifications - Fittings-Wrought
            25744-200-3PS-PP01-FH002   00A   *** Approved Comments and Exceptions to Project Specifications - Pipe-CS and TCS Welded
            25744-200-3PS-PP01-FT001   00A   *** Approved Comments and Exceptions to Project Specifications - Pipe-CS and LTCS Seamless
            25744-200-3PS-PP02-FH002   00A   *** Approved Comments and Exceptions to Project Specifications - Pipe-SS
            25744-200-3PS-PV03-FL001   00A   *** Approved Comments and Exceptions to Project Specifications - Valves-Ball (Metal-Seated)
            25744-200-3PS-PV03-FP002   00A   *** Approved Comments and Exceptions to Project Specifications - Valves-Ball (Multi Turn)
            25744-200-3PS-PV04-FL001   00A   *** Approved Comments and Exceptions to Project Specifications - Valves-Ball (Soft Seated)
            25744-200-3PS-PV04-FP002   00A   *** Approved Comments and Exceptions to Project Specifications - Valves-Ball (Cryogenic)
            25744-200-3PS-PV07-FA002   00A   *** Approved Comments and Exceptions to Project Specifications - Valves-Butterfly (Cryogenic)

 

A-70


Execution Version

 

Volume

/ Book

 

Section

 

Section

Title or

Sub-Sec

 

Sub Title

 

SubSub

Section

 

SubSub Title

 

Document Number

 

Rev

 

Description

        3.2.3   Approved Exceptions To Specifications (Confidential) (Refer to confidential FEED Deliverables Volume 1)      
            25744-200-3PS-MEXC-FL001   00A   CoP Level IV Confidential - *** Approved Comments and Exceptions to Project Specifications - Core-In-Kettle Exchangers and Cold Boxes
  4.0   PLANT UNITS            
    4.1   GENERAL          
        4.1.1   Overall Block Flow Diagram (Confidential) (Refer to confidential FEED Deliverables Volume 1)      
            25744-200-M5-0010-00001   001   CoP Level III Confidential - Overall Block Flow Diagram
        4.1.2   P&I Symbols & Legend and Typical Detail Diagrams (Non Confidential)      
            25744-200-M6-0000-00001   00C   P and ID - General Piping Legend and Symbology - Sht 1 of 3
            25744-200-M6-0000-00002   00C   P and ID - General Piping Legend and Symbology - Sht 2 of 3
            25744-200-M6-0000-00003   00C   P and ID - General Piping Legend and Symbology - Sht 3 of 3

 

A-71


Execution Version

 

Volume

/ Book

 

Section

 

Section

Title or

Sub-Sec

 

Sub Title

 

SubSub

Section

 

SubSub Title

 

Document Number

 

Rev

 

Description

        4.1.2.1   P&I Symbols & Legend and Typical Detail Diagrams (Confidential) (Refer to confidential FEED Deliverables Volume 1)      
            25744-200-M6-0000-00000   00F   CoP Level III Confidential - P and ID - Liquefaction Facility P and ID List
        4.1.3   Tie-In Sketch      
            25744-200-P1K-00-10018   00C   Site Plan - Interface Locations - Tie-Points
        4.1.4   Equipment List (Non Confidential)      
            25744-200-M0X-DK-00001   00L   Equipment List - Non-Confidential
        4.1.4.1   Equipment List (Confidential) (Refer to confidential FEED Deliverables Volume 1)      
            25744-200-M0X-DK-00002   00F   CoP Level III Confidential - Equipment List - Confidential
        4.1.5   Specialty Items List (Non Confidential)      
            25744-200-PYX-000-00001   00C   Specialty Items Log - Non-Confidential for Estimate Purposes Only

 

A-72


Execution Version

 

Volume

/ Book

 

Section

 

Section

Title or

Sub-Sec

 

Sub Title

 

SubSub

Section

 

SubSub Title

 

Document Number

 

Rev

 

Description

        4.1.5.1   Specialty Items List (Confidential) (Refer to confidential FEED Deliverables Volume 1)      
            25744-200-PYX-000-00002   00B   CoP Level III Confidential - Specialty Items Log - Confidential
        4.1.6   Site Plan      
            25744-200-P1-00-00001   00J   Overall Site Plan - 3 Trains
            25744-200-P1-00-00002   00G   CG Emissions Location Plan
            25744-200-P1-00-00004   00G   Site Plan - Facility Land Use Areas
            25744-200-P1-00-00005   00G   Site Plan - Temporary Construction Laydown Area - Stage 1
            25744-200-P1-00-00006   00G   Site Plan - Access Control and Emergency Egress
            25744-200-P1-00-00007   00G   Key Plan - Area Plot Plans
            25744-200-P1-00-00008   00C   Key Plan Spill Containment Plot Plans
            25744-200-P1-00-00009   00C   Spill Containment Plan - OSBL - Refrigerant Storage
            25744-200-P1-00-00011   00B   Spill Containment Plan OSBL BOG-Pipeline-BOG Booster Compressors-AAV Trns 1 and 2 and OSBL Impoundment Basin
            25744-200-P1-00-00017   00B   Spill Containment Plan OSBL LNG Loading Berth (West Jetty)

 

A-73


Execution Version

 

Volume

/ Book

 

Section

 

Section

Title or

Sub-Sec

 

Sub Title

 

SubSub

Section

 

SubSub Title

 

Document Number

 

Rev

 

Description

            25744-200-P1-00-00020   00D   Work Breakdown Structure (WBS) Index - Liquefaction Facilities - OSBL Areas
            25744-200-P1-00-00021   00B   Work Breakdown Structure (WBS) Index Liquefaction Facilities Underground Areas
            25744-400-P1-00-00022   00C   Overall Site Fencing Plan
        4.1.7   Plot Plan Drawings (Non Confidential)      
            25744-200-P1-00-10001   00H   Plot Plan - OSBL - Tank A - LNG Storage
            25744-200-P1-00-10002   00F   Plot Plan - OSBL - H2S Scavenger and Waste Water Storage
            25744-200-P1-00-10003   00F   Plot Plan - OSBL - RO-EDI Building
            25744-200-P1-00-10004   00F   Plot Plan - OSBL - Flare Knock-Out Drums Trains 2 and 3
            25744-200-P1-00-10006   00F   Plot Plan OSBL LNG Loading Berth (West Jetty)
            25744-200-P1-00-10007   00E   Plot Plan OSBL Construction Dock
            25744-200-P1-00-10008   00E   Plot Plan Sections - OSBL - Piperack Structures
            25744-200-P1-00-10009   00E   Plot Plan Sections - OSBL - Piperack Structures
            25744-200-P1-00-10010   00H   Equipment Sections - OSBL - Conceptual Elevations
            25744-200-P1-00-10011   00F   Equipment Sections - OSBL - Conceptual Elevations

 

A-74


Execution Version

 

Volume

/ Book

 

Section

 

Section

Title or

Sub-Sec

 

Sub Title

 

SubSub

Section

 

SubSub Title

 

Document Number

 

Rev

 

Description

            25744-200-P1-00-10012   00F   Plot Plan - OSBL - Boil Off Gas - Compressor Area
            25744-200-P1-00-10014   00E   Plot Plan - OSBL - Tank C - LNG Storage
            25744-200-P1-00-10015   00C   Plot Plan - OSBL - Ethylene Refrigerant Storage with Radiant Heat Shield
            25744-200-P1-00-10016   00C   Plot Plan - OSBL - Propane Refrigerant Storage with Radiant Heat Shield
            25744-200-P1-00-10017   00D   Plot Plan - OSBL - Amine Storage
            25744-200-P1-00-10018   00E   Plot Plan - OSBL - Condensate Storage
            25744-200-P1-00-10019   00D   Plot Plan - OSBL - Liquid Nitrogen Storage
            25744-200-P1-00-10020   00D   Plot Plan - OSBL - Air and Nitrogen Generation
            25744-200-P1-00-10021   00C   Plot Plan - OSBL - Firewater Pumps Area
            25744-200-P1-00-10022   00D   Plot Plan - OSBL - Flare Knock-Out Drums Trains 1 and 2
            25744-200-P1-00-10023   00C   Plot Plan OSBL Process Flare Trains 1 2 and 3
            25744-200-P1-00-10024   00C   Plot Plan - OSBL - OSBL Impoundment Basin
            25744-200-P1-00-10025   00C   Plot Plan Ambient Air Vaporizer Trains 1 and 2
            25744-200-P1-00-10026   00D   Plot Plan - OSBL - Boil Off Gas Booster - Compressor Area
            25744-200-P1-00-10027   00C   Plot Plan - OSBL - Pipeline Gas - Compressor Area

 

A-75


Execution Version

 

Volume

/ Book

 

Section

 

Section

Title or

Sub-Sec

 

Sub Title

 

SubSub

Section

 

SubSub Title

 

Document Number

 

Rev

 

Description

            25744-200-P1-00-10028   00D   Plot Plan - OSBL – Marine-Storage Flare
            25744-200-P1-00-10029   00C   Plot Plan OSBL Jetty Impoundment Basin
            25744-200-P1-00-10030   00D   Plot Plan - OSBL - Main-BOG-Utility Sub. and Stand-By Diesel Gen. Area
            25744-200-P1-00-10031   00C   Plot Plan - OSBL - Control-Oper. and Maint. Buildings
            25744-200-P1-00-10032   00C   Plot Plan - OSBL - Warehouse Building
            25744-200-P1-00-10033   00B   Plot Plan - OSBL - Tug Boat Docks and Boat Ramp
            25744-200-P1-31-10010   00C   Work Breakdown Structure (WBS) Index ISBL Process Area 31 Liquefaction Train 1
            25744-200-P1-32-10010   00C   Work Breakdown Structure (WBS) Index ISBL Process Area 32 Liquefaction Train 2
        4.1.7.1   Plot Plan Drawings (Confidential) (Refer to confidential FEED Deliverables Volume 1)      
            25744-200-P1-31-10001   00F   CoP Level III Confidential - Plot Plan - ISBL Process Area 31 - Liquefaction Train 1
            25744-200-P1-31-10002   00F   CoP Level III Confidential - Plot Plan Sections - ISBL Process Area 31 - Equipment Structures
            25744-200-P1-31-10003   00D   CoP Level III Confidential - Plot Plan Sections ISBL Process Area 31 Equipment Structures

 

A-76


Execution Version

 

Volume

/ Book

 

Section

 

Section

Title or

Sub-Sec

 

Sub Title

 

SubSub

Section

 

SubSub Title

 

Document Number

 

Rev

 

Description

            25744-200-P1-31-10004   00E   CoP Level III Confidential - Plot Plan Sections - ISBL Process Area 31 - Piperack Structures
            25744-200-P1-31-10005   00E   CoP Level III Confidential - Plot Plan - ISBL Area 31 - Compressor Area
            25744-200-P1-31-10006   00F   CoP Level III Confidential - Plot Plan - ISBL Area 31 - Acid Gas Removal Area
            25744-200-P1-31-10007   00E   CoP Level III Confidential - Plot Plan - ISBL Area 31 - Inlet Gas and Refrigeration Area
            25744-200-P1-31-10008   00F   CoP Level III Confidential - Plot Plan - ISBL Area 31 - Molecular Sieve and Hot Oil Area
        4.1.8   Conceptual Sketches      
            25744-200-P1K-00-10016   00A   Overall Piping Plan - ISBL and OSBL - Firewater Distribution
            25744-200-P1K-00-10017   00A   Overall Piping Plan - ISBL and OSBL - U-G Utility Piping Distribution
        4.1.9   Material Selection Diagrams (Non Confidential)      
            25744-200-N1-0019-00001   000   Material Selection Diagram Flare-Blowdown System
            25744-200-N1-0019-00002   000   Material Selection Diagram LNG Marine-Storage Flare
            25744-200-N1-0020-00001   000   Material Selection Diagram Refrigerant Storage
            25744-200-N1-0023-00001   00B   Material Selection Diagram - Condensate Storage-Sendout
            25744-400-N1-0024-00001   001   Material Selection Diagram - LNG Storage-Loading

 

A-77


Execution Version

 

Volume

/ Book

 

Section

 

Section

Title or

Sub-Sec

 

Sub Title

 

SubSub

Section

 

SubSub Title

 

Document Number

 

Rev

 

Description

            25744-200-N1-0024-00002   000   Material Selection Diagram - Pipeline Gas Compressor
            25744-200-N1-0029-00001   000   Material Selection Diagram - Waste Water Collection
            25744-400-N1-0029-00002   001   Material Selection Diagram - Sewage Collection
            25744-200-N1-0031-00001   000   Material Selection Diagram Power Generation
            25744-200-N1-0033-00001   000   Material Selection Diagram - Firewater System
            25744-200-N1-0035-00001   000   Material Selection Diagram Plant-Instrument Air System
            25744-200-N1-0036-00001   000   Material Selection Diagram - Utility Water Supply System
            25744-200-N1-0036-00002   000   Material Selection Diagram - Enhanced Coagulation System
            25744-200-N1-0036-00003   000   Material Selection Diagram - Ultrafiltration System
            25744-200-N1-0036-00004   000   Material Selection Diagram - Reverse Osmosis System
            25744-200-N1-0036-00005   000   Material Selection Diagram - EDI System
            25744-200-N1-0036-00006   000   Material Selection Diagram - Demineralized Water Distribution System
            25744-200-N1-0039-00001   000   Material Selection Diagram Nitrogen Generation
            25744-200-N1-1111-00002   000   Material Selection Diagram - Inlet Preheater
            25744-200-N1-1112-00001   000   Material Selection Diagram - Acid Gas Removal Unit

 

A-78


Execution Version

 

Volume

/ Book

 

Section

 

Section

Title or

Sub-Sec

 

Sub Title

 

SubSub

Section

 

SubSub Title

 

Document Number

 

Rev

 

Description

            25744-200-N1-1112-00002   000   Material Selection Diagram - Amine Regeneration
            25744-200-N1-1113-00001   000   Material Selection Diagram - Dehydration and Mercury Removal
            25744-200-N1-1119-00003   000   Material Selection Diagram Thermal Oxidizer
            25744-200-N1-1119-00004   000   Material Selection Diagram H2S Removal
            25744-200-N1-1122-00001   000   Material Selection Diagram - Fuel Gas System
            25744-200-N1-1122-00002   000   Material Selection Diagram - Fuel Gas System
            25744-200-N1-1134-00001   000   Material Selection Diagram Hot Oil System
            25744-200-N1-1147-00001   002   Material Selection Diagram - Turbine Air Humidification System
        4.1.9.1   Material Selection Diagrams (Confidential) (Refer to confidential FEED Deliverables Volume 1)      
            25744-200-N1-1114-00001   000   CoP Level III Confidential - Material Selection Diagram - Propane Refrigeration
            25744-200-N1-1114-00002   000   CoP Level III Confidential - Material Selection Diagram - Propane Refrigeration
            25744-200-N1-1115-00001   000   CoP Level III Confidential - Material Selection Diagram - Ethylene Refrigeration

 

A-79


Execution Version

 

Volume

/ Book

 

Section

 

Section

Title or

Sub-Sec

 

Sub Title

 

SubSub

Section

 

SubSub Title

 

Document Number

 

Rev

 

Description

            25744-200-N1-1115-00002   000   CoP Level III Confidential - Material Selection Diagram - Ethylene Refrigeration
            25744-200-N1-1116-00001   000   CoP Level III Confidential - Material Selection Diagram - Liquefaction and Methane Compressor
            25744-200-N1-1117-00001   000   CoP Level III Confidential - Material Selection Diagram - Heavies Removal-NGL Recovery
            25744-200-N1-1118-00001   000   CoP Level III Confidential - Material Selection Diagram - Condensate Stabilization
VOLUME 6                
        4.1.10   Utility Summary      
            25744-200-M4-DK-00016   000   Utility Balance - Hot Oil
            25744-200-M4-DK-00017   00B   Utility Balance - Nitrogen
            25744-200-M4-DK-00018   00B   Utility Balance - Instrument-Plant Air
            25744-200-M4-DK-00019   000   Utility Balance - Fuel Gas
            25744-200-M4-DK-00020   00A   Utility Balance - Water
        4.1.11   Catalyst, Chemical and Lubricant Summary      
            25744-200-M2-DK-00002   00A   List of Catalysts-Chemicals and Lubricants
        4.1.12   Process Description (Non Confidential)      

 

A-80


Execution Version

 

Volume

/ Book

 

Section

 

Section

Title or

Sub-Sec

 

Sub Title

 

SubSub

Section

 

SubSub Title

 

Document Number

 

Rev

 

Description

            25744-200-3YD-M01-00001   00E   Process System Description - Non-Liquefaction Units
        4.1.12.1   Process Description (Confidential) (Refer to confidential FEED Deliverables Volume 1)      
            25744-200-3YD-M01-00002   00E   CoP Level III Confidential - Process System Description - Liquefaction Units
        4.1.13   Heat/Energy and Material Balance (Non Confidential)      
            25744-200-M3-DK-00001   000   Specification Sheet - HP Fuel Gas Datasheet
            25744-200-M3-DK-00002   000   Specification Sheet - Low Pressure Fuel Gas Datasheet
            25744-200-M4-DK-00001   000   Heat and Material Balance Case 1 - Average Gas - Average Ambient Temperature Non-Confidential Streams
            25744-200-M4-DK-00003   000   Heat and Material Balance Case 2 - Average Gas - Low Ambient Temperature Non-Confidential Streams
            25744-200-M4-DK-00005   000   Heat and Material Balance Case 3 - Average Gas - High Ambient Temperature Non-Confidential Streams
            25744-200-M4-DK-00007   000   Heat and Material Balance Case 4 - Ship Loading - Non-Confidential Streams
            25744-200-M4-DK-00009   000   Heat and Material Balance Case 5 - Maximum Inerts - Low Ambient Temperature Non-Confidential Streams

 

A-81


Execution Version

 

Volume

/ Book

 

Section

 

Section

Title or

Sub-Sec

 

Sub Title

 

SubSub

Section

 

SubSub Title

 

Document Number

 

Rev

 

Description

            25744-200-M4-DK-00022   000   Heat and Material Balance Case 6 - High Aromatics - Average Ambient Temperature Non-Confidential Streams
            25744-200-M4-DK-00025   000   Heat and Material Balance - Case 7 - High Aromatics-Average Ambient Temperature - PFD Case - Non-Confidential Streams
            25744-200-M4-DK-00101   000   Heat and Material Balance Case CC1 - High Aromatics - Average Ambient Temperature Non-Confidential Streams
            25744-200-M4-DK-00103   000   Heat and Material Balance Case CC2 - High Aromatics - Low Ambient Temperature Non-Confidential Streams
            25744-200-M4-DK-00105   000   Heat and Material Balance Case CC3 - High Aromatics - High Ambient Temperature Non-Confidential Streams
            25744-200-M4-DK-00107   000   Heat and Material Balance Case CC4 - High Aromatics - Average Ambient Temperature Non-Confidential Streams
        4.1.13.1   Heat/Energy and Material Balance (Confidential) (Refer to confidential FEED Deliverables Volume 1)      
            25744-200-M4-DK-00002   000   CoP Level III Confidential - Heat and Material Balance Case 1 - Average Gas Average Ambient Temperature Confidential Streams
            25744-200-M4-DK-00004   000   CoP Level III Confidential - Heat and Material Balance Case 2 - Average Gas Low Ambient Temperature Confidential Streams
            25744-200-M4-DK-00006   000   CoP Level III Confidential - Heat and Material Balance Case 3 - Average Gas High Ambient Temperature Confidential Streams

 

A-82


Execution Version

 

Volume

/ Book

 

Section

 

Section

Title or

Sub-Sec

 

Sub Title

 

SubSub

Section

 

SubSub Title

 

Document Number

 

Rev

 

Description

            25744-200-M4-DK-00008   000   CoP Level III Confidential - Heat and Material Balance Case 4 - Ship Loading Confidential Streams
            25744-200-M4-DK-00010   000   CoP Level III Confidential - Heat and Material Balance Case 5 - Maximum Inerts Low Ambient Temperature Confidential Streams
            25744-200-M4-DK-00023   000   CoP Level III Confidential - Heat and Material Balance Case 6 - High Aromatics Average Ambient Temperature Confidential Streams
            25744-200-M4-DK-00026   000   CoP Level III Confidential - Heat and Material Balance - Case 7 - High Aromatics-Average Ambient Temperature - PFD Case - Confidential Streams
            25744-200-M4-DK-00102   000   CoP Level III Confidential- Heat and Material Balance Case CC1 - High Aromatics - Average Ambient Temperature Confidential Streams
            25744-200-M4-DK-00104   000   CoP Level III Confidential - Heat and Material Balance Case CC2 - High Aromatics - Low Ambient Temperature Confidential Streams
            25744-200-M4-DK-00106   000   CoP Level III Confidential - Heat and Material Balance Case CC3 - High Aromatics - High Ambient Temperature Confidential Streams
            25744-200-M4-DK-00108   000   CoP Level III Confidential - Heat and Material Balance Case CC4 - High Aromatics - Average Ambient Temperature - Ship-Loading Confidential Streams
        4.1.14   Preliminary PSV Data Summary (Non Confidential)      

 

A-83


Execution Version

 

Volume

/ Book

 

Section

 

Section

Title or

Sub-Sec

 

Sub Title

 

SubSub

Section

 

SubSub Title

 

Document Number

 

Rev

 

Description

            25744-200-M0X-DK-00010   00C   Non-Confidential ISBL PSV List for Estimate Purposes Only
            25744-200-M0X-DK-00013   00B   Non-Confidential OSBL PSV List for Estimate Purposes Only
        4.1.14.1   Preliminary PSV Data Summary (Confidential) (Refer to confidential FEED Deliverables Volume 2)      
            25744-200-M0X-DK-00009   00B   CoP Level III Confidential - Confidential PSV List For Estimate Purposes Only
        4.1.15   Pump Summary (Non Confidential)      
            25744-200-MPA-DK-00001   000   Process Design Data Pump Summary - Non-Confidential
            25744-200-MPA-0029-02900   00D   Pump Summary Unit 29
            25744-200-MPA-0036-03600   00D   Pump Summary Unit 36
            25744-200-M0X-DK-00006   00C   Hydraulic Summary - Non-Confidential Pumps
            25744-200-M0X-DK-00011   00C   Hydraulic Summary - Environmental Pumps
        4.1.15.1   Pump Summary (Confidential) (Refer to confidential FEED Deliverables Volume 2)      

 

A-84


Execution Version

 

Volume

/ Book

 

Section

 

Section

Title or

Sub-Sec

 

Sub Title

 

SubSub

Section

 

SubSub Title

 

Document Number

 

Rev

 

Description

            25744-200-MPA-DK-00002   000   CoP Level III Confidential - Process Design Data Pump Summary
            25744-200-M0X-DK-00007   00C   CoP Level III Confidential - Hydraulic Summary - Confidential Pumps
    4.2   UNIT 10 - GENERAL UNIT          
        4.2.1   P&I Diagrams and Line Designation Tables      
            25744-200-M6-0010-00001   00D   P and ID - Pipeline Interface
            25744-200-M6-0010-00011   00B   P and ID - Level Purge-Maintenance Bypass Details
            25744-200-M6-0010-00012   00B   P and ID - Sample Station Details - Sheet 1 of 2
            25744-200-M6-0010-00013   00B   P and ID - Sample Station Details - Sheet 2 of 2
            25744-200-M6-0010-00014   00B   P and ID - Pump Seal Plans - Sheet 1 of 3
            25744-200-M6-0010-00015   00B   P and ID - Pump Seal Plans - Sheet 2 of 3
            25744-200-M6-0010-00016   00B   P and ID - Pump Seal Plans - Sheet 3 of 3
            25744-200-M6-0010-00017   00B   P and ID - Air Volume Tanks
            25744-200-M6-0010-00018   00A   P and ID - Insulation of PSVs in Cryogenic Service

 

A-85


Execution Version

 

Volume

/ Book

 

Section

 

Section

Title or

Sub-Sec

 

Sub Title

 

SubSub

Section

 

SubSub Title

 

Document Number

 

Rev

 

Description

            25744-200-M6-0010-00019   00A   P and ID - Miscellaneous DCS and SIS Functions
            25744-400-M6-0010-00100   00E   P and ID - FEED Gas Interconnecting
            25744-400-M6-0010-00101   00D   P and ID - Refrigerant Interconnecting
            25744-400-M6-0010-00102   00F   P and ID - LNG-Cooldown Line Interconnecting - Sheet 1 of 2
            25744-400-M6-0010-00103   00E   P and ID - LNG-Cooldown Line Interconnecting - Sheet 2 of 2
            25744-400-M6-0010-00104   00D   P and ID - BOG Interfaces Sheet 1 of 2
            25744-400-M6-0010-00105   00D   P and ID - BOG Interfaces Sheet 2 of 2
            25744-400-M6-0010-00106   00D   P and ID - Amine-Condensate Interconnecting
            25744-400-M6-0010-00200   00D   P and ID - Plant and Instrument Air Interconnecting Sheet 1 of 2
            25744-400-M6-0010-00201   00E   P and ID - Plant and Instrument Air Interconnecting Sheet 2 of 2
            25744-400-M6-0010-00202   00D   P and ID - Utility Water-Demin Water Interconnecting - Sht 1 of 2
            25744-400-M6-0010-00203   00D   P and ID - Utility Water-Demin Water Interconnecting - Sht 2 of 2
            25744-400-M6-0010-00204   00D   P and ID - Nitrogen Interconnecting Sheet 1 of 2
            25744-400-M6-0010-00205   00E   P and ID - Nitrogen Interconnecting Sheet 2 of 2
            25744-400-M6-0010-00206   00E   P and ID - Potable Water Interconnecting

 

A-86


Execution Version

 

Volume

/ Book

 

Section

 

Section

Title or

Sub-Sec

 

Sub Title

 

SubSub

Section

 

SubSub Title

 

Document Number

 

Rev

 

Description

            25744-200-M6-0010-00207   00C   P and ID - Flare Headers Refrigerant Storage Area
            25744-400-M6-0010-00208   00D   P and ID - H2S Removal Chemicals Interconnecting
            25744-400-M6-0010-00209   00D   P and ID - Waste Water Interconnecting
            25744-400-M6-0010-00210   00E   P and ID - Blanketing Gas-LP Fuel Gas Interconnecting
            25744-400-M6-0010-00211   00E   P and ID - Flare and Blowdown Collection
            25744-200-M6-0010-00212   00A   P and ID - Water Treatment Area Utilities
            25744-200-M6-1110-00001   00D   P and ID - Train 1 Process Battery Limit
            25744-200-M6-1110-00002   00C   P and ID - Train 1 Process and Utilities Battery Limit
            25744-200-M6-1110-00003   00D   P and ID - Train 1 Utilities Battery Limit
            25744-200-M6-1110-00004   00A   P and ID - Miscellaneous DCS and SIS Functions
            25744-200-M6D-0010-00001   00D   Line Designation Table
            25744-400-M6D-0010-00100   00E   Line Designation Table
            25744-400-M6D-0010-00101   00D   Line Designation Table
            25744-400-M6D-0010-00102   00F   Line Designation Table
            25744-400-M6D-0010-00103   00E   Line Designation Table

 

A-87


Execution Version

 

Volume

/ Book

 

Section

 

Section

Title or

Sub-Sec

 

Sub Title

 

SubSub

Section

 

SubSub Title

 

Document Number

 

Rev

 

Description

            25744-400-M6D-0010-00104   00D   Line Designation Table
            25744-400-M6D-0010-00105   00D   Line Designation Table
            25744-400-M6D-0010-00106   00D   Line Designation Table
            25744-400-M6D-0010-00200   00D   Line Designation Table
            25744-400-M6D-0010-00201   00E   Line Designation Table
            25744-400-M6D-0010-00202   00D   Line Designation Table
            25744-400-M6D-0010-00203   00D   Line Designation Table
            25744-400-M6D-0010-00204   00D   Line Designation Table
            25744-400-M6D-0010-00205   00E   Line Designation Table
            25744-400-M6D-0010-00206   00E   Line Designation Table
            25744-200-M6D-0010-00207   00C   Line Designation Table
            25744-400-M6D-0010-00208   00D   Line Designation Table
            25744-400-M6D-0010-00209   00D   Line Designation Table
            25744-400-M6D-0010-00210   00E   Line Designation Table
            25744-400-M6D-0010-00211   00E   Line Designation Table

 

A-88


Execution Version

 

Volume

/ Book

 

Section

 

Section

Title or

Sub-Sec

 

Sub Title

 

SubSub

Section

 

SubSub Title

 

Document Number

 

Rev

 

Description

            25744-200-M6D-0010-00212   00A   Line Designation Table
            25744-200-M6D-1110-00001   00D   Line Designation Table
            25744-200-M6D-1110-00002   00C   Line Designation Table
            25744-200-M6D-1110-00003   00D   Line Designation Table
    4.3   UNIT 11 - INLET METERING STATIONS          
        4.3.1   Process Flow Diagrams      
            25744-200-M5-1111-00002   000   Process Flow Diagram Inlet Preheater
        4.3.2   P&I Diagrams and Line Designation Tables      
            25744-200-M6-1111-00001   00C   P and ID - Feed Gas Heater
            25744-200-M6-1111-00002   00C   P and ID - Feed Gas Metering
            25744-200-M6D-1111-00001   00C   Line Designation Table 2 pgs
            25744-200-M6D-1111-00002   00C   Line Designation Table 2 pgs
        4.3.3   Equipment Data Sheets      
            25744-200-MED-11-E1102   00A   Shell and Tube Heat Exchanger Data Sheet for Feed Gas Heater

 

A-89


Execution Version

 

Volume

/ Book

 

Section

 

Section

Title or

Sub-Sec

 

Sub Title

 

SubSub

Section

 

SubSub Title

 

Document Number

 

Rev

 

Description

        4.3.4   Process Data Sheets      
            25744-200-MEA-1111-01102   000   Process Data Sheet for Feed Gas Heater
    4.4   UNIT 12 - ACID GAS REMOVAL UNIT (BASF CONFIDENTIAL) (Refer to BASF confidential FEED Deliverables Volume 1)          
        4.4.1   Process Flow Diagrams (Refer to BASF confidential FEED Deliverables Volume 1)      
            25744-200-M5-1112-00001   000   Process Flow Diagram Acid Gas Removal
            25744-200-M5-1112-00002   000   Process Flow Diagram Amine Regeneration
        4.4.2   P&I Diagrams and Line Designation Tables (Refer to BASF confidential FEED Deliverables Volume 1)      

 

A-90


Execution Version

 

Volume

/ Book

 

Section

 

Section

Title or

Sub-Sec

 

Sub Title

 

SubSub

Section

 

SubSub
Title

 

Document Number

 

Rev

 

Description

            25744-200-M6-0012-00001   00C   P and ID - Amine Storage Tank
            25744-200-M6-1112-00001   00D   P and ID - Feed Gas Filter Coalescer
            25744-200-M6-1112-00002   00D   P and ID - Absorber
            25744-200-M6-1112-00003   00D   P and ID - Solvent Flash Drum
            25744-200-M6-1112-00004   00D   P and ID - De-Gassing Drum
            25744-200-M6-1112-00005   00D   P and ID - Lean-Rich Solvent Heat Exchangers
            25744-200-M6-1112-00006   00D   P and ID - Solvent Regenerator
            25744-200-M6-1112-00007   00D   P and ID - Regenerator Overhead Condenser
            25744-200-M6-1112-00008   00D   P and ID - Solvent Regenerator Reflux System
            25744-200-M6-1112-00009   00D   P and ID - Lean Solvent Booster Pumps
            25744-200-M6-1112-00010   00D   P and ID - Lean Solvent Cooler
            25744-200-M6-1112-00011   00D   P and ID - Lean Solvent Filters
            25744-200-M6-1112-00012   00D   P and ID - Amine Surge Tank
            25744-200-M6-1112-00014   00D   P and ID - Lean Solvent Charge Pumps
            25744-200-M6-1112-00015   00D   P and ID - Amine Collection Header

 

A-91


Execution Version

 

Volume

/ Book

 

Section

 

Section

Title or

Sub-Sec

 

Sub Title

 

SubSub

Section

 

SubSub Title

 

Document Number

 

Rev

 

Description

            25744-200-M6-1112-00016   00D   P and ID - Amine Sump System
            25744-200-M6-1112-00017   00D   P and ID - Absorber Overhead Gas Coolers
            25744-200-M6-1112-00018   00D   P and ID - Anti-Foam Chemical Injection Skid
            25744-200-M6D-0012-00001   00C   Line Designation Table
            25744-200-M6D-1112-00001   00D   Line Designation Table 2 pgs
            25744-200-M6D-1112-00002   00D   Line Designation Table 3 pgs
            25744-200-M6D-1112-00003   00D   Line Designation Table 3 pgs
            25744-200-M6D-1112-00004   00D   Line Designation Table 2 pgs
            25744-200-M6D-1112-00005   00D   Line Designation Table 3 pgs
            25744-200-M6D-1112-00006   00D   Line Designation Table 3 pgs
            25744-200-M6D-1112-00007   00D   Line Designation Table 2 pgs
            25744-200-M6D-1112-00008   00D   Line Designation Table 3 pgs
            25744-200-M6D-1112-00009   00D   Line Designation Table 2 pgs
            25744-200-M6D-1112-00010   00D   Line Designation Table
            25744-200-M6D-1112-00011   00D   Line Designation Table 2 pgs

 

A-92


Execution Version

 

Volume

/ Book

 

Section

 

Section

Title or

Sub-Sec

 

Sub Title

 

SubSub

Section

 

SubSub Title

 

Document Number

 

Rev

 

Description

            25744-200-M6D-1112-00012   00D   Line Designation Table 2 pgs
            25744-200-M6D-1112-00014   00D   Line Designation Table 3 pgs
            25744-200-M6D-1112-00015   00D   Line Designation Table 4 pgs
            25744-200-M6D-1112-00016   00D   Line Designation Table
            25744-200-M6D-1112-00017   00D   Line Designation Table
            25744-200-M6D-1112-00018   00D   Line Designation Table
        4.4.3   Equipment Data Sheets (Refer to BASF confidential FEED Deliverables Volume 1)      
            25744-200-MED-12-E1201   00A   Heat Exchanger - Air Cooled - Lean Solvent Cooler
            25744-200-MED-12-E1202   00A   Heat Exchanger - Air Cooled - Regeneration Overhead Condenser
            25744-200-MED-12-E1203   00A   Heat Exchanger Welded Plate for Lean-Rich Solvent Heat Exchanger
            25744-200-MED-12-E1204   00A   Shell and Tube Heat Exchanger Data Sheet for Regenerator Reboiler
            25744-200-MED-12-E1206   00A   Heat Exchanger - Air Cooled - Absorber Overhead Gas Cooler
            25744-200-MFD-12-F1201   00B   Mechanical Data Sheet - Filters and Gas Separators - Lean Solvent Filter

 

A-93


Execution Version

 

Volume

/ Book

 

Section

 

Section

Title or

Sub-Sec

 

Sub Title

 

SubSub

Section

 

SubSub Title

 

Document Number

 

Rev

 

Description

            25744-200-MFD-12-F1202   00A   Mechanical Data Sheet for Coalescers Feed Gas Filter Coalescer
            25744-200-MFD-12-F1203   00B   Mechanical Data Sheet - Filters and Gas Separators - Rich Solvent Filter
            25744-200-MFD-12-F1204   00A   Mechanical Data Sheet for Filters and Gas Separators Lean Solvent After Filter
            25744-200-MFD-12-F1205   00A   Mechanical Data Sheet for Filters and Gas Separators Carbon Treater
            25744-200-MFD-12-F1206   00A   Mechanical Data Sheet for Filters and Gas Separators Amine Sump Filter
            25744-200-MPD-12-P1201   00A   Lean Solvent Booster Pumps
            25744-200-MPD-12-P1202   00B   Lean Solvent Charge Pump
            25744-200-MPD-12-P1203   00A   Data Sheet Form for Low Voltage Induction Motors 200 HP and Smaller (NEMA) - Regenerator Reflux Pumps Motor
            25744-200-MPD-12-P1204   00A   Wash Water Pump Pump Data Sheet
            25744-200-MPD-12-P1205   00A   Data Sheet Form for Rotary Pumps - Amine Charge Pump
            25744-200-MPD-12-P1206   00A   Amine Sump Pumps Pump Data Sheet
            25744-200-MTD-12-S1201   00B   Mechanical Data Sheet Field Erected Storage Tanks - Amine Storage Tank
            25744-200-MTD-12-S1202   00B   Mechanical Data Sheet Field Erected Storage Tanks - Amine Surge Tank
            25744-200-MUD-12-E1201   00A   Lean Solvent Cooler Motor Data Sheet Low Voltage Squirrel Cage Induction Motors 200 HP and Smaller (NEMA) - Lean Solvent Cooler Motor

 

A-94


Execution Version

 

Volume

/ Book

 

Section

 

Section

Title or

Sub-Sec

 

Sub Title

 

SubSub

Section

 

SubSub Title

 

Document Number

 

Rev

 

Description

            25744-200-MUD-12-E1202   00A   Regenerator Overhead Condenser Motor Data Sheet Low Voltage Squirrel Cage Induction Motors 200 HP and Smaller (NEMA) - Regenerator Overhead Condenser Motor
            25744-200-MUD-12-E1206   00A   Absorber Overhead Gas Cooler Motor Data Sheet Low Voltage Squirrel Cage Induction Motors 200 HP and Smaller (NEMA) - Absorber Overhead Gas Cooler Motor
            25744-200-MUD-12-P1201   00A   Data Sheet for Medium Voltage Squirrel Cage Induction Motors 200 HP and Smaller (NEMA) for Lean Solvent Booster Pump Motors
            25744-200-MUD-12-P1202   00B   Data Sheet for Medium Voltage Squirrel Cage Induction Motors 250 HP and Larger for Lean Solvent Charge Pump Motor Driver Lean Solvent Charge Pump
            25744-200-MUD-12-P1203   00A   Regenerator Reflux Pumps
            25744-200-MUD-12-P1204   00A   Data Sheet Form for Low Voltage Squirrel Cage Induction Motors 200 HP and Smaller (NEMA) Wash Water Pumps
            25744-200-MUD-12-P1205   00A   Data Sheet Form for Low Voltage Squirrel Cage Induction Motors 200 HP and Smaller (NEMA) - Amine Charge Pump Motor
            25744-200-MUD-12-P1206   00A   Data Sheet Form for Low Voltage Squirrel Cage Induction Motors 200 HP and Smaller (NEMA) Amine Sump Pump Motor
            25744-200-MVD-12-V1201   00A   Mechanical Data Sheet for CO2 Absorber Absorber
            25744-200-MVD-12-V1202   00A   Mechanical Data Sheet for Columns-Vessels - Stainless Steel-SS Clad Solvent Regenerator
            25744-200-MVD-12-V1203   00A   Mechanical Data Sheet for Columns-Vessels - Stainless Steel-SS Clad De-Gassing Drum

 

A-95


Execution Version

 

Volume

/ Book

 

Section

 

Section

Title or

Sub-Sec

 

Sub Title

 

SubSub

Section

 

SubSub Title

 

Document Number

 

Rev

 

Description

            25744-200-MVD-12-V1205   00A   Mechanical Data Sheet for Columns-Vessels - Stainless Steel-SS Clad Solvent Flash Drum
            25744-200-MVD-12-V1206   00A   Mechanical Data Sheet for Columns-Vessels - Stainless Steel-SS Clad Solvent Regenerator Reflux Drum
            25744-200-MVD-12-V1209   00A   Mechanical Data Sheet Columns and Vessels (Carbon Steel) - Non Proprietary for Amine Sump Drum
        4.4.4   Process Data Sheets (Refer to BASF confidential FEED Deliverables Volume 1)      
            25744-200-MEA-1112-01201   000   Process Data Sheet Air Cooled Heat Exchanger - Lean Solvent Cooler
            25744-200-MEA-1112-01202   000   Process Data Sheet Air Cooled Heat Exchanger - Regenerator Overhead Condenser
            25744-200-MEA-1112-01203   000   Process Data Sheet Plate Heat Exchanger Specification Sheet - Lean-Rich Solvent Heat Exchanger
            25744-200-MEA-1112-01204   000   Process Data Sheet Heat Exchanger Specification Sheet - Amine Regeneration Unit
            25744-200-MEA-1112-01206   000   Process Data Sheet Air cooled Heat Exchanger - Acid Gas Removal
            25744-200-MFA-1112-01201   000   Filter Specification Sheet for Lean Solvent Filter
            25744-200-MFA-1112-01202   000   Filter Specification Sheet - Feed Gas Filter Coalescer

 

A-96


Execution Version

 

Volume

/ Book

 

Section

 

Section

Title or

Sub-Sec

 

Sub Title

 

SubSub

Section

 

SubSub

Title

 

Document Number

 

Rev

 

Description

            25744-200-MFA-1112-01203   000   Filter Specification Sheet for Rich Solvent Filter
            25744-200-MFA-1112-01204   000   Filter Specification Sheet for Lean Solvent After Filter
            25744-200-MFA-1112-01205   000   Filter Specification Sheet for Carbon Treater
            25744-200-MFA-1112-01206   000   Filter Specification Sheet for Amine Sump Filter
            25744-200-MKA-1112-K0001   000   Process Specification for Acid Gas Removal Unit
            25744-200-MTA-0012-01201   000   Tank Specification Sheet for Amine Storage Tank
            25744-200-MTA-1112-01202   000   Tank Specification Sheet for Amine Surge Tank
            25744-200-MVA-1112-01201   000   Column Specification Sheet - Absorber
            25744-200-MVA-1112-01202   000   Column Specification Sheet - Solvent Regenerator
            25744-200-MVA-1112-01203   000   De-Gassing Drum
            25744-200-MVA-1112-01205   000   Vessel Specification Sheet - Solvent Flash Drum
            25744-200-MVA-1112-01206   000   Vessel Specification Sheet for Solvent Regenerator Reflux Drum (Vertical)
            25744-200-MVA-1112-01209   00A   Vessel Specification Sheet for Amine Sump Drum
        4.4.5   Heat/Energy and Material Balance (Refer to BASF confidential FEED Deliverables Volume 1)      

 

A-97


Execution Version

 

Volume

/ Book

 

Section

 

Section

Title or

Sub-Sec

 

Sub Title

 

SubSub

Section

 

SubSub Title

 

Document Number

 

Rev

 

Description

            25744-200-M4-DK-00011   000   AGRU Heat and Material Balance Case 1 - Average Gas - Average Ambient Temperature AGRU Streams
            25744-200-M4-DK-00012   000   AGRU Heat and Material Balance Case 2 - Average Gas - Low Ambient Temperature AGRU Streams
            25744-200-M4-DK-00013   000   AGRU Heat and Material Balance Case 3 - Average Gas - High Ambient Temperature AGRU Streams
            25744-200-M4-DK-00014   000   AGRU Heat and Material Balance Case 4 - Average Gas - Ship Loading AGRU Streams
            25744-200-M4-DK-00015   000   AGRU Heat and Material Balance Case 5 - Maximum Inerts - Low Ambient Temperature AGRU Streams
            25744-200-M4-DK-00032   000   ARGU Heat and Material Balance Case 6 - High Aromatics - Average Ambient Temperature AGRU Streams
    4.5  

UNIT 13 -

DEHYDRATION & MERCURY

REMOVAL

         
        4.5.1   Process Flow Diagrams      
            25744-200-M5-1113-00001   000   Process Flow Diagram Dehydration and Mercury Removal
        4.5.2   P&I Diagrams and Line Designation Tables      
            25744-200-M6-1113-00001   00C   P and ID - Dryer Inlet Filter Coalscer

 

A-98


Execution Version

 

Volume

/ Book

 

Section

 

Section
Title or
Sub-Sec

 

Sub
Title

 

SubSub
Section

 

SubSub Title

 

Document Number

 

Rev

 

Description

            25744-200-M6-1113-00002   00C   P and ID - Dehydrators
            25744-200-M6-1113-00003   00C   P and ID - Dehydrator
            25744-200-M6-1113-00004   00D   P and ID - Mercury Removal
            25744-200-M6-1113-00005   00C   P and ID - Regeneration Gas Distribution
            25744-200-M6-1113-00008   00C   P and ID - Regeneration Gas K.O. Drum
            25744-200-M6-1113-00009   00C   P and ID - Regeneration Gas Compressor
            25744-200-M6D-1113-00001   00C   Line Designation Table 2 pgs
            25744-200-M6D-1113-00002   00C   Line Designation Table 3 pgs
            25744-200-M6D-1113-00003   00C   Line Designation Table 2 pgs
            25744-200-M6D-1113-00004   00D   Line Designation Table
            25744-200-M6D-1113-00005   00C   Line Designation Table
            25744-200-M6D-1113-00008   00C   Line Designation Table
            25744-200-M6D-1113-00009   00C   Line Designation Table 2 pgs
VOLUME 7                
        4.5.3   Equipment Data Sheets      

 

A-99


Execution Version

 

Volume

/ Book

 

Section

 

Section
Title or
Sub-Sec

 

Sub
Title

 

SubSub
Section

 

SubSub
Title

 

Document Number

 

Rev

 

Description

            25744-200-MCD-13-C1301   00A   Regeneration Gas Compressor Data Sheet
            25744-200-MCD-13-L1301   00A   Special Purpose Oil Systems - API 614 - 5th Edition (ISO 10438-2008) USC Units - Regeneration Gas compressor Lube Oil System
            25744-200-MED-13-E1301   00A   Heat Exchanger - Air Cooled - Regeneration Gas Cooler
            25744-200-MFD-13-F1301   00A   Filters and Gas Separators for Dryer Inlet Filter Coalescer Mechanical Data Sheet
            25744-200-MFD-13-F1302   00A   Filters and Gas Separators for Mercury Removal After Filter Mechanical Data Sheet
            25744-200-MFD-13-F1303   00A   Filters and Gas Separators for Molecular Sieve After Filter
            25744-200-MUD-13-AUX1   00A   Data Sheet Form for Low Voltage Squirrel Cage Induction Motors 200 HP and Smaller (NEMA) Auxiliary Lube Oil Pump Drivers Lube Oil Pumps
            25744-200-MUD-13-AUX2   00A   Data Sheet Form for Low Voltage Squirrel Cage Induction Motors 200 HP and Smaller (NEMA) Lube Oil Cooler Motor Driver Lube Oil Cooler Fans
            25744-200-MUD-13-C1301   00A   Data Sheet for Medium Voltage Squirrel Cage Induction Motors 250 HP and Larger Regeneration Gas Compressor Motor Regeneration Gas Compress
            25744-200-MUD-13-E1301   00A   Regeneration Gas Cooler Motor Data Sheet Low Voltage Squirrel Cage Induction Motors 200 HP and Smaller (NEMA) - Regeneration Gas Cooler Motor
            25744-200-MVD-13-V1301   00A   Mechanical Data Sheet for Heavy Wall Vessels Dryer Feed KO Drum
            25744-200-MVD-13-V1302   00A   Mechanical Data Sheet for Heavy Wall Vessels Molecular Sieve Dehydrators

 

A-100


Execution Version

 

Volume

/ Book

 

Section

 

Section
Title or
Sub-Sec

 

Sub

Title

 

SubSub
Section

 

SubSub

Title

 

Document Number

 

Rev

 

Description

            25744-200-MVD-13-V1304   00A   Mechanical Data Sheet for Heavy Wall Vessels Mercury Removal Beds
            25744-200-MVD-13-V1305   00A   Mechanical Data Sheet Columns and Vessels (Carbon Steel) - Non Proprietary for Regeneration Gas K.O. Drum
            25744-200-MXD-13-C1301   00A   Special Purpose Coupling - API 671 4th Edition - ISO 10441-2007-USC Units Regeneration Gas Compressor Coupling
        4.5.4   Process Data Sheets      
            25744-200-MCA-1113-01301   000   Centrifugal Compressor Specification Sheet - Regeneration Gas Compressor
            25744-200-MEA-1113-01301   000   Process Data Sheet Air Cooled Heat Exchanger - Dehydration and Mercury Removal
            25744-200-MFA-1113-01301   000   Filter Specification Sheet - Dryer Inlet Filter Coalescer
            25744-200-MFA-1113-01302   000   Filter Specification Sheet - Mercury Removal After Filter
            25744-200-MFA-1113-01303   000   Filter Specification Sheet - Molecular Sieve After Filter
            25744-200-MVA-1113-01301   000   Vessel Specification Sheet for Dryer Feed KO Drum
            25744-200-MVA-1113-01302   000   Molecular Sieve Dehydrators
            25744-200-MVA-1113-01304   000   Mercury Removal Beds
            25744-200-MVA-1113-01305   000   Regeneration Gas KO Drum
    4.6   *** PROPANE REFRIGERATION (CONFIDENTIAL) (Refer to confidential FEED Deliverables Volume 2)          

 

A-101


Execution Version

 

Volume

/ Book

 

Section

 

Section
Title or
Sub-Sec

 

Sub
Title

 

SubSub
Section

 

SubSub

Title

 

Document Number

 

Rev

 

Description

        4.6.1   Process Flow Diagrams (Confidential) (Refer to confidential FEED Deliverables Volume 2)      
            25744-200-M5-1114-00001   000   CoP Level III Confidential - Process Flow Diagram - Propane Refrigeration
            25744-200-M5-1114-00002   000   CoP Level III Confidential - Process Flow Diagram - Propane Refrigeration
        4.6.2   P&I Diagrams and Line Designation Tables (Confidential) (Refer to confidential FEED Deliverables Volume 2)      
            25744-200-M6-1114-00001   00D   CoP Level III Confidential - P and ID - Propane Refrigerant Accumulator
            25744-200-M6-1114-00002   00E   CoP Level III Confidential - P and ID - H.S. Propane Chillers
            25744-200-M6-1114-00003   00D   CoP Level III Confidential - P and ID I.S. Propane Chillers
            25744-200-M6-1114-00004   00D   CoP Level III Confidential - P and ID L.S. Propane Chillers

 

A-102


Execution Version

 

Volume

/ Book

 

Section

 

Section
Title or
Sub-Sec

 

Sub
Title

 

SubSub
Section

 

SubSub
Title

 

Document Number

 

Rev

 

Description

            25744-200-M6-1114-00005   00C   CoP Level III Confidential - P and ID L.S. - I.S. - H.S. Propane Suction Drums ***
            25744-200-M6-1114-00006   00C   CoP Level III Confidential - P and ID L.S. - I.S. - H.S. Propane Suction Lines for ***
            25744-200-M6-1114-00007   00C   CoP Level III Confidential - P and ID Propane Compressor ***
            25744-200-M6-1114-00008   00C   CoP Level III Confidential - P and ID L.S. - I.S. - H.S. Propane Suction Drums ***
            25744-200-M6-1114-00009   00C   CoP Level III Confidential - P and ID L.S. - I.S. - H.S. Propane Suction Lines for ***
            25744-200-M6-1114-00010   00C   CoP Level III Confidential - P and ID Propane Compressor ***
            25744-200-M6-1114-00011   00C   CoP Level III Confidential - P and ID - Propane Refrigerant Condensers ***
            25744-200-M6-1114-00012   00C   CoP Level III Confidential - P and ID - Propane Refrigerant Condensers ***
            25744-200-M6-1114-00013   00C   CoP Level III Confidential - P and ID - Propane De-Inventory Pump
            25744-200-M6-1114-00014   00D   CoP Level III Confidential - P and ID - H.S. Propane HRC Reflux Chiller
            25744-200-M6-1114-00016   00C   CoP Level III Confidential - P and ID L.S. Propane HRC Reflux Chiller
            25744-200-M6-1114-00018   00C   CoP Level III Confidential - P and ID Propane Subcoolers
            25744-200-M6-1114-00021   00C   CoP Level III Confidential - P and ID - Auxiliary System for ***
            25744-200-M6-1114-00022   00C   CoP Level III Confidential - P and ID - Auxiliary System for ***

 

A-103


Execution Version

 

Volume

/ Book

 

Section

 

Section
Title or
Sub-Sec

 

Sub
Title

 

SubSub
Section

 

SubSub
Title

 

Document Number

 

Rev

 

Description

            25744-200-M6-1114-00023   00C   CoP Level III Confidential-P and ID Aux.-Propane Turb. Comp. Oil Coolers
            25744-200-M6-1114-00024   00C   CoP Level III Confidential - P and ID Propane Gas Turbine Exhaust Stacks ***
            25744-200-M6D-1114-00001   00D   CoP Level III Confidential - Line Designation Table
            25744-200-M6D-1114-00002   00E   CoP Level III Confidential - Line Designation Table
            25744-200-M6D-1114-00003   00D   CoP Level III Confidential - Line Designation Table
            25744-200-M6D-1114-00004   00D   CoP Level III Confidential - Line Designation Table
            25744-200-M6D-1114-00005   00C   CoP Level III Confidential - Line Designation Table 4 Pgs
            25744-200-M6D-1114-00006   00C   CoP Level III Confidential - Line Designation Table
            25744-200-M6D-1114-00007   00C   CoP Level III Confidential - Line Designation Table 3 Pgs
            25744-200-M6D-1114-00008   00C   CoP Level III Confidential - Line Designation Table 4 Pgs
            25744-200-M6D-1114-00009   00C   CoP Level III Confidential - Line Designation Table
            25744-200-M6D-1114-00010   00C   CoP Level III Confidential - Line Designation Table 3 Pgs
            25744-200-M6D-1114-00011   00C   CoP Level III Confidential - Line Designation Table
            25744-200-M6D-1114-00012   00C   CoP Level III Confidential - Line Designation Table
            25744-200-M6D-1114-00013   00C   CoP Level III Confidential - Line Designation Table

 

A-104


Execution Version

 

Volume

/ Book

 

Section

 

Section
Title or
Sub-Sec

 

Sub
Title

 

SubSub
Section

 

SubSub

Title

 

Document Number

 

Rev

 

Description

            25744-200-M6D-1114-00014   00D   CoP Level III Confidential - Line Designation Table
            25744-200-M6D-1114-00016   00C   CoP Level III Confidential - Line Designation Table
            25744-200-M6D-1114-00018   00C   CoP Level III Confidential - Line Designation Table 4 Pgs
            25744-200-M6D-1114-00021   00C   CoP Level III Confidential - Line Designation Table
            25744-200-M6D-1114-00022   00C   CoP Level III Confidential - Line Designation Table
            25744-200-M6D-1114-00023   00C   CoP Level III Confidential - Line Designation Table
            25744-200-M6D-1114-00024   00C   CoP Level III Confidential - Line Designation Table
        4.6.3   Equipment Data Sheets (Confidential) (Refer to confidential FEED Deliverables Volume 2)      
            25744-200-MCD-14-C1411   00A   CoP Level III Confidential - Compressor - LNG Refrigeration - Propane Compressors
            25744-200-MCD-14-L1411   00A   CoP Level III Confidential - Special Purpose Oil Systems - API 614 5th Edition for API 614 Oil System Data Sheet for Propane Refrigeration Compressors
            25744-200-MED-14-E1401   00A   CoP Level III Confidential - Heat Exchanger - LNG Refrigeration - Propane Refrigerant Condenser

 

A-105


Execution Version

 

Volume

/ Book

 

Section

 

Section
Title or
Sub-Sec

 

Sub
Title

 

SubSub
Section

 

SubSub
Title

 

Document Number

 

Rev

 

Description

            25744-200-MED-14-E1402   00A   CoP Level III Confidential - Brazed Aluminum Heat Exchanger Core in Shell Type for H.S. Propane-Methane - Ethylene Chiller
            25744-200-MED-14-E1403   00A   CoP Level III Confidential - Brazed Aluminum Heat Exchanger Core in Shell Type for I.S. Propane-Methane - Ethylene - Feed Chiller
            25744-200-MED-14-E1404   00A   CoP Level III Confidential - Brazed Aluminum Heat Exchanger Core in Shell Type for L.S. Propane-Ethylene - Ethylene Cond - Feed Chiller
            25744-200-MED-14-E1406   00A   CoP Level III Confidential - Shell and Tube Heat Exchanger Data Sheet for H.S. Propane Feed Chiller
            25744-200-MED-14-E1407   00A   CoP Level III Confidential - Shell and Tube Heat Exchanger Data Sheet for Propane Purger Condenser Section
            25744-200-MED-14-E1408   00A   CoP Level III Confidential - Shell and Tube Heat Exchanger Data Sheet for Low Stage Propane HRC Reflux Chiller
            25744-200-MED-14-E1409   00A   CoP Level III Confidential - Shell and Tube Heat Exchanger Data Sheet for High Stage Propane HRC Reflux Chiller
            25744-200-MED-14-E1411   00A   CoP Level III Confidential - Heat Exchanger - LNG Refrigeration - Propane Subcooler
            25744-200-MED-14-E1415   00A   CoP Level III Confidential - Heat Exchanger - LNG Refrigeration - Propane Turbine-Compressor Oil Cooler
            25744-200-MPD-14-P1403   00B   CoP Level III Confidential - Propane De-Inventory Pump
            25744-200-MUD-14-A1411   00A   CoP Level III Confidential - Special Purpose Gear Units - API 613 5th Edition - USC Units for Special Purpose Gear Unit Propane Refrigeration Compressors
            25744-200-MUD-14-E1401   00A   CoP Level III Confidential - Propane Refrigerant Condenser Motor Data Sheet Low Voltage Squirrel Cage Induction Motors 200 HP and Smaller (NEMA) - Propane Refrigerant Condenser Motor

 

A-106


Execution Version

 

Volume

/ Book

 

Section

 

Section
Title or
Sub-Sec

 

Sub
Title

 

SubSub
Section

 

SubSub
Title

 

Document Number

 

Rev

 

Description

            25744-200-MUD-14-E1411   00A   CoP Level III Confidential - Propane Subcooler Motor Data Sheet Low Voltage Squirrel Cage Induction Motors 200 HP and Smaller (NEMA) - Propane Subcooler Motor
            25744-200-MUD-14-E1415   00A   CoP Level III Confidential - Propane-Ethylene-Methane-Turbine Compressor Oil cooler Motor Data Sheet Low Voltage Squirrel Cage Induction Motors 200 HP and Smaller (NEMA) - Propane-Ethylene-Methane Turbine-Compressor Oil Cooler Motors
            25744-200-MUD-14-P1403   00B   CoP Level III Confidential - Data Sheet Form for Low Voltage Squirrel Cage Induction Motors 200 HP and Smaller (NEMA) - Ethylene De-Inventory Pump Motors
            25744-200-MUD-14-TC1411   00B   CoP Level III Confidential - Combustion Gas Turbines - API 616 5th Edition - Combustion Gas Turbines - Propane Refrigeration Compressors
            25744-200-MUD-NPAUX1   00A   CoP Level III Confidential - Data Sheet Form for Low Voltage Squirrel Cage Induction Motors 200 HP and Smaller (NEMA) for Mineral Lube Oil Pump Drivers Lube Oil Pumps
            25744-200-MUD-NPAUX2   00A   CoP Level III Confidential - Data Sheet Form for Low Voltage Squirrel Cage Induction Motors 200 HP and Smaller (NEMA) for Turning Gear Motor Driver Turning Gear

 

A-107


Execution Version

 

Volume

/ Book

 

Section

 

Section
Title or
Sub-Sec

 

Sub
Title

 

SubSub
Section

 

SubSub
Title

 

Document Number

 

Rev

 

Description

            25744-200-MUD-NPAUX3   00A   CoP Level III Confidential - Data Sheet From for Low Voltage Squirrel Cage Induction Motors 200 HP and Smaller (NEMA) for MLO Mist Elimination Fan Drivers Fan
            25744-200-MUD-NPAUX4   00A   CoP Level III Confidential - Data Sheet Form for Low Voltage Squirrel Cage Induction Motors 200 HP and Smaller (NEMA) for GT Enclosure Fan Drivers Fan
            25744-200-MUD-NPAUX5   00A   CoP Level III Confidential - Data Sheet Form for Low Voltage Squirrel Cage Induction Motors 200 HP and Smaller (NEMA) for Water Injection Pumps Drivers Pumps
            25744-200-MUD-NPAUX6   00A   CoP Level III Confidential - Data Sheet Form for Low Voltage Squirrel Cage Induction Motors 200 HP and Smaller (NEMA) for Water Wash Pump Drivers Pumps
            25744-200-MUD-NPAUX7   00A   CoP Level III Confidential - Data Sheet Form for Low Voltage Squirrel Cage Induction Motors 200 HP and Smaller (NEMA) Hydraulic Starting Pump Driver Hydraulic Pump
            25744-200-MVD-14-V1404   00A   CoP Level III Confidential - Mechanical Data Sheet for Columns-Vessels - Carbon Steel - Proprietary Propane Refrigerant Accumulator
            25744-200-MVD-14-V1405   00A   CoP Level III Confidential - Mechanical Data Sheet for Columns-Vessels - Carbon Steel - Proprietary Propane Purger Absorber Section
            25744-200-MVD-14-V1411   00A   CoP Level III Confidential - Mechanical Data Sheet for Columns-Vessels - Carbon Steel - Proprietary Low Stage Propane Suction Drums
            25744-200-MVD-14-V1412   00A   CoP Level III Confidential - Mechanical Data Sheet for Columns-Vessels - Carbon Steel - Proprietary Interstage Propane Suction Drums
            25744-200-MVD-14-V1413   00A   CoP Level III Confidential - Mechanical Data Sheet for Columns-Vessels - Carbon Steel - Proprietary High Stage Propane Suction Drums  

 

A-108


Execution Version

 

Volume

/ Book

 

Section

 

Section
Title or
Sub-Sec

 

Sub
Title

 

SubSub
Section

 

SubSub

Title

 

Document Number

 

Rev

 

Description

            25744-200-MXD-14-A1411   00A   CoP Level III Confidential - Special Purpose Coupling - API 671 4th Edition - ISO 10441-2007 - USC Units for Special Purpose Coupling (GT-GB) - Propane Refrigeration Compressors
            25744-200-MXD-14-B1411   00A   CoP Level III Confidential - Special Purpose Coupling - API 671 4th Edition - ISO 10441-2007 - USC Units for Special Purpose Coupling (GB-HP) - Propane Refrigeration Compressors
            25744-200-MXD-14-C1411   00A   CoP Level III Confidential - Special Purpose Coupling - API 671 4th Edition - ISO 10441-2007 - USC Units for Special Purpose Coupling (HP-LP) - Propane Refrigeration Compressors
        4.6.4   Process Data Sheets (Confidential) (Refer to confidential FEED Deliverables Volume 2)      
            25744-200-MCA-1114-01411   000   CoP Level III Confidential - Centrifugal Compressor Specification Sheet - Propane Compressors
            25744-200-MEA-1114-01401   000   CoP Level III Confidential - Process Data Sheet Air Cooled Heat Exchanger - Propane Refrigeration Condenser
            25744-200-MEA-1114-01402   000   CoP Level III Confidential - Brazed Aluminum Heat Exchanger Specification Sheet Core in Shell Type - H.S. Propane-Methane - Ethylene Chiller
            25744-200-MEA-1114-01403   000   CoP Level III Confidential - Brazed Aluminum Heat Exchanger Specification Sheet Core in Shell Type - CoP I.S. Propane-Methane - Ethylene - Feed Chillers

 

A-109


Execution Version

 

Volume

/ Book

 

Section

 

Section
Title or
Sub-Sec

 

Sub
Title

 

SubSub
Section

 

SubSub
Title

 

Document Number

 

Rev

 

Description

            25744-200-MEA-1114-01404   000   CoP Level III Confidential - Brazed Aluminum Heat Exchanger Specification Sheet Core in Shell Type - L.S. Propane-Ethylene Cond - Feed Chillers
            25744-200-MEA-1114-01406   000   CoP Level III Confidential - Process Data Sheet Heat Exchanger Specification Sheet - H.S. Propane - Feed Chiller
            25744-200-MEA-1114-01407   000   CoP Level III Confidential - Process Data Sheet Heat Exchanger Specification Sheet - Propane Purger Condenser Section
            25744-200-MEA-1114-01408   000   CoP Level III Confidential - Mechanical Shell and Tube Heat Exchanger Data Sheet - Low Stage Propane HRC Reflux Chiller
            25744-200-MEA-1114-01409   000   CoP Level III Confidential - Mechanical Shell and Tube Heat Exchanger Data Sheet - High Stage Propane HRC Reflux Chiller
            25744-200-MEA-1114-01411   000   CoP Level III Confidential - Process Data Sheet Air Cooled Heat Exchanger - Propane Subcooler
            25744-200-MEA-1114-01415   000   CoP Level III Confidential - Process Data Sheet Air Cooled Heat Exchanger - Propane Turbine - Compressor Oil Cooler
            25744-200-MVA-1114-01404   000   CoP Level III Confidential - Vessel Specification Sheet for Propane Refrigerant Accumulator
            25744-200-MVA-1114-01405   000   CoP Level III Confidential - Vessel Specification Sheet for Propane Purger Absorber Section
            25744-200-MVA-1114-01411   000   CoP Level III Confidential - Vessel Specification Sheet - Low Stage Propane Suction Drums - Vertical
            25744-200-MVA-1114-01412   000   CoP Level III Confidential - Vessel Specification Sheet - Interstage Propane Suction Drums - Vertical

 

A-110


Execution Version

 

Volume

/ Book

 

Section

 

Section
Title or
Sub-Sec

 

Sub

Title

 

SubSub
Section

 

SubSub

Title

 

Document Number

 

Rev

 

Description

            25744-200-MVA-1114-01413   000   CoP Level III Confidential - Vessel Specification Sheet - High Stage Propane Suction Drums - Vertical
    4.7   *** ETHYLENE REFRIGERATION (CONFIDENTIAL) (Refer to confidential FEED Deliverables Volume 3)          
        4.7.1   Process Flow Diagrams (Confidential) (Refer to confidential FEED Deliverables Volume 3)      
            25744-200-M5-1115-00001   000   CoP Level III Confidential - Process Flow Diagram - Ethylene Refrigeration
            25744-200-M5-1115-00002   000   CoP Level III Confidential - Process Flow Diagram - Ethylene Refrigeration
        4.7.2   P&I Diagrams and Line Designation Tables (Confidential) (Refer to confidential FEED Deliverables Volume 3)      
            25744-200-M6-1115-00001   00C   CoP Level III Confidential - P and ID Ethylene Surge Drum

 

A-111


Execution Version

 

Volume

/ Book

 

Section

 

Section
Title or
Sub-Sec

 

Sub
Title

 

SubSub
Section

 

SubSub
Title

 

Document Number

 

Rev

 

Description

            25744-200-M6-1115-00002   00C   CoP Level III Confidential - P and ID Ethylene Economizer
            25744-200-M6-1115-00003   00D   CoP Level III Confidential - P and ID H.S. Ethylene Chiller
            25744-200-M6-1115-00004   00D   CoP Level III Confidential - P and ID L.S. Ethylene Feed Condensers
            25744-200-M6-1115-00005   00C   CoP Level III Confidential - P and ID Ethylene Compressor ***
            25744-200-M6-1115-00006   00C   CoP Level III Confidential - P and ID Ethylene Discharge Coolers ***
            25744-200-M6-1115-00007   00C   CoP Level III Confidential - P and ID Ethylene Compressor ***
            25744-200-M6-1115-00008   00C   CoP Level III Confidential - P and ID Ethylene Discharge Coolers ***
            25744-200-M6-1115-00009   00C   CoP Level III Confidential - P and ID Ethylene De-Inventory System
            25744-200-M6-1115-00010   00C   CoP Level III Confidential - P and ID Heavies Removal Column Reflux Condenser
            25744-200-M6-1115-00011   00C   CoP Level III Confidential - P and ID Heavies Removal Column Reflux Drum
            25744-200-M6-1115-00021   00C   CoP Level III Confidential - P and ID Ethylene Cold Box Purge System
            25744-200-M6-1115-00022   00C   CoP Level III Confidential - P and ID - Auxiliary System for ***
            25744-200-M6-1115-00023   00C   CoP Level III Confidential - P and ID - Auxiliary System for ***
            25744-200-M6-1115-00024   00C   CoP Level III Confidential - P and ID Aux. -Ethylene Turb Comp. Oil Coolers

 

A-112


Execution Version

 

Volume

/ Book

 

Section

 

Section
Title or
Sub-Sec

 

Sub
Title

 

SubSub
Section

 

SubSub
Title

 

Document Number

 

Rev

 

Description

            25744-200-M6-1115-00025   00A   CoP Level III Confidential - P and ID Ethylene Economizer Details ***
            25744-200-M6D-1115-00001   00C   CoP Level III Confidential - Line Designation Table
            25744-200-M6D-1115-00002   00C   CoP Level III Confidential - Line Designation Table
            25744-200-M6D-1115-00003   00D   CoP Level III Confidential - Line Designation Table
            25744-200-M6D-1115-00004   00D   CoP Level III Confidential - Line Designation Table
            25744-200-M6D-1115-00005   00C   CoP Level III Confidential - Line Designation Table 4 Pgs
            25744-200-M6D-1115-00006   00C   CoP Level III Confidential - Line Designation Table 3 Pgs
            25744-200-M6D-1115-00007   00C   CoP Level III Confidential - Line Designation Table 4 Pgs
            25744-200-M6D-1115-00008   00C   CoP Level III Confidential - Line Designation Table 3 Pgs
            25744-200-M6D-1115-00009   00C   CoP Level III Confidential - Line Designation Table 3 Pgs
            25744-200-M6D-1115-00010   00C   CoP Level III Confidential - Line Designation Table 2 Pgs
            25744-200-M6D-1115-00011   00C   CoP Level III Confidential - Line Designation Table 3 Pgs
            25744-200-M6D-1115-00021   00C   CoP Level III Confidential - Line Designation Table
            25744-200-M6D-1115-00022   00C   CoP Level III Confidential - Line Designation Table
            25744-200-M6D-1115-00023   00C   CoP Level III Confidential - Line Designation Table

 

A-113


Execution Version

 

Volume

/ Book

 

Section

 

Section
Title or
Sub-Sec

 

Sub
Title

 

SubSub
Section

 

SubSub

Title

 

Document Number

 

Rev

 

Description

            25744-200-M6D-1115-00024   00C   CoP Level III Confidential - Line Designation Table
            25744-200-M6D-1115-00025   00A   CoP Level III Confidential - Line Designation Table
        4.7.3   Equipment Data Sheets (Confidential) (Refer to confidential FEED Deliverables Volume 3)      
            25744-200-MCD-15-C1511   00A   CoP Level III Confidential - Compressor - LNG Refrigeration - Ethylene Compressor
            25744-200-MCD-15-L1511   00A   CoP Level III Confidential - Special Purpose Oil Systems - API 614 5th Edition for API 614 Oil System Data Sheet for Ethylene Refrigeration Compressors
            25744-200-MED-15-E1503   00A   CoP Level III Confidential - Brazed Aluminum Heat Exchanger Core in Shell Type for H.S. Ethylene Feed - HRC Reflux Chiller
            25744-200-MED-15-E1504   00A   CoP Level III Confidential - Brazed Aluminum Heat Exchanger Core in Shell Type for L.S. Ethylene Feed Condenser
            25744-200-MED-15-E1505   00A   CoP Level III Confidential - Brazed Aluminum Heat Exchanger for Ethylene Condenser
            25744-200-MED-15-E1506   00A   CoP Level III Confidential - Shell and Tube Heat Exchanger Data Sheet for Ethylene Purger Condenser Section
            25744-200-MED-15-E1508   00A   CoP Level III Confidential - Brazed Aluminum Heat Exchanger Core in Shell Type for Heavies Removal Column Reflux Condenser

 

A-114


Execution Version

 

Volume

/ Book

 

Section

 

Section
Title or
Sub-Sec

 

Sub
Title

 

SubSub
Section

 

SubSub
Title

 

Document Number

 

Rev

 

Description

            25744-200-MED-15-E1511   00A   CoP Level III Confidential - Heat Exchanger - LNG Refrigeration - Ethylene Compressor Intercooler
            25744-200-MED-15-E1512   00A   CoP Level III Confidential - Heat Exchanger - LNG Refrigeration - Ethylene Compressor Discharge Cooler
            25744-200-MED-15-E1515   00A   CoP Level III Confidential - Heat Exchanger - LNG Refrigeration - Ethylene Turbine-Compressor Oil Cooler
            25744-200-MPD-15-P1501   00B   CoP Level III Confidential - Ethylene De-Inventory Pump
            25744-200-MUD-15-A1511   00A   CoP Level III Confidential - Special Purpose Gear Units - API 613 5th Edition - USC Units for Special Purpose Gear Unit Ethylene Refrigeration Compressors
            25744-200-MUD-15-E1511   00A   CoP Level III Confidential - Ethylene Compressor Intercooler Motor Data Sheet Low Voltage Squirrel Cage Induction Motors 200 HP and Smaller (NEMA) - Ethylene Compressor Intercooler Motor
            25744-200-MUD-15-E1512   00A   CoP Level III Confidential - Ethylene Compressor Discharge Cooler Motor Data Sheet Low Voltage Squirrel Cage Induction Motors 200 HP and Smaller (NEMA) - Ethylene Compressor Discharge Cooler Motor
            25744-200-MUD-15-P1501   00B   CoP Level III Confidential - Data Sheet Form for Low Voltage Squirrel Cage Induction Motors 200 HP and Smaller (NEMA) - Propane De-Inventory Pump Motors
            25744-200-MUD-15-TC1511   00B   CoP Level III Confidential - Combustion Gas Turbines - API 616 5th Edition - Combustion Gas Turbines - Ethylene Refrigeration Compressors
            25744-200-MUD-NPAUX1   00A   CoP Level III Confidential - Data Sheet Form for Low Voltage Squirrel Cage Induction Motors 200 HP and Smaller (NEMA) for Mineral Lube Oil Pump Drivers Lube Oil Pumps

 

A-115


Execution Version

 

Volume

/ Book

 

Section

 

Section
Title or
Sub-Sec

 

Sub
Title

 

SubSub
Section

 

SubSub
Title

 

Document Number

 

Rev

 

Description

            25744-200-MUD-NPAUX2   00A   CoP Level III Confidential - Data Sheet Form for Low Voltage Squirrel Cage Induction Motors 200 HP and Smaller (NEMA) for Turning Gear Motor Driver Turning Gear
            25744-200-MUD-NPAUX3   00A   CoP Level III Confidential - Data Sheet Form for Low Voltage Squirrel Cage Induction Motors 200 HP and Smaller (NEMA) for MLO Mist Elimination Fan Drivers Fan
            25744-200-MUD-NPAUX4   00A   CoP Level III Confidential - Data Sheet Form for Low Voltage Squirrel Cage Induction Motors 200 HP and Smaller (NEMA) for GT Enclosure Fan Drivers Fan
            25744-200-MUD-NPAUX5   00A   CoP Level III Confidential - Data Sheet Form for Low Voltage Squirrel Cage Induction Motors 200 HP and Smaller (NEMA) for Water Injection Pumps Drivers Pumps
            25744-200-MUD-NPAUX6   00A   CoP Level III Confidential - Data Sheet Form for Low Voltage Squirrel Cage Induction Motors 200 HP and Smaller (NEMA) for Water Wash Pump Drivers Pumps
            25744-200-MUD-NPAUX7   00A   CoP Level III Confidential - Data Sheet Form for Low Voltage Squirrel Cage Induction Motors 200 HP and Smaller (NEMA) Hydraulic Starting Pump Driver Hydraulic Pump
            25744-200-MVD-15-V1502   00A   Confidential Level III - Ethylene Surge Drum Mechanical Data Sheet for Stainless Steel Vessels - Proprietary Ethylene Surge Drum
            25744-200-MVD-15-V1503   00A   Confidential Level III - Ethylene Purger Absorber Section Mechanical Data Sheet for Stainless Steel Vessels - Proprietary Ethylene Purger Absorber Section

 

A-116


Execution Version

 

Volume

/ Book

 

Section

 

Section
Title or
Sub-Sec

 

Sub
Title

 

SubSub
Section

 

SubSub

Title

 

Document Number

 

Rev

 

Description

            25744-200-MVD-15-V1507   00A   Confidential Level III - Mechanical Data Sheet Heavies Removal Column Reflux Drum for Stainless Steel Vessels - Proprietary Heavies Removal Column Reflux Drum
            25744-200-MXD-15-A1511   00A   CoP Level III Confidential - Special Purpose Coupling - API 671 4th Edition - ISO 10441-2007 - USC Units for Special Purpose Coupling (GT-HP) - Ethylene Refrigeration Compressors
            25744-200-MXD-15-B1511   00A   CoP Level III Confidential - Special Purpose Coupling - API 671 4th Edition - Iso 10441-2007 - USC Units for Special Purpose Coupling (HB-GB) Ethylene Refrigeration Compressors
            25744-200-MXD-15-C1511   00A   CoP Level III Confidential - Special Purpose Coupling - API 671 4th Edition - ISO 10441-2007 - USC Units for Special Purpose Coupling (GB-LP) - Ethylene Refrigeration Compressors
        4.7.4   Process Data Sheets (Confidential) (Refer to confidential FEED Deliverables Volume 3)      
            25744-200-MCA-1115-01511   000   CoP Level III Confidential - Ethylene Compressors
            25744-200-MEA-1115-01505   000   CoP Level III Confidential - Brazed Aluminum Heat Exchanger Specification Sheet Core In Shell Type - Ethylene Economizer
            25744-200-MEA-1115-01506   000   CoP Level III Confidential - Process Data Sheet Heat Exchanger Specification Sheet for Ethylene Refrigeration

 

A-117


Execution Version

 

Volume

/ Book

 

Section

 

Section
Title or
Sub-Sec

 

Sub

Title

 

SubSub
Section

 

SubSub
Title

 

Document Number

 

Rev

 

Description

            25744-200-MEA-1115-01508   000   CoP Level III Confidential - Brazed Aluminum Heat Exchanger Specification Sheet Core in Shell Type - Heavies Removal Column Reflux Condenser
            25744-200-MEA-1115-01511   000   CoP Level III Confidential - Process Data Sheet Air Cooled Heat Exchanger - Ethylene Compressor Intercoolers
            25744-200-MEA-1115-01512   000   CoP Level III Confidential - Process Data Sheet Air Cooled Heat Exchanger - Ethylene Compressor Discharge Coolers
            25744-200-MEA-1115-01515   000   CoP Level III Confidential - Process Data Sheet Air Cooled Heat Exchanger - Ethylene Turbine - Compressor Oil Cooler
            25744-200-MVA-1115-01502   000   CoP Level III Confidential - Vessel Specification Sheet for Ethylene Surge Drum
            25744-200-MVA-1115-01503   000   CoP Level III Confidential - Vessel Specification Sheet for Ethylene Purger Absorber Section
            25744-200-MVA-1115-01507   000   CoP Level III Confidential - Vessel Specification Sheet - Heavies Removal Column Reflux Drum
    4.8   *** LIQUEFACTION & METHANE COMPRESSION (CONFIDENTIAL) (Refer to confidential FEED Deliverables Volume 3 thru 4)          

 

A-118


Execution Version

 

Volume

/ Book

 

Section

 

Section

Title or

Sub-Sec

 

Sub Title

 

SubSub
Section

 

SubSub Title

 

Document Number

 

Rev

 

Description

        4.8.1   Process Flow Diagrams (Confidential) (Refer to confidential FEED Deliverables Volume 3)      
            25744-200-M5-1116-00001   000   CoP Level III Confidential - Process Flow Diagram - Liquefaction and Methane Compressor
        4.8.2   P&I Diagrams and Line Designation Tables (Confidential) (Refer to confidential FEED Deliverables Volume 4)      
            25744-200-M6-1116-00001   00C   CoP Level III Confidential - P and ID Methane Economizer
            25744-200-M6-1116-00002   00C   CoP Level III Confidential - P and ID Methane H. S. Flash Drum and I. S. Flash Drum
            25744-200-M6-1116-00003   00C   CoP Level III Confidential - P and ID Methane L. S. Flash Drum
            25744-200-M6-1116-00004   00D   CoP Level III Confidential - P and ID - LNG Transfer Pumps
            25744-200-M6-1116-00006   00C   CoP Level III Confidential - P and ID LP Methane Compressor ***
            25744-200-M6-1116-00007   00C   CoP Level III Confidential - P and ID MP Methane Compressor ***
            25744-200-M6-1116-00008   00C   CoP Level III Confidential - P and ID HP Methane Compressor ***

 

A-119


Execution Version

 

Volume

/ Book

 

Section

 

Section

Title or

Sub-Sec

 

Sub Title

 

SubSub
Section

 

SubSub
Title

 

Document Number

 

Rev

 

Description

            25744-200-M6-1116-00010   00C   CoP Level III Confidential - P and ID LP Methane Compressor ***
            25744-200-M6-1116-00011   00C   CoP Level III Confidential - P and ID MP Methane Compressor ***
            25744-200-M6-1116-00012   00C   CoP Level III Confidential - P and ID HP Methane Compressor ***
            25744-200-M6-1116-00021   00C   CoP Level III Confidential - P and ID Methane Cold Box Purge System
            25744-200-M6-1116-00022   00C   CoP Level III Confidential - P and ID - Auxiliary System for ***
            25744-200-M6-1116-00023   00C   CoP Level III Confidential - P and ID - Auxiliary System for ***
            25744-200-M6-1116-00024   00C   CoP Level III Confidential - P and ID Aux - Methane Turb. Comp. Oil Coolers
            25744-200-M6-1116-00025   00C   CoP Level III Confidential - P and ID Methane Gas Turbine Exhaust Stacks ***
            25744-200-M6-1116-00026   00A   CoP Level III Confidential - P and ID Methane Economizer Details
            25744-200-M6-1116-00027   00A   CoP Level III Confidential - P and ID Interstage Methane Economizer Details
            25744-200-M6D-1116-00001   00C   CoP Level III Confidential - Line Designation Table
            25744-200-M6D-1116-00002   00C   CoP Level III Confidential - Line Designation Table
            25744-200-M6D-1116-00003   00C   CoP Level III Confidential - Line Designation Table
            25744-200-M6D-1116-00004   00D   CoP Level III Confidential - Line Designation Table
            25744-200-M6D-1116-00006   00C   CoP Level III Confidential - Line Designation Table 3 Pgs

 

A-120


Execution Version

 

Volume

/ Book

 

Section

 

Section

Title or

Sub-Sec

 

Sub Title

 

SubSub
Section

 

SubSub Title

 

Document Number

 

Rev

 

Description

            25744-200-M6D-1116-00007   00C   CoP Level III Confidential - Line Designation Table 2 Pgs
            25744-200-M6D-1116-00008   00C   CoP Level III Confidential - Line Designation Table 4 Pgs
            25744-200-M6D-1116-00010   00C   CoP Level III Confidential - Line Designation Table 3 Pgs
            25744-200-M6D-1116-00011   00C   CoP Level III Confidential - Line Designation Table 2 Pgs
            25744-200-M6D-1116-00012   00C   CoP Level III Confidential - Line Designation Table 3 Pgs
            25744-200-M6D-1116-00021   00C   CoP Level III Confidential - Line Designation Table
            25744-200-M6D-1116-00022   00C   CoP Level III Confidential - Line Designation Table
            25744-200-M6D-1116-00023   00C   CoP Level III Confidential - Line Designation Table
            25744-200-M6D-1116-00024   00C   CoP Level III Confidential - Line Designation Table
            25744-200-M6D-1116-00025   00C   CoP Level III Confidential - Line Designation Table
            25744-200-M6D-1116-00026   00A   CoP Level III Confidential - Line Designation Table
            25744-200-M6D-1116-00027   00A   CoP Level III Confidential - Line Designation Table
        4.8.3   Equipment Data Sheets (Confidential) (Refer to confidential FEED Deliverables Volume 4)      

 

A-121


Execution Version

 

Volume

/ Book

 

Section

 

Section

Title or

Sub-Sec

 

Sub Title

 

SubSub
Section

 

SubSub
Title

 

Document Number

 

Rev

 

Description

            25744-200-MCD-16-C1611   00A   CoP Level III Confidential - Compressor - LNG Refrigeration - Methane Compressor
            25744-200-MCD-16-L1611   00A   CoP Level III Confidential - Special Purpose Oil Systems - API 614 5th Edition for API 614 Oil System Data Sheet for Methane Refrigeration Compressors
            25744-200-MED-16-E1605   00A   CoP Level III Confidential - Brazed Aluminum Heat Exchanger for Methane Economizer
            25744-200-MED-16-E1606   00A   CoP Level III Confidential - Brazed Aluminum Heat Exchanger for Interstage Methane Economizer
            25744-200-MED-16-E1611   00A   CoP Level III Confidential - Heat Exchanger - LNG Refrigeration - L.S. Methane Discharge Coolers
            25744-200-MED-16-E1612   00A   CoP Level III Confidential - Heat Exchanger - LNG Refrigeration - I.S. Methane Discharge Coolers
            25744-200-MED-16-E1613   00A   CoP Level III Confidential - Heat Exchanger - LNG Refrigeration - H.S. Methane Discharge Coolers
            25744-200-MED-16-E1615   00A   CoP Level III Confidential - Heat Exchanger - LNG Refrigeration - Methane Turbine-Compressor Oil Cooler
            25744-200-MED-16-V1602   00A   CoP Level III Confidential - Mechanical Data Sheet - Vessels for H.S. Flash Drum
            25744-200-MED-16-V1603   00A   CoP Level III Confidential - Mechanical Data Sheet - Vessels for I.S. Flash Drum
            25744-200-MED-16-V1604   00A   CoP Level III Confidential - Mechanical Data Sheet - Vessels for L.S. Flash Drum
            25744-200-MPD-16-P1601   00B   CoP Level III Confidential - LNG Transfer Pump
            25744-200-MUD-16-E1611   00A   CoP Level III Confidential - L.S. Methane Discharge Cooler Motor Data Sheet Low Voltage Squirrel Cage Induction Motors 200 HP and Smaller (NEMA) - L.S. Methane Discharge Cooler Motor

 

A-122


Execution Version

 

Volume

/ Book

 

Section

 

Section

Title or

Sub-Sec

 

Sub Title

 

SubSub
Section

 

SubSub
Title

 

Document Number

 

Rev

 

Description

            25744-200-MUD-16-E1612   00A   CoP Level III Confidential - I.S. Methane Discharge Cooler Motor Data Sheet Low Voltage Squirrel Cage Induction Motors 200 HP and Smaller (NEMA) - I.S. Methane Discharge Cooler Motor
            25744-200-MUD-16-E1613   00A   CoP Level III Confidential - H.S. Methane Discharge Cooler Motor Data Sheet Low Voltage Squirrel Cage Induction Motors 200 HP and Smaller (NEMA) - H.S. Methane Discharge Cooler Motor
            25744-200-MUD-16-P1601   00B   CoP Level III Confidential - Data Sheet for Medium Voltage Squirrel Cage Induction Motors 250 HP and Larger for LNG Transfer Pump Motor LNG Transfer Pump
            25744-200-MUD-16-TC1611   00B   CoP Level III Confidential - Combustion Gas Turbines - API 616 5th Edition - Combustion Gas Turbines -Methane Refrigeration Compressors
            25744-200-MUD-NPAUX1   00A   CoP Level III Confidential - Data Sheet Form for Low Voltage Squirrel Cage Induction Motors 200 HP and Smaller (NEMA) for Mineral Lube Oil Pump Drivers Lube Oil Pumps
            25744-200-MUD-NPAUX2   00A   CoP Level III Confidential - Data Sheet Form for Low Voltage Squirrel Cage Induction Motors 200 HP and Smaller (NEMA) for Turning Gear Motor Driver Turning Gear
            25744-200-MUD-NPAUX3   00A   CoP Level III Confidential - Data Sheet From for Low Voltage Squirrel Cage Induction Motors 200 HP and Smaller (NEMA) for MLO Mist Elimination Fan Drivers Fan

 

A-123


Execution Version

 

Volume

/ Book

 

Section

 

Section

Title or

Sub-Sec

 

Sub Title

 

SubSub
Section

 

SubSub Title

 

Document Number

 

Rev

 

Description

            25744-200-MUD-NPAUX4   00A   CoP Level III Confidential - Data Sheet Form for Low Voltage Squirrel Cage Induction Motors 200 HP and Smaller (NEMA) for GT Enclosure Fan Drivers Fan
            25744-200-MUD-NPAUX5   00A   CoP Level III Confidential - Data Sheet Form for Low Voltage Squirrel Cage Induction Motors 200 HP and Smaller (NEMA) for Water Injection Pumps Drivers Pumps
            25744-200-MUD-NPAUX6   00A   CoP Level III Confidential - Data Sheet Form for Low Voltage Squirrel Cage Induction Motors 200 HP and Smaller (NEMA) for Water Wash Pump Drivers Pumps
            25744-200-MUD-NPAUX7   00A   CoP Level III Confidential - Data Sheet Form for Low Voltage Squirrel Cage Induction Motors 200 HP and Smaller (NEMA) Hydraulic Starting Pump Driver Hydraulic Pump
            25744-200-MXD-16-A1611   00A   CoP Level III Confidential - Special Purpose Coupling - API 671 4th Edition - ISO 10441-2007 - USC Units for Special Purpose Coupling (GT-LP) - Methane Refrigeration Compressors
            25744-200-MXD-16-B1611   00A   CoP Level III Confidential - Special Purpose Coupling - API 671 4th Edition - ISO 10441-2007 - USC Units for Special Purpose Coupling (LP-MP) - Methane Refrigeration Compressors
            25744-200-MXD-16-C1611   00A   CoP Level III Confidential - Special Purpose Coupling - API 671 4th Edition - ISO 10441-2007 - USC Units for Special Purpose Coupling (MP-HP) - Methane Refrigeration Compressors
        4.8.4   Process Data Sheets (Confidential) (Refer to confidential FEED Deliverables Volume 4)      

 

A-124


Execution Version

 

Volume

/ Book

 

Section

 

Section

Title or

Sub-Sec

 

Sub Title

 

SubSub
Section

 

SubSub
Title

 

Document Number

 

Rev

 

Description

            25744-200-MCA-1116-01611   000   CoP Level III Confidential - Methane Compressors
            25744-200-MEA-1116-01605   000   CoP Level III Confidential - Brazed Aluminum Heat Exchanger Specification Sheet Core In Shell Type - Methane Economizer
            25744-200-MEA-1116-01606   000   CoP Level III Confidential - Brazed Aluminum Heat Exchanger Specification Sheet Core In Shell Type - Interstage Methane Economizer
            25744-200-MEA-1116-01611   000   CoP Level III Confidential - Process Data Sheet Air Cooled Heat Exchanger - L.S. Methane Discharge Coolers
            25744-200-MEA-1116-01612   000   CoP Level III Confidential - Process Data Sheet Air Cooled Heat Exchanger - I.S. Methane Discharge Coolers
            25744-200-MEA-1116-01613   000   CoP Level III Confidential - Process Data Sheet Air Cooled Heat Exchanger - H.S. Methane Discharge Coolers
            25744-200-MEA-1116-01615   000   CoP Level III Confidential - Process Data Sheet Air Cooled Heat Exchanger - Methane Turbine - Compressor Oil Cooler
            25744-200-MVA-1116-01602   000   CoP Level III Confidential - Vessel Specification Sheet - H.S. Flash Drum
            25744-200-MVA-1116-01603   000   CoP Level III Confidential - Vessel Specification Sheet - I.S. Flash Drum
            25744-200-MVA-1116-01604   000   CoP Level III Confidential - Vessel Specification Sheet - L.S. Flash Drum
    4.9   *** HEAVIES REMOVAL & NGL RECOVERY (CONFIDENTIAL) (Refer to confidential FEED Deliverables Volume 4)          

 

A-125


Execution Version

 

Volume

/ Book

 

Section

 

Section

Title or

Sub-Sec

 

Sub Title

 

SubSub
Section

 

SubSub Title

 

Document Number

 

Rev

 

Description

        4.9.1   Process Flow Diagrams (Confidential) (Refer to confidential FEED Deliverables Volume 4)      
            25744-200-M5-1117-00001   000   CoP Level III Confidential - Process Flow Diagram - Heavies Removal - NGL Recovery
        4.9.2   P&I Diagrams and Line Designation Tables (Confidential)      
            25744-200-M6-1117-00001   00C   CoP Level III Confidential - P and ID Heavies Removal Column and Reboiler
            25744-200-M6-1117-00002   00C   CoP Level III Confidential - P and ID Heavies Removal Column Reflux Pumps
            25744-200-M6-1117-00003   00C   CoP Level III Confidential - P and ID Debutanizer Feed Heater
            25744-200-M6-1117-00004   00C   CoP Level III Confidential - P and ID Debutanizer 11V-1702
            25744-200-M6-1117-00005   00C   CoP Level III Confidential - P and ID Debutanizer Overhead Cooler and Reflux Drum
            25744-200-M6-1117-00006   00C   CoP Level III Confidential - P and ID LPG and Debutanizer Reflux Pumps

 

A-126


Execution Version

 

Volume

/ Book

 

Section

 

Section

Title or

Sub-Sec

 

Sub Title

 

SubSub
Section

 

SubSub Title

 

Document Number

 

Rev

 

Description

            25744-200-M6-1117-00007   00C   CoP Level III Confidential - P and ID HRC Reflux Pump Minimum Flow
            25744-200-M6D-1117-00001   00C   CoP Level III Confidential - Line Designation Table 3 Pgs
            25744-200-M6D-1117-00002   00C   CoP Level III Confidential - Line Designation Table 4 Pgs
            25744-200-M6D-1117-00003   00C   CoP Level III Confidential - Line Designation Table 2 Pgs
            25744-200-M6D-1117-00004   00C   CoP Level III Confidential - Line Designation Table 3 Pgs
            25744-200-M6D-1117-00005   00C   CoP Level III Confidential - Line Designation Table 3 Pgs
            25744-200-M6D-1117-00006   00C   CoP Level III Confidential - Line Designation Table 3 Pgs
            25744-200-M6D-1117-00007   00C   CoP Level III Confidential - Line Designation Table 3 Pgs
        4.9.3   Equipment Data Sheets (Confidential) (Refer to confidential FEED Deliverables Volume 4)      
            25744-200-MED-17-E1701   00A   CoP Level III Confidential - Heat Exchanger - Air Cooled - Debutanizer Reflux Condenser
            25744-200-MED-17-E1702   00A   CoP Level III Confidential - Shell and Tube Heat Exchanger Data Sheet for Debutanizer Reboiler
            25744-200-MED-17-E1704   00A   CoP Level III Confidential - Shell and Tube Heat Exchanger Data Sheet for Debutanizer Feed Heater
            25744-200-MED-17-E1705   00A   CoP Level III Confidential - Shell and Tube Heat Exchanger Data Sheet for Heavies Removal Column Reboiler

 

A-127


Execution Version

 

Volume

/ Book

 

Section

 

Section

Title or

Sub-Sec

 

Sub Title

 

SubSub
Section

 

SubSub
Title

 

Document Number

 

Rev

 

Description

            25744-200-MPD-17-P1701   00A   CoP Level III Confidential - Debutanizer Reflux Pumps
            25744-200-MPD-17-P1702   00A   CoP Level III Confidential - Heavies Removal Column Reflux Pumps
            25744-200-MPD-17-P1703   00A   CoP Level III Confidential - HRC Heavies Reflux Pumps
            25744-200-MUD-17-E1701   00A   CoP Level III Confidential - Debutanizer Reflux Condenser Motor Data Sheet Low Voltage Squirrel Cage Induction Motors 200 HP and Smaller (NEMA) - Debutanizer Reflux Condenser Motor
            25744-200-MUD-17-P1701   00A   CoP Level III Confidential - Data Sheet for Low Voltage Squirrel Cage Induction Motors 200 HP and Smaller (NEMA) for Debutanizer Reflux Pump Motors
            25744-200-MUD-17-P1702   00A   CoP Level III Confidential - Data Sheet for Low Voltage Squirrel Cage Induction Motors 200 HP and Smaller (NEMA) for Heavies Removal Column Reflux Pump Motor Heavies Removal Column Reflux Pump
            25744-200-MUD-17-P1703   00A   CoP Level III Confidential - Data Sheet Form for Low Voltage Squirrel Cage Induction Motors 200 HP and Smaller (NEMA) - HRC Heavies Reflux Pump Motors
            25744-200-MVD-17-V1701   00A   CoP Level III Confidential - Mechanical Data Sheet Heavies Removal Column for Stainless Steel Vessels - Proprietary Heavies Removal Column
            25744-200-MVD-17-V1702   00A   CoP Level III Confidential - Mechanical Data Sheet Debutanizer for Stainless Steel Vessels - Proprietary Debutanizer
            25744-200-MVD-17-V1703   00A   CoP Level III Confidential - Mechanical Data Sheet Debutanizer Reflux Drum for Stainless Steel Vessels - Proprietary Debutanizer Reflux Drum

 

A-128


Execution Version

 

Volume

/ Book

 

Section

 

Section

Title or

Sub-Sec

 

Sub Title

 

SubSub
Section

 

SubSub Title

 

Document Number

 

Rev

 

Description

            25744-200-MVD-17-V1705   00A   CoP Level III Confidential - Mechanical Data Sheet HRC Heavies Reflux Drum for Stainless Steel Vessels - Proprietary HRC Heavies Reflux Drum
        4.9.4   Process Data Sheets (Confidential) (Refer to confidential FEED Deliverables Volume 4)      
            25744-200-MEA-1117-01701   000   CoP Level III Confidential - Process Data Sheet Air Cooled Heat Exchanger - Heavies Removal - NGL Recovery
            25744-200-MEA-1117-01702   000   CoP Level III Confidential - Process Data Sheet Heat Exchanger Specification Sheet - Debutanizer Reboiler
            25744-200-MEA-1117-01704   000   CoP Level III Confidential - Process Data Sheet Heat Exchanger Specification Sheet - Debutanizer Feed Heater
            25744-200-MEA-1117-01705   000   CoP Level III Confidential - Process Data Sheet Heat Exchanger Specification Sheet - Heavies Removal Column Reboiler
            25744-200-MVA-1117-01701   000   CoP Level III Confidential - Column Specification Sheet - Heavies Removal Column
            25744-200-MVA-1117-01702   000   CoP Level III Confidential - Column Specification Sheet - Debutanizer
            25744-200-MVA-1117-01703   000   CoP Level III Confidential - Vessel Specification Sheet - Debutanizer Reflux Drum
            25744-200-MVA-1117-01705   000   CoP Level III Confidential - Vessel Specification Sheet - HRC Heavies Reflux Drum - Mist Eliminator

 

A-129


Execution Version

 

Volume

/ Book

 

Section

 

Section

Title or

Sub-Sec

 

Sub Title

 

SubSub
Section

 

SubSub Title

 

Document Number

 

Rev

 

Description

    4.10   UNIT 18 - CONDENSATE STABILIZATION          
        4.10.1   Process Flow Diagrams      
            25744-200-M5-1118-00001   000   Process Flow Diagram - Condensate Stabilization
        4.10.2   P&I Diagrams and Line Designation Tables      
            25744-200-M6-1118-00001   00C   P and ID - Condensate Stabilizer
            25744-200-M6-1118-00002   00C   P and ID - Stabilizer Bottoms
            25744-200-M6-1118-00003   00C   P and ID - Stabilizer Condenser and Reflux Drum
            25744-200-M6-1118-00004   00C   P and ID - Stabilizer Reflux and Pentanes Charge Pumps
            25744-200-M6D-1118-00001   00C   Line Designation Table
            25744-200-M6D-1118-00002   00C   Line Designation Table
            25744-200-M6D-1118-00003   00C   Line Designation Table
            25744-200-M6D-1118-00004   00C   Line Designation Table
        4.10.3   Equipment Data Sheets      
            25744-200-MED-18-E1810   00A   Heat Exchanger - Air Cooled - Stabilizer Condenser

 

A-130


Execution Version

 

Volume

/ Book

 

Section

 

Section

Title or

Sub-Sec

 

Sub Title

 

SubSub
Section

 

SubSub
Title

 

Document Number

 

Rev

 

Description

            25744-200-MED-18-E1819   00A   Shell and Tube Heat Exchanger Data Sheet for Stabilizer Reboiler
            25744-200-MED-18-E1828   00A   Heat Exchanger - Air Cooled - Condensate Cooler
            25744-200-MPD-18-P1802   00A   Stabilizer Reflux Pumps
            25744-200-MPD-18-P1803   00A   Pentanes Charge Pumps
            25744-200-MUD-18-E1810   00A   Stabilizer Condenser Motor Data Sheet Low Voltage Squirrel Cage Induction Motors 200 HP and Smaller (NEMA) - Stabilizer Condenser Motor
            25744-200-MUD-18-E1828   00A   Stabilizer Condenser Motor Data Sheet Low Voltage Squirrel Cage Induction Motors 200 HP and Smaller (NEMA) - Condensate Cooler Motor
            25744-200-MUD-18-P1802   00A   Data Sheet Form for Low Voltage Squirrel Cage Induction Motors 200 HP and Smaller (NEMA)
            25744-200-MUD-18-P1803   00A   Data Sheet Form for Low Voltage Squirrel Cage Induction Motors 200 HP and Smaller (NEMA) - Pentanes Charge Pump Motors
            25744-200-MVD-18-V1810   00A   Mechanical Data Sheet Columns and Vessels (Carbon Steel) - Non Proprietary for Condensate Stabilizer
            25744-200-MVD-18-V1811   00A   Mechanical Data Sheet Columns and Vessels (Carbon Steel) - Non Proprietary for Stabilizer Reflux Drum
            25744-200-MVD-18-V1812   00A   Mechanical Data Sheet Columns and Vessels (Carbon Steel) - Non Proprietary for Stabilizer Feed Drum
        4.10.4   Process Data Sheets      
            25744-200-MEA-1118-01810   000   Process Data Sheet Air Cooled Heat Exchanger - Heavies Removal-NGL Recovery

 

A-131


Execution Version

 

Volume

/ Book

 

Section

 

Section

Title or

Sub-Sec

 

Sub Title

 

SubSub
Section

 

SubSub Title

 

Document Number

 

Rev

 

Description

            25744-200-MEA-1118-01819   000   Process Data Sheet Heat Exchanger Specification Sheet - Stabilizer Reboiler
            25744-200-MEA-1118-01828   000   Process Data Sheet Air Cooled Heat Exchanger - Heavies Removal-NGL Recovery
            25744-200-MVA-1118-01810   001   Column Specification Sheet - Condensate Stabilizer
            25744-200-MVA-1118-01811   000   Vessel Specification Sheet Stabilizer Reflux Drum
            25744-200-MVA-1118-01812   000   Vessel Specification Sheet - Stabilizer Feed Drum
    4.11   UNIT 19 - FLARES          
        4.11.1   Process Flow Diagrams      
            25744-200-M5-0019-00001   000   Utility Flow Diagram Flare - Blowdown System
            25744-200-M5-0019-00002   000   Utility Flow Diagram LNG Marine - Storage Flare
            25744-200-M5-1119-00003   000   Utility Flow Diagram Thermal Oxidizer
            25744-200-M5-1119-00004   000   Process Flow Diagram H2S Removal
        4.11.2   P&I Diagrams and Line Designation Tables      
            25744-200-M6-0019-00001   00C   P and ID - Scavenger Storage Tank and Pumps
            25744-200-M6-0019-00002   00C   P and ID - Scavenger Pumps Package Sht. 1 of 2

 

A-132


Execution Version

 

Volume

/ Book

 

Section

 

Section

Title or

Sub-Sec

 

Sub Title

 

SubSub
Section

 

SubSub
Title

 

Document Number

 

Rev

 

Description

            25744-200-M6-0019-00003   00C   P and ID - Scavenger Pumps Package Sht. 2 of 2
            25744-200-M6-0019-00004   00C   P and ID - H2S Removal Spent Chemical Tank
            25744-200-M6-0019-00005   00D   P and ID - Marine-Storage Flare
            25744-200-M6-0019-00011   00C   P and ID Wet Gas Flare K.O. Drums and Pumps - Sht 1
            25744-200-M6-0019-00012   00B   P and ID - Dry Gas Flare K.O. Drums and Vaporizers - Sht 2
            25744-200-M6-0019-00021   00C   P and ID - Wet Gas Flare K.O. Drums and Pumps - Sht 1
            25744-200-M6-0019-00022   00B   P and ID - Dry Gas Flare K.O. Drums and Vaporizers - Sht 2
            25744-200-M6-1119-00001   00C   P and ID - Wet Flare ISBL Collection - 1
            25744-200-M6-1119-00002   00C   P and ID - Wet Flare ISBL Collection - 2
            25744-200-M6-1119-00003   00D   P and ID - Dry Flare ISBL Collection - 1
            25744-200-M6-1119-00004   00C   P and ID - Dry Flare ISBL Collection - 2
            25744-200-M6-1119-00005   00D   P and ID - Cold Blowdown ISBL Collection
            25744-200-M6-1119-00006   00C   P and ID - Thermal Oxidizer K.O. Drum and Pump
            25744-200-M6-1119-00007   00C   P and ID - Thermal Oxidizer
            25744-200-M6-1119-00008   00C   P and ID - H2S Removal Skid - 1

 

A-133


Execution Version

 

Volume

/ Book

 

Section

 

Section

Title or

Sub-Sec

 

Sub Title

 

SubSub
Section

 

SubSub
Title

 

Document Number

 

Rev

 

Description

            25744-200-M6-1119-00009   00C   P and ID - H2S Removal Skid - 2
            25744-200-M6-1119-00010   00C   P and ID - H2S Removal Skid - 3
            25744-200-M6-1119-00011   00C   P and ID - Wet Flare ISBL Collection - 3
            25744-200-M6-1119-00012   00C   P and ID - Wet Flare Collection - 4
            25744-200-M6-1119-00013   00C   P and ID - Dry Flare ISBL Collection - 3
            25744-200-M6D-0019-00001   00C   Line Designation Table 2 pgs
            25744-200-M6D-0019-00002   00C   Line Designation Table
            25744-200-M6D-0019-00003   00C   Line Designation Table
            25744-200-M6D-0019-00004   00C   Line Designation Table
            25744-200-M6D-0019-00005   00D   Line Designation Table
            25744-200-M6D-0019-00011   00C   Line Designation Table 2 pgs
            25744-200-M6D-0019-00012   00B   Line Designation Table 2 pgs
            25744-200-M6D-0019-00021   00C   Line Designation Table 2 pgs
            25744-200-M6D-0019-00022   00B   Line Designation Table 2 pgs
            25744-200-M6D-1119-00001   00C   Line Designation Table

 

A-134


Execution Version

 

Volume

/ Book

 

Section

 

Section

Title or

Sub-Sec

 

Sub Title

 

SubSub
Section

 

SubSub
Title

 

Document Number

 

Rev

 

Description

            25744-200-M6D-1119-00002   00C   Line Designation Table
            25744-200-M6D-1119-00003   00D   Line Designation Table
            25744-200-M6D-1119-00004   00C   Line Designation Table
            25744-200-M6D-1119-00005   00D   Line Designation Table
            25744-200-M6D-1119-00006   00C   Line Designation Table 2 pgs
            25744-200-M6D-1119-00007   00C   Line Designation Table
            25744-200-M6D-1119-00008   00C   Line Designation Table
            25744-200-M6D-1119-00009   00C   Line Designation Table
            25744-200-M6D-1119-00010   00C   Line Designation Table
            25744-200-M6D-1119-00011   00C   Line Designation Table
            25744-200-M6D-1119-00012   00C   Line Designation Table
            25744-200-M6D-1119-00013   00C   Line Designation Table
        4.11.3   Equipment Data Sheets      
            25744-200-MBD-19-B1901   00A   Mechanical Data Sheet - Wet Gas Flares
            25744-200-MBD-19-B1902   00A   Mechanical Data Sheet - Dry Gas Flares

 

A-135


Execution Version

 

Volume

/ Book

 

Section

 

Section

Title or

Sub-Sec

 

Sub Title

 

SubSub
Section

 

SubSub
Title

 

Document Number

 

Rev

 

Description

            25744-200-MBD-19-B1903   00A   Mechanical Datasheet - Marine Flare
            25744-200-MED-19-E1901   00A   Ambient Vaporizer - Dry Gas Flare Vaporizer
            25744-200-MPD-19-P1901   00A   Wet Gas Flare KO Drum Pump
            25744-200-MPD-19-P1902   00A   Thermal Oxidizer KO Drum Pumps Pump Data Sheet
            25744-200-MPD-19-PK1901A   00A   Spent Scavenger Pump Data Sheet
            25744-200-MPD-19-PK1901B   00A   Scavenger Metering Pump Data Sheet - Scavenger Metering Pumps
            25744-200-MTD-19-S1901   00B   Mechanical Data Sheet Field Erected Tanks - Scavenger Storage Tank
            25744-200-MTD-19-S1902   00B   Mechanical Data Sheet Field Erected Tanks - Spent Scavenger Storage Tank
            25744-200-MUD-19-P1901   00A   Data Sheet Form for Low Voltage Squirrel Cage Induction Motors 200 HP and Smaller (NEMA) - Wet Gas Flare Knockout Drum Pump Motors
            25744-200-MUD-19-P1902   00A   Data Sheet Form for Low Voltage Squirrel Cage Induction Motors 200 HP and Smaller (NEMA) Thermal Oxidizer KO Drum Pumps
            25744-200-MUD-19-PK1901A   00A   Data Sheet Form for Low Voltage Squirrel Cage Induction Motors 200 HP and Smaller (NEMA) - Spent Scavenger Pump Motors
            25744-200-MUD-19-PK1901B   00A   Data Sheet Form for Low Voltage Squirrel Cage Induction Motors 200 HP and Smaller (NEMA) - Scavenger Metering Pump Motors
            25744-200-MUD-19-ZEAUX1   00A   Data Sheet for Low Voltage Squirrel Cage Induction Motors 200 HP and Smaller (NEMA)

 

A-136


Execution Version

 

Volume

/ Book

 

Section

 

Section

Title or

Sub-Sec

 

Sub Title

 

SubSub
Section

 

SubSub
Title

 

Document Number

 

Rev

 

Description

            25744-200-MUD-19-ZEAUX2   00A   Data Sheet for Low Voltage Squirrel Cage Induction Motors 200 HP and Smaller (NEMA)
            25744-200-MUD-19-ZEAUX3   00A   Data Sheet for Low Voltage Squirrel Cage Induction Motors 200 HP and Smaller (NEMA) - Motor for Master Hoisting Winch
            25744-200-MUD-19-ZEAUX4   00A   Data Sheet for Low Voltage Squirrel Cage Induction Motors 200 HP and Smaller (NEMA) - Motor for Slave Hoisting Winch
            25744-200-MUD-19-ZEAUX5   00A   Data Sheet for Low Voltage Squirrel Cage Induction Motors 200 HP and Smaller (NEMA) - Motor for Overturning Canting Winch
            25744-200-MVD-19-PK1901A   00A   Mechanical Data Sheet Sweetening Tower - Sweetening Tower
            25744-200-MVD-19-PK1901B   00A   Mechanical Data Sheet Waste Gas Separator - Waste Gas Separator
            25744-200-MVD-19-V1901   00A   Mechanical Data Sheet - Columns and Vessels (Carbon Steel) - Non Proprietary - Wet Gas Flare KO Drum
            25744-200-MVD-19-V1902   00A   Mechanical Data Sheet - Columns - Vessels - Stainless Steel - SS Clad - Dry Gas Flare K.O. Drum
            25744-200-MVD-19-V1904   00A   Mechanical Data Sheet for Columns-Vessels - Stainless Steel-SS Clad Thermal Oxidizer K.O. Drum
            25744-200-MXD-19-PK1901   00A   H2S Removal Package Mechanical Data Sheet - H2S Removal
        4.11.4   Process Data Sheets      
            25744-200-MBA-0019-01901   00B   Flare Stack Specification Sheet - Wet Gas Flare
            25744-200-MBA-0019-01902   00B   Flare Stack Specification Sheet - Dry Gas Flare

 

A-137


Execution Version

 

Volume

/ Book

 

Section

 

Section

Title or

Sub-Sec

 

Sub Title

 

SubSub
Section

 

SubSub Title

 

Document Number

 

Rev

 

Description

            25744-200-MBA-0019-01903   00D   Flare Stack Specification Sheet - Marine - Storage Flare
            25744-200-MBA-1119-01901   000   Incinerator Specification Sheet - Thermal Oxidizer
            25744-200-MEA-0019-01901   00A   Ambient Vaporizer Specification Sheet - Dry Gas Flare Vaporizer
            25744-200-MKA-1119-K0001   000   Process Specification for H2S Removal System
            25744-200-MTA-0019-01901   000   Tank Specification Sheet for Scavenger Storage Tank
            25744-200-MTA-0019-01902   000   Tank Specification Sheet for Spent Scavenger Storage Tank
            25744-200-MVA-0019-01901   00A   Vessel Specification Sheet - Wet Gas Flare KO Drum
            25744-200-MVA-0019-01902   00A   Vessel Specification Sheet - Dry Gas Flare KO Drum
    4.12   UNIT 20 - REFRIGERANT STORAGE          
        4.12.1   Utility Flow Diagrams      
            25744-200-M5-0020-00001   000   Utility Flow Diagram Refrigerant Storage
        4.12.2   P&I Diagrams and Line Designation Tables      
            25744-200-M6-0020-00001   00C   P and ID Ethylene Storage Drum 00V-2001A
            25744-200-M6-0020-00002   00C   P and ID Ethylene Storage Drum 00V-2001B

 

A-138


Execution Version

 

Volume

/ Book

 

Section

 

Section

Title or

Sub-Sec

 

Sub Title

 

SubSub
Section

 

SubSub
Title

 

Document Number

 

Rev

 

Description

            25744-200-M6-0020-00003   00C   P and ID Ethylene Storage Drum 00V-2001C
            25744-200-M6-0020-00004   00C   P and ID Propane Storage Drum 00V-2002A
            25744-200-M6-0020-00005   00C   P and ID Propane Storage Drum 00V-2002B
            25744-200-M6-0020-00006   00C   P and ID Propane - Ethylene Unloading
            25744-200-M6-0020-00007   00C   P and ID Propane Make-Up Pump
            25744-200-M6D-0020-00001   00C   Line Designation Table 2 pgs
            25744-200-M6D-0020-00002   00C   Line Designation Table
            25744-200-M6D-0020-00003   00C   Line Designation Table
            25744-200-M6D-0020-00004   00C   Line Designation Table
            25744-200-M6D-0020-00005   00C   Line Designation Table
            25744-200-M6D-0020-00006   00C   Line Designation Table 2 pgs
            25744-200-M6D-0020-00007   00C   Line Designation Table
        4.12.3   Equipment Data Sheets      
            25744-200-MBD-20-A4039   00A   Ethylene Refrigerant Storage Shelter Radiant Panels - Refrigerant Storage Shelter
            25744-200-MBD-20-A4040   00A   Propane Refrigerant Storage Shelter Radiant Panels - Refrigerant Storage Shelter

 

A-139


Execution Version

 

Volume

/ Book

 

Section

 

Section

Title or

Sub-Sec

 

Sub Title

 

SubSub
Section

 

SubSub Title

 

Document Number

 

Rev

 

Description

            25744-200-MED-20-E2001   00A   Ambient Vaporizer - Pressure Building Coil
            25744-200-MPD-20-P2002   00A   Propane Make-Up Pump
            25744-200-MUD-20-P2002   00A   Data Sheet Form for Low Voltage Squirrel Cage Induction Motors 200 HP and Smaller (NEMA) - Propane Make-Up Pump Motor
            25744-200-MVD-20-V2001   00A   Mechanical Data Sheet - Ethylene Storage Drums
            25744-200-MVD-20-V2002   00A   Mechanical Data Sheet - Columns and Vessels (Carbon Steel) - Non Proprietary - Propane Storage Drum
        4.12.4   Process Data Sheets      
            25744-200-MEA-0020-02001   000   Process Data Sheet Air Cooled Heat Exchanger for Pressure Building Coil
            25744-200-MVA-0020-02001   000   Vessel Specification Sheet for Ethylene Storage Drums
            25744-200-MVA-0020-02002   000   Vessel Specification Sheet for Propane Storage Drums
VOLUME 8                
    4.13   UNIT 21 - GASOLINE AND DIESEL STORAGE          
        4.13.1   P&I Diagrams and Line Designation Tables      
            25744-200-M6-0021-00001   00C   P and ID Gasoline and Diesel Storage

 

A-140


Execution Version

 

Volume

/ Book

 

Section

 

Section

Title or

Sub-Sec

 

Sub Title

 

SubSub
Section

 

SubSub Title

 

Document Number

 

Rev

 

Description

    4.14   UNIT 22 - FUEL GAS SYSTEM          
        4.14.1   Utility Flow Diagrams      
            25744-200-M5-1122-00001   000   Utility Flow Diagram - Fuel Gas System
            25744-200-M5-1122-00002   000   Utility Flow Diagram - Fuel Gas System
        4.14.2   P&I Diagrams and Line Designation Tables      
            25744-200-M6-1122-00001   00C   P and ID - Fuel Gas Heater
            25744-200-M6-1122-00002   00C   P and ID - HP Fuel Gas KO Drum
            25744-200-M6-1122-00003   00C   P and ID - HP Fuel Gas Distribution
            25744-200-M6-1122-00004   00C   P and ID - LP Fuel Gas System
            25744-200-M6-1122-00005   00C   P and ID - Defrost Gas Distribution
            25744-200-M6-1122-00006   00C   P and ID - Start-Up Fuel Gas Electrical Heater
            25744-200-M6D-1122-00001   00C   Line Designation Table
            25744-200-M6D-1122-00002   00C   Line Designation Table
            25744-200-M6D-1122-00003   00C   Line Designation Table

 

A-141


Execution Version

 

Volume

/ Book

 

Section

 

Section

Title or

Sub-Sec

 

Sub Title

 

SubSub
Section

 

SubSub
Title

 

Document Number

 

Rev

 

Description

            25744-200-M6D-1122-00004   00C   Line Designation Table
            25744-200-M6D-1122-00005   00C   Line Designation Table
            25744-200-M6D-1122-00006   00C   Line Designation Table
        4.14.3   Equipment Data Sheets      
            25744-200-MED-22-E2201   00A   Shell and Tube Heat Exchanger Data Sheet for Fuel Gas Heater
            25744-200-MED-22-E2202   00A   Electric Heater Mechanical Data Sheet - Start-Up Fuel Gas Electrical Heater
            25744-200-MED-22-E2206   00A   Shell and Tube Heat Exchanger Data Sheet for Pentane Heater
            25744-200-MFD-22-F2211   00A   Mechanical Data Sheet for Coalescers - Compressor Turbine Fuel Gas Filter
            25744-200-MVD-22-V2201   00A   Mechanical Data Sheet Columns and Vessels (Carbon Steel) - Non Proprietary for HP Fuel Gas K.O. Drum
            25744-200-MVD-22-V2202   00A   Mechanical Data Sheet Columns and Vessels (Carbon Steel) - Non Proprietary for LP Fuel Gas K.O. Drum
        4.14.4   Process Data Sheets      
            25744-200-MEA-1122-02201   000   Process Data Sheet Heat Exchanger Specification Sheet - Fuel Gas System
            25744-200-MEA-1122-02202   000   Electric Heater Specification Sheet - Start-Up Fuel Gas Electrical Heater
            25744-200-MEA-1122-02206   000   Process Data Sheet Heat Exchanger Specification Sheet
            25744-200-MFA-1122-02211   000   Filter Specification Sheet - Compressor Turbine Fuel Gas Filter

 

A-142


Execution Version

 

Volume

/ Book

 

Section

 

Section

Title or

Sub-Sec

 

Sub Title

 

SubSub
Section

 

SubSub Title

 

Document Number

 

Rev

 

Description

            25744-200-MVA-1122-02201   000   Vessel Specification Sheet - HP Fuel Gas KO Drum
            25744-200-MVA-1122-02202   000   Vessel Specification Sheet - LP Fuel Gas KO Drum
    4.15   UNIT 23 - CONDENSATE STORAGE & SENDOUT          
        4.15.1   Process Flow Diagrams      
            25744-200-M5-0023-00001   00D   Process Flow Diagram Condensate Storage - Sendout
        4.15.2   P&I Diagrams and Line Designation Tables      
            25744-200-M6-0023-00001   00D   P and ID - Condensate Storage Tank and Pumps
            25744-200-M6-0023-00002   00C   P and ID - Condensate Metering Package
            25744-200-M6D-0023-00001   00D   Line Designation Table
            25744-200-M6D-0023-00002   00C   Line Designation Table
        4.15.3   Equipment Data Sheets      
            25744-200-MPD-23-P2301   00A   Condensate Discharge Pumps
            25744-200-MTD-23-S2301   00A   Mechanical Data Sheet Field Erected Storage Tanks - Condensate Storage Tank
            25744-200-MUD-23-P2301   00A   Data Sheet Form for Low Voltage Squirrel Cage Induction Motors 200 HP and Smaller (NEMA) - Condensate Pump Motors

 

A-143


Execution Version

 

Volume

/ Book

 

Section

 

Section

Title or

Sub-Sec

 

Sub Title

 

SubSub
Section

 

SubSub Title

 

Document Number

 

Rev

 

Description

        4.15.4   Process Data Sheets      
            25744-200-MTA-0023-02301   001   Tank Specification Sheet for Condensate Storage Tank
    4.16   UNIT 24 - LNG STORAGE AND BOG COMPRESSORS          
        4.16.1   Process Flow Diagrams      
            25744-400-M5-0024-00001   001   Process Flow Diagram - LNG Transfer and Storage
            25744-200-M5-0024-00002   000   Process Flow Diagram - Pipeline Gas Compressor
        4.16.2   P&I Diagrams and Line Designation Tables      
            25744-200-M6-0024-00001   00C   P and ID - BOG Compressor Suction-Discharge
            25744-200-M6-0024-00002   00D   P and ID - BOG Compressor 00C-2401A
            25744-200-M6-0024-00003   00D   P and ID - BOG Compressor 00C-2401B
            25744-200-M6-0024-00004   00D   P and ID - BOG Compressor 00C-2401C
            25744-200-M6-0024-00005   00D   P and ID - BOG Compressor 00C-2401D

 

A-144


Execution Version

 

Volume

/ Book

 

Section

 

Section

Title or

Sub-Sec

 

Sub Title

 

SubSub
Section

 

SubSub
Title

 

Document Number

 

Rev

 

Description

            25744-200-M6-0024-00006   00D   P and ID - BOG Compressor 00C-2401E
            25744-200-M6-0024-00009   00F   P and ID - LNG Storage Tank 00S-2401A Transfer Lines
            25744-200-M6-0024-00010   00G   P and ID - LNG Storage Tank 00S-2401A
            25744-200-M6-0024-00011   00F   P and ID - LNG Storage Tank 00S-2401A Intake Pumps - Sheet 1 of 2
            25744-200-M6-0024-00012   00F   P and ID - LNG Storage Tank 00S-2401A Intake Pumps - Sheet 2 of 2
            25744-200-M6-0024-00013   00E   P and ID - LNG Storage Tank 00S-2401A - Safety Relief Devices and Purge Layout
            25744-200-M6-0024-00014   00G   P and ID - LNG Storage Tank 00S-2401A Instrumentation
            25744-200-M6-0024-00015   00D   P and ID - LNG Storage Tank 00S-2401A Intake Pump - Cable Seal Blanket
            25744-400-M6-2024-00016   00A   P and ID - LNG Storage Tank 20S-2401B Transfer Lines
            25744-400-M6-2024-00017   00A   P and ID - LNG Storage Tank 20S-2401B
            25744-400-M6-2024-00018   00A   P and ID - LNG Storage Tank 20S-2401B Intank Pumps - Sheet 1 of 2
            25744-400-M6-2024-00019   00A   P and ID - LNG Storage Tank 20S-2401B Intank Pumps - Sheet 2 of 2
            25744-400-M6-2024-00020   00A   P and ID - LNG Storage Tank 20S-2401B - Safety Relief Devices and Purge Layout
            25744-400-M6-2024-00021   00A   P and ID - LNG Storage Tank 20S-2401B Instrumentation
            25744-400-M6-2024-00022   00A   P and ID - LNG Storage Tank 20S-2401B Intank Pump - Cable Seal Blanket

 

A-145


Execution Version

 

Volume

/ Book

 

Section

 

Section

Title or

Sub-Sec

 

Sub Title

 

SubSub
Section

 

SubSub
Title

 

Document Number

 

Rev

 

Description

            25744-200-M6-0024-00023   00E   P and ID - LNG Storage Tank 00S-2401C Transfer Lines
            25744-200-M6-0024-00024   00G   P and ID - LNG Storage Tank 00S-2401C
            25744-200-M6-0024-00025   00E   P and ID - LNG Storage Tank 00S-2401C Intank Pumps - Sheet 1 of 2
            25744-200-M6-0024-00026   00E   P and ID - LNG Storage Tank 00S-2401C Intank Pumps - Sheet 2 of 2
            25744-200-M6-0024-00027   00E   P and ID - LNG Storage Tank 00S-2401C - Safety Relief Devices and Purge Layout
            25744-200-M6-0024-00028   00F   P and ID - LNG Storage Tank 00S-2401C Instrumentation
            25744-200-M6-0024-00029   00D   P and ID - LNG Storage Tank 00S-2401C Intank Pump - Cable Seal Blanket
            25744-200-M6-0024-00031   00D   P and ID - West Jetty LNG Transfer and Cooldown Lines
            25744-200-M6-0024-00032   00D   P and ID - West Jetty LNG Transfer Arm 00K-2401A
            25744-200-M6-0024-00033   00D   P and ID - West Jetty LNG Transfer Arm (Hybrid) 00K-2401B
            25744-200-M6-0024-00034   00D   P and ID - West Jetty Vapor Arm 00K-2401C
            25744-200-M6-0024-00035   00D   P and ID - West Jetty LNG Transfer Arm 00K-2401D
            25744-400-M6-2024-00036   00A   P and ID - East Jetty LNG Transfer and Cooldown Lines
            25744-400-M6-2024-00037   00A   P and ID - East Jetty LNG Transfer Arm 20K-2402A
            25744-400-M6-2024-00038   00A   P and ID - East Jetty LNG Transfer Arm (Hybrid) 20K-2402B

 

A-146


Execution Version

 

Volume

/ Book

 

Section

 

Section

Title or

Sub-Sec

 

Sub Title

 

SubSub
Section

 

SubSub
Title

 

Document Number

 

Rev

 

Description

            25744-400-M6-2024-00039   00A   P and ID - East Jetty Vapor Arm 20K-2402C
            25744-400-M6-2024-00040   00A   P and ID - East Jetty LNG Transfer Arm 20K-2402D
            25744-200-M6D-0024-00023   00E   Line Designation Table
            25744-200-M6D-0024-00024   00G   Line Designation Table
            25744-200-M6D-0024-00025   00E   Line Designation Table
            25744-200-M6D-0024-00026   00E   Line Designation Table
            25744-200-M6D-0024-00027   00E   Line Designation Table
            25744-200-M6D-0024-00028   00F   Line Designation Table
            25744-200-M6D-0024-00029   00D   Line Designation Table
            25744-200-M6D-0024-00031   00D   Line Designation Table
            25744-200-M6D-0024-00032   00D   Line Designation Table
            25744-200-M6D-0024-00033   00D   Line Designation Table
            25744-200-M6D-0024-00034   00D   Line Designation Table
            25744-200-M6D-0024-00035   00D   Line Designation Table
            25744-400-M6D-2024-00036   00A   Line Designation Table

 

A-147


Execution Version

 

Volume

/ Book

 

Section

 

Section

Title or

Sub-Sec

 

Sub Title

 

SubSub
Section

 

SubSub
Title

 

Document Number

 

Rev

 

Description

            25744-400-M6D-2024-00037   00A   Line Designation Table
            25744-400-M6D-2024-00038   00A   Line Designation Table
            25744-400-M6D-2024-00039   00A   Line Designation Table
            25744-400-M6D-2024-00040   00A   Line Designation Table
            25744-200-M6D-0024-00041   00B   Line Designation Table
            25744-200-M6D-0024-00042   00B   Line Designation Table
            25744-200-M6D-0024-00043   00B   Line Designation Table
            25744-200-M6D-0024-00044   00B   Line Designation Table
VOLUME 9                
        4.16.3   Equipment Data Sheets      
            25744-200-MCD-00C-2402   00A   Reciprocating Compressor - Pipeline Gas Compressor
            25744-200-MCD-24-C2401   00A   Boil Off Gas Compressor Data Sheet - Boil Off Gas Compressor
            25744-200-MCD-24-L2401   00A   Special Purpose Coupling - API 671 - 4th Edition-ISO 10441-2007-USC Units - Boil Off Gas Compressor Lube Oil System
            25744-200-MED-00C-2402-E01   00A   Mechanical Data Sheet - Air Cooled Heat Exchanger - Pipeline Gas Compressor - 1st Stage Intercooler

 

A-148


Execution Version

 

Volume

/ Book

 

Section

 

Section
Title or
Sub-Sec

 

Sub
Title

 

SubSub
Section

 

SubSub
Title

 

Document Number

 

Rev

 

Description

            25744-200-MED-00C-2402-E02   00A   Mechanical Data Sheet - Air Cooled Heat Exchanger - Pipeline Gas Compressor - 2nd Stage Intercooler
            25744-200-MED-00C-2402-E03   00A   Mechanical Data Sheet - Air Cooled Heat Exchanger - Pipeline Gas Compressor - Aftercooler
            25744-200-MED-00C-2402-X02-E01   00A   Mechanical Data Sheet - Air Cooled Heat Exchanger - Pipeline Gas Compressor - Lube Oil Cooler
            25744-200-MED-00-E2401   00A   Electric Heater Mechanical Data Sheet - Boil Off Gas Electric Heater
            25744-200-MFD-24-F2401   00A   Mechanical Data Sheet - Compressor Discharger Filter Coalescer
            25744-200-MFD-24-F2402   00A   Mechanical Data Sheet - Natural Gas Filter Coalescer
            25744-200-MPD-24-P2401   00B   LNG Cryogenic Pump for LNG In Tank Pumps
            25744-200-MPD-24-P24L1   00B   LNG Cryogenic Pump for LNG In Tank Pumps
            25744-200-MTD-1T24-F0001   00J   Mechanical Data Sheet - LNG Storage Tanks
            25744-200-MTD-1T24-F0002   00A   LNG Storage Tanks - Seismic Wave Calculation
            25744-200-MUD-24-AUX1   00A   Data Sheet Form for Low Voltage Squirrel Cage Induction Motors 200 HP and Smaller (NEMA) - Auxiliary Lube Oil Pump Drivers
            25744-200-MUD-24-AUX2   00A   Data Sheet Form for Low Voltage Squirrel Cage Induction Motors 200 HP and Smaller (NEMA) - Lube Oil Cooler Fan Drivers
            25744-200-MUD-24-C2401   00A   Data Sheet for Induction Motors 250 HP and Larger -Boil Off Gas Compressor Electric Motor Driver

 

A-149


Execution Version

 

Volume

/ Book

 

Section

 

Section
Title or
Sub-Sec

 

Sub Title

 

SubSub
Section

 

SubSub
Title

 

Document Number

 

Rev

 

Description

            25744-200-MUD-24-P2401   00B   Data Sheet for Medium Voltage Squirrel Cage Induction Motors 250 HP and Larger for LNG In Tank Pumps Motor LNG In Tank Pumps
            25744-200-MUD-24-P24L1   00B   Data Sheet for Medium Voltage Squirrel Cage Induction Motors 250 HP and Larger for LNG In Tank Pumps Motor LNG In Tank Pumps
            25744-200-MVD-24-V2401   00A   Mechanical Data Sheet - Lube Oil Collection Drum
            25744-200-MXD-24-C2401   00A   Special Purpose Coupling - API 671 - 4th Edition-ISO 10441-2007-USC Units - Boil Off Gas Compressor Coupling
        4.16.4   Process Data Sheets      
            25744-200-MCA-0024-02401   000   Centrifugal Compressor Specification Sheet for Boil Off Gas Compressors
            25744-200-MCA-0024-02402   003   Compressor Specification Sheet - Pipeline Gas Compressor
            25744-200-MEA-0024-02401   000   Electric Heater Specification Sheet - Boil Off Gas Electrical Heater
            25744-200-MFA-0024-02401   000   Filter Specification Sheet - Compressor Discharge Filter Coalescer
            25744-200-MFA-0024-02402   000   Filter Specification Sheet - Natural Gas Filter Coalescer
            25744-200-MTA-0024-02401   000   Tank Specification Sheet for LNG Storage Tanks
            25744-200-MVA-0024-02401   000   Vessel Specification Sheet - Lube Oil Collection Drum
    4.17   UNIT 29 - EFFLUENT TREATMENT          
        4.17.1   Process Flow Diagrams      

 

A-150


Execution Version

 

Volume

/ Book

 

Section

 

Section
Title or
Sub-Sec

 

Sub
Title

 

SubSub
Section

 

SubSub Title

 

Document Number

 

Rev

 

Description

            25744-200-M5-0029-00001   001   Utility Flow Diagram - Waste Water Collection
            25744-400-M5-0029-00002   00F   Utility Flow Diagram - Sewage Collection
        4.17.2   P&I Diagrams and Line Designation Tables      
            25744-200-M6-0029-00001   00C   P and ID - Waste Water Tank
            25744-200-M6-0029-00002   00D   P and ID - OSBL Impoundment Basin
            25744-200-M6-0029-00003   00D   P and ID - Jetty Impoundment Basin
            25744-200-M6-0029-00004   00D   P and ID - Sanitary Lift Stations - Sheet 1 of 2
            25744-400-M6-0029-00005   00E   P and ID - Sanitary Lift Stations - Sheet 2 of 2
            25744-200-M6-1129-00001   00C   P and ID - Compressor Area Collection Tank
            25744-200-M6D-0029-00001   00C   Line Designation Table
            25744-200-M6D-0029-00002   00D   Line Designation Table
            25744-200-M6D-0029-00003   00D   Line Designation Table
            25744-200-M6D-0029-00004   00D   Line Designation Table
            25744-400-M6D-0029-00005   00E   Line Designation Table
            25744-200-M6D-1129-00001   00C   Line Designation Table

 

A-151


Execution Version

 

Volume

/ Book

 

Section

 

Section
Title or
Sub-Sec

 

Sub
Title

 

SubSub
Section

 

SubSub
Title

 

Document Number

 

Rev

 

Description

        4.17.3   Equipment Data Sheets      
            25744-200-MPD-29-P2908   00A   OSBL Impoundment Basin Pumps Data Sheet
            25744-200-MPD-29-P2909   00A   OSBL Impoundment Basin Sump Pump Data Sheet
            25744-200-MPD-29-P2918   00A   Jetty Impoundment Basin Pumps Data Sheet
            25744-200-MPD-29-P2919   00A   Jetty Impoundment Basin Sump Pump Data Sheet
            25744-200-MTD-29-S2902   00A   Compressor Area Collection Tank Mechanical Data Sheet Shop Fabricated Tanks - Compressor Area Collection Tank
            25744-200-MTD-29-S2912   00A   Mechanical Data Sheet - Field Erected Storage Tanks - Waste Water Tank
            25744-200-MUD-29-P2908   00A   Data Sheet Form for Low Voltage Squirrel Cage Induction Motors 200 HP and Smaller (NEMA) - OSBL Impoundment Basin
            25744-200-MUD-29-P2909   00A   Data Sheet Form for Low Voltage Squirrel Cage Induction Motors 200 HP and Smaller (NEMA) - OSBL Impoundment Basin Sump
            25744-200-MUD-29-P2918   00A   Data Sheet Form for Low Voltage Squirrel Cage Induction Motors 200 HP and Smaller (NEMA) - Jetty Impoundment Basin Pump Motor Data Sheet
            25744-200-MUD-29-P2919   00A   Data Sheet Form for Low Voltage Squirrel Cage Induction Motors 200 HP and Smaller (NEMA) - Jetty Impoundment Basin Sump
        4.17.4   Process Data Sheets      

 

A-152


Execution Version

 

Volume

/ Book

 

Section

 

Section
Title or
Sub-Sec

 

Sub Title

 

SubSub
Section

 

SubSub Title

 

Document Number

 

Rev

 

Description

            25744-200-MTA-0029-02902   00D   Compressor Area Collection Tank
            25744-200-MTA-0029-02912   00B   Waste Water Tank Datasheet
            25744-200-MWA-0029-02907   00C   Warehouse Building Sanitary Lift Station Datasheet
            25744-200-MWA-0029-02920   00C   Guard House Bldg Sanitary Lift Station Datasheet
            25744-200-MWA-0029-02921   00C   O and M and Control Bldg Sanitary Lift Station Datasheet
            25744-200-MWA-0029-02922   00C   Maintenance Building Sanitary Lift Station Datasheet
            25744-200-MWA-0029-02923   00C   West Jetty Marine Bldg Sanitary Lift Station Datasheet
            25744-200-MWA-0029-02924   00C   East Jetty Marine Bldg Sanitary Lift Station Datasheet
            25744-200-MWA-0029-02925   00C   Outside Operator Building Sanitary Lift Station Datasheet
    4.18   UNIT 31 - POWER GENERATION          
        4.18.1   Utility Flow Diagrams      
            25744-200-M5-0031-00001   000   Utility Flow Diagram Standby Power Generation
        4.18.2   P&I Diagrams and Line Designation Tables      
            25744-200-M6-0031-00001   00C   P and ID Standby Diesel Generator 00K-3101A

 

A-153


Execution Version

 

Volume

/ Book

 

Section

 

Section
Title or
Sub-Sec

 

Sub Title

 

SubSub
Section

 

SubSub Title

 

Document Number

 

Rev

 

Description

            25744-200-M6-0031-00002   00C   P and ID Standby Diesel Generator 00K-3101B
            25744-200-M6-0031-00003   00C   P and ID Standby Diesel Generator 00K-3101C
            25744-200-M6-0031-00004   00C   P and ID Standby Diesel Generator 00K-3101D
            25744-200-M6D-0031-00004   00C   Line Designation Table
        4.18.3   Equipment Data Sheets      
            25744-200-MGD-31-K3102   00A   AC Generator Data Sheet - Standby Generator
            25744-200-MUD-31-K3102   00A   Engine Data Sheet - Standby Generator
    4.19   UNIT 33 - FIREWATER SYSTEM          
        4.19.1   Utility Flow Diagrams      
            25744-200-M5-0033-00001   000   Utility Flow Diagram Firewater System
        4.19.2   P&I Diagrams and Line Designation Tables      
            25744-200-M6-0033-00001   00F   P and ID - Fire Water Tank
            25744-200-M6-0033-00002   00E   P and ID - Fire Water Pump Station
            25744-200-M6-0033-00003   00E   P and ID - Firewater Distribution (OSBL) - 1

 

A-154


Execution Version

 

Volume

/ Book

 

Section

 

Section
Title or
Sub-Sec

 

Sub
Title

 

SubSub
Section

 

SubSub
Title

 

Document Number

 

Rev

 

Description

            25744-200-M6-0033-00004   00F   P and ID - Firewater Distribution (OSBL) - 2
            25744-200-M6-0033-00005   00E   P and ID - Firewater Distribution (OSBL) - 3
            25744-400-M6-0033-00006   00E   P and ID - Firewater Distribution (OSBL) - 4
            25744-200-M6-0033-00007   00E   P and ID - Firewater Distribution (OSBL) - 5
            25744-400-M6-0033-00008   00E   P and ID - Fire Water Distribution (OSBL) - Jetties
            25744-200-M6-0033-00009   00D   P and ID - Fire Water Monitor Details
            25744-200-M6-1133-00001   00D   P and ID - Train 1 Fire Water Distribution
            25744-200-M6D-0033-00001   00F   Line Designation Table
            25744-200-M6D-0033-00002   00E   Line Designation Table
            25744-200-M6D-0033-00003   00E   Line Designation Table
            25744-200-M6D-0033-00004   00F   Line Designation Table
            25744-200-M6D-0033-00005   00E   Line Designation Table
            25744-400-M6D-0033-00006   00E   Line Designation Table
            25744-200-M6D-0033-00007   00E   Line Designation Table
            25744-400-M6D-0033-00008   00E   Line Designation Table

 

A-155


Execution Version

 

Volume

/ Book

 

Section

 

Section
Title or
Sub-Sec

 

Sub
Title

 

SubSub
Section

 

SubSub
Title

 

Document Number

 

Rev

 

Description

            25744-400-M6D-1134-00016   00A   Line Designation Table
            25744-400-M6D-1134-00017   00A   Line Designation Table
            25744-400-M6D-1134-00018   00A   Line Designation Table
            25744-400-M6D-1134-00019   00A   Line Designation Table
            25744-400-M6D-1134-00020   00A   Line Designation Table
            25744-400-M6D-1134-00021   00A   Line Designation Table
            25744-400-M6D-1134-00022   00A   Line Designation Table
            25744-400-M6D-1133-00001   00D   Line Designation Table
        4.19.3   Equipment Data Sheets      
            25744-200-MPD-00P-3301   00A   Fire Water Jockey Pump Data Sheet - Fire Water Jockey Pumps
            25744-200-MPD-00PK-3301   00A   Fire Water Pump Data Sheet - Fire Water Pumps
            25744-200-MTD-33-S3301   00A   Mechanical Data Sheet - Field Erected Storage Tanks - Fire Water Tank
            25744-200-MUD-00PK-3301A-PED   00A   Data Sheet Form for Diesel Engine - FW Water Pump Diesel Engines
            25744-200-MUD-00PK-3301C-M01   00A   Data Sheet for Medium Voltage Squirrel Cage Induction Motors 250 HP and Larger - Fire Water Pump Motor
            25744-200-MUD-33-P3301   00A   Data Sheet Form for Low Voltage Squirrel Cage Induction Motors 200 HP and Smaller (NEMA) - FW Jockey Pump Motor

 

A-156


Execution Version

 

Volume

/ Book

 

Section

 

Section
Title or
Sub-Sec

 

Sub Title

 

SubSub
Section

 

SubSub Title

 

Document Number

 

Rev

 

Description

        4.19.4   Process Data Sheets      
            25744-200-MTA-0033-00001   00B   Process Data Sheet - Firewater Storage Tanks - Firewater Tank
    4.20   UNIT 34 - HOT OIL SYSTEM          
        4.20.1   Utility Flow Diagrams      
            25744-200-M5-1134-00001   000   Utility Flow Diagram Hot Oil System
        4.20.2   P&I Diagrams and Line Designation Tables      
            25744-200-M6-1134-00001   00C   P and ID - Hot Oil Surge Drum
            25744-200-M6-1134-00002   00C   P and ID - Hot Oil Pumps
            25744-200-M6-1134-00003   00C   P and ID - Waste Heat Recovery Unit 11WHR-3411
            25744-200-M6-1134-00004   00C   P and ID - Waste Heat Recovery Unit 11WHR-3421
            25744-200-M6-1134-00005   00C   P and ID - Hot Oil Distribution
            25744-200-M6-1134-00006   00C   P and ID - Hot Oil Sump
            25744-200-M6-1134-00007   00C   P and ID - Hot Oil WHRU on Thermal Oxidizer

 

A-157


Execution Version

 

Volume

/ Book

 

Section

 

Section
Title or
Sub-Sec

 

Sub
Title

 

SubSub
Section

 

SubSub
Title

 

Document Number

 

Rev

 

Description

            25744-200-M6-1134-00008   00A   P and ID - Hot Oil PSV Discharge Return Header
            25744-200-M6D-1134-00001   00C   Line Designation Table 2 pgs
            25744-200-M6D-1134-00002   00C   Line Designation Table 3 pgs
            25744-200-M6D-1134-00003   00C   Line Designation Table 2 pgs
            25744-200-M6D-1134-00004   00C   Line Designation Table 2 pgs
            25744-200-M6D-1134-00005   00C   Line Designation Table 3 pgs
            25744-200-M6D-1134-00006   00C   Line Designation Table 3 pgs
            25744-200-M6D-1134-00007   00C   Line Designation Table 2 pgs
            25744-200-M6D-1134-00008   00A   Line Designation Table
        4.20.3   Equipment Data Sheets      
            25744-200-MBD-34-B3411   00B   Waste Heat Recovery Unit for Hot Oil and Regen Gas Heating
            25744-200-MBD-34-B3412   00B   GT Exhaust Stack for Flue Gas
            25744-200-MED-34-E3401   00A   Heat Exchanger - Air Cooled - Hot Oil Trim Cooler
            25744-200-MPD-34-P3401   00A   Hot Oil Pumps Pump Data Sheet
            25744-200-MPD-34-P3403   00A   Hot Oil Sump Pumps Pump Data Sheet

 

A-158


Execution Version

 

Volume

/ Book

 

Section

 

Section
Title or
Sub-Sec

 

Sub
Title

 

SubSub
Section

 

SubSub
Title

 

Document Number

 

Rev

 

Description

            25744-200-MUD-34-E3401   00A   Hot Oil Trim Cooler Motor Data Sheet Low Voltage Squirrel Cage Induction Motors 200 HP and Smaller (NEMA) - Hot Oil Trim Cooler Motor
            25744-200-MUD-34-P3401   00A   Data Sheet for Medium Voltage Squirrel Cage Induction Motors 250 HP and Larger for Hot Oil Pump Motors Hot Oil Pumps
            25744-200-MUD-34-P3403   00A   Data Sheet Form for Low Voltage Squirrel Cage Induction Motors 200 HP and Smaller (NEMA) Hot Oil Sump Pump Motor
            25744-200-MVD-34-V3401   00A   Mechanical Data Sheet Columns and Vessels (Carbon Steel) - Non Proprietary for Hot Oil Surge Drum
            25744-200-MVD-34-V3402   00A   Mechanical Data Sheet Columns and Vessels (Carbon Steel) - Non Proprietary for Hot Oil Sump Drum
        4.20.4   Process Data Sheets      
            25744-200-MBA-1134-03411   000   Waste Heat Recovery Unit Specification Sheet - Waste Heat Recovery Unit
            25744-200-MEA-1134-03401   000   Process Data Sheet Air Cooled Heat Exchanger - Hot Oil System
            25744-200-MFA-1134-03401   000   Filter Specification Sheet for Hot Oil Filter
            25744-200-MFA-1134-03402   000   Filter Specification Sheet for Hot Oil Sump Filter
            25744-200-MVA-1134-03401   000   Vessel Specification Sheet for Hot Oil Surge Drum
            25744-200-MVA-1134-03402   000   Vessel Specification Sheet for Hot Oil Sump Drum
VOLUME 10                

 

A-159


Execution Version

 

Volume

/ Book

 

Section

 

Section
Title or
Sub-Sec

 

Sub Title

 

SubSub
Section

 

SubSub Title

 

Document Number

 

Rev

 

Description

    4.21   UNIT 35 - PLANT / INSTRUMENT AIR          
        4.21.1   Utility Flow Diagrams      
            25744-200-M5-0035-00001   000   Utility Flow Diagram - Plant - Instrument Air System
        4.21.2   P&I Diagrams and Line Designation Tables      
            25744-200-M6-0035-00001   00C   P and ID Air Compressor - Dryer Package
            25744-200-M6-0035-00002   00C   P and ID Air Receiver
            25744-200-M6-1135-00001   00C   P and ID - Instrument Air ISBL Distribution
            25744-200-M6-1135-00002   00C   P and ID - Plant Air ISBL Distribution - 1
            25744-200-M6-1135-00003   00C   P and ID - Plant Air ISBL Distribution - 2
            25744-200-M6D-0035-00001   00C   Line Designation Table 3 pgs
            25744-200-M6D-0035-00002   00C   Line Designation Table
            25744-200-M6D-1135-00001   00C   Line Designation Table
            25744-200-M6D-1135-00002   00C   Line Designation Table
            25744-200-M6D-1135-00003   00C   Line Designation Table

 

A-160


Execution Version

 

Volume

/ Book

 

Section

 

Section
Title or
Sub-Sec

 

Sub Title

 

SubSub
Section

 

SubSub
Title

 

Document Number

 

Rev

 

Description

        4.21.3   Equipment Data Sheets      
            25744-200-MUD-35-C3501   00A   Data Sheet for Medium Voltage Squirrel Cage Induction Motors 250 HP and Larger - Air Compressor Motor Driver
            25744-200-MVD-35-V3501   00A   Mechanical Data Sheet - Columns and Vessels (Carbon Steel) - Non Proprietary - Air Receiver
        4.21.4   Process Data Sheets      
            25744-200-MVA-0035-03501   000   Vessel Specification Sheet for Air Receiver
            25744-200-MXA-0035-03501   000   Packaged Unit Specification Sheet - Air Dryer Package
            25744-200-MXA-0035-03502   000   Packaged Unit Specification Sheet - Air Compressor Package
    4.22   UNIT 36 - WATER STORAGE / TREATMENT          
        4.22.1   Utility Flow Diagrams      
            25744-200-M5-0036-00001   00E   Utility Flow Diagram - Utility Water Supply System
            25744-200-M5-0036-00002   00E   Utility Flow Diagram - Enhanced Coagulation System
            25744-200-M5-0036-00003   00E   Utility Flow Diagram - Ultrafiltration System
            25744-200-M5-0036-00004   00C   Utility Flow Diagram - Reverse Osmosis System
            25744-200-M5-0036-00005   00C   Utility Flow Diagram - EDI System

 

A-161


Execution Version

 

Volume

/ Book

 

Section

 

Section
Title or
Sub-Sec

 

Sub
Title

 

SubSub
Section

 

SubSub Title

 

Document Number

 

Rev

 

Description

            25744-200-M5-0036-00006   00C   Utility Flow Diagram - Demineralized Water Distribution System
        4.22.2   P&I Diagrams and Line Designation Tables      
            25744-200-M6-0036-00001   00F   P and ID - RO System Water Storage Tank and Pumps
            25744-200-M6-0036-00002   00D   P and ID - Enhanced Coagulant Tanks and Pumps
            25744-200-M6-0036-00003   00D   P and ID - RO Multimedia Filters F-01-A-B-C and MMF Air Blowers
            25744-200-M6-0036-00004   00D   P and ID - RO Multimedia Filters F-01-D-E-F
            25744-200-M6-0036-00005   00D   P and ID - RO Multimedia Filters F-01-G-H-I
            25744-200-M6-0036-00006   00D   P and ID - Ultrafiltration Feed Tank - Pumps and MMF Backwash Pumps
            25744-200-M6-0036-00007   00D   P and ID - Ultrafiltrations Strainers - F-01-A-B-C
            25744-200-M6-0036-00008   00D   P and ID - Ultrafiltrations Units - UF-01-A-B-C
            25744-200-M6-0036-00009   00D   P and ID - Ultrafiltration Waste Neutralization - Tank and Pumps
            25744-200-M6-0036-00010   00D   P and ID - Ultrafiltration Permeate Tank - Pumps and Ultrafiltration Backwash Pumps
            25744-200-M6-0036-00011   00D   P and ID - RO Cartridge Filters and Feed Pumps
            25744-200-M6-0036-00012   00E   P and ID - 1st Pass RO Units

 

A-162


Execution Version

 

Volume

/ Book

 

Section

 

Section
Title or
Sub-Sec

 

Sub
Title

 

SubSub
Section

 

SubSub
Title

 

Document Number

 

Rev

 

Description

            25744-200-M6-0036-00013   00E   P and ID - Intermediate Storage Tank and Feed Pumps
            25744-200-M6-0036-00014   00E   P and ID - 2nd Pass RO Units
            25744-200-M6-0036-00015   00E   P and ID - Electro Deionization Units
            25744-200-M6-0036-00016   00E   P and ID - Demineralized Water Storage Tank and Pumps
            25744-200-M6-0036-00017   00D   P and ID - MMF Chemical Feed System
            25744-200-M6-0036-00018   00D   P and ID - Ultrafiltration Chemical Feed System
            25744-200-M6-0036-00019   00D   P and ID - RO-EDI Chemical Feed System
            25744-200-M6-0036-00020   00D   P and ID - Membrane Cleaning System
            25744-200-M6-0036-00021   00E   P and ID - Service Water Tank and Pumps
            25744-200-M6-0036-00022   00B   P and ID - Potable Water Storage Tank and Pumps
            25744-200-M6-0036-00023   00B   P and ID - Potable Water Chemical Treatment System
            25744-200-M6-0036-00024   00B   P and ID - Potable Water Filter and UV Package
            25744-200-M6-0036-00025   00C   P and ID - Filtered-RO Reject Lift Station and Pumps
            25744-200-M6-1136-00001   00C   P and ID - Potable Water ISBL Distribution
            25744-200-M6-1136-00002   00C   P and ID - Utility Water ISBL Distribution

 

A-163


Execution Version

 

Volume

/ Book

 

Section

 

Section
Title or
Sub-Sec

 

Sub
Title

 

SubSub
Section

 

SubSub
Title

 

Document Number

 

Rev

 

Description

            25744-200-M6-1136-00003   00C   P and ID - Demineralized Water ISBL Distribution
            25744-200-M6D-0036-00001   00F   Line Designation Table
            25744-200-M6D-0036-00002   00D   Line Designation Table
            25744-200-M6D-0036-00003   00D   Line Designation Table
            25744-200-M6D-0036-00004   00D   Line Designation Table
            25744-200-M6D-0036-00005   00D   Line Designation Table
            25744-200-M6D-0036-00006   00D   Line Designation Table
            25744-200-M6D-0036-00007   00D   Line Designation Table
            25744-200-M6D-0036-00008   00D   Line Designation Table
            25744-200-M6D-0036-00009   00D   Line Designation Table
            25744-200-M6D-0036-00010   00D   Line Designation Table
            25744-200-M6D-0036-00011   00D   Line Designation Table
            25744-200-M6D-0036-00012   00E   Line Designation Table
            25744-200-M6D-0036-00013   00E   Line Designation Table
            25744-200-M6D-0036-00014   00E   Line Designation Table

 

A-164


Execution Version

 

Volume

/ Book

 

Section

 

Section
Title or
Sub-Sec

 

Sub
Title

 

SubSub
Section

 

SubSub
Title

 

Document Number

 

Rev

 

Description

            25744-200-M6D-0036-00015   00E   Line Designation Table
            25744-200-M6D-0036-00016   00E   Line Designation Table
            25744-200-M6D-0036-00017   00D   Line Designation Table
            25744-200-M6D-0036-00018   00D   Line Designation Table
            25744-200-M6D-0036-00019   00D   Line Designation Table
            25744-200-M6D-0036-00020   00D   Line Designation Table
            25744-200-M6D-0036-00021   00E   Line Designation Table
            25744-200-M6D-0036-00022   00B   Line Designation Table
            25744-200-M6D-0036-00023   00B   Line Designation Table
            25744-200-M6D-0036-00024   00B   Line Designation Table
            25744-200-M6D-0036-00025   00C   Line Designation Table
            25744-200-M6D-1136-00001   00C   Line Designation Table
            25744-200-M6D-1136-00002   00C   Line Designation Table
            25744-200-M6D-1136-00003   00C   Line Designation Table
        4.22.3   Equipment Data Sheets      

 

A-165


Execution Version

 

Volume

/ Book

 

Section

 

Section
Title or
Sub-Sec

 

Sub
Title

 

SubSub
Section

 

SubSub
Title

 

Document Number

 

Rev

 

Description

            25744-200-MCD-36-C3601   00A   Mechanical Data Sheet - RO Multimedia Air Blower
            25744-200-MPD-36-P3601   00A   RO Water Feed Pumps Pump Data Sheet
            25744-200-MPD-36-P3602   00A   Filter-RO Reject L.S. Pump Data Sheet - Filter-RO Reject L.S. Pumps
            25744-200-MPD-36-P3603   00A   Demineralized Water Pumps
            25744-200-MPD-36-P3604   00A   3333.00
            25744-200-MPD-36-P3606   00A   Potable Water Booster Pumps - Pump Data Sheet
            25744-200-MTD-36-S3601   00A   Mechanical Data Sheet Field Erected Storage Tanks - RO System Water Storage Tank
            25744-200-MTD-36-S3602   00A   Mechanical Data Sheet Field Erected Storage Tanks - Service Water Tank
            25744-200-MTD-36-S3603   00A   Mechanical Data Sheet Field Erected Storage Tanks - Demineralized Water Storage Tank
            25744-200-MTD-36-S3604   00A   Mechanical Data Sheet Field Erected Storage Tanks - Potable Water Storage Tank
            25744-200-MTD-36-S3607   00A   Mechanical Data Sheet Field Erected Storage Tanks - UF Feed Tank
            25744-200-MTD-36-S3608   00A   Mechanical Data Sheet Field Erected Storage Tanks - UF Permeate Tank
            25744-200-MTD-36-S3609   00A   Mechanical Data Sheet Field Erected Storage Tanks - Intermediate Storage Tank
            25744-200-MUD-36-P3601   00A   Data Sheet Form for Low Voltage Squirrel Cage Induction Motors 200 HP and Smaller (NEMA) - RO Water Feed Pumps
            25744-200-MUD-36-P3602   00A   Data Sheet Form for Low Voltage Squirrel Cage Induction Motors 200 HP and Smaller (NEMA) - Filter-RO Reject L.S. Pumps

 

A-166


Execution Version

 

Volume

/ Book

 

Section

 

Section
Title or
Sub-Sec

 

Sub
Title

 

SubSub
Section

 

SubSub
Title

 

Document Number

 

Rev

 

Description

            25744-200-MUD-36-P3603   00A   Data Sheet For Medium Voltage Squirrel Cage Induction Motors 250 HP and Larger - Demineralized Water Pump Motors
            25744-200-MUD-36-P3604   00A   Data Sheet Form for Low Voltage Squirrel Cage Induction Motors 200 HP and Smaller (NEMA) - Service Water Pumps
            25744-200-MUD-36-P3606   00A   Data Sheet Form for Low Voltage Squirrel Cage Induction Motors 200 HP and Smaller (NEMA) - Potable Water Booster Pumps
            25744-200-MVD-36-V3601   00A   Mechanical Data Sheet - RO Multimedia Filters
            25744-200-MWD-36-03601   00A   Mechanical Data Sheet - RO-EDI Package
            25744-200-MWD-36-03602   00A   Mechanical Data Sheet - Sodium Hypochlorite Injection Package
            25744-200-MWD-36-03603   00A   Mechanical Data Sheet - Potable Water Cartridge Filter
            25744-200-MWD-36-03604   00A   Mechanical Data Sheet - UV Package
            25744-200-MWD-36-03606   00A   Mechanical Data Sheet - Ultrafiltration System
        4.22.4   Process Data Sheets      
            25744-200-MFA-0036-A3605   00B   Multimedia Filters
            25744-200-MTA-0036-03601   00D   RO System Water Storage Tank Datasheet

 

A-167


Execution Version

 

Volume

/ Book

 

Section

 

Section
Title or
Sub-Sec

 

Sub Title

 

SubSub
Section

 

SubSub Title

 

Document Number

 

Rev

 

Description

            25744-200-MTA-0036-03602   00B   Service Water Tank
            25744-200-MTA-0036-03603   00D   Demineralized Water Storage Tank
            25744-200-MTA-0036-03604   00C   Potable Water Storage Tank
            25744-200-MTA-0036-03607   00B   UF Feed Tank
            25744-200-MTA-0036-03608   00B   UF Permeate Tank
            25744-200-MTA-0036-03609   00B   Intermediate Storage Tank
            25744-200-MWA-0036-03601   00B   RO-EDI Package
            25744-200-MWA-0036-03602   00B   Sodium Hypochlorite Injection Package
            25744-200-MWA-0036-03603   00C   Potable Water Cartridge Filter Package
            25744-200-MWA-0036-03604   00C   UV Package
            25744-200-MWA-0036-03606   00B   Ultrafiltration System
    4.23   UNIT 39 - NITROGEN          
        4.23.1   Utility Flow Diagrams      
            25744-200-M5-0039-00001   000   Utility Flow Diagram - Nitrogen Generation
        4.23.2   P&I Diagrams and Line Designation Tables      

 

A-168


Execution Version

 

Volume

/ Book

 

Section

 

Section
Title or
Sub-Sec

 

Sub
Title

 

SubSub
Section

 

SubSub
Title

 

Document Number

 

Rev

 

Description

            25744-200-M6-0039-00001   00C   P and ID Nitrogen Generator Package
            25744-200-M6-0039-00002   00C   P and ID Liquid N2 Package and Receiver
            25744-200-M6-1139-00001   00C   P and ID - Nitrogen ISBL Distribution - 1
            25744-200-M6-1139-00002   00C   P and ID - Nitrogen ISBL Distribution - 2
            25744-200-M6D-0039-00001   00C   Line Designation Table
            25744-200-M6D-0039-00002   00C   Line Designation Table
            25744-200-M6D-1139-00001   00C   Line Designation Table
            25744-200-M6D-1139-00002   00C   Line Designation Table
        4.23.3   Equipment Data Sheets      
            25744-200-MVD-39-V3901   00A   Mechanical Data Sheet - Columns and Vessels (Carbon Steel) - Non Proprietary - Nitrogen Receiver
            25744-200-MXD-39-K3901   00A   Nitrogen Generation Plants - Nitrogen Generator Package
            25744-200-MXD-39-K3902   00A   Nitrogen Generation Plants - Liquid Nitrogen Package
        4.23.4   Process Data Sheets      
            25744-200-MVA-0039-03901   000   Vessel Specification Sheet for Nitrogen Receiver
            25744-200-MXA-0039-03901   000   Packaged Unit Specification Sheet - Nitrogen Generator Package

 

A-169


Execution Version

 

Volume

/ Book

 

Section

 

Section
Title or
Sub-Sec

 

Sub Title

 

SubSub
Section

 

SubSub Title

 

Document Number

 

Rev

 

Description

            25744-200-MXA-0039-03902   000   Packaged Unit Specification Sheet - Liquid Nitrogen Package
    4.24   UNIT 47 - TURBINE IAH SYSTEM          
        4.24.1   Utility Flow Diagrams      
            25744-200-M5-1147-00001   001   Utility Flow Diagram - Turbine Air Humidification System
        4.24.2   P&I Diagrams and Line Designation Tables      
            25744-200-M6-1147-00001   00B   P and ID - Turbine IAH Water Tank
            25744-200-M6-1147-00002   00B   P and ID - Turbine IAH Water Circulation Pumps
            25744-200-M6-1147-00003   00B   P and ID - Propane Compressor Gas Turbine IAH
            25744-200-M6-1147-00004   00B   P and ID - Ethylene Compressor Gas Turbine IAH
            25744-200-M6-1147-00005   00B   P and ID - Methane Compressor Gas Turbine IAH
            25744-200-M6D-1147-00001   00B   Line Designation Table
            25744-200-M6D-1147-00002   00B   Line Designation Table
            25744-200-M6D-1147-00003   00B   Line Designation Table
            25744-200-M6D-1147-00004   00B   Line Designation Table
            25744-200-M6D-1147-00005   00B   Line Designation Table
        4.24.3   Equipment Data Sheets      
            25744-200-MPD-47-P4701   00A   Turbine IAH Water Circulation Pumps Pump Data Sheet

 

A-170


Execution Version

 

Volume

/ Book

 

Section

 

Section
Title or
Sub-Sec

 

Sub Title

 

SubSub
Section

 

SubSub
Title

 

Document Number

 

Rev

 

Description

            25744-200-MTD-47-S4701   00A   Turbine IAH Water Tank Mechanical Data Sheet Shop Fabricated Tanks - Turbine IAH Water Tank
            25744-200-MUD-47-P4701   00A   Data Sheet Form for Low Voltage Squirrel Cage Induction Motors 200 HP and Smaller (NEMA) Turbine IAH Water Circulation Pumps
        4.24.4   Process Data Sheets      
            25744-200-MTA-1147-04701   000   Tank Specification Sheet for Turbine IAH Water Tank
            25744-200-MXA-1147-04711   000   Packaged Unit Specification Sheet for Propane Compressor Gas Turbine Inlet Air Humidifier
            25744-200-MXA-1147-04731   000   Packaged Unit Specification Sheet for Ethylene Compressor Gas Turbine Inlet Air Humidifier
            25744-200-MXA-1147-04751   000   Packaged Unit Specification Sheet for Methane Compressor Gas Turbine Inlet Air Humidifier
VOLUME 11                
    4.25   LOG OF HAZID AND HAZOP ACTION ITEMS (NON CONFIDENTIAL)          
            25744-200-U0R-0000-00001   00B   Hazard Identification Analysis - Final Report

 

A-171


Execution Version

 

Volume

/ Book

 

Section

 

Section
Title or
Sub-Sec

 

Sub
Title

 

SubSub
Section

 

SubSub
Title

 

Document Number

 

Rev

 

Description

            25744-200-U0R-0000-00002   00A   Hazard And Operability Study (HAZOP) - Block 1 Final Report
            25744-200-U0R-0000-00004   00A   Hazard And Operability Study (HAZOP) - Block 3 Final Report
            25744-200-M6-1147-00001   00B   P and ID - Turbine IAH Water Tank
            25744-200-M6-1147-00002   00B   P and ID - Turbine IAH Water Circulation Pumps
            25744-200-M6-1147-00003   00B   P and ID - Propane Compressor Gas Turbine IAH
            25744-200-M6-1147-00004   00B   P and ID - Ethylene Compressor Gas Turbine IAH
            25744-200-M6-1147-00005   00B   P and ID - Methane Compressor Gas Turbine IAH
            25744-200-M6D-1147-00001   00B   Line Designation Table
            25744-200-M6D-1147-00002   00B   Line Designation Table
            25744-200-M6D-1147-00003   00B   Line Designation Table
            25744-200-M6D-1147-00004   00B   Line Designation Table
            25744-200-M6D-1147-00005   00B   Line Designation Table
        4.24.3   Equipment Data Sheets      
            25744-200-MPD-47-P4701   00A   Turbine IAH Water Circulation Pumps Pump Data Sheet

 

A-172


Execution Version

 

Volume

/ Book

 

Section

 

Section
Title or
Sub-Sec

 

Sub Title

 

SubSub
Section

 

SubSub
Title

 

Document Number

 

Rev

 

Description

            25744-200-MTD-47-S4701   00A   Turbine IAH Water Tank Mechanical Data Sheet Shop Fabricated Tanks - Turbine IAH Water Tank
            25744-200-MUD-47-P4701   00A   Data Sheet Form for Low Voltage Squirrel Cage Induction Motors 200 HP and Smaller (NEMA) Turbine IAH Water Circulation Pumps
        4.24.4   Process Data Sheets      
            25744-200-MTA-1147-04701   000   Tank Specification Sheet for Turbine IAH Water Tank
            25744-200-MXA-1147-04711   000   Packaged Unit Specification Sheet for Propane Compressor Gas Turbine Inlet Air Humidifier
            25744-200-MXA-1147-04731   000   Packaged Unit Specification Sheet for Ethylene Compressor Gas Turbine Inlet Air Humidifier
            25744-200-MXA-1147-04751   000   Packaged Unit Specification Sheet for Methane Compressor Gas Turbine Inlet Air Humidifier

VOLUME 11

               
    4.25   LOG OF HAZID AND HAZOP ACTION ITEMS (NON CONFIDENTIAL)          
            25744-200-U0R-0000-00001   00B   Hazard Identification Analysis - Final Report
            25744-200-U0R-0000-00002   00A   Hazard And Operability Study (HAZOP) - Block 1 Final Report
            25744-200-U0R-0000-00004   00A   Hazard And Operability Study (HAZOP) - Block 3 Final Report

 

A-173


Execution Version

 

Volume

/ Book

 

Section

 

Section Title or Sub-Sec

 

Sub Title

 

SubSub
Section

 

SubSub Title

 

Document Number

 

Rev

 

Description

    4.26   LOG OF HAZOP ACTION ITEMS (CONFIDENTIAL) (Refer to confidential FEED Deliverables Volume 4)          
            25744-200-U0R-0000-00003   00A   CoP Level III Confidential - Hazard And Operability Study (HAZOP) - Block 2 Final Report
  5.0   PLANT INFRASTRUCTURE            
    5.1   CIVIL STRUCTURAL          
        5.1.1   Site Preparation and Rough Grading Drawings      
            25744-200-CG-000-00001   00D   Civil Site Development - Overall Site Topographic Plan
            25744-200-CG-000-00002   00F   Civil Site Development - Overall Drainage Site Plan
            25744-200-CG-000-00003   00F   Civil Site Development - LNG Spill Containment Plan - Sheet-1
            25744-200-CG-000-00004   00F   Civil Site Development - LNG Spill Containment Plan - Sheet-2
            25744-200-CG-000-00005   00B   Civil Site Development - Survey Control Plan
            25744-200-CG-000-00006   00B   Civil Site Development - Clearing - Grubbing and Stripping Plan

 

A-174


Execution Version

 

Volume

/ Book

 

Section

 

Section
Title or
Sub-Sec

 

Sub
Title

 

SubSub
Section

 

SubSub
Title

 

Document Number

 

Rev

 

Description

            25744-200-CG-000-00007   00C   Civil Site Development - Fence Layout - Security and Vapor Fence
            25744-200-CG-000-00008   00B   Civil Site Development - Rough Grade Cut and Fill Plan
            25744-200-CG-000-00009   00B   Civil Site Development - Demolition Plan
            25744-200-CG-000-00011   00B   Civil Site Development - Area Excavation Tank C Excavation Plan and Section
            25744-200-CG-000-00013   00B   Civil Site Development - Rough Grade - Train-2 Area Sections C and D
            25744-200-CG-000-00014   00B   Civil Site Development - Rough Grade - Train-1 Area Sections E and F
            25744-200-CG-000-00015   00B   Civil Site Development - Rough Grade - Tank Area Sections G and H
            25744-200-CG-000-00016   00C   Civil Site Development - Rough Grade - Shoreline and Outfall Sections I thru M
            25744-200-CG-000-00017   00C   Civil Site Development - Rough Grade - Shoreline and Outfall Sections N thru Q
            25744-200-CG-000-00050   00C   Civil Site Development - Rough Grade - Culvert Schedule
            25744-200-CG-000-00100   00B   Civil Site Development - Rough Grade - Key Plan
            25744-200-CG-000-00101   00B   Civil Site Development - Rough Grade - Plan Sheet No 1
            25744-200-CG-000-00102   00B   Civil Site Development - Rough Grade - Plan Sheet No 2
            25744-200-CG-000-00103   00B   Civil Site Development - Rough Grade - Plan Sheet No 3
            25744-200-CG-000-00104   00B   Civil Site Development - Rough Grade - Plan Sheet No 4

 

A-175


Execution Version

 

Volume

/ Book

 

Section

 

Section
Title or
Sub-Sec

 

Sub
Title

 

SubSub
Section

 

SubSub
Title

 

Document Number

 

Rev

 

Description

            25744-200-CG-000-00105   00B   Civil Site Development - Rough Grade - Plan Sheet No 5
            25744-200-CG-000-00106   00B   Civil Site Development - Rough Grade - Plan Sheet No 6
            25744-200-CG-000-00107   00B   Civil Site Development - Rough Grade - Plan Sheet No 7
            25744-200-CG-000-00108   00B   Civil Site Development - Rough Grade - Plan Sheet No 8
            25744-200-CG-000-00109   00B   Civil Site Development - Rough Grade - Plan Sheet No 9
            25744-200-CG-000-00110   00B   Civil Site Development - Rough Grade - Plan Sheet No 10
            25744-200-CG-000-00111   00B   Civil Site Development - Rough Grade - Plan Sheet No 11
            25744-200-CG-000-00112   00B   Civil Site Development - Rough Grade - Plan Sheet No 12
            25744-200-CG-000-00113   00B   Civil Site Development - Rough Grade - Plan Sheet No 13
            25744-200-CG-000-00114   00B   Civil Site Development - Rough Grade - Plan Sheet No 14
            25744-200-CG-000-00115   00B   Civil Site Development - Rough Grade - Plan Sheet No 15
            25744-200-CG-000-00116   00B   Civil Site Development - Rough Grade - Plan Sheet No 16
            25744-200-CG-000-00117   00B   Civil Site Development - Rough Grade - Plan Sheet No 17
            25744-200-CG-000-00118   00B   Civil Site Development - Rough Grade - Plan Sheet No 18
            25744-200-CG-000-00119   00B   Civil Site Development - Rough Grade - Plan Sheet No 19

 

A-176


Execution Version

 

Volume

/ Book

 

Section

 

Section
Title or
Sub-Sec

 

Sub
Title

 

SubSub
Section

 

SubSub
Title

 

Document Number

 

Rev

 

Description

            25744-200-CG-000-00121   00B   Civil Site Development - Train 2 - Excavation Plan
            25744-200-CG-000-00122   00B   Civil Site Development - Train 1 - Excavation Plan
            25744-200-CG-000-00201   00C   Civil Site Development - Excavation and Backfill Layout for BED-24 Sections
            25744-200-CG-000-00202   00B   Civil Site Development - Excavation and Backfill - BED-24 Sections
            25744-200-CG-000-00210   00B   Civil Site Development - Bluff Stabilization - Layout
            25744-200-CG-000-00500   00B   Civil Site Development - Rough Grade for Heavy Haul Road Plan and Profile Key Plan
            25744-200-CG-000-00501   00B   Civil Site Development - Rough Grading for Heavy Haul Road Plan and Profile Sheet No 1
            25744-200-CG-000-00502   00B   Civil Site Development - Rough Grade for Heavy Haul Road Plan and Profile Sheet No 2
            25744-200-CG-000-00503   00B   Civil Site Development - Rough Grade for Heavy Haul Road Plan and Profile Sheet No 3
            25744-200-CG-000-00504   00B   Civil Site Development - Rough Grade for Heavy Haul Road Plan and Profile Sheet No 4
            25744-200-CG-000-00505   00B   Civil Site Development - Rough Grade for Heavy Haul Road Plan and Profile Sheet No 5
            25744-200-CG-000-00506   00B   Civil Site Development - Rough Grade for Heavy Haul Road Plan and Profile Sheet No 6
            25744-200-CG-000-00507   00B   Civil Site Development - Rough Grade for Heavy Haul Road Plan and Profile Sheet No 7
            25744-200-CG-000-00508   00B   Civil Site Development - Rough Grade for Heavy Haul Road Plan and Profile Sheet No 8

 

A-177


Execution Version

 

Volume

/ Book

 

Section

 

Section
Title or
Sub-Sec

 

Sub
Title

 

SubSub
Section

 

SubSub
Title

 

Document Number

 

Rev

 

Description

            25744-200-CG-000-00509   00B   Civil Site Development - Rough Grade for Heavy Haul Road Plan and Profile Sheet No 9
            25744-200-CG-000-00510   00B   Civil Site Development - Rough Grade for Heavy Haul Road Plan and Profile Sheet No 10
            25744-200-CG-000-00511   00B   Civil Site Development - Rough Grade for Heavy Haul Road Plan and Profile Sheet No 11
            25744-200-CG-000-00601   00C   Civil Site Development - Underground Storm Sewer - Plan and Profile Sheet No 1
            25744-200-CG-000-00602   00B   Civil Site Development - Underground Storm Sewer - Plan and Profile Sheet No 2
            25744-200-CG-000-00603   00B   Civil Site Development - Underground Storm Sewer - Plan and Profile Sheet No 3
        5.1.2   Building Floor Plans      
            25744-200-A1-000-00001   00B   Architectural - Warehouse Bldg (00A-4000) - First Floor Plan
            25744-200-A1-000-00002   00B   Architectural - Warehouse Bldg (00A-4000) - Mezzanine Floor Plan
            25744-200-A1-000-00008   00B   Architectural - O and M and Control Bldg (00A-4024) - First Floor Plan
            25744-200-A1-000-00009   00B   Architectural - O and M and Control Bldg (00A-4024) - Second Floor Plan
            25744-200-A1-000-00010   00B   Architectural - O and M and Control Bldg (00A-4024) - Third Floor Plan
            25744-200-A1-000-00015   00B   Architectural - Guard House (00A-4026) - Floor Plan and Elevations
            25744-200-A1-000-00025   00B   Architectural - Maintenance Bldg (00A-4034) - Floor Plan

 

A-178


Execution Version

 

Volume

/ Book

 

Section

 

Section
Title or
Sub-Sec

 

Sub
Title

 

SubSub
Section

 

SubSub
Title

 

Document Number

 

Rev

 

Description

            25744-200-A1-000-00026   00B   Architectural - Maintenance Bldg (00A-4034) - Second Floor Plan
            25744-200-A1-000-00065   00B   Architectural - West Jetty Marine Bldg (00A-4028) - Floor Plans
            25744-200-A1-000-00070   00B   Architectural - Outside Operator Building (00A-4002) - Floor Plan and Elevations
            25744-200-A1-02E01-00020   00B   Architectural - BOG Compressor Shelter (00A-4004) - Roof Plan
            25744-200-A1-02F01-00049   00A   Architectural - RO-EDI Water Treatment Building (00A-4008) - Floor Plan
            25744-200-A1-02F01-00050   00B   Architectural - RO-EDI Water Treatment Building (00A-4008) - Floor Plan
            25744-200-A1-02F01-00051   00B   Architectural - RO-EDI Water Treatment Building (00A-4008) - Roof Plan
            25744-200-A1-02Q01-00060   00B   Architectural - Pipeline Compressor Shelter (00A-4030) - Roof Plan
            25744-200-A1-02W01-00010   00B   Architectural - Fire Water Pump Shelter (00A-4033) - Roof Plan
            25744-200-A1-05A01-00030   00B   Architectural - Storage - Chemicals - Lubricants and Hazardous Substances - (00A-4017) Floor and Roof Plans
            25744-200-A1-31A01-00001   00C   Architectural - Refrigeration Compressor Shelter - (11A-4009) Roof Plan
            25744-200-A2-000-00003   00B   Architectural - Warehouse Bldg (00A-4000) - Elevations
            25744-200-A2-000-00011   00B   Architectural - O and M and Control Bldg (00A-4024) - Elevations
            25744-200-A2-000-00012   00B   Architectural - O and M and Control Bldg (00A-4024) - Elevations
            25744-200-A2-000-00016   00B   Architectural - Guard House (00A-4026) - Elevations

 

A-179


Execution Version

 

Volume

/ Book

 

Section

 

Section
Title or
Sub-Sec

 

Sub
Title

 

SubSub
Section

 

SubSub
Title

 

Document Number

 

Rev

 

Description

            25744-200-A2-000-00027   00B   Architectural - Maintenance Bldg (00A-4034) - Elevations
            25744-200-A2-000-00066   00B   Architectural - West Jetty Marine Bldg (00A-4028) - Elevations
            25744-200-A2-000-00071   00B   Architectural - Outside Operator Building (00A-4002) - Elevations
            25744-200-A2-02E01-00021   00B   Architectural - BOG Compressor Shelter (00A-4004) - Elevations and Section
            25744-200-A2-02E01-00022   00B   Architectural - BOG Compressor Shelter (00A-4004) - Elevations and Sections
            25744-200-A2-02F01-00052   00B   Architectural - RO-EDI Water Treatment Building (00A-4008) - Elevations and Sections
            25744-200-A2-02Q01-00061   00B   Architectural - Pipeline Compressor Shelter (00A-4030) - Elevations and Section
            25744-200-A2-02Q01-00062   00B   Architectural - Pipeline Compressor Shelter (00A-4030) - Elevation and Details
            25744-200-A2-02W01-00011   00B   Architectural - Fire Water Pump Shelter (00A-4033) - Elevations and Sections
            25744-200-A2-02W01-00012   00B   Architectural - Fire Water Pump Shelter (00A-4033) - Details
            25744-200-A2-05A01-00031   00B   Architectural - Storage - Chemicals - Lubricants and Hazardous Substances (00A-4017) - Elevations and Sections
            25744-200-A2-31A01-00002   00B   Architectural - Refrigeration Compressor Shelter (11A-4009) - Elevations
            25744-200-A5-000-00004   00B   Architectural - Warehouse Bldg (00A-4000) - Schedules
            25744-200-A5-000-00013   00B   Architectural - O and M and Control Bldg (00A-4024) - Schedules

 

A-180


Execution Version

 

Volume

/ Book

 

Section

 

Section
Title or
Sub-Sec

 

Sub
Title

 

SubSub
Section

 

SubSub
Title

 

Document Number

 

Rev

 

Description

            25744-200-A5-000-00017   00B   Architectural - Guard House (00A-4026) - Schedules
            25744-200-A5-000-00028   00B   Architectural - Maintenance Bldg (00A-4034) - Schedules
            25744-200-A5-000-00067   00B   Architectural - West Jetty Marine Bldg (00A-4028) - Schedules
            25744-200-A5-000-00072   00B   Architectural - Outside Operator Building (00A-4002) - Schedules

VOLUME 12

               
        5.1.3   Standard Drawings      
            25744-200-C0-000-00001   00D   Civil Site Development - Standards - General Notes - Legend and Abbreviations
            25744-200-C0-000-00002   00D   Civil Site Development Standards - Road Sections and Details
            25744-200-C0-000-00003   00B   Civil Site Development Standards Surfacing Sections and Details
            25744-200-C0-000-00004   00B   Civil Site Development Standards Fence Sections and Details
            25744-200-C0-000-00005   00B   Civil Site Development Standards - Vapor Fence Sections and Details
            25744-200-C0-000-00006   00C   Civil Site Development Standards - Sediment Control Details
            25744-200-C0-000-00011   00D   Civil Site Development Standards - Drainage Details
            25744-200-C0-000-00031   00C   Civil Site Development Standards - Signage and Guard Rails
            25744-200-C0-000-00041   00B   Civil Site Development Standards Pipe Culvert Installation Details

 

A-181


Execution Version

 

Volume

/ Book

 

Section

 

Section
Title or
Sub-Sec

 

Sub
Title

 

SubSub
Section

 

SubSub
Title

 

Document Number

 

Rev

 

Description

            25744-200-C0-000-00042   00B   Civil Site Development Standards Box Culvert Installation Details
            25744-200-DB-000-00001   00A   Structural Standards - Concrete General Notes
            25744-200-DB-000-00002   00B   Structural Standards - Concrete Details - Sheet 1
            25744-200-DB-000-00003   00A   Structural Standards - Concrete Details - Sheet 2
            25744-200-DB-000-00004   00A   Structural Standards - Concrete Details - Sheet 3
            25744-200-DB-000-00005   00A   Structural Standards - Typical Sectional Details
            25744-200-DB-000-00006   00A   Structural Standards - Post-Installed Anchor Details
            25744-200-DB-000-00007   00A   Structural Standards - Anchor Bolts
            25744-200-DB-000-00008   00A   Structural Standards - Development and Splice Lengths
            25744-200-SS-000-00001   00A   Structural Steel Standards General Notes and Abbreviations
            25744-200-SS-000-00002   00A   Structural Steel Standards Beam Connections
            25744-200-SS-000-00003   00A   Structural Steel Standards Vertical Bracing Connections
            25744-200-SS-000-00004   00A   Structural Steel Standards Horizontal Bracing Connections
            25744-200-SS-000-00005   00A   Structural Steel Standards Column and Base Plate Details
            25744-200-SS-000-00006   00A   Structural Steel Standards Angle Handrail - Sheet 1 of 2

 

A-182


Execution Version

 

Volume

/ Book

 

Section

 

Section
Title or
Sub-Sec

 

Sub
Title

 

SubSub
Section

 

SubSub
Title

 

Document Number

 

Rev

 

Description

            25744-200-SS-000-00007   00A   Structural Steel Standards Angle Handrail - Sheet 2 of 2
            25744-200-SS-000-00008   00A   Structural Steel Standards Ladder Details
            25744-200-SS-000-00009   00A   Structural Steel Standards Ladder Safety Cage Details
            25744-200-SS-000-00010   00A   Structural Steel Standards Stair Details - Sheet 1 of 2
            25744-200-SS-000-00011   00A   Structural Steel Standards Stair Details - Sheet 2 of 2
            25744-200-SS-000-00012   00A   Structural Steel Standards Grating Details
            25744-200-SS-000-00013   00A   Structural Steel Standards Floor Plate Details
            25744-200-SS-000-00014   00A   Structural Steel Standards Safety Cable Holes
            25744-200-SS-000-00015   00A   Structural Steel Standards Fireproofing Details
        5.1.4   MET - Cathodic Protection System      
            25744-200-N3-0010-00001   000   External Cathodic Protection - System - Details - Tank Bottom Plate - Typical
            25744-200-N3-0010-00002   000   External Cathodic Protection - System - Details - Tank Bottom Plate - Typical
            25744-200-N3-2912-00001   00B   Internal Cathodic Protection System-Details Waste Water Tank 00S-2912
            25744-200-N3-3301-00001   00B   Internal Cathodic Protection System-Details - Firewater Tank 00S-3301 A-B
            25744-200-N3-3601-00001   00B   Internal Cathodic Protection System-Details - RO Water Tank 00S-3601

 

A-183


Execution Version

 

Volume

/ Book

 

Section

 

Section
Title or
Sub-Sec

 

Sub Title

 

SubSub
Section

 

SubSub
Title

 

Document Number

 

Rev

 

Description

            25744-200-N3-3602-00001   00B   Internal Cathodic Protection System-Details Service Water Tank 00S-3602
            25744-200-N3-3604-00001   00B   Internal Cathodic Protection System-Details Potable Water Storage Tank 00S-3604
            25744-200-N3-3607-00001   00B   Internal Cathodic Protection System-Details UF Feed Tank 00S-3607
            25744-200-N3-3608-00001   00B   Internal Cathodic Protection System-Details UF Permeate Tank -00S-3608
            25744-200-N3-3609-00001   00B   Internal Cathodic Protection System-Details Intermediate Storage Tank 00S-3609
            25744-200-N3-4701-00001   00B   Internal Cathodic Protection System-Details Turbine IAH (Potable) Water Tank
    5.2   CONTROL SYSTEMS - DCS, PLC, SIS SYSTEMS          
        5.2.1   Block Diagrams      
            25744-200-J1-00-00001   00D   Control Systems - DCS-SIS Block Diagram
            25744-200-J1-00-00002   00C   DCS-SIS System Main Control Room (00A-4024) Block Diagram
            25744-200-J1-00-00003   00D   DCS-SIS System - Liquefaction Trains 1 and 2 - Block Diagram
            25744-200-J1-00-00004   00E   DCS-SIS System - Utilities and Loading-Unloading - Block Diagram

 

A-184


Execution Version

 

Volume

/ Book

 

Section

 

Section
Title or
Sub-Sec

 

Sub
Title

 

SubSub
Section

 

SubSub Title

 

Document Number

 

Rev

 

Description

        5.2.2   Cause & Effect Diagrams (Non Confidential)      
            25744-200-J4-0010-00001   00C   Cause and Effect Diagram - ESD-6-1 - Liquefaction Trains 1-2 and 3 FEED Gas Isolation
            25744-200-J4-0019-00001   00A   Cause and Effect Diagram - Unit 19 - Flare-Vent System
            25744-200-J4-0020-00001   00C   Cause and Effect Diagram - ESD-7 - Refrigerant Storage Isolation (Ethylene)
            25744-200-J4-0020-00002   00A   Cause and Effect Diagram - Unit 20 - Refrigerant Storage
            25744-200-J4-0023-00001   00A   Cause and Effect Diagram - Unit 23 - Condensate Storage
            25744-200-J4-0024-00001   00D   Cause and Effect Diagram - ESD-1 Loading-Unloading Shutdown
            25744-200-J4-0024-00002   00B   Cause and Effect Diagram - ESD-2 Loading-Unloading Arm PERC Release
            25744-200-J4-0024-00003   00A   Cause and Effect Diagram - Unit 24 - BOG Compressors
            25744-200-J4-0024-00004   00A   Cause and Effect Diagram - Unit 24 - LNG Storage-Import and Export
            25744-200-J4-0029-00001   00A   Cause and Effect Diagram - Unit 29 - Effluent Treatment
            25744-200-J4-0035-00001   00A   Cause and Effect Diagram - Unit 35 - Plant-Instrument Air System
            25744-200-J4-1110-00003   00A   Cause and Effect Diagram - 11-ISIS-1
            25744-200-J4-1110-00004   00A   Cause and Effect Diagram - 11-ISIS-2
            25744-200-J4-1111-00001   00A   Cause and Effect Diagram - Unit 11 - Inlet Gas Receiving and Metering
            25744-200-J4-1112-00001   00A   Cause and Effect Diagram - Unit 12 - Acid Gas Removal

 

A-185


Execution Version

 

Volume

/ Book

 

Section

 

Section
Title or
Sub-Sec

 

Sub
Title

 

SubSub
Section

 

SubSub Title

 

Document Number

 

Rev

 

Description

            25744-200-J4-1113-00001   00A   Cause and Effect Diagram - Unit 13 - Dehydration and Mercury Removal
            25744-200-J4-1118-00001   00A   Cause and Effect Diagram - Unit 18 - Condensate Stabilization
            25744-200-J4-1119-00001   00A   Cause and Effect Diagram - Unit 19 - Flare-Vent System
            25744-200-J4-1122-00001   00A   Cause and Effect Diagram - Unit 22 - Fuel Gas System
            25744-200-J4-1134-00001   00A   Cause and Effect Diagram - Unit 34 - Hot Oil System
            25744-200-J4-1147-00001   00A   Cause and Effect Diagram - Unit 47 - Turbine Inlet Air Humidifier
        5.2.2.1   Cause & Effect Diagrams (Confidential) (Refer to confidential FEED Deliverables Volume 5)      
            25744-200-J4-1110-00001   00E   CoP Level III Confidential - Cause and Effect Diagram - ESD-4-1 - Liquefaction Train 1 Emergency Shutdown
            25744-200-J4-1110-00002   00A   CoP Level III Confidential - Cause and Effect Diagram - SDP - Liquefaction Train 1 Process Shutdown
            25744-200-J4-1110-00005   00D   CoP Level III Confidential - Cause and Effect Diagram - ESD-5-1 - Shutdown LNG Transfer from Train 1
            25744-200-J4-1114-00001   00A   CoP Level III Confidential - Cause and Effect Diagram - ***
            25744-200-J4-1115-00001   00A   CoP Level III Confidential - Cause and Effect Diagram - ***

 

A-186


Execution Version

 

Volume

/ Book

 

Section

 

Section
Title or
Sub-Sec

 

Sub
Title

 

SubSub
Section

 

SubSub Title

 

Document Number

 

Rev

 

Description

            25744-200-J4-1116-00001   00A   CoP Level III Confidential - Cause and Effect Diagram - ***
            25744-200-J4-1117-00001   00A   CoP Level III Confidential - Cause and Effect Diagram - ***
        5.2.3   Interlock List (Non Confidential)      
            25744-200-J3-JD-00001   00B   Interlock List - Blocks 1 3 and 4
        5.2.3.1   Interlock List (Confidential) (Refer to confidential FEED Deliverables Volume 5)      
            25744-200-J3-JD-00002   00A   CoP Level III Confidential - Interlock List Block 2
        5.2.4   Drawings - Equipment Layout      
            25744-200-J2-02B01-00001   00B   Instrumentation - Air Compressor Substation 00A-4031 - Equipment Layout
            25744-200-J2-02C01-00001   00B   Instrumentation - LNG Loading Substation 00A-4032 - Equipment Layout
            25744-200-J2-02D01-00001   00B   Instrumentation - BOG Utility Substation Building 00A-4005 - Equipment Layout
            25744-200-J2-02V01-00001   00B   Control Systems - Outside Operator Shelter (00A-4002) - Equipment Layout
            25744-200-J2-04A02-00001   00B   Control Systems - West Jetty Marine Bldg (00A-4028) - Equipment Layout
            25744-200-J2-05A01-00001   00B   Control Systems - 00A-4024 Main Control Building - I-O Room Equipment Layout

 

A-187


Execution Version

 

Volume

/ Book

 

Section

 

Section
Title or
Sub-Sec

 

Sub
Title

 

SubSub
Section

 

SubSub Title

 

Document Number

 

Rev

 

Description

            25744-200-J2-05A01-00002   00B   Control Systems - 00A-4024 Main Control Building - Control Room Equipment Layout
            25744-200-J2-31A02-00001   00B   Control Systems - Compressor Substation 11A-4010 - Equipment Layout
            25744-200-J2-31N02-00001   00B   Control Systems - Propane Substation 11A-4011 - Equipment Layout
        5.2.5   Instrument Data Sheets (Non Confidential)      
            25744-200-JVD-JV09-30001   00A   Instrument Data Sheet Rising Stem On-Off Ball Valves
        5.2.5.1   Instrument Data Sheets (Confidential) (Refer to confidential FEED Deliverables Volume 5)      
            25744-200-JAD-JA30-10001   00B   CoP Level III Confidential - Instrument Data Sheet Analyzer Probes
            25744-200-JAD-JA32-10001   00A   CoP Level III Confidential - Process Analyzers
            25744-200-JVD-JV01-10001   00A   CoP Level III Confidential - Instrument Data Sheet Control Valves, General Service
            25744-200-JVD-JV09-10001   00A   CoP Level III Confidential - Instrument Data Sheet On-Off Ball Valves
            25744-200-JVD-JV09-20001   00A   CoP Level III Confidential - Instrument Data Sheet On-Off and Control Butterfly Valves
            25744-200-JVD-JV13-10001   00B   CoP Level III Confidential - Instrument Data Sheet Control Valves Severe Service

 

A-188


Execution Version

 

Volume

/ Book

 

Section

 

Section
Title or
Sub-Sec

 

Sub Title

 

SubSub
Section

 

SubSub
Title

 

Document Number

 

Rev

 

Description

VOLUME 13                
    5.3   ELECTRICAL SYSTEMS          
        5.3.1   Electrical One Line Diagrams      
            25744-200-E1-02B01-00001   00C   Electrical - One-Line Diagram - 13.8kV SWGR 00ES-02B01101
            25744-200-E1-02B01-00010   00C   Electrical - One-Line Diagram - 4.16kV Switchgear 00ES-02B01201
            25744-200-E1-02B01-00011   00B   Electrical - One-Line Diagram - 4.16kV MCC 00ECM-02B01201A (Sht 1 of 2)
            25744-200-E1-02B01-00012   00B   Electrical - One-Line Diagram - 4.16kV MCC 00ECM-02B01201A (Sht 2 of 2)
            25744-200-E1-02B01-00016   00B   Electrical - One-Line Diagram - 4.16kV MCC 00ECM-02B01201B (Sht 1 of 2)
            25744-200-E1-02B01-00017   00B   Electrical - One-Line Diagram - 4.16kV MCC 00ECM-02B01201B (Sht 2 of 2)
            25744-200-E1-02B01-00020   00B   Electrical - One-Line Diagram - 480V Switchgear 00EK-02B01301
            25744-200-E1-02C01-00001   00C   Electrical - One-Line Diagram - 13.8kV SWGR 00ES-02C01101
            25744-200-E1-02C01-00010   00B   Electrical - One-Line Diagram - 4.16kV Switchgear 00ES-02C01201
            25744-200-E1-02C01-00011   00B   Electrical - One-Line Diagram - 480V Switchgear 00ECM-02C01201A
            25744-200-E1-02C01-00016   00B   Electrical - One-Line Diagram - 480V Switchgear 00ECM-02C01201B
            25744-200-E1-02C01-00020   00B   Electrical - One-Line Diagram - 4.16kV Switchgear 00ES-02C01202

 

A-189


Execution Version

 

Volume

/ Book

 

Section

 

Section
Title or
Sub-Sec

 

Sub
Title

 

SubSub
Section

 

SubSub
Title

 

Document Number

 

Rev

 

Description

            25744-200-E1-02C01-00021   00B   Electrical - One-Line Diagram - 480V Switchgear 00ECM-02C01202A
            25744-200-E1-02C01-00026   00B   Electrical - One-Line Diagram - 480V Switchgear 00ECM-02C01202B
            25744-200-E1-02C01-00030   00B   Electrical - One-Line Diagram - 4.16kV Switchgear 00ES-02C01203
            25744-200-E1-02C01-00031   00B   Electrical - One-Line Diagram - 480V Switchgear 00ECM-02C01203A
            25744-200-E1-02C01-00036   00B   Electrical - One-Line Diagram - 480V Switchgear 00ECM-02C01203B
            25744-200-E1-02C01-00040   00B   Electrical - One-Line Diagram - 480V Switchgear 00EK-02C01301
            25744-200-E1-02D01-00001   00B   Electrical - One-Line Diagram - 13.8 Switchgear 00ES-02D01101
            25744-200-E1-02D01-00020   00B   Electrical - One-Line Diagram - 480V Switchgear 00EK-02D01301
            25744-200-E1-02D01-00030   00C   Electrical - One-Line Diagram - 13.8kV SWGR 00ES-02D01102
            25744-200-E1-02D01-00040   00B   Electrical - One-Line Diagram - 4.16kV Switchgear 00ES-02D01201
            25744-200-E1-02D01-00041   00B   Electrical - One-Line Diagram - 4.16kV Switchgear 00ECM-02D01201A
            25744-200-E1-02D01-00046   00B   Electrical - One-Line Diagram - 4.16kV Switchgear 00ECM-02D01201B
            25744-200-E1-02D01-00050   00C   Electrical - One-Line Diagram - 4.16kV Switchgear 00ES-02D01202
            25744-200-E1-02D01-00051   00C   Electrical - One-Line Diagram - 4.16kV MCC 00ECM-02D01202A
            25744-200-E1-02D01-00056   00C   Electrical - One-Line Diagram - 4.16kV MCC 00ECM-02D01202B

 

A-190


Execution Version

 

Volume

/ Book

 

Section

 

Section
Title or
Sub-Sec

 

Sub
Title

 

SubSub
Section

 

SubSub
Title

 

Document Number

 

Rev

 

Description

            25744-200-E1-02D01-00060   00B   Electrical - One-Line Diagram - 4.16kV MCC 00ES-02D01203
            25744-200-E1-02D01-00061   00B   Electrical - One-Line Diagram - 4.16kV MCC 00ECM-02D01203A
            25744-200-E1-02D01-00066   00B   Electrical - One-Line Diagram - 4.16kV MCC 00ECM-02D01303B
            25744-200-E1-02D01-00069   00B   Electrical - One-Line Diagram - Standby Power System Notes
            25744-200-E1-02D01-00070   00B   Electrical - One-Line Diagram - 480V Switchgear 00EK-02D01303
            25744-200-E1-04A01-00010   00B   Electrical - One-Line Diagram - 480V Switchgear 00EK-04A01301
            25744-200-E1-04A02-00010   00B   Electrical - One-Line Diagram - 480V Switchgear 00EK-04A02301
            25744-200-E1-05A01-00010   00B   Electrical - One-Line Diagram - 480V Switchgear 00EK-05A01301
            25744-200-E1-10-00001   00D   Electrical - One-Line Diagram -Legends and Symbols
            25744-200-E1-10-00002   00F   Electrical - Overall One-Line Diagram - Main Substation and Switchyard
            25744-200-E1-10-00003   00F   Electrical - Overall One-Line Diagram - Utility-BOG Substation and Bldgs
            25744-200-E1-10-00004   00F   Electrical - Overall One-Line Diagram - LNG Loading Substation
            25744-200-E1-10-00005   00E   Electrical - Overall One-Line Diagram - Air Compressor Substation
            25744-200-E1-10-00006   00E   Electrical - Overall One-Line Diagram - Train 1 ISBL
            25744-200-E1-10-00007   00C   Electrical - One-Line Diagram - Typical 13.8kV Feeders

 

A-191


Execution Version

 

Volume

/ Book

 

Section

 

Section
Title or
Sub-Sec

 

Sub
Title

 

SubSub
Section

 

SubSub
Title

 

Document Number

 

Rev

 

Description

            25744-200-E1-10-00008   00A   Electrical - One-Line Diagram - Typical UPS System-60kVA and Smaller
            25744-200-E1-10-00009   00A   Electrical - One-Line Diagram - Typical UPS System-Larger than 60kVA
            25744-200-E1-31A02-00020   00B   Electrical - One-Line Diagram - 480V Switchgear 11EK-31A02301
            25744-200-E1-31A02-00030   00B   Electrical - One-Line Diagram - 480V Switchgear 11EK-31A02302
            25744-200-E1-31A02-00040   00B   Electrical - One-Line Diagram - 480V Switchgear 11EK-31A02303
            25744-200-E1-31N02-00010   00B   Electrical - One-Line Diagram - 4.16kV Switchgear 11ES-31N02201
            25744-200-E1-31N02-00011   00B   Electrical - One-Line Diagram - 4.16kV MCC 11ECM-31N02201A
            25744-200-E1-31N02-00016   00B   Electrical - One-Line Diagram - 4.16kV MCC 11ECM-31N02201B
            25744-200-E1-31N02-00020   00B   Electrical - One-Line Diagram - 480V Switchgear 11EK-31N02301
            25744-200-E1-31N02-00030   00B   Electrical - One-Line Diagram - 480V Switchgear 11EK-31N02302
            25744-200-E1-31N02-00040   00B   Electrical - One-Line Diagram - 480V Switchgear 11EK-31N02303
            25744-200-E1-32N02-00010   00B   Electrical - One-Line Diagram - 4.16kV Switchgear 12ES-32N02201
            25744-200-E1-32N02-00011   00B   Electrical - One-Line Diagram - 4.16kV MCC 12ECM-32N02201A
            25744-200-E1-32N02-00016   00B   Electrical - One-Line Diagram - 4.16kV MCC 12ECM-32N02201B
            25744-200-E1-33N02-00010   00B   Electrical - One-Line Diagram - 4.16kV Switchgear 23ES-33N02201

 

A-192


Execution Version

 

Volume

/ Book

 

Section

 

Section
Title or
Sub-Sec

 

Sub
Title

 

SubSub
Section

 

SubSub Title

 

Document Number

 

Rev

 

Description

            25744-200-E1-33N02-00011   00B   Electrical - One-Line Diagram - 4.16kV MCC 23ECM-33N02201A
            25744-200-E1-33N02-00016   00B   Electrical - One-Line Diagram - 4.16kV MCC 23ECM-33N02201B
        5.3.2   Conceptual Substation Layouts      
            25744-200-E4-02B01-00004   00D   Electrical - Equipment Arrangement - Air Compressor Substation 00A-4031
            25744-200-E4-02C01-00003   00D   Electrical - Equipment Arrangement - LNG Loading Substation 00A-4032
            25744-200-E4-02D01-00001   00D   Electrical - Equipment Arrangement - Main Substation 00A-4029 and Switchyard
            25744-200-E4-05A01-00001   00B   Electrical - Equipment Arrangement - Control Bldg Substation 00A-4041
            25744-200-E4-20D01-00002   00D   Electrical - Equipment Arrangement - OSBL - Utility-BOG Substation 00A-4005
            25744-200-E4-31A02-00001   00D   Electrical - Equipment Arrangement - Train 1 - Compressor Substation 11A-4010
            25744-200-E4-31N02-00001   00D   Electrical - Equipment Arrangement - Train 1 - Propane Substation 11A-4011
        5.3.3   Conceptual Main Cable Tray Routing Diagrams      
            25744-200-ER-000-00001   00A   Electrical - Conceptual Cable Tray Routing - ISBL
            25744-200-ER-000-00002   00A   Electrical - Conceptual Cable Tray Routing - OSBL
            25744-200-ER-000-00003   00B   Electrical - Conceptual Ductbank Routing - OSBL

 

A-193


Execution Version

 

Volume

/ Book

 

Section

 

Section
Title or
Sub-Sec

 

Sub
Title

 

SubSub
Section

 

SubSub Title

 

Document Number

 

Rev

 

Description

            25744-200-ER-000-00005   00A   Electrical - Conceptual 138kV Routing - ISBL
            25744-200-ER-000-00006   00A   Electrical - Conceptual 138kV Underground Routing - OSBL
        5.3.4   Electrical Load List (Confidential) (Refer to confidential FEED Deliverables Volume 5)      
            25744-200-E8-000-00001   00E   CoP Level III Confidential - Electrical Load List
        5.3.5   Area Classification Drawings      
            25744-200-E3-000-00001   00F   Electrical - Liquefaction Facilities - Area Classification Plan - Sheets 1-4
            25744-200-E3-000-00002   00G   Distances Between Potential HC Releases and Air Intakes
        5.3.6   Telecommunications Block Diagrams      
            25744-200-E6-000-00001   00B   Electrical Telecommunications Overall Block Diagram - OSBL
            25744-200-E6-000-00002   00A   Electrical Telecommunications Overall Block Diagram - ISBL
            25744-200-EF-000-00001   00I   Electrical CCTV Camera Locations
            25744-200-EF-000-00002   00F   Electrical Loudspeaker and Strobe Locations
        5.3.7   Electrical Data Sheets      

 

A-194


Execution Version

 

Volume

/ Book

 

Section

 

Section
Title or
Sub-Sec

 

Sub Title

 

SubSub
Section

 

SubSub Title

 

Document Number

 

Rev

 

Description

            25744-200-EDD-ED00-00001   00A   Data Sheet for DC Equipment - Batteries-Battery Chargers
            25744-200-EKD-EKL0-00003   00A   Data Sheet for Packaged and Prefabricated Powerhouses - Prefabricated Building
            25744-200-ESD-ES00-00001   00A   Data Sheet for Gas Insulated Switchgear - High Voltage Gas Insulated Switchgear
    5.4   MARINE          
        5.4.1   Conceptual Marine Drawings      
            25744-200-V24-CM00-00035   003   Grading and Pavement Plan Sheet 1 of 2
            25744-200-V24-CM00-00036   003   Construction Sequence and Notes
            25744-200-V24-CM00-00037   005   Title Sheet - Maps and Drawing Index
            25744-200-V24-CM00-00038   002   General Notes and Criteria
            25744-200-V24-CM00-00039   002   General Marine Terminal Plan
            25744-200-V24-CM00-00040   002   West LNG Berth General Arrangement
            25744-200-V24-CM00-00042   002   LNG Berth General Arrangement Elevation and Section
            25744-200-V24-CM00-00043   003   Mooring Arrangement Plan 70 kcum Vessel
            25744-200-V24-CM00-00044   003   Mooring Arrangement Plan 87 kcum Vessel
            25744-200-V24-CM00-00045   003   Mooring Arrangement Plan 135 kcum Vessel

 

A-195


Execution Version

 

Volume

/ Book

 

Section

 

Section
Title or
Sub-Sec

 

Sub
Title

 

SubSub
Section

 

SubSub
Title

 

Document Number

 

Rev

 

Description

            25744-200-V24-CM00-00046   003   Mooring Arrangement Plan 210 kcum Vessel
            25744-200-V24-CM00-00047   002   Mooring Arrangement Plan 265 kcum Vessel
            25744-200-V24-CM00-00048   002   Topographic Survey Sheet 1 of 2
            25744-200-V24-CM00-00049   002   Topographic Survey Sheet 2 of 2
            25744-200-V24-CM00-00050   002   Shoreline Protection Plan
            25744-200-V24-CM00-00051   002   Shoreline Protection Sections and Details
            25744-200-V24-CM00-00052   002   Marine Loading Arm Operating Envelope
            25744-200-V24-CM00-00053   002   Access Gangway Operating Envelope
            25744-200-V24-CM00-00054   002   Loading Platform Plan
            25744-200-V24-CM00-00055   002   Unloading Platform Elevation and Section
            25744-200-V24-CM00-00056   002   Unloading Platform Sections
            25744-200-V24-CM00-00057   002   Loading Platform Framing Plan
            25744-200-V24-CM00-00058   002   Breasting Dolphin Plan and Elevation
            25744-200-V24-CM00-00059   002   Mooring Dolphin Plan and Elevation
            25744-200-V24-CM00-00060   002   Catwalk Plan - Elevation - Sections and Details

 

A-196


Execution Version

 

Volume

/ Book

 

Section

 

Section
Title or
Sub-Sec

 

Sub
Title

 

SubSub
Section

 

SubSub
Title

 

Document Number

 

Rev

 

Description

            25744-200-V24-CM00-00061   003   West Berth Trestle Plan and Elevation
            25744-200-V24-CM00-00062   002   East Berth Trestle Plan and Elevation
            25744-200-V24-CM00-00063   002   Trestle - Typical Section and Abutment Details
            25744-200-V24-CM00-00064   003   Ro-Ro - Construction and Tug Boat Docks - Plan
            25744-200-V24-CM00-00065   003   Ro-Ro - Construction and Tug Boat Docks - Sections and Detail
            25744-200-V24-CM00-00067   002   Boat Ramp – Plan and Sections
            25744-200-V24-CM00-00073   003   Title Sheet - Maps and Drawing Index
            25744-200-V24-CM00-00074   003   General Notes
            25744-200-V24-CM00-00075   003   Bathymetric Survey
            25744-200-V24-CM00-00076   002   Site Plan and Dredge Material Placement Area Plan
            25744-200-V24-CM00-00077   002   Dredging Plan
            25744-200-V24-CM00-00078   002   Dredging Sections Sheet 1 of 3
            25744-200-V24-CM00-00079   002   Dredging Sections Sheet 2 of 3
            25744-200-V24-CM00-00080   002   Dredging Sections Sheet 3 of 3
            25744-200-V24-CM00-00081   002   Navigation Aids

 

A-197


Execution Version

 

Volume

/ Book

 

Section

 

Section
Title or
Sub-Sec

 

Sub Title

 

SubSub
Section

 

SubSub Title

 

Document Number

 

Rev

 

Description

            25744-200-V24-CM00-00083   002   Bulkhead Wingwalls – Elevations
            25744-200-V24-CM00-00084   002   Miscellaneous Details
            25744-200-G65-GER-0001   00A   Drawing Revisions for Marine Facilities and Dredging Subcontract
            25744-200-G65-GER-0002   00A   Drawing Revisions for Marine Design LNG Carrier Characteristics
        5.4.2   Ship-To-Shore Compatibility      
            25744-200-G65-GER-00004   00A   Terminal Information for SIGTTO Ship-To-Shore Compatibility
  6.0   FUTURE AAV’S            
    6.1   Design Basis Facility Operation          
            25744-100-30Y-G03-00001   000   Design Basis: Facility Operation
    6.2   UNIT 56 - LNG VAPORIZATION AND SENDOUT          
        6.2.1   Process Flow Diagrams      
            25744-100-M5-0056-00001   00B   Process Flow Diagram - LNG Vaporization - Sendout
        6.2.2   P&I Diagrams      

 

A-198


Execution Version

 

Volume

/ Book

 

Section

 

Section
Title or
Sub-Sec

 

Sub
Title

 

SubSub
Section

 

SubSub
Title

 

Document Number

 

Rev

 

Description

            25744-100-M6-0056-00005   00B   P and ID - BOG Booster Compressor
            25744-100-M6-0056-00006   00E   P and ID - Boil Off Gas Recondenser
            25744-100-M6-0056-00011   00D   P and ID - LNG Sendout Pumps
            25744-100-M6-0056-00012   00C   P and ID Ambient Air Vaporizers Inlet Manifold
            25744-100-M6-0056-00013   00B   P and ID - Ambient Air Vaporizers 00E-5601 A-D
            25744-100-M6-0056-00014   00B   P and ID - Ambient Air Vaporizers 00E-5601 E-H
            25744-100-M6-0056-00015   00B   P and ID - Ambient Air Vaporizers 00E-5601 I-L
            25744-100-M6-0056-00016   00B   P and ID - Ambient Air Vaporizers 00E-5601 M-P
            25744-100-M6-0056-00017   00B   P and ID - Ambient Air Vaporizers 00E-5601 Q-R
            25744-100-M6-0056-00018   00B   P and ID - Ambient Air Vaporizers 00E-5602 A-D
            25744-100-M6-0056-00019   00B   P and ID - Ambient Air Vaporizers 00E-5602 E-H
            25744-100-M6-0056-00020   00B   P and ID - Ambient Air Vaporizers 00E-5602 I-L
            25744-100-M6-0056-00021   00B   P and ID - Ambient Air Vaporizers 00E-5602 M-P
            25744-100-M6-0056-00022   00B   P and ID - Ambient Air Vaporizers 00E-5602 Q-R
            25744-100-M6-0056-00023   00C   P and ID - Ambient Air Vaporizers Discharge Manifolds

 

A-199


Execution Version

 

Volume

/ Book

 

Section

 

Section
Title or
Sub-Sec

 

Sub
Title

 

SubSub
Section

 

SubSub
Title

 

Document Number

 

Rev

 

Description

        6.2.3   Process Data Sheets      
            25744-100-MEA-0056-05601   00B   Process Data Sheet Air Cooled Heat Exchanger - Ambient Air Vaporizers

 

A-200


ATTACHMENT B

CONTRACTOR DELIVERABLES FOR STAGE 1

 

1. Document Formats

Contractor shall provide engineering, procurement, construction, technical data books, turnover documents and operating and maintenance documentation for all aspects of the Work. Documents (including Drawings) developed by Contractor, Subcontractors, Sub-subcontractors, original Equipment manufacturers and Equipment suppliers shall conform to the following:

 

  1. All documents required by this Agreement to be submitted by Contractor to Owner shall be covered by a sequentially numbered transmittal accessible by Owner via an ‘Electronic Data Room’.

 

  2. Contractor shall use industry standard 2D and/or 3D computer aided drawing systems (CAD). All final 2D / 3D CAD Drawing files generated by the Contractor must be compatible with one of either AutoCAD or MicroStation format (s). File levels (layers) of drawing attributes shall be retained in the original level structure and intelligence, wherever practical.

 

  3. Software used for word processing shall be Microsoft Word.

 

  4. Software used for spreadsheets shall be Microsoft Excel.

 

  5. Hand-written documentation shall be minimized and scanned to a pdf file.

 

  6. All documents shall be produced in a clear readable and reproducible manner.

 

  7. Each page of a document shall clearly indicate, on the document, the document number, revision or version number (or alpha designation) and a sequential page number.

 

  8. All Adobe pdf documents produced by software listed in this Attachment B shall be in searchable format.

 

  9. Software used for scheduling shall be compatible with Primavera Project Planner, P6 Version 7.

 

  10. Specific tag numbers shall be uniformly formatted on all documents (e.g., S-106 on a P&ID shall be S-106 on all data sheets; not S106 nor S 106 or S_106).

 

2. Progress Reviews

Subject to Section 3.3C of the Agreement, during the development of the Drawings and Specifications, Contractor shall provide Owner with reasonable opportunity, consistent with engineering, procurement and construction industry standards, to perform reviews of the design and engineering in progress, provided that such reviews do not unreasonably interfere with performance of the Work. Such reviews may be conducted at Contractor’s office located in Houston, Texas or the offices of its Subcontractors, Sub-subcontractors, original Equipment manufacturers and Equipment suppliers. The reviews may be of progress prints, computer images, draft documents, working calculations, draft specifications or reports, Drawings, Specifications or other design documents as agreed to by Contractor and Owner. The Parties

 

B-1


acknowledge that any Owner instructions to Contractor during such reviews will have no effect unless Owner provides such instructions in writing to Contractor or unless Contractor provides written notice of the instruction and Contractor’s compliance to Owner and Owner fails to object.

 

3. Documents for Owner Approval for New Scope

In addition to any other documents which Contractor is required by the other provisions of the Agreement to provide for Owner’s approval, Contractor shall submit copies of the following documents to Owner for formal review and comment. Subject to Section 3.3C of the Agreement, approval will only be required for deliverables relevant to new scope of work beyond the Work defined in Attachment A, including the FEED Documents. Following initial approval by Owner of such documents, Owner rights shall be according to Section 3.3C of the Agreement.

 

  a. Process flow diagrams (PFDs)

 

  b. Heat and material balances

 

  c. Piping and Instrument Diagrams (P&IDs)

 

  d. New HAZOP reports and disposition of HAZOP/SIL action items identified in the FEED Documents

 

  e. Plot plans

 

  f. Fire and gas detector layouts

 

  g. Fire monitor water radius layouts

 

  h. Tie-In location drawing

 

  i. Electrical area classification drawings

 

  j. Building layouts

 

  k. Material selection diagrams

 

  l. Facility Performance Test reports

Quarterly updates of a comprehensive table of contents of the Electronic Data Room which lists documents and Drawings submitted by Contractor to Owner for approval shall be provided by Contractor to Owner.

 

4. Documents for Owner Review

In addition to any other documents which Contractor is required by the other provisions of the Agreement to provide for Owner’s review, Contractor shall submit copies of the following documents, Drawings and Specifications to Owner for review and comment. These documents are not subject to Owner approval; however, Contractor will consider all Owner comments consistent with Attachment A, including the Basis of Design, Design Criteria/Basis, Feed Documents and Drawings and Specifications updated during performance of the Work. In addition, Owner may select other documents with the agreement of Contractor.

 

  a. Process flow diagrams (PFDs)

 

  b. Heat and material balances

 

  c. Piping and Instrument Diagrams (P&IDs)

 

B-2


  d. New HAZOP reports and disposition of HAZOP/SIL action items identified in the FEED Documents

 

  e. Plot plans

 

  f. Fire and gas detector layouts

 

  g. Fire monitor water radius layouts

 

  h. Tie-In location drawing

 

  i. Electrical area classification drawings

 

  j. Building layouts

 

  k. Material selection diagrams

 

  l. Facility Performance Test reports

 

  m. Piping Specifications

 

  n. Underground piping plans

 

  o. 3-D model Vue file

 

  p. Lists (formats and attributes of lists will be based on Contractor standard formats and attributes)

 

  1) Table of Content List (quarterly update of documents submitted by Contractor to Owner of for Approval or Review)

 

  2) Electrical Equipment List

 

  3) Equipment List

 

  4) Instrument List

 

  5) Line List

 

  6) Purchase Order List

 

  7) Specialty Items List

 

  8) Tie-In List

 

  9) Valve List

 

  q. Civil Pile Schedule

 

  r. Electrical one-line diagrams

 

  s. Minutes and reports of HAZOP reviews and management of change reviews

 

  t. Minutes and reports of safety integrity level (SIL) meetings

 

  u. Key plans

 

  v. Electrical area classification Drawings

 

  w. Equipment data sheets

 

  x. Equipment Specifications

 

  y. Instrument data sheets

 

  z. Pressure safety valve (PSV) data sheets

 

B-3


  aa. Standard detail Drawings

 

  bb. Symbols and Legends P&ID

 

  cc. Corrosion control Specifications

 

  dd. Painting and coating Specifications and charts

 

  ee. Insulation system Specifications

 

  ff. Technical evaluation for all materials and Equipment

 

  gg. Acceptance test procedures for all Major Equipment and packages (by vendors)

 

  m. Factory acceptance test reports

 

  hh. Recommended spare parts lists (2 year operating spares)

 

  ii. For cost reimbursable purchases, Subcontract or Sub-subcontract and a complete commercial and technical evaluation

Quarterly updates of a comprehensive table of contents of the Electronic Data Room which lists documents and Drawings submitted by Contractor to Owner for review and information shall be provided by Contractor to Owner.

 

5. Review Periods

Owner shall have up to ten (10) Business Days from its receipt of the documents listed in Sections 1.3 and 1.4 above, to issue to Contractor written comments on such documents, Drawings and Specifications. The Owner’s approval rights only apply to documents listed in Section 1.3. If comments are not received for items listed in Section 1.3 in ten (10) Business Days, the Contractor may proceed with the development of the Drawings and Specifications with the design reflected in the uncommented document. Owner will annotate the Drawings and Specifications as appropriate and return to Contractor. In the event that Owner disapproves the Drawings or Specifications, Owner shall provide Contractor with a written statement of the reasons for such rejection within the time period required for Owner’s response, and Contractor shall provide Owner with agreed to revised and corrected Drawings and Specifications as soon as possible thereafter.

 

6. Record Drawings and Specifications

Contractor shall deliver to Owner the documents, Record Drawings and Specifications listed in A through E below. All Record Drawings shall be provided in their native formats, fully functioning. Scanned documents, searchable “pdf” and other non-editable formats are acceptable only for Subcontract (including Equipment Supplier) records where Contractor can not obtain the native format, or where approved as an exception by Owner. Any .pdf document shall be in searchable format.

Record Drawings and Specifications shall be handed over in hard copy printed format, and in electronic format by digital video disks (DVDs), compact disks (CDs) or USB flash drives (USBs). DVDs, CDs or USBs shall have a specific index of DVD/CD/USB contents on each DVD/CD/USB in “Document Register” format that includes the document number, title, revision and location of Hard copy in book. Each DVD/CD/USB shall be organized in a logical structure by discipline. A master Table of Contents shall be prepared to detail the contents of all handover DVDs/CDs/USBs and books listed by DVD/CD/USB/book numbers and contents. Record

 

B-4


Drawings shall be inclusive of all documented (DCNs, FCDs or NCRs) design changes and field changes made up to Substantial Completion with “Record Drawing” in the revision block or with an as-built stamp.

Hand annotations on CAD prepared Record Drawings and Specifications are not permitted.

 

  A. Drawings and Diagrams

 

  1) Piping and Instrument Diagrams (P&IDs)

 

  2) Plot Plans

 

  3) Civil

 

  (a) Civil Site Development

 

  (b) Civil Site Plans

 

  (c) Concrete Drawings

 

  4) Control System

 

  (a) Block Diagram

 

  (b) Cause & Effect Diagram

 

  (c) Instrument Index

 

  (d) Instrument Installation Details

 

  (e) Loop Drawings

 

  5) Electrical

 

  (a) Area Classification

 

  (b) One Line Diagram

 

  (c) Schematics

 

  6) Piping

 

  (a) Equipment Location Plan

 

  7) Fire Water Piping

 

  (a) Fire Water Piping Standard Drawings

 

  (b) Fire Monitor Water Radius Layout

 

  B. Project Specification for Process Design Basis

 

  C. All Underground piping and electrical plans with Survey Points

 

  D. Start up, operating and maintenance manuals

 

  E. Performance Test reports (required to be delivered with Substantial Completion Certificate)

 

7. Turnover Documents

Contractor shall deliver to Owner the turnover documents including, but not limited to, those documents and Drawings listed in (a) through (ff) below. All turnover documents shall be provided in their native formats, fully functioning; however, turnover documents may contain clearly legible hand annotations if necessary, provided a scanned or “.pdf” file of the annotated document is also provided along with the native file. Scanned documents, searchable “.pdf”, and other non-editable formats are acceptable only for supplier, Subcontract or Sub-subcontract

 

B-5


records where Contractor cannot obtain the native format, or where approved as an exception by Owner. All .pdf documents shall be in searchable format unless the .pdf is submitted to reflect hand annotations.

Turnover documents shall be handed over in hard copy printed format, and in electronic format by digital video disks (DVDs), compact disks (CDs) or USB flash drives (USBs). DVDs, CDs or USBs shall have a specific index of DVD/CD/USB contents on each DVD/CD/USB in “Document Register” format that includes the document number, title and revision. Each DVD/CD/USB shall be organized in a logical structure by discipline. A master Table of Contents index shall be prepared to detail the contents of all handover DVDs/CDs/USBs or books listed by DVD/CD/USB/book numbers and contents. Turnover Documents shall be the last revision issued by Contractor, in addition to the Record Drawings and Specifications listed in Section 1.6.

 

  a. Process flow diagrams (PFDs)

 

  b. Heat and material balances

 

  c. Architectural Building Drawings

 

  d. Architectural Details and Notes

 

  e. Architectural Elevations

 

  f. Architectural HVAC

 

  g. Architectural Electrical & Lighting

 

  h. Instrument Location Plans

 

  i. Electrical Cable Tray

 

  j. Electrical Grounding

 

  k. Electrical Lighting

 

  l. Telecommunications

 

  m. Mechanical Detail Drawings

 

  n. Piping Key Plan Index

 

  o. Piping Isometrics

 

  p. Piping Standard Drawings

 

  q. Structural Steel Layouts

 

  r. Structural Steel Details

 

  s. Structural Steel Supports

 

  t. Structural Steel Standard Drawings

 

  u. Mechanical Start-up, Operating and Maintenance Manuals

 

  v. Vendor Data Books

 

  w. Aboveground Power Plans (Cabling)

 

  x. Piping Fabrication and Installation Specifications

 

B-6


  y. Piping Material Specifications

 

  z. Mechanical Equipment Data Sheets (vendor or Contractor as appropriate)

 

  aa. Material Selection Diagrams

 

  bb. Quality records and certification documentation

 

  cc. Tie-in Drawings

 

  dd. Electrical Equipment list

 

  ee. Mechanical Equipment list

 

  ff. Line Designation Table (Line lists)

 

8. Document Turnover Details

Record Drawings (Section 1.6 above) and Turnover Documents (Section 1.7 above) shall conform to format and ‘As-Built’ designations as indicated on the Table B-1 “Document Turnover Details” attached and incorporated into this Attachment B.

 

B-7


TABLE B-1

Corpus Christi Liquefaction Project: Document Turnover Details

 

Section

  

Document

  

Turnover Format

  

As Built?
(Y/N)(See
Note 1)

  

Comments

1.6 Record drawings and specifications

1.6(A1)    Piping and Instrumentation Diagrams    Microstation    Y    Note 1
1.6(A2)    Plot Plans    Microstation    Y   
1.6(A3)    Civil: Site Development    Microstation    Y    Note 1
1.6(A3)    Civil: Site plan    Microstation    Y    Note 1
1.6(A3)    Civil: Concrete Drawings    Microstation    Y    Piles: As-Built only for out of tolerance installation. Underground concrete: As-Built if major change to design drawings
1.6(A4)    Control System: Block Diagram    Microstation    Y   
1.6(A4)    Control System: Cause & Effect Diagram    MS Excel    Y    Owner to provide format based on Sabine Pass Liquefaction format.
1.6(A4)    Control System: Instrument Index    MS Excel    Y    Owner to provide format based on Sabine Pass Liquefaction format.
1.6(A4)    Control System: Instrument Installation Details    Microstation    Y   
1.6(A4)    Control System: Loop Drawings    pdf    Y    Native not possible to provide
1.6(A5)    Electrical: Hazardous Area Classification Drawings    Microstation    Y   
1.6(A5)    Electrical: One-Line Diagrams    Microstation    Y   
1.6(A5)    Electrical: Schematics    Microstation    Y   

 

B-8


TABLE B-1

Corpus Christi Liquefaction Project: Document Turnover Details

 

Section

  

Document

  

Turnover Format

  

As Built?
(Y/N)(See
Note 1)

  

Comments

1.6(A6)    Piping: Equipment Location Plan    Microstation    Y   
1.6(A7)    Fire Water Piping: Standard Drawings    Microstation    Y   
1.6(A7)    Fire Water Monitor Radius Layout    Microstation    Y   
1.6(B)    Project Specifications for Process Design Basis    MS Word    Y   
1.6(C)    All Piping and Electrical Underground Plans with Survey Points    Microstation    Y   
1.6(D)    Start-up, operating and maintenance manuals    MS Word    Y   
1.6(E)    Performance Test reports    MS Word    Y   

1.7 Turnover Documents

1.7(a)    Process Flow Diagrams (PFDs) and Utility Flow Diagrams (UFDs)    Microstation    N    PFDs and UFDs will be updated and revised as required to reflect the final changes in EPC phase. Record PFD will have in Rev Block: “FINAL ISSUE MATCHING P&ID AS-BUILT”
1.7(b)    Heat and Material Balances    Excel    N   
1.7(c)    Architectural: Building Drawings    Bechtel: Microstation    N    * Bechtel: concept drawings, revised if substantial change. Subcontract: Ask subcontractor for Native CAD (Basic Structural)
1.7(d)    Architectural: Details and Notes    Bechtel: Microstation    N    * Bechtel: concept drawings, revised if substantial change. Subcontract: Ask subcontractor for Native CAD (Basic Structural)

 

B-9


TABLE B-1

Corpus Christi Liquefaction Project: Document Turnover Details

 

Section

  

Document

  

Turnover Format

  

As Built?
(Y/N)(See
Note 1)

  

Comments

1.7(e)    Architectural: Elevations    Bechtel: Microstation    N    * Bechtel: concept drawings, revised if substantial change. Subcontract: Ask subcontractor for Native CAD (Basic Structural)
1.7(f)    Architectural: HVAC    Bechtel: Microstation    N    Bechtel: concept drawings, revised if substantial change. Subcontract: Ask subcontractor for Native CAD
1.7(g)    Architectural: Electrical & Lighting    Bechtel: Microstation    N    Bechtel: Power Distribution drawings are revised if substantial change. Subcontract: Ask subcontractor for Native CAD
1.7(h)    Control System: Instrument Location Plans    Microstation    N   
1.7(i)    Electrical: Cable Tray    Microstation    N    Only cable tray on main piperacks are as built
1.7(j)    Electrical: Grounding    Microstation    N    Only U/G grounding is as built
1.7(k)    Electrical: Lighting    Microstation    N   
1.7 (l)    Telecommunications    Bechtel: Microstation    N    Bechtel: concept drawings, revised if substantial change. Subcontract: Ask subcontractor for Native CAD. One Line Diagrams are as-built
1.7 (m)    Mechanical: Detail Drawings    PDF    N    As stated in Att “B” section 1.6, Bechtel will ask vendors for searchable pdf
1.7 (n)    Piping: Key Piping Index    MS Excel    N    Owner to provide format based on Sabine Pass Liquefaction format.
1.7 (o)    Piping: Isometrics    Microstation    N   
1.7 (p)    Piping: Standard Drawings    Microstation    N   

 

B-10


TABLE B-1

Corpus Christi Liquefaction Project: Document Turnover Details

 

Section

  

Document

  

Turnover Format

  

As Built?
(Y/N)(See
Note 1)

  

Comments

1.7 (q)    Structural Steel: Layouts    Microstation    N   
1.7 (r)    Structural Steel: Details    Microstation    N   
1.7 (s)    Structural Steel: Supports    Microstation    N   
1.7 (t)    Structural Steel: Standard drawings    Microstation    N   
1.7 (u)    Mechanical - Start-up, operating and maintenance manuals    PDF    N    As stated in Att “B” section 1.6, Bechtel will ask vendors for searchable pdf
1.7 (v)    Vendor Data books    PDF    N    As stated in Att “B” section 1.6, Bechtel will ask vendors for searchable pdf
1.7 (w)    Aboveground Power Plans (Cabling)    Microstation    N   
1.7 (x)    Piping Fabrication and Installation Specifications    MS Word    N   
1.7 (y)    Piping Material Specifications    PDF    N    Pipeworks can extract to word. Not searchable (images)
1.7 (z)    Mechanical Equipment Data Sheets (vendor or Bechtel as appropriate)    MS Excel / PDF    N    PDF for vendor provided data sheets
1.7(aa)    Material Selection Diagram    Microstation    N   
1.7(bb)    Quality records and Certification Documentation    Hard copies    N   
1.7(cc)    Tie-in Drawings    Microstation    N   
1.7(dd)    Electrical Equipment list    MS Excel    N   
1.7(ee)    Mechanical Equipment List    PDF    N   

 

B-11


TABLE B-1

Corpus Christi Liquefaction Project: Document Turnover Details

 

Section

  

Document

  

Turnover Format

  

As Built?
(Y/N)(See
Note 1)

  

Comments

1.7(ff)    Line Designation Table (Line lists)    MS Excel    N   

Note 1: “As-Built” is defined as IFC drawings + DCN’s (Design Change Notices) + FCD’s (Field Change Documents) + NCR’s (Non Conformance Reports)

 

B-12


ATTACHMENT C

PAYMENT SCHEDULE FOR STAGE 1

 

C-1


SCHEDULE C-1

AGGREGATE LABOR AND SKILLS PRICE MILESTONE PAYMENT SCHEDULE

 

C-2


SCHEDULE C-1 AGGREGATE LABOR AND SKILLS PRICE MILESTONE PAYMENT SCHEDULE

CORPUS CHRISTI STAGE 1 LIQUEFACTION PROJECT

Months indicated under the “Month No.” column below is Contractor’s estimate of the date of achievement of the applicable Milestone and Contractor’s entitlement to payment to such Milestone Payment shall be in accordance with Article 7 of the Agreement. The Milestone Achievement Criteria below shall be in addition to the documentation required to be provided by Contractor in accordance with Article 7 of the Agreement. Month #1 is the first Month commencing after issuance of NTP.

 

Month
No.

  

Milestone
No.

  

Description

  

Milestone Achievement Criteria

   Milestone
Percentage
    Cumulative
Value
    Milestone
Value
 

1

   ALS1.1    Deliver Letter of Credit to Owner    Contractor provides report and or letter      ***     ***   $ ***   

1

   ALS1.2    Place Insurance for the CCL Project    Contractor provides report and or letter      ***     ***   $ ***   

2

   ALS2.1    Issue inner wall LNG Tank design IFC    Verified by Progress Report or InfoWorks Report      ***     ***   $ ***   

2

   ALS2.2    Issue LNG Tank design method statement    Verified by Progress Report or InfoWorks Report      ***     ***   $ ***   

2

   ALS2.3    Issue IFD H&MBs AGRU    Verified by Progress Report or InfoWorks Report      ***     ***   $ ***   

3

   ALS3.1    Issue first foundation drawing IFD    Verified by Progress Report or InfoWorks Report      ***     ***   $ ***   

3

   ALS3.2    Issue Project Execution Plan    Contractor provides report and or letter      ***     ***   $ ***   

3

   ALS3.3    Issue Level 2 Calcs for Refrigeration Compressor    Verified by Progress Report or InfoWorks Report      ***     ***   $ ***   

4

   ALS4.1    Issue MRP for Refrigeration Compressors    Verified by Progress Report or InfoWorks Report      ***     ***   $ ***   

4

   ALS4.2    Issue MRP for Cold Boxes    Verified by Progress Report or InfoWorks Report      ***     ***   $ ***   

4

   ALS4.3    Issue MRP for Air Cooled Heat Exchangers    Verified by Progress Report or InfoWorks Report      ***     ***   $ ***   

4

   ALS4.4    Issue MRP for Waste Heat Recovery Unit    Verified by Progress Report or InfoWorks Report      ***     ***   $ ***   

5

   ALS5.1    Issue subcontract or letter of award (LOA) to Civil Site Prep Subcontractor    Provide executed subcontract cover letter sheet of Letter of award (LOA) excluding cost information      ***     ***   $ ***   

5

   ALS5.2    Hold Vendor HAZOP for Refrigeration Compressor    Verified by Progress Report or InfoWorks Report      ***     ***   $ ***   

 

C-3


SCHEDULE C-1 AGGREGATE LABOR AND SKILLS PRICE MILESTONE PAYMENT SCHEDULE

CORPUS CHRISTI STAGE 1 LIQUEFACTION PROJECT

Months indicated under the “Month No.” column below is Contractor’s estimate of the date of achievement of the applicable Milestone and Contractor’s entitlement to payment to such Milestone Payment shall be in accordance with Article 7 of the Agreement. The Milestone Achievement Criteria below shall be in addition to the documentation required to be provided by Contractor in accordance with Article 7 of the Agreement. Month #1 is the first Month commencing after issuance of NTP.

 

Month
No.

  

Milestone
No.

  

Description

  

Milestone Achievement Criteria

   Milestone
Percentage
    Cumulative
Value
    Milestone
Value
 

5

   ALS5.3    Issue IFD Flare System Data Sheets    Verified by Progress Report or InfoWorks Report      ***     ***   $ ***   

6

   ALS6.1    Start work for Subproject 1 (site preparation, rough grade and drainage)    Progress report or equivalent showing start of construction process      ***     ***   $ ***   

6

   ALS6.2    Mobilization of Civil Site Prep Subcontractor    Daily Force report from jobsite that identifies subcontractor presence      ***     ***   $ ***   

6

   ALS6.3    Issue subcontract or letter of award (LOA) to Marine Facilities Subcontractor    Provide executed subcontract cover letter sheet of Letter of award (LOA) excluding cost information      ***     ***   $ ***   

6

   ALS6.4    Issue 1st IFD Process P&IDs    Verified by Progress Report or InfoWorks Report      ***     ***   $ ***   

7

   ALS7.1    Issue subcontract or letter of award (LOA) to Permanent Buildings Subcontractor    Provide executed subcontract cover letter sheet of Letter of award (LOA) excluding cost information      ***     ***   $ ***   

7

   ALS7.2    Issue IFD Process P&IDs—Unit 14 Propane    Verified by Progress Report or InfoWorks Report      ***     ***   $ ***   

7

   ALS7.3    Issue IFD Process P&IDs—Unit 15 Ethylene    Verified by Progress Report or InfoWorks Report      ***     ***   $ ***   

7

   ALS7.4    Issue IFD Process P&IDs—Unit 16 Methane    Verified by Progress Report or InfoWorks Report      ***     ***   $ ***   

8

   ALS8.1    Mobilization of Marine Facilities Subcontractor    Daily Force report from jobsite that identifies subcontractor presence      ***     ***   $ ***   

8

   ALS8.2    Site Plan IFD    Verified by Progress Report or InfoWorks Report      ***     ***   $ ***   

8

   ALS8.3    Complete 30% model review—ISBL Train 1    Contractor will issue Notice of Completion with conference notes      ***     ***   $ ***   

8

   ALS8.4    Issue first equipment location plan drawing IFC    Verified by Progress Report or InfoWorks Report      ***     ***   $ ***   

8

   ALS8.5    Mobilization of Permanent Buildings Subcontractor    Daily Force report from jobsite that identifies subcontractor presence      ***     ***   $ ***   

9

   ALS9.1    Issue first structural steel drawing IFC    Verified by Progress Report or InfoWorks Report      ***     ***   $ ***   

 

C-4


SCHEDULE C-1 AGGREGATE LABOR AND SKILLS PRICE MILESTONE PAYMENT SCHEDULE

CORPUS CHRISTI STAGE 1 LIQUEFACTION PROJECT

Months indicated under the “Month No.” column below is Contractor’s estimate of the date of achievement of the applicable Milestone and Contractor’s entitlement to payment to such Milestone Payment shall be in accordance with Article 7 of the Agreement. The Milestone Achievement Criteria below shall be in addition to the documentation required to be provided by Contractor in accordance with Article 7 of the Agreement. Month #1 is the first Month commencing after issuance of NTP.

 

Month
No.

  

Milestone
No.

  

Description

  

Milestone Achievement Criteria

   Milestone
Percentage
    Cumulative
Value
    Milestone
Value
 

9

   ALS9.2    Issue first foundation drawing IFC    Verified by Progress Report or InfoWorks Report      ***     ***   $ ***   

10

   ALS10.1    Complete 30% model review—OSBL    Contractor will issue Notice of Completion with conference notes      ***     ***   $ ***   

10

   ALS10.2    Issue subcontract or letter of award (LOA) to Field Erected Tanks Subcontractor    Provide executed subcontract cover letter sheet of Letter of award (LOA) excluding cost information      ***     ***   $ ***   

10

   ALS10.3    Issue first electrical standard detail drawing IFC    Verified by Progress Report or InfoWorks Report      ***     ***   $ ***   

11

   ALS11.1    Start work for OSBL (site preparation, rough grade and drainage)    Progress report or equivalent showing start of construction process      ***     ***   $ ***   

11

   ALS11.2    50% Complete of Subproject 1 (site preparation, rough grade and drainage)    Progress report or equivalent showing 50% complete of original budgeted quantity earned      ***     ***   $ ***   

11

   ALS11.3    Issue LNG Tank Foundation drawings IFC    Verified by Progress Report or InfoWorks Report      ***     ***   $ ***   

11

   ALS11.4    Issue LNG Tank Inner Wall drawings IFC    Verified by Progress Report or InfoWorks Report      ***     ***   $ ***   

11

   ALS11.5    Mobilization of Field Erected Tanks Subcontractor    Daily Force report from jobsite that identifies subcontractor presence      ***     ***   $ ***   

12

   ALS12.1    Complete 50% model review—ISBL Train 1    Contractor will issue Notice of Completion with conference notes      ***     ***   $ ***   

12

   ALS12.2    Issue Block 1 P&IDs & LDTs IFC ISBL    Verified by Progress Report or InfoWorks Report      ***     ***   $ ***   

12

   ALS12.3    Issue Block 2 P&IDs & LDTs IFC ISBL    Verified by Progress Report or InfoWorks Report      ***     ***   $ ***   

12

   ALS12.4    Marine Subcontractor starts work on West Jetty    Verified by Progress Report or InfoWorks Report      ***     ***   $ ***   

13

   ALS13.1    Finish work on Train 1 (site preparation, rough grade and drainage)    Progress report or equivalent showing 90% complete of original budgeted quantity earned      ***     ***   $ ***   

13

   ALS13.2    Place first structural concrete for Subproject 1    Progress report or equivalent showing start of construction process      ***     ***   $ ***   

 

C-5


SCHEDULE C-1 AGGREGATE LABOR AND SKILLS PRICE MILESTONE PAYMENT SCHEDULE

CORPUS CHRISTI STAGE 1 LIQUEFACTION PROJECT

Months indicated under the “Month No.” column below is Contractor’s estimate of the date of achievement of the applicable Milestone and Contractor’s entitlement to payment to such Milestone Payment shall be in accordance with Article 7 of the Agreement. The Milestone Achievement Criteria below shall be in addition to the documentation required to be provided by Contractor in accordance with Article 7 of the Agreement. Month #1 is the first Month commencing after issuance of NTP.

 

Month
No.

  

Milestone
No.

  

Description

  

Milestone Achievement Criteria

   Milestone
Percentage
    Cumulative
Value
    Milestone
Value
 

13

   ALS13.3    Place first structural concrete for OSBL    Progress report or equivalent showing start of construction process      ***     ***   $ ***   

13

   ALS13.4    Complete 50% model review—OSBL    Contractor will issue Notice of Completion with conference notes      ***     ***   $ ***   

14

   ALS14.1    50% Complete of OSBL (site preparation, rough grade and drainage)    Progress report or equivalent showing 50% complete of original budgeted quantity earned      ***     ***   $ ***   

14

   ALS14.2    Begin work on LNG Tank A foundation    Progress report or equivalent showing start of construction process      ***     ***   $ ***   

14

   ALS14.3    Issue Block 3&4 P&IDs & LDTs IFC OSBL    Verified by Progress Report or InfoWorks Report      ***     ***   $ ***   

14

   ALS14.4    Issue first A/G ISO drawing IFC    Verified by Progress Report or InfoWorks Report      ***     ***   $ ***   

15

   ALS15.1    Start work for Subproject 2 (site preparation, rough grade and drainage)    Progress report or equivalent showing start of construction process      ***     ***   $ ***   

15

   ALS15.2    Issue Block 3 P&IDs & LDTs IFC ISBL    Verified by Progress Report or InfoWorks Report      ***     ***   $ ***   

15

   ALS15.3    Issue first cable tray / conduit drawing IFC    Verified by Progress Report or InfoWorks Report      ***     ***   $ ***   

15

   ALS15.4    Permanent Buildings Subcontractor starts work for OSBL    Progress report or equivalent showing start of construction process      ***     ***   $ ***   

16

   ALS16.1    50% Complete of Subproject 2 (site preparation, rough grade and drainage)    Progress report or equivalent showing 50% complete of original budgeted quantity earned      ***     ***   $ ***   

16

   ALS16.2    Start installation of Structural Steel for Subproject 1    Progress report or equivalent showing start of construction process      ***     ***   $ ***   

16

   ALS16.3    Issue first one-line diagram drawing IFC    Verified by Progress Report or InfoWorks Report      ***     ***   $ ***   

16

   ALS16.4    Marine Subcontractor starts work on East Jetty    Verified by Progress Report or InfoWorks Report      ***     ***   $ ***   

17

   ALS17.1    Finish work on Subproject 2 (site preparation, rough grade and drainage)    Progress report or equivalent showing 90% complete of original budgeted quantity earned      ***     ***   $ ***   

 

C-6


SCHEDULE C-1 AGGREGATE LABOR AND SKILLS PRICE MILESTONE PAYMENT SCHEDULE

CORPUS CHRISTI STAGE 1 LIQUEFACTION PROJECT

Months indicated under the “Month No.” column below is Contractor’s estimate of the date of achievement of the applicable Milestone and Contractor’s entitlement to payment to such Milestone Payment shall be in accordance with Article 7 of the Agreement. The Milestone Achievement Criteria below shall be in addition to the documentation required to be provided by Contractor in accordance with Article 7 of the Agreement. Month #1 is the first Month commencing after issuance of NTP.

 

Month
No.

  

Milestone
No.

  

Description

  

Milestone Achievement Criteria

   Milestone
Percentage
    Cumulative
Value
    Milestone
Value
 

17

   ALS17.2    Issue first Instrument Index IFC    Verified by Progress Report or InfoWorks Report      ***     ***   $ ***   

17

   ALS17.3    Issue first Instrument Location Plan drawing IFC    Verified by Progress Report or InfoWorks Report      ***     ***   $ ***   

18

   ALS18.1    Start setting Dry Gas KO Drum for Subproject 1    Progress report or equivalent showing start of construction process      ***     ***   $ ***   

18

   ALS18.2    Begin work on LNG Tank C foundation    Progress report or equivalent showing start of construction process      ***     ***   $ ***   

19

   ALS19.1    Place first structural concrete for Subproject 2    Progress report or equivalent showing start of construction process      ***     ***   $ ***   

19

   ALS19.2    Issue subcontract or letter of award (LOA) to Telecommunications Subcontractor    Provide executed subcontract cover letter sheet of Letter of award (LOA) excluding cost information      ***     ***   $ ***   

20

   ALS20.1    Issue first ISBL Loop Diagrams IFC    Verified by Progress Report or InfoWorks Report      ***     ***   $ ***   

20

   ALS20.2    Marine Subcontractor completes dredging for Construction Dock    Verified by Progress Report or InfoWorks Report      ***     ***   $ ***   

20

   ALS20.3    Start installation of Structural Steel for OSBL    Progress report or equivalent showing start of construction process      ***     ***   $ ***   

21

   ALS21.1    Mobilization of Telecommunications Subcontractor    Daily Force report from jobsite that identifies subcontractor presence      ***     ***   $ ***   

21

   ALS21.2    50% complete structural concrete for OSBL    Progress report or equivalent showing 50% complete of construction process      ***     ***   $ ***   

21

   ALS21.3    Start setting first S&T Heat Exchanger for Train 1    Progress report or equivalent showing start of construction process      ***     ***   $ ***   

21

   ALS21.4    50% complete of installation of Structural Steel for OSBL    Progress report or equivalent showing 50% complete of construction process      ***     ***   $ ***   

21

   ALS21.5    Issue subcontract or letter of award (LOA) to Fire & Gas Subcontractor    Provide executed subcontract cover letter sheet of Letter of award (LOA) excluding cost information      ***     ***   $ ***   

 

C-7


SCHEDULE C-1 AGGREGATE LABOR AND SKILLS PRICE MILESTONE PAYMENT SCHEDULE

CORPUS CHRISTI STAGE 1 LIQUEFACTION PROJECT

Months indicated under the “Month No.” column below is Contractor’s estimate of the date of achievement of the applicable Milestone and Contractor’s entitlement to payment to such Milestone Payment shall be in accordance with Article 7 of the Agreement. The Milestone Achievement Criteria below shall be in addition to the documentation required to be provided by Contractor in accordance with Article 7 of the Agreement. Month #1 is the first Month commencing after issuance of NTP.

 

Month
No.

  

Milestone
No.

  

Description

  

Milestone Achievement Criteria

   Milestone
Percentage
    Cumulative
Value
    Milestone
Value
 

21

   ALS21.6    Field Erected Tanks Subcontractor starts work for OSBL    Progress report or equivalent showing start of construction process      ***     ***   $ ***   

22

   ALS22.1    Start setting first Thermal Oxidizer for Subproject 1    Progress report or equivalent showing start of construction process      ***     ***   $ ***   

22

   ALS22.2    Fire & Gas Subcontractor starts work for Subproject 1    Progress report or equivalent showing start of construction process      ***     ***   $ ***   

23

   ALS23.1    Issue subcontract or letter of award (LOA) to Insulation Subcontractor    Provide executed subcontract cover letter sheet of Letter of award (LOA) excluding cost information      ***     ***   $ ***   

23

   ALS23.2    Mobilization of Fire & Gas Subcontractor    Daily Force report from jobsite that identifies subcontractor presence      ***     ***   $ ***   

23

   ALS23.3    Finish work on OSBL (site preparation, rough grade and drainage)    Progress report or equivalent showing 90% complete of original budgeted quantity earned      ***     ***   $ ***   

24

   ALS24.1    50% complete structural concrete for Subproject 1    Progress report or equivalent showing 50% complete of construction process      ***     ***   $ ***   

24

   ALS24.2    Start setting first Lean Solvent Charge Pump for Subproject 1    Progress report or equivalent showing start of construction process      ***     ***   $ ***   

24

   ALS24.3    Start installation of A/G pipe for Subproject 1    Progress report or equivalent showing start of construction process      ***     ***   $ ***   

24

   ALS24.4    Start setting Ethylene Cold Box for Subproject 1    Progress report or equivalent showing start of construction process      ***     ***   $ ***   

25

   ALS25.1    Mobilization of Insulation Subcontractor    Daily Force report from jobsite that identifies subcontractor presence      ***     ***   $ ***   

25

   ALS25.2    Start installation of A/G pipe for OSBL    Progress report or equivalent showing start of construction process      ***     ***   $ ***   

26

   ALS26.1    Start setting first Propane Refrigeration Condenser for Train 1    Progress report or equivalent showing start of construction process      ***     ***   $ ***   

26

   ALS26.2    50% complete of installation of Structural Steel for Subproject 1    Progress report or equivalent showing 50% complete of construction process      ***     ***   $ ***   

 

C-8


SCHEDULE C-1 AGGREGATE LABOR AND SKILLS PRICE MILESTONE PAYMENT SCHEDULE

CORPUS CHRISTI STAGE 1 LIQUEFACTION PROJECT

Months indicated under the “Month No.” column below is Contractor’s estimate of the date of achievement of the applicable Milestone and Contractor’s entitlement to payment to such Milestone Payment shall be in accordance with Article 7 of the Agreement. The Milestone Achievement Criteria below shall be in addition to the documentation required to be provided by Contractor in accordance with Article 7 of the Agreement. Month #1 is the first Month commencing after issuance of NTP.

 

Month
No.

  

Milestone
No.

  

Description

  

Milestone Achievement Criteria

   Milestone
Percentage
    Cumulative
Value
    Milestone
Value
 

26

   ALS26.3    Start setting Propane Compressor for Subproject 1    Progress report or equivalent showing start of construction process      ***     ***   $ ***   

26

   ALS26.4    Start setting CO2 Absorber for Subproject 1    Progress report or equivalent showing start of construction process      ***     ***   $ ***   

27

   ALS27.1    Start installation of Field Mounted Instruments for OSBL    Progress report or equivalent showing start of construction process      ***     ***   $ ***   

27

   ALS27.2    Start installation of Structural Steel for Subproject 2    Progress report or equivalent showing start of construction process      ***     ***   $ ***   

27

   ALS27.3    Start setting BOG Compressors for Subproject 1    Progress report or equivalent showing start of construction process      ***     ***   $ ***   

27

   ALS27.4    Roof raise of LNG Tank A    Progress report or equivalent showing start of construction process      ***     ***   $ ***   

28

   ALS28.1    Start installation of Field Mounted Instruments for Subproject 1    Progress report or equivalent showing start of construction process      ***     ***   $ ***   

28

   ALS28.2    Start setting Methane Compressor for Subproject 1    Progress report or equivalent showing start of construction process      ***     ***   $ ***   

28

   ALS28.3    Start setting Ethylene Compressor for Subproject 1    Progress report or equivalent showing start of construction process      ***     ***   $ ***   

28

   ALS28.4    Start Hydro Testing A/G Pipe for OSBL    Progress report or equivalent showing start of construction process      ***     ***   $ ***   

28

   ALS28.5    Telecommunications Subcontractor starts work for Subproject 1    Progress report or equivalent showing start of construction process      ***     ***   $ ***   

29

   ALS29.1    Start setting first Lean Solvent Booster Pump for Subproject 1    Progress report or equivalent showing start of construction process      ***     ***   $ ***   

29

   ALS29.2    Start setting first Heat Exchanger for Subproject 1    Progress report or equivalent showing start of construction process      ***     ***   $ ***   

29

   ALS29.3    Start setting first Mechanical Flare Equipment for Subproject 1    Progress report or equivalent showing start of construction process      ***     ***   $ ***   

 

C-9


SCHEDULE C-1 AGGREGATE LABOR AND SKILLS PRICE MILESTONE PAYMENT SCHEDULE

CORPUS CHRISTI STAGE 1 LIQUEFACTION PROJECT

Months indicated under the “Month No.” column below is Contractor’s estimate of the date of achievement of the applicable Milestone and Contractor’s entitlement to payment to such Milestone Payment shall be in accordance with Article 7 of the Agreement. The Milestone Achievement Criteria below shall be in addition to the documentation required to be provided by Contractor in accordance with Article 7 of the Agreement. Month #1 is the first Month commencing after issuance of NTP.

 

Month
No.

  

Milestone
No.

  

Description

  

Milestone Achievement Criteria

   Milestone
Percentage
    Cumulative
Value
    Milestone
Value
 

29

   ALS29.4    Start installation of A/G pipe for Subproject 2    Progress report or equivalent showing start of construction process      ***     ***   $ ***   

29

   ALS29.5    Start Hydro Testing A/G Pipe for Subproject 1    Progress report or equivalent showing start of construction process      ***     ***   $ ***   

30

   ALS30.1    50% complete of installation of A/G pipe for Subproject 1    Progress report or equivalent showing 50% complete of construction process      ***     ***   $ ***   

30

   ALS30.2    50% complete of installation of A/G pipe for OSBL    Progress report or equivalent showing 50% complete of construction process      ***     ***   $ ***   

30

   ALS30.3    Start installation of Electrical Cable for Subproject 1    Progress report or equivalent showing start of construction process      ***     ***   $ ***   

30

   ALS30.4    Start installation of Electrical Cable for OSBL    Progress report or equivalent showing start of construction process      ***     ***   $ ***   

30

   ALS30.5    Begin work on LNG Tank A inner wall    Progress report or equivalent showing start of construction process      ***     ***   $ ***   

30

   ALS30.6    Permanent Buildings Subcontractor finishes work for OSBL    Progress report or equivalent showing 90% complete of construction process      ***     ***   $ ***   

30

   ALS30.7    Fire & Gas Subcontractor finishes work for Subproject 2    Progress report or equivalent showing 90% complete of construction process      ***     ***   $ ***   

30

   ALS30.8    Insulation Subcontractor starts work for Subproject 1    Progress report or equivalent showing start of construction process      ***     ***   $ ***   

31

   ALS31.1    Complete structural concrete for OSBL    Progress report or equivalent showing 90% complete of construction process      ***     ***   $ ***   

31

   ALS31.2    Roof raise of LNG Tank C    Progress report or equivalent showing start of construction process      ***     ***   $ ***   

32

   ALS32.1    50% complete structural concrete for Subproject 2    Progress report or equivalent showing 50% complete of construction process      ***     ***   $ ***   

32

   ALS32.2    Start setting LS Propane-Ethylene Condenser for Subproject 1    Progress report or equivalent showing start of construction process      ***     ***   $ ***   

 

C-10


SCHEDULE C-1 AGGREGATE LABOR AND SKILLS PRICE MILESTONE PAYMENT SCHEDULE

CORPUS CHRISTI STAGE 1 LIQUEFACTION PROJECT

Months indicated under the “Month No.” column below is Contractor’s estimate of the date of achievement of the applicable Milestone and Contractor’s entitlement to payment to such Milestone Payment shall be in accordance with Article 7 of the Agreement. The Milestone Achievement Criteria below shall be in addition to the documentation required to be provided by Contractor in accordance with Article 7 of the Agreement. Month #1 is the first Month commencing after issuance of NTP.

 

Month
No.

  

Milestone
No.

  

Description

  

Milestone Achievement Criteria

   Milestone
Percentage
    Cumulative
Value
    Milestone
Value
 

32

   ALS32.3    Start setting Methane Cold Box for Subproject 1    Progress report or equivalent showing start of construction process      ***     ***   $ ***   

33

   ALS33.1    Complete structural concrete for Subproject 1    Progress report or equivalent showing 90% complete of construction process      ***     ***   $ ***   

33

   ALS33.2    Start setting Ethylene De-Inventory Pump for Subproject 1    Progress report or equivalent showing start of construction process      ***     ***   $ ***   

33

   ALS33.3    Start setting first Waste Heat Recovery Unit (WHRU) for Subproject 1    Progress report or equivalent showing start of construction process      ***     ***   $ ***   

33

   ALS33.4    Start setting first Ethylene Surge Drum for Subproject 1    Progress report or equivalent showing start of construction process      ***     ***   $ ***   

33

   ALS33.5    Field Erected Tanks Subcontractor finishes work for Subproject 1    Progress report or equivalent showing 90% complete of construction process      ***     ***   $ ***   

33

   ALS33.6    Marine Subcontractor completes West Jetty Structure    Progress report or equivalent showing 90% complete of construction process      ***     ***   $ ***   

34

   ALS34.1    Begin work on LNG Tank C inner wall    Progress report or equivalent showing start of construction process      ***     ***   $ ***   

35

   ALS35.1    50% complete of installation of Structural Steel for Subproject 2    Progress report or equivalent showing 50% complete of construction process      ***     ***   $ ***   

35

   ALS35.2    Start setting CO2 Absorber for Subproject 2    Progress report or equivalent showing start of construction process      ***     ***   $ ***   

35

   ALS35.3    Field Erected Tanks Subcontractor finishes work for Subproject 2    Progress report or equivalent showing 90% complete of construction process      ***     ***   $ ***   

36

   ALS36.1    Start installation of Field Mounted Instruments for Subproject 2    Progress report or equivalent showing start of construction process      ***     ***   $ ***   

36

   ALS36.2    50% complete installation of Field Mounted instruments for Subproject 1    Progress report or equivalent showing 50% complete of construction process      ***     ***   $ ***   

37

   ALS37.1    50% complete installation of Field Mounted instruments for OSBL    Progress report or equivalent showing 50% complete of construction process      ***     ***   $ ***   

 

C-11


SCHEDULE C-1 AGGREGATE LABOR AND SKILLS PRICE MILESTONE PAYMENT SCHEDULE

CORPUS CHRISTI STAGE 1 LIQUEFACTION PROJECT

Months indicated under the “Month No.” column below is Contractor’s estimate of the date of achievement of the applicable Milestone and Contractor’s entitlement to payment to such Milestone Payment shall be in accordance with Article 7 of the Agreement. The Milestone Achievement Criteria below shall be in addition to the documentation required to be provided by Contractor in accordance with Article 7 of the Agreement. Month #1 is the first Month commencing after issuance of NTP.

 

Month
No.

  

Milestone
No.

  

Description

  

Milestone Achievement Criteria

   Milestone
Percentage
    Cumulative
Value
    Milestone
Value
 

37

   ALS37.2    50% complete of installation of A/G pipe for Subproject 2    Progress report or equivalent showing 50% complete of construction process      ***     ***   $ ***   

37

   ALS37.3    Complete installation of Structural Steel for OSBL    Progress report or equivalent showing 90% complete of construction process      ***     ***   $ ***   

37

   ALS37.4    50% complete of installation of Electrical Cable for Subproject 1    Progress report or equivalent showing 50% complete of construction process      ***     ***   $ ***   

37

   ALS37.5    Start Hydro Testing A/G Pipe for Subproject 2    Progress report or equivalent showing start of construction process      ***     ***   $ ***   

37

   ALS37.6    Issue last A/G ISO drawing IFC    Verified by Progress Report or InfoWorks Report      ***     ***   $ ***   

38

   ALS38.1    Energization of Main Sub    Progress report or equivalent showing start of process      ***     ***   $ ***   

38

   ALS38.2    Marine Subcontractor completes East Jetty Structure    Progress report or equivalent showing 90% complete of construction process      ***     ***   $ ***   

39

   ALS39.1    50% complete structural concrete for LNG Train 3    Progress report or equivalent showing 50% complete of construction process      ***     ***   $ ***   

39

   ALS39.2    Complete installation of Structural Steel for Subproject 1    Progress report or equivalent showing 90% complete of construction process      ***     ***   $ ***   

39

   ALS39.3    50% complete of installation of Electrical Cable for OSBL    Progress report or equivalent showing 50% complete of construction process      ***     ***   $ ***   

39

   ALS39.4    Insulation Subcontractor 50% complete ISBL Train 1    Progress report or equivalent showing 50% complete of construction process      ***     ***   $ ***   

39

   ALS39.5    Insulation Subcontractor 50% complete A/G pipe for ISBL Train 1    Progress report or equivalent showing 50% complete of construction process      ***     ***   $ ***   

40

   ALS40.1    Start installation of Electrical Cable for Subproject 2    Progress report or equivalent showing start of construction process      ***     ***   $ ***   

40

   ALS40.2    Start Loop Checks for Subproject 1    Progress report or equivalent showing start of construction process      ***     ***   $ ***   

 

C-12


SCHEDULE C-1 AGGREGATE LABOR AND SKILLS PRICE MILESTONE PAYMENT SCHEDULE

CORPUS CHRISTI STAGE 1 LIQUEFACTION PROJECT

Months indicated under the “Month No.” column below is Contractor’s estimate of the date of achievement of the applicable Milestone and Contractor’s entitlement to payment to such Milestone Payment shall be in accordance with Article 7 of the Agreement. The Milestone Achievement Criteria below shall be in addition to the documentation required to be provided by Contractor in accordance with Article 7 of the Agreement. Month #1 is the first Month commencing after issuance of NTP.

 

Month
No.

  

Milestone
No.

  

Description

  

Milestone Achievement Criteria

   Milestone
Percentage
    Cumulative
Value
    Milestone
Value
 

41

   ALS41.1    Start Loop Checks for OSBL    Progress report or equivalent showing start of construction process      ***     ***   $ ***   

42

   ALS42.1    Fire & Gas Subcontractor finishes work for OSBL    Progress report or equivalent showing 90% complete of construction process      ***     ***   $ ***   

42

   ALS42.2    Insulation Subcontractor 50% complete OSBL    Progress report or equivalent showing 50% complete of construction process      ***     ***   $ ***   

42

   ALS42.3    Insulation Subcontractor 50% complete A/G pipe for OSBL    Progress report or equivalent showing 50% complete of construction process      ***     ***   $ ***   

42

   ALS42.4    Insulation Subcontractor 50% complete field mounted instruments OSBL    Progress report or equivalent showing 50% complete of construction process      ***     ***   $ ***   

43

   ALS43.1    Cool down of LNG Tank A    Progress report or equivalent showing start of process      ***     ***   $ ***   

43

   ALS43.2    Complete structural concrete for Subproject 2    Progress report or equivalent showing 90% complete of construction process      ***     ***   $ ***   

43

   ALS43.3    Deliver 90 Day Notice to RFSU of Subproject 1    Contractor provides report and or letter      ***     ***   $ ***   

44

   ALS44.1    50% complete installation of Field Mounted instruments for Subproject 2    Progress report or equivalent showing 50% complete of construction process      ***     ***   $ ***   

44

   ALS44.2    Complete installation of A/G pipe for Subproject 1    Progress report or equivalent showing 90% complete of construction process      ***     ***   $ ***   

45

   ALS45.1    Finish installation of Field Mounted instruments for Subproject 1    Progress report or equivalent showing 90% complete of construction process      ***     ***   $ ***   

45

   ALS45.2    Finish installation of Field Mounted instruments for OSBL    Progress report or equivalent showing 90% complete of construction process      ***     ***   $ ***   

45

   ALS45.3    Complete installation of A/G pipe for OSBL    Progress report or equivalent showing 90% complete of construction process      ***     ***   $ ***   

46

   ALS46.1    Complete installation of Electrical Cable for Subproject 1    Progress report or equivalent showing 90% complete of construction process      ***     ***   $ ***   

 

C-13


SCHEDULE C-1 AGGREGATE LABOR AND SKILLS PRICE MILESTONE PAYMENT SCHEDULE

CORPUS CHRISTI STAGE 1 LIQUEFACTION PROJECT

Months indicated under the “Month No.” column below is Contractor’s estimate of the date of achievement of the applicable Milestone and Contractor’s entitlement to payment to such Milestone Payment shall be in accordance with Article 7 of the Agreement. The Milestone Achievement Criteria below shall be in addition to the documentation required to be provided by Contractor in accordance with Article 7 of the Agreement. Month #1 is the first Month commencing after issuance of NTP.

 

Month
No.

  

Milestone
No.

  

Description

  

Milestone Achievement Criteria

   Milestone
Percentage
    Cumulative
Value
    Milestone
Value
 

46

   ALS46.2    Insulation Subcontractor 50% complete Subproject 2    Progress report or equivalent showing 50% complete of construction process      ***     ***   $ ***   

46

   ALS46.3    Insulation Subcontractor 50% complete A/G pipe for Subproject 2    Progress report or equivalent showing 50% complete of construction process      ***     ***   $ ***   

46

   ALS46.4    Insulation Subcontractor 50% complete field mounted instruments Subproject 2    Progress report or equivalent showing 50% complete of construction process      ***     ***   $ ***   

46

   ALS46.5    Deliver 90 Day Notice of Performance Testing of Subproject 1    Contractor provides report and or letter      ***     ***   $ ***   

46

   ALS46.6    Achieve RFSU of Subproject 1    Contractor provides report and or letter      ***     ***   $ ***   

47

   ALS47.1    Cool down of LNG Tank C    Progress report or equivalent showing start of process      ***     ***   $ ***   

47

   ALS47.2    Telecommunications Subcontractor finishes work for OSBL    Progress report or equivalent showing 90% complete of construction process      ***     ***   $ ***   

47

   ALS47.3    Insulation Subcontractor finishes work for Subproject 1    Progress report or equivalent showing 90% complete of construction process      ***     ***   $ ***   

47

   ALS47.4    Insulation Subcontractor finishes A/G pipe for Subproject 1    Progress report or equivalent showing 90% complete of construction process      ***     ***   $ ***   

47

   ALS47.5    Insulation Subcontractor finishes field mounted instruments Subproject 1    Progress report or equivalent showing 90% complete of construction process      ***     ***   $ ***   

47

   ALS47.6    Achieve First Cargo—Subproject 1    Contractor provides report and or letter      ***     ***   $ ***   

48

   ALS48.1    50% complete of installation of Electrical Cable for Subproject 2    Progress report or equivalent showing 50% complete of construction process      ***     ***   $ ***   

48

   ALS48.2    Start Loop Checks for Subproject 2    Progress report or equivalent showing start of construction process      ***     ***   $ ***   

49

   ALS49.1    Complete installation of Structural Steel for Subproject 2    Progress report or equivalent showing 90% complete of construction process      ***     ***   $ ***   

 

C-14


SCHEDULE C-1 AGGREGATE LABOR AND SKILLS PRICE MILESTONE PAYMENT SCHEDULE

CORPUS CHRISTI STAGE 1 LIQUEFACTION PROJECT

Months indicated under the “Month No.” column below is Contractor’s estimate of the date of achievement of the applicable Milestone and Contractor’s entitlement to payment to such Milestone Payment shall be in accordance with Article 7 of the Agreement. The Milestone Achievement Criteria below shall be in addition to the documentation required to be provided by Contractor in accordance with Article 7 of the Agreement. Month #1 is the first Month commencing after issuance of NTP.

 

Month
No.

  

Milestone
No.

  

Description

  

Milestone Achievement Criteria

   Milestone
Percentage
    Cumulative
Value
    Milestone
Value
 

49

   ALS49.2    Complete installation of Electrical Cable for OSBL    Progress report or equivalent showing 90% complete of construction process      ***     ***   $ ***   

49

   ALS49.3    Complete Performance Testing of Subproject 1    Contractor provides report and or letter      ***     ***   $ ***   

50

   ALS50.1    Substantial Completion—Subproject 1    Substantial Completion Certificate      ***     ***   $ ***   

52

   ALS52.1    Finish installation of Field Mounted instruments for Subproject 2    Progress report or equivalent showing 90% complete of construction process      ***     ***   $ ***   

52

   ALS52.2    Deliver 90 Day Notice to RFSU of Subproject 2    Contractor provides report and or letter      ***     ***   $ ***   

53

   ALS53.1    Complete installation of Electrical Cable for Subproject 2    Progress report or equivalent showing 90% complete of construction process      ***     ***   $ ***   

54

   ALS54.1    Insulation Subcontractor finishes work for Subproject 2    Progress report or equivalent showing 90% complete of construction process      ***     ***   $ ***   

54

   ALS54.2    Telecommunications Subcontractor finishes work for Subproject 2    Progress report or equivalent showing 90% complete of construction process      ***     ***   $ ***   

55

   ALS55.1    Achieve RFSU of Subproject 2    Contractor provides report and or letter      ***     ***   $ ***   

55

   ALS55.2    Deliver 90 Day Notice of Performance Testing of Subproject 2    Contractor provides report and or letter      ***     ***   $ ***   

57

   ALS57.1    Achieve First Cargo—Subproject 2    Contractor provides report and or letter      ***     ***   $ ***   

58

   ALS58.1    Complete Performance Testing of Subproject 2    Contractor provides report and or letter      ***     ***   $ ***   

60

   ALS60.1    Substantial Completion—Subproject 2    Substantial Completion Certificate      ***     ***   $ ***   
               

 

 

 
                TOTAL      $ ***   
               

 

 

 

 

C-15


SCHEDULE C-2

AGGREGATE LABOR AND SKILLS PRICE MONTHLY PAYMENT SCHEDULE

 

C-16


SCHEDULE C-2 MONTHLY PAYMENT SCHEDULE

CORPUS CHRISTI STAGE 1 LIQUEFACTION PROJECT

Month #1 is the first Month commencing after issuance of NTP.

 

Month # from NTP    Mobilization
Payment
    Monthly
Payment
Percentage
    Cumulative
Monthly
Payment
Percentage
    Monthly
Payment
Value
 

NTP

     15       $      ***   

1

       ***     ***   $ ***   

2

       ***     ***   $ ***   

3

       ***     ***   $ ***   

4

       ***     ***   $ ***   

5

       ***     ***   $ ***   

6

       ***     ***   $ ***   

7

       ***     ***   $ ***   

8

       ***     ***   $ ***   

9

       ***     ***   $ ***   

10

       ***     ***   $ ***   

11

       ***     ***   $ ***   

12

       ***     ***   $ ***   

13

       ***     ***   $ ***   

14

       ***     ***   $ ***   

15

       ***     ***   $ ***   

16

       ***     ***   $ ***   

17

       ***     ***   $ ***   

18

       ***     ***   $ ***   

 

C-17


SCHEDULE C-2 MONTHLY PAYMENT SCHEDULE

CORPUS CHRISTI STAGE 1 LIQUEFACTION PROJECT

Month #1 is the first Month commencing after issuance of NTP.

 

Month # from NTP    Mobilization
Payment
   Monthly
Payment
Percentage
    Cumulative
Monthly
Payment
Percentage
    Monthly
Payment
Value
 

19

        ***     ***   $      ***   

20

        ***     ***   $ ***   

21

        ***     ***   $ ***   

22

        ***     ***   $ ***   

23

        ***     ***   $ ***   

24

        ***     ***   $ ***   

25

        ***     ***   $ ***   

26

        ***     ***   $ ***   

27

        ***     ***   $ ***   

28

        ***     ***   $ ***   

29

        ***     ***   $ ***   

30

        ***     ***   $ ***   

31

        ***     ***   $ ***   

32

        ***     ***   $ ***   

33

        ***     ***   $ ***   

34

        ***     ***   $ ***   

35

        ***     ***   $ ***   

36

        ***     ***   $ ***   

37

        ***     ***   $ ***   

38

        ***     ***   $ ***   

39

        ***     ***   $ ***   

40

        ***     ***   $ ***   

41

        ***     ***   $ ***   

 

C-18


SCHEDULE C-2 MONTHLY PAYMENT SCHEDULE

CORPUS CHRISTI STAGE 1 LIQUEFACTION PROJECT

Month #1 is the first Month commencing after issuance of NTP.

 

Month # from NTP    Mobilization
Payment
   Monthly
Payment
Percentage
    Cumulative
Monthly
Payment
Percentage
    Monthly
Payment
Value
 

42

        ***     ***   $      ***   

43

        ***     ***   $ ***   

44

        ***     ***   $ ***   

45

        ***     ***   $ ***   

46

        ***     ***   $ ***   

47

        ***     ***   $ ***   

48

        ***     ***   $ ***   

49

        ***     ***   $ ***   

50

        ***     ***   $ ***   

51

        ***     ***   $ ***   

52

        ***     ***   $ ***   

53

        ***     ***   $ ***   

54

        ***     ***   $ ***   

55

        ***     ***   $ ***   

56

        ***     ***   $ ***   

57

        ***     ***   $ ***   

58

        ***     ***   $ ***   

59

        ***     ***   $ ***   

60

        ***     ***   $ ***   

61

        ***     ***   $ ***   

62

        ***     ***   $ ***   

63

        ***     ***   $ ***   

64

        ***     ***   $ ***   

 

C-19


SCHEDULE C-2 MONTHLY PAYMENT SCHEDULE

CORPUS CHRISTI STAGE 1 LIQUEFACTION PROJECT

Month #1 is the first Month commencing after issuance of NTP.

 

Month # from NTP    Mobilization
Payment
    Monthly
Payment
Percentage
    Cumulative
Monthly
Payment
Percentage
    Monthly
Payment
Value
 

65

       ***     ***   $ ***   

66

       ***     ***   $ ***   

67

       ***     ***   $ ***   

68

       ***     ***   $ ***   

69

       ***     ***   $ ***   
  

 

 

   

 

 

     

 

 

 

Total

     15.00     100.00     $ ***   
  

 

 

   

 

 

     

 

 

 

 

C-20


SCHEDULE C-3

AGGREGATE EQUIPMENT PRICE MILESTONE PAYMENT SCHEDULE

 

C-21


SCHEDULE C-3 AGGREGATE EQUIPMENT PRICE MILESTONE PAYMENT SCHEDULE

CORPUS CHRISTI STAGE 1 LIQUEFACTION PROJECT

Months indicated under the “Month No.” column below is Contractor’s estimate of the date of achievement of the applicable Milestone and Contractor’s entitlement to payment to such Milestone Payment shall be in accordance with Article 7 of the Agreement. The Milestone Achievement Criteria below shall be in addition to the documentation required to be provided by Contractor in accordance with Article 7 of the Agreement. Month #1 is the first Month commencing after issuance of NTP.

 

Month
No.

  

Milestone
No.

  

Description

  

Milestone Achievement Criteria

   Milestone
Percentage
    Cumulative
Value
    Milestone
Value
 

NTP

      Mobilization Payment    As prescribed in Agreement      15.0     $ ***   

1

   AEP1.1    Issue PO or letter of award (LOA) for cold box    Provide executed PO cover letter sheet of Letter of award (LOA) excluding cost information      ***     ***   $ ***   

1

   AEP1.2    Issue PO or letter of award (LOA) for Refrigeration Compressors    Provide executed PO cover letter sheet of Letter of award (LOA) excluding cost information      ***     ***   $ ***   

2

   AEP2.1    Issue PO or letter of award (LOA) 9% Nickel Plate    Provide executed PO cover letter sheet of Letter of award (LOA) excluding cost information      ***     ***   $ ***   

3

   AEP3.1    Issue PO or letter of award (LOA) for Waste Heat Recovery Unity (WHRU)    Provide executed PO cover letter sheet of Letter of award (LOA) excluding cost information      ***     ***   $ ***   

3

   AEP3.2    Issue PO or letter of award (LOA) for BOG Compressors    Provide executed PO cover letter sheet of Letter of award (LOA) excluding cost information      ***     ***   $ ***   

3

   AEP3.3    Issue PO or letter of award (LOA) for Columns / Vessels    Provide executed PO cover letter sheet of Letter of award (LOA) excluding cost information      ***     ***   $ ***   

 

C-22


SCHEDULE C-3 AGGREGATE EQUIPMENT PRICE MILESTONE PAYMENT SCHEDULE

CORPUS CHRISTI STAGE 1 LIQUEFACTION PROJECT

Months indicated under the “Month No.” column below is Contractor’s estimate of the date of achievement of the applicable Milestone and Contractor’s entitlement to payment to such Milestone Payment shall be in accordance with Article 7 of the Agreement. The Milestone Achievement Criteria below shall be in addition to the documentation required to be provided by Contractor in accordance with Article 7 of the Agreement. Month #1 is the first Month commencing after issuance of NTP.

 

Month
No.

  

Milestone
No.

  

Description

  

Milestone Achievement Criteria

   Milestone
Percentage
    Cumulative
Value
    Milestone
Value
 

4

   AEP4.1    Issue PO or letter of award (LOA) for air cooled exchangers    Provide executed PO cover letter sheet of Letter of award (LOA) excluding cost information      ***     ***   $ ***   

4

   AEP4.2    Issue PO or letter of award (LOA) for shell and tube exchangers    Provide executed PO cover letter sheet of Letter of award (LOA) excluding cost information      ***     ***   $ ***   

4

   AEP4.3    Issue PO or letter of award (LOA) for air compressors    Provide executed PO cover letter sheet of Letter of award (LOA) excluding cost information      ***     ***   $ ***   

5

   AEP5.1    Initial vendor prints received by contractor for cold box    Verified by Vendor Print Log      ***     ***   $ ***   

5

   AEP5.2    Initial vendor prints received by contractor for air cooled heat exchangers    Verified by Vendor Print Log      ***     ***   $ ***   

5

   AEP5.3    Refrigeration Compressor vendor places order for LNG Train 1 forgings    Vendor notification      ***     ***   $ ***   

5

   AEP5.4    Issue PO or letter of award (LOA) for Regen Compressors    Provide executed PO cover letter sheet of Letter of award (LOA) excluding cost information      ***     ***   $ ***   

6

   AEP6.1    Initial vendor prints received by contractor for Columns / Vessels    Verified by Vendor Print Log      ***     ***   $ ***   

 

C-23


SCHEDULE C-3 AGGREGATE EQUIPMENT PRICE MILESTONE PAYMENT SCHEDULE

CORPUS CHRISTI STAGE 1 LIQUEFACTION PROJECT

Months indicated under the “Month No.” column below is Contractor’s estimate of the date of achievement of the applicable Milestone and Contractor’s entitlement to payment to such Milestone Payment shall be in accordance with Article 7 of the Agreement. The Milestone Achievement Criteria below shall be in addition to the documentation required to be provided by Contractor in accordance with Article 7 of the Agreement. Month #1 is the first Month commencing after issuance of NTP.

 

Month
No.

  

Milestone
No.

  

Description

  

Milestone Achievement Criteria

   Milestone
Percentage
    Cumulative
Value
    Milestone
Value
 

6

   AEP6.2    Initial vendor prints received by contractor for Waste Heat Recovery Unity (WHRU)    Verified by Vendor Print Log      ***     ***   $ ***   

6

   AEP6.3    Initial vendor prints received by contractor for Air Compressors    Verified by Vendor Print Log      ***     ***   $ ***   

7

   AEP7.1    Issue PO or letter of award (LOA) for any of the following Valves (Control, Relief, On/Off)    Provide executed PO cover letter sheet of Letter of award (LOA) excluding cost information      ***     ***   $ ***   

7

   AEP7.2    Issue PO or letter of award (LOA) for CS Pipe Material    Provide executed PO cover letter sheet of Letter of award (LOA) excluding cost information      ***     ***   $ ***   

7

   AEP7.3    Issue PO or letter of award (LOA) for SS Pipe Material    Provide executed PO cover letter sheet of Letter of award (LOA) excluding cost information      ***     ***   $ ***   

7

   AEP7.4    Issue PO or letter of award (LOA) for small and or large bore Piping Valves    Provide executed PO cover letter sheet of Letter of award (LOA) excluding cost information      ***     ***   $ ***   

8

   AEP8.1    Issue PO or letter of award (LOA) for DCS/SIS    Provide executed PO cover letter sheet of Letter of award (LOA) excluding cost information      ***     ***   $ ***   

8

   AEP8.2    Initial vendor prints received by contractor for Regen Compressors    Verified by Vendor Print Log      ***     ***   $ ***   

 

C-24


SCHEDULE C-3 AGGREGATE EQUIPMENT PRICE MILESTONE PAYMENT SCHEDULE

CORPUS CHRISTI STAGE 1 LIQUEFACTION PROJECT

Months indicated under the “Month No.” column below is Contractor’s estimate of the date of achievement of the applicable Milestone and Contractor’s entitlement to payment to such Milestone Payment shall be in accordance with Article 7 of the Agreement. The Milestone Achievement Criteria below shall be in addition to the documentation required to be provided by Contractor in accordance with Article 7 of the Agreement. Month #1 is the first Month commencing after issuance of NTP.

 

Month
No.

  

Milestone
No.

  

Description

  

Milestone Achievement Criteria

   Milestone
Percentage
    Cumulative
Value
    Milestone
Value
 

8

   AEP8.3    Issue PO or letter of award (LOA) for Steel Material    Provide executed PO cover letter sheet of Letter of award (LOA) excluding cost information      ***     ***   $ ***   

9

   AEP9.1    Initial vendor prints received by contractor for BOG Compressors    Verified by Vendor Print Log      ***     ***   $ ***   

9

   AEP9.2    Issue PO or letter of award (LOA) for Reinforcing Steel (Rebar)    Provide executed PO cover letter sheet of Letter of award (LOA) excluding cost information      ***     ***   $ ***   

9

   AEP9.3    1st major material received by vendor for use in fabrication of Columns / Vessels    Provide Expediting Report to customer      ***     ***   $ ***   

10

   AEP10.1    1st major material received by vendor for use in fabrication of air cooled heat exchangers    Provide Expediting Report to customer      ***     ***   $ ***   

10

   AEP10.2    1st major material received by vendor for use in fabrication of cold box    Provide Expediting Report to customer      ***     ***   $ ***   

10

   AEP10.3    Issue PO or letter of award (LOA) for Powerhouse/Switchgear    Provide executed PO cover letter sheet of Letter of award (LOA) excluding cost information      ***     ***   $ ***   

11

   AEP11.1    1st major material received by vendor for use in fabrication of Waste Heat Recovery Unity (WHRU)    Provide Expediting Report to customer      ***     ***   $ ***   

 

C-25


SCHEDULE C-3 AGGREGATE EQUIPMENT PRICE MILESTONE PAYMENT SCHEDULE

CORPUS CHRISTI STAGE 1 LIQUEFACTION PROJECT

Months indicated under the “Month No.” column below is Contractor’s estimate of the date of achievement of the applicable Milestone and Contractor’s entitlement to payment to such Milestone Payment shall be in accordance with Article 7 of the Agreement. The Milestone Achievement Criteria below shall be in addition to the documentation required to be provided by Contractor in accordance with Article 7 of the Agreement. Month #1 is the first Month commencing after issuance of NTP.

 

Month
No.

  

Milestone
No.

  

Description

  

Milestone Achievement Criteria

   Milestone
Percentage
    Cumulative
Value
    Milestone
Value
 

11

   AEP11.2    1st shipment of Reinforcing Steel (Rebar) ready for Subproject 1    Provide Expediting Report to customer      ***     ***   $ ***   

11

   AEP11.3    Issue PO or letter of award (LOA) for Field Mounted Instruments    Provide executed PO cover letter sheet of Letter of award (LOA) excluding cost information      ***     ***   $ ***   

11

   AEP11.4    Issue PO or letter of award (LOA) for Pipe Fabrication    Provide executed PO cover letter sheet of Letter of award (LOA) excluding cost information      ***     ***   $ ***   

12

   AEP12.1    Ready for 1st shipment of air cooled heat exchangers    Provide vendor’s notice to contractor or expediting report      ***     ***   $ ***   

12

   AEP12.2    Initial vendor prints received by contractor for DCS/SIS    Verified by Vendor Print Log      ***     ***   $ ***   

13

   AEP13.1    First shipment of Steel Material delivery for Suproject 1 (jobsite)    Provide Expediting Report to customer      ***     ***   $ ***   

13

   AEP13.2    Issue PO or letter of award (LOA) for Firewater Specialties    Provide executed PO cover letter sheet of Letter of award (LOA) excluding cost information      ***     ***   $ ***   

13

   AEP13.3    Initial vendor prints received by contractor for Post Indicator Valves    Verified by Vendor Print Log      ***     ***   $ ***   

 

C-26


SCHEDULE C-3 AGGREGATE EQUIPMENT PRICE MILESTONE PAYMENT SCHEDULE

CORPUS CHRISTI STAGE 1 LIQUEFACTION PROJECT

Months indicated under the “Month No.” column below is Contractor’s estimate of the date of achievement of the applicable Milestone and Contractor’s entitlement to payment to such Milestone Payment shall be in accordance with Article 7 of the Agreement. The Milestone Achievement Criteria below shall be in addition to the documentation required to be provided by Contractor in accordance with Article 7 of the Agreement. Month #1 is the first Month commencing after issuance of NTP.

 

Month
No.

  

Milestone
No.

  

Description

  

Milestone Achievement Criteria

   Milestone
Percentage
    Cumulative
Value
    Milestone
Value
 

14

   AEP14.1    Refrigeration Compressor vendor places order for LNG Train 2 forgings    Vendor notification      ***     ***   $ ***   

14

   AEP14.2    Initial vendor prints received by contractor for Powerhouse/Switchgear    Verified by Vendor Print Log      ***     ***   $ ***   

14

   AEP14.3    Initial vendor prints received by contractor for any of the following Valves (Control, Relief, On/Off)    Verified by Vendor Print Log      ***     ***   $ ***   

14

   AEP14.4    1st major material received by vendor for use in fabrication of any of the following Valves (Control, Relief, On/Off)    Provide Expediting Report to customer      ***     ***   $ ***   

15

   AEP15.1    1st major material received by vendor for use in fabrication of BOG Compressors    Provide Expediting Report to customer      ***     ***   $ ***   

15

   AEP15.2    Ready for 1st shipment of Columns / Vessels component (ex works)    Provide vendor’s notice to contractor or expediting report      ***     ***   $ ***   

15

   AEP15.3    Issue PO or letter of award (LOA) for Powerhouse/Switchgear    Provide executed PO cover letter sheet of Letter of award (LOA) excluding cost information      ***     ***   $ ***   

16

   AEP16.1    1st major material received by vendor for use in fabrication of Regen Compressors    Provide Expediting Report to customer      ***     ***   $ ***   

 

C-27


SCHEDULE C-3 AGGREGATE EQUIPMENT PRICE MILESTONE PAYMENT SCHEDULE

CORPUS CHRISTI STAGE 1 LIQUEFACTION PROJECT

Months indicated under the “Month No.” column below is Contractor’s estimate of the date of achievement of the applicable Milestone and Contractor’s entitlement to payment to such Milestone Payment shall be in accordance with Article 7 of the Agreement. The Milestone Achievement Criteria below shall be in addition to the documentation required to be provided by Contractor in accordance with Article 7 of the Agreement. Month #1 is the first Month commencing after issuance of NTP.

 

Month
No.

  

Milestone
No.

  

Description

  

Milestone Achievement Criteria

   Milestone
Percentage
    Cumulative
Value
    Milestone
Value
 

16

   AEP16.2    First shipment of CS Pipe Material delivery for LNG Train 1 (pipe fabricator or jobsite)    Provide Expediting Report to customer      ***     ***   $ ***   

16

   AEP16.3    First shipment of SS Pipe Material delivery for LNG Train 1 (pipe fabricator or jobsite)    Provide Expediting Report to customer      ***     ***   $ ***   

16

   AEP16.4    First shipment of small and or large bore Piping Valves delivery for LNG Train 1 (pipe fabricator or jobsite)    Provide Expediting Report to customer      ***     ***   $ ***   

17

   AEP17.1    Issue PO or letter of award (LOA) for Electrical Bulks    Provide executed PO cover letter sheet of Letter of award (LOA) excluding cost information      ***     ***   $ ***   

18

   AEP18.1    Initial vendor prints received by contractor for Powerhouse/Switchgear    Verified by Vendor Print Log      ***     ***   $ ***   

18

   AEP18.2    Ready for 1st shipment of any of the following Valves (Control, Relief, On/Off) component (ex works) LNG Train 1    Provide vendor’s notice to contractor or expediting report      ***     ***   $ ***   

19

   AEP19.1    1st major material received by vendor for use in fabrication of DCS/SIS    Provide Expediting Report to customer      ***     ***   $ ***   

19

   AEP19.2    1st major material received by vendor for use in fabrication of Powerhouse/Switchgear    Provide Expediting Report to customer      ***     ***   $ ***   

 

C-28


SCHEDULE C-3 AGGREGATE EQUIPMENT PRICE MILESTONE PAYMENT SCHEDULE

CORPUS CHRISTI STAGE 1 LIQUEFACTION PROJECT

Months indicated under the “Month No.” column below is Contractor’s estimate of the date of achievement of the applicable Milestone and Contractor’s entitlement to payment to such Milestone Payment shall be in accordance with Article 7 of the Agreement. The Milestone Achievement Criteria below shall be in addition to the documentation required to be provided by Contractor in accordance with Article 7 of the Agreement. Month #1 is the first Month commencing after issuance of NTP.

 

Month
No.

  

Milestone
No.

  

Description

  

Milestone Achievement Criteria

   Milestone
Percentage
    Cumulative
Value
    Milestone
Value
 

20

   AEP20.1    Ready for 1st shipment of Regen Compressors component (ex works)    Provide vendor’s notice to contractor or expediting report      ***     ***   $ ***   

20

   AEP20.2    1st major material received by vendor for use in fabrication of Powerhouse/Switchgear    Provide Expediting Report to customer      ***     ***   $ ***   

20

   AEP20.3    Ready for 1st shipment of Powerhouse/Switchgear component (ex works)    Provide vendor’s notice to contractor or expediting report      ***     ***   $ ***   

21

   AEP21.1    Ready for 1st shipment of Waste Heat Recovery Unity (WHRU) component (ex works)    Provide vendor’s notice to contractor or expediting report      ***     ***   $ ***   

22

   AEP22.1    Ready for 1st shipment of BOG Compressors component (ex works)    Provide vendor’s notice to contractor or expediting report      ***     ***   $ ***   

22

   AEP22.2    First shipment of Electrical Bulks delivery for LNG Train 1 (jobsite)    Provide Expediting Report to customer      ***     ***   $ ***   

23

   AEP23.1    Refrigeration Compressor vendor begin LNG Train 1 compressor casing hydraulic test    Vendor notification      ***     ***   $ ***   

23

   AEP23.2    Ready for 1st shipment of DCS/SIS component (ex works)    Provide vendor’s notice to contractor or expediting report      ***     ***   $ ***   

 

C-29


SCHEDULE C-3 AGGREGATE EQUIPMENT PRICE MILESTONE PAYMENT SCHEDULE

CORPUS CHRISTI STAGE 1 LIQUEFACTION PROJECT

Months indicated under the “Month No.” column below is Contractor’s estimate of the date of achievement of the applicable Milestone and Contractor’s entitlement to payment to such Milestone Payment shall be in accordance with Article 7 of the Agreement. The Milestone Achievement Criteria below shall be in addition to the documentation required to be provided by Contractor in accordance with Article 7 of the Agreement. Month #1 is the first Month commencing after issuance of NTP.

 

Month
No.

  

Milestone
No.

  

Description

  

Milestone Achievement Criteria

   Milestone
Percentage
    Cumulative
Value
    Milestone
Value
 

23

   AEP23.3    First shipment of Field Mounted Instruments for LNG Train 1    Provide Expediting Report to customer      ***     ***   $ ***   

23

   AEP23.4    First shipment of Pipe Fabrication delivery for LNG Train 1 (pipe fabricator or jobsite)    Provide Expediting Report to customer      ***     ***   $ ***   

23

   AEP23.5    Refrigeration Compressor vendor LNG Train 1 compressor ready for mechanical running test    Vendor notification      ***     ***   $ ***   

24

   AEP24.1    Ready for 1st shipment of any of the following Valves (Control, Relief, On/Off) component (ex works) LNG Train 2    Provide vendor’s notice to contractor or expediting report      ***     ***   $ ***   

24

   AEP24.2    Ready for 1st Shipment Refrigeration Compressor LNG Train 1 compressor (ex works)    Provide Expediting Report to customer      ***     ***   $ ***   

25

   AEP25.1    First shipment of Plate & Frame Exchangers delivery for LNG Train 1 (jobsite)    Provide Expediting Report to customer      ***     ***   $ ***   

25

   AEP25.2    Last shipment of Air Cooled Heat Exchangers delivery for LNG Train 2 (jobsite)    Provide Expediting Report to customer      ***     ***   $ ***   

25

   AEP25.3    Receive 1st Shipment of Powerhouse/Switchgear (jobsite)    Provide Expediting Report to customer      ***     ***   $ ***   

 

C-30


SCHEDULE C-3 AGGREGATE EQUIPMENT PRICE MILESTONE PAYMENT SCHEDULE

CORPUS CHRISTI STAGE 1 LIQUEFACTION PROJECT

Months indicated under the “Month No.” column below is Contractor’s estimate of the date of achievement of the applicable Milestone and Contractor’s entitlement to payment to such Milestone Payment shall be in accordance with Article 7 of the Agreement. The Milestone Achievement Criteria below shall be in addition to the documentation required to be provided by Contractor in accordance with Article 7 of the Agreement. Month #1 is the first Month commencing after issuance of NTP.

 

Month
No.

  

Milestone
No.

  

Description

  

Milestone Achievement Criteria

   Milestone
Percentage
    Cumulative
Value
    Milestone
Value
 

26

   AEP26.1    Receive 1st Shipment of GIS Switchgear (jobsite)    Provide Expediting Report to customer      ***     ***   $ ***   

26

   AEP26.2    Receive Thermal Oxidizer for LNG Train 2 (jobsite)    Provide Expediting Report to customer      ***     ***   $ ***   

26

   AEP26.3    Ready for 1st Shipment CS Columns / Vessels for Subproject 2 (ex works)    Provide vendor’s notice to contractor or expediting report      ***     ***   $ ***   

27

   AEP27.1    Ready for 1st shipment of Powerhouse/Switchgear component (ex works)    Provide vendor’s notice to contractor or expediting report      ***     ***   $ ***   

27

   AEP27.2    Ready for 1st Shipment Heavy Wall Columns / Vessels for Subproject 2 (ex works)    Provide vendor’s notice to contractor or expediting report      ***     ***   $ ***   

27

   AEP27.3    Ready for 1st Shipment Plate & Frame Exchangers for Subproject 2 (ex works)    Provide vendor’s notice to contractor or expediting report      ***     ***   $ ***   

28

   AEP28.1    Ready for Last shipment of DCS/SIS component (ex works)    Provide vendor’s notice to contractor or expediting report      ***     ***   $ ***   

28

   AEP28.2    Ready for Last Shipment Butterfly Valves (ex works)    Provide vendor’s notice to contractor or expediting report      ***     ***   $ ***   

 

C-31


SCHEDULE C-3 AGGREGATE EQUIPMENT PRICE MILESTONE PAYMENT SCHEDULE

CORPUS CHRISTI STAGE 1 LIQUEFACTION PROJECT

Months indicated under the “Month No.” column below is Contractor’s estimate of the date of achievement of the applicable Milestone and Contractor’s entitlement to payment to such Milestone Payment shall be in accordance with Article 7 of the Agreement. The Milestone Achievement Criteria below shall be in addition to the documentation required to be provided by Contractor in accordance with Article 7 of the Agreement. Month #1 is the first Month commencing after issuance of NTP.

 

Month
No.

  

Milestone
No.

  

Description

  

Milestone Achievement Criteria

   Milestone
Percentage
    Cumulative
Value
    Milestone
Value
 

28

   AEP28.3    Refrigeration Compressor vendor begin LNG Train 2 compressor casing hydraulic test    Vendor notification      ***     ***   $ ***   

29

   AEP29.1    Refrigeration Compressor vendor LNG Train 2 compressor ready for mechanical running test    Vendor notification      ***     ***   $ ***   

29

   AEP29.2    Ready for 1st Shipment Electrical Transformers Subproject 1 (ex works)    Provide vendor’s notice to contractor or expediting report      ***     ***   $ ***   

30

   AEP30.1    Ready for 1st shipment of cold box component LNG Train 1 (ex works)    Provide vendor’s notice to contractor or expediting report      ***     ***   $ ***   

30

   AEP30.2    Ready for 1st Shipment Refrigeration Compressor LNG Train 2 compressor (ex works)    Provide Expediting Report to customer      ***     ***   $ ***   

30

   AEP30.3    Ready for Last shipment of Wire/Cable for Subproject 1 (jobsite)    Provide Expediting Report 90% received to customer      ***     ***   $ ***   

31

   AEP31.1    Last shipment of Piping Spools delivery for Subproject 1 (jobsite)    Provide Expediting Report 90% received to customer      ***     ***   $ ***   

31

   AEP31.2    Last shipment of Structural Steel delivery for Subproject 2 (jobsite)    Provide Expediting Report 90% received to customer      ***     ***   $ ***   

 

C-32


SCHEDULE C-3 AGGREGATE EQUIPMENT PRICE MILESTONE PAYMENT SCHEDULE

CORPUS CHRISTI STAGE 1 LIQUEFACTION PROJECT

Months indicated under the “Month No.” column below is Contractor’s estimate of the date of achievement of the applicable Milestone and Contractor’s entitlement to payment to such Milestone Payment shall be in accordance with Article 7 of the Agreement. The Milestone Achievement Criteria below shall be in addition to the documentation required to be provided by Contractor in accordance with Article 7 of the Agreement. Month #1 is the first Month commencing after issuance of NTP.

 

Month
No.

  

Milestone
No.

  

Description

  

Milestone Achievement Criteria

   Milestone
Percentage
    Cumulative
Value
    Milestone
Value
 

33

   AEP33.1    Ready for 1st shipment of cold box component LNG Train 2 (ex works)    Provide vendor’s notice to contractor or expediting report      ***     ***   $ ***   

33

   AEP33.2    Ready for 1st Shipment Electrical Transformers Subproject 2 (ex works)    Provide vendor’s notice to contractor or expediting report      ***     ***   $ ***   

35

   AEP35.1    Ready for 1st Shipment Control Valves Subproject 2 (ex works)    Provide vendor’s notice to contractor or expediting report      ***     ***   $ ***   

36

   AEP36.1    50% shipment of Piping Spools delivery for Subproject 2 (jobsite)    Provide Expediting Report 50% received to customer      ***     ***   $ ***   

36

   AEP36.2    Ready for Last Shipment Switchgear/MCC Subproject 2 (ex works)    Provide vendor’s notice to contractor or expediting report      ***     ***   $ ***   

37

   AEP37.1    Ready for Last Shipment Switchgear/MCC Subproject 1 (ex works)    Provide vendor’s notice to contractor or expediting report      ***     ***   $ ***   

37

   AEP37.2    Last shipment of Wire/Cable delivery for Subproject 2 (jobsite)    Provide Expediting Report 90% received to customer      ***     ***   $ ***   

40

   AEP40.1    Last shipment of Piping Spools delivery for Subproject 2 (jobsite)    Provide Expediting Report 90% received to customer      ***     ***   $ ***   

 

C-33


SCHEDULE C-3 AGGREGATE EQUIPMENT PRICE MILESTONE PAYMENT SCHEDULE

CORPUS CHRISTI STAGE 1 LIQUEFACTION PROJECT

Months indicated under the “Month No.” column below is Contractor’s estimate of the date of achievement of the applicable Milestone and Contractor’s entitlement to payment to such Milestone Payment shall be in accordance with Article 7 of the Agreement. The Milestone Achievement Criteria below shall be in addition to the documentation required to be provided by Contractor in accordance with Article 7 of the Agreement. Month #1 is the first Month commencing after issuance of NTP.

 

Month
No.

  

Milestone
No.

  

Description

  

Milestone Achievement Criteria

   Milestone
Percentage
    Cumulative
Value
    Milestone
Value
 

40

   AEP40.2    Ready for Last Shipment Switchgear/MCC Subproject 2 (ex works)    Provide vendor’s notice to contractor or expediting report      ***     ***   $ ***   

42

   AEP42.1    Ready for Last Shipment Electrical Bulks Subproject 2 (ex works)    Provide vendor’s notice to contractor or expediting report      ***     ***   $ ***   
               

 

 

 
                TOTAL      $ ***   
               

 

 

 

 

C-34


SCHEDULE C-4

ESTIMATED MONTHLY PAYMENTS FOR STAGE 1 LIQUEFACTION FACILITY

 

C-35


     Aggregate Labor and Skills Price      Aggregate Equipment Price      Total Project  

Month
No.

   Mobilization
Payment
     Milestones      Monthly
Payment
     Total      Mobilization
Payment
     Milestones      Total      Incremental
Value
     Cumulative
Payment
     Incremental
Percentage
    Cumulative
Percentage
 

NTP

   $ ***             $ ***       $ ***          $ ***       $ ***       $ ***         ***     ***

1

      $ ***       $ ***       $ ***          $ ***       $ ***       $ ***       $ ***         ***     ***

2

      $ ***       $ ***       $ ***          $ ***       $ ***       $ ***       $ ***         ***     ***

3

      $ ***       $ ***       $ ***          $ ***       $ ***       $ ***       $ ***         ***     ***

4

      $ ***       $ ***       $ ***          $ ***       $ ***       $ ***       $ ***         ***     ***

5

      $ ***       $ ***       $ ***          $ ***       $ ***       $ ***       $ ***         ***     ***

6

      $ ***       $ ***       $ ***          $ ***       $ ***       $ ***       $ ***         ***     ***

7

      $ ***       $ ***       $ ***          $ ***       $ ***       $ ***       $ ***         ***     ***

8

      $ ***       $ ***       $ ***          $ ***       $ ***       $ ***       $ ***         ***     ***

9

      $ ***       $ ***       $ ***          $ ***       $ ***       $ ***       $ ***         ***     ***

10

      $ ***       $ ***       $ ***          $ ***       $ ***       $ ***       $ ***         ***     ***

11

      $ ***       $ ***       $ ***          $ ***       $ ***       $ ***       $ ***         ***     ***

12

      $ ***       $ ***       $ ***          $ ***       $ ***       $ ***       $ ***         ***     ***

13

      $ ***       $ ***       $ ***          $ ***       $ ***       $ ***       $ ***         ***     ***

14

      $ ***       $ ***       $ ***          $ ***       $ ***       $ ***       $ ***         ***     ***

15

      $ ***       $ ***       $ ***          $ ***       $ ***       $ ***       $ ***         ***     ***

16

      $ ***       $ ***       $ ***          $ ***       $ ***       $ ***       $ ***         ***     ***

 

C-36


     Aggregate Labor and Skills Price      Aggregate Equipment Price      Total Project  

Month
No.

   Mobilization
Payment
   Milestones      Monthly
Payment
     Total      Mobilization
Payment
   Milestones      Total      Incremental
Value
     Cumulative
Payment
     Incremental
Percentage
    Cumulative
Percentage
 

17

      $ ***       $ ***       $ ***          $ ***       $ ***       $ ***       $ ***         ***     ***

18

      $ ***       $ ***       $ ***          $ ***       $ ***       $ ***       $ ***         ***     ***

19

      $ ***       $ ***       $ ***          $ ***       $ ***       $ ***       $ ***         ***     ***

20

      $ ***       $ ***       $ ***          $ ***       $ ***       $ ***       $ ***         ***     ***

21

      $ ***       $ ***       $ ***          $ ***       $ ***       $ ***       $ ***         ***     ***

22

      $ ***       $ ***       $ ***          $ ***       $ ***       $ ***       $ ***         ***     ***

23

      $ ***       $ ***       $ ***          $ ***       $ ***       $ ***       $ ***         ***     ***

24

      $ ***       $ ***       $ ***          $ ***       $ ***       $ ***       $ ***         ***     ***

25

      $ ***       $ ***       $ ***          $ ***       $ ***       $ ***       $ ***         ***     ***

26

      $ ***       $ ***       $ ***          $ ***       $ ***       $ ***       $ ***         ***     ***

27

      $ ***       $ ***       $ ***          $ ***       $ ***       $ ***       $ ***         ***     ***

28

      $ ***       $ ***       $ ***          $ ***       $ ***       $ ***       $ ***         ***     ***

29

      $ ***       $ ***       $ ***          $ ***       $ ***       $ ***       $ ***         ***     ***

30

      $ ***       $ ***       $ ***          $ ***       $ ***       $ ***       $ ***         ***     ***

31

      $ ***       $ ***       $ ***          $ ***       $ ***       $ ***       $ ***         ***     ***

32

      $ ***       $ ***       $ ***          $ ***       $ ***       $ ***       $ ***         ***     ***

33

      $ ***       $ ***       $ ***          $ ***       $ ***       $ ***       $ ***         ***     ***

34

      $ ***       $ ***       $ ***          $ ***       $ ***       $ ***       $ ***         ***     ***

35

      $ ***       $ ***       $ ***          $ ***       $ ***       $ ***       $ ***         ***     ***

 

C-37


     Aggregate Labor and Skills Price      Aggregate Equipment Price      Total Project  

Month
No.

   Mobilization
Payment
   Milestones      Monthly
Payment
     Total      Mobilization
Payment
   Milestones      Total      Incremental
Value
     Cumulative
Payment
     Incremental
Percentage
    Cumulative
Percentage
 

36

      $ ***       $ ***       $ ***          $ ***       $ ***       $ ***       $ ***         ***     ***

37

      $ ***       $ ***       $ ***          $ ***       $ ***       $ ***       $ ***         ***     ***

38

      $ ***       $ ***       $ ***          $ ***       $ ***       $ ***       $ ***         ***     ***

39

      $ ***       $ ***       $ ***          $ ***       $ ***       $ ***       $ ***         ***     ***

40

      $ ***       $ ***       $ ***          $ ***       $ ***       $ ***       $ ***         ***     ***

41

      $ ***       $ ***       $ ***          $ ***       $ ***       $ ***       $ ***         ***     ***

42

      $ ***       $ ***       $ ***          $ ***       $ ***       $ ***       $ ***         ***     ***

43

      $ ***       $ ***       $ ***          $ ***       $ ***       $ ***       $ ***         ***     ***

44

      $ ***       $ ***       $ ***          $ ***       $ ***       $ ***       $ ***         ***     ***

45

      $ ***       $ ***       $ ***          $ ***       $ ***       $ ***       $ ***         ***     ***

46

      $ ***       $ ***       $ ***          $ ***       $ ***       $ ***       $ ***         ***     ***

47

      $ ***       $ ***       $ ***          $ ***       $ ***       $ ***       $ ***         ***     ***

48

      $ ***       $ ***       $ ***          $ ***       $ ***       $ ***       $ ***         ***     ***

49

      $ ***       $ ***       $ ***          $ ***       $ ***       $ ***       $ ***         ***     ***

50

      $ ***       $ ***       $ ***          $ ***       $ ***       $ ***       $ ***         ***     ***

51

      $ ***       $ ***       $ ***          $ ***       $ ***       $ ***       $ ***         ***     ***

52

      $ ***       $ ***       $ ***          $ ***       $ ***       $ ***       $ ***         ***     ***

53

      $ ***       $ ***       $ ***          $ ***       $ ***       $ ***       $ ***         ***     ***

54

      $ ***       $ ***       $ ***          $ ***       $ ***       $ ***       $ ***         ***     ***

 

C-38


     Aggregate Labor and Skills Price      Aggregate Equipment Price      Total Project  

Month
No.

   Mobilization
Payment
     Milestones      Monthly
Payment
     Total      Mobilization
Payment
     Milestones      Total      Incremental
Value
     Cumulative
Payment
     Incremental
Percentage
    Cumulative
Percentage
 

55

      $ ***       $ ***       $ ***          $ ***       $ ***       $ ***       $ ***         ***     ***

56

      $ ***       $ ***       $ ***          $ ***       $ ***       $ ***       $ ***         ***     ***

57

      $ ***       $ ***       $ ***          $ ***       $ ***       $ ***       $ ***         ***     ***

58

      $ ***       $ ***       $ ***          $ ***       $ ***       $ ***       $ ***         ***     ***

59

      $ ***       $ ***       $ ***          $ ***       $ ***       $ ***       $ ***         ***     ***

60

      $ ***       $ ***       $ ***          $ ***       $ ***       $ ***       $ ***         ***     ***

61

      $ ***       $ ***       $ ***          $ ***       $ ***       $ ***       $ ***         ***     ***

62

      $ ***       $ ***       $ ***          $ ***       $ ***       $ ***       $ ***         ***     ***

63

      $ ***       $ ***       $ ***          $ ***       $ ***       $ ***       $ ***         ***     ***

64

      $ ***       $ ***       $ ***          $ ***       $ ***       $ ***       $ ***         ***     ***

65

      $ ***       $ ***       $ ***          $ ***       $ ***       $ ***       $ ***         ***     ***

66

      $ ***       $ ***       $ ***          $ ***       $ ***       $ ***       $ ***         ***     ***

67

      $ ***       $ ***       $ ***          $ ***       $ ***       $ ***       $ ***         ***     ***

68

      $ ***       $ ***       $ ***          $ ***       $ ***       $ ***       $ ***         ***     ***

69

      $ ***       $ ***       $ ***          $ ***       $ ***       $ ***       $ ***         ***     ***

70

      $ ***       $ ***       $ ***          $ ***       $ ***       $ ***       $ ***         ***     ***

71

      $ ***       $ ***       $ ***          $ ***       $ ***       $ ***       $ ***         ***     ***

72

      $ ***       $ ***       $ ***          $ ***       $ ***       $ ***       $ ***         ***     ***
  

 

 

    

 

 

    

 

 

    

 

 

    

 

 

    

 

 

    

 

 

    

 

 

       

 

 

   

Total

   $ ***       $ ***       $ ***       $ ***       $ ***       $ ***       $ ***       $ 7,080,830,000            100  
  

 

 

    

 

 

    

 

 

    

 

 

    

 

 

    

 

 

    

 

 

    

 

 

       

 

 

   

 

C-39


ATTACHMENT D

FORM OF CHANGE ORDER FOR STAGE 1

 

D-1


SCHEDULE D-1

CHANGE ORDER FORM FOR STAGE 1

(for use when the Parties mutually agree upon and execute the Change Order pursuant to Section 6.1B or 6.2C)

 

PROJECT NAME: Corpus Christi Stage 1 Liquefaction Facility

 

OWNER: Corpus Christi Liquefaction, LLC

 

CONTRACTOR: Bechtel Oil, Gas and Chemicals, Inc.

 

DATE OF AGREEMENT:                                         

  

CHANGE ORDER NUMBER:                                         

 

DATE OF CHANGE ORDER:                                         

The Agreement between the Parties listed above is changed as follows: (attach additional documentation if necessary)

Adjustment to Contract Price

 

The original Contract Price was

   $ ____________   

Net change by previously authorized Change Orders (#            )

   $ ____________   

The Contract Price prior to this Change Order was

   $ ____________   

The Aggregate Equipment Price will be (increased) (decreased) (unchanged) by this Change Order in the amount of

   $ ____________   

The Aggregate Labor and Skills Price will be (increased) (decreased) (unchanged) by this Change Order in the amount of

   $ ____________   

The Aggregate Provisional Sum will be (increased) (decreased) (unchanged) by this Change Order in the amount of

   $ ____________   

The new Contract Price including this Change Order will be

   $ ____________   

Adjustment to dates in Project Schedule

The following dates are modified (list all dates modified; insert N/A if no dates modified):

Adjustment to other Changed Criteria (insert N/A if no changes or impact; attach additional documentation if necessary)

Adjustment to Payment Schedule:

Adjustment to Minimum Acceptance Criteria:

Adjustment to Performance Guarantees:

 

D-2


Adjustment to Design Basis:

Other adjustments to liability or obligation of Contractor or Owner under the Agreement:

Select either A or B:

[A] This Change Order shall constitute a full and final settlement and accord and satisfaction of all effects of the change reflected in this Change Order upon the Changed Criteria and shall be deemed to compensate Contractor fully for such change. Initials:             Contractor             Owner

[B] This Change Order shall not constitute a full and final settlement and accord and satisfaction of all effects of the change reflected in this Change Order upon the Changed Criteria and shall not be deemed to compensate Contractor fully for such change. Initials:             Contractor             Owner

Upon execution of this Change Order by Owner and Contractor, the above-referenced change shall become a valid and binding part of the original Agreement without exception or qualification, unless noted in this Change Order. Except as modified by this and any previously issued Change Orders, all other terms and conditions of the Agreement shall remain in full force and effect. This Change Order is executed by each of the Parties’ duly authorized representatives.

 

 

  

 

Owner    Contractor

 

  

 

Name    Name

 

  

 

Title    Title

 

  

 

Date of Signing    Date of Signing

 

D-3


SCHEDULE D-2

UNILATERAL CHANGE ORDER FORM FOR STAGE 1

(for use when only Owner executes the Change Order pursuant to Section 6.1C or 6.2D)

 

PROJECT NAME: Corpus Christi Stage 1 Liquefaction Facility

 

OWNER: Corpus Christi Liquefaction, LLC

 

CONTRACTOR: Bechtel Oil, Gas and Chemicals, Inc.

 

DATE OF AGREEMENT:                                         

  

CHANGE ORDER NUMBER:                                         

 

DATE OF CHANGE ORDER:                                         

You are hereby directed to make the following additions or modifications to, or deductions from, the Work (attach additional documentation if necessary)

Compensation for the changes specified in this Change Order is on a time and materials basis as provided in Section 6.1C and 6.2D of the Agreement.

Contractor shall commence with the performance of the change(s) described above [insert date].

This Change Order is signed by Owner’s duly authorized representative.

 

 

Owner

 

Name

 

Title

 

Date of Signing

 

D-4


SCHEDULE D-3

CONTRACTOR’S CHANGE ORDER REQUEST FORM FOR STAGE 1/

CONTRACTOR’S RESPONSE TO A CHANGE ORDER PROPOSED BY OWNER FOR STAGE 1

(For use by Contractor (i) pursuant to Section 6.2B of the Agreement, when Contractor requests a proposed Change Order, and (ii) pursuant to Section 6.1A of the Agreement, in responding to a Change Order proposed by Owner)

 

PROJECT NAME: Corpus Christi Stage 1 Liquefaction Facility

 

OWNER: Corpus Christi Liquefaction, LLC

 

CONTRACTOR: Bechtel Oil, Gas and Chemicals, Inc.

 

DATE OF AGREEMENT:                                         

  

CHANGE ORDER REQUEST NUMBER:                             

 

DATE OF CHANGE ORDER REQUEST:                             

Contractor proposes the following change(s) in the Agreement: (attach additional documentation, if necessary)

OR (as applicable)

Owner proposes the following change(s) in the Agreement: attach additional documentation, if necessary)

Detailed Reasons for Proposed Change(s) (provide detailed reasons for the proposed change, and attach all supporting documentation required under the Agreement)

Proposed Adjustments to Agreement (attach additional documentation, if necessary)

Contract Price Adjustment:

The Aggregate Equipment Price Adjustment:

The Aggregate Labor and Skills Price Adjustment:

The Aggregate Provisional Sum Adjustment:

Project Schedule Adjustment:

Adjustment to Payment Schedule:

Adjustment to Minimum Acceptance Criteria:

Adjustment to Performance Guarantees:

Adjustment to Guarantee Conditions:

Adjustment to Design Basis:

 

D-5


Other adjustments to liability or obligations of Contractor under the Agreement:

This request for Change Order is signed by Contractor’s duly authorized representative.

 

 

Contractor

 

Name

 

Title

 

Date of Signing

 

D-6


SCHEDULE D-4

UNIT RATES FOR CHANGE ORDERS

PERFORMED ON A TIME AND MATERIALS BASIS

 

Item

  

Cost Category

  

Unit

   Rate (in US$)     

Remarks

     

Year

   2014      2015      2016      2017      2018      2019      2020     

1

   Home Office    Home Office job-hour    $ ***       $ ***       $ ***       $ ***       $ ***       $ ***       $ ***       Includes all home office labor and other direct costs except travel.

2

   Field Non-Manual    Field Non-Manual job-hour    $ ***       $ ***       $ ***       $ ***       $ ***       $ ***       $ ***       Includes all field non-manual labor, other direct costs including relocation and temporary assignments, except business travel.

3

   Construction Direct and Indirect Labor    Direct Construction Labor job-hour    $ ***       $ ***       $ ***       $ ***       $ ***       $ ***       $ ***       Includes all construction direct labor and indirect labor, temporary facilities, material and small tools and consumables. Does not include large tools, Construction Equipment, or manual travel.

4

   Direct Material          Cost plus ***% markup on material

5

   Subcontracts                            Cost plus ***% markup on Subcontracts

6

   Construction Equipment and tools valued over $1,500    Each      ***                         For additional Construction Equipment or large tools not in the base plan.

7

   Business Travel         ***                         Based on Contractor’s travel policies attached as Exhibit 1.

This Schedule D-4 (including the attached Exhibit 1) shall be used: (i) by Contractor to develop its proposed adjustment to the Contract Price for a proposed Change Order submitted by Owner in accordance with Section 6.1A of the Agreement; (ii) by the Parties to determine the amount of compensation that Contractor is entitled to with respect to an unilateral Change Order executed by Owner in accordance with Section 6.1C or Section 6.2D of the Agreement; or (iii) by Contractor to develop its proposed adjustment to the Contract Price for any request for a proposed Change Order made by Contractor in accordance with Section 6.2B or Section 6.5B of the Agreement.

The above listed labor rates are all inclusive and include, among other things, wages and salaries paid to employees, holidays, vacation, sick leave, hospitalization and medical insurance, life insurance, payroll taxes, retirement and incentive programs, computer hardware and software, local communications, reproduction, overhead and profit.

If a Change Order results in Contractor incurring travel expenses necessary to the performance of the changed Work, and such travel expenses are reimbursable under a unilateral Change Order, Contractor shall be compensated based on the actual cost for such travel expenses, provided that such expenses comply with the requirements of Exhibit 1.

 

D-7


Exhibit 1

Contractor’s Travel Policy

A. GENERAL

Employees are on business trips when they are directed to travel for business purposes and their stay at any one location is not expected to exceed 60 Days.

Organization Manager approval is required to assign an employee initially on a business trip for more than 60 Days or to extend a business trip beyond 60 Days.

Transportation and actual reasonable expenses incurred by employees on business trips will be reimbursed. Allowances are detailed below.

Accompanied status is not normally authorized for employees on business trips. Special circumstances where spouses or domestic partners may accompany employees are detailed in Corporate Manual Policy 106, Business Travel.

B. TRANSPORTATION

1. Public Carrier

Employees on business trips are reimbursed for the most economical class of regularly scheduled, reserved seat service available plus actual and reasonable expenses to and from the airport.

Guidelines for class of service:

 

Domestic travel (all countries)    Economy/Coach
International travel under 7 hours    Economy/Coach
International travel greater than 7 hours    Business
International travel overnight with next Day business    Business

2. Private Automobile

Mileage costs via the most direct route will be reimbursed at the allowable rates set by the Internal Revenue Service per mile. Tolls are reimbursed in addition to the mileage rate.

C. FOOD, LODGING AND MISCELLANEOUS EXPENSES

Actual reasonable expense incurred during travel will be reimbursed.

 

D-8


ATTACHMENT E

PROJECT SCHEDULE FOR STAGE 1

 

Notice to Proceed    ***
Ready for Start Up for Subproject 1    *** (***) Days from Owner’s Issuance of Notice to Proceed
Target Substantial Completion Date for Subproject 1    *** (***) Days from Owner’s Issuance of Notice to Proceed
Guaranteed Substantial Completion Date for Subproject 1    *** (***) Days from Owner’s Issuance of Notice to Proceed
Ready for Start Up for Subproject 2    *** (***) Days from Owner’s Issuance of Notice to Proceed
Target Substantial Completion Date for Subproject 2    *** (***) Days from Owner’s Issuance of Notice to Proceed
Guaranteed Substantial Completion Date for Subproject 2    *** (***) Days from Owner’s Issuance of Notice to Proceed
Final Completion    *** (***) Days after Substantial Completion of Subproject 2

 

E-1


ATTACHMENT F

KEY PERSONNEL AND CONTRACTOR’S ORGANIZATION FOR STAGE 1

The following individuals are Key Personnel. A scheduled de-staffing plan shall be developed by Contractor for review by Owner during execution of the Work.

 

Position

  

Name

  

Mobilization

Project Director    ***    NTP
Senior Project Manager    ***    NTP
Project Engineering Manager    ***    NTP
Procurement Manager    TBD    NTP
Site Manager    ***    NTP
Project Controls Manager    ***    NTP
QA Manager    TBD    NTP
HSE Manager    TBD    NTP
Project Field Engineer    TBD    NTP
Commissioning/Startup Manager    TBD    NTP
Field Warranty Manager    TBD    RFSU

 

F-1


ATTACHMENT G

MAJOR SUBCONTRACTS, MAJOR SUB-SUBCONTRACTS, BULK

SUBCONTRACTS, MAJOR EQUIPMENT, APPROVED SUBCONTRACTORS AND

SUB-SUBCONTRACTORS FOR STAGE 1

1.1. Introduction

Subject to the provisions of Section 2.4 of the Agreement, this Attachment includes:

 

  (in Section 1.7) the List of Approved Subcontractors;

 

  (in Section 1.3) the Subcontracts designated as Major Subcontracts;

 

  (in Section 1.4) the Sub-subcontracts which are designated as Major Sub-subcontracts;

 

  (in Section 1.5) the Subcontracts designated as Bulk Order Subcontracts; and,

 

  (in Section 1.6) the Equipment designated as Major Equipment.

1.2. Local Content

Contractor shall give due consideration to local companies to provide materials and services, provided they are competitive in terms and price, proven quality, experience, expertise, service and delivery. (Refer to Attachment A, Schedule A-1, Section 4.3)

1.3. Major Subcontracts

The following Subcontracts are Major Subcontracts, and will apply even if the actual contractual arrangement is as a Sub-subcontractor. The Subcontractors for the following Subcontracts are Major Subcontractors:

 

  Equipment and Pipe Insulation

 

  LNG Tank Insulation

 

  Cold Boxes and Brazed Aluminum Exchangers

 

  Compressors – Boil Off Gas

 

  Compressors, LNG Refrigeration

 

  Heat Exchangers – Air Cooled

 

  Field Erected Non-LNG Tanks

 

  Site Preparation

 

  9% nickel supplier

 

  Marine facilities

 

  Distributed control system (DCS)

 

  LNG pumps

 

  Cryogenic valves

 

G-1


  Marine loading arms

 

  Waste Heat Recovery

 

  Flares

 

  Buildings

1.4. Major Sub-Subcontracts

The following Sub-subcontracts are Major Sub-subcontracts. The Sub-subcontractors for the following Sub-subcontracts are Major Sub-subcontractors:

 

  Heat Exchanger Vendor (for Cold Boxes)

 

  Air Cooler Motor Vendor

1.5. Bulk Order Subcontracts

The following Subcontracts are Bulk Order Subcontracts. The Subcontractors for the following Subcontracts are Bulk Order Subcontractors:

 

  ***

 

  ***

 

  ***

 

  ***

 

  ***

 

  ***

 

  ***

 

  ***

 

  ***

1.6. Major Equipment

The following Equipment items shall be deemed to be Major Equipment (as defined in the Agreement):

 

  ***

 

  ***

 

  ***

 

  ***

 

  ***

 

  ***

 

G-2


  ***

 

  ***

 

  ***

 

  ***

 

  ***

 

  ***

 

  ***

 

  ***

 

  ***

 

  ***

 

  ***

 

  ***

 

  ***

 

  ***

1.7. List of Approved Subcontractors

In accordance with Section 2.4 of the Agreement, Contractor shall use those Subcontractors listed below for the specified items of Work.

Ball Valves, Soft Seated

 

  ***

 

  ***

 

  ***

 

  ***

 

  ***

 

  ***

 

  ***

 

  ***

 

  ***

 

  ***

 

  ***

 

  ***

 

G-3


  ***

 

  ***

 

  ***

 

  ***

 

  ***

 

  ***

 

  ***

 

  ***

 

  ***

 

  ***

 

  ***

 

  ***

 

  ***

 

  ***

 

  ***

 

  ***

 

  ***

 

  ***

 

  ***

 

  ***

Buildings

 

  ***

 

  ***

 

  ***

 

  ***

 

  ***

Cold Boxes and Brazed Aluminum Exchangers

 

  ***

 

  ***

 

G-4


Compressors, LNG Refrigeration

 

  ***

Distributed Control Systems (DCS)

 

  ***

Electrical Bulks (including cable tray and channel)

 

  ***

 

  ***

 

  ***

 

  ***

 

  ***

Marine Gangways

 

  ***

 

  ***

Heat Exchangers – Air Cooled

 

  ***

 

  ***

 

  ***

Insulation (Equipment & Pipe)

 

  ***

 

  ***

 

  ***

 

  ***

 

  ***

 

  ***

 

  ***

 

  ***

LNG Pumps

 

  ***

 

G-5


Loading Arms

 

  ***

Marine Facilities

 

  ***

 

  ***

 

  ***

 

  ***

Motor Control Centers/Switchgear

 

  ***

 

  ***

 

  ***

 

  ***

Pipe Carbon Steel (Welded)

 

  ***

 

  ***

 

  ***

 

  ***

 

  ***

 

  ***

 

  ***

 

  ***

 

  ***

 

  ***

 

  ***

 

  ***

 

  ***

 

  ***

 

  ***

 

  ***

 

  ***

 

G-6


  ***

 

  ***

 

  ***

 

  ***

 

  ***

 

  ***

 

  ***

 

  ***

 

  ***

 

  ***

 

  ***

 

  ***

 

  ***

 

  ***

 

  ***

 

  ***

 

  ***

 

  ***

 

  ***

 

  ***

 

  ***

Pipe Stainless Steel (Welded)

 

  ***

 

  ***

 

  ***

 

  ***

 

  ***

 

  ***

 

  ***

 

  ***

 

G-7


  ***

 

  ***

 

  ***

 

  ***

 

  ***

 

  ***

 

  ***

 

  ***

 

  ***

Pipe Spool Fabrication

 

  ***

 

  ***

 

  ***

 

  ***

 

  ***

 

  ***

 

  ***

 

  ***

 

  ***

Site Preparation

 

  ***

 

  ***

 

  ***

 

  ***

 

  ***

 

  ***

Structural Steel (US)

 

  ***

 

  ***

 

G-8


  ***

 

  ***

 

  ***

 

  ***

 

  ***

 

  ***

 

  ***

 

  ***

Ultrasonic Flow meter

 

  ***

 

  ***

 

  ***

 

  ***

 

  ***

 

  ***

 

  ***

Tank Gauges (LNG Tanks)

 

  ***

 

  ***

 

  ***

 

  ***

 

  ***

 

  ***

Valves, Cryogenic Ball

 

  ***

 

  ***

 

  ***

 

  ***

 

  ***

 

G-9


  ***

 

  ***

 

  ***

 

  ***

 

  ***

 

  ***

 

  ***

 

  ***

 

  ***

 

  ***

 

  ***

 

  ***

 

  ***

 

  ***

 

  ***

 

  ***

 

  ***

 

  ***

 

  ***

 

  ***

 

  ***

 

  ***

 

  ***

 

  ***

 

  ***

 

  ***

 

  ***

 

  ***

 

  ***

 

  ***

 

  ***

 

  ***

 

G-10


Valves, Cryogenic Butterfly

 

  ***

 

  ***

 

  ***

 

  ***

 

  ***

 

  ***

 

  ***

 

  ***

Valves, Cryogenic Globe & Check Valves

 

  ***

 

  ***

 

  ***

 

  ***

 

  ***

 

  ***

Valves, Non-Return

 

  ***

 

  ***

 

  ***

 

  ***

 

  ***

 

  ***

Flares

 

  ***

 

  ***

 

  ***

 

  ***

 

G-11


  ***

 

  ***

 

  ***

 

G-12


ATTACHMENT H

FORM OF LIMITED NOTICE TO PROCEED

AND NOTICE TO PROCEED FOR STAGE 1

 

H-1


SCHEDULE H-1

FORM OF LIMITED NOTICE TO PROCEED FOR STAGE 1

 

Date:  

    

Via Facsimile (    )     -             and Overnight Courier

Bechtel Oil, Gas and Chemicals, Inc.

3000 Post Oak Boulevard

Houston, Texas 77056

Attention:                     

 

Re: Limited Notice to Proceed for Stage 1

Pursuant to Section 5.2A of the Fixed Price Separated Turnkey Agreement for the Engineering, Procurement and Construction of the Corpus Christi Stage 1 Liquefaction Facility, dated as of [            ], 20[    ] (the “Agreement”), by and between Corpus Christi Liquefaction, LLC (“Owner”) and Bechtel Oil, Gas and Chemicals, Inc. (“Contractor”), this letter shall serve as the Limited Notice to Proceed from Owner to Contractor authorizing Contractor to proceed with the LNTP Work described in the attached appendix and authorized by this LNTP pursuant to the terms and conditions of the Agreement.

 

For and on behalf of
CORPUS CHRISTI LIQUEFACTION, LLC
           By:  

 

  Name:  

 

  Title:  

 

By its signature hereto, the undersigned hereby acknowledges and accepts this Limited Notice to Proceed.

 

For and on behalf of
BECHTEL OIL, GAS AND CHEMICALS, INC.
By:  

 

Name:  

 

Title:  

 

 

cc: Bechtel Oil, Gas and Chemicals, Inc.
   3000 Post Oak Boulevard
   Houston, Texas 77056
   Facsimile: ***
   Attn: Principal Counsel

 

H-2


SCHEDULE H-2

FORM OF NOTICE TO PROCEED FOR STAGE 1

 

Date:  

    

Via Facsimile (    )     -             and Overnight Courier

Bechtel Oil, Gas and Chemicals, Inc.

3000 Post Oak Boulevard

Houston, Texas 77056

Attention:                     

 

Re: Notice to Proceed for Stage 1

Pursuant to Section 5.2B of the Fixed Price Separated Turnkey Agreement for the Engineering, Procurement and Construction of the Corpus Christi Stage 1 Liquefaction Facility, dated as of [            ], 20[    ] (the “Agreement”), by and between Corpus Christi Liquefaction, LLC (“Owner”) and Bechtel Oil, Gas and Chemicals, Inc (“Contractor”), this letter shall serve as the Notice to Proceed from Owner to Contractor authorizing Contractor to proceed with the Work pursuant to the terms and conditions of the Agreement.

 

For and on behalf of
CORPUS CHRISTI LIQUEFACTION, LLC
           By:  

 

  Name:  

 

  Title:  

 

By its signature hereto, the undersigned hereby acknowledges and accepts this Notice to Proceed.

 

For and on behalf of
BECHTEL OIL, GAS AND CHEMICALS, INC.
By:  

 

Name:  

 

Title:  

 

 

cc: Bechtel Oil, Gas and Chemicals, Inc.
   3000 Post Oak Boulevard
   Houston, Texas 77056
   Facsimile: ***
   Attn: Principal Counsel

 

H-3


ATTACHMENT I

FORM OF CONTRACTOR’S INVOICES FOR STAGE 1


SCHEDULE I-1

 

PROJECT NAME: Corpus Christi Stage 1 Liquefaction Facility    INVOICE NUMBER: - XXXXXX
OWNER: Corpus Christi Liquefaction, LLC    DATE OF INVOICE: MMM/DD/YYYY
CONTRACTOR: Bechtel Oil, Gas, and Chemicals, Inc.   
DATE OF AGREEMENT: MMM/DD/YYYY   

 

 

Contractor hereby makes application for payment to Owner as shown below in connection with the above referenced Agreement between the Parties.

 

1.

  

Original Aggregate Equipment Price (Section 7.1A of Agreement)

   $ 0.00   

2.

  

Net change by Change Orders (Exhibit 1A)

   $ 0.00   

3.

  

Aggregate Equipment Price to date (Line 1 + Line 2)

   $ 0.00   

4.

  

Total invoiced to date for Mobilization Payment - Section 7.2A (Exhibit 2A)

   $ 0.00   

5.

  

Total invoiced to date for completion of Milestones - Section 7.2B (Schedule C3 of Attachment C) (Exhibit 2A)

   $ 0.00   

6.

  

Original Aggregate Labor and Skills Price (Section 7.1A of Agreement)

   $ 0.00   

7.

  

Net change by Change Orders (Exhibit 1B)

   $ 0.00   

8.

  

Aggregate Labor and Skills Price to date (Line 6 + Line 7)

   $ 0.00   

9.

  

Total invoiced to date for Mobilization Payment - Section 7.2A (Exhibit 2B)

   $ 0.00   

10.

  

Total invoiced to date for completion of Milestones - Section 7.2B (Schedule C1 of Attachment C) (Exhibit 2B)

   $ 0.00   

11.

  

Total invoiced to date for Monthly Payments - Section 7.2B (Schedule C2 of Attachment C) (Exhibit 2B)

   $ 0.00   

12.

  

Total invoiced to date for Time and Material Work (Exhibit 3)

   $ 0.00   

13.

  

Total invoiced to date (Line 4 + Line 5 + Line 9 + Line 10 + Line 11 + Line 12)

   $ 0.00   

14.

  

Less previous Invoices

   $ 0.00   

15.

  

Current Payment Due

   $ 0.00   

16.

  

Contract Price to Date (Line 3 + Line 8)

   $ 0.00   

17.

  

Balance of Contract Price remaining (Line 3 plus Line 8 less Line 13)

   $ 0.00   

Contractor certifies that (i) the Work is progressing in accordance with the Project Schedule (as may be adjusted by Change Order) and CPM Schedule, as set forth in the current Monthly Progress Report; (ii) the Work described in or relating to this Invoice has been performed or will be performed in 60 Days and supplied in accordance with the Agreement; (iii) the Work described in or relating to this Invoice is in accordance with the Agreement and the referenced Milestone(s) is/are complete or will be complete in 60 Days; (iv) Contractor is entitled to payment of the amount set forth as “Current Payment Due” in this Invoice.

 

I-1


CORPUS CHRISTI STAGE 1 LIQUEFACTION FACILITY

DATE OF INVOICE: MMM/DD/YYYY

INVOICE NUMBER: - XXXXXX

Payment is to be made by wire transfer or ACH on or before [insert due date] to:

The Bank of New York

New York, NY

Account # XXXXX

Acct. Type: Checking (DDA) ACH Format: CTX

ABA #

Credit: Bechtel Oil, Gas and Chemicals, Inc.

Swift Code: IRVTUS3N

CONTRACTOR

 

Signed:  

 

Name:  

 

Title:  

 

Date:  

 

  , YYYY

OWNER APPROVAL

AMOUNT APPROVED by Owner for Payment: U.S. $        

OWNER

 

Signed:  

 

Name:  

 

Title:  

 

Date:  

 

  , YYYY

The AMOUNT APPROVED by Owner is without prejudice to any rights of Owner under the Agreement.

Explanation is listed below or attached if the AMOUNT APPROVED is less than the amount requested by Contractor under this Invoice.

 

I-2


EXHIBIT 1A – Aggregate Equipment Price

LIST OF EXECUTED CHANGE ORDERS TO SCHEDULE C3 - PAYMENT SCHEDULE

The following Change Orders have been executed by Owner and/or Contractor pursuant to Article 6:

 

Change Order No.

  

Description of Change Order

   Approved Amount  
     
     
     
     
     
     
     
     
     
     
     
     
     
     
     
     
     
     
     
     
     
     
     
     
     
     
     
     
     
     
     
     
     
     
     
     
     
     
     
     
     

 

 

 

Total

      $ 0.00   
     

 

 

 

 

I-3


EXHIBIT 1B – Aggregate Labor and Skills Price

LIST OF EXECUTED CHANGE ORDERS TO SCHEDULE C1 - PAYMENT SCHEDULE

The following Change Orders have been executed by Owner and/or Contractor pursuant to Article 6:

 

Change Order No.

  

Description of Change Order

  

Approved Amount

 
     
     
     
     
     
     
     
     
     
     
     
     
     
     
     
     
     
     
     
     
     
     
     
     
     
     
     
     
     
     
     
     
     
     
     
     
     
     
     
     
     

 

 

 

Total

      $ 0.00   
     

 

 

 

 

I-4


EXHIBIT 2A - Aggregate Equipment Price

 

1. MOBILIZATION PAYMENT AS PER CONTRACT - ARTICLE 7 SECTION 7.2.A

 

No.

  

Description of Mobilization Payment

  

Work Completed (From Previous
Invoices) ($ USD)

    

Work Completed (This
Period) ($ USD)

 
        
        
     

 

 

    

 

 

 

Total

      $ 0.00       $ 0.00   
     

 

 

    

 

 

 

 

2. MILESTONE PAYMENT AS PER CONTRACT - ARTICLE 7 SECTION 7.2.B

MILESTONES

 

No. of Milestone

  

Description of Milestone

  

Previously Invoiced
Amount ($ USD)

    

Amount of Milestone
Completed this Month
($ USD)

    

This Month Invoice
Amount ($ USD)

 
           
           
           
           
           
           
           
           
           
           
     

 

 

    

 

 

    

 

 

 

Total

      $ 0.00       $ 0.00       $ 0.00   
     

 

 

    

 

 

    

 

 

 

 

I-5


EXHIBIT 2B - Aggregate Labor and Skills Price

 

1. MOBILIZATION PAYMENT AS PER CONTRACT - ARTICLE 7 SECTION 7.2.A

 

No.

  

Description of Mobilization Payment

  

Work Completed (From Previous
Invoices) ($ USD)

    

Work Completed (This
Period) ($ USD)

 
        
        
     

 

 

    

 

 

 

Total

      $ 0.00       $ 0.00   
     

 

 

    

 

 

 

 

2. MILESTONE PAYMENT AS PER CONTRACT - ARTICLE 7 SECTION 7.2.B

MILESTONES

 

No. of Milestone

  

Description of Milestone

  

Previously Invoiced
Amount ($ USD)

    

Amount of Milestone
Completed this Month
($ USD)

    

This Month Invoice
Amount ($ USD)

 
           
           
           
           
           
           
           
           
           
           
     

 

 

    

 

 

    

 

 

 

Total

      $ 0.00       $ 0.00       $ 0.00   
     

 

 

    

 

 

    

 

 

 

 

3. MONTHLY PAYMENTS AS PER CONTRACT - ARTICLE 7 SECTION 7.2.B

 

Month of Payment

  

Monthly Payments

    

Previously Invoiced
Amount ($ USD)

    

This Month Invoice
Amount ($ USD)

 
        
        
        
        
        
        
        
        
        
        
  

 

 

    

 

 

    

 

 

 

Total

   $ 0.00       $ 0.00       $ 0.00   
  

 

 

    

 

 

    

 

 

 

 

I-6


EXHIBIT 3

TIME AND MATERIAL PAYMENTS

The following Change Orders have been executed by Owner and/or Contractor pursuant to Article 6:

 

Month of Invoice

  

Type of Work

  

Amount of Invoice

 
     
     
     
     
     
     
     
     
     
     
     
     
     
     
     
     
     
     
     
     
     
     
     
     
     
     
     
     
     
     
     
     
     
     
     
     
     

 

 

 

Total

      $ 0.00   
     

 

 

 

 

I-7


EXHIBIT 4

INTERIM CONDITIONAL LIEN WAIVERS

 

I-8


EXHIBIT 5

INFORMATION REQUIRED OR REQUESTED BY OWNER

 

I-9


SCHEDULE I-2

 

PROJECT NAME: Corpus Christi Stage 1 Liquefaction Facility   INVOICE NUMBER:   - XXXXXX
OWNER: Corpus Christi Liquefaction, LLC   DATE OF INVOICE:   MMM/DD/YYYY
CONTRACTOR: Bechtel Oil, Gas, and Chemicals, Inc.    
DATE OF AGREEMENT: MMM/DD/YYYY    

 

 

Contractor hereby makes application for payment to Owner as shown below in connection with the above referenced Agreement between the Parties.

 

1.

  

Original Aggregate Equipment Price (Section 7.1A of Agreement)

   $ 0.00   

2.

  

Net change by Change Orders (Exhibit 1A)

   $ 0.00   

3.

  

Aggregate Equipment Price to date (Line 1 + Line 2)

   $ 0.00   

4.

  

Total invoiced to date for Mobilization Payment - Section 7.2A (Exhibit 2A)

   $ 0.00   

5.

  

Total invoiced to date for completion of Milestones - Section 7.2B (Schedule C3 of Attachment C) (Exhibit 2A)

   $ 0.00   

6.

  

Original Aggregate Labor and Skills Price (Section 7.1A of Agreement)

   $ 0.00   

7.

  

Net change by Change Orders (Exhibit 1B)

   $ 0.00   

8.

  

Aggregate Labor and Skills Price to date (Line 6 + Line 7)

   $ 0.00   

9.

  

Total invoiced to date for Mobilization Payment - Section 7.2A (Exhibit 2B)

   $ 0.00   

10.

  

Total invoiced to date for completion of Milestones - Section 7.2B (Schedule C1 of Attachment C) (Exhibit 2B)

   $ 0.00   

11.

  

Total invoiced to date for Monthly Payments - Section 7.2B (Schedule C2 of Attachment C) (Exhibit 2B)

   $ 0.00   

12.

  

Total invoiced to date for Time and Material Work (Exhibit 3)

   $ 0.00   

13.

  

Total invoiced to date (Line 4 + Line 5 + Line 9 + Line 10 + Line 11 + Line 12)

   $ 0.00   

14.

  

Less previous Invoices

   $ 0.00   

15.

  

Current Payment Due

   $ 0.00   

16.

  

Contract Price to Date (Line 3 + Line 8)

   $ 0.00   

17.

  

Balance of Contract Price remaining (Line 3 plus Line 8 less Line 13)

   $ 0.00   

ADJUSTMENTS. Explanation is listed below of (i) any adjustments required to reconcile all previous Invoices,

 

 

 

 

(Attach supporting documentation.)

 

Total Adjustments

   $ 0.00   

Total Final Payment Due (Line I(15) +/- Total Adjustments)

   $ 0.00   

Contractor certifies that (i) all Work (except for that Work and obligations that survive the termination or expiration of the Agreement) has been completely performed in accordance with the terms of the Agreement, including the completion of all Punchlist items; (ii) all quantities and prices in this final Invoice or attachments are correct and in accordance with the Agreement; (iii) fully completed and executed Final Conditional Lien and Claim Waivers from Contractor, and from all Lien Waiver Subcontractors and Major Sub-subcontractors who performed Work for the Project, as provided in Section 7.3 of the Agreement, are attached to this final Invoice; (iv) all documentation required to be delivered by Contractor to Owner under the Agreement, including Record Drawings and Specifications, Owner’s Confidential Information and test reports, have been delivered to Owner; (v) all of Contractor’s, Subcontractors’ and Sub-subcontractors’ personnel, supplies, waste, materials, rubbish, and temporary facilities have been removed from the Stage 1 Site; (vi) all Subcontractors have been paid in accordance with the terms of their Subcontracts, except for amounts that are the subject of this final Invoice or amounts that are properly retained or withheld in accordance with the terms of such Subcontracts; (vii) all payrolls, Taxes, bill for Equipment, and any other indebtedness connected with the Work (excluding Corrective Work) has been paid; (viii) Contractor has delivered an executed Final Completion Certificate, which has been accepted by Owner by signing such certificate; (ix) Contractor has completed all other obligations required under the Agreement for Final Completion; (x) attached to this final Invoice is all documentation supporting Contractor’s request for payment as required under the Agreement; and (xi) this final Invoice is signed by an authorized representative of Contractor.

 

I-1


CORPUS CHRISTI STAGE 1 LIQUEFACTION FACILITY

DATE OF INVOICE: MMM/DD/YYYY            

INVOICE NUMBER: - XXXXXX

Payment is to be made by wire transfer or ACH on or before [insert due date] to:

The Bank of New York

New York, NY

Account # XXXXX

Acct. Type: Checking (DDA) ACH Format: CTX

ABA #

Credit: Bechtel Oil, Gas and Chemicals, Inc.

Swift Code: IRVTUS3N

CONTRACTOR

 

Signed:  

 

Name:  

 

Title:  

 

Date:  

 

  , YYYY  

OWNER APPROVAL

AMOUNT APPROVED by Owner for Payment: U.S. $

OWNER

 

Signed:  

 

Name:  

 

Title:  

 

Date:  

 

  , YYYY  

The AMOUNT APPROVED by Owner is without prejudice to any rights of Owner under the Agreement.

Explanation is listed below or attached if the AMOUNT APPROVED is less than the amount requested by Contractor under this Invoice.

 

I-2


EXHIBIT 1A – Aggregate Equipment Price

LIST OF EXECUTED CHANGE ORDERS TO SCHEDULE C3 - MILESTONE PAYMENT SCHEDULE

The following Change Orders have been executed by Owner and/or Contractor pursuant to Article 6:

 

Change Order No.

  

Description of Change Order

  

Approved Amount

 
     
     
     
     
     
     
     
     
     
     
     
     
     
     
     
     
     
     
     
     
     
     
     
     
     
     
     
     
     
     
     
     
     
     
     
     
     
     
     
     
     

 

 

 

Total

      $ 0.00   
     

 

 

 

 

I-3


EXHIBIT 1B – Aggregate Labor and Skills Price

LIST OF EXECUTED CHANGE ORDERS TO SCHEDULE C1 - MILESTONE PAYMENT SCHEDULE

The following Change Orders have been executed by Owner and/or Contractor pursuant to Article 6:

 

Change Order No.

  

Description of Change Order

  

Approved Amount

 
     
     
     
     
     
     
     
     
     
     
     
     
     
     
     
     
     
     
     
     
     
     
     
     
     
     
     
     
     
     
     
     
     
     
     
     
     
     
     
     
     

 

 

 

Total

      $ 0.00   
     

 

 

 

 

I-4


EXHIBIT 2A – Aggregate Equipment Price

 

1. MOBILIZATION PAYMENT AS PER CONTRACT - ARTICLE 7 SECTION 7.2.A

 

No.

  

Description of Mobilization Payment

  

Work Completed (From Previous
Invoices) ($ USD)

    

Work Completed (This
Period) ($ USD)

 
        
        
     

 

 

    

 

 

 

Total

      $ 0.00       $ 0.00   
     

 

 

    

 

 

 

 

2. MILESTONE PAYMENT AS PER CONTRACT - ARTICLE 7 SECTION 7.2.B

MILESTONES

 

No. of Milestone

  

Description of Milestone

  

Previously Invoiced
Amount ($ USD)

    

Amount of Milestone
Completed this Month
($ USD)

    

This Month Invoice
Amount ($ USD)

 
           
           
           
           
           
           
           
           
           
           
     

 

 

    

 

 

    

 

 

 

Total

      $ 0.00       $ 0.00       $ 0.00   
     

 

 

    

 

 

    

 

 

 

 

I-5


EXHIBIT 2B – Aggregate Labor and Skills Price

 

1. MOBILIZATION PAYMENT AS PER CONTRACT - ARTICLE 7 SECTION 7.2.A

 

No.

  

Description of Mobilization Payment

  

Work Completed (From Previous
Invoices) ($ USD)

    

Work Completed (This
Period) ($ USD)

 
        
        
     

 

 

    

 

 

 

Total

      $ 0.00       $ 0.00   
     

 

 

    

 

 

 

 

2. MILESTONE PAYMENT AS PER CONTRACT - ARTICLE 7 SECTION 7.2.B

MILESTONES

 

No. of Milestone

  

Description of Milestone

  

Previously Invoiced
Amount ($ USD)

    

Amount of Milestone
Completed this Month
($ USD)

    

This Month Invoice
Amount ($ USD)

 
           
           
           
           
           
           
           
           
           
           
     

 

 

    

 

 

    

 

 

 

Total

      $ 0.00       $ 0.00       $ 0.00   
     

 

 

    

 

 

    

 

 

 

 

3. MONTHLY PAYMENTS AS PER CONTRACT - ARTICLE 7 SECTION 7.2.B

 

Month of Payment

   Monthly Payments      Previously Invoiced
Amount ($ USD)
     This Month Invoice
Amount ($ USD)
 
        
        
        
        
        
        
        
        
        
        
  

 

 

    

 

 

    

 

 

 

Total

   $ 0.00       $ 0.00       $ 0.00   
  

 

 

    

 

 

    

 

 

 

 

I-6


EXHIBIT 3

TIME AND MATERIAL PAYMENTS

The following Change Orders have been executed by Owner and/or Contractor pursuant to Article 6:

 

Month of Invoice

  

Type of Work

  

Amount of Invoice

 
     
     
     
     
     
     
     
     
     
     
     
     
     
     
     
     
     
     
     
     
     
     
     
     
     
     
     
     
     
     
     
     
     
     
     
     
     

 

 

 

Total

      $ 0.00   
     

 

 

 

 

I-7


EXHIBIT 4

FINAL CONDITIONAL LIEN WAIVERS

 

I-8


EXHIBIT 5

INFORMATION REQUIRED OR REQUESTED BY OWNER

 

I-9


ATTACHMENT J

HSE PLAN REQUIREMENTS FOR STAGE 1

 

1.0 Introduction

In addition to the requirements specified in the Agreement, including Section 3.10, Contractor shall create and provide to Owner for review a health, safety and environment plan (“HSE Plan”) for the Project that includes, at a minimum, the following:

 

  1.1. HSE Management Plan

 

  1.2. Construction Environmental Control Plan

 

  1.2.1. Construction Environmental Control Plan (CECP);

 

  1.2.2. Construction Waste Management Plan;

 

  1.2.3. Spill Prevention, Control and Countermeasures Plan (SPCC); and

 

  1.2.4. Erosion and Sediment Management Plan (E&S Plan).

 

  1.3. Traffic Management Plan

 

2.0 HSE Management Plan

Contractor shall develop and implement a plan for management of the health, safety and environmental (“HSE) matters for the Project (“HSE Management Plan”) to provide guidelines for compliance with: (i) all applicable Contractor HSE requirements, policies, procedures and core processes; (ii) all Owner requirements; and (iii) all HSE requirements under Applicable Law, including any federal, state or local Permits.

The HSE Management Plan shall contain Project specific information including Project scope, Project organization, HSE organization, and shall be used as a guideline for the HSE management of the Project. Specific HSE procedures shall be developed from the HSE Management Plan to provide specific instructions on how to implement the HSE Management Plan.

The HSE Management Plan shall be broken into the following ten (10) elements:

 

  2.1. Leadership & Commitment

The HSE Management Plan shall include a zero accident philosophy and the Project HSE policy. This section of the HSE Management Plan shall include the following:

 

  2.1.1. Senior and Project management commitment;

 

  2.1.2. Define management expectations with regards to HSE of all Project personnel including supervision, employees, Subcontractors, and Sub-subcontractors; and

 

  2.1.3. Provide clear message that all Project personnel, Subcontractors, and Sub-subcontractors will be held accountable for their HSE performance.

 

  2.2. Strategies and Objectives

The HSE Management Plan shall provide the HSE strategy, objectives, requirements and standards for the Project. This section of the HSE Management Plan shall include the following:

 

  2.2.1. Project HSE policy communication, updates and support;

 

J-1


  2.2.2. Project HSE strategy including how it shall be supported and updated;

 

  2.2.3. Project HSE objectives, goals and targets; and

 

  2.2.4. Project Key Performance Indicators (KPI).

 

  2.3. Organization and Resources

The HSE Management Plan shall provide the roles and responsibilities of the Project personnel and the plan for management of HSE documentation. This section of the HSE Management Plan shall include the following:

 

  2.3.1. Project and HSE organization;

 

  2.3.2. Project HSE roles and responsibilities;

 

  2.3.3. Functional HSE responsibilities and coordination (i.e. procurement, contracts, Project controls, HSE and etc.);

 

  2.3.4. Communication process with regards to HSE policies, procedures and requirements; and

 

  2.3.5. HSE information and documentation review, distribution and retention.

 

  2.4. HSE Risk Management

The HSE Management Plan shall define the Project approach to risk management and shall provide Project requirements and guidelines for implementation. This section of the HSE Management Plan shall include the following:

 

  2.4.1. Defined risk management process that will identify HSE hazards and manage HSE risks;

 

  2.4.2. Defined process to evaluate projects, tasks and Subcontractors with regards to HSE risk and required resources for mitigation;

 

  2.4.3. Standardized risk matrix;

 

  2.4.4. Information sharing methods;

 

  2.4.5. Hazard recognition program;

 

  2.4.6. Hazard recognition teams; and

 

  2.4.7. Action register.

 

  2.5. Planning

This section of the HSE Management Plan shall include the following:

 

  2.5.1. Methods defined to achieve HSE objectives;

 

  2.5.2. Applicable HSE procedures, Site requirements and/or work instructions;

 

  2.5.3. Emergency preparedness; and

 

  2.5.4. HSE communications.

 

  2.6. Employee Competency

This section of the HSE Management Plan shall include the following:

 

  2.6.1. Training program and requirements with training matrix; and

 

  2.6.2. People based safety program.

 

J-2


  2.7. Customer Interface

This section of the HSE Management Plan shall include the following:

 

  2.7.1. Communication between FERC and other Governmental Instrumentalities;

 

  2.7.2. Reporting, communication and information sharing; and

 

  2.7.3. Coordination, security and operating facility access.

 

  2.8. Contractor Evaluation, Selection and Monitoring

This section of the HSE Management Plan shall include the following:

 

  2.8.1. Define evaluation and selection methods and processes; and

 

  2.8.2. Define how monitoring of Subcontractors shall be performed.

 

  2.9. Implementation and Monitoring

This section of the HSE Management Plan shall include the following:

 

  2.9.1. Stop work policy;

 

  2.9.2. Incident reporting, recording and investigation;

 

  2.9.3. Procedure review; and

 

  2.9.4. Management of change.

 

  2.10. Auditing and Reviewing

This section of the HSE Management Plan shall include the following:

 

  2.10.1. Project self-assessment;

 

  2.10.2. Management assessments;

 

  2.10.3. HSE inspection;

 

  2.10.4. Subcontractor monitors and responsibilities; and

 

  2.10.5. Action register and corrective action closure.

 

3.0 Construction Environmental Control Plan

 

  3.1 Construction Environmental Control Plan (CECP)

This section of the CECP shall include the following:

 

  3.1.1 Introduction

 

  3.1.2 General Project information

 

  3.1.3 Responsibilities

 

  3.1.4 Environmental management controls

 

  3.1.5 Environmental requirements, plans, and procedures

 

  3.1.6 Required figures, tables and appendices

 

  3.2 Construction Waste Management Plan

This section of the Construction Waste Management Plan shall include the following:

 

  3.2.1. Introduction

 

  3.2.2. Waste types

 

J-3


  3.2.3. Waste management requirements

 

  3.2.4. Waste disposal requirements

 

  3.2.5. Waste minimization

 

  3.2.6. Required tables and appendices

 

  3.3 Spill Prevention, Control and Countermeasures Plan (SPCC)

This section of the SPCC shall include the following:

 

  3.3.1 Management approval

 

  3.3.2 Engineering certification

 

  3.3.3 Record of review & amendment form

 

  3.3.4 Introduction

 

  3.3.5 Security

 

  3.3.6 Trajectory analysis

 

  3.3.7 Secondary containment

 

  3.3.8 Contingency plans

 

  3.3.9 Inspections, testing and recordkeeping

 

  3.3.10 Personnel training & discharge prevention

 

  3.3.11 Spill response

 

  3.3.12 Spill notification and reporting

 

  3.3.13 Spill kits

 

  3.3.14 Required figures, tables and appendices

 

  3.4 Erosion and Sediment Management Plan (E&S Plan)

This section of the E&S Plan shall include the following:

 

  3.4.1. Introduction

 

  3.4.2. General Project information

 

  3.4.3. Responsibilities

 

  3.4.4. Environmental management controls

 

  3.4.5. Environmental requirements, plans and procedures

 

  3.4.6. Figures, tables and appendices

 

4.0 Traffic Management Plan

This section of the Traffic Management Plan shall include the following:

 

  4.1. Introduction

 

  4.2. Responsibilities

 

  4.3. Safe Facility Site layout

 

  4.4. Pedestrian routes

 

  4.5. Vehicle routes

 

J-4


  4.6. Traffic controls and Facility Site entrances

 

  4.7. Parking

 

  4.8. Vehicle safety equipment standards

 

  4.9. Driving rules

 

  4.10. Training requirements

 

  4.11. Vehicle inspection requirements

 

J-5


Execution Version

ATTACHMENT K

FORM OF LIEN AND CLAIM WAIVERS FOR STAGE 1

 

K-1


SCHEDULE K-1

CONTRACTOR’S INTERIM CONDITIONAL LIEN WAIVER

AND RELEASE FOR STAGE 1

(To be executed by Contractor with each Invoice other than the Invoice for final payment)

Project                             

Job No.                             

On receipt by BECHTEL OIL, GAS AND CHEMICALS, INC. (“Contractor”) of a check or wire transfer from CORPUS CHRISTI LIQUEFACTION, LLC (“Owner”) in the sum of $                    1 payable to Contractor, and when the check has been properly endorsed and has been paid by the bank on which it is drawn or the wire transfer payment is received by Contractor, this document becomes effective to release any mechanic’s lien right, any right arising from a payment bond that complies with a state or federal statute, any common law payment bond right, any claim for payment, and any rights under any similar ordinance, rule, or statute related to claim or payment rights for persons in Contractor’s position that Contractor has on the property of Corpus Christi Liquefaction, LLC located at                     (the “Property”) to the following extent: with respect to the labor, services, equipment, or materials (a) that have been furnished by or on behalf of Contractor pursuant to that certain Fixed Price Separated Turnkey Agreement for the Engineering Procurement and Construction of the Corpus Christi Stage 1 Liquefaction Facility, between Contractor and Owner, dated                     , and (b) for which payment is requested in the Payment Request(s) (defined below).

This release covers a progress payment for all labor, services, equipment, or materials furnished to the Property or to Owner as indicated in the attached statement(s) or progress payment request(s) (“Payment Requests”), except for unpaid retention, pending modifications and changes, or other items furnished. Before any recipient of this document relies on this document, the recipient should verify evidence of payment to Contractor.

Contractor warrants that Contractor has already paid, or will use the funds received from this progress payment to promptly pay, in full all of Contractor’s laborers, subcontractors, materialmen, and suppliers for all work, materials, equipment, or services provided for or to the above referenced project in regard to the attached Payment Request(s).

Contractor agrees that this waiver and release form is in compliance with Tex. Prop. Code Ann. Section 53.284.

Date:                                                                                                                                                                                

BECHTEL OIL, GAS AND CHEMICALS, INC.:                                                                                                      

Signature:                                                                                                                                                                        

Title:                                                                                                                                                                                

 

 

1 Amount in Payment Request(s) submitted with this Contractor’s Interim Conditional Lien Waiver and Release.

 

K-2


Execution version

SCHEDULE K-2

CONTRACTOR’S INTERIM UNCONDITIONAL LIEN WAIVER

AND RELEASE FOR STAGE 1

(To be executed by Contractor with each Invoice other than the Invoice for final payment)

NOTICE: THIS DOCUMENT WAIVES RIGHTS UNCONDITIONALLY AND STATES THAT YOU HAVE BEEN PAID FOR GIVING UP THOSE RIGHTS. IT IS PROHIBITED FOR A PERSON TO REQUIRE YOU TO SIGN THIS DOCUMENT IF YOU HAVE NOT BEEN PAID THE PAYMENT AMOUNT SET FORTH BELOW. IF YOU HAVE NOT BEEN PAID, USE A CONDITIONAL RELEASE FORM.

Project                         

Job No.                         

BECHTEL OIL, GAS AND CHEMICALS, INC. (“Contractor”) has been paid and has received a progress payment in the sum of $                    2 (the “Payment”) for all labor, services, equipment, or materials furnished to the Property (defined below) or to CORPUS CHRISTI LIQUEFACTION, LLC (“Owner”) on the property of Corpus Christi Liquefaction, LLC located at                     (the “Property”) to the following extent: with respect to the labor, services, equipment, or materials (a) that have been furnished by Contractor pursuant to that certain Fixed Price Separated Turnkey Agreement for the Engineering Procurement and Construction of the Corpus Christi Stage 1 Liquefaction Facility, between Contractor and Owner, dated                     , and (b) to which the Payment Request(s) (defined below) relate. Contractor therefore waives and releases any mechanic’s lien right, any right arising from a payment bond that complies with a state or federal statute, any common law payment bond right, any claim for payment, and any rights under any similar ordinance, rule, or statute related to claim or payment rights for persons in Contractor’s position that Contractor has on the above referenced project to the following extent: This release covers a progress payment for all labor, services, equipment, or materials furnished to the property or to Owner as indicated in the attached statement(s) or progress payment request(s) (the “Payment Requests”), except for unpaid retention, pending modifications and changes, or other items furnished.

Contractor warrants that Contractor has already paid or will use the funds received from this progress payment to promptly pay in full all of Contractor’s laborers, subcontractors, materialmen, and suppliers for all work, materials, equipment, or services provided for or to the above referenced project in regard to the attached Payment Requests.

Contractor agrees that this waiver and release form is in compliance with Tex. Prop. Code Ann. Section 53.284.

Date:                                                                                                                                                                                

BECHTEL OIL, GAS AND CHEMICALS, INC.:                                                                                                      

Signature:                                                                                                                                                                        

Title:                                                                                                                                                                                

 

 

2 Amount actually paid to Contractor with respect to Invoice for Work performed through the end of Month N-2.

 

K-3


Execution Version

SCHEDULE K-3

SUBCONTRACTOR’S INTERIM CONDITIONAL LIEN WAIVER

AND RELEASE FOR STAGE 1

(To be executed by Lien Waiver Subcontractors and Major Sub-subcontractors with each Invoice other than the Invoice for final payment)

Project                     

Job No.                     

On receipt by the signer of this document (“Subcontractor”) of a check or wire transfer from                    3 (“Work Recipient”) in the sum of $                4 payable to Subcontractor, and when the check has been properly endorsed and has been paid by the bank on which it is drawn or the wire transfer payment is received by Subcontractor, this document becomes effective to release any mechanic’s lien right, any right arising from a payment bond that complies with a state or federal statute, any common law payment bond right, any claim for payment, and any rights under any similar ordinance, rule, or statute related to claim or payment rights for persons in Subcontractor’s position that Subcontractor has on the property of Corpus Christi Liquefaction, LLC located at                     (the “Property”) to the following extent: with respect to the labor, services, equipment, or materials (a) that have been furnished by or on behalf of Subcontractor pursuant to that certain                     5 for                    6, between Subcontractor and Work Recipient, dated                     , and (b) for which payment is requested in the Payment Request(s) (defined below).

This release covers a progress payment for all labor, services, equipment, or materials furnished to the Property or to Work Recipient as indicated in the attached statement(s) or progress payment request(s) (“Payment Requests”), except for unpaid retention, pending modifications and changes, or other items furnished. Before any recipient of this document relies on this document, the recipient should verify evidence of payment to Subcontractor.

Subcontractor warrants that Subcontractor has already paid, or will use the funds received from this progress payment to promptly pay, in full all of Subcontractor’s laborers, subcontractors, materialmen, and suppliers for all work, materials, equipment, or services provided for or to the above referenced project in regard to the attached Payment Request(s).

Subcontractor agrees that this waiver and release form is in compliance with Tex. Prop. Code Ann. Section 53.284.

 

Date:                                                                                          

 

Subcontractor Name:                                                               

 

Signature:                                                                                  

 

Title:                                                                                          

 

 

3 Specify party who the agreement is with and from whom payment is claimed.
4 Amount of Payment Requests submitted with this Contractor’s Interim Conditional Lien Waiver and Release.
5 Insert full title of relevant agreement.
6 Insert description of the scope of work under the agreement.

 

K-4


Execution Version

SCHEDULE K-4

SUBCONTRACTOR’S INTERIM UNCONDITIONAL LIEN WAIVER

AND RELEASE FOR STAGE 1

(To be executed by Lien Waiver Subcontractors and Major Sub-subcontractors with each Invoice other than the Invoice for Final Payment; provided that, execution by Bulk Order Subcontractors is only required on a quarterly basis)

NOTICE: THIS DOCUMENT WAIVES RIGHTS UNCONDITIONALLY AND STATES THAT YOU HAVE BEEN PAID FOR GIVING UP THOSE RIGHTS. IT IS PROHIBITED FOR A PERSON TO REQUIRE YOU TO SIGN THIS DOCUMENT IF YOU HAVE NOT BEEN PAID THE PAYMENT AMOUNT SET FORTH BELOW. IF YOU HAVE NOT BEEN PAID, USE A CONDITIONAL RELEASE FORM.

Project                         

Job No.                         

The signer of this document (“Subcontractor”) has been paid and has received progress payment(s) in the sum of $                    7 (the “Payment”) for all labor, services, equipment, or materials furnished to the Property (defined below) or to                     8 (“Work Recipient”) on the property of Corpus Christi Liquefaction, LLC located at                    (the “Property”) to the following extent: with respect to the labor, services, equipment, or materials (a) that have been furnished by Subcontractor pursuant to that certain                     9 for                     10, between Subcontractor and Work Recipient, dated                     , and (b) to which the Payment Request(s) (defined below) relate. Subcontractor therefore waives and releases any mechanic’s lien right, any right arising from a payment bond that complies with a state or federal statute, any common law payment bond right, any claim for payment, and any rights under any similar ordinance, rule, or statute related to claim or payment rights for persons in Subcontractor’s position that Subcontractor has on the above referenced project to the following extent: This release covers a progress payment for all labor, services, equipment, or materials furnished to the property or to Work Recipient as indicated in the attached statement(s) or progress payment request(s) (the “Payment Requests”), except for unpaid retention, pending modifications and changes, or other items furnished.

Subcontractor warrants that Subcontractor has already paid or will use the funds received from this progress payment to promptly pay in full all of Subcontractor’s laborers, subcontractors, materialmen, and suppliers for all work, materials, equipment, or services provided for or to the above referenced project in regard to the attached Payment Request(s).

Subcontractor agrees that this waiver and release form is in compliance with Tex. Prop. Code Ann. Section 53.284.

 

Date:                                                                                          

 

Subcontractor Name:                                                               

 

Signature:                                                                                  

 

Title:                                                                                          

 

 

7 If submitted by Lien Subcontractor or Major Sub-subcontractor = Amount actually paid by Work Recipient, as the case may be, with respect to Invoice for Work performed through the end of Month N-2.

If submitted by Bulk Order Subcontractor = Amount actually paid by Work Recipient with respect to Months N-3, N-4 and N-5.

8 Specify party who the agreement is with and from whom payment is claimed.
9 Insert full title of relevant agreement.
10 Insert description of the scope of work under the agreement.

 

K-5


SCHEDULE K-5

EXHIBIT K-5-1

CONTRACTOR’S FINAL CONDITIONAL LIEN WAIVER

AND RELEASE FOR STAGE 1

(To be executed by Contractor with final Invoice)

Project                     

Job No.                     

On receipt by BECHTEL OIL, GAS AND CHEMICALS, INC. (“Contractor”) of a check or wire transfer from CORPUS CHRISTI LIQUEFACTION, LLC (“Owner”) in the sum of $                    11 payable to Contractor, and when the check has been properly endorsed and has been paid by the bank on which it is drawn or the wire transfer payment is received by Contractor, this document becomes effective to release any mechanic’s lien right, any right arising from a payment bond that complies with a state or federal statute, any common law payment bond right, any claim for payment, and any rights under any similar ordinance, rule, or statute related to claim or payment rights for persons in Contractor’s position that Contractor has on the property of Corpus Christi Liquefaction, LLC located at                     (the “Property”) to the following extent: with respect to the labor, services, equipment, or materials furnished by or on behalf of Contractor pursuant to that certain Fixed Price Separated Turnkey Agreement for the Engineering Procurement and Construction of the Corpus Christi Stage 1 Liquefaction Facility, between Contractor and Owner, dated                     .

This release covers the final payment to Contractor for all labor, services, equipment, or materials furnished to the Property or to Owner. Before any recipient of this document relies on this document, the recipient should verify evidence of payment to Contractor.

Contractor warrants that Contractor has already paid or will use the funds received from this final payment to promptly pay in full all of Contractor’s laborers, subcontractors, materialmen, and suppliers for all work, materials, equipment, or services provided for or to the above referenced project up to the date of this waiver and release.

Contractor agrees that this waiver and release form is in compliance with Tex. Prop. Code Ann. Section 53.284.

Date:                                                                                                                                                                                

BECHTEL OIL, GAS AND CHEMICALS, INC.:                                                                                                      

Signature:                                                                                                                                                                        

Title:                                                                                                                                                                                

 

 

11 Amount in final Invoice.

 

K-6


EXHIBIT K-5-2

CONTRACTOR’S FINAL CONDITIONAL CLAIM WAIVER

AND RELEASE FOR STAGE 1

(To be executed by Contractor with final Invoice)

Project                     

Job No.                     

The undersigned, BECHTEL OIL, GAS AND CHEMICALS, INC. (“Contractor”), has been engaged under contract (“Agreement”) with CORPUS CHRISTI LIQUEFACTION, LLC (“Owner”), for the engineering, procurement, construction, commissioning, start-up and testing of the Corpus Christi Stage 1 Liquefaction Facility (the “Project”), which is located in San Patricio County and Nueces County, State of Texas and is more particularly described as follows:

                                                                                                                                                                                                 (the “Property”).

Upon receipt of the sum of U.S.$                    12, Contractor waives, relinquishes, remits and releases any and all claims, demands, actions, causes of actions or other rights at law, in contract, quantum meruit, unjust enrichment, tort, equity or otherwise that Contractor has or may have had against Owner for payment in respect of (1) the Work or (2) any other labor, services, materials or equipment performed in connection with the Agreement, whether or not known to Contractor at the time of the execution of this Contractor’s Final Conditional Claim Waiver and Release, except for the following disputed payment claims in the amount of U.S.$                    :

 

 

(if no exception entry or “none” is entered above, Contractor shall be deemed not to have reserved any such disputed claim.)

Except for work and obligations that survive the termination or expiration of the Agreement, including, without limitation, Warranties and correction of Defective Work, Contractor represents that all of its obligations, legal, equitable, or otherwise, relating to or arising out of the Agreement or the Project have been fully satisfied.

This Contractor’s Final Conditional Claim Waiver and Release is freely and voluntarily given, and Contractor acknowledges and represents that it has fully reviewed the terms and conditions of this Contractor’s Final Conditional Claim Waiver and Release, that it is fully informed with respect to the legal effect of this Contractor’s Final Conditional Claim Waiver and Release, and that it has voluntarily chosen to accept the terms and conditions of this Contractor’s Final Conditional Claim Waiver and Release in return for the payment recited above. Contractor understands, agrees and acknowledges that, upon payment, this document waives, and is fully enforceable to extinguish, all claims of Contractor for payment in respect of (1) the Work or (2) any other labor, services, materials or equipment performed in connection with the Agreement, except for the disputed claims expressly identified in this Contractor’s Final Conditional Claim Waiver and Release.

This Contractor’s Final Conditional Claim Waiver and Release has been executed by its duly authorized representative.

Date:                                                                                                                                                                                

BECHTEL OIL, GAS AND CHEMICALS, INC.:                                                                                                      

Signature:                                                                                                                                                                        

Title:                                                                                                                                                                                

 

 

12 Amount in final Invoice.

 

K-7


Execution Version

SCHEDULE K-6

EXHIBIT K-6-1

CONTRACTOR’S FINAL UNCONDITIONAL LIEN WAIVER

AND RELEASE FOR STAGE 1

(To be executed by Contractor at the time of payment of final Invoice)

NOTICE: THIS DOCUMENT WAIVES RIGHTS UNCONDITIONALLY AND STATES THAT YOU HAVE BEEN PAID FOR GIVING UP THOSE RIGHTS. IT IS PROHIBITED FOR A PERSON TO REQUIRE YOU TO SIGN THIS DOCUMENT IF YOU HAVE NOT BEEN PAID THE PAYMENT AMOUNT SET FORTH BELOW. IF YOU HAVE NOT BEEN PAID, USE A CONDITIONAL RELEASE FORM.

Project                         

Job No.                       

BECHTEL OIL, GAS AND CHEMICALS, INC. (“Contractor”) has been paid in full for all labor, services, equipment, or materials furnished to CORPUS CHRISTI LIQUEFACTION, LLC (“Owner”) on the property of Corpus Christi Liquefaction, LLC located at                     (the “Property”) to the following extent: with respect to the labor, services, equipment, or materials furnished by or on behalf of Contractor pursuant to that certain Fixed Price Separated Turnkey Agreement for the Engineering Procurement and Construction of the Corpus Christi Stage 1 Liquefaction Facility, between Contractor and Owner, dated                     . Contractor therefore waives and releases any mechanic’s lien right, any right arising from a payment bond that complies with a state or federal statute, any common law payment bond right, any claim for payment, and any rights under any similar ordinance, rule, or statute related to claim or payment rights for persons in Contractor’s position.

Contractor warrants that Contractor has already paid or will use the funds received from this final payment to promptly pay in full all of Contractor’s laborers, subcontractors, materialmen, and suppliers for all work, materials, equipment, or services provided for or to the above referenced project up to the date of this waiver and release.

Contractor agrees that this waiver and release form is in compliance with Tex. Prop. Code Ann. Section 53.284.

Date:                                                                                                                                                                                

BECHTEL OIL, GAS AND CHEMICALS, INC.:                                                                                                      

Signature:                                                                                                                                                                        

Title:                                                                                                                                                                                

 

K-8


EXHIBIT K-6-2

CONTRACTOR’S FINAL UNCONDITIONAL CLAIM WAIVER

AND RELEASE FOR STAGE 1

(To be executed by Contractor at the time of payment of final Invoice)

Project                     

Job No.                     

The undersigned, BECHTEL OIL, GAS AND CHEMICALS, INC. (“Contractor”), has been engaged under contract (“Agreement”) with CORPUS CHRISTI LIQUEFACTION, LLC (“Owner”), for the engineering, procurement, construction, commissioning, start-up and testing of the Corpus Christi Stage 1 Liquefaction Facility (the “Project”), which is located in San Patricio County and Nueces County, State of Texas and is more particularly described as follows:

                                                                                                                                                                                                (the “Property”).

Contractor has been paid in full for all work, materials, equipment, services and/or labor furnished in connection with the Project, and Contractor hereby waives, relinquishes, remits and releases any and all claims, demands, actions, causes of actions or other rights at law, in contract, quantum meruit, unjust enrichment, tort, equity or otherwise that Contractor has or may have had against Owner for payment in respect of (1) the Work or (2) any other labor, services, materials or equipment performed in connection with the Agreement, whether or not known to Contractor at the time of the execution of this Contractor’s Final Unconditional Claim Waiver and Release, except for the following disputed payment claims in the amount of U.S.$                    :

                                                                                                                                                                                                                             .

(if no exception entry or “none” is entered above, Contractor shall be deemed not to have reserved any such disputed claim.)

Except for work and obligations that survive the termination or expiration of the Agreement, including, without limitation, Warranties and correction of Defective Work, Contractor represents that all of its obligations, legal, equitable, or otherwise, relating to or arising out of the Agreement or the Project have been fully satisfied, including, but not limited to payment to Subcontractors and employees and payment of Taxes.

This Contractor’s Final Unconditional Claim Waiver and Release is freely and voluntarily given, and Contractor acknowledges and represents that it has fully reviewed the terms and conditions of this Contractor’s Final Unconditional Claim Waiver and Release, and that it is fully informed with respect to the legal effect of this Contractor’s Final Unconditional Claim Waiver and Release. Contractor understands, agrees and acknowledges that, upon execution of this document, this document waives unconditionally, and is fully enforceable to extinguish, all claims of Contractor for payment in respect of (1) the Work or (2) any other labor, services, materials or equipment performed in connection with the Agreement, except for the disputed claims expressly identified in this Contractor’s Final Unconditional Claim Waiver and Release.

This Contractor’s Final Unconditional Claim Waiver and Release has been executed by its duly authorized representative.

Date:                                                                                                                                                                                

BECHTEL OIL, GAS AND CHEMICALS, INC.:                                                                                                      

Signature:                                                                                                                                                                        

Title:                                                                                                                                                                                

 

K-9


Execution Version

SCHEDULE K-7

EXHIBIT K-7-1

SUBCONTRACTOR’S FINAL CONDITIONAL LIEN WAIVER

AND RELEASE FOR STAGE 1

(To be executed by Lien Waiver Subcontractors and Major Sub-subcontractors with final Invoice)

Project                         

Job No.                         

On receipt by the signer of this document (“Subcontractor”) of a check or wire transfer from                     13 (“Work Recipient”) in the sum of $            14 payable to Subcontractor, and when the check has been properly endorsed and has been paid by the bank on which it is drawn or the wire transfer payment is received by Subcontractor, this document becomes effective to release any mechanic’s lien right, any right arising from a payment bond that complies with a state or federal statute, any common law payment bond right, any claim for payment, and any rights under any similar ordinance, rule, or statute related to claim or payment rights for persons in Subcontractor’s position that Subcontractor has on the property of Corpus Christi Liquefaction, LLC located at                     (the “Property”) to the following extent: with respect to the labor, services, equipment, or materials furnished by or on behalf of Subcontractor pursuant to that certain                     15 for                     16, between Subcontractor and Work Recipient, dated                     .

This release covers the final payment to Subcontractor for all labor, services, equipment, or materials furnished to the Property or to Work Recipient. Before any recipient of this document relies on this document, the recipient should verify evidence of payment to Subcontractor.

Subcontractor warrants that Subcontractor has already paid or will use the funds received from this final payment to promptly pay in full all of Subcontractor’s laborers, subcontractors, materialmen, and suppliers for all work, materials, equipment, or services provided for or to the above referenced project up to the date of this waiver and release.

Subcontractor agrees that this waiver and release form is in compliance with Tex. Prop. Code Ann. Section 53.284.

 

Date:                                                                                          

 

Subcontractor Name:                                                               

 

Signature:                                                                                  

 

Title:                                                                                          

 

 

13 Specify party who the agreement is with and from whom payment is claimed.
14 Amount in final Payment Request.
15 Insert full title of relevant agreement.
16 Insert description of the scope of work under the agreement.

 

K-10


Execution Version

EXHIBIT K-7-2

SUBCONTRACTOR’S FINAL CONDITIONAL CLAIM WAIVER

AND RELEASE FOR STAGE 1

(To be executed by Lien Waiver Subcontractors and Major Sub-subcontractors with final Invoice)

Project                      

Job No.                     

The undersigned, (“Subcontractor”), has, under an agreement with                     17 (“Work Recipient”), furnished certain materials, equipment, services, and/or labor for the engineering, procurement, construction, commissioning, start-up and testing of the Corpus Christi Stage 1 Liquefaction Facility (the “Project”), which is located in San Patricio County and Nueces County, State of Texas, and is more particularly described as follows:

                                                                                                                                                                                                (the “Property”).

Upon receipt of the sum of U.S.$                     18, Subcontractor waives, relinquishes, remits and releases any and all claims, demands, actions, causes of action or other rights at law, in contract, quantum meruit, unjust enrichment, tort, equity or otherwise against Corpus Christi Liquefaction, LLC, Bechtel Oil, Gas and Chemicals, Inc. or Work Recipient, which Subcontractor has, may have had or may have in the future arising out of the agreement between Subcontractor and Work Recipient or the Project, whether or not known to Subcontractor at the time of the execution of this Subcontractor’s Final Conditional Claim Waiver and Release.

Except for work and obligations that survive the termination or expiration of the agreement between Subcontractor and Work Recipient, including warranties and correction of defective work, Subcontractor represents that all of its obligations, legal, equitable, or otherwise, relating to or arising out of the agreement between Work Recipient and Subcontractor, the Project or sub-subcontracts have been fully satisfied.

This Subcontractor’s Final Conditional Claim Waiver is freely and voluntarily given and Subcontractor acknowledges and represents that it has fully reviewed the terms and conditions of this Subcontractor’s Final Conditional Claim Waiver and Release, that it is fully informed with respect to the legal effect of this Subcontractor’s Final Conditional Claim Waiver and Release, and that it has voluntarily chosen to accept the terms and conditions of this Subcontractor’s Final Conditional Claim Waiver and Release in return for the payment recited above. Subcontractor understands, agrees and acknowledges that, upon payment, this document waives rights and is fully enforceable to extinguish all claims of Subcontractor as of the date of execution of this document by Subcontractor.

This Subcontractor’s Final Conditional Claim Waiver and Release has been executed by its duly authorized representative.

 

Date:                                                                                          

 

Subcontractor Name:                                                               

 

Signature:                                                                                  

 

Title:                                                                                          

 

 

17 Specify party who the agreement is with and from whom payment is claimed.
18 Amount in final Payment Request.

 

K-11


Execution Version

SCHEDULE K-8

EXHIBIT K-8-1

SUBCONTRACTOR’S FINAL UNCONDITIONAL LIEN WAIVER

AND RELEASE FOR STAGE 1

(To be executed by Lien Waiver Subcontractors and Major Sub-subcontractors on payment of final Invoice)

NOTICE: THIS DOCUMENT WAIVES RIGHTS UNCONDITIONALLY AND STATES THAT YOU HAVE BEEN PAID FOR GIVING UP THOSE RIGHTS. IT IS PROHIBITED FOR A PERSON TO REQUIRE YOU TO SIGN THIS DOCUMENT IF YOU HAVE NOT BEEN PAID THE PAYMENT AMOUNT SET FORTH BELOW. IF YOU HAVE NOT BEEN PAID, USE A CONDITIONAL RELEASE FORM.

Project                         

Job No.                         

The signer of this document (“Subcontractor”) has been paid in full for all labor, services, equipment, or materials furnished to the Property (defined below) or to                     19 (“Work Recipient”) on the property of Corpus Christi Liquefaction, LLC located at                     (the “Property”) to the following extent: with respect to the labor, services, equipment, or materials furnished by or on behalf of Subcontractor pursuant to that certain                     20 for                     21, between Subcontractor and Work Recipient, dated                     (the “Contract”). Subcontractor therefore waives and releases any mechanic’s lien right, any right arising from a payment bond that complies with a state or federal statute, any common law payment bond right, any claim for payment, and any rights under any similar ordinance, rule, or statute related to claim or payment rights for persons in Subcontractor’s position.

Subcontractor warrants that Subcontractor has already paid or will use the funds received from this final payment to promptly pay in full all of Subcontractor’s laborers, subcontractors, materialmen, and suppliers for all work, materials, equipment, or services provided for or to the above referenced project up to the date of this waiver and release.

Subcontractor agrees that this waiver and release form is in compliance with Tex. Prop. Code Ann. Section 53.284.

 

Date:                                                                                          

 

Subcontractor Name:                                                               

 

Signature:                                                                                  

 

Title:                                                                                          

 

 

19 Specify party who the agreement is with and from whom payment is claimed.
20 Insert full title of relevant agreement.
21 Insert description of the scope of work under the Contract.

 

K-12


EXHIBIT K-8-2

SUBCONTRACTOR’S FINAL UNCONDITIONAL CLAIM WAIVER

AND RELEASE FOR STAGE 1

(To be executed by Lien Waiver Subcontractors and Major Sub-subcontractors on payment of final Invoice)

Project                         

Job No.                         

The undersigned, (“Subcontractor”), has, under an agreement with                     22 (“Work Recipient”), furnished certain materials, equipment, services, and/or labor for the engineering, procurement, construction, commissioning, start-up and testing of the Corpus Christi Stage 1 Liquefaction Facility (the “Project”), which is located in San Patricio County and Nueces County, State of Texas, and is more particularly described as follows:

                                                                                                                                                                                                (the “Property”).

Subcontractor has been paid in full for all work, materials, equipment, services and/or labor furnished by or on behalf of Subcontractor to or on account of Work Recipient for the Project, and Subcontractor hereby waives, relinquishes, remits and releases any and all claims, demands, actions, causes of action or other rights at law, in contract, quantum meruit, unjust enrichment, tort, equity or otherwise against Corpus Christi Liquefaction, LLC, Bechtel Oil, Gas and Chemicals, Inc., or Work Recipient, which Subcontractor has, may have had or may have in the future arising out of the agreement between Subcontractor and Work Recipient or the Project, whether or not known to Subcontractor at the time of the execution of this Subcontractor’s Final Unconditional Claim Waiver and Release.

Except for work and obligations that survive the termination or expiration of the agreement between Subcontractor and Work Recipient, including warranties and correction of defective work, Subcontractor represents that all of its obligations, legal, equitable, or otherwise, relating to or arising out of the agreement between Work Recipient and Subcontractor, the Project or sub-subcontracts have been fully satisfied, including, but not limited to payment to sub-subcontractors and employees of Subcontractor and payment of taxes.

This Subcontractor’s Final Unconditional Claim Waiver and Release is freely and voluntarily given and Subcontractor acknowledges and represents that it has fully reviewed the terms and conditions of this Subcontractor’s Final Unconditional Claim Waiver and Release, and that it is fully informed with respect to the legal effect of this Subcontractor’s Final Unconditional Claim Waiver and Release. Subcontractor understands, agrees and acknowledges that, upon execution of this document, this document waives rights unconditionally and is fully enforceable to extinguish all claims of Subcontractor as of the date of execution of this document by Subcontractor.

This Subcontractor’s Final Unconditional Claim Waiver and Release has been executed by its duly authorized representative.

 

Date:                                                                                          

 

Subcontractor Name:                                                               

 

Signature:                                                                                  

 

Title:                                                                                          

 

 

22 Specify party who the agreement is with and from whom payment is claimed.

 

K-13


ATTACHMENT L

FORM OF RFSU COMPLETION CERTIFICATE FOR STAGE 1

SUBPROJECT     

 

Date:  

 

Corpus Christi Liquefaction, LLC

700 Milam Street, Suite 800

Houston, Texas 77002

Attention:                     

 

Re:    RFSU Completion Certificate for Subproject      of the Fixed Price Separated Turnkey Agreement for the Engineering, Procurement and Construction of the Corpus Christi Stage 1 Liquefaction Facility, dated as of [            , 20    ] (the “Agreement”), by and between Corpus Christi Liquefaction, LLC (“Owner”) and Bechtel Oil, Gas and Chemicals, Inc. (“Contractor”)

Pursuant to Section 11.1 of the Agreement, Contractor hereby certifies that it has completed all requirements under the Agreement for RFSU of Subproject     , including: (i) Contractor has completed all applicable Work in accordance with the requirements contained in the Agreement to ensure that such Subproject is ready for use to receive Natural Gas; and (ii) Contractor hereby delivers this RFSU Completion Certificate for such Subproject as required under Section 11.1A of the Agreement.

Attached is supporting documentation which is reasonably required under the Agreement to establish that the requirements for this RFSU Completion Certificate under the Agreement have been met.

Contractor certifies that it achieved all requirements under the Agreement for this RFSU Completion Certificate on             , 20    .

IN WITNESS WHEREOF, Contractor has caused this RFSU Completion Certificate to be duly executed and delivered as of the date first written above.

 

BECHTEL OIL, GAS AND CHEMICALS, INC.
By:  

 

Name:  

 

Title:  

 

 

cc:    Corpus Christi Liquefaction, LLC
   700 Milam Street, Suite 800
   Houston, Texas 77002
   Attn: General Counsel

 

L-1


Owner Acceptance or Rejection of RFSU Completion Certificate

Subproject     

Pursuant to Section 11.3A of the Agreement, Owner              accepts or              rejects (check one) the RFSU Completion Certificate for Subproject        .

If RFSU was achieved, RFSU was achieved on             , 20    .

Acceptance of this RFSU Completion Certificate shall not relieve Contractor of any of Contractor’s obligations to perform the Work in accordance with the requirements of the Agreement, nor shall it in any way release Contractor or any surety of Contractor from any obligations or liability pursuant to the Agreement, including obligations with respect to unperformed obligations of the Agreement or for any Work that does not conform to the requirements of this Agreement.

The basis for any rejection of RFSU is attached hereto.

 

For and on behalf of
CORPUS CHRISTI LIQUEFACTION, LLC
  By:  

 

  Name:  

 

  Title:  

 

 

L-2


ATTACHMENT M

FORM OF SUBSTANTIAL COMPLETION CERTIFICATE FOR STAGE 1

SUBPROJECT             

Date:                                                  

Corpus Christi Liquefaction, LLC

700 Milam Street, Suite 800

Houston, Texas 77002

Attention:                     

 

Re: Substantial Completion Certificate for Subproject             of the Fixed Price Separated Turnkey Agreement for the Engineering, Procurement and Construction of the Corpus Christi Stage 2 Liquefaction Facility, dated as of [         , 20     ] (the “Agreement”), by and between Corpus Christi Liquefaction, LLC (“Owner”) and Bechtel Oil, Gas and Chemicals, Inc. (“Contractor”)

Pursuant to Section 11.2 of the Agreement, Contractor hereby certifies that it has completed all requirements under the Agreement for Substantial Completion with respect to Subproject             , including: (i) the Minimum Acceptance Criteria (MAC) for such Subproject has been achieved; (ii) the Performance Guarantee for such Subproject has been achieved, or if the Performance Guarantee has not been achieved but the MAC has been achieved, Contractor either (A) has paid the applicable Performance Liquidated Damages or (B) elects or is directed to take corrective actions to achieve the Performance Guarantee pursuant to Section 11.4A(ii); (iii) the Work (including training in accordance with Section 3.5 and the delivery of all documentation required as a condition of Substantial Completion under the Agreement (including documentation required for operation, including test reports)) for such Subproject has been completed in accordance with the requirements of the Agreement other than any Work for such Subproject which meets the definition of Punchlist; (iv) Contractor hereby delivers to Owner this Substantial Completion Certificate as required under Section 11.2; (v) Contractor has obtained all Contractor Permits for such Subproject; and (vi) Contractor has, pursuant to Section 3.4, delivered to the Site all Operating Spare Parts required by the Operating Spare Parts List to be delivered to the Site prior to Substantial Completion of the applicable Subproject.

To the extent Owner has provided an invoice(s) for Liquidated Damages to Contractor pursuant to Section 20.3C of the Agreement, Contractor certifies that it has             or has not             (check one) paid to Owner all such Liquidated Damages.

Contractor certifies that it achieved all requirements under the Agreement for this Substantial Completion Certificate on                     , 20    , including the payment of Liquidated Damages owed under the Agreement (if any), or if any such Liquidated Damages have not been paid upon the date of this Substantial Completion Certificate, such Liquidated Damages will be paid by Contractor within ten (10) Days after Contractor’s receipt of Owner’s invoice for such Liquidated Damages.

Attached is all information required to be provided by Contractor with this Certificate under Section 11.2 of the Agreement, including the Performance Test report and analysis and those requirements set forth in writing between the Parties for the Performance Test Procedures.

[Signature Page Follows]

 

 

M-1


IN WITNESS WHEREOF, Contractor has caused this Substantial Completion Certificate to be duly executed and delivered as of the date first written above.

 

BECHTEL OIL, GAS AND CHEMICALS, INC.

By:

 

 

Name:

 

 

Title:

 

 

 

cc: Corpus Christi Liquefaction, LLC

700 Milam Street, Suite 800

Houston, Texas 77002

Attn: General Counsel

 

M-2


Owner Acceptance or Rejection of Substantial Completion Certificate

Subproject             

Pursuant to Section 11.3B of the Agreement, Owner                     accepts or                     rejects (check one) the Substantial Completion Certificate for Subproject             .

If Substantial Completion was achieved, Substantial Completion was achieved on             , 20    .

Acceptance of this Substantial Completion Certificate shall not relieve Contractor of any of Contractor’s obligations to perform the Work in accordance with the requirements of the Agreement, nor shall it in any way release Contractor or any surety of Contractor from any obligations or liability pursuant to the Agreement, including obligations with respect to unperformed obligations of the Agreement or for any Work that does not conform to the requirements of this Agreement.

The basis for any rejection of Substantial Completion is attached hereto.

 

For and on behalf of
CORPUS CHRISTI LIQUEFACTION, LLC

        By:

 

 

        Name:

 

 

        Title:

 

 

 

M-3


ATTACHMENT N

FORM OF FINAL COMPLETION CERTIFICATE FOR STAGE 1

 

Date:  

 

Corpus Christi Liquefaction, LLC

700 Milam Street, Suite 800

Houston, Texas 77002

Attention:                     

 

Re: Final Completion Certificate for the Fixed Price Separated Turnkey Agreement for the Engineering, Procurement and Construction of the Corpus Christi LNG Stage 1 Liquefaction Facility, dated as of [            ], 20[    ] (the “Agreement”), by and between Corpus Christi Liquefaction, LLC (“Owner”) and Bechtel Oil, Gas and Chemicals, Inc. (“Contractor”)

Pursuant to Section 11.6 of the Agreement, Contractor hereby certifies that all Work and all other obligations under the Agreement (except for that Work and obligations that survive the termination or expiration of the Agreement, including obligations for Warranties and correction of Defective Work pursuant to Section 12.3 and any other obligations covered under Section 11.6) are fully and completely performed in accordance with the terms of the Agreement, including: (i) the achievement of Substantial Completion; (ii) the completion of all Punchlist items; (iii) delivery by Contractor to Owner of a fully executed Final Conditional Lien and Claim Waiver in the form of Schedule K-5, Exhibits K-5-1 and K-5-2; (iv) delivery by Contractor to Owner of all documentation required to be delivered under this Agreement as a prerequisite of achievement of Final Completion, including Record Drawings; (v) removal from the Stage 1 Site of all of Contractor’s, Subcontractors’ and Sub-subcontractor’s personnel, supplies, waste, materials, rubbish, and temporary facilities with respect to the Stage 1 Liquefaction Facility; (vi) delivery by Contractor to Owner of fully executed Final Conditional Lien and Claim Waivers from all Lien Waiver Subcontractors in the form in Schedule K-7, Exhibits K-7-1 and K-7-2; (vii) fully executed Final Conditional Lien and Claim Waivers from Major Sub-subcontractors in a form substantially similar to the form in Schedule K-7, Exhibits K-7-1 and K-7-2; (viii) Contractor hereby delivers to Owner this Final Completion Certificate as required under Section 11.6; (ix) Contractor has, pursuant to Section 3.4, delivered to the Site all Operating Spare Parts required by the Operating Spare Parts List to be delivered to the Project prior to Final Completion; and (x) if pursuant to Section 11.4A Substantial Completion was achieved without Contractor having achieved the Performance Guarantee, Contractor has achieved the Performance Guarantee or has paid the applicable Performance Liquidated Damages.

Contractor certifies that it achieved all requirements under the Agreement for Final Completion on             , 20    .

Attached is all documentation required under the Agreement to be provided by Contractor with this Final Completion Certificate.

IN WITNESS WHEREOF, Contractor has caused this Final Completion Certificate to be duly executed and delivered as of the date first written above.

 

BECHTEL OIL, GAS AND CHEMICALS, INC.
By:  

 

Name:  

 

Title:  

 

Date:  

 

 

cc: Corpus Christi Liquefaction, LLC

700 Milam Street, Suite 800

Houston, Texas 77002

Attn: General Counsel

 

N-1


Owner Acceptance or Rejection of Final Completion Certificate

Pursuant to Section 11.6 of the Agreement, Owner              accepts or              rejects (check one) the Final Completion Certificate.

If Final Completion was achieved, Final Completion was achieved on             , 20    .

Acceptance of Final Completion shall not relieve Contractor of any of Contractor’s remaining obligations in accordance with the requirements of the Agreement, nor shall it in any way release Contractor or any surety of Contractor from any obligations or liability pursuant to the Agreement, including obligations with respect to unperformed obligations of the Agreement or for any Work that does not conform to the requirements of this Agreement, including Warranty obligations.

The basis for any rejection of Final Completion is attached hereto.

 

For and on behalf of
CORPUS CHRISTI LIQUEFACTION, LLC

 

By:  

 

Name:  

 

Title:  

 

 

N-2


ATTACHMENT O

INSURANCE REQUIREMENTS FOR STAGE 1

1. Contractor’s Insurance.

A. Types and Amounts of Insurance. Subject to Section 7.1C of this Agreement and Attachment EE, Contractor shall at its own cost and expense procure and maintain in full force and effect at all times specified in Section 1B the following insurances on an occurrence basis for coverages at the following limits of liability:

1. Workers’ Compensation and Employer’s Liability Insurance. Contractor shall comply with Applicable Law with respect to workers’ compensation requirements and other similar requirements where the Work is performed and shall procure and maintain workers’ compensation and employer’s liability policies in accordance with Applicable Law and the requirements of this Agreement. These policies shall include coverage for all states and other applicable jurisdictions, voluntary compensation coverage, and occupational disease. If the Work is to be performed on or near navigable waters, the policies shall include coverage for United States Longshoremen’s and Harbor Workers’ Act, Death on the High Seas Act, the Jones Act, the Outer Continental Shelf Lands Act, and other Applicable Law regarding maritime law. A maritime employer’s liability policy may be used to satisfy applicable parts of this requirement with respect to Work performed on or near navigable waters. If Contractor is not required by Applicable Law to carry workers’ compensation insurance, then Contractor shall provide the types and amounts of insurance which are mutually agreeable to the Parties.

Limits: Workers’ Compensation: Statutory

Employer’s Liability: U.S.$1,000,000 each accident, U.S.$1,000,000 disease each employee and U.S.$1,000,000 disease policy limit

If Owner issues a notice to proceed under the Stage 2 EPC Agreement, Contractor acknowledges that, upon issuance of such notice to proceed, Contractor shall be required under the Stage 2 EPC Agreement to extend the workers’ compensation and employer’s liability insurance coverage under this Agreement to the Stage 2 EPC Agreement. Such extension shall not relieve Contractor of any of its responsibilities to meet the requirements of Attachment O under this Agreement.

2. Commercial General Liability Insurance. This policy shall provide coverage against claims for bodily injury (including bodily injury and death), property damage (including loss of use) and personal injury, and shall include contractual liability (such coverage not to be written on a limited basis) insuring the obligations assumed by Contractor under the Agreement, products and completed operations coverage (for a minimum of five (5) years after Substantial Completion), premises and operations coverage, broad form property damage coverage, independent contractors, actions over indemnity coverage and non-owned watercraft liability. The policy shall not include any

 

O-1


explosion, collapse or underground exclusion. The policy shall be endorsed to provide coverage wherever the Work is performed. The aggregate limits shall apply separately to each annual policy period, except for the products and completed operations coverage, which shall be a Project aggregate. This coverage will be subject to a maximum deductible of U.S.$25,000.

 

  Limits: U.S.$2,000,000 combined single limit each occurrence

 

       U.S.$4,000,000 general aggregate, with such limits dedicated to the Project

 

       U.S.$4,000,000 products and completed operations aggregate, with such limits dedicated to the Project

If Owner issues a notice to proceed under the Stage 2 EPC Agreement, Contractor acknowledges that, upon issuance of such notice to proceed, Contractor shall be required under the Stage 2 EPC Agreement to extend the commercial general liability insurance coverage under this Agreement to the Stage 2 EPC Agreement. Such extension shall not relieve Contractor of any of its responsibilities to meet the requirements of Attachment O under this Agreement, except that the overall cumulative limits for the Liquefaction Facility shall be as follows: U.S.$2,000,000 combined single limit each occurrence; U.S.$4,000,000 general aggregate, with such limits dedicated to the Liquefaction Facility; and U.S.$4,000,000 products and completed operations aggregate, with such limits dedicated to the Liquefaction Facility.

3. Commercial Automobile Insurance. This policy shall include coverage for all owned, hired, rented, and non-owned automobiles and equipment. This coverage will be subject to a maximum deductible of U.S.$25,000.

 

  Limit: U.S.$1,000,000 combined single limit each accident

If Owner issues a notice to proceed under the Stage 2 EPC Agreement, Contractor acknowledges that, upon issuance of such notice to proceed, Contractor shall be required under the Stage 2 EPC Agreement to extend the commercial automobile insurance coverage under this Agreement to the Stage 2 EPC Agreement. Such extension shall not relieve Contractor of any of its responsibilities to meet the requirements of Attachment O under this Agreement.

4. Umbrella or Excess Liability Insurance. This policy shall be written on a “following form” basis and shall provide coverage in excess of the coverages required to be provided by Contractor for employer’s liability insurance, commercial general liability insurance, maritime employer’s liability insurance, aircraft liability insurance and commercial automobile liability insurance. The aggregate limit shall apply separately to each annual policy period, except for the products and completed operations coverage, which shall be a Project aggregate.

 

  Limits: U.S.$100,000,000 combined single limit each occurrence, dedicated to the Project

 

       U.S.$100,000,000 annual aggregate limit, with such limits dedicated to the Project

 

O-2


If Owner issues a notice to proceed under the Stage 2 EPC Agreement, Contractor acknowledges that, upon issuance of such notice to proceed, Contractor shall be required under the Stage 2 EPC Agreement to extend the umbrella or excess liability insurance coverage under this Agreement to the Stage 2 EPC Agreement. Such extension shall not relieve Contractor of any of its responsibilities to meet the requirements of Attachment O under this Agreement, except that the overall cumulative limits for the Liquefaction Facility shall be as follows: U.S.$100,000,000 combined single limit each occurrence, dedicated to the Liquefaction Facility; U.S.$100,000,000 annual aggregate limit, with such limits dedicated to the Liquefaction Facility; and the products and completed operations coverage shall be on a Liquefaction Facility aggregate.

5. Aircraft Liability Insurance. If applicable, this policy shall provide coverage for bodily injury and property damage and shall cover aircraft that is owned, leased, rented or chartered by Contractor. The policy shall include coverage for passengers and crew, cover all owned and non-owned aircraft, and be endorsed to provide a voluntary settlement.

 

  Limit: U.S.$10,000,000 per occurrence

If Owner issues a notice to proceed under the Stage 2 EPC Agreement, Contractor acknowledges that, upon issuance of such notice to proceed, Contractor shall be required under the Stage 2 EPC Agreement to extend the aircraft liability insurance coverage under this Agreement to the Stage 2 EPC Agreement. Such extension shall not relieve Contractor of any of its responsibilities to meet the requirements of Attachment O under this Agreement.

6. Hull and Machinery Insurance. This policy shall be provided by, or on behalf of the Contractor if applicable, and shall cover any watercraft that is owned, leased, rented or chartered by Contractor. If not provided for in the protection and indemnity policy in Section 1A.7 of this Attachment O, this policy shall include collision liability and tower’s liability with sister-ship clause un-amended. All “as owner” and “other than owner” clauses shall be deleted, and navigational limitations shall be adequate for Contractor to perform the specified Work.

 

  Hull: Replacement value of the vessel without depreciation

If Owner issues a notice to proceed under the Stage 2 EPC Agreement, Contractor acknowledges that, upon issuance of such notice to proceed, Contractor shall be required under the Stage 2 EPC Agreement to extend the hull and machinery insurance coverage under this Agreement to the Stage 2 EPC Agreement. Such extension shall not relieve Contractor of any of its responsibilities to meet the requirements of Attachment O under this Agreement.

7. Protection and Indemnity Insurance (P&I). This policy shall be provided by Contractor if applicable and shall cover any watercraft that is owned, leased, rented or

 

O-3


chartered by Contractor. The coverage provided shall include pollution liability, removal of wreck and/or debris, and if not provided for in the hull and machinery policy, collision liability and tower’s liability with sister-ship clause un-amended. All “as owner” and “other than owner” clauses shall be deleted, and navigational limitations shall be adequate for Contractor to perform the specified Work.

If pollution liability coverage is not provided by the P&I underwriter, pollution liability insurance shall be separately provided that will cover bodily injury, property damage, including cleanup costs and defense costs imposed under Applicable Law (including the Oil Pollution Act of 1990 (OPA) and the Comprehensive Environmental Response Compensation and Liability Act (CERCLA)), resulting from pollution conditions of contaminants or pollutants into or upon the land, the atmosphere or any water course or body of water.

 

  Limits: Protection and indemnity coverage provided with a minimum limit of U.S.$100,000,000. (This limit may be satisfied with a minimum underlying limit of U.S.$1,000,000 and the remaining U.S.$99,000,000 provided through excess P&I coverage which “follows form” with the underlying policy.)

 

       Pollution liability coverage provided with a minimum limit of U.S.$100,000,000.

If Owner issues a notice to proceed under the Stage 2 EPC Agreement, Contractor acknowledges that, upon issuance of such notice to proceed, Contractor shall be required under the Stage 2 EPC Agreement to extend the protection and indemnity insurance coverage under this Agreement to the Stage 2 EPC Agreement. Such extension shall not relieve Contractor of any of its responsibilities to meet the requirements of Attachment O under this Agreement, except that the overall cumulative minimum limits for the Liquefaction Facility shall be as follows: U.S.$100,000,000 (which may be satisfied as stated above); and U.S.$100,000,000 pollution liability coverage.

8. Contractor’s Construction Equipment Floater. Contractor shall maintain (or self-insure) equipment insurance covering all Construction Equipment and items (whether owned, rented, or borrowed) of Contractor that will not become part of the Stage 1 Liquefaction Facility. It is understood that this coverage shall not be included under the builder’s risk policy.

If Owner issues a notice to proceed under the Stage 2 EPC Agreement, Contractor acknowledges that, upon issuance of such notice to proceed, Contractor shall be required under the Stage 2 EPC Agreement to extend the construction equipment floater under this Agreement to the Stage 2 EPC Agreement. Such extension shall not relieve Contractor of any of its responsibilities to meet the requirements of Attachment O under this Agreement.

9. Builder’s Risk Insurance. Property damage insurance on an “all risk” basis insuring Contractor, Owner and Lender, as their interests may appear, including coverage

 

O-4


against loss or damage from the perils of earth movement (including earthquake, landslide, subsidence and volcanic eruption), Windstorm, startup and testing, strike, riot, civil commotion and malicious damage but excluding terrorism.

If Owner issues a notice to proceed under the Stage 2 EPC Agreement, Contractor acknowledges that, upon issuance of such notice to proceed, Contractor shall be required under the Stage 2 EPC Agreement to extend the builder’s risk insurance coverage under this Agreement to the Stage 2 EPC Agreement as specified in the Stage 2 EPC Agreement. Such extension shall not relieve Contractor of any of its responsibilities to meet the requirements of Attachment O under this Agreement, except that (unless expressly stated otherwise in this Section) any limits, sublimits, deductibles, payments or other values stated herein shall not be doubled or otherwise increased as a result of the extension of the builder’s risk insurance to the Stage 2 EPC Agreement (e.g., sue and labor under paragraph (a) shall not be less than U.S.$5,000,000 for the Liquefaction Facility; expediting expenses under paragraph (b) shall not be less than U.S.$15,000,000 for the Liquefaction Facility; removal of debris under paragraph (b) shall be subject to a maximum of U.S.$10,000,000 for the Liquefaction Facility).

 

  (a) Property Covered: The insurance policy shall provide coverage for (i) the buildings, structures, boilers, machinery, Equipment, facilities, fixtures, supplies, fuel, and other properties constituting a part of the Stage 1 Liquefaction Facility (and upon notice to proceed under the Stage 2 EPC Agreement, constituting part of the Liquefaction Facility), (ii) free issue items used in connection with the Stage 1 Liquefaction Facility (and upon notice to proceed under the Stage 2 EPC Agreement, constituting part of the Liquefaction Facility), (iii) the inventory of spare parts to be included in the Stage 1 Liquefaction Facility (and upon notice to proceed under the Stage 2 EPC Agreement, to be included in the Liquefaction Facility), (iv) property of others in the care, custody or control of Contractor or Owner in connection with the Project, (v) all preliminary works, temporary works and interconnection works, (vi) foundations and other property below the surface of the ground, and (vii) electronic equipment and media.

 

  (b) Additional Coverages: The insurance policy shall insure (i) the cost of preventive measures to reduce or prevent a loss (sue & labor) in an amount not less than U.S.$5,000,000, (ii) operational and performance testing for a period not less than ninety (90) Days, (iii) inland transit with sub-limits sufficient to insure the largest single shipment to or from the Site from anywhere within the United States of America, (iv) expediting expenses (defined as extraordinary expenses incurred after an insured loss to make temporary repairs and expedite the permanent repair of the damaged property in excess of the delayed startup coverage even if such expenses do not reduce the delayed startup loss) in an amount not less than U.S.$15,000,000, (v) off-Site storage with sub-limits sufficient to insure the full replacement value of any property or Equipment not stored on the Site, and (vi) the removal of debris with a sub-limit not less than twenty-five percent (25%) of the loss amount, but subject to a maximum of U.S.$10,000,000.

 

O-5


  (c) Special Clauses: The insurance policy shall include (i) a seventy-two (72) hour flood/storm/earthquake clause, (ii) unintentional errors and omissions clause, (iii) a 50/50 clause, (iv) a requirement that the insurer pay losses within thirty (30) Days after receipt of an acceptable proof or loss or partial proof of loss, (v) an other insurance clause making this insurance primary over any other insurance, (vi) a clause stating that the policy shall not be subject to cancellation by the insurer except for non-payment of premium and (vii) an extension clause allowing the policy period to be extended up to six (6) months with respect to physical loss or damage without modification to the terms and conditions of the policy and a pre-agreed upon premium.

 

  (d) Prohibited Exclusions: The insurance policy shall not contain any (i) coinsurance provisions, (ii) exclusion for loss or damage resulting from freezing and mechanical breakdown, (iii) exclusion for loss or damage covered under any guarantee or warranty arising out of an insured peril, (iv) exclusion for resultant damage caused by ordinary wear and tear, gradual deterioration, normal subsidence, settling, cracking, expansion or contraction and faulty workmanship, design or materials no more restrictive than the LEG 3/96 or DE-5 exclusion.

 

  (e) Sum Insured: The insurance policy shall (i) be on a completed value form, with no periodic reporting requirements, (ii) upon NTP, insure the Stage 1 Liquefaction Facility in an amount no less than U.S.$500,000,000 and no more than U.S.$1,000,000,000, (iii) within ninety (90) Days after NTP, insure the Stage 1 Liquefaction Facility for an amount no less than an amount to be determined based upon a probable maximum loss study for Stage 1 Liquefaction Facility performed by a reputable and experienced firm reasonably satisfactory to Contractor, Owner and Owner’s Lenders, with such maximum probable loss approved by the Parties within such time; (iv) value losses at replacement cost, without deduction for physical depreciation or obsolescence including custom duties, Taxes and fees, (v) insure loss or damage from earth movement without a sub-limit, (vi) upon NTP, insure the Stage 1 Liquefaction Facility for property loss or damage from Windstorm in an amount no less than U.S.$50,000,000 and no more than U.S.$100,000,000, and (vii) within ninety (90) Days after NTP, increase the insurance to insure the Stage 1 Liquefaction Facility for property loss or damage from Windstorm with a sub-limit of not less than U.S.$500,000,000, and such sublimit shall apply to the combined loss covered under Section 1.A.9 Builder’s Risk and Section 1.A.10 Builder’s Risk Delayed Startup, and (viii) upon NTP, insure the Stage 1 Liquefaction Facility with a sub-limit not less than U.S.$100,000,000 for loss or damage from strikes, riots and civil commotion.

 

O-6


       If Owner issues a notice to proceed under the Stage 2 EPC Agreement, Contractor acknowledges that, upon issuance of such notice to proceed, Contractor shall be required under the Stage 2 EPC Agreement to extend the builder’s risk insurance coverage under this Agreement to the Stage 2 EPC Agreement, and in such case, such extension to the Liquefaction Facility shall be as provided in the Stage 2 EPC Agreement.

 

  (f) Deductible: The insurance policy covering the Stage 1 Liquefaction Facility (and upon notice to proceed under the Stage 2 EPC Agreement, covering the Liquefaction Facility) shall have no deductible greater than U.S.$500,000 per occurrence; provided, however, (i) for Windstorms, the deductible shall not be greater than two percent (2%) of values at risk for the Stage 1 Liquefaction Facility (and upon notice to proceed under the Stage 2 EPC Agreement, not be greater than two percent (2%) of values at risk for the Liquefaction Facility), subject to a minimum deductible of U.S.$1,000,000 and a maximum deductible of U.S.$7,500,000 for Windstorms for the Stage 1 Liquefaction Facility (and upon notice to proceed under the Stage 2 EPC Agreement, for the Liquefaction Facility) and (ii) for wet works, the deductible shall not be greater than $1,000,000 for the Stage 1 Liquefaction Facility (and upon notice to proceed under the Stage 2 EPC Agreement, for the Liquefaction Facility).

 

  (g) Payment of Insurance Proceeds: The property damage proceeds under the builder’s risk policy shall be paid as follows with respect to any one occurrence:

 

  (i) the first Ten Million U.S. Dollars (U.S.$10,000,000) of amounts paid under the builder’s risk insurance policy for property damage to the Stage 1 Liquefaction Facility (and upon notice to proceed under the Stage 2 EPC Agreement, property damage to the Liquefaction Facility) shall be paid by the insurance carrier directly to Contractor, which shall be used by Contractor in connection with the repair, replacement or other necessary work in connection with the loss or damage to the Stage 1 Liquefaction Facility (and upon notice to proceed under the Stage 2 EPC Agreement, damage to the Liquefaction Facility); and

 

  (ii)

any amounts in excess of Ten Million U.S. Dollars (U.S.$10,000,000) for property damage to the Stage 1 Liquefaction Facility (and upon notice to proceed under the Stage 2 EPC Agreement, property damage to the Liquefaction Facility) shall (x) be paid by the insurance carrier directly to the Collateral Agent (or if there is no Collateral Agent, a mutually agreed upon escrow agent), and Owner shall pay such insurance proceeds to Contractor in accordance with Monthly Invoices submitted to Owner for the completion by Contractor of repairs, replacement and other necessary work in accordance with the restoration plan prepared by

 

O-7


  Contractor and approved by Owner, the Administrative Agent, and the Independent Engineer and (y), provided that the conditions set forth in clause (x) have been satisfied, be paid by Owner to Contractor in accordance with the following schedule: (a) for the first Five Million U.S. Dollars (U.S.$5,000,000) of the builder’s risk proceeds received by the Collateral Agent (or escrow agent) for the Stage 1 Liquefaction Facility (and upon notice to proceed under the Stage 2 EPC Agreement, for the Liquefaction Facility), Owner shall have five (5) Business Days after the Collateral Agent’s (or escrow agent’s) receipt of such proceeds to pay Contractor; (b) for the Forty Million U.S. Dollars (U.S.$40,000,000) in builder’s risk proceeds received by the Collateral Agent (or escrow agent) for the Stage 1 Liquefaction Facility (and upon notice to proceed under the Stage 2 EPC Agreement, for the Liquefaction Facility) in excess of the amounts referred to in clause (a) above, Owner shall have fifteen (15) Business Days after the Collateral Agent’s (or escrow agent’s) receipt of such proceeds to pay Contractor; and (c) and for any builder’s risk proceeds received by the Collateral Agent (or escrow agent) in excess of the amounts referred to in clause (b), Owner shall have thirty (30) Business Days after the Collateral Agent’s (or escrow agent’s) receipt of such proceeds to pay Contractor. Notwithstanding the foregoing, under no circumstances shall Owner be required to pay any builder’s risk insurance proceeds to Contractor if Owner or Lender elects not to repair or rebuild the Stage 1 Liquefaction Facility (and upon notice to proceed under the Stage 2 EPC Agreement, the Liquefaction Facility), except to the extent Contractor has incurred costs in excess of the Ten Million U.S. Dollars (U.S.$10,000,000) of the builder’s risk proceeds paid directly to Contractor for safety, protection and salvage for the Stage 1 Liquefaction Facility (and upon notice to proceed under the Stage 2 EPC Agreement, for the Liquefaction Facility). For the avoidance of doubt, if there is a delay in the approval of the restoration plan beyond the times specified in Section 1A.9(g)(ii)(y) (a), (b) or (c) through no fault of Contractor, and Contractor satisfies all other conditions in Section 1A.9(g)(ii) for the payment of builder’s risk proceeds received by the Collateral Agent (or escrow agent), then Contractor shall be entitled to relief to the extent permitted under Section 6.2A.7 of the Agreement.

10. Builder’s Risk Delayed Startup Insurance. Delayed startup coverage insuring Owner and Lender, as their interests may appear, covering the Owner’s net revenue or gross margin lost as a result of any loss or damage insured by Section 1A.9 above resulting in a delay in Substantial Completion beyond the applicable Target Substantial Completion Date in an amount to be determined by Owner and Lender but subject to commercial availability at a reasonable cost. Upon NTP, Contractor shall insure the Stage 1 Liquefaction Facility for an amount to be determined by Owner and Lender’s insurance advisor in consultation with Contractor and subject to commercial availability at a

 

O-8


reasonable cost. This coverage shall be on an actual loss-sustained basis. Any proceeds from delay in startup insurance shall be payable solely to the Lender or its designee and shall not in any way reduce or relieve Contractor of any of its obligation or liabilities under the Agreement.

Such insurance shall (a) have a deductible of not greater than sixty (60) Days aggregate for all occurrences, except 90 days in the aggregate in the respect of Windstorms, during the builder’s risk policy period, (b) include an interim payments clause allowing for the monthly payment of a claim pending final determination of the full claim amount, (c) cover loss sustained when access to the Site is prevented due to an insured peril at premises in the vicinity of the Site for a period not less than sixty (60) Days, (d) cover loss sustained due to the action of a public authority preventing access to the Site due to imminent or actual loss or destruction arising from an insured peril at premises in the vicinity of the Site for a period not less than sixty (60) Days, (e) insure loss caused by FLEXA named perils to finished Equipment (including machinery) while awaiting shipment at the premises of a Subcontractor or Sub-subcontractor, (f) not contain any form of a coinsurance provision or include a waiver of such provision, (g) cover loss sustained due to the accidental interruption or failure, caused by an insured peril of supplies of electricity, gas, sewers, water or telecommunication up to the terminal point of the utility supplier with the Site for a period not less than sixty (60) Days, (h) covering delays resulting from any item of Construction Equipment whose loss or damage could result in a delay in Substantial Completion beyond the deductible period of the delayed startup insurance, and (i) an extension clause allowing the policy period to be extended up to six (6) months without modification to the terms and conditions (other than the deductible) of the policy and a pre-agreed premium.

If Owner issues a notice to proceed under the Stage 2 EPC Agreement, Contractor acknowledges that, upon issuance of such notice to proceed, Contractor shall be required under the Stage 2 EPC Agreement to extend the builder’s risk delayed startup insurance required under this Agreement to the Stage 2 EPC Agreement. Such extension shall not relieve Contractor of any of its responsibilities to meet the requirements of Attachment O under this Agreement. Such extension to the Stage 2 EPC Agreement shall meet the requirements of the Stage 2 EPC Agreement.

11. Marine Cargo Insurance. Cargo insurance insuring Contractor, Owner and Lender, as their interests may appear, on a “warehouse to warehouse” basis including land, air and marine transit insuring “all risks” of loss or damage on a C.I.F. basis plus ten percent (10%) from the time the goods are in the process of being loaded for transit until they are finally delivered to the Site including shipment deviation, delay, forced discharge, re-shipment and transshipment. Such insurance shall (a) include coverage for war, strikes, theft, pilferage, non-delivery, charges of general average sacrifice or contribution, salvage expenses, temporary storage in route, consolidation, repackaging, refused and returned shipments, debris removal, (b) contain a replacement by air extension clause, a 50/50 clause, a difference in conditions for C.I.F. shipments, an errors and omissions clause, an import duty clause and a non-vitiation clause (but subject to a paramount warranty for surveys of critical items), (c) include an insufficiency of packing clause, (d) provide coverage for sue and labor in an amount not less than $1,000,000 and (e) insure for the replacement value of the largest single shipment on a C.I.F. basis plus ten percent (10%).

 

O-9


If Owner issues a notice to proceed under the Stage 2 EPC Agreement, Contractor acknowledges that, upon issuance of such notice to proceed, Contractor shall be required under the Stage 2 EPC Agreement to extend the marine cargo insurance coverage under this Agreement to the Stage 2 EPC Agreement as specified in the Stage 2 EPC Agreement. Such extension shall not relieve Contractor of any of its responsibilities to meet the requirements of Attachment O under this Agreement, except that (unless expressly stated otherwise in this Section) any limits, sublimits, deductibles, payments or other values stated herein shall not be doubled or otherwise increased as a result of the extension of the marine cargo insurance to the Stage 2 EPC Agreement.

The property damage proceeds under the marine cargo policy shall be paid as follows with respect to any one occurrence:

 

  (i) the first Ten Million U.S. Dollars (U.S.$10,000,000) of amounts paid under the marine cargo insurance policy for property damage to the Stage 1 Liquefaction Facility (and upon notice to proceed under the Stage 2 EPC Agreement, damage to the Liquefaction Facility) shall be paid by the insurance carrier directly to Contractor, which shall be used by Contractor in connection with the repair, replacement or other necessary work in connection with the Stage 1 Liquefaction Facility; and

 

  (ii)

any amounts in excess of Ten Million U.S. Dollars (U.S.$10,000,000) for property damage to the Stage 1 Liquefaction Facility (and upon notice to proceed under the Stage 2 EPC Agreement, property damage to the Liquefaction Facility) shall (x) be paid by the insurance carrier directly to the Collateral Agent (or if there is no Collateral Agent, a mutually agreed upon escrow agent), and Owner shall pay such insurance proceeds to Contractor in accordance with Monthly Invoices submitted to Owner for the completion by Contractor of repairs, replacement and other necessary work in accordance with the restoration plan prepared by Contractor and approved by Owner, the Administrative Agent, and the Independent Engineer and (y), provided that the conditions set forth in clause (x) have been satisfied, be paid by Owner to Contractor in accordance with the following schedule: (a) for the first Five Million U.S. Dollars (U.S.$5,000,000) of marine cargo proceeds received by the Collateral Agent (or escrow agent) for the Stage 1 Liquefaction Facility (and upon notice to proceed under the Stage 2 EPC Agreement, for the Liquefaction Facility), Owner shall have five (5) Business Days after the Collateral Agent’s (or escrow agent’s) receipt of such proceeds to pay Contractor; (b) for the Forty Million U.S. Dollars (U.S.$40,000,000) in marine cargo proceeds received by the Collateral Agent (or escrow agent) for the Stage 1 Liquefaction Facility (and upon notice to proceed under the Stage 2 EPC Agreement, for the Liquefaction Facility) in excess of the amounts referred to in clause (a) above, Owner shall have fifteen (15) Business Days after the Collateral Agent’s (or escrow

 

O-10


  agent’s) receipt of such proceeds to pay Contractor; and (c) and for any marine cargo proceeds received by the Collateral Agent (or escrow agent) in excess of the amounts referred to in clause (b), Owner shall have thirty (30) Business Days after the Collateral Agent’s (or escrow agent’s) receipt of such proceeds to pay Contractor. Notwithstanding the foregoing, under no circumstances shall Owner be required to pay any marine cargo insurance proceeds to Contractor if Owner or Lender elects not to repair or rebuild the Stage 1 Liquefaction Facility (and upon notice to proceed under the Stage 2 EPC Agreement, the Liquefaction Facility), except to the extent Contractor has incurred costs in excess of the Ten Million U.S. Dollars (U.S.$10,000,000) of marine cargo proceeds paid directly to Contractor for safety, protection and salvage for the Stage 1 Liquefaction Facility (and upon notice to proceed under the Stage 2 EPC Agreement, for the Liquefaction Facility). For the avoidance of doubt, if there is a delay in the approval of the restoration plan beyond the times specified in this Section 1A.11(ii)(y) (a), (b) or (c) through no fault of Contractor, and Contractor satisfies all other conditions in Section 1A.11(ii) for the payment of marine cargo proceeds received by the Collateral Agent (or escrow agent), then Contractor shall be entitled to relief to the extent permitted under Section 6.2A.7 of the Agreement.

12. Marine Cargo Delayed Startup Insurance. Delayed startup insurance insuring Owner and Lender, as their interests may appear, for the Owner’s net revenue or gross margin lost due to a delay in achievement of Substantial Completion beyond the applicable Target Substantial Completion Date arising out of an event insured by the marine cargo insurance. Such insurance shall (a) cover loss sustained due to blockage/closure of specified waterways, (b) include an interim payments clause allowing for the monthly payment of a claim pending final determination of the full claim amount and (c) cover delay caused by loss, breakdown or damage to the hull, machinery or equipment of the vessel or aircraft on which the insured property is being transported, resulting in a delay in achievement of Substantial Completion beyond the applicable Target Substantial Completion Date in an amount to be determined by Owner and Lender but subject to commercial availability at a reasonable cost. Prior to the shipment of any Equipment under this Agreement but in any event no later than ninety (90) Days after NTP, Contractor shall insure the Stage 1 Liquefaction Facility for an amount to be determined by Owner and Lender’s insurance advisor in consultation with Contractor and subject to commercial availability at a reasonable cost. Such insurance shall have a deductible of not greater than sixty (60) Days aggregate for all occurrences during the policy period. Any proceeds from delay in startup insurance shall be payable solely to Lender or its designee and shall not in any way reduce or relieve Contractor of any of its obligation or liabilities under the Agreement.

If Owner issues a notice to proceed under the Stage 2 EPC Agreement, Contractor acknowledges that, upon issuance of such notice to proceed, Contractor shall be required under the Stage 2 EPC Agreement to extend the marine cargo delayed startup insurance required under this Agreement to the Stage 2 EPC Agreement. Such extension shall not relieve Contractor of any of its responsibilities to meet the requirements of Attachment O

 

O-11


under this Agreement. Such extension to the Stage 2 EPC Agreement shall meet the requirements of the Stage 2 EPC Agreement.

13. Marine General Liability Insurance. Marine general liability insurance against claims for bodily injury, property damage, including Marine Contractual Liability, Sudden and Accidental Pollution, and if applicable Tankerman’s liability, Marine Terminal Operators Liability, and Charter’s liability, with a U.S.$100,000,000 limit per occurrence provided that the policy aggregates, if any, shall apply separately to claims occurring with respect to the Project. A maximum deductible or self-insured retention of U.S.$25,000 per occurrence shall be allowed.

If Owner issues a notice to proceed under the Stage 2 EPC Agreement, Contractor acknowledges that, upon issuance of such notice to proceed, Contractor shall be required under the Stage 2 EPC Agreement to extend the marine general liability insurance coverage under this Agreement to the Stage 2 EPC Agreement, except that policy aggregate for the Liquefaction Facility shall have a limit of U.S.$100,000,000 per occurrence. Such extension shall not relieve Contractor of any of its responsibilities to meet the requirements of Attachment O under this Agreement.

14. Contractors Pollution Liability Insurance. Contractors pollution liability insurance in an amount of U.S.$25,000,000 per occurrence and in the aggregate insuring Contractors liability for (a) cleanup on or off the Site for releases of pollutants, (b) Third Party liability (including bodily injury, property damage, natural resource damages, Third Party property loss of use/revenue, and cleanup) due to releases of pollutants, and (c) spills of transported pollutants. If the policy is Claims Made then the policy should include an extended two year reporting period for reporting incurred, but as yet undiscovered claims arising from the Project. A maximum deductible or self-insured retention of U.S.$250,000 per occurrence shall be allowed.

If Owner issues a notice to proceed under the Stage 2 EPC Agreement, Contractor acknowledges that, upon issuance of such notice to proceed, Contractor shall be required under the Stage 2 EPC Agreement to extend the Contractors pollution liability insurance coverage under this Agreement to the Stage 2 EPC Agreement. Such extension shall not relieve Contractor of any of its responsibilities to meet the requirements of Attachment O under this Agreement, except that the overall cumulative minimum limits for the Liquefaction Facility shall be as follows: U.S.$25,000,000 per occurrence and in the aggregate.

B. Time for Procuring and Maintaining Insurance. Contractor shall maintain in full force and effect at all times (i) commencing from NTP (except as may otherwise be expressly stated in this Attachment O), and (ii) continuing through Substantial Completion of Subproject 2 for all coverages under this Attachment O (except in the case of products and completed operations coverage under Section 1A.2 and 1A.4, which shall be maintained in full force and effect for a further period of five (5) years, and Builder’s risk for Subproject 1 which shall be maintained until Substantial Completion of such Subproject is accepted by Owner). If the Parties execute a Change Order for LNTP Work, the Parties will include in such Change Order agreed upon insurance coverages for such LNTP Work.

 

O-12


C. Combination of Insurance Coverages. Contractor may combine any one or more of the insurance coverages specified in Sections 1A.4, and 1A.7 into one (1) policy, provided that the coverage provided by such combined policy shall meet the requirements of Sections 1A.4, 1A.7 and 1A.13 and shall not provide less coverage than that which would have been provided had the insurances been procured separately under Sections 1A.4 and 1A.7. Contractor may also arrange separate/stand-alone policies of insurance for any of the insurances required to the extent it is economical to do so and still provides the required level of insurance. For example, it may be required to place pollution insurance on a stand-alone basis or some of the coverage for Windstorm risk may also need to be placed on a stand-alone basis.

D. Insurance Companies. All insurance required to be obtained by Contractor pursuant to this Agreement shall be from an insurer or insurers permitted to conduct business as required by Applicable Law and shall be rated with either an “A-: VIII” or better by Best’s Insurance Guide Ratings or “A-” or better by Standard and Poor’s or A3 or better by Moody’s.

E. Subcontractor’s and Sub-subcontractor’s Insurance Requirements. Contractor shall ensure that each Subcontractor and Sub-subcontractor shall either be covered by the insurance provided by Contractor pursuant to this Agreement, or by insurance procured by a Subcontractor or Sub-subcontractor. Should a Subcontractor or Sub-subcontractor be responsible for procuring its own insurance coverage, Contractor shall ensure that each such Subcontractor or Sub-subcontractor shall procure and maintain insurance to the full extent required of Contractor under this Agreement and shall be required to comply with all of the requirements imposed on Contractor with respect to such Contractor-provided insurance on the same terms as Contractor, except that Contractor shall have the sole responsibility for determining the limits of coverage required to be obtained by such Subcontractors or Sub-subcontractors in accordance with reasonably prudent business practices. Subject to Section 7.1C and Attachment EE of this Agreement, all such insurance shall be provided for at the sole cost of Contractor or its Subcontractors or Sub-subcontractors. Failure of Subcontractors or Sub-subcontractors to procure and maintain such insurance coverage shall not relieve Contractor of its responsibilities under the Agreement.

F. Named and Additional Insured.

1. The following insurance policies provided by Contractor shall include Owner Group as Additional Insureds: employer’s liability, commercial automobile, aircraft liability, hull and machinery, and protection and indemnity insurance.

2. The following insurance policies provided by Contractor shall include Owner Group as Named Insureds: commercial general liability, umbrella or excess liability, builder’s risk, builder’s risk delayed startup, marine cargo, marine cargo delayed startup and marine terminal liability operations, pollution liability and marine general liability insurance. The following insurance policies provided by Contractor shall include ConocoPhillips Company as an additional insured to the extent of ConocoPhillips Company’s indemnity obligations under the ConocoPhillips License Agreement: commercial general liability and umbrella or excess liability.

G. Waiver of Subrogation and Waiver of Claims.

 

O-13


1. All policies of insurance provided by Contractor or any of its Subcontractors or Sub-subcontractors pursuant to this Agreement shall include clauses providing that each underwriter shall waive its rights of recovery, under subrogation or otherwise, against Owner Group. The commercial general liability and umbrella or excess liability policies provided by Contractor pursuant to this Agreement shall include clauses providing that each underwriter shall waive its rights of recovery, under subrogation or otherwise, against ConocoPhillips Company.

2. Contractor waives any and all claims, damages, losses, costs, and expenses against Owner Group to the extent such claims, damages, losses, costs and expenses have already been paid by the insurance procured by Contractor pursuant to the Agreement.

H. Contractor’s Insurance is Primary. The insurance policies of Contractor and its Subcontractors and Sub-subcontractors shall state that such coverage is primary and non-contributory to any other insurance or self-insurance available to or provided by the Owner Group.

I. Severability. All policies (other than in respect to worker’s compensation insurance) shall insure the interests of the Owner Group regardless of any breach or violation by Contractor or any other Party of warranties, declarations or conditions contained in such policies, any action or inaction of Owner or others, or any foreclosure relating to the Project or any change in ownership of all or any portion of the Project.

J. Copy of Policy. At Owner’s request, Contractor shall promptly provide Owner certified copies of each of the insurance policies of Contractor, or if the policies have not yet been received by Contractor, then with binders of insurance, duly executed by the insurance agent, broker or underwriter fully describing the insurance coverages effected.

K. Limitation of Liability. Types and limits of insurance shall not in any way limit any of Contractor’s obligations, responsibilities or liabilities under this Agreement.

L. Jurisdiction. All insurance policies shall include coverage for jurisdiction within the United States of America or other applicable jurisdiction.

M. Miscellaneous. Contractor and its Subcontractors and Sub-subcontractors shall do nothing to void or make voidable any of the insurance policies purchased and maintained by Contractor or its Subcontractors or Sub-subcontractors hereunder. Contractor shall promptly give Owner and Lender notice in writing of the occurrence of any casualty, claim, event, circumstance, or occurrence that may give rise to a claim under an insurance policy hereunder and arising out of or relating to the performance of the Work. In addition, Contractor shall ensure that Owner is kept fully informed of any subsequent action and developments concerning the same, and assist in the investigation of any such casualty, claim, event, circumstance or occurrence.

N. Instructions for Certificate of Insurance. Contractor’s certificate of insurance form, completed by Contractor’s insurance agent, broker or underwriter, shall reflect all of the insurance required by Contractor, the recognition of additional insured status, waivers of subrogation, and primary/non-contributory insurance requirements contained in this Attachment O and elsewhere in this Agreement.

 

O-14


O. Certificate of Insurance Requirements. Prior to the commencement of any Work under this Agreement and in accordance with Section 1B of this Attachment O, Contractor shall deliver to Owner certificates of insurance reflecting all of the insurance required of Contractor under this Agreement. All certificates of insurance and associated notices and correspondence concerning such insurance shall be addressed to the contact information listed in the Agreement for notices, plus the following: Corpus Christi Liquefaction, LLC, 700 Milam Street, Suite 800, Houston, Texas 77002, Facsimile: ***, Attn: ***.

In addition, each such certificate of insurance for employer’s liability, commercial automobile liability, aircraft, hull and machinery, and protection and indemnity insurance shall include the following language:

“Additional Insured: Corpus Christi Liquefaction, LLC, Lender and each of their respective subsidiaries, affiliates, partners, co-venturers, agents, officers, directors and employees named as Additional Insureds on employer’s liability, commercial liability, aircraft, hull and machinery, and protection and indemnity insurance. The coverage afforded the Additional Insured under these policies shall be primary insurance. If the Additional Insured has other insurance which is applicable to a loss or claim, such other insurance shall be on an excess or contingent basis.”

“Waiver of Subrogation in favor of Additional Insureds as respects all policies required hereunder.”

In addition, each such certificate of insurance for commercial general liability, umbrella or excess liability, builder’s risk, builder’s risk delayed start up, marine cargo, marine cargo delayed start up, marine general liability and pollution liability insurance shall include the following language:

“Named Insured: Corpus Christi Liquefaction, LLC, Lender and each of their respective subsidiaries, affiliates, partners, co-venturers, agents, officers, directors and employees as Named Insureds on commercial general liability, umbrella or excess liability, builder’s risk, builder’s risk delayed start up, marine cargo, marine cargo delayed start up, pollution liability and marine general liability insurance. The coverage afforded the Named Insured under these policies shall be primary insurance. If the Named Insured has other insurance which is applicable to a loss or claim, such other insurance shall be on an excess or contingent basis.”

“Waiver of Subrogation in favor of Named Insureds as respects all policies required hereunder.”

P. Acceptable Policy Terms and Conditions: All policies of insurance required to be maintained by Contractor shall be written on reasonable and customary policy forms with conditions and exclusions consistent with insurance written for facilities of similar size and scope as the Stage 1 Liquefaction Facility (and if notice to proceed is issued by Owner under the Stage 2 EPC Agreement, shall be consistent with insurance written for facilities of similar size and scope as the Liquefaction Facility).

 

O-15


Q. Deductibles. Contractor and Owner shall bear the cost of deductibles under the insurance provided by Contractor pursuant to this Attachment O in accordance with the allocation of risk found elsewhere in this Agreement; provided, however, with respect to a loss covered by the builder’s risk insurance policy or would have been covered but for the existence of the deductible for a Windstorm event, Owner shall be responsible for that portion of the deductible greater than U.S.$2,000,000 but less than U.S.$7,500,000 with respect to the Stage 1 Liquefaction Facility (and if notice to proceed is issued by Owner under the Stage 2 EPC Agreement, Owner shall be responsible for that portion of the deductible greater than U.S.$2,000,000 but less than U.S.$7,500,000 with respect to the Liquefaction Facility).

2. Policy Cancellation and Change: All policies of insurance required to be maintained pursuant to this Attachment O shall be endorsed so that if at any time they are canceled, or their coverage is reduced (by any party including the insured) so as to affect the interests of Owner or Lender, such cancellation or reduction shall not be effective as to Owner or Lender for sixty (60) Days after receipt by Owner and Lender of written notice from such insurer of such cancellation or reduction, provided that (i) cancellation or reduction for marine cargo war risk shall not be effective for seven (7) Days after receipt by Owner and Lender of written notice from such insurer of such cancellation or reduction and (ii) for non-payment of premium, cancellation or reduction shall not be effective for ten (10) Days after receipt by Owner and Lender of written notice from such insurer of such cancellation or reduction.

3. Reports: Contractor will advise Owner and Lender in writing promptly of (1) any material changes in the coverage or limits provided under any policy required by this Attachment O and (2) any default in the payment of any premium and of any other act or omission on the part of Contractor which may invalidate or render unenforceable, in whole or in part, any insurance being maintained by the Contractor pursuant to this Attachment O.

4. Control of Loss: If commercially feasible, all policies of insurance required to be maintained pursuant to this Attachment O, wherein more than one insurer provides the coverage on any single policy, shall have a clause (or a separate agreement among the insurers) wherein all insurers have agreed that the lead insurers shall have full settlement authority on behalf of the other insurers.

5. Loss Survey: All policies of insurance required to be maintained pursuant to this Attachment O, wherein more than one insurer provides the coverage on any single policy, shall have a clause (or a separate agreement among the insurers) wherein all insurers have agreed upon the employment of a single firm to survey and investigate all losses on behalf of the insurers.

6. Miscellaneous Policy Provisions: All insurance policies providing builder’s risk, builder’s risk delayed startup, marine cargo or marine cargo delayed startup (i) shall not include any annual or term aggregate limits of liability except as expressly stated in this Attachment O, (ii) shall not have any aggregate limits of liability apply separately with respect to the Subprojects, (iii) shall have aggregate limits for Windstorms and earth movement and (iv) if commercially feasible, shall not include a clause requiring the payment of additional premium to reinstate the limits after loss except for insurance covering the perils of Windstorms and earth movement.

 

O-16


7. Lender Requirements: Contractor agrees to cooperate with Owner and as to any changes in or additions to the foregoing insurance provisions made necessary by requirements imposed by Lender (including additional insured status, notice of cancellation, certificates of insurance), provided that any resulting costs of increased coverage shall be reimbursable by Owner and provided further that no such requirements shall materially adversely affect Contractor’s risk exposure. All policies of insurance required to be maintained pursuant to this Attachment O shall contain terms and conditions reasonably acceptable to Owner after consultation with Lender.

8. No Limitation of Requirements in Stage 1 EPC Agreement: Nothing in this Attachment O shall be construed to limit the requirements or obligations of Contractor under the Stage 2 EPC Agreement, including the waivers of subrogation and waivers of claims contained in Attachment O to the Stage 2 EPC Agreement.

 

O-17


ATTACHMENT P

CONTRACTOR PERMITS FOR STAGE 1

Contractor shall be responsible for obtaining all of the following Permits and any and all other Permits not listed below but required for the performance of the Work, except for the Owner Permits set forth in Attachment Q.

 

PERMIT OR

APPROVAL

  

REGULATORY

REFERENCE

  

RESPONSIBLE

AGENCY

  

REGULATED

ACTIVITY

  

TECHNICAL

INFORMATION

NEEDED FOR

APPLICATION

  

DATE

REQUIRED

  

COMMENTS

Notice of Proposed Construction or Alteration – for temporary structures 200 ft. AGL    FAA FORM 7460-1; §77.13 Construction or alteration requiring notice.    Federal Aviation Administration    Temporary equipment or structures rising to 200 ft. AGL or higher which may pose aviation hazard.    Location and height of equipment or structures 200 ft. AGL or higher.    30 Days prior to equipment erection.   
Radio licenses / channel frequency use   

Federal Communications Commission; Universal Licensing System; Code of Federal Regulations

- Title 47

   Federal Communications Commission    Use of radios and other wireless transmitting devices.    Frequencies to be used; base transmission equipment and repeater tower locations.    Prior to equipment use on Site.   

 

P-1


PERMIT OR

APPROVAL

  

REGULATORY

REFERENCE

  

RESPONSIBLE

AGENCY

  

REGULATED

ACTIVITY

  

TECHNICAL

INFORMATION

NEEDED FOR

APPLICATION

  

DATE

REQUIRED

  

COMMENTS

Notification of Waste Activity – Construction   

Texas Administrative Code

TITLE 30 ENVIRONMENTAL QUALITY

PART 1 TEXAS COMMISSION ON ENVIRONMENTAL QUALITY

CHAPTER 330 MUNICIPAL SOLID WASTE

   Texas Commission on Environmental Quality    Waste generation, management, transportation, recycling, and disposal    Location and description of waste generating activities. Owner waste ID number is required.    30 Days prior to Site activities which will generate wastes.   
Industrial Solid Waste Notice of Registration   

Texas Administrative Code

TITLE 30 ENVIRONMENTAL QUALITY

PART 1 TEXAS COMMISSION ON ENVIRONMENTAL QUALITY

CHAPTER 335 INDUSTRIAL SOLID WASTE AND MUNICIPAL HAZARDOUS WASTE

   Texas Commission on Environmental Quality    Hazardous waste generation, management, transportation, recycling, and disposal    Location and description of waste generating activities. Owner waste ID number is required.    30 Days prior to Site activities which will generate wastes.   
Over-dimension / overweight loads    TRANSPORTATION CODE TITLE 7. VEHICLES AND TRAFFICSUBTITLE E. VEHICLE SIZE AND WEIGHTCHAPTER 621. GENERAL PROVISIONS RELATING TO VEHICLE SIZE AND WEIGHT    Texas Department of Motor Vehicles    Transportation of over-dimension or over-weight loads.    Size and dimension of load; route to be followed.    Prior to transportation activities.   

 

P-2


PERMIT OR

APPROVAL

  

REGULATORY

REFERENCE

  

RESPONSIBLE

AGENCY

  

REGULATED

ACTIVITY

  

TECHNICAL

INFORMATION

NEEDED FOR

APPLICATION

  

DATE

REQUIRED

  

COMMENTS

Permit to construct access driveway; alteration of state roads; highway ROW       Texas Department of Transportation; County or City departments for roads or transportation    Construction activities which impact state or public roads: access driveway; alteration of state roads; highway ROW    Location and description of the construction activities; impact to traffic; mitigation and control activities for traffic impairments.    30 Days prior to planned road construction activities.   
Radioactive Material License - NDE    25 TAC §289.202; Standards for Protection Against Radiation from Radioactive Materials    Texas Department of State Health Services – Radiation Control Program    Use of radioactive isotopes for NDE. Installation of radioactive isotopes for instruments, gauges or other controls.    Type and quantity of the isotopes to be used. Protective actions to be taken to reduce impact to personnel and public from radiation.    Prior to the use of radioactive isotopes.   

 

P-3


PERMIT OR

APPROVAL

  

REGULATORY

REFERENCE

  

RESPONSIBLE

AGENCY

  

REGULATED

ACTIVITY

  

TECHNICAL

INFORMATION

NEEDED FOR

APPLICATION

  

DATE

REQUIRED

  

COMMENTS

Development Permit (Temporary Facilities only)       San Patricio County    Installation of trailers; warehouses; or other occupied structures.    Size and location of development.    Prior to construction of temporary facilities, in consultation with county building officials.   
Building Permit – Permanent Facilities       San Patricio County    Installation of permanent buildings.    Architectural details of buildings, materials of construction, life-safety designs, egress, lighting, expected occupancy.    Prior to construction of permanent buildings; in consultation with county building officials.   
Building Permit – Temporary Facilities       San Patricio County    Installation of temporary buildings.    Architectural details of buildings, materials of construction, life-safety designs, egress, lighting, expected occupancy.    Prior to construction of temporary buildings; in consultation with county building officials.   

 

P-4


PERMIT OR

APPROVAL

  

REGULATORY

REFERENCE

  

RESPONSIBLE

AGENCY

  

REGULATED

ACTIVITY

  

TECHNICAL

INFORMATION

NEEDED FOR

APPLICATION

  

DATE

REQUIRED

  

COMMENTS

Certificate of Occupancy       San Patricio County    Occupancy of a building or structure.    Certification of completion of construction; building inspection by county building officials and/or fire marshal.    Prior to occupancy of a building or structure.   
Water connection permit for temporary construction facilities       San Patricio County    Connection to public water supply.    Location of connection; quantity of water required; details of piping and appurtenances to prevent contamination of public water supply.    Prior to connection to public water system.   
Sewer connection permit for temporary construction facilities       San Patricio County    Connection to public sewer system.    Location of connection; quantity of sewage to be pumped to public system.    Prior to connection to public sewer system.   

 

P-5


PERMIT OR

APPROVAL

  

REGULATORY

REFERENCE

  

RESPONSIBLE

AGENCY

  

REGULATED

ACTIVITY

  

TECHNICAL

INFORMATION

NEEDED FOR

APPLICATION

  

DATE

REQUIRED

  

COMMENTS

Traffic control on public roads       Texas Department of Public Safety; County Sheriff; Municipal Police    Use of traffic control devices; signage; or personnel on public roads.    Location and type of traffic controls to be implemented.    Prior to need.   

 

P-6


ATTACHMENT Q

OWNER PERMITS FOR STAGE 1

Owner shall obtain the Owner Permits listed below.

 

PERMIT OR

APPROVAL

  

REGULATORY

REFERENCE

  

RESPONSIBLE

AGENCY

  

REGULATED

ACTIVITY

  

TECHNICAL
INFORMATION

NEEDED FOR

APPLICATION

  

DATE
REQUIRED

  

COMMENTS

Notice of Proposed Construction or Alteration - FAA Form 7460-1    14 CFR Part 77    Federal Aviation Administration (FAA)    Construction or use of obstructions, including cranes, in navigable airspace   

Evaluation/Airport Airspace Analysis (OE/AAA) is required if the Liquefaction Facility will have structures greater than 200 feet or is within 20,000 feet from an airport meeting certain obstruction requirements. (see Section 77.13(a))

 

Locations and dimensions of any other significant structures.

   Earlier of: (1) 30 Days prior to the construction or alteration is to begin; or (2) date an application for a construction permit is to be filed.   

Submitted: 07/17/12

Received: 01/29/13

Natural Gas Act (NGA) Section 3 Application    15 U.S.C. § 717b (2006), and Parts 153 and 380 of the FERC’s regulations, 18 C.F.R. Parts 153 and 380 (2012)    Federal Energy Regulatory Commission (FERC)    LNG Terminal    Environmental Resource Reports 1-13 submitted with FERC Application and subsequent environmental info requests.    NTP    Submitted: 08/31/12
NGA Section 7(c) Application    15 U.S.C. § 717f(c) (2006), and Parts 157, 284, and 380 of the FERC’s regulations, 18 C.F.R. Parts 157, 284, and 380 (2012)    FERC    Pipeline    Environmental Resource Reports 1-13 submitted with FERC Application and subsequent environmental info requests.    NTP    Submitted: 08/31/12

 

Q-1


PERMIT OR

APPROVAL

  

REGULATORY

REFERENCE

  

RESPONSIBLE

AGENCY

  

REGULATED

ACTIVITY

  

TECHNICAL
INFORMATION

NEEDED FOR

APPLICATION

  

DATE
REQUIRED

  

COMMENTS

Section 10/404

Impacts to Waters of the U.S. (including wetlands)

   33 CFR 320 to 330    U.S. Army Corps of Engineers (USACOE)    Construction activities in lakes, streams, wetlands    Amendment to permit for liquefaction and pipeline facilities.    NTP or as specified in FERC Authorization    Submitted: 08/31/12
Essential Fish Habitat    Magnuson/Stevens Act    NOAA Fisheries    Construction in marine environment    Consultation    NTP or as specified in FERC Authorization    Submitted: 01/12/12
Federal Endangered Species Consultation    Section 7 of the Endangered Species Act (ESA)    NOAA Fisheries    Impacts to marine listed threatened and endangered species    Consultation    NTP or as specified in FERC Authorization   

Submitted: 01/12/12

Received: 10/29/12

Federal Endangered Species Consultation    Section 7 of the Endangered Species Act (ESA)    U.S. Fish and Wildlife Service    Impacts to terrestrial listed threatened and endangered species    Consultation    NTP or as specified in FERC Authorization   

Submitted: 01/12/12

Received: 09/06/13

Navigation and Marine Safety issues associated with the LNG terminal ship traffic    33 CFR 7.007    U.S. Coast Guard    Navigation and Marine Safety issues associated with the LNG terminal ship traffic   

Letter of Intent

Waterway Suitability Assessment

   NTP or as specified in FERC Authorization    Letter of Intent submitted on 12/13/11. WSA submitted on 08/30/12, addendum submitted 01/28/13. USCG; Letter of Recommendation received on 03/21/13.
Authorization to Export LNG to FTA nations   

Section 3 of the Natural Gas Act and Part 590 of the Department

of Energy’s regulations

   U.S. Dept. of Energy    Long-term multi-contract authorization to export LNG by vessel to free trade agreement nations.    Application    NTP   

Submitted: 08/31/12

Received: 10/16/12

 

Q-2


PERMIT OR

APPROVAL

  

REGULATORY

REFERENCE

  

RESPONSIBLE

AGENCY

  

REGULATED

ACTIVITY

  

TECHNICAL
INFORMATION

NEEDED FOR

APPLICATION

  

DATE
REQUIRED

  

COMMENTS

Authorization to Export LNG to non-FTA nations   

Section 3 of the Natural Gas Act and Part 590 of the Department

of Energy’s regulations

   U.S. Dept. of Energy    Long-term multi-contract authorization to export LNG by vessel to non-free trade agreement nations.    Application    NTP    Submitted: 08/31/12
Prevention of Significant Deterioration (PSD) Permit    40 CFR Parts 50-99; 30 TAC 100-122    Texas Commission on Environmental Quality (TCEQ)    Construction of major source of air emissions – CCL Terminal   

Air pollution emissions and control equipment data

Locations and dimensions of major structures

Air quality impact modeling

BACT determinations

   NTP or as specified in FERC Authorization    PSD Application submitted on 08/31/12. PSD Modeling submitted on 11/26/12. Supplemental information provided on 01/08/13 and 05/02/13. State SO2 NAAQS modeling provided on 01/28/13.
PSD Permit    40 CFR Parts 50-99; 30 TAC 100-122    TCEQ    Construction of major source of air emissions – Sinton Compressor Station   

Air pollution emissions and control equipment data

Locations and dimensions of major structures

Air quality impact modeling

BACT determinations

   NTP or as specified in FERC Authorization    PSD Application submitted on 08/31/12. PSD Modeling submitted on 11/26/12. Supplemental information provided on 01/08/13 and 03/07/13. State SO2 NAAQS modeling provided on 02/06/13.

 

Q-3


PERMIT OR

APPROVAL

  

REGULATORY

REFERENCE

  

RESPONSIBLE

AGENCY

  

REGULATED

ACTIVITY

  

TECHNICAL
INFORMATION

NEEDED FOR

APPLICATION

  

DATE
REQUIRED

  

COMMENTS

Title V Operating Permit    40 CFR Part 70; 30 TAC 122    TCEQ    Operation of major source of air emissions – CCL Terminal       NTP or as specified in FERC Authorization    Submitted: 11/06/12.
Title V Operating Permit    40 CFR Part 70; 30 TAC 122    TCEQ    Operation of major source of air emissions – Sinton Compressor Station       NTP or as specified in FERC Authorization    Submitted: 11/06/12.
Standard Permit for Oil and Gas Handling and Production Facilities    30 TAC 116.620    TCEQ    Construction and operation of Taft Compressor Station       NTP or as specified in FERC Authorization   
Spill Prevention, Control and Countermeasure Plan (SPCC) for Operating Facility    40 CFR Part 112    Railroad Commission of Texas (RRC)    Onsite storage of oil in quantities greater than threshold amounts   

1. Oil storage inventory including maximum capacity

 

2. Description of measures to prevent an oil spill

 

3. Description of how personnel will respond to an oil spill

   Prior to RFSU    This is not a permit, but rather an operating plan that must be updated prior to operating the Liquefaction Facility.
RCRA Small Quantity Hazardous Waste Generator Identification Number    30 TAC 335.6    TCEQ    Onsite presence of hazardous waste in quantities greater than threshold amounts    Expected hazardous waste accumulation    NTP or as specified in FERC Authorization   
Coastal Zone Consistency Determination / Water Quality Certification under Section 401    31 TAC Part 16    RRC    Triggered by application for a USACOE Section 404 Permit    Submitted as a part of the USACE 404 Application    NTP or as specified in FERC Authorization   

Submitted: 08/31/12

Received: 11/14/13

 

Q-4


PERMIT OR

APPROVAL

  

REGULATORY

REFERENCE

  

RESPONSIBLE

AGENCY

  

REGULATED

ACTIVITY

  

TECHNICAL
INFORMATION

NEEDED FOR

APPLICATION

  

DATE
REQUIRED

  

COMMENTS

NPDES Permit Application - RO Reject Water    Federal Water Pollution Control Act of 1972, as amended by the Clean Water Act of 1977 and the Water Quality Act of 1987    U.S. Environmental Protection Agency (EPA)    Discharge of RO Reject Water    Expected flows and characteristics    Must receive prior to operation and water discharge.    Submitted: 02/28/13
NPDES Stormwater Construction Permit for CCL Terminal    Federal Water Pollution Control Act of 1972, as amended by the Clean Water Act of 1977 and the Water Quality Act of 1987    EPA    Storm water runoff    Must develop Storm Water Pollution Prevention Plan, including: site description, pollution and erosion control measures, maintenance procedures    Notification only required prior to construction. SWPPP required to be completed prior to notification. Must receive prior to operation and water discharge.   
NPDES Discharge Permit for Hydrostatic Test Water Discharge    Federal Water Pollution Control Act of 1972, as amended by the Clean Water Act of 1977 and the Water Quality Act of 1987    EPA    Hydrostatic Test Water Discharge    Application    Must receive prior to water discharge   
NPDES Storm Water Construction Permit Notice of Termination    Federal Water Pollution Control Act of 1972, as amended by the Clean Water Act of 1977 and the Water Quality Act of 1987    EPA    Storm water runoff    Notice of Termination    Submit once construction is complete.   

 

Q-5


PERMIT OR

APPROVAL

  

REGULATORY

REFERENCE

  

RESPONSIBLE

AGENCY

  

REGULATED

ACTIVITY

  

TECHNICAL
INFORMATION

NEEDED FOR

APPLICATION

  

DATE
REQUIRED

  

COMMENTS

State threatened and endangered species clearance    NEPA/FERC    Texas Parks and Wildlife Department (TPWD)    Assessment of site habitation by listed (threatened or endangered) species    Consultation    NTP or as specified in FERC Authorization   

Submitted: 01/13/12

Received: 08/22/12

Historic Preservation Approval    Section 106 of the National Historic Preservation Act of 1966    Texas Historical Commission    Federal oversight requires compliance with Section 106   

Phase I Survey Report

Unanticipated Discoveries Plan

   NTP or as specified in FERC Authorization   

Submitted: 01/13/12

Received: 08/15/12

Letter Order Authorizing Start-up of Liquefaction Train    FERC Order    U.S. Federal Energy Regulatory Commission (FERC)    LNG Facility    Environmental Resource Reports 1-13 submitted with FERC Application and subsequent environmental info requests.    Prior to Start-up   

 

Q-6


ATTACHMENT R

STAGE 1 FORM OF IRREVOCABLE, STANDBY LETTER OF CREDIT

[to be issued on letterhead of Issuing Bank]

IRREVOCABLE STANDBY LETTER OF CREDIT NO.             

DATE: [                    ]

AMOUNT OF: U.S.$ [        ]

 

BENEFICIARY:    APPLICANT AND ACCOUNT PARTY:
CORPUS CHRISTI LIQUEFACTION, LLC    BECHTEL OIL, GAS AND CHEMICALS, INC.
700 MILAM, SUITE 800    3000 POST OAK BOULEVARD
HOUSTON, TEXAS 77002    HOUSTON, TEXAS 77056
FACSIMILE: ***    FACSIMILE: ***
ATTN: ***    ATTN: [                    ]

WE HEREBY ISSUE OUR IRREVOCABLE STANDBY LETTER OF CREDIT NO.          (THIS “LETTER OF CREDIT”) IN FAVOR OF CORPUS CHRISTI LIQUEFACTION, LLC, AS BENEFICIARY, FOR AN INITIAL AMOUNT OF FIVE HUNDRED SIXTY SIX MILLION, FOUR HUNDRED SIXTY SIX THOUSAND, FOUR HUNDRED U.S. DOLLARS ($566,466,400) (THE “STATED AMOUNT”) AT THE REQUEST AND FOR THE ACCOUNT OF BECHTEL OIL, GAS AND CHEMICALS, INC., AS APPLICANT.

WE ARE INFORMED THAT THIS LETTER OF CREDIT IS ISSUED ON BEHALF OF THE APPLICANT TO SUPPORT APPLICANT’S OBLIGATIONS UNDER THAT CERTAIN FIXED PRICE SEPARATED TURNKEY AGREEMENT FOR THE ENGINEERING, PROCUREMENT AND CONSTRUCTION OF THE CORPUS CHRISTI STAGE 1 LIQUEFACTION FACILITY, DATED AS OF [             , 20    ], BY AND BETWEEN APPLICANT AND BENEFICIARY (AS AMENDED, RESTATED, SUPPLEMENTED OR OTHERWISE MODIFIED FROM TIME TO TIME, THE “AGREEMENT”).

FUNDS UNDER THIS LETTER OF CREDIT ARE AVAILABLE BY PAYMENT AGAINST THE PRESENTATION OF YOUR DRAFT(S) DRAWN AT SIGHT ON [INSERT ISSUING BANK’S NAME AND ADDRESS] (THE “ISSUING BANK”) IN SUBSTANTIALLY THE FORM OF ANNEX I ATTACHED HERETO AND ACCOMPANIED BY A DRAWING CERTIFICATE DULY SIGNED IN SUBSTANTIALLY THE FORM OF ANNEX II OR ANNEX VI ATTACHED HERETO APPROPRIATELY COMPLETED. DOCUMENTS MUST BE PRESENTED TO ISSUING BANK IN ONE LOT.

PARTIAL DRAWINGS ARE PERMITTED. ALL BANKING CHARGES UNDER THIS LETTER OF CREDIT ARE FOR ACCOUNT OF THE APPLICANT.

THIS LETTER OF CREDIT IS TRANSFERABLE IN ITS ENTIRETY AND NOT IN PART, UPON NOTICE BY BENEFICIARY TO ISSUER, IN THE FORM OF ANNEX III ATTACHED HERETO APPROPRIATELY COMPLETED; PROVIDED, HOWEVER, THAT THIS LETTER OF CREDIT MAY NOT BE TRANSFERRED TO ANY PERSON IF SUCH TRANSFER TO, OR DRAWING UNDER THIS LETTER OF CREDIT BY, SUCH PERSON WOULD BE PROHIBITED OR BLOCKED UNDER ANY U.S. EXECUTIVE ORDER, LAW OR ANY RULE OR REGULATION OF THE OFFICE OF FOREIGN ASSETS CONTROL OF THE U.S. TREASURY DEPARTMENT OR THE U.S. COMMERCE DEPARTMENT, AND ANY ATTEMPTED TRANSFER WHICH VIOLATES THIS PROVISION SHALL BE NULL AND VOID.

THE STATED AMOUNT SHALL BE AUTOMATICALLY AND PERMANENTLY REDUCED BY THE AMOUNT OF ANY DRAWING RECEIVED BY BENEFICIARY PURSUANT TO THIS LETTER OF CREDIT [INSERT ENTIRE LETTER OF CREDIT REFERENCE, ALL NUMBERS AND LETTERS].

 

R-1


THE STATED AMOUNT OF THIS LETTER OF CREDIT SHALL DECREASE TO AN AGGREGATE AMOUNT OF FOUR HUNDRED TWENTY FOUR MILLION, EIGHT HUNDRED FORTY NINE THOUSAND, EIGHT HUNDRED U.S. DOLLARS ($424,849,800) AFTER ISSUING BANK’S RECEIPT FROM BENEFICIARY OF WRITTEN NOTICE THAT (A) SUBSTANTIAL COMPLETION OF SUBPROJECT 1 HAS OCCURRED, (B) CONTRACTOR HAS PAID ALL DELAY LIQUIDATED DAMAGES OWED FOR SUBPROJECT 1, AND (C) CONTRACTOR HAS ACHIEVED THE PERFORMANCE GUARANTEE FOR SUBPROJECT 1 OR PAID ALL PERFORMANCE LIQUIDATED DAMAGES FOR SUBPROJECT 1, WHICH SHALL BE IN SUBSTANTIALLY THE FORM OF ANNEX IV ATTACHED HERETO APPROPRIATELY COMPLETED.

THE STATED AMOUNT OF THIS LETTER OF CREDIT SHALL DECREASE TO AN AGGREGATE AMOUNT OF TWO HUNDRED EIGHTY THREE MILLION, TWO HUNDRED THIRTY THREE THOUSAND, TWO HUNDRED U.S. DOLLARS ($283,233,200) AFTER ISSUING BANK’S RECEIPT FROM BENEFICIARY OF WRITTEN NOTICE THAT (A) SUBSTANTIAL COMPLETION OF SUBPROJECT 2 HAS OCCURRED, (B) CONTRACTOR HAS PAID ALL DELAY LIQUIDATED DAMAGES OWED FOR SUBPROJECT 2, AND (C) CONTRACTOR HAS ACHIEVED THE PERFORMANCE GUARANTEE FOR SUBPROJECT 2 OR PAID ALL PERFORMANCE LIQUIDATED DAMAGES FOR SUBPROJECT 2, WHICH SHALL BE IN SUBSTANTIALLY THE FORM OF ANNEX IV ATTACHED HERETO APPROPRIATELY COMPLETED. THE STATED AMOUNT OF THIS LETTER OF CREDIT SHALL DECREASE TO AN AGGREGATE AMOUNT OF ONE HUNDRED FORTY ONE MILLION, SIX HUNDRED SIXTEEN THOUSAND, SIX HUNDRED U.S. DOLLARS ($141,616,600) THIRTY (30) DAYS AFTER ISSUING BANK’S RECEIPT FROM BENEFICIARY WRITTEN NOTICE OF THE EXPIRATION OF THE DEFECT CORRECTION PERIOD FOR SUBPROJECT 1, WHICH SHALL BE IN SUBSTANTIALLY THE FORM OF ANNEX VII ATTACHED HERETO APPROPRIATELY COMPLETED.

THIS LETTER OF CREDIT SHALL EXPIRE ON [            , 20    ] BUT SUCH EXPIRATION DATE SHALL BE AUTOMATICALLY EXTENDED FOR A PERIOD OF ONE YEAR ON [            , 20    ], AND ON EACH SUCCESSIVE EXPIRATION DATE THEREAFTER, UNLESS (A) AT LEAST 90 CALENDAR DAYS BEFORE THE THEN CURRENT EXPIRATION DATE WE NOTIFY BOTH BENEFICIARY AND APPLICANT, BY CERTIFIED MAIL, AT THEIR RESPECTIVE ADDRESSES SET FORTH ABOVE, THAT WE HAVE DECIDED NOT TO EXTEND THIS LETTER OF CREDIT BEYOND THE THEN CURRENT EXPIRATION DATE, OR (B) BEFORE THE THEN CURRENT EXPIRATION DATE, BENEFICIARY PROVIDES WRITTEN NOTICE TO US IN SUBSTANTIALLY THE FORM OF ANNEX V (I) OF THE EXPIRATION OF THE “DEFECT CORRECTION PERIOD” FOR SUBPROJECT 2 (AS DEFINED IN THE AGREEMENT), OR (II) THAT THE AGREEMENT HAS OTHERWISE EXPIRED. IN THE EVENT BENEFICIARY IS SO NOTIFIED BY US PURSUANT TO CLAUSE (A) OF THE IMMEDIATELY PRECEDING SENTENCE, ANY UNUSED PORTION OF THIS LETTER OF CREDIT SHALL BE IMMEDIATELY AVAILABLE FOR PAYMENT TO BENEFICIARY UPON BENEFICIARY’S PRESENTMENT OF DRAFTS DRAWN AT SIGHT IN SUBSTANTIALLY THE FORM OF ANNEX I AND ANNEX VI ATTACHED HERETO APPROPRIATELY COMPLETED NO EARLIER THAN THIRTY (30) CALENDAR DAYS PRIOR TO THE THEN CURRENT EXPIRATION DATE.

IF WE RECEIVE YOUR DRAFT AND DRAWING CERTIFICATE IN FULL COMPLIANCE WITH THE TERMS AND CONDITIONS OF THIS LETTER OF CREDIT AT OR BEFORE 12:00 NOON NEW YORK TIME ON A BUSINESS DAY, WE WILL HONOR YOUR DEMAND FOR PAYMENT NO LATER THAN THE CLOSE OF BUSINESS ON THE NEXT FOLLOWING BUSINESS DAY. IF WE RECEIVE YOUR DRAFT AND DRAWING CERTIFICATE IN FULL COMPLIANCE WITH THE TERMS AND CONDITIONS OF THIS LETTER OF CREDIT AFTER 12:00 NOON NEW YORK TIME ON A BUSINESS DAY, WE WILL HONOR YOUR DEMAND FOR PAYMENT NO LATER THAN THE CLOSE OF

 

R-2


BUSINESS ON THE SECOND BUSINESS DAY FOLLOWING SUCH RECEIPT. “BUSINESS DAY” MEANS ANY DAY OTHER THAN A SATURDAY, A SUNDAY OR ANY OTHER DAY COMMERCIAL BANKS IN THE UNITED STATES OF AMERICA ARE AUTHORIZED OR REQUIRED TO BE CLOSED, AND A DAY ON WHICH PAYMENTS CAN BE EFFECTED ON THE FEDWIRE SYSTEM.

IF A DEMAND FOR PAYMENT MADE BY BENEFICIARY HEREUNDER DOES NOT, IN ANY INSTANCE, CONFORM TO THE TERMS AND CONDITIONS OF THIS LETTER OF CREDIT, THE ISSUER SHALL GIVE BENEFICIARY AND APPLICANT PROMPT NOTICE THAT THE DEMAND FOR PAYMENT WAS NOT EFFECTED IN ACCORDANCE WITH THE TERMS AND CONDITIONS OF THIS LETTER OF CREDIT, STATING THE REASONS THEREFORE AND THAT THE ISSUER WILL HOLD ANY DOCUMENTS AT BENEFICIARY’S DISPOSAL OR UPON BENEFICIARY’S INSTRUCTIONS RETURN THE SAME TO BENEFICIARY. UPON BEING NOTIFIED THAT THE DEMAND FOR PAYMENT WAS NOT EFFECTED IN CONFORMITY WITH THIS LETTER OF CREDIT, BENEFICIARY MAY ATTEMPT TO CORRECT ANY SUCH NON-CONFORMING DEMAND FOR PAYMENT.

WE WILL USE COMMERCIALLY REASONABLE EFFORTS TO PROMPTLY NOTIFY BENEFICIARY AND APPLICANT IF WE FILE A PETITION UNDER ANY BANKRUPTCY, INSOLVENCY, OR SIMILAR LAW OR IF WE HAVE AN INVOLUNTARY PETITION UNDER ANY BANKRUPTCY, INSOLVENCY, OR SIMILAR LAW FILED AGAINST US, AND SUCH PROCEEDING IS NOT DISMISSED OR STAYED ON OR BEFORE THE 60TH COURT DAY AFTER ENTRY THEREOF; PROVIDED THAT TO THE EXTENT OF ANY TELEVISION PROGRAM, NEWSPAPER OR OTHER PUBLICATION PROVIDES ANY COVERAGE REGARDING ANY SUCH PETITION, WE SHALL BE DEEMED TO HAVE PROVIDED ANY NOTICES THAT ARE REQUIRED HEREIN. FOR THE WRITTEN NOTICE SPECIFIED IN PARAGRAPH 2 OF ANNEX II, THE CONTENTS OF SUCH NOTICE OR INVOICE, AS THE CASE MAY BE, SHALL NOT BE CONSIDERED AS A TERM OF DRAWING. THE ONLY PURPOSE FOR PRESENTATION OF SUCH NOTICE OR INVOICE IS TO NOTE THE DATE ON SUCH NOTICE OR INVOICE AND TO VERIFY THAT AT LEAST TEN (10) CALENDAR DAYS HAVE ELAPSED SINCE ISSUANCE OF THE NOTICE OR RECEIPT OF THE INVOICE.

EXCEPT AS OTHERWISE EXPRESSLY STATED HEREIN, THIS LETTER OF CREDIT IS SUBJECT TO THE INTERNATIONAL STANDBY PRACTICES (1998), INTERNATIONAL CHAMBER OF COMMERCE PUBLICATION NO. 590 (“ISP98”), WHICH SHALL IN ALL RESPECTS BE DEEMED A PART HEREOF AS FULLY AS IF INCORPORATED IN FULL HEREIN, EXCEPT AS MODIFIED HEREBY. THIS LETTER OF CREDIT IS ALSO SUBJECT TO THE LAWS OF THE STATE OF NEW YORK AND SHALL, AS TO MATTERS NOT GOVERNED BY ISP98, BE GOVERNED AND CONSTRUED IN ACCORDANCE WITH THE LAWS OF SUCH STATE, WITHOUT REGARD TO PRINCIPLES OF CONFLICTS OF LAW THAT WOULD REQUIRE THE APPLICATION OF THE LAW OF ANOTHER JURISDICTION. THE UNCITRAL CONVENTION ON INDEPENDENT GUARANTEES AND STANDBY LETTERS OF CREDIT DOES NOT APPLY TO THIS LETTER OF CREDIT.

THIS LETTER OF CREDIT SETS FORTH IN FULL THE TERMS OF OUR UNDERTAKING AND SUCH UNDERTAKING SHALL NOT IN ANY WAY BE MODIFIED OR AMPLIFIED BY REFERENCE TO ANY DOCUMENT, INSTRUMENT, OR AGREEMENT REFERRED TO HEREIN OTHER THAN ISP98.

 

[NAME OF ISSUING U.S. BANK]
BY:  

 

NAME:  

 

TITLE:  

 

BY:  

 

NAME:  

 

TITLE:  

 

 

R-3


ANNEX I

IRREVOCABLE STANDBY LETTER OF CREDIT NUMBER             

DRAFT

            , 20    

PAY AT SIGHT TO ORDER OF OURSELVES                                          AND         /100 U.S. DOLLARS (U.S.$        ). THIS DRAFT IS PRESENTED UNDER IRREVOCABLE STANDBY LETTER OF CREDIT NO.         DATED             , ISSUED FOR THE ACCOUNT OF BECHTEL OIL, GAS AND CHEMICALS, INC.

 

TO: [ISSUING BANK NAME]

[ISSUING BANK ADDRESS]

 

CORPUS CHRISTI LIQUEFACTION, LLC
By:  

 

Name:  

 

Title:  

 

 

R-4


ANNEX II

IRREVOCABLE STANDBY LETTER OF CREDIT NUMBER             

DRAWING CERTIFICATE

 

TO: [ISSUING BANK NAME]

[ISSUING BANK ADDRESS]

RE: IRREVOCABLE STANDBY LETTER OF CREDIT NO.          FOR THE STAGE 1 EPC AGREEMENT

GENTLEMEN:

REFERENCE IS MADE TO THAT CERTAIN IRREVOCABLE STANDBY LETTER OF CREDIT NO.          (THE “LETTER OF CREDIT”) ISSUED BY YOU IN FAVOR OF CORPUS CHRISTI LIQUEFACTION, LLC (“BENEFICIARY”).

IN ACCORDANCE WITH THAT CERTAIN FIXED PRICE SEPARATED TURNKEY AGREEMENT FOR THE ENGINEERING, PROCUREMENT AND CONSTRUCTION OF THE CORPUS CHRISTI STAGE 1 LIQUEFACTION FACILITY, DATED AS OF [            , 20    ] BY AND BETWEEN BENEFICIARY AND BECHTEL OIL, GAS AND CHEMICALS, INC. (“APPLICANT”) (AS AMENDED, RESTATED, SUPPLEMENTED OR OTHERWISE MODIFIED FROM TIME TO TIME, THE “AGREEMENT”), THE UNDERSIGNED, AN OFFICER OF BENEFICIARY, DOES HEREBY CERTIFY THAT:

1. APPLICANT OWES BENEFICIARY LIQUIDATED DAMAGES IN ACCORDANCE WITH THE AGREEMENT, OR APPLICANT OWES BENEFICIARY ANY OTHER LIABILITIES, DAMAGES, LOSSES, COSTS OR EXPENSES ARISING OUT OF OR RELATING TO A BREACH OF ANY OBLIGATION UNDER THE AGREEMENT OR A DEFAULT OR OTHERWISE; AND

2. AT LEAST TEN (10) CALENDAR DAYS PRIOR TO THE DATE OF THIS CERTIFICATE, EITHER: (A) BENEFICIARY HAS PROVIDED WRITTEN NOTICE TO APPLICANT (A COPY OF WHICH IS ATTACHED) STATING BENEFICIARY’S INTENT TO DRAW AGAINST THE LETTER OF CREDIT AND THE AMOUNT TO BE DRAWN AND SPECIFYING THE GENERAL NATURE OF SUCH LIQUIDATED DAMAGES OR SUCH LIABILITIES, DAMAGES, LOSSES, COSTS OR EXPENSES OWED TO BENEFICIARY FOR SUCH BREACH OR SUCH DEFAULT OR OTHERWISE, OR (B) APPLICANT HAS RECEIVED FROM BENEFICIARY AN INVOICE (A COPY OF WHICH IS ATTACHED) FOR LIQUIDATED DAMAGES OWED TO BENEFICIARY IN ACCORDANCE WITH THE AGREEMENT AND APPLICANT HAS NOT PAID ALL OF SUCH INVOICED LIQUIDATED DAMAGES WITHIN TEN (10) DAYS OF RECEIPT OF SUCH INVOICE; AND

3. BENEFICIARY IS ENTITLED TO PAYMENT OF U.S.$[        ].

YOU ARE REQUESTED TO REMIT PAYMENT OF THIS DRAWING IN IMMEDIATELY AVAILABLE FUNDS BY WIRE TRANSFER TO THE FOLLOWING ACCOUNT:

[ACCOUNT INFORMATION]

IN WITNESS WHEREOF, THE UNDERSIGNED HAS EXECUTED AND DELIVERED THIS CERTIFICATE AS OF THIS      DAY OF             , 20    .

 

CORPUS CHRISTI LIQUEFACTION, LLC
BY:  

 

NAME:  

 

TITLE:  

 

 

R-5


ANNEX III

IRREVOCABLE STANDBY LETTER OF CREDIT NUMBER             

FORM OF TRANSFER REQUEST FOR STAGE 1

DATE:                                         

 

TO:    [ISSUING BANK]
   [ISSUING BANK ADDRESS]

 

RE:    IRREVOCABLE STANDBY LETTER OF CREDIT NO.              FOR STAGE 1

GENTLEMEN:

FOR VALUE RECEIVED, THE UNDERSIGNED BENEFICIARY HEREBY IRREVOCABLY TRANSFERS TO:

 

 

NAME OF TRANSFEREE

 

 

ADDRESS

 

 

ALL RIGHTS OF THE UNDERSIGNED BENEFICIARY TO DRAW UNDER THE ABOVE LETTER OF CREDIT IN ITS ENTIRETY.

BY THIS TRANSFER, ALL RIGHTS OF THE UNDERSIGNED BENEFICIARY IN SUCH LETTER OF CREDIT ARE TRANSFERRED TO THE TRANSFEREE AND THE TRANSFEREE SHALL HAVE THE SOLE RIGHTS AS BENEFICIARY THEREOF, INCLUDING SOLE RIGHTS RELATING TO ANY AMENDMENTS WHETHER INCREASES OR EXTENSIONS OR OTHER AMENDMENTS AND WHETHER NOW EXISTING OR HEREAFTER MADE. ALL AMENDMENTS ARE TO BE ADVISED TO DIRECT TO THE TRANSFEREE WITHOUT NECESSITY OF ANY CONSENT OF OR NOTICE TO THE UNDERSIGNED BENEFICIARY.

THE ORIGINAL OF SUCH LETTER OF CREDIT IS RETURNED HEREWITH, AND WE ASK YOU TO ENDORSE THE TRANSFER ON THE REVERSE HEREOF, AND FORWARD IT DIRECT TO THE TRANSFEREE WITH YOUR CUSTOMARY NOTICE OF TRANSFER.

ENCLOSED IS REMITTANCE OF U.S.$[        ] VIA CERTIFIED CHECK IN PAYMENT OF YOUR TRANSFER COMMISSION AND IN ADDITION THERETO WE AGREE TO PAY TO YOU ON DEMAND ANY EXPENSES WHICH MAY BE INCURRED BY YOU IN CONNECTION WITH THIS TRANSFER.

 

SINCERELY,
CORPUS CHRISTI LIQUEFACTION, LLC

 

AUTHORIZED NAME & TITLE

 

AUTHORIZED SIGNATURE

 

TELEPHONE NUMBER

 

R-6


THE ABOVE SIGNATURE, WITH TITLE AS STATED, CONFORMS WITH THAT ON FILE WITH US AND IS AUTHORIZED FOR EXECUTION OF SUCH INSTRUMENTS.

 

   NAME & ADDRESS OF BANK   

 

  

 

 

   AUTHORIZED NAME & TITLE   

 

 

   AUTHORIZED SIGNATURE   

 

 

   TELEPHONE NO.   

 

THIS FORM MUST BE EXECUTED IN DUPLICATE.

 

    

(a)       FOR BANK USE ONLY

     Confirmation of Authenticating Bank’s signature performed by:
    

 

     Date:  

 

    Time:  

 

  a.m./p.m.
     Addl Info.:  

 

 

R-7


ANNEX IV

IRREVOCABLE STANDBY LETTER OF CREDIT NUMBER             

FORM OF NOTICE OF SUBSTANTIAL COMPLETION FOR SUBPROJECT [    ]

 

DATE:  
TO:   [ISSUING BANK NAME]
  [ISSUING BANK ADDRESS]
RE:   IRREVOCABLE STANDBY LETTER OF CREDIT NO.              FOR STAGE 1

GENTLEMEN:

REFERENCE IS MADE TO THAT CERTAIN IRREVOCABLE STANDBY LETTER OF CREDIT NO.             (THE “LETTER OF CREDIT”) ISSUED BY YOU IN FAVOR OF CORPUS CHRISTI LIQUEFACTION, LLC. (“BENEFICIARY”), AND THE FIXED PRICE SEPARATED TURNKEY AGREEMENT FOR THE ENGINEERING, PROCUREMENT AND CONSTRUCTION OF THE CORPUS CHRISTI STAGE 1 LIQUEFACTION FACILITY DATED AS OF [            , 20    ] BY AND BETWEEN BENEFICIARY AND BECHTEL OIL, GAS AND CHEMICALS, INC. (AS AMENDED, RESTATED, SUPPLEMENTED OR OTHERWISE MODIFIED FROM TIME TO TIME).

IN ACCORDANCE WITH THE TERMS OF THE LETTER OF CREDIT, BENEFICIARY HEREBY NOTIFIES YOU THAT (A) SUBSTANTIAL COMPLETION OF SUBPROJECT [            ]HAS OCCURRED, (B) CONTRACTOR HAS PAID ALL DELAY LIQUIDATED DAMAGES OWED FOR SUCH SUBPROJECT, AND (C) CONTRACTOR HAS ACHIEVED THE PERFORMANCE GUARANTEE FOR SUCH SUBPROJECT OR PAID ALL PERFORMANCE LIQUIDATED DAMAGES FOR SUCH SUBPROJECT.

THE UNDERSIGNED HEREBY REQUESTS THAT THE STATED AMOUNT OF THIS LETTER OF CREDIT DECREASE TO AN AGGREGATE AMOUNT OF U.S. DOLLARS ($[        ]).

 

CORPUS CHRISTI LIQUEFACTION, LLC
By:  

 

Name:  

 

Title:  

 

 

R-8


ANNEX V

IRREVOCABLE STANDBY LETTER OF CREDIT NUMBER             

FORM OF NOTICE FOR EXPIRATION OF DEFECT CORRECTION PERIOD FOR SUBPROJECT 2

OR EXPIRATION OF TERM OF AGREEMENT

 

DATE:  
TO:   [ISSUING BANK NAME]
  [ISSUING BANK ADDRESS]
RE:   IRREVOCABLE STANDBY LETTER OF CREDIT NO.              FOR STAGE 1

GENTLEMEN:

REFERENCE IS MADE TO THAT CERTAIN IRREVOCABLE STANDBY LETTER OF CREDIT NO.             (THE “LETTER OF CREDIT”) ISSUED BY YOU IN FAVOR OF CORPUS CHRISTI LIQUEFACTION, LLC. (“BENEFICIARY”).

IN ACCORDANCE WITH THE TERMS OF THE LETTER OF CREDIT, BENEFICIARY HEREBY NOTIFIES YOU OF (A) THE EXPIRATION OF THE DEFECT CORRECTION PERIOD FOR SUBPROJECT 2 OR (B) THE EXPIRATION OF THE TERM OF THE FIXED PRICE SEPARATED TURNKEY AGREEMENT FOR THE ENGINEERING, PROCUREMENT AND CONSTRUCTION OF THE CORPUS CHRISTI STAGE 1 LIQUEFACTION FACILITY DATED AS OF [            , 20    ], BY AND BETWEEN BENEFICIARY AND BECHTEL OIL, GAS AND CHEMICALS, INC. (AS AMENDED, RESTATED, SUPPLEMENTED OR OTHERWISE MODIFIED FROM TIME TO TIME).

THE UNDERSIGNED HEREBY REQUESTS TERMINATION OF THIS LETTER OF CREDIT AND CONFIRMATION TO APPLICANT OF SAID TERMINATION.

THE LETTER OF CREDIT SHALL EXPIRE ON [            ], 20[    ].

 

CORPUS CHRISTI LIQUEFACTION, LLC
By:  

 

Name:  

 

Title:  

 

 

R-9


ANNEX VI

IRREVOCABLE STANDBY LETTER OF CREDIT NUMBER             

DRAWING CERTIFICATE FOR STAGE 1

            , 20    

 

TO:   [ISSUING BANK NAME]
  [ISSUING BANK ADDRESS]

 

RE:    IRREVOCABLE STANDBY LETTER OF CREDIT NO.              FOR STAGE 1

GENTLEMEN:

REFERENCE IS MADE TO THAT CERTAIN IRREVOCABLE STANDBY LETTER OF CREDIT NO.             (THE “LETTER OF CREDIT”) ISSUED BY YOU IN FAVOR OF CORPUS CHRISTI LIQUEFACTION, LLC (“BENEFICIARY”).

IN ACCORDANCE WITH THAT CERTAIN FIXED PRICE SEPARATED TURNKEY AGREEMENT FOR THE ENGINEERING, PROCUREMENT AND CONSTRUCTION OF THE CORPUS CHRISTI STAGE 1 LIQUEFACTION FACILITY DATED AS OF [            , 20    ], BY AND BETWEEN BENEFICIARY AND BECHTEL OIL, GAS AND CHEMICALS, INC. (“APPLICANT”) (AS AMENDED, RESTATED, SUPPLEMENTED OR OTHERWISE MODIFIED FROM TIME TO TIME, THE “AGREEMENT”), THE UNDERSIGNED, AN OFFICER OF BENEFICIARY, DOES HEREBY CERTIFY THAT:

1. BENEFICIARY HAS BEEN NOTIFIED THAT YOU HAVE DECIDED NOT TO EXTEND THE LETTER OF CREDIT BEYOND THE CURRENT EXPIRATION DATE;

2. APPLICANT HAS NOT DELIVERED TO BENEFICIARY A REPLACEMENT LETTER OF CREDIT SUBSTANTIALLY IDENTICAL TO THE LETTER OF CREDIT (I.E., IRREVOCABLE STANDBY LETTER OF CREDIT NO.             ) FROM A COMMERCIAL BANK IN THE UNITED STATES OF AMERICA RATED AT LEAST A- BY STANDARD & POOR’S AND AT LEAST A3 BY MOODY’S INVESTORS SERVICES, AND THIRTY (30) OR LESS CALENDAR DAYS REMAIN BEFORE THE EXPIRATION OF THE CURRENT EXPIRATION DATE; AND

3. BENEFICIARY IS ENTITLED TO PAYMENT OF U.S.$[        ].

YOU ARE REQUESTED TO REMIT PAYMENT OF THIS DRAWING IN IMMEDIATELY AVAILABLE FUNDS BY WIRE TRANSFER TO THE FOLLOWING ACCOUNT:

[ACCOUNT INFORMATION]

IN WITNESS WHEREOF, THE UNDERSIGNED HAS EXECUTED AND DELIVERED THIS CERTIFICATE AS OF THIS      DAY OF             , 20    .

 

CORPUS CHRISTI LIQUEFACTION, LLC
By:  

 

Name:  

 

Title:  

 

 

R-10


ANNEX VII

IRREVOCABLE STANDBY LETTER OF CREDIT NUMBER             

FORM OF NOTICE OF EXPIRATION OF DEFECT CORRECTION PERIOD FOR SUBPROJECT 1

DATE:                     

 

TO:    [ISSUING BANK NAME]
   [ISSUING BANK ADDRESS]

 

RE:    IRREVOCABLE STANDBY LETTER OF CREDIT NO.              FOR STAGE 1

GENTLEMEN:

REFERENCE IS MADE TO THAT CERTAIN IRREVOCABLE STANDBY LETTER OF CREDIT NO.              (THE “LETTER OF CREDIT”) ISSUED BY YOU IN FAVOR OF CORPUS CHRISTI LIQUEFACTION, LLC. (“BENEFICIARY”), AND THE LUMP SUM TURNKEY AGREEMENT FOR THE ENGINEERING, PROCUREMENT AND CONSTRUCTION OF THE CORPUS CHRISTI STAGE 1 LIQUEFACTION FACILITY DATED AS OF [            ], 20[    ], BY AND BETWEEN BENEFICIARY AND BECHTEL OIL, GAS AND CHEMICALS, INC. (AS AMENDED, RESTATED, SUPPLEMENTED OR OTHERWISE MODIFIED FROM TIME TO TIME).

IN ACCORDANCE WITH THE TERMS OF LETTER OF CREDIT, BENEFICIARY HEREBY NOTIFIES YOU THAT THE DEFECT CORRECTION PERIOD FOR SUBPROJECT 1 HAS EXPIRED.

THE UNDERSIGNED HEREBY REQUESTS THAT THE STATED AMOUNT OF THIS LETTER OF CREDIT DECREASE TO AN AGGREGATE AMOUNT OF [              U.S. DOLLARS ($         )].

 

CORPUS CHRISTI LIQUEFACTION, LLC
By:  

 

Name:  

 

Title:  

 

 

R-11


ATTACHMENT S

STAGE 1 PERFORMANCE TESTS AND COMMISSIONING TESTS

Table of Contents

 

1.        INTRODUCTION

     2   

1.1             PURPOSE

     2   

1.2             DEFINITIONS

     2   

2.        PERFORMANCE TEST

     2   

2.1             GENERAL

     2   

2.2             PERFORMANCE TEST REPORTS

     3   

2.3             PURPOSE OF LNG PRODUCTION RATE PERFORMANCE TEST

     3   

2.4             LNG PRODUCTION RATE GUARANTEE CONDITIONS

     3   

2.5             PERFORMANCE TEST PROCEDURES; MEASUREMENT AND CALCULATION METHODS

     4   

3.      COMMISSIONING TESTS

     6   

3.1             PURPOSE OF TESTS

     6   

3.2             LIQUEFACTION FACILITY

     7   

3.3             UNIT 11 – LNG TRAIN INLET FEED GAS METERING

     7   

3.4             UNIT 12 – ACID GAS REMOVAL AND AMINE REGENERATION

     8   

3.5             UNIT 13 – DEHYDRATION AND MERCURY REMOVAL

     8   

3.6             ***

     9   

3.7             ***

     9   

3.8             UNIT 19 – FLARE AND THERMAL OXIDATION SYSTEM

     9   

3.9             UNIT 21 – GASOLINE AND DIESEL STORAGE

     9   

3.10           UNIT 22 – FUEL GAS SYSTEM

     9   

3.11           UNIT 23 – CONDENSATE STORAGE AND LOADING

     10   

THIS TEST IS TO DEMONSTRATE THAT THE CONDENSATE LOADING SYSTEM MEETS THE CONDENSATE FLOW AND LOADING RATE GUARANTEE AS SHOWN IN PROJECT SPECIFICATION PROCESS DESIGN BASIS

     10   

A SERIES OF COMPOSITION SAMPLES WILL BE TAKEN ALONG WITH UNIT CONDITIONS TO ILLUSTRATE THE UNITS ABILITY TO PRODUCE AND MAINTAIN THE REQUIRED COMPOSITION

     10   

3.12           UNIT 24 – BOIL OFF GAS RECYCLE COMPRESSORS, PIPELINE COMPRESSOR & LNG STORAGE/SHIP LOADING

     10   

3.13           UNIT 29 – H2S TREATMENT UNIT

     11   

3.14           UNIT 31 – POWER GENERATION

     12   

3.15           UNIT 33 – FIRE PROTECTION SYSTEM

     12   

3.16           UNIT 35 – PLANT AND INSTRUMENT AIR

     12   

3.17           UNIT 36 – WATER SYSTEMS

     12   

3.18           UNIT 40 – CONTROL / OPERATIONS BUILDING, MAINTENANCE BUILDING, WAREHOUSE, REMOTE OPERATION BUILDING AND GUARD HOUSE

     13   

3.19           UNIT 47 – TURBINE AIR HUMIDIFICATION SYSTEM

     13   

3.20           UNIT 39 – NITROGEN SYSTEM

     13   

 

S-1


1. INTRODUCTION

1.1 Purpose

The purpose of this document is to establish the testing philosophy and outline the minimum requirements for the Performance Tests and Commissioning Tests that Contractor must perform as part of the Work. This Attachment S specifies the minimum requirements for the Performance Test Procedures in Section 2 below and Commissioning Test Procedures in Section 3 below.

1.2 Definitions

In addition to other defined terms in the Agreement, the following capitalized terms have the meanings specified below.

Commissioning Tests means the tests performed (including any repetition thereof) during the commissioning phase, including those set forth in Section 3 of this Attachment S, to demonstrate that the applicable Equipment or system is ready for use to receive Natural Gas and produce LNG for Performance Tests.

Commissioning Test Procedures” has the meaning set forth in Section 3.1 of this Attachment S.

Fuel Gas Consumption” is defined as the sum of the readings of the flow measurement devices on the high pressure fuel gas systems to the gas turbine compressor drivers (11PK-2201/12PK-2201) and the low pressure gas system (11PK-2202/12PK-2202) in the LNG Trains, multiplied by their respective heating values (HHV) as based on chromatographic analysis as described in paragraph 2.5 (below).

LNG Production Rate Performance Test has the meaning set forth in Section 2 of this Attachment S.

Ship Loading Time” means the time actually required to load a specified volume of LNG into an LNG ship at the LNG berth.

2. PERFORMANCE TEST

2.1 General

The following sets forth general parameters for the Performance Test that Contractor must perform as part of the Scope of Work in order to determine whether the Minimum Acceptance Criteria (“MAC”) and Performance Guarantee prescribed in Sections 2 and 3 of Attachment T have been achieved. The Parties shall agree, in accordance with the provisions of Section 11.2 of the Agreement, upon detailed procedures for the Performance Test (“Performance Test Procedures”).

The LNG Production Rate Performance Guarantee specified in Attachment T, Section 2A and the LNG Production Rate MAC specified in Attachment T, Section 3A are based on Case CC1 – High Aromatics, Average Ambient Temperature with the Heavies Removal Column in operation. Owner and Contractor agree that the LNG Production Rate Performance Guarantee, the LNG Production Rate MAC and associated documents (including the Basis of Design (Document no. 25744-200-M4-DK-00101 rev. 04) and Process Design Basis (Document no. 25744-200-3DR-V04F—00001 rev. 000)) will be revised to reflect a new case (the “Lean Gas Case”) with the Heavies Removal Column operated cold with no reflux. For such revisions, the Parties

 

S-2


shall, both acting reasonably and in good faith, revise the LNG Production Rate Performance Guarantee, the LNG Production Rate MAC and associated documents (including the Basis of Design and Process Design Basis) with such changes implemented through a Change Order in accordance with the Agreement no later than the NTP.

2.2 Performance Test Reports

Contractor shall submit to Owner a report upon completion of each Performance Test that, at a minimum, complies with the requirements of Section 11.2 of the Agreement. Each such report shall include a copy of the Performance Test Procedures and a summary of the results. Each such report shall include an evaluation showing that the Performance Guarantee, Minimum Acceptance Criteria, Guarantee Conditions and other design limits have been met. In addition, Contractor shall issue a test completion certificate to Owner for signature upon completion of each of the Performance Tests; provided that, Owner’s signature upon such certificate shall not constitute an acceptance of the Performance Test nor the results, shall not waive Owner’s rights under the Agreement nor relieve Contractor of its obligations under the Agreement.

2.3 Purpose of LNG Production Rate Performance Test.

A Performance Test (“LNG Production Rate Performance Test”) shall be conducted to determine whether the LNG Train has achieved the LNG Production Rate Performance Guarantee or the LNG Production Rate Minimum Acceptance Criteria specified in Sections 2 and 3 of Attachment T. The LNG Production Rate Performance Test shall be conducted in accordance with the LNG Production Rate Guarantee Conditions specified in Section 2.4 and the Performance Test Procedures specified in Section 2.5 of this Attachment S.

2.4 LNG Production Rate Guarantee Conditions.

The conditions upon which the LNG Production Rate Performance Guarantee and the LNG Production Rate MAC are based (“LNG Production Rate Guarantee Conditions”) are as follows:

 

  1. At the pipeline battery limit, the composition of the Feed Gas will be within the range of feed gas compositions shown in FEED Document no. 25744-100-3DR-V04F-00001 rev 0, “General Specification for Process Design Basis”, paragraph 3.2. The pressure of the Feed Gas and temperature of the Feed Gas and flow availability of the Feed Gas will be within the Feed Gas design ranges specified in FEED Document no. 3BD-M04-00002 rev 04, “Basis of Design (BOD) Summary,” Table 1, item “2 Upstream Facilities (Rely Upon).

 

  2.

The refrigeration compressor gas turbine drivers shall deliver no more than their de-rated power. “De-rated power” is defined as the site available power minus the fouling and degradation deduction defined in FEED Document no. 3BD-M04-00002 rev 04, “Basis of Design

 

S-3


  (BOD) Summary,” Table 1, item 3.20. “Site available power” is defined as the gas turbine maximum power demonstrated at Site with the gas turbine in a new and clean condition, while operating within the maximum exhaust gas temperature limitation allowed by the applicable Equipment Subcontractor.

 

  3. Each individual refrigeration service will be controlled so that the average gas turbine power (averaged over the Performance Test period) is within ***% to ***% of its average de-rated power.

 

  4. During the continuous 72-hour period of the LNG Production Rate Performance Test, the following conditions must be met:

 

  a. No flaring or venting is permitted other than minor emergency flaring, up to a maximum of one hour duration in the aggregate;

 

  b. A ship is not being loaded;

 

  c. The loading line is being maintained cold, with adequate re-circulation;

 

  d. The compressor power is limited as stated in this Section 2.4 above; and

 

  e. No Natural Gas sourced from downstream of the LNG Train Feed Gas flow meter is being used for any use outside the envelope consisting of the Liquefaction Facility plus the LNG storage tanks and boiloff gas piping and equipment.

 

  5. Fuel Gas Consumption for the LNG Train shall not exceed *** (***%) of the Feed Gas rate as measured by the LNG Train Feed Gas flow meter during the LNG Production Rate Performance Test.

 

  6. The ambient air temperature averaged over the test period shall be within the range of “Design Minimum” and “Design Maximum” as specified in FEED Document no. 3BD-M04-00002 rev 04, “Basis of Design (BOD) Summary,” Table 2, item 8.1.

 

  7. Heavy removal column operates cold with no reflux. Debutanizer and condensate stabilizer are not operating. Liquid from heavy removal column bottoms is sent to high stage flash drum.

2.5 Performance Test Procedures; Measurement and Calculation Methods.

The Performance Test Procedures for the LNG Production Rate Performance Test, including the measurement and calculation methods, shall be in accordance with the following general parameters, subject to change only by mutual agreement of the Owner and Contractor in accordance with Section 21.2 of the Agreement.

 

  1. LNG production will be measured by the increase in the LNG in storage in MMbtu HHV as measured by the radar gauge for the applicable Tank(s) over a 72-hour continuous period. The LNG Tanks shall be strapped prior to commencement of the Performance Test.

 

S-4


  2. The LNG composition will be measured by sampling the product rundown and conducting a gas chromatographic analysis in accordance with GPA 2261. The in-tank composition after final flash will be calculated from this analysis using measured rundown and LNG tank temperatures and pressures and simulations undertaken with Hyprotech Corporation’s HYSYS, version 7.3, using the Peng Robinson/Lee Kesler physical properties package. The density of the LNG in the tanks will also be calculated from this composition using Hysys. The Btu content of the LNG will be calculated from the composition using data in GPA 2145.

 

  3. The Fuel Gas Consumption shall be calculated based on measurements from flow measurement devices of a mutually agreed type on the high and low pressure fuel gas systems and using the same chromatographic analysis methods and data described above. The flows will be corrected as appropriate for temperature and pressure differences from baseline calibration.

 

  4. Ambient temperature will be measured using the weather station located at Corpus Christi International Airport.

 

  5. Owner and Contractor shall confirm that the LNG Production Rate Guarantee Conditions: (i) have been satisfied prior to commencement of the LNG Production Rate Performance Test and (ii) continue to be satisfied during the conduct of the LNG Production Rate Performance Test. If, before or during the LNG Production Rate Performance Test, any deviation from the LNG Production Rate Guarantee Conditions occurs which is not caused by Contractor or its Subcontractors, then the Owner and Contractor shall meet to agree on (a) the technical viability of conducting the LNG Production Rate Performance Test and (b) any adjustments to the Performance Guarantee set forth in this Attachment S and Attachment T.

 

  6. The Performance Guarantee and Minimum Acceptance Criteria specified in Attachment S and Fuel Gas Consumption requirement described in paragraph 2.4 above are based on the following conditions:

 

  a) Ambient air temperature and wet bulb temperature are at “Design” condition as specified in Bechtel document no. 3BD-M04-00002 rev 04, “Basis of Design (BOD) Summary,” Table 2, item 8.1;

 

  b) Feed Gas supply pressure is at “Feed Gas Operating Pressure at Design Case” as specified in Bechtel document no. 3BD-M04-00002 rev 04, “Basis of Design (BOD) Summary,” Table 1, item 2.2, at the tie-in point specified in the same document item 2.3;

 

S-5


  c) Feed Gas supply temperature is at the “Average” condition as specified in Bechtel document no. 3BD-M04-00002 rev 04, “Basis of Design (BOD) Summary,” Table 1, item 2.5.2;

 

  d) Feed Gas composition is the “Design Case” composition as specified in Bechtel document no. 25744-200-3DR-V04F-00001 rev 0, “General Specification for Process Design Basis”, paragraph 3.2;

 

  e) V-1701 operates cold with no reflux. V-1702 and V-1810 are not operating. Liquid from V-1701 bottoms is sent to V-1602.

 

  7. If any of the conditions prevailing during the LNG Production Rate Performance Test are not in accordance with the conditions described in this Attachment S, Section 2.5, paragraphs 6a through 6e, then the Performance Guarantee and Minimum Acceptance Criteria described in Attachment T, and the Fuel Gas Consumption condition described in this Attachment S paragraph 2.4, paragraph 5, will be adjusted for such deviation(s) using the same process simulation model, software, thermodynamic data packages, methods, and principles used for the original design (i.e. Hyprotech Corporation’s HYSYS, version 7.3, using the Peng Robinson/Lee Kesler physical properties package).

 

  8. If the average gas turbine power measured over the test period deviates from the de-rated gas turbine power as specified in this Attachment S paragraph 2.4, paragraph 2, then the LNG Production Rate Test results will be adjusted proportionally to the ratio of de-rated gas turbine power to the average measured power upon mutual agreement of Owner and Contractor.

3. COMMISSIONING TESTS

3.1 Purpose of Tests

The Commissioning Tests are: (i) focused on individual Equipment or subsystems of Equipment; (ii) will be performed in accordance with the Project Commissioning Plan accepted by Owner in accordance with Section 4.4 of the Agreement; and (iii) will generally be done as soon as reasonably possible after the Equipment or subsystem of Equipment is put in operation and has shown performance suitable for testing. The Project Commissioning Plan shall specify the pre-commissioning and commissioning activities to be completed prior to the commencement of the Commissioning Tests and, at a minimum, include the Commissioning Tests specified below. The Project Commissioning Plan shall specify the scope, progression and sequence of these tests and whether the tests are dependent or independent of each other.

All Commissioning Tests must be completed in accordance with the Commissioning Test Procedures prior to commencing the Performance Tests; provided that, in the event Contractor is unable to complete a Commissioning Test and such inability will have no impact on the performance or results of

 

S-6


Performance Tests, Owner may, at its sole discretion, defer completion of such Commissioning Test so long as the Commissioning Test is completed prior to Substantial Completion.

During the Commissioning Tests, all systems will be operated in accordance with the requirements of the operating procedures.

3.2 Liquefaction Facility

3.2.1 LNG Train Feed Gas Meter.

The inlet metering system for the LNG Train will be calibrated and tested per the calibration audit manuals for the metering skid, by others.

3.2.2 Plant ESD/DPV.

These tests will be performed in accordance with the Functional Testing Procedures DPV, ESD.4, ESD.5, and ESD.6; shutdown devices will be checked for proper function prior to initial start-up of the system. These tests will verify that the Liquefaction Facility ESD, DPV systems provide emergency protection as designed. The test will include firstly, a Site Acceptance Test (SAT), for the entire Integrated Control and Safety System (ICSS). Secondly, a complete set of loop checks that include all systems will be completed as part of the test. Then finally, before introducing Natural Gas into the Equipment or system of Equipment for the first time, the DPV and ESD-4 will each be separately initiated by their control room push buttons and/or field push buttons.

3.2.3 Rated Case Demonstration (minimum Ambient).

A capacity evaluation test will be performed utilizing available power from the refrigerant turbines, and within the design limits of the Liquefaction Facility to validate as best as possible the assumptions around the minimum ambient rated case used to set the hydraulic limits of the Liquefaction Facility. The test results will be compared to the simulation case to evaluate margins to design limits and identify if any have been exceeded.

3.2.4 LNG Train Turndown Test.

The purpose of this test is to confirm the stability of the Liquefaction Facility when the inlet feed rate into the Liquefaction Facility is ***% of the design case inlet feed rate.

3.2.5 LNG First Cargo.

The purpose of this measurement is to confirm that Subproject 3 has achieved LNG first cargo as measured in accordance with Section 2.5.1 of this Attachment S.

3.3 Unit 11 – LNG Train Inlet Feed Gas Metering

The Natural Gas flowing into each LNG Train is to be measured by flow meter 11FQI-11003 for LNG Train 1, and flow meter 12FQI-1103 for LNG Train 2. These flow meters are to be calibrated and tested per meter system vendor calibration audit manuals.

 

S-7


3.4 Unit 12 – Acid Gas Removal and Amine Regeneration

Specific flows and duties will be updated based on AGRU licensor information.

3.4.1 Acid Gas Removal.

The CO2 acid gas removal system will be observed under normal operation when the LNG Train is running at a steady high capacity rate prior to the Performance Tests. Amine circulation and filter pressure drops will be observed. Amine solution will be sampled and checked for contaminants, solution strength, and acid gas loading (rich and lean).

3.4.2 Amine Regeneration.

Conditions at the regenerator reboilers will be observed. Regenerator reflux will be observed. The overhead product and acid gas vent stream shall be spot sampled. Currents of each pump motor while under load will be recorded. All these parameters shall be checked to ensure the design intent is met. Demonstration of the switching of the acid gas stream from the H2S removal Unit to the Thermal Oxidizer and back will also occur.

3.4.3 Hot Oil System.

Circulation and operation of the hot oil system will be checked against design parameters to verify functional compliance.

3.5 Unit 13 – Dehydration and Mercury Removal

3.5.1 Regeneration Gas Compressor.

This test will consist of verifying the manufacturer’s performance curve for the design point. The compressor will be observed for safe operation for its normal operating envelope.

3.5.2 Molecular Sieve Driers Sequence Control Function Test.

A full functional test will be observed twice; first just prior to startup for all three driers, and a second time during normal operation. The Molecular Sieve Dehydration system shall be operated to verify operation on the designated automatic schedule.

3.5.3 Molecular Sieve Driers Breakthrough Test.

The goal of this test is to determine the actual water capacity of all three driers under a measured set of feed conditions. This test will measure the total weight of water fed to the drier until a measurable water “breakthrough” happens.

The driers will be on manual mode (no normal automatic switching sequence will be used). A hygrometer will be used at the inlet and outlet of the drier with a chart recorder to continuously record gas flow, temperature, pressure, inlet and outlet water content. The breakthrough test results will be compared to the cycle time used in the automatic sequence mode to ensure the compliance with the Specifications.

 

S-8


Online analyzers will also be tested and checked against lab results. Differential pressures across all liquefaction chillers to be recorded before and after breakthrough test.

3.6 ***

3.6.1 ***

3.6.2 ***

3.6.3 ***

3.7 ***

3.7.1 ***

3.7.2 ***

3.8 Unit 19 – Flare and Thermal Oxidation System

3.8.1 Main Flares.

The flare tip will be observed for flame stability at a mutually agreed flow.

3.8.2 Marine Flare

The flare tip will be observed for flame stability at a mutually agreed flow.

3.8.3 Thermal Oxidizer.

Operation of the thermal oxidizer will be checked, including analysis of exhaust gas streams.

3.9 Unit 21 – Gasoline and Diesel Storage

This test will record the circulation rates and operation of the system, which will be checked against design parameters.

3.10 Unit 22 – Fuel Gas System

Emission testing of the gas turbine exhausts will be done by an outside specialist contractor, after the LNG Train is operating normally and will be done prior to each Performance Test. Emissions will be tested from each stack to ensure they meet or exceed the design Specifications.

 

S-9


3.11 Unit 23 – Condensate Storage and Loading

This test is to demonstrate that the Condensate Loading System meets the Condensate flow and loading rate guarantee as shown in Project Specification Process Design Basis.

A series of composition samples will be taken along with unit conditions to illustrate the unit’s ability to produce and maintain the required composition.

 

  3.12 Unit 24 –Boil Off Gas Recycle Compressors, Pipeline Compressor & LNG Storage/Ship Loading

3.12.1 Boil Off Gas Recycle Compressors.

This first test will consist of verifying the manufacturer’s performance curve for the design point for each compressor. Each compressor will be observed for safe operation for its normal operating envelope. Actual flow rate, gas composition, pressure and temperature at the machine’s suction and discharge will be recorded.

The second test will consist of operating four (4) installed units in parallel during ship loading operations (operation throughout the range of vapor return rates) with all gas from the Boil-Off Gas Recycle Compressor recovered to the process and no flaring and with all controls in automatic.

This test will be done to evaluate stability and controllability for the expected range of flows.

3.12.2 LNG Loading Pumps.

This test will consist of verifying the manufacturer’s performance curve for the design point. Pumps will be observed for safe operation at the minimum flow with acceptably low vibration. Operating amperage of each pump motor while under load at minimum flow to end of curve flow during the test will be recorded to ensure that actual currents do not exceed nameplate Full Load Amp (FLA) ratings.

3.12.3 Ship Loading Time Test.

The Ship Loading Time Test shall be conducted to determine whether the Project has achieved the ship loading time performance specified in the FEED Document no. 25744-200-3BD-M04-00002 rev 004, “Basis of Design (BOD) Summary,” Table 1, item 3.25. A minimum test period of 2 hours shall be required to verify 12,000 m3/hr. rate. The Ship Loading Time Test shall be conducted in accordance with the Ship Loading Time Conditions (specified below), the Project Commissioning Plan and the testing procedures specified below in this Attachment S.

The conditions upon which the Ship Loading Time Test are based (“Ship Loading Time Conditions”) are as follows:

 

  1. The elevation of the ship’s manifold will be a minimum of 70 feet above the mean low water level;

 

S-10


  2. The LNG Tanker will be capable of displacing vapor at a rate equal to the vapor produced at a pressure equal to or higher than that specified in FEED Document no. 25744-200-3BD-M04-00002 rev 004, “Basis of Design (BOD) Summary,” Table 1, item 4.3 “hydraulic design basis” and a temperature equal or lower than that specified in Table 1, item 4.4 “process design basis” of the same document;

 

  3. The pressure in the Tanks which are loading the LNG will be maintained at reasonably constant pressure during ship loading;

 

  4. Tank pressure control will be based on absolute pressure;

 

  5. All of the vents on the Tank will be set so that they do not vent at a pressure of less than 2.2 PSIG;

 

  6. The LNG Tanker will be at the west dock; and

 

  7. Owner will select the LNG Tanks to be used.

The testing procedures for the Ship Loading Time Test, including the measurement and calculation methods, shall be in accordance with the following general parameters, subject to change only by mutual agreement of the Owner and Contractor in writing.

 

  A. The quantity of LNG loaded onto the LNG Tanker shall be determined by measuring the rate of increase of LNG into the LNG Tanker.

 

  B. Owner and Contractor shall confirm that the Ship Loading Time Conditions: (i) have been satisfied prior to commencement of the Ship Loading Time Test and (ii) continue to be satisfied during the conduct of the Ship Loading Time Test.

3.12.4 Pipeline Compressor.

The test will consist of verifying the manufacturer’s performance curve for the design point for the compressor. Compressor will be observed for safe operation for its normal operating envelope. Actual flow rate, gas composition, pressure and temperature at the machine’s suction and discharge will be recorded.

3.13 Unit 29 – H2S Treatment Unit

The H2S treatment unit is to be operated and tested to achieve successful compliance with the unit Specifications. The sour gas inlet and the sweet gas outlet stream inlets shall be measured and recorded for flows, operating pressures, desired pressure drops and outlet H2S specification by sampling and laboratory analysis to verify successful treatment Specification compliance.

 

S-11


3.14 Unit 31 – Power Generation

3.14.1 Standby Generator.

This test will demonstrate startup, shutdown, and operation in the field of this piece of Equipment.

3.14.2 Electrical Distribution.

This test will ensure that equipment, breakers, transformers, bus duct, and major cable runs operate within their rated capacity. Transfer of loads will also be tested along with demonstration of UPS performance against design. This test will also ensure that the logic of performance (i.e. automatic startup occurs providing power to essential boards feeding essential loads) is met as per project specifications.

3.15 Unit 33 – Fire Protection System

3.15.1 Firewater Distribution.

The test will consist of demonstrating that the ring main associated with the LNG Train 1 and LNG Train 2, Tanks A and C and the west berth delivers sufficient flow at the furthest points from the firewater tank and firewater pumps.

3.15.2 Fire and Gas Detection.

All detectors will be field function tested per vendor’s procedures.

3.16 Unit 35 – Plant and Instrument Air

3.16.1 Air Compressor Package.

The Air Compressor package will be tested to confirm operation is at design delivery pressure and design flow rate. Auto startup of the compressors shall be tested on emergency power bus. Control system “Lead-Lag” functions shall be demonstrated for the number of compressors required to maintain full plant operation.

3.16.2 Air Driers.

Exit flow and dew point will be tested to ensure the design specification is met. Exit stream dew point measurements will be independently checked to verify the package instruments. This will be done using grab samples and laboratory analysis.

3.17 Unit 36 – Water Systems

3.17.1 Water Treatment Unit.

The inlet stream composition against specifications, efficiency of the unit (recovery), outlet flow for capacity and exit stream compositions will be checked to ensure the design specification is met. This will be done using online instrumentation, grab samples and laboratory analysis.

 

S-12


3.17.2 Service Water Unit.

The outlet flow for capacity will be checked to ensure the design intent is met. This will be done using online instrumentation, grab samples and analyzing in the laboratory.

3.18 Unit 40 – Control / Operations Building, Maintenance Building, Warehouse, Remote Operation Building and Guard House

HVAC and lighting throughout all buildings will be validated per the design. and will be in compliance with required building codes.

3.19 Unit 47 – Turbine Air Humidification System

The Turbine Air Humidification System package will be observed under normal operation when the LNG Train is running at a comfortable high capacity prior to the Performance Tests. The test will be done to evaluate stability and controllability for the expected range of ambient air temperatures with the corresponding refrigeration gas turbine power checked to determine if the design intent is met.

3.20 Unit 39 – Nitrogen System

Outlet flow for capacity, O2 specification and header pressure of the nitrogen generation system will be checked to ensure they meet design specification. Laboratory samples will be taken to verify the O2 content.

 

S-13


ATTACHMENT T

STAGE 1 PERFORMANCE GUARANTEES, PERFORMANCE LIQUIDATED

DAMAGES MINIMUM ACCEPTANCE CRITERIA, AND DELAY LIQUIDATED

DAMAGES

1. Definitions

In addition to other defined terms in the Agreement, the following capitalized terms have the meanings specified below:

Commissioning Period” means, with respect to each Subproject, the period commencing upon the first delivery of Feed Gas to the Subproject in accordance with Sections 4.8 and 11.1 of the Agreement continuing through achievement of RFSU, commissioning, Start Up, Performance Testing and achievement of Substantial Completion for such Subproject.

LNG Train Feed Gas” is defined as the high heating value (HHV) as measured in MMbtu of the Natural Gas flowing into each LNG Train as measured by flow meter 11 FQI-11003 for LNG Train 1, and flow meter 12 FQI-11003 for LNG Train 2.

LNG Production Rate” is defined as the high heating value (HHV) as measured in accordance with Attachment S in MMbtu of the net LNG in storage after the final flash from the process train into the LNG storage tanks and after other boil off losses due to heat leak into the storage tanks and the associated piping, including loading system piping which must be maintained cold.

2. Performance Guarantee

The Performance Guarantee for the LNG Production Rate is as follows:

 

  A. LNG Production Rate Performance Guarantee. Each LNG Train shall have an LNG Production Rate equal to or greater than *** MMbtu HHV (“LNG Production Rate Performance Guarantee”), produced over a 72-hour continuous period using the Measurement and Calculation Methods specified in Attachment S; provided that the LNG Production Rate Performance Guarantee Conditions stipulated in Attachment S are met.

The LNG Production Rate Performance Guarantee specified in this Section 2A and the LNG Production Rate MAC specified in Section 3A below are based on Case CC1 – High Aromatics, Average Ambient Temperature with the Heavies Removal Column in operation. Owner and Contractor agree that the LNG Production Rate Performance Guarantee, the LNG Production Rate MAC and associated documents (including the Basis of Design (Document No. 25744-200-M4-DK-00101 rev. 04) and Process Design Basis (25744-200-3DR-V04F—00001 rev. 000)) will be revised to reflect a new case (the “Lean Gas Case”) with the Heavies Removal Column operated cold with no reflux. For such revisions, the Parties shall, both acting reasonably and in good faith, revise the LNG Production Rate Performance Guarantee, the LNG Production Rate MAC and associated documents (including the Basis of Design and Process Design Basis) with such changes implemented through a Change Order in accordance with the Agreement no later than the NTP.

 

T-1


  B. If the applicable Guarantee Conditions stipulated in Attachment S for the above Performance Guarantee are not met during the applicable Performance Test, the Parties shall, with respect to the applicable Guarantee Conditions, take such actions as are specified in the Performance Test Procedures in Attachment S.

3. Minimum Acceptance Criteria

The Minimum Acceptance Criteria for the LNG Production Rate is as follows:

 

  A. LNG Production Rate MAC. Each LNG Train shall have an LNG Production Rate equal to or greater than *** MMbtu HHV (“LNG Production Rate MAC”), over a 72-hour continuous period using the Measurement and Calculation Methods specified in Attachment S; provided that the LNG Production Rate Performance Guarantee Conditions stipulated in Attachment S are met.

The LNG Production Rate Performance Guarantee specified in Section 2A above and the LNG Production Rate MAC specified in this Section 3A are based on Case CC1 – High Aromatics, Average Ambient Temperature with the Heavies Removal Column in operation. Owner and Contractor agree that the LNG Production Rate Performance Guarantee, the LNG Production Rate MAC and associated documents (including the Basis of Design (Document no. 25744-200-M4-DK-00101 rev. 04) and Process Design Basis (Document no. 25744-200-3DR-V04F—00001 rev. 000)) will be revised to reflect a new case (the “Lean Gas Case”) with the Heavies Removal Column operated cold with no reflux. For such revisions, the Parties shall, both acting reasonably and in good faith, revise the LNG Production Rate Performance Guarantee, the LNG Production Rate MAC and associated documents (including the Basis of Design and Process Design Basis) with such changes implemented through a Change Order in accordance with the Agreement no later than the NTP.

 

  B. If the applicable Guarantee Conditions stipulated in Attachment S for the above Minimum Acceptance Criteria are not met during the applicable Performance Test, the Parties shall, with respect to the applicable Guarantee Conditions, take such actions as are specified in the Performance Test Procedures in Attachment S.

4. Delay Liquidated Damages

 

  A. Delay Liquidated Damages for Subproject 1.

If Substantial Completion of Subproject 1 occurs after the Guaranteed Substantial Completion Date for Subproject 1, Contractor shall pay to Owner amounts according to the following schedule for each Day, or portion thereof, of delay until Substantial Completion for Subproject 1 occurs:

 

  (i) *** through *** Days after Guaranteed Substantial Completion Date: *** U.S. Dollars (U.S.$***) per Day; plus

 

  (ii) *** through *** Days after Guaranteed Substantial Completion Date: *** U.S. Dollars (U.S.$***) per Day; plus

 

T-2


  (iii) *** Days after Guaranteed Substantial Completion Date and thereafter: *** U.S. Dollars (U.S.$***) per Day.

 

  B. Delay Liquidated Damages for Subproject 2.

If Substantial Completion of Subproject 2 occurs after the Guaranteed Substantial Completion Date for Subproject 2, Contractor shall pay to Owner amounts according to the following schedule for each Day, or portion thereof, of delay until Substantial Completion for Subproject 2 occurs:

 

  (i) *** through *** Days after Guaranteed Substantial Completion Date: *** U.S. Dollars (U.S.$***) per Day; plus

 

  (ii) *** through *** Days after Guaranteed Substantial Completion Date: *** U.S. Dollars (U.S.$***) per Day; plus

 

  (iii) *** Days after Guaranteed Substantial Completion Date and thereafter: *** U.S. Dollars (U.S.$***) per Day.

5. Performance Liquidated Damages

*** U.S. Dollars (U.S. $***) for every *** (***%), rounded to the nearest *** (***%) of LNG Production Rate less than the LNG Production Rate Performance Guarantee (“Performance Liquidated Damages”).

6. Priority.

In the event of a conflict or inconsistency between provisions contained within this Attachment T and provisions contained within Attachment A, the provisions within this Attachment T shall control.

 

T-3


ATTACHMENT U

OWNER PROVIDED ITEMS AND RESPONSIBILITY FOR STAGE 1

 

1. Owner Supplied Data

The following data, information, and documents listed below shall be provided by Owner on or before the dates listed below. Refer to Attachment A and Schedule A-2 for the data, information, and documents which are defined as “Rely Upon” items pursuant to Section 4.8 of the Agreement.

 

Description of Data/Information/Documents Provided

  

Date Provided or to be Provided

Authorization and a Notice to Proceed for Construction and Operation of a Liquefied Natural Gas Export Terminal Facilities pursuant to Section 3 of the Natural Gas Act with the Federal Energy Regulatory Commission (FERC), Docket No. CP12-507-000, dated [            , 20    ].    At NTP
Final Environmental Impact Statement certificate from FERC.    At NTP
Legal description and survey in accordance with Section 4.6 of the Agreement.    At NTP or prior to any LNTP Work where applicable
Owner Supplied Permits listed in Attachment Q.    In accordance with the date specified under the “Date Required” column in Attachment Q
Geotechnical Reports    Previously provided to Contractor
Landowner Agreements    See Attachment Y, Section D.

 

2. Owner Supplied Equipment, Items, and Services

The following equipment, components, and personnel shall be supplied by Owner on or before the dates listed below in accordance with Attachment A. Contractor shall provide reasonable support and assistance to the Owner in accordance with the Agreement (including, where applicable, access to Site).

 

U-1


Description of Equipment/Components/Personnel Supplied

  

Date Supplied or to be Supplied

Provide access to the Stage 1 Site pursuant to Section 4.3A of the Agreement    NTP
Provide property acquisition or use agreements for port laydown area, cotton laydown area, berryman laydown area and sherwin tool and lunch area including access to such areas in accordance with the Agreement, including Section 4.3 and Attachment Y of the Agreement    NTP
Provide property acquisition or use agreements for dredge material placement area (DMPA) 2 and clay borrow pit area including access to such areas in accordance with the Agreement, including Section 4.3 and Attachment Y of the Agreement    NTP
Provide LNG Tanker for Ship Loading Time Test    Pursuant to Section 11.1D of the Agreement
Provide treated water at a minimum flow rate of 900 gallons per minute for Tanks (S2401-A and S2401-C) hydrostatic test through the treated water supply pipeline to the designated tie-in point    Tank hydrostatic test date
Widen and improve La Quinta Road from TX Hwy 361 to the Site    NTP (in accordance with Attachment Y)
Provide all work associated with overall program management among other contractors working directly for Owner and not in Contractor Group (“Owner’s Suppliers”), including Owner’s Suppliers for the Feed Gas pipeline, permitting agencies, Owner consultants, and Owner’s activities.    Ongoing requirement under the terms of the Agreement
Make Owner’s personnel available for training pursuant to Section 3.5 of the Agreement.    As required by the training program to be developed in accordance with Attachment V, but no later than 6 months before RFSU
Make Owner’s personnel available to Contractor for commissioning and testing pursuant to the terms of the Agreement, including Section 4.4.    As required under the Project Commissioning Plan

 

U-2


Description of Equipment/Components/Personnel Supplied

  

Date Supplied or to be Supplied

Provide any outside training and certification required by Applicable Law for Owner personnel shall be coordinated by Owner (other than the training to be provided by Contractor in accordance with Section 3.5 of the Agreement).    Prior to RFSU
Provide the Natural Gas necessary for Contractor (i) to achieve RFSU in accordance with Sections 11.1 and 11.2 of the Agreement and (ii) to conduct the Performance Tests and other commissioning activities in accordance with Section 11.3 of the Agreement.    As required under Sections 11.1, 11.2 and 11.3 of the Agreement
Purchasing and coordinating Natural Gas from Feed Gas pipeline for startup and initial operation of the Liquefaction Facility.    Required Feed Gas 60 Days before RFSU of Subproject 1
Provide demineralized water from the Liquefaction Facility water treatment plant for startup and initial operation of Subproject 2.    60 Days before RFSU of Subproject 2
Provide potable water, plant air, instrument air, and nitrogen from the Liquefaction Facility utilities plant for startup and initial operation of Subproject 2.    60 Days before RFSU of Subproject 2
Provide permanent power from the Liquefaction Facility main substation for startup and initial operation of Subproject 2.    60 Days before RFSU of Subproject 2
Provide in-plant UHF and VHF base radio and handheld radio system for Owner, except for Owner’s personnel provided under Section 4.4 of the Agreement.    Prior to RFSU of Subproject 1
Provide vehicles for Owner’s own use.    As determined by Owner
Provide and maintain security fencing around bed 22 per Site Plan Interface Locations Tie-Ins, 25744-200-P1K-00-10018 Rev 00C.    Installed prior to NTP
Provide and maintain security fencing around Taft Ranch House foundation per Site Plan Interface Locations Tie-Ins, 25744-200-P1K-00-10018 Rev 00C.    Installed prior to NTP
Relocate and remove existing underground pipelines at the Site per SK-UN-ALL-001 Rev 002.    NTP
Relocate and remove existing water monitoring wells at the Site per SK-UN-ALL-001 Rev 002.    NTP

 

U-3


Description of Equipment/Components/Personnel Supplied

  

Date Supplied or to be Supplied

Provide 138 kV electrical substation/switchyard and permanent power service at the designated tie-in point per Site plan interface locations tie-ins, 25744-200-P1K-00-10018 Rev 00C.    794 Days after NTP
Provide Feed Gas pipeline to the designated tie-in point per Site plan interface locations tie-ins, 25744-200-P1K-00-10018 Rev 00C.    180 Days before RFSU of Subproject 1
Provide condensate pipeline to the designated tie-in point per Site plan interface locations tie-ins, 25744-200-P1K-00-10018 Rev 00C.    180 Days before RFSU of Subproject 1
Provide treated water and the treated water supply pipeline to the designated tie-in point per Site plan interface locations tie-ins, 25744-200-P1K-00-10018 Rev 00C.    180 Days before Tank hydrostatic test date
Provide potable water supply pipeline and potable water service to the designated tie-in point per Site plan interface locations tie-ins, 25744-200-P1K-00-10018 Rev 00C.    90 Days before building ready for occupancy
Provide sewage disposal pipeline and sewage service to the designated tie-in point per Site plan interface locations tie-ins – 25744-200-P1K-00-10018 Rev 00C.    90 Days before building ready for occupancy
Provide voice and data cables and voice and data service at the designated tie-in points at the telecom room in the O&M and control building per Site plan interface locations tie-ins, 25744-200-P1K-00-10018 Rev 00C.    90 Days before building ready for occupancy

 

3. Additional Owner Responsibilities

The following documents include additional Owner responsibilities/rely upon data to support the performance of Work:

 

Description of Document

  

Document Ref. No.

Basis of Design (BOD) Summary    3BD-M04-00002 Rev 004
Basic Engineering Design Data (BEDD)    3BD-M04-00002 Rev 007
Scope of Facilities    25744-200-G01-000-00001 Rev 00E

 

U-4


ATTACHMENT V

PRE-COMMISSIONING, COMMISSIONING, START-UP, AND TRAINING FOR STAGE 1

 

1.0 Introduction

In addition to the requirements specified in any other provisions of the Agreement, this Attachment V sets out the general scope of activities to be performed by Contractor for the construction/turnover, pre-commissioning, commissioning, start-up, and operation (until Substantial Completion of Subproject 2) of the Project. This Attachment V does not constitute a substitute for the Project Commissioning Plan or the start-up manual, but rather forms the basis for the development of such Project Commissioning Plan and manual.

The following phases of activities are generally described in this Attachment V:

 

  A. Pre-commissioning: preparation of a system or systems for the commissioning phase. This will include, but is not limited to, blowing, flushing, and Equipment testing, and initial check out of Project process and utility systems.

 

  B. Commissioning: preparation of a system or systems to allow hydrocarbons or other process fluids to be safely introduced into the system or systems for processing. In this phase testing will focus on systems, including utilities.

 

  C. Start-Up: the bringing of a system or systems into a normal operational mode, and the first LNG ship loading.

 

  D. Operation: LNG production to storage and LNG ship loading.

 

2.0 General

Contractor will perform pre-commissioning, commissioning, and start-up for the Project so as to achieve completion of required systems to enable commencement of operations of the Project in accordance with the Project Schedule.

 

3.0 Project Commissioning Plan; Manuals and Procedures

 

  A. Project Commissioning Plan:

Pursuant to Section 4.4 of the Agreement, Contractor shall prepare and provide to Owner a detailed Project Commissioning Plan one hundred eighty (180) Days prior to RFSU. Contractor shall submit the Project Commissioning Plan, which shall include plans for pre-commissioning, commissioning and start-up. The Project Commissioning Plan shall address utilization of Owner’s operation and maintenance personnel and Contractor’s personnel during commissioning and conduct of the Performance Tests and Contractor shall incorporate Owner’s reasonable input regarding interface and impact to Subproject 1. The manual will include procedures that will at a minimum address the activities described in Sections 5.0 and 7.0.

 

V-1


  B. Start-up Manual:

Contractor shall prepare and provide a detailed start-up manual for Owner’s review. The manual will include Contractor’s start-up plan and start-up procedures, including procedures for achieving Cool Down of the Project, and will address, at a minimum, the start-up activities described in Section 8.0.

 

  C. Plant System Manuals (PSMs):

Contractor shall prepare and provide a detailed Plant System Manual (PSM) for each New Plant System (as defined in Section 3.0H of this Attachment V). Each PSM shall be designed using the format and standard provided by Owner to ensure that the form of each PSM is substantially similar to existing PSMs and shall prepare personnel to study the Standard Operating Procedures related to the given plant system (operators) or the Standard Maintenance Procedures (technicians) related to the given system.

Each Plant System Manual shall include at a minimum:

 

  1.0 Introduction

 

    high level overview of the applicable system

 

    scope of the PSM

 

    technical references including other referenced PSMs, P&IDs, or other documents

 

  2.0 Health, Safety and Environmental Related Issues

 

    identifies system specific safety concerns

 

    references corporate safety procedures that are applicable

 

    identifies Personal Protective Equipment (PPE) requirements

 

    identifies system specific environmental concerns

 

    references corporate environmental procedures that are applicable

 

  3.0 Terms and Definitions

 

    includes a table of acronyms used in the PSM

 

    includes a table of terms and definitions used in the PSM

 

    all acronyms and terms and definitions are added to a master list

 

  4.0 Process Description

 

    “About the System” section that identifies the parts of the system

 

    includes listing of major equipment in the system, equipment tag ID (identification), description, pertinent data

 

    “How the System Works” section that identifies generally how the parts of the system connect and flow

 

    discusses process flows, controls, equipment function

 

V-2


  5.0 System Operation

 

    includes complete listing of all instrument tags and descriptions associated with the system

 

    includes a table identifying instrument ranges, setpoints, and alarms

 

    includes a table identifying all interlocks in the system and a description of interlock function

 

    includes a Consequences of Deviation (COD) table to identify consequences of exceeding operating ranges and limits and corrective actions

 

    addresses any operating guidelines specific to the system or any special modes of operation that might be associated

 

  6.0 Troubleshooting the System

 

    includes a comprehensive troubleshooting chart identifying all possible identified problems, consequence of inaction, possible causes of the problems, and recommended corrective actions

 

    while the COD table only addresses exceeding control loop set points and alarms, the troubleshooting chart addresses all conceivable problems that might be encountered

 

  7.0 Abnormal Conditions

 

    this section is specifically for compliance with verbiage in the DOT regulations regarding identifying abnormal conditions; it references the COD table and troubleshooting chart

 

  8.0 Document Revision Record

 

    has a standard table for recording document revisions

 

  9.0 Appendices

 

    includes any further system specific information

 

  D. Standard Operating Procedures (SOPs):

Contractor shall prepare and provide Standard Operating Procedures (SOPs) for each New Plant System. Such SOP shall provide two types of procedures: operating procedures and service procedures. Each SOP shall be detailed to cover each piece of Equipment in the applicable Plant System.

The Standard Operating Procedures shall include at a minimum:

 

  1.0 Introduction

 

  2.0 Health, Safety and Environmental Related Issues

 

  3.0 Technical References (identifies the associated PSM)

 

V-3


  4.0 System Diagram, UFD or PFD (simplified diagram, not as complicated as P&ID but showing items necessary to understand the procedure)

 

  5.0 Pre-Start Procedure (detailed pre-start steps)

 

  6.0 Normal Start-up Procedure

 

  7.0 Normal Operation Procedure

 

  8.0 Normal Shutdown Procedure

 

  9.0 Emergency Shutdown Procedure

 

  10.0 Document Record

Service Procedures shall include at a minimum:

 

  1.0 Introduction

 

  2.0 Health, Safety and Environmental Related Issues

 

  3.0 Technical References (identifies the associated PSM)

 

  4.0 System Diagram (simplified diagram, not as complicated as P&ID but showing items necessary to understand the procedure)

 

  5.0 Job Preparation Procedure (includes coordination with Maintenance and gathering materials)

 

  6.0 Remove From Service Procedure (isolation, clearing, purge, & inert)

 

  7.0 Lockout/Tagout Procedure (LOTO)

 

  8.0 Return To Service Procedure (isolation removal, purge, re-inventory, return to service)

 

  9.0 Document Record

 

  E. Standard Maintenance Procedures (SMPs):

Owner shall prepare Standard Maintenance Procedures (SMPs). Contractor shall provide all Equipment information and owner/operator manuals developed or provided for Equipment.

 

  F. Training Guides:

Contractor shall prepare and provide detailed training manuals (“Training Guides”) containing specific guidance sections that are designed to navigate personnel through the operations, maintenance and training (OMT) manuals for each Plant System by way of course outline and exercises. The intent is for personnel to be able to use the training guide as a “curriculum” along with the PSM “textbook” and SOP/SMP “detailed actions required.”

 

V-4


Training Guides shall include at a minimum:

 

  1.0 Training Objectives: Learning Objectives, Reference Documents (PSMs, SOPs, SMPs, P&IDs)

 

  2.0 Instructions: Overview, Training Guide Organization, Designated Trainers, Definitions

 

  3.0 Plant Systems Manual: Safety and Environmental, Acronyms and Terms, About the System, P&IDs, How the System Works, Instrumentation, Field Walkdown, Operating Modes, Troubleshooting

 

  4.0 Operating Procedures: Introduction, Procedure Review, Procedures

 

  5.0 Service Procedures: Procedure Review, Procedures

 

  6.0 Performance Sign-off

 

  7.0 Document Record (revision history)

 

  G. Knowledge Tests:

The Training Guides shall include tests (“Knowledge Tests”) which may be used to improve comprehension of the subject matter. The Training Guides and Knowledge Tests are tied to the Operator Qualification and Progression programs. Knowledge Tests and/or their contents are not published to maintain their integrity as a comprehension measurement.

 

  H. Plant Systems:

The plant systems for the Liquefaction Facility are referred to herein as the “New Plant Systems.” Thirty-four (34) potential New Plant Systems have been identified for possible development, depending on final design of the Liquefaction Facility:

 

  1. OPS-CCL-8120-PSP_LNG Storage Tanks

 

  2. OPS-CCL-8130-PSP_LNG In-tank Pumps

 

  3. OPS-CCL-8140-PSP_LNG Circulation System

 

  4. OPS-CCL-8150-PSP_Vapor System

 

  5. OPS-CCL-8160-PSP_Ship Loading

 

  6. OPS-CCL-8180-PSP_BOG Compressors

 

  7. OPS-CCL-8210-PSP_Fuel Gas System

 

  8. OPS-CCL-8250-PSP_Distributed Control System

 

  9. OPS-CCL-8260-PSP_Pipeline Compressor

 

  10. OPS-CCL-8272-PSP Inlet Processing/Stabilization Facilities (Unit 11)

 

V-5


  11. OPS-CCL-8273-PSP Acid Gas Removal Amine Regeneration (Unit 12)

 

  12. OPS-CCL-8274-PSP Dehydration and Mercury Removal (Unit 13)

 

  13. ***

 

  14. ***

 

  15. ***

 

  16. ***

 

  17. ***

 

  18. OPS-CCL-8320-PSU_Standby Diesel Generator-UPS

 

  19. OPS-CCL-8330-PSU_Air Compression and Distribution

 

  20. OPS-CCL-8340-PSU_Nitrogen System

 

  21. OPS-CCL-8350-PSU_Caustic System

 

  22. OPS-CCL-8360-PSU_Sewage System

 

  23. OPS-CCL-8370-PSU_Stormwater Effluent System

 

  24. OPS-CCL-8380-PSU_Potable and Utility Water System

 

  25. OPS-CCL-8390-PSU_Communication System

 

  26. OPS-CCL-8392-PSU Refrigerant Storage (Unit 20)

 

  27. OPS-CCL-8394-PSU Effluent Treatment (Unit 29)

 

  28. OPS-CCL-8395-PSU Hot Oil System (Unit 34)

 

  29. OPS-CCL-8396-PSU Liquefaction Water Systems (Unit 36)

 

  30. ***

 

  31. OPS-CCL-8398-PSU Turbine Inlet Air Humidification System (TIAH) (Unit 47)

 

  32. OPS-CCL-8410-PSE_Fire and Gas Detection and Control System

 

  33. OPS-CCL-8420-PSE_ESD System

 

  34. OPS-CCL-8430-PSE_Firewater Protection and Control System

Each New Plant System will have the following operations, maintenance, and training (OMT) manuals: PSMs, SOPs, SMPs, Training Guides, and Knowledge Tests. Contractor will develop all of the OMT manuals for the New Plant Systems in accordance with this Attachment V and otherwise as necessary to ensure that the New Plant System manuals fulfill the DOT OMT requirements.

 

V-6


4.0 Contractor’s Organization/Manpower

 

  A. Pre-Commissioning/Commissioning Team: The PC/C Team will consist of Contractor’s personnel who are experienced in pre-commissioning, commissioning and start-up of petrochemical facilities. Contractor will assign a senior Start-up Manager to lead the PC/C Team throughout the Project execution. Without limiting Contractor’s responsibility to provide sufficient qualified personnel to perform the Work, Contractor’s PC/C Team will have primary responsibility for the commissioning activities and start-up activities as described below.

 

5.0 Pre-commissioning

 

  A. PC/C Team Responsibilities: The PC/C manager and other members of the PC/C Team as necessary will relocate to the Site in time to assist Contractor’s construction personnel with pre-commissioning, and for the purpose of commencing on-Site training of Owner’s personnel under Section 6.0 below. The team will also complete start-up, operations and maintenance manuals during this phase.

 

  B. Pre-Commissioning Test Procedures and Schedule: Details of pre-commissioning test procedures will be developed by Contractor and reviewed by Owner.

 

V-7


6.0 Training Program

 

  A. Project-Specific Training Program: In accordance with Section 3.5 of the Agreement, Contractor shall design and conduct at the Site, or other locations and times mutually agreeable to the Parties, a Project-specific training program for Operator’s personnel covering the following:

 

Training Program

  

Trainer

 

Intended Trainees

Project Orientation / Safety    Contractor   All Owner / Contractor personnel at the Site
Basic Technical Training    Owner   Technician level personnel
Basic General Maintenance    Owner   Maintenance personnel
Basic Equipment Maintenance    Contractor   Maintenance and operations personnel
In-depth Equipment Maintenance    Contractor will supply Subcontractor training courses to the Owner at Owner’s cost. Owner will develop and implement the maintenance training program, and Contractor will assist Owner as required.   Maintenance and operations personnel
General Operations Training    Contractor / process licensors   All operations personnel
Operations Training    Contractor   Operations personnel
On-the-Job Training and Qualification    Contractor   Operations and maintenance personnel

Due to the staggered start-up and commissioning of Subproject 1, Subproject 2 and Subproject 3, the training program outlined below will be duplicated prior to each individual Subproject start-up and commissioning.

 

  B. On-the-Job Training: Contractor shall provide on-the-job training (“OJT”) for sixty (60) of Owner designated operations, maintenance and technical personnel who will be present in the Liquefaction Facility during the pre-commissioning, commissioning and start-up period.

OJT will provide job-specific field training for selected Equipment at the Liquefaction Facility. OJT checklists will be developed specific to the Liquefaction Facility, and shall consist of facility-specific procedures (checklists) for maintenance of the Equipment. Supervisory personnel will use these checklists to train and evaluate maintenance personnel in the performance of their duties.

OJT will be delivered during the pre-commissioning and commissioning phases of Subproject 1, and again during the pre-commissioning and commissioning phases of Subproject 2, and will continue during the initial start-up and subsequent operation of Subproject 1 and Subproject 2. The field trainers will assign OJT tasks on a pass / fail basis to maintenance personnel.

 

  C.

Classroom Training: Contractor shall prepare and carry out an extensive classroom-training program for sixty (60) Owner designated operations, maintenance and technical personnel at the Liquefaction Facility Site during the construction period. This program shall contain not less than eight (8) full

 

V-8


  weeks of full-time training. Contractor shall prepare for Owner approval a detailed outline of this training program within twelve (12) months of Notice to Proceed. In addition, Contractor shall provide for training by mutually agreed vendor representatives for Owner designated personnel. Subcontractor vendors to be included, as a minimum, are: ConocoPhillips, BASF, refrigeration compressor vendor, DCS system vendor, anti-surge controller vendor, safety shutdown systems vendor, water treatment vendor and emergency power generator vendor. Trainees must have completed classroom and vendor training, and be ready for field assignment six (6) months prior to RFSU of a New Plant System. For operations and maintenance personnel, training must be completed six (6) months prior to RFSU of a New Plant System. This applies to classroom training, and not to on-the-job training and qualification.

Classroom training will be divided into specific subject areas as follows:

 

    Process Description and Operating Principles

 

    Special Equipment and Instrumentation

 

    Plant System Manuals

 

    Standard Operating Procedures

 

    Service Procedures

 

    Abnormal and Emergency Conditions and Troubleshooting

 

    Commissioning and Start-up

Contractor shall propose a training program in order to permit Owner operations and maintenance personnel to attend training sessions organized in Subcontractor shops and/or at the Liquefaction Facility Site by Subcontractor representatives for equipment operations and maintenance training sessions organized in Contractor’s facilities (home office and field) for Project operation. Such maintenance training sessions to be available in Subcontractor shops or at the Liquefaction Facility Site shall be fully identified and should include items such as, but not limited to:

 

    Propane and MR compressors and drivers;

 

    BOG compressor;

 

    Air compressor;

 

    Air dryers;

 

    Water Treatment;

 

    DCS and control systems;

 

    HVAC;

 

    Waste Heat Recovery (WHRU);

 

V-9


    Heavies Removal unit (HRU);

 

    Main switchgears and motor control centers;

 

    Nitrogen Generation units;

 

    Direct-fired heaters;

 

    Flares and Thermal Oxidizer;

 

    H2S Removal unit;

 

    Effluents treatment;

 

    Amine re-circulation pumps;

 

    Diesel generators; and

 

    A complete training plan identifying the number of sessions together with number of trainees is to be submitted.

 

  D. Supplies and Lesson Plans: Contractor shall provide training manuals and supplies for each participant in the training program. Training manuals shall consist of three-ring binders to which material can be added as course material is presented. For each lecture or presentation, each student shall receive a copy of the applicable operations procedures, a lesson plan, and copies of any drawings, overhead projections, etc., used in the training session. Lesson plans shall describe the objective of the lecture and inform trainees what they are expected to do or be able to do after the training session is completed. Lesson plans shall also identify applicable technical references and training aids to be used and include a detailed breakdown of the points of discussion to be addressed in the training presentation. Each presentation on a plant system shall be accompanied, if possible, by an in-plant walk through of the applicable system. Lesson plans shall be prepared for each system walk through that detail the key components to be viewed and the inter-system relationships to be emphasized during the walk through. If not possible to conduct these in-plant walk downs during the class room training then this will be accomplished during on the job training during the commissioning phase.

 

  E. Course Summary Manual: Within four weeks of the conclusion of the classroom training, Contractor shall provide Owner a course summary manual for use in the Liquefaction Facility’s continuing training program that includes: the schedule employed in the conduct of the training, copies of the training materials (lesson plans, drawings, overheads, etc.) used in each session, and copies of the examinations (with answer keys) used to evaluate student performance during and after the training.

 

  F.

EHS Training: Contractor’s supervisors shall be fully knowledgeable of the potential hazards and the safe practices to be followed in the Work. Before assigning a worker to any new job or reassignment, the supervisor is responsible for instructing the worker on the precautions and actions that must be taken in

 

V-10


  relation to the job, including emergency response and evacuation as applicable. Contractor shall ensure that its supervisors have adequate training to perform and that they are performing this function properly. Workers shall also be informed of the consequences of deviation from any EHS requirement.

The EHS training program shall include, at a minimum, the following topics:

 

    Safe driving and work practices;

 

    Environmental management associated with the Work;

 

    Code of conduct;

 

    Waste management;

 

    Dust control;

 

    All requirements within the approved Contractor management plans;

 

    Management of hazardous materials;

 

    Spills and response plans; and

 

    Contingency plan and its implementation.

Risks and hazards associated with the Work:

 

    First aid;

 

    Personal protective equipment;

 

    Occupational health;

 

    Natural resources of the region and the importance of their conservation; and

 

    Archeological discoveries, control, and protection.

The training program shall also include any specific training as identified in the Contractor’s training matrix within the EHS plan. Contractor must analyze training requirements and initiate a training program to demonstrate that all persons employed, including Subcontractors, are suitably qualified, competent and fit.

 

7.0 Commissioning

 

  A. Personnel: Field engineering, maintenance, safety, administrative and manual labor personnel carried forward from the construction force will augment the PC/C team during commissioning activities. In addition to personnel provided by Owner for supervision by Contractor pursuant to Section 4.4 of the Agreement, Contractor will supply all personnel as required to commission and start-up the Project and for continuous operation of the Project.

 

  B. Multiple Phases: Certain portions of the Work may be entering the commissioning or start-up phase while other portions of the Work are still in the pre-commissioning phase or in general construction.

 

V-11


8.0 Start-Up

 

  A. Start-Up: Start-up activities will begin on a system or subsystem of the Equipment when (1) the RFSU Completion Certificate has been accepted in accordance with Section 11.1A of the Agreement, and (2) the start-up procedures (as set forth in the start-up manual referred to in Section 3.0 above) are in place at the Site. All personnel involved in start-up activities shall be trained and shall be conversant with the content and application of all such procedures.

 

  B. Personnel: Contractor shall provide all labor, supervisory personnel, vendor representatives, technicians and other items necessary to prepare, test and start-up the Project and the Equipment and for the execution of the Performance Tests. Owner will provide operating personnel for supervision by Contractor in accordance with Section 4.4 of the Agreement and supply the Natural Gas for production of LNG necessary for Contractor to achieve Cool Down and to commence start-up and conduct the Performance Tests, in accordance with Section 11.1 of the Agreement.

 

  C. Objectives: The primary objectives of this phase shall be to load the first LNG cargo.

 

9.0 Operation

Prior to Substantial Completion and after RFSU, to the extent Contractor has care, custody and control of the Project, Contractor will operate the Project in accordance with the Agreement, including Section 11.7 of the Agreement, and will supply operating and maintenance personnel in addition to those personnel supplied by Owner for supervision by Contractor pursuant to Section 4.4 of the Agreement, for operation of the Project as required to reach Substantial Completion.

The Contractor will assist the Owner in coordinating these activities as reasonably requested by Owner.

 

V-12


ATTACHMENT W

SPARE PARTS FOR STAGE 1

 

W-1


Schedule W-1

FORM OF OPERATING SPARE PARTS LIST FOR STAGE 1

 

Material Requisition Number

  Equipment
Description
  Supplier
Name
  Supplier
Contact
Information
  Part Description   Part
Number
  Estimated
Price per
Unit

(U.S.$)
  Quantity
Required
  Extension
(Estimated Price
per Unit x
Quantity
Required) (U.S.$)
    Required for
Delivery Prior to
Substantial
Completion or
Final Completion
                 
                 
                 
                 
                 
                 
                 
                 
               

 

 

   

 

Total:

                $       
               

 

 

   

 

 

W-2


Schedule W-2

CAPITAL SPARE PARTS LIST

 

    

Equipment

 

Type

 

Vendor

  

Comments

 

Budget

Description

  

Spare Parts

1    Propane Refrigeration Compressors   Rotating  

***

   Rotors, seals, bearings, shipping containers, Nitrogen Purge Storage Container, diaphragms, and couplings   Capital; No CCC recommended spare parts   

One (1) Rotor

One (1) Set of Seals

One (1) Set of Compressor Bearings

One (1) Set of Gear Bearings

One (1) Shipping Container

One (1) Set of Diaphragms

One (1) Set of Couplings

One (1) Nitrogen Purged Storage Container - Included for Rotor and Gear Bearing set

2    Ethylene Refrigeration Compressors   Rotating  

***

   Rotors, seals, bearings, shipping containers, Nitrogen Purge Storage Container, diaphragms, and couplings   Capital; No CCC recommended spare parts   

One (1) Rotor

One (1) Set of Seals

One (1) Set of Compressor Bearings

One (1) Set of Gear Bearings

One (1) Shipping Container

One (1) Set of Diaphragms

One (1) Set of Couplings

One (1) Nitrogen Purged Storage Container - Included for Rotor and Gear Bearing set

 

W-3


    

Equipment

 

Type

 

Vendor

  

Comments

 

Budget

Description

  

Spare Parts

3    Methane Refrigeration Compressors   Rotating  

***

   Rotors, seals, bearings, shipping containers, Nitrogen Purge Storage Container, diaphragms, and couplings   Capital; No CCC recommended spare parts   

One (1) Set of Rotors

One (1) Set of Seals

One (1) Set of Compressor Bearings

One (1) Shipping Container

One (1) Set of Diaphragms

One (1) Set of Couplings

One (1) Nitrogen Purged Storage Container - Included for Rotor and Gear Bearing set

4    Ethylene Refrigeration string gearbox   Rotating  

***

   Gear and pinion set, bearings, seals, shipping containers, and Nitrogen Purge Storage Container for Gear and Pinion Set   Capital   

One (1) Gear and Pinion Set

One (1) Set of Compressor Bearings

One (1) Set of Gear Bearings

One (1) Set of Seals Shipping Container

One (1) Nitrogen Purged Storage Container - Included for Gear and Pinion set

5    Propane Refrigeration string gearbox   Rotating  

***

   Gear and pinion set, bearings, seals, shipping containers, and Nitrogen Purge Storage Container for Gear and Pinion Set   Capital   

One (1) Gear and Pinion Set

One (1) Set of Gear Bearings

One (1) Set of Compressor Bearings

One (1) Set of Seals Shipping Container

One (1) Nitrogen Purged Storage Container - Included for Gear and Pinion set

 

W-4


    

Equipment

 

Type

 

Vendor

  

Comments

 

Budget

Description

  

Spare Parts

6    Refrigerant Compressors Turbine Driver   Rotating  

***

   Gas Generator, Power Turbine and shipping containers   Capital; No Mark VI recommended spare parts   

Seven (7) Gas Generator

Seven (7) Power Turbine

Shipping Container

7    Regen Gas Compressors   Rotating  

***

   Warehouse spare compressor with tandem dry gas seals and shipping container Does not include the skid, lubrication system, baseplate, and auxiliary systems.   Capital   

One (1) Bare Spare Compressor

One (1) 500 HP Motor

Shipping Container

   Plunger Pumps (wash water)   Rotating      Piston, Rings, Cylinders Seals, Bearings, Couplings   Capital    One (1)set of pistons, rings cylinders, bearings, couplings
8    Centrifugal Pumps (Lean Solvent Charge pumps)   Rotating  

***

   One rotors, one set of seals (two total), bearings, one coupling spacer (11P-1202A/B/C)   Capital   

One (1) Rotor

One (1) Set of Seals (2 Total)

One (1) Set of Bearings

One (1) Coupling

9    Pressure Relief Valves   Instrumentation      Warehouse spare list   Capital    One hundred and fifteen (115) warehouse spare PSVs
10    Acid Gas Thermal Oxidizer   Mechanical  

***

   Warehouse spare blower and ignitor (11H-1901)   Capital   

One (1) Spare Blower and Motor

One (1) Spare Ignitor Assembly

 

W-5


    

Equipment

 

Type

 

Vendor

  

Comments

 

Budget

Description

  

Spare Parts

11    Air Compressors   Rotating  

***

   Spare low pressure and high pressure rotor sets and drive gear sets. Dryer desiccant for one bed, seals, bearings, filters.   Capital   

One (1) Low Pressure Rotor Set

One (1) High Pressure Rotor Set

One (1) Drive Gear Set Dryer Desiccant for One Bed

One (1) Set of Seals (Gasket Set)

One (1) Set of Bearings

One (1) Set of Filters (Air/Oil Filter Kit) Nitrogen purged shipping / storage

12    Dehydrators   Mechanical           One (1) spare set of molecular sieve support trays and rope packing plus nozzle gasket set
13    Ethylene De-Inventory Pump   Mechanical  

***

   One warehouse spare pump with shipping container plus nozzle gasket sets (11P-1501 & 12P-1501)   Capital   

One (1) Spare Pump with Motor

One (1) Nozzle Gasket Set

Shipping Container

14    LNG Transfer Pot Mounted Pumps   Rotating  

***

   One warehouse spare pump with shipping/storage container (11P-1601 A/B)   Capital   

One (1) Spare LNG Transfer Pump

Shipping Container

15    Metering Skids   Instrumentation      Ultrasonic flow meters (11FE/FT-11003, 22151, 22032 and 10FE/FT-22006)   Capital    One (1) Ultrasonic Flow Meter
16    Propane De-Inventory Pump   Mechanical  

***

   One warehouse spare pump with shipping/storage container plus nozzle gasket sets (11P-1403 & 12P-1403)   Capital   

One (1) Spare Pump with Motor

One (1) Nozzle Gasket Set

Shipping Container

Note 1: All capital spare parts shall be delivered prior to Substantial Completion of Subproject 1.

 

W-6


ATTACHMENT X

WORK IN STAGE 1 LIQUEFACTION FACILITY

The table below identifies elements of Work to be undertaken on systems in the Stage 1 Liquefaction Facility, in respect of which such Work must be planned as specified in the Agreement Section 3.25, prior to the performance of such Work.

 

Item #

  

Stage 1 Liquefaction Facility Work

  

Work Description Reference

1    Process piping tie-ins at the LNG Train 3 south battery limits   

Reference drawing

25744-200-P1-33-10010 Rev Rev C

WBS 133D01

2    Utility piping tie-ins at the LNG Train 3 north battery limits   

Reference drawing

25744-200-P1-33-10010 Rev Rev C

WBS 133R01

3    Process and utility piping tie-ins for Tank B   

Reference drawing

25744-200-P1-00-00020 Rev D

WBS 101B01

4    Process and utility piping tie-ins for the east jetty   

Reference drawing

25744-200-P1-00-00020 Rev D

WBS 104A02

5    Main substation building    SoF, 3.2.7
6    DCS/SIS/FGS tie-ins    SoF 5.1
7    Connect and route power feeder cables, control cables and fiber optic cables from new main substation to Stage 2 Liquefaction Facility substations and jetty marine building    SoF, 3.2.7

 

X-1


ATTACHMENT Y

SITE, STAGE 1 SITE, STAGE 2 SITE AND OFF-SITE RIGHTS OF WAY AND EASEMENTS

 

A. The boundaries of the Site and Off-Site Rights of Way and Easements (including the dredging work locations) are depicted in Exhibit Y-1.

 

B. The boundaries of the Stage 1 Site are depicted in Exhibit Y-2.

 

C. The boundaries of the Stage 2 Site are depicted in Exhibit Y-3.

 

D. Owner shall provide survey coordinates defining the location of all areas (including the dredging work locations) shown in Exhibits Y-1, Y-2, and Y-3. Exhibit Y-4 provides the survey coordinates for Controlled Area 2.

 

E. Below are the Landowner agreements containing rights and restrictions applicable to the access and use of the Off-Site Rights of Way and Easements. These agreements were previously or will be provided to Contractor. Such agreements may be redacted when provided to Contractor (except with respect to those sections for which Contractor has an obligation). Any Landowner agreement executed and provided to Contractor after the Contract Date of the Agreement (including such agreements identified below as “To be executed”) is subject to a mutually agreed Change Order.

 

Title of Agreement

  

Date of Agreement

DREDGING EASEMENT—Agreement between Port of Corpus Christi Authority of Nueces County, Texas and Corpus Christi LNG, LLC   

January 25, 2008

(Agreement expired – New agreement to be put in place.)

AGREEMENT TO PURCHASE AND SELL REAL ESTATE – Agreement between Reynolds Metal Company and Corpus Christi LNG, LLC (Section 7 Only, Environmental Conditions)    December 22, 2011
SETTLEMENT AGREEMENT AND RELEASE—Agreement between Reynolds Metal Company and Corpus Christi LNG, LP (Only Section 3—Dredging, Section 5—CCLNG Remedial Support, and Section 6—Remaining Framework Amendments)    December 22, 2011
EXHIBIT 1(e) UTILITY EASEMENT AGREEMENT—Agreement between Reynolds Metal Company and Corpus Christi LNG, LP    May 18, 2005
EXHIBIT 1(f) WATER EASEMENT AGREEMENT—Agreement between Reynolds Metal Company and Corpus Christi LNG, LP   

May 18, 2005

(Agreement will likely be amended to serve new purpose.)

WATER DISCHARGE EASEMENT AGREEMENT—Agreement between Sherwin Alumina LP and Corpus Christi LNG, LP   

August 9, 2005

(Agreement will likely be amended to serve new purpose.)

 

Y-1


Title of Agreement

  

Date of Agreement

AMENDMENT OF ENVIRONMENTAL MANAGEMENT EASEMENT AGREEMENT—Agreement between Reynolds Metal Company and Corpus Christi LNG, LLC    December 22, 2011
EXHIBIT 1(g), ENVIRONMENTAL MANAGEMENT EASEMENT AGREEMENT—Agreement between Reynolds Metal Company and Corpus Christi LNG, LP    May 18, 2005
EXHIBIT 1(h), DREDGED MATERIAL DISPOSAL AGREEMENT—Agreement between Reynolds Metal Company and Corpus Christi LNG, LP    May 18, 2005
DREDGED MATERIAL DISPOSAL AGREEMENT (Amendment 1)—Agreement between Reynolds Metal Company and Corpus Christi LNG, LP    May 8, 2006
CLAY BORROW, DITCH CLEANOUT, MATERIAL DISPOSAL AND ACCESS AGREEMENT—Agreement between Reynolds Metal Company and Corpus Christi LNG, LLC amending Dredged Material Disposal Agreement    June 16, 2006
EXHIBIT 1(i), INDEMNITY AND INSURANCE AGREEMENT—Agreement between Reynolds Metal Company and Corpus Christi LNG, LP    May 18, 2005
FRAMEWORK AGREEMENT (Amendment 1)—Agreement between Reynolds Metal Company and Corpus Christi LNG, LP    May 8, 2006
FRAMEWORK AGREEMENT—Agreement between Reynolds Metal Company and Corpus Christi LNG, LP    May 18, 2005
BAY DRAINAGE EASEMENT AGREEMENT—Agreement between Sherwin Alumina LP and Corpus Christi LNG, LP    August 9, 2005
COOPERATION AGREEMENT—Agreement between Sherwin Alumina LP and Corpus Christi LNG, LP   

June 1, 2006

(Agreement will likely be amended to serve new purpose.)

ACCESS EASEMENT AGREEMENT (for La Quinta Road)—Agreement between Sherwin Alumina LP and Corpus Christi LNG, LP    December 8, 2003
UTILITY EASEMENT AGREEMENT (along La Quinta Road)—Agreement between Sherwin Alumina LP and Corpus Christi LNG, LP    August 9, 2005

 

Y-2


Title of Agreement

  

Date of Agreement

WAIVER OF FINANCING CONDITION PRECEDENT AND AMENDMENT OF AGREEMENTS—Agreement between Sherwin Alumina LP and Corpus Christi LNG, LP    June 1, 2006
ROAD ACCESS AGREEMENT TO PORT LAYDOWN AREA, COTTON PATCH AREA, AND BERRYMAN LAYDOWN AREA—Agreement between Port of Corpus Christi Authority of Nueces County, Texas and Corpus Christi Liquefaction, LLC    To be executed
POWERLINE EASEMENT AT HECKER STATION—Agreement between Port of Corpus Christi Authority of Nueces County and Corpus Christi Liquefaction, LLC    To be executed
ROAD ACCESS AGREEMENT TO PORT LAYDOWN AREA and BERRYMAN LAYDOWN AREA— Agreement between Sherwin Alumina, LLC and Corpus Christi Liquefaction, LLC    To be executed
48” PIPELINE DITCH CROSSING EASEMENT—Agreement between Sherwin Alumina, LLC and Corpus Christi Liquefaction, LLC    To be executed
AMENDMENT AND ASSIGNMENT OF AEP POWERLINE EASEMENT—Agreement among AEP, Sherwin Alumina, LLC and Corpus Christi Liquefaction, LLC    To be executed
OVERHEAD POWERLINE EASEMENT—Agreement between Sherwin Alumina, LLC and Corpus Christi Liquefaction, LLC    To be executed
DREDGE MATERIAL PIPELINE EASEMENT TO DMPA 2 AND CLAY BORROW PIT—Agreement between Sherwin Alumina, LLC and Corpus Christi Liquefaction, LLC    To be executed
LA QUINTA ROAD WIDENING EASEMENT—Agreement between Sherwin Alumina, LLC and Corpus Christi Liquefaction, LLC    To be executed
PORT LEASE AGREEMENT—Agreement between Port of Corpus Christi Authority of Nueces County, Texas and Corpus Christi Liquefaction, LLC for Port Laydown Area    January 8, 2013
AMENDMENT 1 TO PORT LEASE AGREEMENT—Agreement between Port of Corpus Christi Authority of Nueces County, Texas and Corpus Christi Liquefaction, LLC for Port Laydown Area    To be executed
COTTON LAYDOWN AREA—Agreement between Port of Corpus Christi Authority of Nueces County, Texas and Corpus Christi Liquefaction, LLC for Cotton Laydown Area    To be executed

 

Y-3


Title of Agreement

  

Date of Agreement

BERRYMAN LAYDOWN AREA—Agreement between Berryman Investments, Inc. and Corpus Christi Liquefaction, LLC for Berryman Laydown Area    To be executed
SHERWIN TOOL AND LUNCH AREA—Agreement between Sherwin Sherwin Alumina, LLC and Corpus Christi Liquefaction, LLC for Tool and Lunch Area    To be executed

 

F. Below are documents containing the conditions and procedures required to be followed in Controlled Areas (as defined in Exhibit Y-2 and Exhibit Y-3). Such documents were previously provided to Contractor.

 

Title of Document

  

Transmittal number

Management Plan for Arsenic Impacted Groundwater, with Appendix 1 and Appendix 2    CCL-BE-CHENIERE-T200-00290
RMC Agreement to Purchase and Sell Real Estate    CCL-BE-CHENIERE-T200-00291

 

Y-4


EXHIBIT Y-1

SITE AND OFF-SITE RIGHTS OF WAY AND EASEMENTS


LOGO


EXHIBIT Y-2

STAGE 1 SITE


LOGO


EXHIBIT Y-3

STAGE 2 SITE


LOGO


EXHIBIT Y-4

CONTROLLED AREA 2 SURVEY COORDINATES


LOGO


ATTACHMENT Z

LANDOWNER ACCESS FOR STAGE 1

 

A. Persons Provided Access. Contractor shall in all cases provide access to the Site and Off-Site Rights of Way and Easements and, subject to Section 4.3 of the Agreement, coordinate the Work with the following Landowners and their representatives in accordance with the terms of this Attachment Z and Section 3.24 of the Agreement:

 

  1. Reynolds Metal Company;

 

  2. Pastor, Behling & Wheeler;

 

  3. CCC Group;

 

  4. Southcross Energy;

 

  5. Boardwalk Pipeline Partners;

 

  6. Cheniere Corpus Christi Pipeline, L.P.;

 

  7. Sherwin Alumina Company;

 

  8. Air Liquide;

 

  9. San Patricio Municipal Water District;

 

  10. Refinery Terminal Fire Company;

 

  11. City of Gregory;

 

  12. San Patricio Drainage District;

 

  13. AEP Texas;

 

  14. Port of Corpus Christi Authority of Nueces County, Texas;

 

  15. Alcoa;

 

  16. Berryman Investments, and

 

  17. Any successors-in-interest of any of the foregoing entities in the Off-Site Rights of Way and Easements.

 

B. Access Requirements. Without limiting its obligations under Section 3.24 of the Agreement, Contractor shall provide access to the foregoing Landowners and their representatives as follows:

 

  1. Contractor shall provide access to, on and transit through the Site and Off-Site Rights of Way and Easements to such Persons for the purpose of accessing the existing pipelines and other existing Landowner facilities on the Site and Off-Site Rights of Way and Easements.

 

  2. Contractor may, at its option and cost, provide escorts to such Persons when they are transiting through the Site and Off-Site Rights of Way and Easements, but Contractor is not obligated to do so.

 

  3. Owner shall ensure that such Persons will not set up additional facilities, buildings, or other structures on the portions of the Stage 1 Site, or materially interfere with Contractor’s Work.

 

Z-1


ATTACHMENT AA

FORM OF ACKNOWLEDGMENT AND

CONSENT AGREEMENT FOR STAGE 1

Bechtel Oil, Gas and Chemicals, Inc. (the “Contracting Party”) hereby acknowledges the existence of (but has not reviewed) the Security Agreement, dated as of [            ], 20[    ], (as from time to time amended, supplemented or modified, the “Security Agreement”), among Corpus Christi Liquefaction, LLC (the “Borrower”) and [                    ] as common security trustee (in such capacity, the “Common Security Trustee”), for the benefit of various financial institutions providing financing to the Borrower (collectively, the “Secured Parties”), and hereby executes this Acknowledgement and Consent Agreement (the “Consent”) and agrees as follows:

1. The Contracting Party hereby acknowledges and consents in accordance with the terms and conditions set forth below to the Borrower’s pledge and collateral assignment of all its right, title and interest in, to and under (but not, except as provided herein, its obligations, liabilities or duties with respect to) the Fixed Price Separated Turnkey Agreement for the Engineering, Procurement and Construction of the Corpus Christi Stage 1 Liquefaction Facility, dated [            ], 20[    ], between the Contracting Party and the Borrower (the “Assigned Agreement”) to the Common Security Trustee pursuant to the Security Agreement. Capitalized terms used, but not otherwise defined, herein shall have the respective meanings prescribed to such terms in the Assigned Agreement.

2. The Contracting Party represents and warrants as of the date hereof as follows:

a. The Contracting Party is a corporation duly organized, validly existing and in good standing under the laws of Delaware, is authorized and qualified to do business in all jurisdictions in which the nature of the business conducted by it makes such qualification necessary and where failure so to qualify has or could reasonably be expected to have a material adverse effect on its financial condition, operations, prospects, taxes or business.

b. The Contracting Party is not in violation of any Applicable Law or judgment entered by any Governmental Instrumentality, which violations, individually or in the aggregate, have or could reasonably be expected to have a material adverse effect on its performance of any obligations under this Consent or the Assigned Agreement. There are no legal or arbitration proceedings or any proceeding by or before any Governmental Instrumentality, now pending or (to the current actual knowledge of the Contracting Party) threatened against the Contracting Party that, if adversely determined, could reasonably be expected to have a material adverse effect on its ability to perform under this Consent or the Assigned Agreement.

c. The Contracting Party is the holder of all licenses required to permit it to operate or conduct its business in Texas now and as contemplated by the Assigned Agreement. No consent or approval of, or other action by or any notice to or filing with, any Governmental Instrumentality (except those previously obtained) was required in connection with the execution and delivery by the Contracting Party of the Assigned Agreement, or is required in connection with the execution and delivery of this Consent, or, to the best actual current knowledge of the Contracting Party, the performance of its obligations under this Consent. The Contracting Party

 

AA-1


has obtained all permits, licenses, approvals, consents and exemptions with respect to the performance of its obligations under the Assigned Agreement required by Applicable Law in effect as of the date hereof, except those permits, licenses, approvals, consents and exemptions that the Contracting Party is permitted to obtain in the ordinary course of business in the performance of its obligations under the Assigned Agreement (collectively, the “Ordinary Course Consents”).

d. Neither the execution and delivery of this Consent and the Assigned Agreement by the Contracting Party, the consummation of the transactions herein contemplated by the Contracting Party, nor compliance with the terms and provisions hereof by the Contracting Party, will:

(i) conflict with, result in a breach of or default under, or require any consent (other than consents already obtained and the Ordinary Course Consents) under: (A) the charter or by-laws of the Contracting Party, (B) any Applicable Law, (C) any order, writ, injunction or decree of any court applicable to the Contracting Party, or (D) any agreement or instrument to which the Contracting Party is a party or by which it is bound or to which it or any of its property or assets is subject in any such case under this clause (i) that has or could reasonably be expected to result in a material adverse effect upon the ability of the Contracting Party to perform its obligations under this Consent and the Assigned Agreement; or

(ii) result in the creation or imposition of (or the obligation to create or impose) any lien, security interest, charge or encumbrance upon any of the properties or assets of the Contracting Party.

e. The Contracting Party has all necessary power and authority to execute, deliver and perform its obligations under this Consent and the Assigned Agreement; the execution, delivery and performance by the Contracting Party of this Consent and the Assigned Agreement have been duly authorized by all necessary action on its part; and this Consent and the Assigned Agreement have been duly and validly executed and delivered by the Contracting Party and each constitutes a legal, valid and binding obligation of the Contracting Party enforceable in accordance with its terms, except as the enforceability thereof may be limited by bankruptcy, insolvency, reorganization or moratorium or other similar laws relating to the enforcement of creditors’ rights generally, and by general principles of equity. There are no amendments, modifications or supplements (whether by waiver, consent or otherwise) to the Assigned Agreement, either oral or written.

f. The Contracting Party is financially solvent, able to pay all debts as they mature and possesses sufficient working capital to complete the Work and perform its obligations hereunder.

g. To the Contracting Party’s current actual knowledge, the Borrower (a) has complied with all conditions precedent required to be complied with by or on behalf of the Borrower on or prior to the date hereof pursuant to the Assigned Agreement and (b) is not in default under any covenant or obligation of the Assigned Agreement and no such default has occurred prior to the date hereof.

 

AA-2


h. The Contracting Party is not, to its current actual knowledge, in default under any covenant or obligation hereunder or under the Assigned Agreement and no such default has occurred prior to the date hereof. After giving effect to the pledge and assignment referred to in paragraph 1, and after giving effect to the consent to such pledge and assignment by the Contracting Party, to the current actual knowledge of the Contracting Party, (a) there exists no event or condition that would, either immediately or with the passage of time or giving of notice, or both, entitle either the Contracting Party or the Borrower to terminate or suspend its obligations under the Assigned Agreement and (b) there are no claims or rights of set-off pending by any party to the Assigned Agreement.

i. The Contracting Party affirms that it has no written notice or current actual knowledge of any pledge or assignment relative to the right, title and interest of the Borrower in, to and under the Assigned Agreement other than the pledge and assignment referred to in paragraph 1.

3.

a. From and after the date hereof and unless and until the Contracting Party shall have received written notice from the Common Security Trustee that the lien of the Security Agreement has been released in full and provided that an event of default by the Borrower shall have occurred and be continuing pursuant to the loan documents executed in connection with the Security Agreement, the Common Security Trustee shall have the right, but not the obligation, to pay all sums due under the Assigned Agreement by the Borrower and to perform any other act, duty or obligation required of the Borrower thereunder (to the same extent as the Borrower has the right to perform any such other act, duty or obligation thereunder) at any time and, without limiting the generality of the foregoing, shall have the full right and power to enforce directly against the Contracting Party (subject to all of the Contracting Party’s defenses and other rights under the Assigned Agreement in accordance with the terms thereof) all obligations of the Contracting Party under the Assigned Agreement and otherwise to exercise all remedies thereunder and to make all demands and give all notices and make all requests required or permitted to be made by the Borrower under the Assigned Agreement, all in accordance with the terms thereof; provided that no such payment or performance shall be construed as an assumption by the Common Security Trustee or any Secured Party of any covenants, agreements or obligations of the Borrower under or in respect of the Assigned Agreement, except to the extent the Assigned Agreement shall have been expressly assumed by the Common Security Trustee pursuant to paragraph 5 hereof. Any action taken by the Common Security Trustee in accordance with this paragraph 3(a) shall be binding on the Borrower. If the Contracting Party receives any demands, notices or requests made from the Common Security Trustee in accordance with this paragraph 3(a) which are conflicting with that made by the Borrower, the Common Security Trustee’s demands, notices and requests shall control over those conflicting demands, notices or requests made by the Borrower.

b. The Contracting Party agrees that it will not terminate or suspend its obligations under the Assigned Agreement without giving the Common Security Trustee concurrent notice with notice(s) provided the Borrower pursuant to the applicable provisions of the Assigned Agreement, and, in the case of the termination of obligations, an opportunity to cure as provided in paragraph 3(c) and 3(d) below.

 

AA-3


c. If (i) the Contracting Party is entitled to terminate the Assigned Agreement for an event under Sections 16.3, 16.5, 16.6 or 16.7 of the Assigned Agreement (“Termination Event”), (ii) the Contracting Party desires to terminate its obligations under the Assigned Agreement, and (iii) notice(s) with respect to clauses (i) and (ii) shall have been provided to the Common Security Trustee by the Contracting Party as provided in paragraph 3(b) above, then, and in any such case: the Common Security Trustee may elect to exercise its right to cure by providing, within thirty (30) days after the receipt by it of the notices referred to in the preceding clause (iii), to the Contracting Party, written notice stating that the Common Security Trustee has elected to exercise such right to cure (or cause to be cured), together with a written statement of the Common Security Trustee that it will promptly commence to cure (or cause to be cured) all Termination Events susceptible of being cured (including, as appropriate, by the payment of money damages), and that it will, during the cure period, diligently attempt in good faith to complete (or cause to be completed) the curing of, to the reasonable satisfaction of the Contracting Party, all such Termination Events. If the Contracting Party is entitled to suspend performance of the Work for an event under Section 16.4 of the Assigned Agreement (“Suspension Event”), the Contracting Party may, provided that notice to the Common Security Trustee shall have been provided to the Common Security Trustee as provided in paragraph 3(b) above, suspend performance of the Work in accordance with the terms of the Assigned Agreement until such time as (a) the Borrower has cured the Suspension Event or (b) the Common Security Trustee has cured (or caused to be cured) such Suspension Event in accordance with paragraph 3(d). The preceding sentence shall in no way limit any rights the Contracting Party may otherwise have to terminate the Assigned Agreement, subject to the other provisions of this Consent. Notwithstanding anything to the contrary in this paragraph 3(c), in no event shall this paragraph 3(c) be interpreted to change the Contracting Party’s rights to suspend performance of the Work under the Assigned Agreement or terminate the Assigned Agreement, except to the extent of the Common Security Trustee’s right to effect a cure in accordance with paragraph 3(c) for a Termination Event or Suspension Event and paragraph 3(d) for a Termination Event.

d. The Common Security Trustee shall have a period equal to forty-five (45) days in the event of default in payment of undisputed amounts under Section 16.5 of the Assigned Agreement or ninety (90) days in other cases, after the delivery of the notice by the Common Security Trustee referred to in paragraph 3(c) in which to cure the Termination Event(s) specified in such notice; provided that if such cure of any non-payment default can only be effected through a foreclosure on the Project (as defined in the Security Agreement), then, provided that the Common Security Trustee makes, and continues to make, timely payment to the Contracting Party of all sums due under the Assigned Agreement, and, subject to paragraph 3(f) hereof, shall either make current payment to or provide the Contracting Party with assurance(s) of current payment reasonably satisfactory to the Contracting Party of all reasonable delay and incremental costs reasonably incurred by the Contracting Party thereafter, the Common Security Trustee shall have such additional reasonable period of time as is necessary to effect such foreclosure. Notwithstanding the foregoing, no such cure of a payment shall be construed as an assumption by the Common Security Trustee or any Secured Party of any covenants, agreements or obligations of the Borrower under or in respect of the Assigned Agreement.

e. If, before the Common Security Trustee shall have cured any Termination Event pursuant to paragraph 3(d), the Borrower shall have cured such Termination Event, the Contracting Party promptly shall provide the Common Security Trustee with notice of such cure and the discontinuance of such Termination Event.

 

AA-4


f. In the event any delay and incremental costs are due and payable to the Contracting Party under the terms of this Consent, the Contracting Party shall take all reasonable steps necessary to mitigate such delay and incremental costs.

g. The Common Security Trustee’s right to cure Borrower defaults under the Assigned Agreement or otherwise take action on behalf of the Borrower under this paragraph 3 shall not arise until after the initial disbursement of any of the Secured Parties’ loans.

4.

a. Notwithstanding any provision in the Assigned Agreement to the contrary, in the event of the rejection or termination of the Assigned Agreement by a receiver of the Borrower or otherwise pursuant to bankruptcy or insolvency proceedings, then, provided that the Common Security Trustee shall have made payment to the Contracting Party of all sums due under the Assigned Agreement and, subject to paragraph 3(f) hereof, shall either make current payment to or provide the Contracting Party with assurance(s) of current payment reasonably satisfactory to the Contracting Party of all reasonable delay and incremental costs incurred by the Contracting Party during the period of time required for the following activities, the Contracting Party will enter into a new agreement with the Common Security Trustee or, at the Common Security Trustee’s request, with the Common Security Trustee’s nominee, effective as of the date of such rejection, with substantially the same covenants, agreements, terms, provisions and limitations as are contained in the Assigned Agreement; provided that the Common Security Trustee shall have made a request to the Contracting Party for such new agreement within ninety (90) days after the date the Common Security Trustee receives notice from the Contracting Party of the rejection of the Assigned Agreement and provided further that the Contracting Party shall have been provided assurances of payment and security for payment reasonably satisfactory to the Contracting Party.

b. If the Common Security Trustee or its nominee is prohibited by any process or injunction issued by any court having jurisdiction of any bankruptcy or insolvency proceeding involving the Borrower, from continuing the Assigned Agreement in place of the Borrower or from otherwise exercising any of its rights or remedies hereunder or under the Security Agreement in respect of the Assigned Agreement, then, provided that the Common Security Trustee shall have made payment to the Contracting Party of all sums due under the Assigned Agreement and, subject to paragraph 3(f) hereof, shall either make current payment to or provide the Contracting Party with assurance(s) of current payment reasonably satisfactory to the Contracting Party of all reasonable delay and incremental costs incurred by the Contracting Party thereafter, the times specified herein for the exercise by the Common Security Trustee of any right or benefit granted to it hereunder (including without limitation the time period for the exercise of any cure rights granted hereunder) shall be extended for the period of such prohibition; provided that the Common Security Trustee is diligently pursuing such rights or remedies (to the extent permitted) in such bankruptcy or insolvency proceeding or otherwise.

c. The Common Security Trustee shall not take action under this paragraph 4 until after the initial disbursement of any of the Secured Parties’ loans.

 

AA-5


5. Provided that an event of default by Borrower shall have occurred and be continuing pursuant to the loan documents executed in connection with the Security Agreement, the Contracting Party agrees that the Common Security Trustee may (but shall not be obligated to) pursuant to the terms of the Security Agreement assume, or cause any purchaser at any foreclosure sale or any assignee or transferee under any instrument of assignment or transfer in lieu of foreclosure to assume, all of the interests, rights and all of the obligations of the Borrower thereafter arising under the Assigned Agreement, provided that as conditions precedent to or concurrent with any such assignment or transfer, (a) the Common Security Trustee shall have made or caused to be made payment to the Contracting Party of all sums due hereunder or under the Assigned Agreement, and, subject to paragraph 3(f) hereof, all reasonable delay and incremental costs incurred by the Contracting Party during the period of time preceding such assignment or transfer, if any, and (b) the assuming party shall have executed an agreement in writing to be bound by and to assume all of the obligations to the Contracting Party arising or accruing thereunder from and after the date of such assumption, and shall have provided the Contracting Party with assurances of future payment and security for future payment reasonably satisfactory to the Contracting Party. If the interests, rights and obligations of the Borrower in the Assigned Agreement shall be assumed, sold or transferred as provided herein, then the Contracting Party shall continue to perform its obligations under the Assigned Agreement in favor of the assuming party as if such party had thereafter been named as the Borrower under the Assigned Agreement; provided that if the Common Security Trustee (or any entity acting on behalf of the Common Security Trustee or any of the other Secured Parties) assumes the Assigned Agreement as provided above, such party shall not be liable for the performance of the obligations thereunder except to the extent of all of its right, title and interest in and to the Project (as defined in the Security Agreement). Notwithstanding any such assumption or disposition by the Common Security Trustee, a purchaser, an assignee or a transferee, the Borrower shall not be released or discharged from and shall remain liable for any and all of its obligations to the Contracting Party arising or accruing under the Assigned Agreement prior to such assumption and the Contracting Party retains all rights under the Assigned Agreement relating to any breach thereof by the Borrower or the assuming party. The Common Security Trustee shall not take action under this paragraph 5 until after the initial disbursement of any of the Secured Parties’ loans.

6. The Contracting Party shall make all payments due to the Borrower under the Assigned Agreement to [                    ], acting as the Accounts Bank to Account No. [                    ], ABA No. [                    ], FFC: [                    ]. All parties hereto agree that each payment by the Contracting Party to the Accounts Bank of amounts due to the Borrower from the Contracting Party under the Assigned Agreement shall satisfy the Contracting Party’s corresponding payment obligation under the Assigned Agreement.

7. Except for Change Orders, no amendment or modification of, or waiver by or consent of, the Borrower in respect of, any provision of the Assigned Agreement shall be effective unless the same shall be in writing, in accordance with the requirements of the Assigned Agreement, prior written notice thereof shall have been given to the Common Security Trustee and the Common Security Trustee shall have given its consent. No Change Order shall be effective unless the same shall be in writing, in accordance with the requirements of the Assigned Agreement, prior written notice thereof shall have been given to the Common Security Trustee and

 

AA-6


the Common Security Trustee shall have given its consent, provided that as between the Contracting Party and the Common Security Trustee only, and without derogation of the Borrower’s obligations under the loan documents entered into in connection with the Security Agreement, (i) in the case of any one Change Order, prior written notice to and consent by the Common Security Trustee is not required if such Change Order would result in an increase in the Contract Price (as defined in the Assigned Agreement) in an amount less than Twenty Five Million U.S. Dollars (U.S.$25,000,000) or (ii) in the case of a Change Order in conjunction with other Change Orders, prior written notice to and consent by the Common Security Trustee of such Change Order is not required if such Change Orders would in themselves result in an increase in the Contract Price in an amount less than One Hundred Fifty Million U.S. Dollars (U.S.$150,000,000), and provided further that the foregoing shall not impair any rights the Contracting Party may have to any Change Order under the Assigned Agreement. This Consent may be amended or modified only by an instrument in writing signed by the Contracting Party, the Borrower and the Common Security Trustee.

8. The Contracting Party shall deliver to the Common Security Trustee concurrently with the delivery thereof to the Borrower, a copy of the following items if and when provided by the Contracting Party to the Borrower pursuant to the Assigned Agreement: (a) notification prior to cancellation, non-renewal or a material change in the insurance coverage required under the terms of the Assigned Agreement; (b) notification of termination; (c) notification of suspension of all of the Work; (d) notification of default by the Borrower; (e) notification of claims, demands, actions or causes of actions asserted against the Contracting Party for which the Borrower has indemnification obligations; and (f) notification of request for arbitration.

9. The Contracting Party shall provide to the Common Security Trustee any information or documentation as reasonably requested by the Common Security Trustee in connection with the financing of the Borrower’s obligations under the Assigned Agreement including, without limitation, the following: (a) an opinion of counsel of Contracting Party customary for a project financing with respect to the authorization, execution, delivery and enforceability, and other similar issues, of the Assigned Agreement and this Consent; (b) a certificate of an authorized officer of Contracting Party certifying that (i) all amounts due and payable under the Assigned Agreement have been paid other than those amounts payable in respect of the current invoice and (ii) no event or condition exists to the Contracting Party’s current actual knowledge which constitutes a default by the Borrower under the Assigned Agreement; and (c) a copy of a certificate of good standing of, and payment of franchise taxes by, the Contracting Party issued by the Secretary of State of Delaware.

 

AA-7


10. Notice to any party hereto shall be deemed to be delivered on the earlier of: (a) the date of personal delivery and (b) if deposited in a United States Postal Service depository, postage prepaid, registered or certified mail, return receipt requested, addressed to such party at the address indicated below (or at such other address as such party may have theretofore specified by written notice delivered in accordance herewith), upon delivery or refusal to accept delivery, in each case as evidenced by the return receipt:

 

The Common Security Trustee:   

[                    ]

[                    ], [                    ]

[                    ]

The Borrower:   

Corpus Christi Liquefaction, LLC

700 Milam, Suite 800

Houston, Texas 77002

Telephone: ***

Facsimile: ***

Attn: ***

Email: ***

 

with a copy to:

 

Corpus Christi Liquefaction, LLC

700 Milam, Suite 800

Houston, Texas 77002

Facsimile: ***

Attn: ***

The Contracting Party:   

Bechtel Oil, Gas and Chemicals, Inc.

3000 Post Oak Boulevard

Houston, Texas 77056

Facsimile: ***

Attn: ***

Email: ***

 

with a copy to:

 

Bechtel Corporation

3000 Post Oak Boulevard

Houston, Texas 77056

Facsimile: ***

Attn: Principal Counsel

11. This Consent shall be binding upon and shall inure to the benefit of the respective successors and permitted assigns of the Contracting Party, the Borrower, the Common Security Trustee and the Secured Parties (provided, however, that the Contracting Party shall not assign or transfer it rights hereunder without the prior written consent of the Common Security Trustee).

12. This Consent may be executed in one or more counterparts with the same effect as if the signatures thereto and hereto were upon the same instrument. This Consent shall become effective at such time as the Common Security Trustee shall have received counterparts hereof signed by all of the intended parties hereto.

 

AA-8


13. For purposes of this Consent, the term “day” or “days” shall mean calendar days unless otherwise defined herein.

14. No failure on the part of any party or any of its agents to exercise and no delay in exercising, and no course of dealing with respect to, any right, power or privilege hereunder shall operate as a waiver thereof (subject to any statute of limitations), and no single or partial exercise of any right, power or privilege hereunder shall preclude any other or further exercise thereof or the exercise of any other right power or privilege.

15. If any provision hereof is invalid and unenforceable in any jurisdiction, then, to the fullest extent permitted by law, (a) the other provisions hereof shall remain in full force and effect in such jurisdiction and shall be liberally construed to carry out the intentions of the parties hereto as nearly as may be possible and (b) the invalidity or unenforceability of any provision hereof in any jurisdiction shall not affect the validity or enforceability of such provision in any other jurisdiction.

16. The agreements of the parties hereto are solely for the benefit of the Contracting Party, the Borrower, the Common Security Trustee and the Secured Parties, and no Person (other than the parties hereto and the Secured Parties and their successors and assigns permitted hereunder) shall have any rights hereunder.

17. This Consent shall terminate upon the indefeasible payment in full of all amounts owed in connection with the Security Agreement.

18. THIS CONSENT SHALL BE GOVERNED BY, AND CONSTRUED IN ACCORDANCE WITH THE LAW OF THE STATE OF NEW YORK WITHOUT REGARD TO PRINCIPLES OF CONFLICT OF LAWS THEREOF OTHER THAN SECTION 5-1401 OF THE NEW YORK GENERAL OBLIGATIONS LAW. THE CONTRACTING PARTY, THE COMMON SECURITY TRUSTEE AND THE BORROWER HEREBY SUBMIT TO THE NONEXCLUSIVE JURISDICTION OF THE UNITED STATES DISTRICT COURT FOR THE SOUTHERN DISTRICT OF NEW YORK AND OF ANY NEW YORK STATE COURT SITTING IN NEW YORK CITY FOR THE PURPOSES OF ALL LEGAL PROCEEDINGS ARISING OUT OF OR RELATING TO THIS CONSENT OR THE TRANSACTIONS CONTEMPLATED HEREBY, EXCEPT FOR DISPUTES ARISING OUT OF OR RELATING TO THE ASSIGNED AGREEMENT WHICH WILL CONTINUE TO BE GOVERNED EXCLUSIVELY BY ARTICLE 18 OF THE ASSIGNED AGREEMENT. THE CONTRACTING PARTY, THE COMMON SECURITY TRUSTEE AND THE BORROWER IRREVOCABLY WAIVE, TO THE FULLEST EXTENT PERMITTED BY LAW, ANY OBJECTION WHICH IT MAY NOW OR HEREAFTER HAVE TO THE LAYING OF THE VENUE OF ANY SUCH PROCEEDING BROUGHT IN SUCH A COURT AND ANY CLAIM THAT ANY SUCH PROCEEDING BROUGHT IN SUCH A COURT HAS BEEN BROUGHT IN AN INCONVENIENT FORUM.

19. EACH OF THE CONTRACTING PARTY, THE COMMON SECURITY TRUSTEE AND THE BORROWER HEREBY IRREVOCABLY WAIVES, TO THE FULLEST

 

AA-9


EXTENT PERMITTED BY LAW, ANY AND ALL RIGHT TO TRIAL BY JURY IN ANY LEGAL PROCEEDING ARISING OUT OF OR RELATING TO THIS CONSENT OR THE TRANSACTIONS CONTEMPLATED HEREBY.

20. NOTWITHSTANDING ANY OTHER PROVISIONS OF THIS AGREEMENT, NONE OF THE CONTRACTING PARTY, THE COMMON SECURITY TRUSTEE, NOR THE BORROWER, SHALL BE LIABLE UNDER THIS CONSENT, WHETHER IN CONTRACT, WARRANTY, TORT (INCLUDING NEGLIGENCE), STRICT LIABILITY, PRODUCTS LIABILITY, PROFESSIONAL LIABILITY, INDEMNITY, CONTRIBUTION, OR ANY OTHER CAUSE OF ACTION FOR SPECIAL, INDIRECT, INCIDENTAL OR CONSEQUENTIAL LOSSES OR DAMAGES, INCLUDING LOSS OF PROFITS, LOSS OF USE, LOSS OF OPPORTUNITY, LOSS OF REVENUES, LOSS OF FINANCING, LOSS OR INCREASE OF BONDING CAPACITY, COSTS OF OBTAINING OR MAINTAINING FINANCING, LOSS OF GOODWILL, OR BUSINESS INTERRUPTION, OR DAMAGES OR LOSSES FOR PRINCIPAL OFFICE EXPENSES INCLUDING COMPENSATION OF PERSONNEL STATIONED THERE (“CONSEQUENTIAL DAMAGES”), AND THE CONTRACTING PARTY, THE COMMON SECURITY TRUSTEE, AND THE BORROWER DO HEREBY RELEASE EACH OTHER FROM ANY LIABILITY FOR SUCH CONSEQUENTIAL DAMAGES; PROVIDED THAT THE EXCLUSION OF LIABILITY SET FORTH IN THIS SECTION IS NOT INTENDED TO PRECLUDE RECOVERIES AS PERMITTED PURSUANT TO SECTION 20.4 OF THE ASSIGNED AGREEMENT WITH RESPECT TO OBLIGATIONS UNDER THE ASSIGNED AGREEMENT ONLY.

(Signature page follows.)

 

AA-10


IN WITNESS WHEREOF, the parties hereto have caused their duly authorized officers to execute and deliver this Consent as of the      day of             , 20    .

 

[  

 

  ]

 

By:  

 

Name:  
Title:  

SIGNATURE PAGE TO EPC DIRECT AGREEMENT


BECHTEL OIL, GAS AND CHEMICALS, INC.
By:  

 

Name:  
Title:  

SIGNATURE PAGE TO EPC DIRECT AGREEMENT


ACKNOWLEDGED and AGREED
CORPUS CHRISTI LIQUEFACTION, LLC
By:  

 

Name:  
Title:  

SIGNATURE PAGE TO EPC DIRECT AGREEMENT


ATTACHMENT BB

FORM OF OWNER CONFIRMATIONS FOR STAGE 1

 

BB-1


SCHEDULE BB-1

FORM OF OWNER QUARTERLY CONFIRMATION

Bechtel Oil, Gas and Chemicals, Inc.

3000 Post Oak Boulevard

Houston, Texas 77056

Attn: ***

 

Re: Owner Quarterly Confirmation

As of the date of this confirmation and so far as I am aware, Corpus Christi Liquefaction, LLC has sufficient funds, in an amount at least equal to the committed fund levels as required by Section 4.1B of the Fixed Price Separated Turnkey Agreement for the Engineering, Procurement and Construction of the Corpus Christi Stage 1 Liquefaction Facility dated [            , 20    ] (the “Agreement”), through itself and financing to continue to fulfill its payment obligations under the Agreement, and no event has come to the attention of Corpus Christi Liquefaction, LLC which would materially and adversely affect the continued availability of such funding. This confirmation shall not be construed in any way such as to relieve Bechtel Oil, Gas and Chemicals, Inc. from its obligations and liabilities under the Agreement.

This confirmation is prepared expressly and exclusively for the use and benefit of Bechtel Oil, Gas and Chemicals, Inc.

 

 

Signature and Title of Appropriate Senior Officer of Corpus Christi Liquefaction, LLC

 

Date  

 

cc: Bechtel Oil, Gas and Chemicals, Inc.

3000 Post Oak Boulevard

Houston, Texas 77056

Attn: Principal Counsel

 

BB-2


ATTACHMENT CC

INDEPENDENT ENGINEER ACTIVITIES FOR STAGE 1

Owner has overall responsibility to coordinate the activities of Independent Engineer, including but not limited to (i) arranging visits to Contractor’s offices and to the Stage 1 Site, (ii) forwarding relevant Project reports and documentation to Independent Engineer, and (iii) transmitting comments and feedback, if any, from Independent Engineer to Contractor. Independent Engineer shall comply with all Stage 1 Site safety programs in effect while on the Stage 1 Site. With respect to the activities of Independent Engineer, Owner is responsible for the actions of Independent Engineer.

Independent Engineer shall not be entitled to issue any instruction or directive to Contractor or any of its Subcontractors or Sub-subcontractors in connection with performance of the Work. Contractor shall reasonably cooperate with Independent Engineer in the conduct of his or her duties in relation to the Liquefaction Facility and the Work, including but not limited to, the activities of Independent Engineer set forth below:

 

1. Conduct quarterly Stage 1 Site visits, including:

 

  a. Evaluation of the progress of the Work against the Milestones set forth in Attachment C, Schedule C-1 and the Level III CPM Schedule;

 

  b. Observation of general standard of workmanship and performance of spot checks of Contractor’s quality records;

 

  c. Review of incurred and potential delays and proposed Recovery Schedule, if any;

 

  d. Review of Contractor Permits obtained and assessment of Contractor’s ability to obtain outstanding Contractor Permits;

 

  e. Review and report on Contractor’s health, safety and environmental compliance programs; and

 

  f. Evaluation of Contractors safety statistics;

 

2. Verify Contractor’s achievement of each Milestone per Attachment C-1 (including achievement of RFSU, Ready for Performance Testing (“RFPT”), Substantial Completion and Final Completion);

 

3. Review Contractor’s Monthly Progress Reports;

 

4. Monitor and review each Change Order approved by the Owner;

 

5. Review performance and/or operational test reports for each utility system and confirm satisfactory performance;

 

6. Review all necessary reports and data associated with the pre-commissioning and commissioning of the Stage 1 Liquefaction Facility;

 

CC-1


7. Review Contractor’s proposed Performance Test plans and procedures and confirm compliance with Performance Test criteria specified in Attachment S and Attachment T, Applicable Codes and Standards, Applicable Law, Equipment manufacturers’ recommendations, GECP, and loan documents with Lender;

 

8. Witness Performance Tests, including:

 

  a. Observation of data collection procedures, instrumentation calibration and operating and testing personnel during the Performance Tests;

 

  b. Verification of compliance of operational and regulatory requirements with Agreement requirements, as well as Permits;

 

  c. Evaluation of compliance with Performance Guarantees and, if applicable, calculation of Liquidated Damage payments;

 

  d. Review and comment to Owner on Contractor’s Performance Test reports; and

 

  e. Verification of data collection and calculation procedures used to adjust Performance Test results to the Performance Guarantee conditions set forth in Attachment S of the Agreement;

 

9. Verify that Punchlist items are complete in all material respects, as inspected and verified by Owner personnel; and

 

10. Sign and submit the RFSU Completion Certificate, Substantial Completion Certificate and the Final Completion Certificate confirming that all conditions of RFSU, RFPT, Substantial Completion and Final Completion, as the case may be, have been achieved.

 

CC-2


ATTACHMENT DD

FORM OF ESCROW AGREEMENT FOR STAGE 1

THIS ESCROW AGREEMENT (this “Escrow Agreement”) is entered into as of [            ], 20[            ] (the “Effective Date”) by and among CORPUS CHRISTI LIQUEFACTION, LLC, a Delaware limited liability company (“Owner”), and BECHTEL OIL, GAS AND CHEMICALS, INC., a Delaware corporation, (“Contractor” and, together with Owner, each a “Party” and, collectively, the “Parties”), and [NAME OF ESCROW AGENT], a [jurisdiction] State bank with an office in [city            ], [            ] County, [            ] (“Escrow Agent”). Capitalized terms used, but not otherwise defined, herein shall have the respective meanings ascribed to such terms in the EPC Agreement (as defined below).

W I T N E S S E T H :

WHEREAS, pursuant to the terms of the Fixed Price Separated Turnkey Agreement for the Engineering, Procurement and Construction of the Corpus Christi Stage 1 Liquefaction Facility, dated as of [            ], 20[            ], by and between Owner and Contractor (the “EPC Agreement”), Contractor will provide services for the engineering, procurement and construction of the Stage 1 Liquefaction Facility, and the commissioning, start-up and testing of the Liquefaction Facility; and

WHEREAS, pursuant to Section 18.4 of the EPC Agreement, Owner has the obligation, in certain circumstances, to deliver the Escrow Funds (as defined below) to be set aside in the Escrow Account pursuant to the terms of this Escrow Agreement; and

WHEREAS, Owner and Contractor have mutually agreed upon and selected Escrow Agent to serve as the escrow agent for the Escrow Funds subject to the terms and conditions of this Escrow Agreement; and

WHEREAS, Escrow Agent is willing to serve in such capacity subject to the terms and conditions of this Escrow Agreement.

NOW, THEREFORE, in consideration of the premises and mutual covenants and agreements contained herein, the Parties and Escrow Agent, intending to be legally bound, agree as follows:

1. Appointment of Escrow Agent. Owner and Contractor hereby appoint and designate [Name of Escrow Agent] as escrow agent to receive, hold, administer, invest and disburse the Escrow Funds in accordance with the terms of this Escrow Agreement. Escrow Agent hereby accepts its appointment as Escrow Agent and agrees to hold, administer, invest and disburse the Escrow Funds in accordance with the terms of this Escrow Agreement.

2. Delivery of the Escrow Funds. Pursuant to Section 18.4 of the EPC Agreement, Owner and Contractor have agreed that Owner shall have the obligation in certain circumstances to deliver by wire transfer to Escrow Agent certain sums to be held by Escrow Agent in accordance with the terms of this Escrow Agreement (the “Escrow Funds”). Subject to and in accordance with the terms and conditions hereof, Escrow Agent agrees that it shall receive, hold in escrow, invest and reinvest, and release or disburse the Escrow Funds. It is hereby expressly stipulated and agreed that all interest and other earnings on the Escrow Funds shall be added to and become a part of the Escrow Funds for all purposes, and that all losses resulting from the investment or reinvestment thereof from time to time and any amounts which may be charged thereto in accordance with Section 10 to compensate or reimburse Escrow Agent from time to time for amounts owing to it hereunder shall from the time of such loss or charge no longer constitute part of the Escrow Funds.

 

DD-1


3. Investment of the Escrow Funds. Escrow Agent shall invest and reinvest the Escrow Funds in short-term U.S. government notes maturing within thirty (30) calendar days (“Days”), as determined by the Escrow Agent. It is understood and agreed that the Escrow Agent or its affiliates are permitted to receive additional compensation that could be deemed to be in the Escrow Agent’s economic self-interest for (i) serving as investment advisor, administrator, shareholder servicing agent, custodian or sub-custodian with respect to certain of the investments; (ii) using affiliates to effect transactions in certain investments; and (iii) effecting transactions in investments.

Receipt, disbursement, investment and reinvestment of the Escrow Funds shall be confirmed by Escrow Agent within thirty (30) Days of such receipt, disbursement, investment or reinvestment by an account statement delivered to the Parties by Escrow Agent, and any discrepancies in any such account statement shall be noted by the Parties to Escrow Agent within thirty (30) Days after receipt thereof. Failure to inform Escrow Agent in writing of any discrepancies in any such account statement within said thirty (30)-Day period shall be presumed to constitute confirmation of such account statement in its entirety. For purposes of this paragraph, each account statement shall be deemed to have been received by the Party to whom directed on the earlier to occur of (i) actual receipt thereof and (ii) three (3) Business Days after the deposit thereof in the United States Mail, postage prepaid. The term “Business Day” shall mean any day of the year, excluding Saturday, Sunday and any other day on which banks are required or authorized to close in Houston, Texas.

4. Release of the Escrow Funds. Escrow Agent shall disburse the Escrow Funds to Owner or Contractor, or their assigned representatives, only upon the following conditions and/or circumstances:

(a) Escrow Agent shall disburse the Escrow Funds, in whole or in part, as directed by Owner and Contractor in a notarized writing in substantially the form of Exhibit 1, attached hereto (“Joint Notice”), executed by authorized representatives of Owner and Contractor and setting forth, at a minimum, (i) the amount of the Escrow Funds (plus accrued interest) to be disbursed, (ii) the percentage allocation of the Escrow Funds (plus accrued interest) to be disbursed between Owner and Contractor, and (iii) the timing of when the disbursement shall occur; OR,

(b) Escrow Agent shall disburse the Escrow Funds, in whole or in part, as directed by Owner in a notarized writing delivered to Escrow Agent (with a copy by facsimile and registered mail to Contractor), in substantially the form of Exhibit 2, attached hereto (“Owner’s Notice”), setting forth, at a minimum, (i) the amount of the Escrow Funds (plus accrued interest) to be disbursed and (iii) the timing of when the disbursement shall occur; provided that Contractor has not provided its objection in writing to Escrow Agent (with a copy by facsimile and registered mail provided to Owner) (“Objection Notice”) within sixty (60) Days of receipt of Owner’s Notice, such Objection Notice setting forth in reasonable detail Contractor’s rationale for objecting to the disbursement terms set forth in Owner’s Notice; OR

(c) Escrow Agent shall disburse the Escrow Funds, if any, upon Escrow Agent’s receipt of a court order or other legal and binding directive (including but not limited to a binding order from an arbitrator and any decision by an arbitration panel or arbitrator within the

 

DD-2


scope of Section 18.2 of the EPC Agreement) requiring Escrow Agent to disburse such Escrow Funds in accordance with the terms of such court order or directive, irrespective of whether such court order or other legal and binding directive or arbitration decision is subject to appeal or has been appealed.

5. Interest. Upon disbursement of the Escrow Funds pursuant to Section 4 or hereof, any interest accrued on such Escrow Funds shall be disbursed to Owner.

6. Tax Matters. Through execution of this Escrow Agreement, Owner and Contractor hereby each provide Escrow Agent with their respective taxpayer identification number documented on the signature page of this Escrow Agreement. Owner and Contractor shall provide Escrow Agent with the taxpayer identification number(s) of any recipient, other than Escrow Agent, of funds to be disbursed from the Escrow Funds. Owner and Contractor understand that the failure to provide such information as to any recipient may prevent or delay disbursements from the Escrow Funds and may also result in the assessment of a penalty and Escrow Agent’s being required to withhold tax on any interest or other income earned on the Escrow Funds. Any payments of income shall be subject to applicable withholding regulations then in force in the United States or any other jurisdiction, as applicable. Solely for purposes of ensuring the regular payment of taxes upon Escrow Funds, the Parties agree that Owner shall be treated as the owner of the Escrow Funds for federal and state income tax purposes and that Owner shall include in taxable income the earnings on the Escrow Funds.

7. Limited Liability of Escrow Agent. In performing its duties under this Escrow Agreement or upon the claimed failure to perform its duties hereunder, Escrow Agent shall have no liability except for Escrow Agent’s willful misconduct or gross negligence. The Escrow Agent’s sole responsibility shall be for the safekeeping and disbursement of the Escrow Funds in accordance with the terms of this Escrow Agreement. The Escrow Agent shall have no implied duties or obligations and shall not be charged with knowledge or notice of any fact or circumstance not specifically set forth herein or in any notice given to it under this Escrow Agreement in accordance with Section 11 hereof. The Escrow Agent shall be entitled to rely upon and shall be protected in acting upon any request, instructions, statement or other instrument, not only as to its due execution, validity and effectiveness, but also as to the truth and accuracy of any information contained therein, which Escrow Agent shall in good faith believe to be genuine, to have been signed or presented by the Person or Parties purporting to sign the same and to conform to the provisions of this Escrow Agreement. In no event shall Escrow Agent be liable for incidental, indirect, special, consequential or punitive damages. The Escrow Agent shall not be obligated to take any legal action or to commence any proceeding in connection with the Escrow Funds or to appear in, prosecute or defend any such legal action or proceedings. The Escrow Agent may consult legal counsel selected by it in the event of any dispute or question as to the construction of any of the provisions hereof or of any other agreement or of its duties hereunder, and shall incur no liability and shall be fully protected from any liability whatsoever in acting in accordance with the opinion or instruction of such counsel. Owner and Contractor, jointly and severally, shall promptly pay, upon demand (in accordance with the procedures set forth in Section 10 hereof), the reasonable fees and expenses of any such counsel; provided, however, Owner and Contractor agree that such fees and expenses shall be borne equally between Owner and Contractor. The Escrow Agent shall have no obligations or responsibilities in connection with the EPC Agreement, or any other agreement between the Parties, other than this Escrow Agreement.

 

DD-3


8. Right of Interpleader. Should any controversy arise involving the Parties and Escrow Agent, or any of them or any other person, firm or entity with respect to this Escrow Agreement or the Escrow Funds, or should a substitute escrow agent fail to be designated as provided in Section 14 hereof, or if Escrow Agent should be in doubt as to what action to take, Escrow Agent shall have the right, but not the obligation, either to (i) withhold delivery of the Escrow Funds until the controversy is resolved, the conflicting demands are withdrawn or its doubt is resolved or (ii) institute a petition for interpleader in a court in Harris County, Texas to determine the rights of the Parties and Escrow Agent. Should a petition for interpleader be instituted, or should Escrow Agent be threatened with litigation or become involved in litigation in any manner whatsoever in connection with this Escrow Agreement or the Escrow Funds, Owner and Contractor hereby jointly and severally agree to reimburse Escrow Agent for its reasonable attorneys’ fees and any and all other reasonable expenses, losses, costs and damages incurred by Escrow Agent in connection with or resulting from such threatened or actual litigation prior to any disbursement hereunder, except to the extent that any such expense, loss, cost or damage results from the willful misconduct or gross negligence of Escrow Agent.

9. Exculpation of Escrow Agent. It is agreed that the duties of Escrow Agent are herein specifically provided and are purely ministerial in nature, and that Escrow Agent shall incur no liability whatsoever except for its willful misconduct or gross negligence, so long as Escrow Agent is acting in good faith. The Parties do hereby release Escrow Agent from any liability for any error or judgment or for any act done or omitted to be done by Escrow Agent in good faith performance of its duties hereunder and do each, jointly and severally, indemnify Escrow Agent against, and agree to hold harmless, save and defend Escrow Agent from, any costs, liabilities, and expenses incurred by Escrow Agent in serving as Escrow Agent hereunder and in faithfully discharging its duties and obligations hereunder.

10. Compensation and Reimbursement of Expenses. The Parties shall compensate Escrow Agent for its services hereunder in accordance with Exhibit 3 attached hereto and, in addition, shall reimburse Escrow Agent for all of its reasonable out-of-pocket expenses incurred in the performance of its duties and enforcement of its rights hereunder and otherwise in connection with the preparation, operation, administration and enforcement of this Escrow Agreement, including, without limitation, attorneys’ fees, brokerage costs and related expenses incurred by Escrow Agent (collectively, the “Fees”). All of the compensation and reimbursement obligations set forth in this Section 10 shall be payable within ten (10) Business Days following the Parties’ receipt of notice from Escrow Agent that such payment should be made. The Parties agree that the Fees shall be borne equally by the Parties and the Fees may be deducted from the Escrow Funds. Solely in the event and to the extent that the Parties shall have failed to provide payment to Escrow Agent within the ten (10) Business Day period set forth in the preceding sentence, Escrow Agent is authorized to disburse to itself from the Escrow Funds the amount(s) not paid, subject to Escrow Agent’s restoration of such payment to the Escrow Funds should the applicable payment be later received by Escrow Agent.

11. Notices. All notices, communications and deliveries under this Escrow Agreement will be made in writing signed by or on behalf of the party making the same, will specify the Section under this Escrow Agreement pursuant to which it is given or being made, and will be delivered (i) by facsimile, (ii) by personal delivery or (iii) by express air courier, return receipt requested (with evidence of delivery and postage and other fees prepaid) as follows:

 

DD-4


If to Escrow Agent:

[Name of Escrow Agent]

[Address]

Attn: [                                         ]

Facsimile: [                                 ]

Telephone No.: [                       ]

If to Owner:

Corpus Christi Liquefaction LLC

700 Milam Street, Suite 800

Houston, Texas 77002

Facsimile: ***

Attn: ***

with a copy to:

Corpus Christi Liquefaction LLC

700 Milam Street, Suite 800

Houston, Texas 77002

Facsimile: ***

Attn: ***

If to Contractor:

Bechtel Oil, Gas and Chemicals, Inc.

3000 Post Oak Boulevard

Houston, Texas 77056

Facsimile: ***

Attn: [                     ]

with a copy to:

Bechtel Oil, Gas and Chemicals, Inc.

3000 Post Oak Boulevard

Houston, Texas 77056

Facsimile: ***

Attn: Principal Counsel

Except to the extent otherwise provided in the second paragraph of Section 3 herein, delivery of any communication given in accordance herewith shall be effective only upon actual receipt thereof by the party or parties to whom such communication is directed. The Parties or Escrow Agent may change the address to which communications hereunder are to be directed by giving written notice to the other parties hereto in the manner provided in this Section 11. All signatures of the parties to this Escrow Agreement may be transmitted by facsimile, and such facsimile will, for all purposes, be deemed to be the original signature of such party whose signature it reproduces, and will be binding upon such party.

 

DD-5


12. Authorization. Each Party to this Agreement, on behalf of itself and the Escrow Agent, on behalf of itself, acknowledges and represents that the signatories for each Party and the Escrow Agent to this Escrow Agreement have the requisite authorization to bind the Parties and Escrow Agent hereto.

13. Choice of Laws; Cumulative Rights. This Escrow Agreement shall be governed by, and construed in accordance with, the laws of the state of Texas, without giving effect to the principles thereof relating to conflicts of law. All of Escrow Agent’s rights hereunder are cumulative of any other rights it may have at law, in equity or otherwise. The Parties and Escrow Agent agree that the forum for resolution of any dispute arising under this Escrow Agreement shall be in a court in Harris County, Texas.

14. Resignation or Removal of Escrow Agent. Escrow Agent may resign from the performance of its duties hereunder at any time by providing thirty (30) Days’ prior written notice to Owner and Contractor or may be removed, with or without cause, by Owner and Contractor, acting jointly, at any time by providing thirty (30) Days’ prior written notice to Escrow Agent. Such resignation or removal shall take effect upon the appointment of a successor escrow agent as provided herein. Upon any such notice of resignation or removal, Owner and Contractor, acting jointly, shall appoint a successor escrow agent hereunder, which shall be a commercial bank, trust company or other financial institution with a combined capital and surplus in excess of $100,000,000, unless otherwise agreed by Owner and Contractor as evidenced by written instructions executed by Owner and Contractor. Upon the acceptance in writing of any appointment as Escrow Agent hereunder by a successor escrow agent: (i) the retiring Escrow Agent shall deliver the Escrow Funds to the successor escrow agent, (ii) such successor escrow agent shall thereupon succeed to and become vested with all the rights, powers, privileges and duties of the retiring Escrow Agent, and (iii) the retiring Escrow Agent shall be discharged from its duties and obligations under this Escrow Agreement, but shall not be discharged from any liability for actions taken as Escrow Agent hereunder prior to such succession. After any retiring Escrow Agent’s resignation or removal, the provisions of this Escrow Agreement shall inure to its benefit as to any actions taken or omitted to be taken by it while it was Escrow Agent under this Escrow Agreement. If Owner and Contractor fail to designate a substitute escrow agent within ten (10) Business Days after receiving a notice of Escrow Agent’s resignation or delivering to Escrow Agent a notice of removal, Escrow Agent may institute a petition for interpleader. Escrow Agent’s sole responsibility after such ten (10) Business Day notice period expires shall be to hold the Escrow Funds (without any obligation to reinvest the same) and to deliver the same to a designated substitute escrow agent, if any, or in accordance with the directions of a final order or judgment of a court of competent jurisdiction, at which time of delivery Escrow Agent’s obligations hereunder shall cease and terminate.

15. Assignment. This Escrow Agreement shall not be assigned without the prior written consent of the non-assigning party hereto, except Owner may assign this Escrow Agreement, in whole or in part, to any of its Affiliates or Lender without Contractor’s or Escrow Agent’s consent. When duly assigned in accordance with the foregoing, this Escrow Agreement shall be binding upon and shall inure to the benefit of the assignee; provided that any assignment by a party pursuant to this Section 15 shall not relieve such assigning party of any of its obligations under this Escrow Agreement. Any assignment not in accordance with this Section 15 shall be void and without force or effect, and any attempt to assign this Escrow Agreement in violation of this provision shall grant the non-assigning party the right, but not the obligation, to terminate this Escrow Agreement at its option for default.

 

DD-6


16. Severability. If one or more of the provisions hereof shall for any reason be held to be invalid, illegal or unenforceable in any respect under applicable law, such invalidity, illegality or unenforceability shall not affect any other provisions hereof, and this Escrow Agreement shall be construed as if such invalid, illegal or unenforceable provision had never been contained herein, and the remaining provisions hereof shall be given full force and effect.

17. Termination. This Escrow Agreement shall terminate upon the disbursement, in accordance with Sections 4, 8 or 14 hereof, of the Escrow Funds in full; provided, however, that in the event all Fees required to be paid to Escrow Agent hereunder are not fully and finally paid prior to termination, the provisions of Section 10 hereof shall survive the termination hereof and, provided further, that the last sentence of Section 8 hereof and the provisions of Section 9 hereof shall, in any event, survive the termination hereof.

18. General. The section headings contained in this Escrow Agreement are for reference purposes only and shall not affect in any way the meaning or interpretation of this Escrow Agreement. This Escrow Agreement and any affidavit, certificate, instrument, agreement or other document required to be provided hereunder may be executed in two (2) or more counterparts, each of which shall be deemed an original instrument, but all of which taken together shall constitute one and the same instrument. Unless the context shall otherwise require, the singular shall include the plural and vice-versa, and each pronoun in any gender shall include all other genders. The terms and provisions of this Escrow Agreement constitute the entire agreement among the Parties and Escrow Agent in respect of the subject matter hereof, and neither the Parties nor Escrow Agent has relied on any representations or agreements of the other, except as specifically set forth in this Escrow Agreement. This Escrow Agreement or any provision hereof may be amended, modified, waived or terminated only by written instrument duly signed by the Parties and Escrow Agent. This Escrow Agreement shall inure to the benefit of, and be binding upon, the Parties and Escrow Agent and their respective heirs, devisees, executors, administrators, personal representatives, successors, trustees, receivers and permitted assigns. This Escrow Agreement is for the sole and exclusive benefit of the Parties and Escrow Agent, and nothing in this Escrow Agreement, express or implied, is intended to confer or shall be construed as conferring upon any other person any rights, remedies or any other type or types of benefits.

[Signature Page Follows]

 

DD-7


IN WITNESS WHEREOF, the parties hereto have executed this Escrow Agreement to be effective as of the Effective Date.

 

Owner:    
CORPUS CHRISTI LIQUEFACTION, LLC
 

 By:

 

 

 

 Name:

 

 

 

 Title:

 

 

 

Tax Identification #:

 

 

 

Contractor:  
BECHTEL OIL, GAS AND CHEMICALS, INC.
By:  

 

Name:  

 

Title:  

 

Tax Identification #:  

 

Escrow Agent:
[NAME OF ESCROW AGENT]
By:  

 

Name:  

 

Title:  

 

 

DD-8


Exhibit 1

Form of Joint Notice

[Date]

[Name of Escrow Agent]

[Address]

Attn: [                         ]

 

Re: Escrow Agreement, dated [            ], 20[            ], by and among Corpus Christi Liquefaction LLC (“Owner”), Bechtel Oil, Gas, and Chemicals, Inc. (“Contractor”) and [Name of Escrow Agent] (“Escrow Agent”) (the “Escrow Agreement”)

Dear [            ]:

Pursuant to Section 4(a) of the Escrow Agreement, Owner and Contractor hereby certify that [$U.S.            ] of the Escrow Funds (the “Released Escrow Funds”), plus any accrued interest thereon, should be released from the Escrow Account and disbursed to [Owner/Contractor/Owner and Contractor], as set forth below. Capitalized terms used, but not otherwise defined, herein shall have the respective meanings ascribed to such terms in the Escrow Agreement.

Owner and Contractor hereby direct Escrow Agent to release and disburse such Released Escrow Funds by wire transfer in immediately available funds, within [    ] ([    ]) Days of receipt of this notice, as follows: [(i)] [$U.S.             ] of the Released Escrowed Funds, plus accrued interest thereon, to [            ] to the following account [list account information including name of recipient, name of recipient’s financial institution, account number, and ABA routing number] [; and (ii) [$U.S.             ] of the Released Escrowed Funds, plus accrued interest thereon, to [            ] to the following account [list account information including name of recipient, name of recipient’s financial institution, account number, and ABA routing number].]

This Joint Notice may be executed in two or more counterparts, each of which shall be deemed an original, but all of which taken together shall constitute one and the same Joint Notice. A facsimile or photocopy of any signature shall have the same force and effect as an original. This Joint Notice shall be effective as of the date first written above once the counterparts of the Joint Notice have been signed and delivered by all the parties set forth below.

 

Very truly yours,
Owner:
CORPUS CHRISTI LIQUEFACTION, LLC
By:  

 

Name:  

 

Title:  

 

Contractor
BECHTEL OIL, GAS AND CHEMICALS, INC.
By:  

 

Name:  

 

Title:  

 

 

DD-9


cc: [                        ]

State of [                 ]

County of [             ]

This instrument was acknowledged before me on [Date] by [Name of Officer], [Title of Officer] of [Name of entity acknowledging], a [jurisdiction] [type of entity], on behalf of said [type of entity].

 

Commission expires:  

 

     

 

        Notary Public’s signature

(Notary stamp or seal)

 

DD-10


Exhibit 2

Form of Owner’s Notice

[Date]

[Name of Escrow Agent]

[Address]

Attn: [                                                  ]

 

Re: Escrow Agreement, dated [            ], 20[    ], by and among Corpus Christi Liquefaction LLC (“Owner”), Bechtel Oil, Gas and Chemicals, Inc. (“Contractor”) and [Name of Escrow Agent] (“Escrow Agent”) (the “Escrow Agreement”)

Dear [            ]:

Pursuant to Section 4(b) of the Escrow Agreement, Owner hereby certifies that [$U.S.            ] of the Escrow Funds (the “Released Escrow Funds”), plus any accrued interest thereon, should be released from the Escrow Account and disbursed to [Owner] [Name of Other Recipient], as set forth below. Capitalized terms used, but not otherwise defined, herein shall have the respective meanings ascribed to such terms in the Escrow Agreement.

Owner hereby directs Escrow Agent to release and disburse such Released Escrowed Funds, plus accrued interest thereon, by wire transfer in immediately available funds, within [    ] ([    ]) days of receipt of this notice, as follows (provided that Escrow Agent has not received, within sixty (60) Days of receipt of this notice, written notice from Contractor of its objection to the terms of this notice):

Corpus Christi Liquefaction, LLC

[Name of Financial Institution]

[City, State]

Account No.: [                                 ]

ABA Routing No.: [                         ]

Amount: U.S.$[                         ]

 

Very truly yours,
Owner:
CORPUS CHRISTI LIQUEFACTION, LLC
By:  

 

Name:  

 

Title:  

 

 

cc: Bechtel Oil, Gas and Chemicals, Inc.

3000 Post Oak Boulevard

Houston, Texas 77056

Attn: [                                 ]

 

DD-11


State of [                 ]

County of [             ]

This instrument was acknowledged before me on [Date] by [Name of Officer], [Title of Officer] of [Name of entity acknowledging], a [jurisdiction] [type of entity], on behalf of said [type of entity].

 

Commission expires:  

 

       

 

          Notary Public’s signature

(Notary stamp or seal)

 

DD-12


Exhibit 3

Fee Schedule

 

DD-13


ATTACHMENT EE

PROVISIONAL SUMS FOR STAGE 1

 

EE-1


SCHEDULE EE-1

Provisional Sums to be Fixed Based on Notice to Proceed

 

1 introduction

The Currency Provisional Sum and Fuel Provisional Sum shall be adjusted by mutually agreed Change Order as described below. Upon adjustment of the Contract Price pursuant to this Schedule EE-1, the Aggregate Provisional Sum shall also be reduced to reflect any Provisional Sums that have been fixed by mutually agreed Change Order.

 

1.1 Currency Provisional Sum

The Aggregate Provisional Sum contains a Provisional Sum of *** U.S. Dollars (U.S.$***) based the following foreign (non-U.S. Dollar) currencies included in the Contract Price (“Currency Provisional Sum”) at the listed value and exchange rate to the U.S. Dollar:

 

FOREIGN CURRENCY

   VALUE IN FOREIGN
CURRENCY
    

EXCHANGE RATE

EURO

   ***       *** USD TO EURO

GBP

   £  ***       *** USD TO GBP

On the date Owner issues the NTP, the Contract Price shall be subject to an upward or downward adjustment by Change Order to account for currency fluctuations. This adjustment will be determined by multiplying (a) the difference of the exchange rate as quoted by Bloomberg on the following website:

http://www.bloomberg.com/markets/currencies/

for the closing exchange rate on the date Owner issues NTP (the “NTP Exchange Rate”) and the above listed exchange rate (“Contract Exchange Rate”) by (b) the value in corresponding value in foreign currency listed above (“Value of Foreign Currency”).

For clarity, the Contract Price and the Aggregate Provisional Sum adjustments shall be the cumulative sum of the adjustment for each currency and the adjustment for each currency shall be:

 

LOGO

 

1.2 Fuel Provisional Sum

The Aggregate Provisional Sum contains a Provisional Sum of *** U.S. Dollars (U.S.$ ***) (“Fuel Provisional Sum”) for price fluctuation in the cost of gasoline and diesel fuels to be used during construction, commissioning, and start up of the Stage 1 Liquefaction Facility. The baseline index value from each of the selected indices is as of the week ending July 8, 2013:

 

EE-2


Figure 1

 

FUEL TYPE

   VALUE IN
ESTIMATE*
    

BASELINE

INDEX VALUE

Gasoline

   $  ***       3.42

Diesel

   $  ***       3.76

 

* Estimate refers to the Fuel Provisional Sum, which is based on the estimated quantities.

On the date Owner issues the NTP, the Contract Price shall be subject to an upward or downward adjustment by Change Order for each of the following fuel types: (i) gasoline and (ii) diesel listed above for any change in the index value, at the nearest weekly datum, as published by the US Energy Information Administration (EIA) for the Gulf Coast Region for each specific fuel type (See Figure 2). The adjustment for each fuel type will be determined by subtracting the baseline index value from the corresponding NTP index value (which is the index value on the date of NTP) and then dividing that result by the baseline index value and multiplying the result by the value in Fuel Provisional Sum for each of the fuel types listed in Figure 1. For clarity:

 

LOGO

The indices are as follows for the specific fuel types:

Figure 2

 

FUEL

  

INDEX

Gasoline    US EIA Weekly Gulf Coast Regular All Formulations Retail Gasoline Prices
Diesel    US EIA Weekly Gulf Coast No 2 Diesel Retail Prices

For avoidance of doubt, Contractor bears the risk of determining the correct quantity of fuel for the Work as of the Contract Date, and this Schedule EE-1 shall not entitle Contractor to any Contract Price adjustments on account of increases in the actual fuel quantity used for the Work as of the Contract Date.

 

EE-3


SCHEDULE EE – 2

Provisional Sums to be Adjusted during Project Execution

 

2 Introduction

The 9% Nickel and Cryogenic-Rebar Provisional Sum, Marine & Dredging Provisional Sum, Operating Spare Parts Provisional Sum, and the Insurance Provisional Sum shall be adjusted by mutually agreed Change Order as described below. Upon adjustment of the Contract Price pursuant to this Schedule EE-2, the Aggregate Provisional Sum shall also be reduced to reflect any Provisional Sums that have been fixed by mutually agreed Change Order.

2.1 9% Nickel and Cryogenic-Rebar Provisional Sum

The Aggregate Provisional Sum contains a Provisional Sum of *** U.S. Dollars (U.S.$ ***) for the purchase, fabrication and delivery of the 9% Nickel and Cryogenic Rebar required for the LNG Tank (“9% Nickel and Cryogenic-Rebar Provisional Sum”). This Work is more specifically defined in the table below:

 

Activity

   Quantity      UOM      Value  

Inner Tank Purchase

     3,542.8         Metric Tons       $  ***   

Thermal Corner Protection

     509.2         Metric Tons       $  ***   

Fabrication

         $  ***   

Freight to Shop

         $  ***   

Cryogenic Rebar

     1,210.22         Metric Tons       $  ***   

9% Nickel and Cryogenic Rebar Provisional Sum

         $  ***   

If the actual cost charged to Contractor for the purchase, fabrication and delivery under the Agreement is less than the 9% Nickel and Cryogenic-Rebar Provisional Sum, Owner shall be entitled to a Change Order reducing the Contract Price by such difference and *** percent (***%) of such difference. If the actual cost incurred by Contractor for the purchase, fabrication and delivery of the 9% Nickel and Cryogenic Rebar under the Agreement is greater than the 9% Nickel and Cryogenic Rebar Provisional Sum, Contractor shall be entitled to a Change Order increasing the Contract Price by such difference, plus *** percent (***%) of such difference.

The 9% Nickel and Cryogenic Rebar Provisional Sum, as of the Contract Date, is based on the Work description and quantities set forth in the table specified in this Section 2.1. The quantity and price line item detail supporting the 9% Nickel and Cryogenic Rebar Provisional Sum is contained on document no. 25744-400-G38-GAB-00002. No later than thirty (30) Days prior to shipment of the 9% Nickel and Cryogenic Rebar to Site, Contractor shall provide to Owner the actual cost charged to Contractor for the purchase, fabrication and delivery of such material along with adequate supporting documentation of such actual cost charged (including an updated document no. 25744-400-G38-GAB-00002 with final comparative information) in order that a Change Order may be prepared.

 

EE-4


2.2 Marine & Dredging Provisional Sum

The Aggregate Provisional Sum contains a Provisional Sum of *** U.S. Dollars (U.S.$***) for the engineering, procurement, and construction of the marine and dredging Work (“Marine & Dredging Provisional Sum”). This Work is more specifically defined in document no. 25744-400-G38-GAB-00003.

If the actual cost charged to Contractor for the engineering, procurement, and construction under the Agreement is less than the Marine & Dredging Provisional Sum, Owner shall be entitled to a Change Order reducing the Contract Price by such difference and *** percent (***%) of such difference. If the actual cost charged to Contractor for the engineering, procurement and construction of the marine and dredging Work under the Agreement is greater than the Marine & Dredging Provisional Sum, Contractor shall be entitled to a Change Order increasing the Contract Price by such difference, plus *** percent (***%) of such difference.

The Marine and Dredging Provisional Sum, as of the Contract Date, is based on the Work description and quantities set forth in document no. 25744-400-G38-GAB-00003. Contractor shall provide to Owner the actual cost charged to Contractor for the engineering, procurement, and construction of such actual cost charged (including an updated document no. 25744-400-G38-GAB-00003 with final comparative information) in order that a Change Order may be prepared.

 

2.3 Operating Spare Part Provisional Sum

The Aggregate Provisional Sum contains a Provisional Sum of *** U.S. Dollars (U.S.$***) for supply and delivery of Operating Spare Parts (“Operating Spare Part Provisional Sum”). If the actual cost charged to Contractor for the supply and delivery of Operating Spare Parts provided to Owner under this Agreement is less than the Operating Spare Part Provisional Sum, Owner shall be entitled to a Change Order reducing the Contract Price by such difference and *** percent (***%) of such difference. If the actual cost for the supply and delivery of Operating Spare Parts provided to Owner under this Agreement is greater than the Operating Spare Part Provisional Sum, Contractor shall be entitled to a Change Order increasing the Contract Price by such difference, plus *** percent (***%) of such difference.

 

2.4 Insurance Provisional Sum

The Aggregate Provisional Sum contains a Provisional Sum of *** U.S. Dollars (U.S.$***) (Insurance Provisional Sum) for the cost of insurance premiums for the insurance required to be provided by Contractor in accordance with Attachment O (other than workers compensation and employer liability insurance) (the “Project Insurances”). No later than ninety (90) Days after NTP, Contractor shall notify Owner in writing of the actual cost of the insurance premiums charged to Contractor by Contractor’s insurance carrier for the Project Insurances (“Actual Insurance Cost”), which Actual Insurance Cost shall be adequately documented by Contractor. If the Actual Insurance Cost is less than the Insurance Provisional Sum, Owner shall be entitled to a Change Order reducing the Contract Price by such difference. If the Actual Insurance Cost is greater than the Insurance Provisional Sum, Contractor shall be entitled to a Change Order increasing the Contract Price by such difference. Contractor shall be responsible for the placement of the Project Insurances required to be provided by Contractor in accordance with Attachment O, provided that Contractor shall reasonably cooperate with Owner to minimize such Actual Insurance Cost to the extent reasonably practicable.

 

EE-5


The Contract Price has been based upon naming the Owner Group as additional insureds on the commercial general liability and umbrella or excess liability policies specified in Section 1A.2 and 1A.4 of Attachment O and providing sudden and accidental pollution liability coverage (including clean up on or off the Site) under such commercial general liability policy. Accordingly, should (i) the insurance provider(s) charge any additional premium for naming the Owner Group as named insureds under such policies as compared to naming the Owner Group as additional insureds or (ii) Contractor not be able to procure such sudden and accidental liability coverage and, instead, is required to procure a stand-alone pollution policy, Contractor shall be entitled to a Change Order increasing the Contract Price in the actual amount of such increased premium associated with naming the Owner Group as named insureds rather than additional insureds or procurement of such stand-alone pollution policy.

 

EE-6


ATTACHMENT FF

FORM OF PARENT GUARANTEE FOR STAGE 1

[On Guarantor letterhead]

This guarantee and indemnity agreement (hereinafter referred to as the “Guarantee”) effective on this the [    ] day of [            ], 20[    ], is entered into by BECHTEL GLOBAL ENERGY, INC., a corporation organized and existing under the laws of the state of Delaware, United States of America, having its registered office located at 50 Beale Street, San Francisco, California, 94105-1845 U.S.A. (hereinafter referred to as “Guarantor”), in favor of Corpus Christi Liquefaction, LLC (hereinafter referred to as “Owner”).

In consideration of Owner entering into an Engineering, Procurement and Construction agreement between Owner and Guarantor’s wholly owned affiliate BECHTEL OIL, GAS AND CHEMICALS, INC. (“Contractor”) for the Stage 1 Liquefaction Facility and dated the [    ] day of [            ], 20[    ] (“Agreement”) and accepting this Guarantee in respect of such Agreement it is agreed as follows:

1. In this Guarantee:

 

  (a) unless otherwise defined herein, terms defined in the Agreement have the same meanings when used herein; and

 

  (b) references to the “Agreement” mean the relevant Agreement as supplemented, amended or extended from time to time.

2. Guarantor hereby covenants and agrees unconditionally and irrevocably with Owner, its successors and assigns that:

 

  (a) The Contractor shall properly and diligently observe the provisions of and perform its obligations and discharge its liabilities, whether actual or contingent, now or hereafter arising under or in connection with the Agreement (whether arising by way of payment, indemnity or otherwise) (“Guaranteed Obligations”).

 

  (b) If Contractor fails to perform or defaults in any manner whatsoever in the due and proper performance of any Guaranteed Obligations, or commits any breach of any Guaranteed Obligations, the Guarantor shall, forthwith upon written request from Owner so to do, secure or cause (including, as may be necessary, by contracting with a third party) the assumption and proper and diligent performance and discharge of those Guaranteed Obligations remaining unfulfilled.

 

  (c) Guarantor shall pay to Owner on demand all monies due and owing by Contractor to Owner under the Agreement or pursuant to any claims made by Owner arising under or in connection with the Agreement.

3. This Guarantee shall be given as a primary obligation of Guarantor and not merely as surety and accordingly Owner shall not be obliged before enforcing this Guarantee to: (i) take any action in court or by way of arbitration or otherwise against Contractor; (ii) to take enforcement action or make any claim against or any demand on Contractor or exhaust any remedies against Contractor; (iii) to enforce any other security held by Owner in respect of the Guaranteed Obligations of Contractor under the Agreement; or (iv) to exercise any diligence against Contractor.

 

FF-1


4. As a separate and independent obligation, Guarantor shall, on demand, indemnify and hold Owner harmless from and against any and all losses, damages, liability and expenses, of whatsoever nature (including, without limitation, all legal fees and expenses on an indemnity basis) suffered or incurred by Owner:

 

  (a) in any way connected with: (i) any breach by Contractor of any Guaranteed Obligation and/or (ii) any breach by the Guarantor of any obligations in this Guarantee, whether or not any such breach is caused, in whole or in part, by negligence of Guarantor; and

 

  (b) if any of the Contractor’s Guaranteed Obligations is or becomes unenforceable, invalid or illegal, the amount of loss, damage, liability or expense shall be equal to the amount which Owner would otherwise have been entitled to recover from the Contractor, had such Guaranteed Obligations been fully enforceable.

5. Notwithstanding any other provision of this Guarantee, but except in relation to any expenses and legal fees referred to in paragraph 4(a) or any Insolvency Event of Contractor, the Guarantor shall not have any greater liability to Owner than Guarantor would have had to Owner under the Agreement had Guarantor been an original party to the Agreement in place of Contractor and the Agreement been fully enforceable. Guarantor shall be entitled in respect of the obligations, duties, and liabilities under this Guarantee to raise, and rely as though it was the Contractor on, any claims, rights, privileges, defenses, excuses or limitations available to the Contractor under the Agreement, provided that any award or judgment between Contractor and Owner under the Agreement (whether in arbitration or litigation, by default or otherwise) shall be conclusive and binding for the purposes of determining Guarantor’s obligations under the Guarantee but no such judgment shall be required to enforce the Guarantor’s obligations under this Guarantee.

6. This Guarantee shall be in addition to, and not in substitution for, and will not merge with, any rights or remedies that Owner may have against the Contractor arising under the Agreement or otherwise, and the Guarantor shall not be released from the obligations hereunder by reason of any time or forbearance granted by Owner to the Contractor or the Guarantor. This Guarantee is a continuing guarantee and indemnity and extends to any and all of the Contractor’ Guaranteed Obligations under or arising in connection with the Agreement.

7. The Guarantor makes the following representations and warranties:

 

  (a) It has the power to enter into and perform its obligations under this Guarantee;

 

  (b) It has taken all necessary corporate action to authorize the entry into and performance of this Guarantee and to carry out the transactions and discharge the obligations contemplated by this Guarantee; and

 

  (c) This Guarantee is its valid and binding obligation enforceable in accordance with its terms, and Guarantor acknowledges and agrees that the Owner has agreed to enter into the Agreement and to accept this Guarantee in reliance on these representations and warranties.

8. If any payment by the Contractor or the Guarantor or any other surety or discharge given by the Owner is avoided or reduced as a result of insolvency or similar event (a) the liability of the Guarantor shall continue as if the payment or discharge had not occurred, and (b) the Owner shall be entitled to recover the value or amount of that security or payment from the Guarantor as if the payment or discharge had not occurred.

 

FF-2


9. The liability of the Guarantor hereunder shall not in any way be reduced, released, discharged, diminished or affected by:

 

  (a) The granting of any waiver, time or indulgence to the Guarantor or to the Contractor by Owner;

 

  (b) The effecting of any compromise, discharge or release whatsoever with Contractor by the Owner or any other person;

 

  (c) Suspension or termination (in whole or in part) of Contractor’s services or work under the Agreement;

 

  (d) Any breach of the Agreement by Owner or any other thing done or neglected to be done by Owner;

 

  (e) Any lack of power, authority or legal personality or change in the constitution or business organization of Contractor or the illegality of any relevant contracts or obligation;

 

  (f) Any variation to the scope of work or services under the Agreement (including, without limitation, by way of a Change Order);

 

  (g) The amendment, novation, supplement or extension of any terms or conditions of the Agreement by Owner;

 

  (h) Any disability, incapacity, insolvency, administration or similar proceedings with respect to the Contractor;

 

  (i) Any reorganization, change in ownership, merger, consolidation, change in status or like arrangement in respect of either Contractor or Guarantor;

 

  (j) Any assignment of this Guarantee or the Agreement, or the granting or creation of any mortgage, pledge, charge or other encumbrance over or in respect of this Guarantee or the Agreement or any of Owner’s rights or benefits under or pursuant to this Guarantee or the Agreement; or

 

  (k) Any act, omission, matter or thing which, but for this Paragraph 9, would reduce, release, discharge, diminish or affect any of Guarantor’s obligations under this Guarantee.

10. All payments under this Guarantee shall be made to the account specified in the relevant demand of the Agreement and shall be made free of any withholding or deduction and the Guarantor shall have no right of set-off, deduction, abatement or counterclaim except for those rights it exercises on behalf of Contractor under the Agreement.

11. Any notices or communications to be made by the Guarantor or Owner to the other under or in connection with this Guarantee shall be in writing and made to the other at the following addresses:

The Guarantor:

Bechtel Global Energy, Inc.

3000 Post Oak Blvd.

Houston, Texas 77056

Phone: ***

Facsimile: ***

Attn: ***

 

FF-3


With a copy to:

Bechtel Global Energy, Inc.

3000 Post Oak Blvd.

Houston, Texas 77056

Phone: ***

Facsimile: ***

Attn: Principal Counsel

The Owner:

Corpus Christi Liquefaction, LLC

700 Milam, Suite 800

Houston, Texas 77002

Facsimile ***

Attn: ***

With a copy to:

Corpus Christi Liquefaction, LLC

700 Milam, Suite 800

Houston, Texas 77002

Facsimile ***

Attn: ***

Any notice or communication delivered or made by one person to the other under this Guarantee shall be effective:

 

  (a) If by way of facsimile, when received as evidenced by confirmation; or

 

  (b) If by way of letter, when it has been left at the relevant address.

12. Any provision of this Guarantee which is prohibited, illegal, invalid or unenforceable in any jurisdiction is ineffective as to that jurisdiction only to the extent of the prohibition, illegality, invalidity or unenforceability and will not invalidate any other provision of the Guarantee so long as the material purposes of this Guarantee can be determined and effectuated.

13. The Guarantor shall, promptly on demand, pay to the Owner the amount of all costs, charges and expenses incurred in connection with the enforcement or exercise of any rights under this Guarantee.

14. No failure to exercise, nor delay in exercising, any right or remedy under this Guarantee shall operate as a waiver, nor shall any single or partial exercise of any right or remedy prevent any further or other exercise of any right or remedy.

15. This Guarantee shall be governed by and construed in accordance with the laws of the state of Texas without giving effect to any choice or conflict of law provision or rule that would cause the application of the laws of any jurisdiction other than the state of Texas.

 

FF-4


16. Any claim, dispute or controversy arising out of or relating to this Guarantee (including, without limitation, the construction, validity, interpretation, termination, enforceability or breach of this Guarantee, or the relationship of the Parties established by this Guarantee, and whether or not arising out of tort or contract) (“Dispute”) shall be decided by final and binding arbitration. Such arbitration shall be held in Houston, Texas, unless otherwise agreed in writing by the Parties, shall be administered by the Dallas, Texas office of the American Arbitration Association (“AAA”) and shall, except as otherwise modified by this Section 7, be governed by the AAA’s Construction Industry Arbitration Rules and Mediation Procedures (including Procedures for Large, Complex Construction Disputes) (the “AAA Rules”). The number of arbitrators required for the arbitration hearing shall be determined in accordance with the AAA Rules. The arbitrator(s) shall determine the rights and obligations of the Parties according to the substantive law of the state of Texas, excluding its conflict of law principles, as would a court for the state of Texas; provided, however, the law applicable to the validity of the arbitration clause, the conduct of the arbitration, including resort to a court for provisional remedies, the enforcement of any award and any other question of arbitration law or procedure shall be the Federal Arbitration Act, 9 U.S.C.A. § 2. Issues concerning the arbitrability of a matter in dispute shall be decided by a court with proper jurisdiction. The Parties shall be entitled to engage in reasonable discovery, including the right to production of relevant and material documents by the opposing Party and the right to take depositions reasonably limited in number, time and place; provided that in no event shall any Party be entitled to refuse to produce relevant and non-privileged documents or copies thereof requested by the other Party within the time limit set and to the extent required by order of the arbitrator(s). All disputes regarding discovery shall be promptly resolved by the arbitrator(s). This agreement to arbitrate is binding upon the Parties, Contractor’s surety (if any) and the successors and permitted assigns of any of them. At Owner or Guarantor’s option, any other person may be joined as an additional party to any arbitration conducted under this paragraph 16, provided that the party to be joined is or may be liable to either Party in connection with all or any part of any Dispute between the Parties. Without limiting the foregoing, if there are common issues of fact or law in connection with any Disputes in an arbitration conducted under this Section 16 and any disputes in connection with any arbitration under the Stage 2 EPC Agreement, either Party may consolidate the two arbitrations to the extent necessary to avoid inconsistent determinations. Guarantor agrees, upon Owner’s election, to the joinder in any arbitration between Owner and Contractor arising out of or relating to the Project. The arbitration award shall be final and binding, in writing, signed by all arbitrators, and shall state the reasons upon which the award thereof is based. Judgment on the arbitration award may be entered by any court having jurisdiction thereof.

17. This Guarantee constitutes the entire agreement of Guarantor and Owner with respect to the subject matter hereof and supersedes all prior agreements, negotiations and understandings, both written and oral, between the Guarantor and Owner with respect to the subject matter hereof.

18. This Guarantee is solely for the benefit of Owner and its respective successors and permitted assigns, and this Guarantee shall not otherwise be deemed to confer upon or give to any other third party any remedy, claim, reimbursement, cause of action, or other right, except as provided in Article 19 hereof.

19. This Guarantee may be assigned to other Persons only upon the prior written consent of the non-assigning Party hereto, except that Owner may assign this Guarantee to any of its Affiliates by providing notice to Guarantor. Furthermore, Owner may, for the purpose of providing collateral, assign, pledge and/or grant a security interest in this Guarantee to any Lender without Guarantor’s consent. When duly assigned in accordance with the foregoing,

 

FF-5


this Guarantee shall be binding upon and shall inure to the benefit of the assignee; provided that any assignment by Guarantor or Owner pursuant to this Section 21.7 shall not relieve Guarantor or Owner (as applicable) of any of its obligations or liabilities under this Guarantee. Any assignment not in accordance with this Article 19 shall be void and without force or effect. Guarantor shall, on or before issuance of NTP under the Agreement, enter into an acknowledgement and consent with the Collateral Agent. substantially in the form of Schedule 1 to this Guarantee, as may be amended mutatis mutandis to conform to the acknowledgement and consent form agreed by Contractor under the Agreement.

20. Guarantor acknowledges and agrees that Owner is entitled to the benefit of this Guarantee and the covenants, guarantees, indemnities and other promises that are given and made in it by Guarantor, without Owner having signed this Guarantee.

21. This Guarantee may only be amended by a written agreement that is signed by or on behalf of both Owner and Guarantor.

22. This Guarantee shall continue in full force and effect until all of the Guaranteed Obligations of Contractor under the Agreement and all obligations, liabilities and guarantees of Guarantor under this Guarantee have been fulfilled or otherwise resolved, at which point this Guarantee shall expire of its own terms and shall be returned to the Contractor.

23. Guarantor shall not take any photographs of any part of the Liquefaction Facility, issue a press release, advertisement, publicity material, financial document or similar matter or participate in a media interview that mentions or refers to the Work under the Agreement or any part of the Liquefaction Facility without the prior written consent of Owner. Guarantor acknowledges and agrees that Owner shall be required, from time to time, to make disclosures and press releases and applicable filings with the SEC in accordance with applicable securities laws, that Owner believes in good faith are required by Applicable Law or the rules of any stock exchange. If any such disclosure, press release or filing includes any reference to Guarantor, then Owner shall provide as much notice as is practicable to Guarantor to provide it with an opportunity to comment; provided, however, the final determination shall remain with Owner. Guarantor acknowledges that Owner shall be required from time to time to make filings in compliance with applicable securities laws, including a copy of this Guarantee.

IN WITNESS of which this Guarantee has been duly executed by a duly authorized representative of Guarantor and delivered on the day above written.

 

BECHTEL GLOBAL ENERGY, INC.
By:  

 

Name:  

 

Title:  

 

Acknowledged by:
CORPUS CHRISTI LIQUEFACTION, LLC
By:  

 

Name:  

 

Title:  

 

 

FF-6


SCHEDULE 1

TO ATTACHMENT FF

FORM OF ACKNOWLEDGMENT AND

CONSENT AGREEMENT WITH LENDER FOR STAGE 1

Bechtel Global Energy, Inc. (the “Contracting Party”) hereby acknowledges the existence of (but has not reviewed) the Security Agreement, dated as of [            ], 20[    ] (as from time to time amended, supplemented or modified, the “Security Agreement”), among Corpus Christi Liquefaction, LLC (the “Borrower”), [            ] as common security trustee in such capacity, the “Common Security Trustee”), for the benefit of various financial institutions providing financing to the Borrower (collectively, the “Secured Parties”), and hereby executes this Acknowledgement and Consent Agreement (the “Consent”) and agrees as follows:

1. The Contracting Party hereby acknowledges and consents in accordance with the terms and conditions set forth below to the Borrower’s pledge and collateral assignment of all its right, title and interest in, to and under (but not, except as provided herein, its obligations, liabilities or duties with respect to) the Parent Guarantee dated [            ], 20[    ] (the “Assigned Agreement”), given in respect of the Fixed Price Separated Turnkey Agreement for the Engineering, Procurement and Construction of the Corpus Christi Stage 1 Liquefaction Facility, dated [             ], 20[     ] , between Bechtel Oil, Gas and Chemicals, Inc. and the Borrower (the “EPC Contract”) to the Common Security Trustee pursuant to the Security Agreement. Capitalized terms used, but not otherwise defined, herein shall have the respective meanings ascribed to such terms in the Assigned Agreement.

2. The Contracting Party represents and warrants as of the date hereof as follows:

a. The Contracting Party is a corporation duly organized, validly existing and in good standing under the laws of Delaware, is authorized and qualified to do business in all jurisdictions in which the nature of the business conducted by it makes such qualification necessary and where failure so to qualify has or could reasonably be expected to have a material adverse effect on its financial condition, operations, prospects, taxes or business.

b. The Contracting Party is not in violation of any Applicable Law or judgment entered by any Governmental Instrumentality, which violations, individually or in the aggregate, have or could reasonably be expected to have a material adverse effect on its performance of any obligations under this Consent or the Assigned Agreement. There are no legal or arbitration proceedings or any proceeding by or before any Governmental Instrumentality, now pending or (to the current actual knowledge of the Contracting Party) threatened against the Contracting Party that, if adversely determined, could reasonably be expected to have a material adverse effect on its ability to perform under this Consent or the Assigned Agreement.

 

Schedule 1-1 to FF


c. No consent or approval of, or other action by or any notice to or filing with, any Governmental Instrumentality (except those previously obtained) was required in connection with the execution and delivery by the Contracting Party of the Assigned

d. Agreement, or is required in connection with the execution and delivery of this Consent, or, to the best actual current knowledge of the Contracting Party, the performance of its obligations under this Consent.

e. Neither the execution and delivery of this Consent and the Assigned Agreement by the Contracting Party, the consummation of the transactions herein contemplated by the Contracting Party, nor compliance with the terms and provisions hereof by the Contracting Party, will:

(i) conflict with, result in a breach of or default under, or require any consent (other than consents already obtained and those permits, licenses, approvals, consents and exemptions that the Contracting Party is permitted to obtain in the ordinary course of business in the performance of its obligations under the Assigned Agreement) under: (A) the charter or by-laws of the Contracting Party, (B) any Applicable Law, (C) any order, writ, injunction or decree of any court applicable to the Contracting Party, or (D) any agreement or instrument to which the Contracting Party is a party or by which it is bound or to which it or any of its property or assets is subject in any such case under this clause (i) that has or could reasonably be expected to result in a material adverse effect upon the ability of the Contracting Party to perform its obligations under this Consent and the Assigned Agreement; or

(ii) result in the creation or imposition of (or the obligation to create or impose) any lien, security interest, charge or encumbrance upon any of the properties or assets of the Contracting Party.

f. The Contracting Party has all necessary power and authority to execute, deliver and perform its obligations under this Consent and the Assigned Agreement; the execution, delivery and performance by the Contracting Party of this Consent and the Assigned Agreement have been duly authorized by all necessary action on its part; and this Consent and the Assigned Agreement have been duly and validly executed and delivered by the Contracting Party and each constitutes a legal, valid and binding obligation of the Contracting Party enforceable in accordance with its terms, except as the enforceability thereof may be limited by bankruptcy, insolvency, reorganization or moratorium or other similar laws relating to the enforcement of creditors’ rights generally, and by general principles of equity. There are no amendments, modifications or supplements (whether by waiver, consent or otherwise) to the Assigned Agreement, either oral or written.

g. The Contracting Party is financially solvent, able to pay all debts as they mature and possesses sufficient working capital to guarantee the completion of the work under the EPC Contract and perform its obligations hereunder.

 

Schedule 1-2 to FF


h. To the Contracting Party’s current actual knowledge, the Borrower (a) has complied with all conditions precedent required to be complied with by or on behalf of the Borrower on or prior to the date hereof pursuant to the Assigned Agreement and (b) is not in default under any covenant or obligation of the Assigned Agreement and no such default has occurred prior to the date hereof.

i. The Contracting Party is not, to its current actual knowledge, in default under any covenant or obligation hereunder or under the Assigned Agreement and no such default has occurred prior to the date hereof. After giving effect to the pledge and assignment referred to in paragraph 1, and after giving effect to the consent to such pledge and assignment by the Contracting Party, to the current actual knowledge of the Contracting Party, (a) there exists no event or condition that would, either immediately or with the passage of time or giving of notice, or both, entitle either the Contracting Party or the Borrower to terminate or suspend its obligations under the Assigned Agreement and (b) there are no claims or rights of set-off pending by any party to the Assigned Agreement.

j. The Contracting Party affirms that it has no written notice or current actual knowledge of any pledge or assignment relative to the right, title and interest of the Borrower in, to and under the Assigned Agreement other than the pledge and assignment referred to in paragraph 1.

3.

a. From and after the date hereof and unless and until the Contracting Party shall have received written notice from the Common Security Trustee that the lien of the Security Agreement has been released in full and provided that an event of default by the Borrower shall have occurred and be continuing pursuant to the loan documents executed in connection with the Security Agreement, the Common Security Trustee shall have the full right and power to enforce directly against the Contracting Party (subject to all of the Contracting Party’s defenses and other rights under the Assigned Agreement in accordance with the terms thereof) all obligations of the Contracting Party under the Assigned Agreement and otherwise to exercise all remedies thereunder and to make all demands and give all notices and make all requests required or permitted to be made by the Borrower under the Assigned Agreement, all in accordance with the terms thereof; provided that no such performance shall be construed as an assumption by the Common Security Trustee or any Secured Party of any covenants, agreements or obligations of the Borrower under or in respect of the Assigned Agreement, except to the extent the Assigned Agreement shall have been expressly assumed by the Common Security Trustee pursuant to paragraph 5 hereof. Any action taken by the Common Security Trustee in accordance with this paragraph 3(a) shall be binding on the Borrower. If the Contracting Party receives any demands, notices or requests made from the Common Security Trustee in accordance with this paragraph 3(a) which are conflicting with that made by the Borrower, the Common Security Trustee’s demands, notices and requests shall control over those conflicting demands, notices or requests made by the Borrower.

b. The Contracting Party agrees that it cannot terminate or suspend its obligations under the Assigned Agreement.

 

Schedule 1-3 to FF


4. Notwithstanding any provision in the Assigned Agreement to the contrary, in the event of the proper assignment or novation of the rights and obligation under the EPC Contract to a third party, or in the event of the execution of a new EPC Contract pursuant to the terms of Section 4 of that certain acknowledgement and consent agreement, dated [            ] between Bechtel Oil, Gas and Chemicals, Inc. and the Common Security Trustee, the Contracting Party will enter into a new agreement with the Common Security Trustee or, at the Common Security Trustee’s request, with the Common Security Trustee’s nominee, effective as of the date of such assignment, novation or execution, with substantially the same covenants, agreements, terms, provisions and limitations as are contained in the Assigned Agreement; provided that the Common Security Trustee shall have made a request to the Contracting Party for such new agreement within seven (7) days after the date of such assignment or novation of the EPC Contract or execution of a new EPC Contract.

5. Provided that an event of default by Borrower shall have occurred and be continuing pursuant to the loan documents executed in connection with the Security Agreement, the Contracting Party agrees that the Common Security Trustee may (but shall not be obligated to) pursuant to the terms of the Security Agreement assume, or cause any purchaser at any foreclosure sale or any assignee or transferee under any instrument of assignment or transfer in lieu of foreclosure to assume, all of the rights and interests of the Borrower thereafter arising under the Assigned Agreement. If the rights and interests of the Borrower in the Assigned Agreement shall be assumed, sold or transferred as provided herein, then the Contracting Party shall continue to perform its obligations under the Assigned Agreement in favor of the assuming party as if such party had thereafter been named as the Borrower under the Assigned Agreement. The Common Security Trustee shall not take action under this paragraph 5 until after the initial disbursement of any of the Secured Parties’ loans.

6. The Contracting Party shall make all payments due to the Borrower under the Assigned Agreement to [            ], acting as the Accounts Bank to Account No. [            ], ABA No. [            ], FFC: [            ]. All parties hereto agree that each payment by the Contracting Party to the Accounts Bank of amounts due to the Borrower from the Contracting Party under the Assigned Agreement shall satisfy the Contracting Party’s corresponding payment obligation under the Assigned Agreement and, to the extent applicable, the EPC Contract.

7. No amendment or modification of, or waiver by or consent of, the Borrower in respect of, any provision of the Assigned Agreement shall be effective unless the same shall be in writing, in accordance with the requirements of the Assigned Agreement, prior written notice thereof shall have been given to the Common Security Trustee and the Common Security Trustee shall have given its consent. This Consent may be amended or modified only by an instrument in writing signed by the Contracting Party, the Borrower and the Common Security Trustee.

8. The Contracting Party shall deliver to the Common Security Trustee concurrently with the delivery thereof to the Borrower, a copy of the following items if and when provided by the Contracting Party to the Borrower pursuant to the Assigned Agreement: (a) notification

 

Schedule 1-4 to FF


prior to cancellation, non-renewal or a material change in the insurance coverage required under the terms of the Assigned Agreement; (b) notification of termination; (c) notification of suspension of all of the Work; (d) notification of default by the Borrower; (e) notification of claims, demands, actions or causes of actions asserted against the Contracting Party for which the Borrower has indemnification obligations; and (f) notification of request for arbitration.

9. The Contracting Party shall provide to the Common Security Trustee any information or documentation as reasonably requested by the Common Security Trustee in connection with the financing of the Borrower’s obligations under the Assigned Agreement including, without limitation, the following: (a) an opinion of counsel of Contracting Party customary for a project financing with respect to the authorization, execution, delivery and enforceability, and other similar issues, of the Assigned Agreement and this Consent; (b) a certificate of an authorized officer of Contracting Party certifying that (i) all amounts due and payable under the Assigned Agreement have been paid other than those amounts payable in respect of the current invoice and (ii) no event or condition exists to the Contracting Party’s current actual knowledge which constitutes a default by the Borrower under the Assigned Agreement; and (c) a copy of a certificate of good standing of, and payment of franchise taxes by, the Contracting Party issued by the Secretary of State of Delaware.

10. Notice to any party hereto shall be deemed to be delivered on the earlier of: (a) the date of personal delivery and (b) if deposited in a United States Postal Service depository, postage prepaid, registered or certified mail, return receipt requested, addressed to such party at the address indicated below (or at such other address as such party may have theretofore specified by written notice delivered in accordance herewith), upon delivery or refusal to accept delivery, in each case as evidenced by the return receipt:

 

The Common Security Trustee:

  

[                    ]

[                    ]

[                    ]

 

[                    ]

The Borrower:

  

Corpus Christi Liquefaction, LLC

700 Milam Street, Suite 800

Houston, Texas 77002

Telephone: ***

Facsimile: ***

Attn: ***

Email: ***

   with a copy to:
  

Corpus Christi Liquefaction, LLC

700 Milam Street, Suite 800

Houston, Texas 77002

Facsimile: ***

Attn: ***

 

Schedule 1-5 to FF


The Contracting Party:

  

Bechtel Global Energy, Inc.

50 Beale Street

San Francisco, California 94105-18190

Facsimile: ***

Attn: ***

Email: ***

   with a copy to:
  

Bechtel Corporation

3000 Post Oak Boulevard

Houston, Texas 77056

Facsimile: ***

 

Attn: Principal Counsel

11. This Consent shall be binding upon and shall inure to the benefit of the respective successors and permitted assigns of the Contracting Party, the Borrower, the Common Security Trustee and the Secured Parties (provided, however, that the Contracting Party shall not assign or transfer it rights hereunder without the prior written consent of the Common Security Trustee).

12. This Consent may be executed in one or more counterparts with the same effect as if the signatures thereto and hereto were upon the same instrument. This Consent shall become effective at such time as the Common Security Trustee shall have received counterparts hereof signed by all of the intended parties hereto.

13. For purposes of this Consent, the term “day” or “days” shall mean calendar days unless otherwise defined herein.

14. No failure on the part of any party or any of its agents to exercise and no delay in exercising, and no course of dealing with respect to, any right, power or privilege hereunder shall operate as a waiver thereof (subject to any statute of limitations), and no single or partial exercise of any right, power or privilege hereunder shall preclude any other or further exercise thereof or the exercise of any other right power or privilege.

15. If any provision hereof is invalid and unenforceable in any jurisdiction, then, to the fullest extent permitted by law, (a) the other provisions hereof shall remain in full force and effect in such jurisdiction and shall be liberally construed to carry out the intentions of the parties hereto as nearly as may be possible and (b) the invalidity or unenforceability of any provision hereof in any jurisdiction shall not affect the validity or enforceability of such provision in any other jurisdiction.

16. The agreements of the parties hereto are solely for the benefit of the Contracting Party, the Borrower, the Common Security Trustee and the Secured Parties, and no Person (other than the parties hereto and the Secured Parties and their successors and assigns permitted hereunder) shall have any rights hereunder.

 

Schedule 1-6 to FF


17. This Consent shall terminate upon the indefeasible payment in full of all amounts owed in connection with the Security Agreement.

18. THIS CONSENT SHALL BE GOVERNED BY, AND CONSTRUED IN ACCORDANCE WITH THE LAW OF THE STATE OF NEW YORK WITHOUT REGARD TO PRINCIPLES OF CONFLICT OF LAWS THEREOF OTHER THAN SECTION 5-1401 OF THE NEW YORK GENERAL OBLIGATIONS LAW. THE CONTRACTING PARTY, THE COMMON SECURITY TRUSTEE AND THE BORROWER HEREBY SUBMIT TO THE NONEXCLUSIVE JURISDICTION OF THE UNITED STATES DISTRICT COURT FOR THE SOUTHERN DISTRICT OF NEW YORK AND OF ANY NEW YORK STATE COURT SITTING IN NEW YORK CITY FOR THE PURPOSES OF ALL LEGAL PROCEEDINGS ARISING OUT OF OR RELATING TO THIS CONSENT OR THE TRANSACTIONS CONTEMPLATED HEREBY, EXCEPT FOR DISPUTES ARISING OUT OF OR RELATING TO THE ASSIGNED AGREEMENT WHICH WILL CONTINUE TO BE GOVERNED EXCLUSIVELY BY ARTICLE 18 OF THE ASSIGNED AGREEMENT. THE CONTRACTING PARTY, THE COMMON SECURITY TRUSTEE AND THE BORROWER IRREVOCABLY WAIVE, TO THE FULLEST EXTENT PERMITTED BY LAW, ANY OBJECTION WHICH IT MAY NOW OR HEREAFTER HAVE TO THE LAYING OF THE VENUE OF ANY SUCH PROCEEDING BROUGHT IN SUCH A COURT AND ANY CLAIM THAT ANY SUCH PROCEEDING BROUGHT IN SUCH A COURT HAS BEEN BROUGHT IN AN INCONVENIENT FORUM.

19. EACH OF THE CONTRACTING PARTY, THE COMMON SECURITY TRUSTEE AND THE BORROWER HEREBY IRREVOCABLY WAIVES, TO THE FULLEST EXTENT PERMITTED BY LAW, ANY AND ALL RIGHT TO TRIAL BY JURY IN ANY LEGAL PROCEEDING ARISING OUT OF OR RELATING TO THIS CONSENT OR THE TRANSACTIONS CONTEMPLATED HEREBY.

20. NOTWITHSTANDING ANY OTHER PROVISIONS OF THIS AGREEMENT, NONE OF THE CONTRACTING PARTY, THE COMMON SECURITY TRUSTEE, NOR THE BORROWER, SHALL BE LIABLE UNDER THIS CONSENT, WHETHER IN CONTRACT, WARRANTY, TORT (INCLUDING NEGLIGENCE), STRICT LIABILITY, PRODUCTS LIABILITY, PROFESSIONAL LIABILITY, INDEMNITY, CONTRIBUTION, OR ANY OTHER CAUSE OF ACTION FOR SPECIAL, INDIRECT, INCIDENTAL OR CONSEQUENTIAL LOSSES OR DAMAGES, INCLUDING LOSS OF PROFITS, LOSS OF USE, LOSS OF OPPORTUNITY, LOSS OF REVENUES, LOSS OF FINANCING, LOSS OR INCREASE OF BONDING CAPACITY, COSTS OF OBTAINING OR MAINTAINING FINANCING, LOSS OF GOODWILL, OR BUSINESS INTERRUPTION, OR DAMAGES OR LOSSES FOR PRINCIPAL OFFICE EXPENSES INCLUDING COMPENSATION OF PERSONNEL STATIONED THERE (“CONSEQUENTIAL DAMAGES”), AND THE CONTRACTING PARTY, THE COMMON SECURITY TRUSTEE, AND THE BORROWER DO HEREBY RELEASE EACH OTHER FROM ANY LIABILITY FOR SUCH CONSEQUENTIAL DAMAGES; PROVIDED THAT THE EXCLUSION OF LIABILITY SET FORTH IN THIS SECTION IS NOT INTENDED TO PRECLUDE RECOVERIES AS PERMITTED PURSUANT TO SECTION 20.4 OF THE ASSIGNED AGREEMENT WITH RESPECT TO OBLIGATIONS UNDER THE ASSIGNED AGREEMENT ONLY.

(Signature page follows.)

 

Schedule 1-7 to FF


IN WITNESS WHEREOF, the parties hereto have caused their duly authorized officers to execute and deliver this Consent as of the             day of             , 20    .

 

[                    ]

By:

 

 

Name:

 

Title:

 

 

 

SIGNATURE PAGE TO EPC GUARANTOR DIRECT AGREEMENT


 

BECHTEL GLOBAL ENERGY, INC.

By:

 

 

Name:

 

Title:

 

 

SIGNATURE PAGE TO EPC GUARANTOR DIRECT AGREEMENT


ACKNOWLEDGED and AGREED

 

CORPUS CHRISTI LIQUEFACTION, LLC

By:

 

 

Name:

 

Title:

 

 

SIGNATURE PAGE TO EPC GUARANTOR DIRECT AGREEMENT